The expert had to terminate the experimental work at Buguma soon after he was able to overcome the initial difficulties. It was not possible to establish the necessary facilities to continue the work elsewhere in the country. In view of this, it is essential that the project is revived as soon as conditions return to normal and the Government is able to provide funds and counterpart personnel to carry out the programme of work.
The experimental farm at Buguma has suffered considerably due to neglect. If the required repairs are not carried out immediately and the farm maintained in working condition, the financial investment and effort already made will become a complete loss, and when the project is to be revived, a new farm will have to be built which will involve further delays and expenditure. It is therefore recommended that the Government take early action for the repairs and proper maintenance of the farm.
If the counterpart personnel trained locally by the expert as well as by the award of FAO fellowships are located, they may be assigned the task of re-starting the suspended experiments, pending the revival of the project.
The programme of future work can be based largely on the recommendations contained in Rep.FAO/EPTA (1973). Experimental studies should also cover the two species of catfish (Chrysichthys nigrodigitatus and Clarias lazera) and the common carp. Oyster culture should be tried in ponds where they can be protected from poachers.
After the experiments to select suitable species for culture and to devise appropriate species combinations and culture techniques for satisfactory production are completed, action should be taken to implement the project for the establishment of a production-cum-training centre for brackish-water fish culture with assistance from the Freedom from Hunger Campaign or Special Fund sector of the United Nations Development Programme.

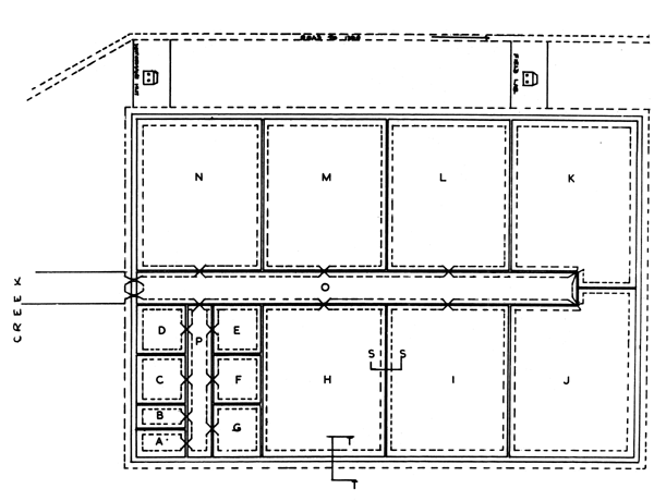
Fig.1 Sketch Map of the Experimental Brackish-water Fish Farm in Buguma
Source: Rep.FAO/EPTA (1973)

Fig.2 A view of the experimental brackish-water fish farm under construction at Buguma. Note the coconut seedlings planted on the main embankments.
![]() | ![]() |
Fig.3 Construction of sluices in progress | Fig.4 A view of the completed farm. The completed sluices of a number of ponds can be seen |
![]() | ![]() |
Fig.5 A filter for preventing tilapia from entering ponds | Fig.6 The filter fitted in the sluice of a pond |
![]() | ![]() |
Fig.7 The filter being filled with gravel | Fig.8 Tidal water passing through the filter |
![]() | ![]() |
Fig.9 Tilapia being hand-picked after draining the pond | Fig.10 ALDREX 40 being sprayed on pond bottom to eradicate tilapia |

Fig.11 Sluice blocked after application of ALDREX 40