DEPENSES EFFECTUEES POUR L'ESSAI
| RUBRIQUES | MONTANT |
| - Amenagement parcelle | 450.000 F CFA |
| - Exploitation : | |
| - Payement Manoeuvres | 120 758 F CFA |
| - Labour | 17 500 F CFA |
| - Repiquage | 20 000 F CFA |
| - Engrais | 29 500 F CFA |
| - Materiels | 82 425 F CFA |
| - Aliments ( 1,5 tones ) | 31 815 F CFA |
| - Semences ( 50 kgrs ) | 6 210 F CFA |
| - Fauchage | 5 000 F CFA |
| - Ramassage + Gerbier | 5 000 F CFA |
| - Battage + mise en sac | 10 000 F CFA |
| TOTAL | 778 208 F CFA |
Instructions:
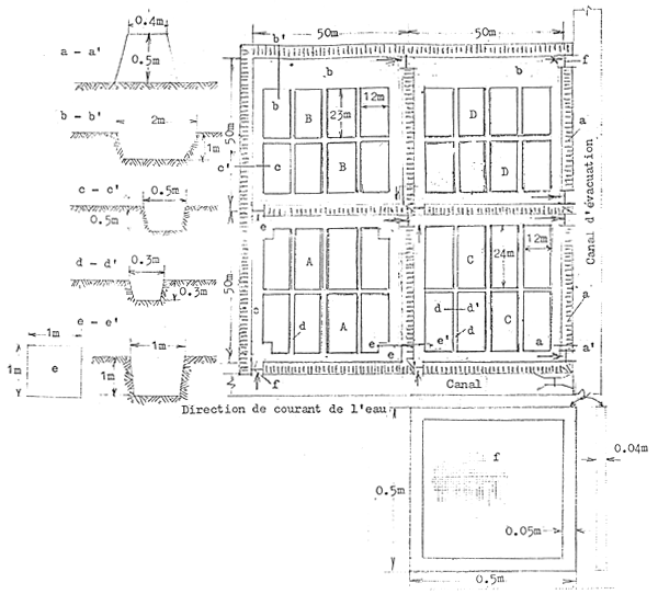
| 1. | Diguette dans les champs A servant de chemin (largeur 0,4m, hauteur 0,5m); sa coupe. | ![]() |
| 2. | Fossé principal B où se reposent les poissons (largeur 2m, profondeur 1m); Sa coupe. | |
| 3. | Fossé encerclé C qui entoure la diguette (largeur 0,5m, profondeur 0,5m); Sa coupe. | |
| 4. | Fossé secondaire D qui se trouve dans les champs (largeur 0,3m, profondeur 0,3m); Sa coupe. | |
| 5. | Fosse-refuge E où se reposent les poissons (longueur 1m, largeur 1m, profondeur 1m); Sa coupe. | |
| 6. | Crépine-écran à l'entrée et à la sortie de l'eau F (huit); Encadrer un filet carré (0,5m × 0,5m) à la maille de 0,5 à 1cm des bois (largeur 0,05m, épaisseur 0, 04m); Planter des ossatures de fer (diamètre 10–12mm, longueur 1m) ou pieus pour leurs fixations. |
Schèma de référence de la parcelle pour les essais de rizipisciculture