Page précédente Table des matières


ANNEXE 3: Schemas et illustrations



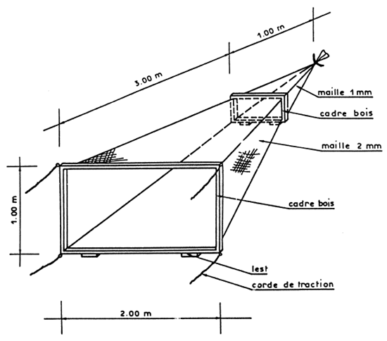
MODELE DE PETIT CHALUT A JUVEMILES DE CREVETTES

MODELE DE STRUCTURE DE CONTROLE DE L'EAU DES BASSINS (MOINE)




Page précédente Début de page