The basic considerations in establishing a fish hatchery are: (i) which site is suitable, (ii) what is the area of the site and the facilities required in relation to the goals or objectives of the hatchery, and (iii) how will the hatchery be managed.
It is of primary importance to conduct a feasibility study to determine the suitability of the site. This should be done prior to the establishment of the hatchery.
There are three factors which must be considered in designing a fish hatchery: (i) species, (ii) production target, and (iii) level of financial input. In addition, the facility requirements will depend on the nature of organization to run the hatchery. For government pilot projects, some laboratory support facilities are required. Otherwise, it may not be necessary as in commercial projects.
The design of the hatchery will also depend on its objectives. Experimental facilities or production-oriented system for commercial purposes or the combination of both may be incorporated in the design.
The hatchery can be an independent enterprise which is entirely self-sufficient in terms of facilities and manpower or as part of a bigger organization which utilizes its facilities and technical know-how. The hatchery can be an independent enterprise by itself or vertically integrated with other aquaculture enterprises in an organization.
The seawater used in a hatchery should be clean, clear and relatively free from silt. The water quality should be good with minimal fluctuation in salinity all year round. Suitable sites are usually found near sandy or rocky shore. Sites which are not suitable for hatchery include areas which are heavily influenced by rain or turbulence. River mouths should be avoided as abrupt salinity change occurs after a heavy rainfall. An added advantage of having a site on rocky shores is that good quality seawater is relatively near the shoreline. This reduces the cost of piping installation and pumping. The hatchery site should also be free from any inland water discharges containing agricultural or industrial wastes.
Ideally, a hatchery site should be selected in areas where there are active fish farming operations so that the fish larvae produced can be easily transported and distributed to the grow-out ponds and cages. The site chosen for a hatchery must have easy access to communication and transportation channels.
A fish hatchery cannot be operated without electricity. Electricity is essential to provide the necessary power to run the equipment and other life support systems of the hatchery. Hence, the site must have a reliable source of power. Installation of a standby generator is absolutely necessary especially in areas where there are frequent and/or lengthy power failures and fluctuations.
The ideal site should be spacious, situated on flat to gently sloping grounds, well drained and not susceptible to floods, strong wave and tidal actions. It should also be on compact soil and accessible by paved road.
1.5 Acquisition
It is advisable to pay attention to land values early in the site selection phase to ensure that the site is available for purchase or lease and at a price consistent with the project budget. Since land with the above characteristics is generally also desirable for other activities, it may be competitive for alternate land usage.
Hatchery design is aimed at achieving certain production targets which in turn determine the size of the hatchery. The capacity is based on an approximate ratio between tank for production of natural food (algae and rotifer) and larval rearing tank. The spawning tank depends on the larval requirement which is based on the number of spawners.
Based on hatchery techniques and practices in Thailand for seabass fry production, the following assumptions are made and used for estimating tank capacities:
By means of environmental manipulation or induced spawning, the species spawns monthly for 6 months (whole spawning season).
Survival rate of larvae from Day 1 to 50 is 15%. 50-day old larvae have an average length of 3 cm.
Production rate of 50-day old larvae in larval rearing tank is 5 per liter.
Larval rearing period is 50 days. One larval rearing tank can be utilized only for 3 runs in a single spawning season. Since fish spawn monthly, there should be two sets of larval rearing tanks to accomodate monthly production of larvae.
All the 50 day old larvae are stocked in earthern ponds and nursery cages.
The tank capacity for natural food production is the same as that for larval rearing tank. The proportion of algal culture tank and rotifer culture tank is 2:1.
The tanks for conditioning of selected spawners, for spawning, natural food production and larval rearing are often located outdoor.
The following is an example of estimating roughly the tank capacity required for spawning, larval rearing and natural food production:
| Production target | : | 2 million (50-days old larvae) |
| Spawning season period | : | 6 months |
| Spawning frequency | : | monthly |
| Production target/month | : | 2,000,000 larvae/month = 340,000 larvae |
| Production of 50-day old larvae in the larval rearing tank | : | 5,000 larvae/ton |
| Total capacity of larval rearing tank needed | : | 340,000 larvae/5000 larvae/ton = 68 tons |
| Larval rearing period | : | 50 days |
| Total capacity of larval rearing tank for monthly production | : | 68 tons × 2 sets = 136 tons |
| Use of natural food/crop | : | 15–20 days |
| Natural food culture tank | : | 68 tons |
| Ratio of algal culture tank and brachionus culture tank | : | 2:1 = 45:23 tons |
| Total number of newly hatched larvae needed | : | 2,000,000 larvae/15% survival = 14,000,000 larvae |
| Average hatching rate | : | 70% |
| Total eggs requirement | : | 14,000,000 larvae/70% hatching= 20,000,000 eggs |
| Average number of eggs/spawner | : | 1,000,000 eggs/spawner |
| Number of females needed | : | 20,000,000 eggs/1,000,000 eggs/spawner=20 female spawners |
| Stocking rate in spawning tank (1 male:1 female) | : | 20 males + 20 females at 1 fish/5 tons=200 tons |
The holding tanks in the seabass hatchery are used for various purposes such as for broodstock conditioning and subsequent spawning, incubation, larval rearing and production of natural food. The design of various types of holding tanks are shown in Table 4 and Fig. 5, 6 and 7.
The figure given in Table 5 describes the space requirements of production hatchery (Fig. 8) with capacity of 2 million 50-days old larvae for a six-month operating season.
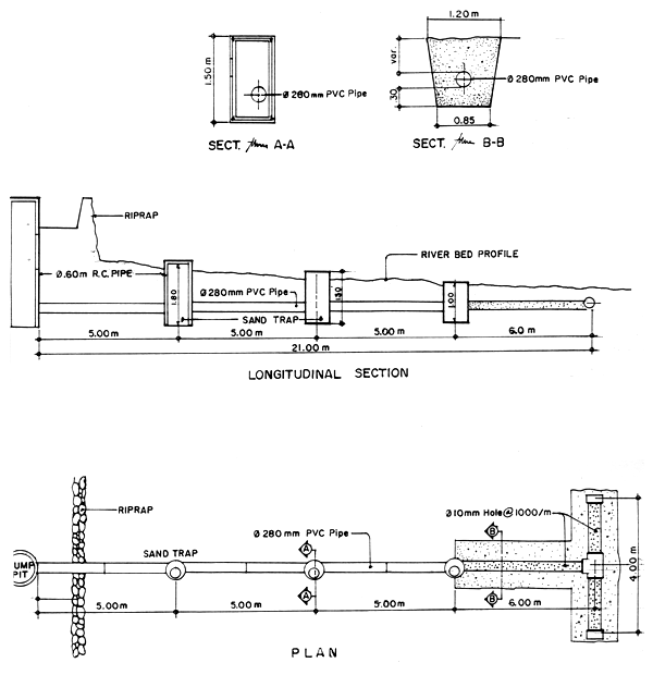
Seawater can be drawn directl from the sea or from the sump pit. If the source of water is relatively clear, the water can be pumped directly into the overhead filter tank and stored in the reservoir or storage tank. Water is then gravity-fed to various culture tanks through delivery pipes. However, if the water is turbid and contains a high concentration of suspended solids, it must be pumped first into a sedimentation tank where the suspended solids are allowed to settle down. Only the clear upper portion water is pumped into the filter tank. In some areas where water source is far from the shoreline and during low tide where large quantity of water is needed continuously, the sump pit or tube well can be constructed inshore near the hatchery. The sumps pit is connected to an underground pipe which is situated towards the water source. The water continuously enter the sump pit through the underground pipe even during low tide. Water is then pumped directly from the sump pit or tube well (Fig. 9). Water from the sump pit or tube well is usually clear because the water is filtered naturally through a layer of sand before entering the pipe so that it can be used directly. However, if vary clear and clean water is required, it should be pumped through the filter tank before use.
Table 4. Tank facilities and capacity used in seabass hatcheries.
| Stage | Facility | Stocking density | Volume needed (ton) | Unit vol. (ton) | No.unit | Size, shape, construction material |
| Adult | spawning | 1 fish/5 | 200 | 50 | 4 | square concrete tank 6m × 6m × 1.5m capacity of 50 tons with water & aerasystem (Fig.5) |
| Eggs | incubation | 100 eggs/liter | 14 | 1 | 14 | circular w/flat or conical shape bottom; 1000 1 capacity fiberglass tank (Fig. 6) |
| Larvae | larval rearing tank | 20–50 larvae per liter | 150 | 15 | 10 | rectangular concrete tank (1m × 1.5m × 10m) of hollow block cement w/ mild aeration (Fig.7). |
| Natural food | starter tank | 6 | 1 | 6 | circular tank flat bottom 1000 liters fiberglass tank | |
| Phytoplankton | algal culture tank | 40 | 10 | 4 | square concrete tank (3 × 3 × 1.2m) with aeration | |
| Zooplankton | Brachionus culture tank | 20 | 10 | 4 | rectangular concrete tank (1.5 × 3 × 1.2) |

Fig. 5. A broodstock development/spawning tanks.

Fig. 6. An incubation tank.

Fig. 7. A larval rearing tank.
| Facility | Dimension (m) | Area (m2) |
| Staff office | 5 × 4 | 20 |
| Algal culture room | 5 × 4 | 20 |
| Wet laboratory | 8 × 10 | 80 |
| Spawning tank | 25 × 6 | 150 |
| Larval rearing tank | 17 × 10 | 170 |
| Phytoplankton culture | 12 × 3 | 36 |
| Zooplankton culture | 6 × 3 | 18 |
| Dry laboratory | 5 × 4 | 20 |

Fig. 8 Lay-out of seabass hatchery

Fig. 9 Seawater intake thru sumpit.
Pump specification must be chosen properly since the size of the pump depends on the total water requirement per day and maximum pumping time. Figure 10 indicates the total head suction pipe, discharge value and pump horsepower. With these data, pump specification required for such hatchery facilities can be derived.