Como se ha indicado anteriormente, un matadero se ocupa de la transformación de una o varias clases de ganado en carne para el consumo humano. Las operaciones subsidiarias consisten en dividir los cortes primarios de la carne en pedazos más pequeños y en la separación y el tratamiento de diversos subproductos.
Debido a numerosas enfermedades y a otros agentes contaminantes que se pueden dar en la carne y que se derivan de una infección intravital en el animal o de una contaminación secundaria a partir de los seres humanos o del medio ambiente, resulta esencial establecer un sistema de higiene de la carne a lo largo de todas las etapas de producción. Ese sistema debe comenzar donde tiene su origen el ganado y proseguir a través de la elaboración hasta la distribución final al cliente.
De ello se deduce que una parte esencial de este sistema de higiene es la necesidad de establecer un estricto control de las condiciones ambientales en todas las etapas del tratamiento. Este control, debido a la susceptibilidad de la carne a la contaminación microbiológica a partir del aire, las manos de los trabajadores, el equipo y la ropa, etc., debe intensificarse en atmósferas cálidas y húmedas o contaminadas y abarcar la temperatura y la humedad.
Este factor adquiere también mayor importancia y alcance con el aumento de la producción. Por consiguiente, independientemente de otros factores como la economía de la producción, la utilidad o la estética, el diseño del matadero debe siempre satisfacer las exigencias de higiene prescritas por el país respectivo. Los principios generales del diseño deben atenerse a los siguientes parámetros.
Consideraciones humanas en el sacrificio de animales;
Elaboración y almacenamiento higiénicos de la carne y los subproductos comestibles;
Recuperación de subproductos no comestibles;
Esparcimiento y recreo de los empleados.
Instalaciones para el ganado
Aparte de las consideraciones humanas anteriores a la matanza, el cuidado del ganado afecta al estado y a las cualidades de mantenimiento de la carne de las reses muertas y, en consecuencia, es una exigencia legal esencial e invariable que se proporcione una superficie adecuada cubierta o no cubierta según las condiciones climáticas para que el ganado pueda descansar después de haber recorrido cierta distancia que requiera de dos a tres días de viaje.
La inspección en vivo impone también la obligación de mantener seco al ganado y, de ser necesario, los dispositivos para el lavado (cuando son económicos) deben estar concebidos para evitar un exceso de humedad en el lugar del sacrificio.
Para mantener una alta calidad de la carne, es esencial procurar reducir al mínimo el movimiento de las reses en los corrales o en las zonas de descanso hasta el lugar de la matanza.
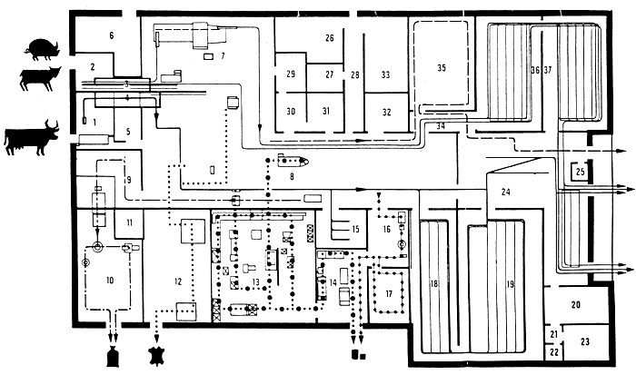
Para alcanzar los objetivos deseados de una matanza humanizada, higiénica y racional con una inspección adecuada se requiere la organización de un sistema de cadena de fábrica en varias etapas y secciones consecutivas en los edificios de una sola o de múltiples pisos pasando de las zonas en que se efectúan las operaciones sucias (fig. 1) a las operaciones cada vez más limpias hasta el punto de venta. En la fig. 2 se representa a uno de estos sistemas en forma bidimensional para un matadero típico de dimensiones medias que sacrifique de 50 a 100 bovinos al día. Las etapas son las siguientes:
Mantenimiento en corrales, atronamiento (o matanza) y sangría, desuello (obsérvese que para los cerdos se habla de escaldadura, depilación, chamuscamiento y rascado).
Preparación (extracción de las tripas, separación del material inadecuado o no comestible bajo la inspección de un veterinario, división de la canal y limpieza).
Colgado o enfriamiento a temperaturas del almacén antes de la entrega.
Deshuesado y corte antes de proceder a una nueva verificación de la temperatura y acondicionamiento antes del envío a un mercado, a un gran minorista o a un consumidor.
Estas operaciones de preparación de la carne se vuelven a subdividir para que puedan ser realizadas en su totalidad por una o dos personas o descomponerse en tareas separadas realizadas por un equipo, según la dimensión de la empresa y la forma en que está organizada. Después de proceder a la refrigeración, la carne se despacha fresca o refrigerada para el consumo o para almacenarse de manera controlada a una temperatura aún inferior para un consumo posterior.
La preparación de las canales y su transferencia de una sección a otra puede entrañar el cambio de una posición vertical a una posición horizontal de la res muerta y viceversa y requiere el uso de polipastos y raíles transportadores suspendidos, respectivamente. La mayor parte de las instalaciones, en particular las destinadas a animales pequeños utilizan ahora un sistema que permite que las canales estén casi totalmente suspendidas de raíles desde la matanza hasta el despacho. En las operaciones de escaldado y eliminación de las cerdas de los cerdos, obviamente una nave de carnización que se limita a una especie en un momento dado difiere un tanto en su diseño de otra que permita la matanza simultánea de dos o tres especies, teniendo cada uno de estos sistemas sus propias ventajas.
En todos los sistemas el personal puede ser sumamente competente en sus funciones individuales y estar en condiciones de conseguir la máxima eficiencia de toda la operación y como las cabezas, las patas, los cueros y las vísceras, etc., se retiran en puntos muy separados de la sala de subproductos estratégicamente emplazada, toda la operación es más higiénica. En las fábricas de varios pisos, la retirada se hace por medio de rampas situadas en el área de carnización de abajo, donde estarán ubicados los diversos departamentos de despojos, que a su vez dan la posibilidad de proceder a una manipulación higiénica.
La planificación cuidadosa de las zonas destinadas a subproductos, algunas de las cuales están interconectadas, permite proceder a una manipulación mínima y eficiente de los despojos comestibles, la apertura del vientre, la limpieza de las tripas y el tratamiento de despojos no comestibles y de reses muertas decomisadas y a la manipulación de pieles y cueros. En este caso igualmente es esencial planificar la separación adecuada de las operaciones sucias y limpias de productos comestibles y no comestibles y de los trabajadores respectivos. El departamento de extracción de productos no comestibles dispone de un gran equipo de elaboración y debe estar situado en la planta baja. Este departamento debe producir unos alimentos de alto contenido proteínico. Para ello normalmente se recurre a la utilización de equipo semiautomático de alta calidad y de un mínimo de mano de obra, aunque cuando existe una necesidad social diversas operaciones pueden seguir utilizando mucha mano de obra.
Cuando se efectúa el désuello de la carne, resulta económico, en lo que respecta a los huesos y a los desechos grasos, mantener separada la planta de sebo comestible de la sección de productos no comestibles del departamento de subproductos. De esta forma se consigue una mayor flexibilidad en la venta de sebos. Como los productos resultantes de estas operaciones son de la categoría comestible, las instalaciones requeridas pueden influir también en la planificación de la principal zona de producción, es decir, la sala de carnización así como las zonas de almacenamiento y despacho.
El rápido enfriamiento de la carne de las canales y de los despojos comestibles es esencial para evitar la pérdida debida a corrupción y la pérdida de peso y para cumplir las normas relativas al comercio al por menor o al comercio de exportación. Normalmente en los países en desarrollo basta la refrigeración por evaporación en lo que respecta a la carne que se va a consumir el día de la matanza. Si se exige un enfriamiento que produzca la refrigeración se debe poner cuidado en disponer de una capacidad de enfriamiento suficiente para evitar la entrada de carne caliente en cámaras en que se conserve carne refrigerada. Además, este departamento y la instalación de los corrales son las zonas en cuya planificación se debe prever una expansión adecuada en el futuro. Esta consideración abarca asimismo el emplazamiento estratégico de las zonas de despacho.

FIGURA 1 DIAGRAMA DE SECUENCIA DE LAS ACTIVIDADES Y LOCALES CORRESPONDIENTES DE MATADEROS DE TAMAÑO MEDIO


FIGURA 2 DIAGRAMA DE FLUJO Y PLAN DE UN MATADERO DE CAPACIDAD MEDIA
(50 A 110 CABEZAS DE GANADO VACUNO POR DIA)
Este aspecto de las operaciones de un matadero tiene una considerable influencia en la disposición de la nave de carnización. Las mejoras de las técnicas son constantes al hacerse más críticos los procedimientos de inspección. Un matadero de mediano tamaño debe disponer de su propio laboratorio, el cual debe tener, de ser necesario, un tamaño lo suficientemente grande como para efectuar exámenes bacteriológicos para todos los mataderos más pequeños de la zona de una autoridad local. El proyectista debe prever un equipo adecuado para facilitar el trabajo del inspector y para cumplir los diversos reglamentos de los departamentos públicos competentes.
Se requieren instalaciones para la inspección en vivo del ganado en los corrales, con inclusión de los animales sospechosos en establos aislados, y la inspección posterior a la matanza de la sangre, las cabezas, las vísceras, las asaduras y la canal. En instalaciones pequeñas un inspector podría desempeñar todas estas funciones, antes del despacho del producto comestible. El tiempo necesario para la inspección de diversas categorías de ganado varía según el grado o la incidencia de las enfermedades. Los laboratorios de los inspectores necesitan disponer sólo de un banco con la parte superior de plástico laminado, un fregadero, un mechero bunsen y un microscopio para examinar manchas de sangre cuando se sospeche que existe un ántrax. Esto debe poder hacerse fácilmente sin un equipo complicado. Si la matanza de cerdos es la principal actividad, el examen de la carne para detectar si existe triquinosis debe ser un procedimiento de rutina para el que habrá que disponer de triquinoscopios y del personal necesario.
Después del descabezamiento, las cabezas se colocan en un gancho para pasar la inspección, siendo esencial disponer de un medio de identificación de la canal. La labor de inspección se concentra principalmente en torno al punto en la cadena que sigue inmediatamente al destripamiento, y las instalaciones deben diseñarse de manera que los inspectores puedan trabajar cómodamente con la canal y con los diversos despojos que se acaban de extraer de la res muerta. Estas zonas se indican en los diversos planos de las naves de carnización que se analizan en capítulos posteriores.
Las instalaciones para personal, la dirección, los inspectores de la carne y las actividades de mantenimiento y transporte son esenciales para el funcionamiento adecuado y eficiente de un matadero. Los departamentos de operaciones “limpias” y “no limpias” han de estar estrictamente separados entre sí y sus necesidades especiales serán atendidas por un personal diferente. La facilitación y prestación equilibrada de servicios como el suministro de electricidad, agua caliente y fría, vapor, aire comprimido, equipo de refrigeración, procedimientos de limpieza y comunicaciones han de ser objeto de una atención detallada, ya que constituyen una parte sustancial del coste de un matadero y pueden reducirse si se adoptan medidas de recuperación de la energía. Cuando surgen necesidades especiales debido a costumbres religiosas o de otra índole, la separación y el emplazamiento de las diversas secciones pasan a ser factores importantes en la planificación y el diseño de los diversos departamentos (e incluso de cierto equipo) dentro del conjunto del matadero.
Al aumentar la toma de conciencia de la gravedad de la contaminación ambiental y, paralelamente, al aumentar la competencia para disponer del agua potable, la eliminación de los desechos ha adquirido mayor importancia y recibe una mayor atención por parte de las autoridades sanitarias. Las sobras de sebos y el estiércol que hasta ahora se consideraban poco económicos en pequeños establecimientos se están recuperando aunque sólo sea para disminuir la carga de contaminación. Allí donde no existen restricciones a la utilización de la tierra, la constitución de lagunas anaeróbicas o anaeróbicas/aeróbicas resulta el sistema más eficaz en función de los costos, particularmente en los países en desarrollo donde las aguas residuales tratadas se pueden emplear para el riego.
Tras estas notas introductorias, en las secciones siguientes se hacen descripciones más detalladas de los sistemas de preparación de la carne y elaboración de subproductos y de sus repercusiones en el diseño, haciéndose hincapié e indicándose lo que resulta adecuado y otras soluciones razonables de que se dispone. A este respecto y por estos motivos, las dimensiones requeridas para llevar a cabo cualquier tarea individual en la cadena de un matadero no se ven afectadas por el rendimiento, pero la extensión de la cadena y el número de secciones varían con el ritmo de la matanza. Las zonas de trabajo no son necesariamente proporcionales al rendimiento debido a que ciertas operaciones, en particular el atronamiento, el desangrado, el destripamiento, el cortado y la inspección de la carne requieren una misma superficie para rendimientos muy distintos. Las cifras y las dimensiones óptimas se señalan en las partes pertinentes del texto y en las ilustraciones e indican el espacio conveniente para cualquier operación independientemente del ritmo de matanza. Cuando se conoce, se indica el ritmo máximo de matanza para un sistema dado, aunque algunas modificaciones de las dimensiones resultarán inevitables debido a la disposición de los edificios individuales, y particularmente a las alteraciones de los mataderos existentes.