Sea cual sea la forma del producto final o del corte de carne fresca, los puestos de venta al por mayor son imprescindibles, particularmente para los mercados de la carne de vaca y de cerdo, siendo su objetivo fundamental descuartizar la canal en trozos de menor tamaño para la venta al por menor para facilitar su distribución y/o elaboración. De hecho, el mercado público de venta al por mayor es el eje central del sistema de distribución de la carne y funciona también como centro del mecanismo de fijación de los precios esenciales. No es imprescindible que sean de propiedad municipal. Las cooperativas son comunes y ambos sistemas pueden coexistir en una región.
Los mercados al por mayor pueden y a menudo forman parte de los mataderos, en particular en lo que respecta a las plantas menores donde el espacio para la suspensión de las canales puede reservarse para la venta de la carne. En países más industrializados el mercado de la carne está progresivamente siendo absorbido por los empresarios que se encargan de cortar o procesar la carne en supermercados o en depósitos de refrigeración centrales.
Al proliferar y conglutinarse cada vez más las zonas urbanas en todo el mundo, existe una presión sobre las autoridades para proporcionar grandes mercados centrales que atiendan a toda una región, frente a la diversidad de mercados de distrito más pequeños. Dados los limitados medios de transporte por carretera y ferrocarril y la tecnología de refrigeración, el consumidor está mejor atendido por un mercado al por mayor local, que no se encuentra a más de una hora de distancia en automóvil del matadero en los países en desarrollo.
En la actualidad en los países en desarrollo sólo unos pocos mercados disponen de instalaciones de refrigeración, y los hábitos de preparación y consumo de los alimentos en el pasado han creado y prolongado esas situaciones. Esos mercados son inadecuados para un almacenamiento de larga duración. No obstante, los carniceros deben tener por lo menos un frigorífico o una cámara de almacenamiento en su puesto.
Cuando el espacio lo permite, las instalaciones de venta al por mayor están a menudo situadas en el propio matadero. Sin embargo, es un requisito previo para la adecuada refrigeración de la carne en el matadero que en el mercado de carne se disponga de instalaciones análogas.
En situaciones en que se carece de éstas, al renovar un matadero donde la matanza se realiza tradicionalmente a primeras horas de la mañana, se deben prever naves de suspensión condicionadas con ventiladores, en las que las canales calientes se enfrían a una temperatura de superficie de un máximo de unos 5,5 °C por debajo de la temperatura media del aire durante un período de hasta seis horas mientras esperan ser transportadas al mercado. Estas naves de suspensión, si estaban planificadas de manera adecuada desde el principio, pueden más tarde transformarse en cámaras de refrigeración de la carne cuando los mercados de carne se modernicen con la instalación de la refrigeración en los puestos de venta.
Si las instalaciones para colgar o suspender la carne en el matadero están refrigeradas, el espacio de suspensión del mercado debe estar adyacente a esas cámaras frías y el recinto del motor de refrigeración, etc.
Se han creado diversos tipos de mercados de venta al por mayor de la carne en los que las canales se cuelgan de carriles aéreos, entre los cuales las principales categorías son las siguientes:
Espacio atmosférico para colgar con o sin un almacenamiento refrigerado adyacente y emplazado como anexo de un matadero o en un lugar separado que atiende directamente al mercado al por menor.
Espacio de suspensión refrigerado y puestos de venta unidos a un almacén de refrigeración adjunto emplazados como anexos de un matadero o situados en otro lugar con o sin instalaciones centrales para cortar la carne que atienden directamente a los supermercados y a los mercados al por menor.
En la primera categoría, en que los mataderos utilizan cámaras frías o naves de suspensión atmosféricas como mercados, la disposición preferida consiste en que el primer par de carriles aéreos estén separados por una distancia de 1 050 mm, el segundo, por una distancia de 840 mm, el tercero, por 1 050 mm, etc. Esta configuración permite el paso del personal a través de las filas alternas para inspeccionar las canales (fig. 82). De estos carriles, los “pequeños” pueden ser de doble pila colgando de seis a ocho ganchos con puntas en forma de “estrella” en dos hileras de los ganchos de cilindro o carritos. El sistema requiere un trabajador adicional en la nave que se ocupe de las operaciones de doble apilamiento y arriado, pero esto no constituye una carga en los países en desarrollo donde la mano de obra no es un problema.
La segunda categoría necesita una nave común dividida longitudinalmente por una pasarela central para atender a los puestos de venta de los carniceros situados a lo largo de los lados externos de la pared. Una forma rectangular resolverá casi todos los problemas y situada paralelamente a su largo eje la nave estará atravesada por un carril aéreo suspendido en un pasillo de 5 m de ancho. El carril aéreo, por medio de carriles de derivación adecuadamente situados, atenderá a los puestos individuales, cada uno de los cuales dispondrá de una sierra de descuartizamiento y de un carril elevado para colgar la mitad o los cuartos de las canales de bovinos o cerdos y canales enteras de ovejas en los carriles inferiores con ganchos para despojos, disposiciones típicas que están representadas en la fig. 83.

Leyenda
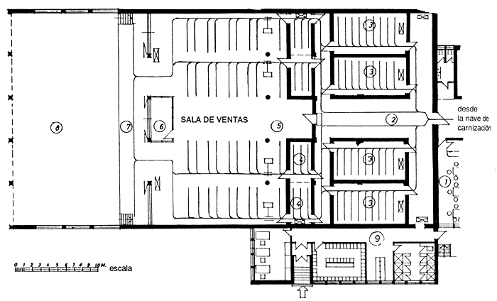
FIGURA 82 PLANO PARCIAL DE MATADERO QUE REPRESENTA LA CAMARA FRIGORIFICA Y LA SALA DE VENTAS

Emplazamiento del almacén común de productos congelados

Emplazamiento de los enfriadores individuales de cada puesto
FIGURA 83 DIVERSOS EMPLAZAMIENTOS POSIBLES DE LOS PUESTOS DE VENTA DE CARNE EN UN MERCADO AL POR MAYOR
La carne y los despojos que cuelgan de los ganchos pueden dirigirse desde la entrada hasta los puestos y/o las cámaras de refrigeración con entrada para personas, de ser necesario, incluyendo cada puesto una oficina para el carnicero en la que habrá un lavabo y un depósito para herramientas y ropa. Otra posibilidad consiste en que los refrigeradores sean una nave común para colgar productos refrigerados dividida en espacios separados por redes metálicas para la carne no vendida, que estarán situados al final de la nave. Las oficinas y los lavabos y cuartos de servicio habituales, las duchas, los cuartos para cambiarse y los armarios son fundamentales para que los carniceros no tengan que utilizar servicios públicos externos.
Sean cuales sean los cambios que se produzcan en la comercialización y distribución de la carne al por mayor, los mercados tradicionales de carne al por menor mantendrán su identidad y forma actuales y coexistirán con supermercados para satisfacer prácticas o hábitos alimentarios tradicionales en los países en desarrollo. La introducción del control de la temperatura y una mayor higiene en ambos tipos de mercados contribuirán a superar los problemas actuales de su desproporcionado número en relación con el período limitado de duración de sus productos cárnicos en la tienda y el número de días de la semana que están abiertas.
- Emplazamiento
Se debería proceder a una reorganización de la distribución de las carnicerías pasando de su actual dispersión en los mercados generales a una concentración en un lugar especialmente elegido y construido y alquilado de preferencia por las autoridades locales. El plano y la sección de un bloque de carnicerías que constituye un mercado al por menor se basa en las recomendaciones de la Organización Mundial de la Salud (OMS) (fig. 84).
Las normas no son tan estrictas como para los mataderos debido a que los mercados no están sometidos al mismo fuerte desgaste. Los acabados de las paredes deben ser de un material duro, liso, sin escamas y lavable y debe estar cubierto, por lo menos, de una o dos capas de cemento coloreado de pintura blanca o crema.
En cuanto a la altura, se debe decir que en los climas tropicales los edificios altos son más frescos, se prestan más fácilmente a una ventilación adecuada, son menos húmedos y por lo general menos polvorientos que lás estructuras bajas. La distancia del suelo a los aleros debe ser como mínimo de 4m y en el diseño del tejado y debajo de él se deben incorporar caballetes con criba de ventilación. La parte superior de las fachadas debe dejarse abierta y protegida con cribas para permitir la ventilación transversal y en una de las fachadas se debe instalar un ventilador eléctrico para hacer circular el aire. De lo contrario, lo ideal sería instalar en cada tienda ventiladores individuales “con bastidor volante”.
- Suelos y drenajes
Para conseguir unas condiciones sanitarias, es esencial que los suelos sean suaves e impermeables. Han de tener una pendiente no inferior a 7,5cm y no superior a 12,5cm por 1 m hacia un canal de desagüe de sección redonda que deben tener tubos en U y rejas y seguir la dirección del muro trasero de las tiendas. Siempre que sea posible, las aguas residuales se deben descargar en el sistema de eliminación de aguas negras comunal.
- Materiales para la parte superior de los mostradores
Para las partes superiores de los mostradores se recomiendan losas vidriadas ya que proporcionan una buena protección contra los daños químicos, mejoran el aspecto de las tiendas y son fáciles de limpiar. A los carniceros no les gusta utilizar una parte superior del mostrador de losa para cortar la carne, porque las losas se rompen fácilmente. Algunos materiales de plástico, como formica, son aún más adecuados que las baldosas para las partes superiores de los mostradores.
- Tejado
Como material para los tejados en el pasado se utilizaba amianto no corrosivo que da una buena protección contra el calor excesivo. Sin embargo, el amianto se considera actualmente un peligro para la salud y debe dejar de utilizarse. Cuando existe madera en abundancia y tejas ligeras, se deben emplear estos materiales. Una tercera posibilidad son las láminas de aluminio que reflejan el calor. El empleo de láminas de hierro no se recomienda ya que pueden enmohecer la carne. El empleo de madera no tratada no se debe recomendar porque la madera puede ser atacada por el gorgojo, las termitas y la putrefacción.
- Abastecimiento de agua
Cuando no se dispone de un abastecimiento de agua limpia de la red principal, se deben instalar canalones a lo largo del tejado para recoger el agua en una cisterna. El grifo de la cisterna de agua debe estar situado a 50cm del nivel del suelo. Al comienzo de las lluvias un segundo grifo situado a 10cm de la parte inferior de la cisterna debe abrirse para que salgan los sedimentos, mientras que el grifo superior abastece a las tiendas de agua potable. Cuando las precipitaciones sean insuficientes, se debe prever un abastecimiento doble de agua limpia y no tan limpia.
El agua limpia está destinada a los lavabos, los mostradores y las mesas de carnicero, cuando la carne está expuesta a la venta. La otra agua se utiliza para lavar los suelos, las paredes, los pasillos, etc.
Se debe hacer todo lo posible porque las carnicerías estén conectadas con las redes principales de abastecimiento, si existen. Es conveniente disponer de agua caliente y la construcción de una caldera debe tomarse en consideración. Cuando resulte difícil proporcionar agua caliente, se debe estudiar la posibilidad de instalar calentadores solares de agua en el tejado. Sin embargo, sólo puede optarse por esta solución después de haber efectuado un cuidadoso análisis de la relación costo-beneficios.

FIGURA 84 DETALLES DEL MERCADO DE LA CARNE AL POR MENOR (OMS)