Page précédente Table des matières Page suivante


Chapitre 2
Production d'huile d'arachide

L'étude s'appuie sur les analyses réalisées en des lieux présentant de notables différences socio-culturelles et écologiques. Aussi fait-elle apparaître des nuances de savoir-faire riches d'enseignements. Les lieux choisis sont:

L'ARACHIDE ET SES PRODUITS

L'arachide (arachis hypogaea) est une légumineuse annuelle dont le fruit mûrit en terre. Ses graines servent surtout de matière première pour l'extraction des huiles utilisées comme assaisonnement et en cuisine et pour produire le beurre d'arachide. Une partie appréciable de la production d'arachide est utilisée comme produit vivrier: arachides grillées consommées telles quelles ou utilisées comme condiment, notamment dans la préparation de sauces réputées. Au Bénin, la consommation de graines est évaluée à 12 kg par personne et par an. Seules les variétés hâtives, à cycle inférieur à 100 jours, sont cultivées en Afrique. Les arachides d'huilerie doivent associer un rendement élevé au décorticage (70 pour cent environ) à une forte teneur en matière grasse (50 pour cent), tandis que les arachides de bouche doivent avoir une faible teneur en matière grasse (inférieure à 50 pour cent) et un poids de graine élevé (plus de 150 g les 100 graines).

Généralement, les ventes en coque sont destinées à la consommation de bouche et les ventes en décortiqué à la confiserie. Les fanes correctement récoltées et séchées ont une teneur en protéines de 14 à 16 pour cent et une valeur fourragère élevée (0,4 VF/kg). En moyenne, 100 kg de gousses (coques) donnent 70 kg d'amandes qui contiennent 30 kg d'huile; avec le traitement industriel par pression, les rendements d'extraction peuvent atteindre 45 pour cent mais les tourteaux résiduels (50 pour cent) ne conviennent qu'à l'alimentation animale.

Les procédés traditionnels par empâtage éliminent une partie des germes et le tégument séminal et, par conséquent, diminuent la somme des produits transformés de 7 pour cent. Ils ne permettent de libérer que 60 pour cent de la teneur en huile de l'amande, mais ils livrent un sous-produit de haute valeur alimentaire, la galette ou kouli, enrichie en protéines (35 pour cent) par suite d'une extraction partielle de l'huile (teneur (teneur ramenée à 24 pour cent) et de l'élimination du tégument séminal et des germes, ce qui le rend plus digeste que la graine grillée.

Les huiles d'arachide africaines sont riches en acides gras insaturés avec 60 pour cent d'acide oléique et 22 pour cent d'acide linoléique.

La composition de l'amande en matière sèche est la suivante: lipides de 45 à 54 pour cent, protéines de 20 à 26 pour cent, glucides de 9 à 12 pour cent.

PROCÉDÉ TRADITIONNEL

Décorticage

A Foumbea, où les femmes ont été déçues par une décortiqueuse mal réglée ou mal utilisée qui cassait les graines, le décorticage est effectué à la main et est, de ce fait, considéré comme très pénible. A Totchangui, une décortiqueuse de fabrication artisanale (coût 10 000 FCFA), affreusement désarticulée, donne, grâce à un certain tour de main, entière satisfaction. Son modèle est à retenir, notamment en ce qui concerne le rapport poids/surface du frotteur mobile.

Après décorticage, les graines sont tamisées, vannées et généralement triées. Les répartitions sont effectuées manuellement à l'aide de cribles et vans que les femmes savent manier avec une grande dextérité.

Toastage

Les graines, parfois mélangées à du sable grossier, sont chauffées dans une vasque en tôle de 40 à 60 cm de diamètre ou en terre dans laquelle elles sont remuées en permanence par grattage du fond de la vasque. Le sable répartit la chaleur autour des graines, évitant ainsi la carbonisation au contact de la tôle brûlante. A Agbangon, les femmes, pour mieux accumuler et répartir la chaleur dans la vasque métallique, ont intuitivement découvert les effets, du côté feu, d'une couche de cendres pétries avec des herbes gluantes. A Natitingou, on utilise de la glaise.

Ces précautions sont imposées par le type de foyer utilisée: un foyer bas chauffé directement par la flamme. L'utilisation de foyers améliorés simples (sans cheminée) est en voie de généralisation.

La réussite de l'opération de toastage conditionne le rendement à l'extraction. Son but est de détruire les composants cellulaires de liaison de l'huile (protéines et amidons hydratés) qui seraient responsables de la rétention d'huile au cours de la manipulation d'extraction.

Comme pour le toastage du gari, de véritables ateliers sont constitués dans un bâtiment disposant de plusieurs postes là où l'activité est importante.

Dépelliculage et dégermage

Les graines sont frictionnées à la pierre sur une planche pour décoller le tégument séminal (pellicule rouge). Au cours de cette opération, les germes sont le plus souvent détachés. Les pellicules rouges et les germes sont séparés par vannage et criblage au tamis à mailles larges. L'élimination des germes ne peut qu'améliorer la conservation du kouli, car ils contiennent des saponines amères qui sont responsables du goût savonneux.

A Agbangon, où le volume de la production est important, l'opération est réalisée par passage entre les meules desserrées au maximum d'un broyeur à plaques d'acier. Les quelques amandes brisées entraînées avec le tégument séminal sont récupérées par tamisage. Il n'est donc plus possible de séparer les germes.

Broyage-affinage

Les graines grillées sont réduites en pâte entre les meules d'un moulin qui sert également à la mouture des céréales (photo 15). L'huile d'arachide demeurant fluide aux températures africaines, le nettoyage des moulins ne pose pas les problèmes imputables au karité et le broyage des arachides est partout accepté par les meuniers. Ils appliquent une répartition des horaires entre céréales et arachides à cause de la contrainte du lavage des meules. Celui-ci est effectué bénévolement par les femmes.

Extraction de l'huile

Après refroidissement de la pâte, pendant la nuit généralement, une savante incorporation d'eau froide accompagnée d'un pétrissage du bout des doigts provoque la synérèse (photo 16), résultat de la coagulation des matières hydrophiles qui se rassemblent en grume aux, entre lesquels apparaît l'huile.

Le pétrissage est poursuivi avec pression des paumes pour chasser l'huile, l'incorporation d'eau étant réglée selon la structure de la pâte. A Foumbea, où le savoir-faire est apparu comme plus astucieux et plus élaboré (encore qu'à Totchangui on en soit au même point a l'outil près — un billot de bois placé au fond de la cuvette sur lequel est effectué le pétrissage) (photos 17 et 18), le pétrissage est effectué sur une pierre creuse inclinée sous laquelle une bassine recueille l'huile (photos 19 et 20). Ainsi, la pâte dégorge bien et le temps de travail est raccourci. A ce stade, les femmes de Foumbea incorporent un mélange de sel et d'épices (piments, gingembre, poivre, etc.) qui provoque une dernière sortie d'huile et conduit à une pâte de kouli ferme et non luisante.

Les pratiques sont différentes à Agbangon et à Natitingou. A Agbangon, la succession des opérations citées est pratiquée dans une cuvette, l'huile étant enlevée a la petite calebasse (photo 21) quand son niveau monte. Le pétrissage de la pâte en présence d'huile n'est certainement pas recommandable car il réincorpore de l'huile à la pâte et ralentit le roulage du kouli en galettes et bâtons luisants d'huile.

A Natitingou, l'opération observée était réalisée au pilon dans un mortier (photos 22 et 23). Le pilon est utilisé au début en malaxeur et ensuite en lisseur par application d'un mouvement giratoire lent. La synérèse y était remarquablement obtenue et la séparation de l'huile parfaite.

Préparation des galettes (kouli)

La pâte est mise en boules, dont le poids correspond à l'unité retenue par les femmes; elles sont ensuite, le plus souvent, roulées en bâtonnets aux extrémités effilées (photos 24 et 25). Ces bâtonnets sont jetés dans une partie de l'huile recueillie (⅔ de la quantité produite), qui est modérément chauffée pour laisser évaporer son contenu d'eau et déshydrater les bâtonnets. L'eau, puis la vapeur d'eau, qui s'échappe à travers le réseau capillaire créé entraîne l'huile libre par effet de viscosité. La température de l'huile ne dépasse pas, à ce stade, 80°C (photo 26).

Séchage de l'huile

Les femmes savent reconnaître le point de séchage à l'allure de l'ébullition et à la grosseur des bulles de vapeur. Cette opération conduite avec ménagement s'intègre à la précédente, le séchage se poursuivant au cours de la cuisson des bâtonnets.

 
15
Les graines grillées sont réduites en pâte entre les meules d'un moulin qui sert également à la mouture des céréales.
16
Une savante incorporation d'eau accompagnée d'un pétrissage provoque la synérèse.
1516
  
1717 et 18
A Totchangui, le pétrissage est effectué sur un billot de bois installé dans une cuvette.
18













19 et 20
A Foumbea, le pétrissage est effectué sur une pierre creuse inclinée au-dessus d'une cuvette.
1920

2121
L'huile est écopée avec un bol d'acier.
22
 22
Le brassage au pilon peut avantageusemment remplacer le pétrissage si l'eau est ajoutée.
23
La synérèse est parfaite et la récupération de l'huile est facilitée.
23

26

26
Les bâtonnets de kouli sont plongés dans un bain de friture où ils sont déshydratés et appauvris en huile.
24 et 25
La pâte résiduelle est soit mise en boules, soit roulée en bâtons.
24
25

L'opération de friture pratiquée pour la cuisson et le dorage des beignets et autres est différente, car elle nécessite des températures poussées de l'huile, qui perd de ce fait ses propriétés biologiques.

ASPECTS ÉCONOMIQUES

Rendements

Les chiffres se recoupent d'une région à l'autre, de même que les prix. Les rendements relevés en fin de campagne se situent autour de 27 pour cent. Ils sont inférieurs à la moyenne car, à cette période, les rendements de l'huile diminuent, mais la quantité et la qualité des galettes compensent la baisse de rendement.

La comparaison ne peut se faire avec l'industrie, car la galette est un produit noble, d'intérêt alimentaire indéniable en dépit du risque de présence d'aflatoxines, dont le taux peut aisément être ramené au seuil de tolérance par l'élimination au crible des petites amandes suivie d'un triage permettant d'éliminer les amandes décolorées. La difficulté est de faire respecter cette recommandation par des esprits peu enclins à s'effrayer de certaines menaces pour la santé dont la sanction n'est pas immédiate et démonstrative. Le risque est en fait effacé par le double traitement thermique que subissent les produits au cours du grillage de la graine et de la friture des galettes. Les rendements industriels d'extraction par pression de graines à 54 pour cent sur le produit tel quel, livrant des tourteaux à 7 pour cent d'huile, sont de 50 pour cent. Le rendement en tourteaux est de 42 pour cent.

A supposer que les arachides traitées par les femmes aient la même teneur en huile, les rendements seraient, en partant des données recueillies dans le Zou, ceux qui figurent au tableau 6.

Composantes économiques

La matière étant conservable et transportable, les interférences sont diverses; elles portent tantôt sur les prix de l'huile, qui varient précisément en fonction de l'offre et de la demande dont l'équilibre dépend de la circulation des produits1, et tantôt sur les disponibilités régionales en graines en cours d'année.

Comme pour l'huile de palme, les femmes spécialistes de cet artisanat sont motivées par le besoin de ressources monétaires, n'ayant que cette seule activité lucrative a leur portée.

TABLEAU 6

Huile27%
Kouli à 32% d'huile61–64%
Freinte et pertes9–12%

Que les prix varient du simple au double dans l'année, que les «cartels» des vendeuses de graines ou des acheteuses d'huile se concertent, les femmes savent résister, ayant en tête les ratios de prix matière première/produit fabriqué de même que les tendances saisonnières et conjoncturelles des prix. Elles savent, entre autres, tirer parti de la vente au détail, plus profitable qu'en estagnon.

Le prix des matières premières demeure étroitement lié au prix de l'huile. Toutefois, ce prix varie du simple au double dans l'année alors que le revenu tiré de l'activité ne varie pas beaucoup. Les précisions recueillies en 1985 semblent encore valables aujourd'hui.

Achats d'arachides. En 1985, les prix variaient de 170 FCEA/kg pour des graines décortiquées dans le Zou et à Natitingou à 125 FCFA/kg à Foumbea et dans le Mono. Certaines astuces sont l'expression d'une grande finesse commerciale: les transformatrices font la différence entre l'achat à la mesure et l'achat à la cuvette d'un marché à l'autre; elles décident d'achats soit en coque, soit en amandes décortiquées, prenant en toute lucidité le risque inhérent au décorticage. Le jeu est complexe car le taux de remplissage de la mesure d'arachide en coque est augmenté variablement des retombées de remplissage du récipient. On ne joue plus sur les prix mais sur les volumes.

En 1985, l'écart de prix ramené au produit décortique allait de 34 à 47 FCFA, à l'avantage des achats en coque. Bien que cet écart puisse diminuer quand les prix augmentent, il demeure assez confortable pour payer le décorticage et faire face aux surprises des rendements.

Valorisation des huiles. A la différence du prix des graines, qui dépend de l'offre saisonnière — la plupart du temps prévisible —, le prix de l'huile, étant déterminé par la demande peu spéculative de populations à faible pouvoir d'achat, varie dans une moindre mesure.

En 1985, a Foumbea, le prix de l'huile variait de 450 a 850 FCFA le litre. Dans le Mono, le prix de l'huile allait de 300 à 400 FCFA. Dans le Zou et à Natitingou, où la graine est chère, l'huile était vendue 500 FCFA le litre.

Valorisation des galettes. Le prix de la galette ne varie pas, mais les ajustements sont faits sur le poids, la compensation étant automatiquement opérée par les femmes lorsque le prix de l'huile monte ou que le rendement de transformation baisse, comme cela se produit en fin de campagne.

D'un site à l'autre, sauf dans le Mono, la recette tirée des galettes est identique. Les deux bâtons sont vendus 5 FCFA, les cinq bâtons 10 FCFA et le tas de 40 bâtons 100 FCFA. Le prix du kg de galette va donc de 80 à 90 FCFA, alors que dans le Mono le prix atteignait 110 FCFA (1985). En période de soudure, les prix doublent.

Facteurs économiques. Les éléments déterminants du coût de transformation sont:

Bilan de l'activité. A Agbangon, les quantités traitées par semaine sont de sept sacs décortiqués, soit 300 kg.

A Foumbea, 10 femmes disposent d'un grilloir en acier, d'une pierre à pétrir et de deux petites tables à rouler les bâtons, logés dans un bâtiment de 20 m2. Le groupement traite en une seule opération 60 kg par semaine. Les femmes sont occupées de 9 heures à 16h.30.

L'organisation est sensiblement la même qu'à Moné pour le karité. Les femmes permutent les postes de travail. Vingt kg représentent quatre opérations de grillage et quatre opérations de pétrissage. Pour 60 kg, le budget temps est de 15 heures-femme, dont 5 heures de pétrissage et 6 heures de grillage. Le temps de roulage des galettes, considéré comme peu contraignant car réalisé dans la bonne humeur par les femmes et les enfants, n'est pas compté.

Les souhaits exprimés dans le Zou portent sur les facilités de crédit pour l'achat de graines; les femmes, étant parfois amenées à acheter pour continuer à produire, paient la graine dès qu'elles ont encaissé la valeur des ventes d'huile.

TABLEAU 7
Bilan financier de Foumbea pour 60 kg de graines décortiquées (en FCFA)

 DépensesRecettes
Achat de graines7500 
Mouture  900 
BoisPour mémoire 
Roulage des bâtons  400 
Total8800 
Vente d'huile (18 litres)    8100
Vente de galettes    3000
Total 11 000
Marge brute2200 

TABLEAU 8
Bilan financier de Totchangui pour 36 kg de graines décortiquées (en FCFA)

 DépensesRecettes
Achat de graines4000 
Mouture  400 
BoisPour mémoire 
Roulage du kouli  250 
Total4650 
Vente d'huile (10 litres) 3250
Vente de galettes 2500
Total 5750
Marge brute1 100 

1 Qui met en œuvre I'information et les transports.

PROGRAMME DES AMÉLIORATIONS

Les femmes ont désigné les opérations pénibles, a savoir: le décorticage, lors qu'il est pratiqué à la main, et le grillage. Le pétrissage est cité pour l'effort physique qu'il demande mais il ne rebute pas outre mesure. La contrainte de main-d'œuvre et de temps occasionnée par le façonnage des galettes n'échappe à personne.

Les améliorations techniques concernent les opérations unitaires du procédé tel qu'il se présente. L'introduction d'une presse dans le circuit, qui fait l'objet de sollicitations fréquentes, est déconseillée. En effet, la presse ne convient pas au pressage d'un produit pâteux, humide de surcroît. Son utilisation signifierait un changement radical de la technologie villageoise; de plus, toute l'économie de l'extraction serait à revoir à cause du remplacement des galettes par un produit nouveau dont l'utilisation alimentaire nécessiterait la recherche de débouchés ou une opération supplémentaire de formage de galettes1.

1 Cela a été expérimenté au Togo par le CONSAT-ICP dans un cadre restreint de recherche.

Décorticage et triage

Le matériel existe. Il suffit de veiller aux réglages d'entrefer des battes et de la grille. Les artisans (certains sent déjà intervenus en ce domaine) méritent d'être guidés dans la construction d'une décortiqueuse d'un prix de l'ordre de 10 000 FF, d'un tamis à trous oblongs dimensionnés pour le criblage (20 × 8) permettant d'accélérer la séparation des amandes et des gousses non ouvertes. La décortiqueuse de Totchangui est à prendre comme modèle à condition de s'appliquer à une réalisation mécanique plus classique.

Un second criblage des amandes à la maille de 14 × 4 séparera les petites amandes. Elles seront soumises à un tri manuel d'élimination des graines de coloration indésirable, pour écarter les risques liés aux aflatoxines.

Toastage

D'excellentes vasques de grillage tout acier existent et suffisent aux productions ne comportant que 5 à 10 kg par opération. Pour des mises en œuvre plus importantes, un modèle en acier à raclage alternatif, manœuvrable par manivelle, a été amélioré pour admettre des charges de 30 kg. Une attention particulière doit être apportée à la conception d'un foyer à cheminée. L'allure de chauffe sera réglable de manière à éviter le brûlage des amandes. La cheminée disposera d'une clé de réglage de l'évacuation des fumées et d'un avant-foyer à grille. Une chicane de retour de flamme permet, en allongeant le trajet des gaz chauds, de répartir l'impact du chauffage et d'accroître le rendement thermique.

Prévoir une alimentation en bois tronçonné à 0,80 m et, pour ce faire, encourager le village à se doter d'une scie type Sandwick à lame interchangeable.

Broyage-affinage

La contrainte du nettoyage du broyeur à céréales serait évitée par l'utilisation d'un hachoir de charcuterie modifié de manière à tourner à 800 tours/minute. Un prototype existe, qui pourrait servir de modèle. Il n'est pas sûr que le coût d'un tel appareil soit accessible à une production communautaire.

Cuisson des galettes

Les manipulations de prélèvement des galettes dans l'huile brûlante seraient facilitées par l'utilisation d'une cuvette profonde disposant d'un panier comme en sont équipées les friteuses ménagères et de collectivité.

DESCRIPTIF DES ÉQUIPEMENTS

Crible à arachides

Deux tamis de 0,80 m de diamètre possédant deux poignées; flancs réalisés en bois déroulé; tôle perforée de trous oblongs de 8 × 20 mm pour le premier et de 5 × 12 mm pour le second.

Toasteur à manivelle

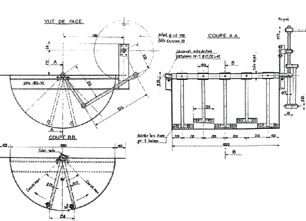
Il est constitué d'une auge semi-cylindrique, dont le développement est taillé dans une tôle de deux fois 1 m de manière a récupérer une fausse coupe utilisable. (Dimensions: longueur 1 m, rayon de courbure 0,50 m.)

Le dispositif de manœuvre par bielle-manivelle, qui transforme une rotation en mouvement alternatif, facilitera la régularité du pelletage et la maîtrise de son rythme. La cinétique du système doit être calculée de manière à évitertout blocage. La fixation de la manivelle et du maneton de fixation de la bielle doit être montée sur un disque de tô1e dont la masse créera le moment d'inertie permettant de diminuer l'effort d'impulsion du tournage. La lame de raclage de la paroi sera fixée sur ses bras par boulons pouvant coulisser dans des trous oblongs de manière a permettre les réglages de compensation de l'usure de la lame (voir figure 6).

L' appareil sera enchassé sur un four de banco amélioré à cheminée à clé de réglage du débit des fumées. Il disposera d'un foyer a cendrier et d'une chicane de retour de flamme permettant d'allonger le parcours des gaz chauds. Ce dispositif facilitera le réglage de l'allure du chauffage tout en améliorant le rendement thermique (voir figure 7).

Panier de friture

A réaliser en fil de fer galvanisé; fabriqué par un artisan aux dimensions des chaudrons; les mailles de génératrice doivent être assez fermées pour éviter de laisser s'échapper les bâtons. Prévoir deux paniers par chaudron.

Broyeur-affineur

La modification d'un hachoir à viande classique porterait sur le simple montage d'un palier à bague autolubrifiante sur l'arbre d'entraînement de la vis de poussée du produit vers les couteaux et la grille d'extrusion.

MISE EN MAIN DES APPAREILS

Toasteur

Résultats techniques. L'appareil mis en service à Agbangon, district de Bohicon (photos 27 et 28) fonctionne correctement à l'entière satisfaction des femmes. Son débit est de 30 à 40 kg/heure pour un cycle de toastage de 30 minutes. Cela permet de diminuer de moitié la consommation de bois.

L' alimentation du foyer en bois tronçonné faciliterait la conduite de l'allure du foyer et permettrait de réaliser trois opérations en une heure, soit un débit de 45 à 60 kg/heure. Le réglage du toastage réside dans la conduite de l'allure du foyer facilitée par la clé de réglage du débit d'extraction des fumées. La fermeture du foyer par une plaque de tôle permet de réduire la consommation de bois pendant les arrêts de fonctionnement (photos 29 et 30).

La lame unique de brassage du produit retourne imparfaitement les graines. Elle sera remplacée par un dispositif de raclage-pelletage constitué de cinq lames métalliques, dont trois de 25 cm en remplacement de la lame unique et deux de 40 cm décalées de 24 cm en arrière des premières, distances mesurées sur la génératrice du bac. Il convient d'éliminer les à-coups au point d'inversion du mouvement alternatif par l'adoption d'un volant de tôles qui recevra la poignée de manœuvre et le maneton de prise de fixation de la bielle en un point assurant la démultiplication de l'effort de manœuvre.

Données économiques. L'investissement est de 400 000 FCFA pour un appareil faisant appel à des fournitures moins coûteuses que celles utilisées par le constructeur du prototype. Il devrait tomber à 300000 FCFA, auxquels il faut ajouter le coût du foyer, qui est de 50 000 FCFA. Sa durée de vie permet un amortissement sur 10 ans.

La charge annuelle d'amortissement est plus que compensée par les économies de bois, le temps libéré n'étant pas pris en compte. Pour Agbangon, qui traite 400 kg d'amandes par semaine pendant 30 semaines environ, soit 12 tonnes/an, la charge serait de 3 FCFA/kg d'arachide.

CONCLUSIONS

Les améliorations proposées permettent de diminuer de 50 pour cent le budget temps1, de supprimer les nuisances du toastage sur foyer individuel et de doubler ou de tripler, selon les moyens mis en œuvre, les capacités de production.

Les problèmes qui vont se poser sont ceux d'une augmentation de production qui risque de concurrencer l'huile industrielle, importée ou non, moins intéressante du point de vue nutritionnel mais parfaitement présentée, contrairement aux huiles traditionnelles livrées en bouteilles disparates et graisseuses qui risquent de mal se conserver si elles ne sont pas parfaitement séchées.

Un centre de conditionnement régional, disposant d'un filtre et d'une modeste installation de conditionnement et structuré pour promouvoir les huiles d'arachide villageoise, offrirait la solution de survie d'un artisanat utile au maintien de l'équilibre rural. L'étude de sa faisabilité technique et économique mérite attention.

L'écoulement des produits est à étudier: il est I'accompagnement nécessaire des développements techniques.

Les laboratoires du Département de l'agriculture des Etats-Unis ont mis au point une technique qui consiste à cuire les graines à l'eau ou à la vapeur, puis à les chauffer modérément à sec avant de les introduire dans une presse à scourtins. Environ 50 pour cent de l'huile est extraite et les amandes ne perdent pas leur forme, ce qui permet de produire de l'arachide grillée allégée, donc plus digeste. Une telle innovation mériterait d'être expérimentée, avec pour objectif l'étude de commercialisation du nouveau produit.

1 La notion de budget temps élaborée par la Division de la nutrition de la FAO est le produit du temps passé à l'effort physique principalement, mais également intellectuel ou mental.

 
27
L'installation du toasteur à manivelle: construction du foyer.
27
 
2830
30
Pose de la grille du foyer.
28
Le toasteur en opération.
 
29
29
L'avant-foyer sur grille peut être bouché par une plaque de tôle.
 
 

FIGURE 5
Production d'huile d'arachide



FIGURE 5

FIGURE 6
Toasteur à arachides
FIGURE 6

FIGURE 7
Grilloir à arachides
FIGURE 7
FIGURE 7

Page précédente Début de page Page suivante