Appendix IV - Complete units and various equipment and material for fruit and vegetable processing

Contents - Previous

  1. VEGETABLE PROCESSORS
  2. AUTOMATIC SIEVES / PULPER
  3. SIMPLE PEELING MACHINE BY ABRASION
  4. FLOW DIAGRAM OF TRIPLE EFFECT POLYVALENT FRACTIONAL EVAPORATOR FOR TOMATO PASTE UP TO 320 BRIX AND CONCENTRATED CLARIFIED FRUIT JUICE TILL TO 720 BRIX - ING. A. ROSSI
  5. SMALL SCALE STERILIZERS - STERIFLOW(r) - BARRIQUAND
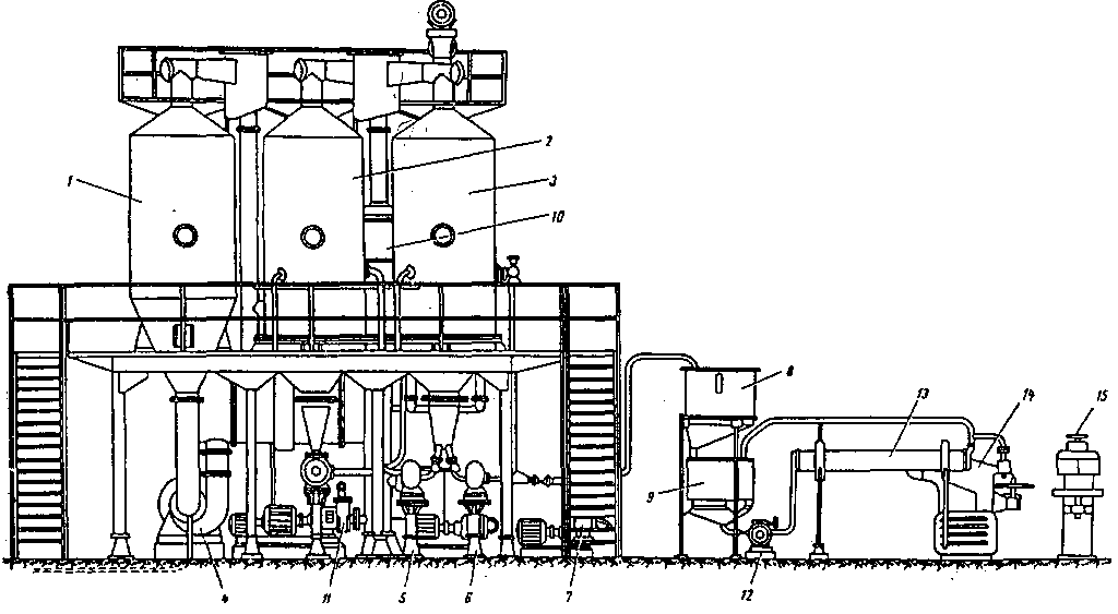
  6. TECHNOLOGICAL PROCESSING LINE FOR OBTAINING TOMATO JUICE BEFORE CONCENTRATION TO TOMATO PASTE
  7. TECHNOLOGICAL LINE FOR TOMATO JUICE CONCENTRATION AND TOMATO PASTE PASTEURIZATION
  8. POTATO PROCESSING UNIT - TECHNOLOGICAL LINE FOR POTATO FLAKES DEHYDRATION ON DRUM DRYERS
  9. VARIOUS SIZES AND TYPES OF GLASS JARS
  10. EQUIPMENT FOR "DRY SULPHURING" OF FRUIT BEFORE DEHYDRATION / DRYING

1. Vegetable Processors

2. Automatic Sieves - Pulper

4. Flow Diagram of Triple Effect Polyvalent Practional Evaporator- Ing. A. Rossi

5. Small-scale Sterilizers - Steriflow(r)- Barriquand

6. Technological Processing Line for obtaining Tomato Juice before concentration to tomato paste

(1) to (6) - WASHING - SORTING EQUIPMENT GROUP

  1. INITIAL WASHING
  2. DRUM
  3. FINAL WASHING
  4. AIR COMPRESSOR
  5. SORTING BELT
  6. RETURN BELT

(7) CRUSHER

(8) ROTATIVE SEPARATOR

(9) PULP CRUSHER

(10) SEED SEPARATOR

(11) PREHEATER

(12) COLLECTING TANK

(13) PUMP

(14) PULPER

(15) REFINER

(16) SUPER-REFINER

(17) JUICE STORAGE TANK BEFORE CONCENTRATION

7. Technological line for tomato juice concentration and tomato paste pasteurization

  1. FIRST EFFECT EVAPORATOR
  2. SECOND EFFECT EVAPORATOR
  3. THIRD EFFECT EVAPORATOR
  4. PUMP
  5. PUMP
  6. PUMP
  7. PUMP
  8. STORAGE TANK
  9. STORAGE TANK
  10. CONDENSER
  11. VACUUM PUMP
  12. PUMP
  13. PASTEURIZATOR
  14. DOSING AND FILLING MACHINE
  15. CLOSING MACHINE

8. Potato Processing Unit - Technological line for potato flakes - dehydration on drum driers

 

POTATO PROCESSING UNIT - TECHNOLOGICAL LINE FOR POTATO FLAKES DEHYDRATION ON DRUM DRYERS

(1) Vertical transporter

(2) Separator for soil, stones, etc.

(3) Size grader: whenever possible, potatoes with a diameter of 20 to 80 mm are preferred for processing into flakes. The fresh potatoes with a diameter exceeding 80 mm could be oriented to temporary storage and / or to direct delivery on the fresh fruit and vegetable market.

(4) Storage tank

(5) Washing machine, rotary type

(6) Vertical transporter

(7) Storage tank

(8) Vertical transporter

(9) Weighing device

(10) Vertical transporter

(11) Peeling machine, steam type; for other installations lye peeling equipment could be used.

(12) Rotary washing machine

(13) Transport and control belt

(14) Weighing and distribution system

(15) Vertical elevator

(16) Cutting machine

(17) Equipment for starch removal / washing

(18) Continuous blanching machine: 80-83° C, for 7 min.

(19) Cooler: in a water stream at 14-15° C.

(20) Machine for potato boiling: in water vapour, at 100° C, for 20 min.

(21) Vertical transporter

(22) Press or granulator: change boiled potatoes to a paste; for a good operation at drying stage it is recommended that the paste contain at least 20% dried substances (no more than 80% moisture).

(23) Feeding device for drum dryer; at this processing step, there are various additives that are added to the hot paste (in order to maintain taste, flavour, stability and structure of the finished products - potato flakes).

For 1000 kg paste 120 g of sodium sulphite and 40 g sodium bisulphite are added; in order to facilitate addition and an homogenous distribution, weak sulphite solutions are preferable. Depending on the sanitary regulations in various countries it is also possible to add other antioxidants.

Monoglycerides could be added for flakes texture improvement.

(24) Drying drums: potato purée is dried as a continuous sheet / film having 6% moisture. Rotating speed of the drum should be adjusted according to paste dried substances content; this speed could be between 1.8 and 2.3 rotation per min (RPM). Steam used for heating will have a pressure between 5 and 6 kgf / cm².

It is possible to estimate that a potato paste with 80% moisture could be dried to a 4.5-5% moisture content in about 20 see using the following operating parameters: steam pressure = 6 kgf / cm²; 2 rotations per min (RPM).

(25) Equipment for removal and cutting of potato dried sheets (26) Vertical transporter

(27) Machine for cutting sheets into flakes size / shape

(28) Transport and control belt

(29) Vertical transporter

(30) Vibrating / calibrating machine

(31) Transport belt

(32) Conditioning

(33) Packing: packaging material should be airtight in order to avoid moisture pick-up and enough strong / rigid to protect flakes from breaking. Opaque packaging materials are recommended.

Finished product quality characteristics:

9. Various sizes and types of glass jars

9. Various sizes and types of glass jars (continued)

SO2 GENERATOR

SULPHURING INSTALLATION

CONVERSION TABLES - FAHRENHEIT SCALE AND CELSIUS SCALE


Contents - Previous