Cook, H.L., 1976 Problems in shrimp culture in the South China Sea Region. South China Sea Fisheries Programme, Manila, Philippines, SCS/77/WP/40: 29p.
Cook, H.L. and H.R. Rabanal (eds.), 1978 Manual on pond culture of penaeid shrimp, A project of ASEAN with the assistance of FAO/ UNDP/South China Sea Fisheries Development and Coordinating Programme, Manila, Philippines, ASEAN 77/SHR/CUL3: 132p
Denila, L., 1976 Layout, design, construction and levelling of fishponds. Readings on Pond Construction and Management, SEAFDEC Aquaculture Department, Tigbauan, Iloilo, Philippines. (manuscript)
Department of Fisheries, 1978 “Feasibility Study”, Ministry of Agriculture and Rural Development, Malaysia. (manuscript)
Institute of Oceanographic Sciences, 1979 “Tide Tables for Malaysia and Singapore”, Birkenhead, United Kingdom
Jamandre, T.J. and H.R. Rabanal, 1975 Engineering aspects of brackishwater aquaculture in the South China Sea Region. South China Sea Fisheries Programme, SCS/75/WP/16:
Joint SCSP/SEAFDEC 1977 Workshop on Aquaculture Engineering (with emphasis on small-scale aquaculture projects), Vol. 2 - Technical Report. SEAFDEC Aquaculture Department Department, Tigbauan, Iloilo, Philippines, 27 November-3 December 1977. South China Sea Fisheries Programme, Manila, Philippines SCS/GEN/77/15: 468p.
Kato, J., 1948 Guide to design and construction of coastal aquaculture pond. Japan International Cooperation Agency, Tokyo, Japan
King, H.W., C.O. Wisler and J.G. Woodburn, 1948 Hydraulics, Wiley, London, 5th ed.: 351p.
Krynine, D.P., 1947 Soil mechanics. McGraw, N.Y., 2nd ed.: 511p.
Lim, Chiong-Chup, 1969 Reclamation of tidal lands on the west coast of Malaysia. Paper presented to the Second Symposium on Development of Deltaic Areas, Economic Commission for Asia and the Far East: 23p.
Maar, J.M., 1966 Fish culture in Central East Africa, FAO, Rome: 158p.
Manning, R., 1890 Flow of water in open channels and pipes. Transactions of the Institute of Civil Engineers, Ireland, Vol. 20
Peurifoy, R.L., 1970 Construction, planning, equipment and methods. McGraw, N.Y., 2nd ed.: 696p.
Pillai, T.G., 1962 Fish farming methods in the Philippines, Indonesia, and Hong Kong. Fisheries Division, Biology Branch, FAO, Rome
Platon, R.R., 1978 Design, operation and economics of small-scale hatchery for the larval rearing of sugpo, Penaeus monodon Fabricius. SEAFDEC Aquaculture Department, Extension Manial No. 1: 30p.
Potter, T., 1976 The problems to fish culture associated with acid sulphate soils and methods for their improvement. Paper contributed to the ASEAN Seminar Workshop on Pond Culture of Penaeid Shrimp, Iloilo City, Philippines, 15–23 November 1976: 132p.
Primavera, J.H. and F.P. Apud, 1977 Manual of operations: Sugpo Pond Culture Extension Manual No. 2. SEAFDEC Aquaculture Department, Tigbauan, Iloilo, Philippines
Project Task Force, 1979 “Inception Report”, Preliminary report for the culture of brackishwater shrimp”, Ban Merbok, Kedah, West Malaysia. Paper submitted to the Ministry of Agriculture and Lands, Malaysia
Scobey, F.C., 1933 The flow of water in flumes. U.S. Department of Agriculture, Technical Bulletin 393
Sham Shani, 1975 Variation of bright sunshine in Peninsular Malaysia, 1963–1972. The Malaysian Agricultural Journal, Vol. 50, No. 1. Ministry of Agriculture and Rural Development, Malaysia
Sinnappa, S. and Chang Eng Thuan, 1971 Identification of rotenone in fish poisoned by derris root resin. Malaysian Agricultural Journal, Ministry of Agriculture and Lands, Malaysia Vol. 48, No. 1: 20–24p.
Shigueno, K., 1975 Shrimp culture in Japan. Association for International Technical Promotion, Tokyo, Japan: 153p.
Steel, E.W., 1960 Water supply and sewerage, 4th ed. McGraw, N.Y.: 655p.
Tang, Y.A., 1976 Planning, design and construction of a coastal fish farm. FAO Technical Conference on Aquaculture, FIR:AQ/Conf/ 76/E.68
Tiensongrusmee, B. and S. Adisukresno, 1979 The culture of the triger shrimp, Penaeus monodon Fabricius in brackishwater ponds. FAO/UNDP Brackishwater Aquaculture Development Centre, Jepara, Indonesia. (manuscript)
U.S. Department of Agriculture, (undated) “Engineering Field Manual for Soil Conservation Practices
TABLES
| Date | Station | Texture | Organic matter % | Silt % | Clay % | Fine sand % | Coarse % | pH | Remarks |
| 11.7.79 | Random/Outside of Bund | - | - | - | - | - | - | 8.0 | |
| " /Inside " " | - | - | - | - | - | - | 5.7 | ||
| " / " " " | - | - | - | - | - | - | 5.5 | ||
| 18.7.79 | I Bottom of river | Clay loam | 15.94 | 27.86 | 21.06 | 6.69 | 2.02 | 8.0 | Samples from surface of river bottom |
| II " " " | Loam | 14.89 | 26.56 | 17.15 | 14.94 | 6.91 | 8.0 | " " " " " " | |
| III " " " | Loam | 14.62 | 28.68 | 8.40 | 13.20 | 5.00 | 8.0 | " " " " " " | |
| IV " " " | Silty clay loam | 13.52 | 38.24 | 29.67 | 3.94 | 3.69 | 8.0 | " " " " " " | |
| V " " " | Loam | 16.63 | 21.13 | 13.41 | 18.47 | 6.48 | 8.0 | " " " " " " | |
| 25.7.79 | 1 Inside of Bund | Clay loam | 6.26 | 25.32 | 27.02 | 38.98 | 1.75 | 5.5 | 1. Sampling was done 100 yards from the bund and at 100 yd intervals. |
| 2 " " " | " " | 9.34 | 34.53 | 34.91 | 28.95 | 4.28 | 5.5 | ||
| 3 " " " | " " | 6.89 | 28.98 | 34.61 | 29.75 | 2.76 | 5.7 | 2. The land was flooded in 6 inches to 2 feet. | |
| 4 " " " | Loam | 7.09 | 40.64 | 23.59 | 30.03 | 3.17 | 5.7 | ||
| 5 " " " | Sandy clay loam | 14.25 | 27.93 | 23.48 | 18.99 | 30.41 | 5.7 | 3. Rained for the past few days. | |
| 4. Samples taken from 3 feet below ground surface. | |||||||||
| 31.7.79 | 7700 Outside of Bund | Loam | 24.48 | 27.84 | 17.92 | 24.78 | 10.69 | 7.5 | 1. Sampling was done about 100 feet from bund. |
| 7400 " " " | Sandy loam | 26.10 | 33.58 | 18.11 | 41.68 | 19.58 | 7.5 | ||
| 7100 " " " | " " | 24.06 | 28.81 | 15.78 | 38.13 | 18.17 | 8.0 | 2. Wood pegs on the bund were used as guide. | |
| 6800 " " " | Loam | 23.11 | 38.20 | 21.29 | 20.86 | 12.40 | 8.0 | ||
| 6500 " " " | " | 19.54 | 28.40 | 19.28 | 28.15 | 11.92 | 8.0 | 3. Samples taken from 3 feet below surface. | |
| 6100 " " " | Clay loam | 18.68 | 39.22 | 27.14 | 21.73 | 4.88 | 7.2 |
Note: The percentage of organic matter, silt, clay, fine sand and coarse sand do not add up to 100% because of experimental error.
| Date | Station | Time | Tidal condition | Transparency (m) | Temp. °C | pH | Salinity ppt | D. Oxygen ppm | BOD ppm | COD ppm | % O2 saturation | Total AMM. ppm | FE ppm | Suspended solids ppm | Total solids ppm | Dissolved solids ppm | Remarks |
| 11/7/79 | Random | - | - | - | - | 27 | - | - | - | - | - | - | - | - | - | ||
| 18/7/79 | I | 1130 | Receding | 0.50 | - | 7.4 | 29 | - | - | 2.3 | - | 0.04 | 1.375 | 264 | 32,473 | 32,209 | |
| II | 1140 | Receding | 1.00 | - | 7.4 | 29 | - | - | 2.4 | - | 0.12 | 0.370 | 242 | 32,957 | 32,715 | ||
| III | 1150 | Receding | 1.10 | - | 7.4 | 30 | - | - | 2.2 | - | 0.34 | 0.313 | 251 | 33,125 | 32,874 | ||
| IV | 1200 | Receding | 1.50 | - | 7.4 | 29 | - | - | 1.7 | - | 0.04 | 0.340 | 248 | 33,121 | 32,873 | ||
| V | 1230 | Receding | 1.50 | - | 7.6 | 29 | - | - | 2.8 | - | 0.04 | 0.210 | 284 | 32,707 | 32,423 | ||
| 24/7/79 | I | 1200 | Rising | 0.75 | 27 | 7.3 | 20 | 3.28 | 1.73 | 1.2 | 45.47 | 0.02 | 0.040 | - | - | - | Raining for the past few days before the day sampling was done |
| 1630 | Receding | - | 28 | 7.3 | 20 | 3.13 | 1.96 | 1.7 | 42.13 | - | - | - | - | - | |||
| 25/7/79 | 0430 | Receding | - | 27 | 7.4 | 20 | 2.31 | 0.44 | 1.0 | 32.02 | - | - | - | - | - | ||
| 29/7/79 | II | 1210 | Rising | 0.75 | 27 | 7.4 | 20 | 2.58 | - | 1.3 | 35.76 | 0.06 | 0.037 | - | - | - | |
| III | 1220 | Rising | 1.00 | 27 | 7.4 | 20 | 3.13 | - | 1.1 | 42.13 | 0.12 | 0.045 | - | - | - | ||
| IV | 1230 | Rising | 0.75 | 27 | 7.4 | 20 | 3.20 | - | 1.4 | 44.36 | 0.10 | 0.037 | - | - | - | ||
| V | 1300 | Rising | 0.75 | 27 | 7.4 | 20 | 2.60 | - | 1.4 | 36.04 | 0.04 | 0.035 | - | - | - | ||
| 1/8/79 | I | 0500 | Stagnant | - | 28 | 7.4 | 18 | 4.40 | - | 2.0 | 60.39 | 0.04 | 0.125 | 24 | 19,359 | 19,333 | |
| 1330 | Rising | 0.75 | 31 | 7.4 | 19 | 6.20 | - | 4.3 | 81.12 | 0.38 | 0.055 | 34 | 19,447 | 19,413 | |||
| 1630 | Stagnant | 1.00 | 32 | 7.5 | 18 | 6.80 | - | 2.0 | 88.15 | 0.18 | 0.045 | 3 | 19,790 | 19,787 | |||
| II | 1210 | Rising | 0.75 | 32 | 7.4 | 19 | 6.07 | - | 2.5 | 77.96 | 0.16 | 0.055 | 9 | 19,674 | 19,665 | ||
| III | 1220 | Rising | 1.00 | 32.5 | 7.4 | 19 | 5.35 | - | 3.4 | 68.09 | 0.16 | 0.078 | 20 | 19,636 | 19,616 | ||
| IV | 1210 | Rising | 1.00 | 32 | 7.4 | 19 | 5.55 | - | 2.0 | 71.28 | 0.12 | 0.067 | 20 | 19,576 | 19,456 | ||
| V | 1200 | Stagnant | 1.00 | 31.5 | 7.4 | 19 | 5.05 | - | 4.3 | 66.70 | 0.74 | 0.055 | 20 | 20,292 | 20,270 |
Note: All samples were taken 6 inches below the surface.
Table 3. Ratios of tidal range at Tanjong Dawai to that at site of proposed farm 1
Time difference: +25 minutes
| State of tide | Height difference (m) | Correction ratio | |
| At reference station (predicted) | At site of farm (observed) | ||
| MHHW 2 | 2.37 | 2.57 | 1.08 |
| MHLW 2 | 0.96 | 0.94 | 0.98 |
| MLHW 2 | 2.12 | 2.33 | 1.09 |
| MLLW 2 | 0.72 | 0.75 | 1.05 |
| LAT 2 | - | - | - |
| HAT 2 | - | - | - |
Table 4. Design tide curve (for main gate) with high water at mean high water neap (representative curve of 21 February 1979 shown in Fig. 8)
Times and heights of high and low waters
| Place | Position | Tide differences | Height differences | |||||
| Standard Port Penang | Lat. | Long | MHW | MLW | MHWS 2.5 | MHWN 1.8 | MLWN 1.3 | MLWS 0.6 |
| Secondary Port Tanjong Dawai | -0023 | -0023 | +0.2 | +0.1 | 0.0 | -0.1 | ||
Seasonal changes in mean level
| J | F | M | A | M | J | J | A | S | O | N | D | |
| Penang | -0.1 | |||||||||||
| Tanjong Dawai | -0.1 |
| Predicted times at STANDARD PORT | 0624 | 1954 | 1234 | 0048 |
| Time differences at Secondary Port | -0023 | -0023 | -0023 | -0023 |
| Predicted times at Secondary Port | 0601 | 1931 | 1211 | 0025 |
| Seasonal change of ML at STANDARD PORT | -0.1 | -0.1 | -0.1 | -0.1 |
| Corrected heights at STANDARD PORT | 1.7 | 1.9 | 1.2 | 1.3 |
| Interpolated height diff., Sec. Port. | 0.1 | 0.1 | 0.0 | -0.2 |
| Uncorrected heights at Secondary Port | 1.8 | 2.0 | 1.2 | 1.1 |
| Seasonal change of ML at Secondary Port | -0.1 | -0.1 | -0.1 | -0.1 |
| Predicted heights at Secondary Port | 1.7 | 1.9 | 1.1 | 1.0 |
Note: Predicted height at Standard Port less seasonal change equals corrected heights at Standard Port.
Table 5. The nutrient composition of some organic fertilizers
Source: Tiensongrusmee, B. and Adisukresno, S., 1979
| Kind of organic nutrients | Organic carbon (%) | Organic matter (%) | Phosphorus (%) | Nitrogen (%) |
| 1. Buffalo dung | 3.65 | 6.29 | 0.32 | 0.02 |
| 2. Pig dung | 3.37 | 5.80 | 2.86 | 2.21 |
| 3. Chicken manure | 3.45 | 5.93 | 2.19 | 1.67 |
| 4. Cow dung | 3.13 | 5.40 | 0.75 | 0.69 |
| 5. Goat dung | 3.68 | 6.34 | 0.73 | 1.64 |
| 6. Sheep dung | 3.46 | 5.95 | 0.41 | 0.92 |
| 7. Horse dung | 3.32 | 6.58 | 1.40 | 1.40 |
| 8. Rice bran | 6.64 | 11.40 | 0.12 | 2.35 |
| 9. Sugar cane mollases | 2.36 | 4.06 | 0.05 | 0.40 |
| 10. Peanut cake | 3.91 | 6.74 | 0.16 | 5.92 |
| 11. Coconut cake | 3.73 | 6.43 | 0.22 | 2.67 |
FIGURES

Fig. 1 Map of West Malaysia showing location of proposed pilot brackishwater aquaculture demonstration project and hatchery

Fig. 2 Locality Plan (Enlarged map of site area)


![]() | Greater than 9.0 hours |
![]() | 6.1 to 9.0 hours |
![]() | 3.1 to 6.0 hours |
![]() | 0.1 to 3.0 hours |
![]() | overcast |
Fig. 4 DIURNAL VARIATION OF SUNSHINE FOR ALOR SETAR, 1963–1972 (The Malaysian Agricultural Journal, Vol. 50 No.1 (1975) Ministry of Agriculture and Rural Development, Malaysia)

![]() | Greater than 9.0 hours |
![]() | 6.1 to 9.0 hours |
![]() | 3.1 to 6.0 hours |
![]() | 0.1 to 3.0 hours |
![]() | overcast |
Fig. 5 SEASONAL VARIATION OF THE PERCENTAGES OF DAYS WITH VARIOUS AMOUNTS OF SUNSHINE FOR ALOR SETAR, 1963–1972. (The Malaysian Agricultural Journal, Vol.50, No.1 (1975), Ministry of Agriculture and Rural Development, Malaysia)

Fig. 6 Sketch of general area showing location of proposed pilot project and succeeding phases

Fig. 7 Topographic map of the proposed project areas inside and outside the bund Water sampling stations are indicated

Fig. 8 Tide curves showing the tidal characteristics of the Sungai Merbok estuary

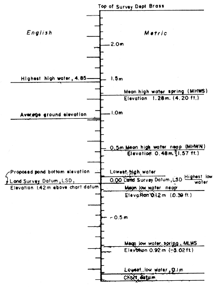
Fig. 9 Tidal characteristics of Ban Merbok estuary in relation to existing ground elevation of the area

Fig. 10 General (modular) pond layout for Ban Merbok brackishwater aquaculture demonstration project

Fig. II Typical module for a family size shrimp pond for the proposed Ban Merbok pilot development

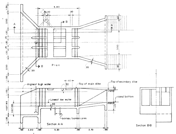
Fig. 12 Cross section through secondary dike across water supply canal and nursery/rearing pond (Section B-B in fig. II) Not to scale

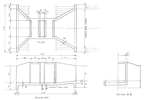
Fig. 13 Cross section through tertiary dike across nursery and rearing pond (Section A-A in fig. II) Not to scale

GE = ground elevation at dike center line
HAT = highest astronomical tide
Hfd = highest flood water level during a 15-year period
%S = allowance for shrinkage, 30% is assumed
H%S= additional height allowance for shrinkage
Hfb = freeboard, taken as 0.60 m (2'-0")
Fig. 14 Typical cross-section of perimeter (main) dike Scale 1:50 m

GE = ground elevation at dike center line
HAT = highest astronomical tide
Hfd = highest flood water level during a 15-year period
%S = allowance for shrinkage, 30% is assumed
Hfb = freeboard, taken as 0.60 m (2'-0")
Hd = designed height of dike after compaction, from ground
surface at point of stationing, m.
Fig. 15 Typical cross section of perimeter dike built across an old channel Not to scale

Hw = desired depth of water in the pond
GE = ground elevation from chart datum
Hfb = freeboard, taken as 0.30 m
MR = maximum rainfall during 24 hours
H%S = height allowance due to shrinkage
Hd = design height of dike, above chart datum, m
Fig. 16 Typical cross section of secondary dike showing ground and water levels Scale 1:50 m

Hd = height of tertiary dike above chart datum
Hw = desired pond water depth
MR = maximum rainfall in 24 hours during the year
Hfb = freeboard, taken as 0.30 m
Hg = height of tertiary dike above ground elevation,
equals, Hd minus GE
Fig. 17 Typical cross section of tertiary dike, TD, showing the various ground and water levels Scale 1:50

Fig. 18 Change on pond water level with time as plotted against tide curve. (Not corrected for heights and times of tide at proposed farm site) (Refer to annex D)

Fig. 19 Detail of main gate, MG

Fig. 20 Detail of secondary gate, SG1 & SG2 Scale 1:50

Fig. 21 Detail of secondary gate SG3 and SG4 Scale 1:50

Fig. 22 Detail of tertiary gate, TG1 and TG2 for nursery/rearing ponds

Fig. 23 Typical cross-section of supply canal Not to scale

Fig. 24 Typical cross-section of drainage canal Not to scale
Fig. 25 Map of Pulau Langkawi, Malaysia showing study sites for proposed hatchery


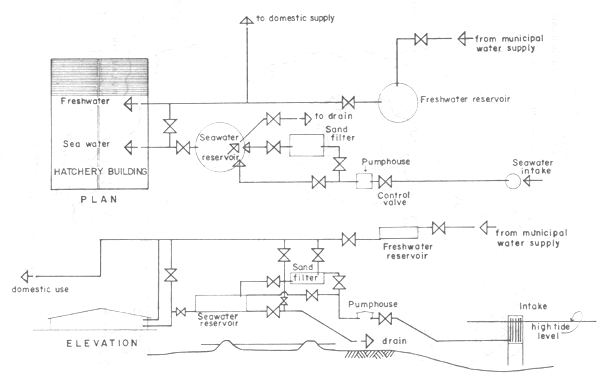
Fig. 26 Schematic of elevation and plan of a multi-purpose hatchery showing fresh and sea water piping and related structures

Fig. 27 Schematic layout plan of proposed multi-purpose hatchery

Fig. 28 Sketch showing how to use a winch and a pulley block for manual destumping
(Source : Maar & Mortimer, 1966, Fish Culture in Central East Africa, FAO, Rome)

Fig. 29 Types of anchor for manual destumping

Fig. 30 Range diagram and limits of work of drag line as defined for the construction of the perimeter dike
Fig. 31 Three types of fish pond digging implements (Source: Jamandre & Rabanal, 1975)


Fig. 32 Two kinds of implements used in fishpond construction (Source : Jamandre & Rabanal, 1975)

Fig. 33 Side slope gimmick (made for dike slope of 1.5:1) Not to scale

Fig. 34 Flat boat for fish pond use (Jamandre and Rabanal, 1975).

Fig.35 Depth gauge (Denila, 1977)

Fig.36 Fertilizer platform (Source : Anonymous, 1976)