SCS/82/CFE/CP-10
by
C.K. Khoo2 and R. Santhanaraj2
1. INTRODUCTION
1.1 General
The development of aquaculture is assuming greater significance in Malaysia. The depletion of fishing grounds due to large-scale fishing as well as pollution will tend to accentuate the need for rapid development of the aquaculture industry. The Government of Malaysia through the various agencies like the Fisheries Department and the Fisheries Development Authority (LKIM or MAJUIKAN) is implementing several medium to large-scale aquaculture development projects throughout the country. The authors have participated in the national aquaculture development programme in the conduct of extensive surveys for site identification and feasibility studies, as well as project implementation.
1 Contribution to the FAO UNDP-SCSP Consultation Seminar on Coastal Fishpond Engineering, Surabaya, Indonesia, 4–12 August 1982.
2 Director, Wan Mohamed and Khoo Consulting Engineers, P.O. Box 290, Jalan Sultan, Petaling Jaya, Selangor, Malaysia.
Much of this work has been carried out along the west coast of Peninsular Malaysia in the states of Kedah, Penang, Perak, Selangor, Malacca and Johore, as well as Kelantan and Pahang on the east coast. Two projects are discussed in this paper; these are the Merbok scheme in Kedah and the Danga scheme in Johore (Fig. 1). These two projects are in an advanced stage of implementation and are deemed appropriate for consideration in the context of this paper, which will deal only with the engineering aspects of coastal fishpond development. However, some comparative data have been extracted from other studies of potential sites which have been surveyed and for which feasibility studies have been recently completed.

Fig. 1 Map of Peninsular Malaysia showing location of designed aquaculture projects
1.2 The Merbok scheme (Fig. 2)
The Sungei Merbok area has a population of about 15 000 who are mostly farmers. Traditionally they have been dependent on padi cultivation and some fishing for a living but on the whole are economically depressed. In view of this LKIM is implementing a large aquaculture development project in this area to upgrade the income of local people.

Fig. 2 Location plan of Merbok project
On the northern bank of Sungei Merbok estuary some 3 500 acres (1 400 ha) of mangrove swamp have been reclaimed for padi cultivation but this area has not proved to be productive. Outside the reclaimed areas on both the north and the south banks of the estuary, there are approximately 13 000 acres (5 260 ha) of coastal mangrove swamps which have been divided into 18 forest reserve compartments and are marginally useful for mangrove timber extraction. At present the MAJUIKAN is developing an area of approximately 500 acres (200 ha) of coastal swamps at the mouth of Sungei Merbok into a major aquaculture scheme. This area is the first to be selected for development in an “action-oriented approach” in advance of an in-depth study covering aquacultural, environmental, engineering, economic and sociological aspects of the proposed scheme now in progress to prepare a masterplan for future development. The initial phase of development involves the construction of fishponds totalling approximately 110 acres (45 ha) in area, initially for the culture of seabass (Lates calcarifer), Penaeus monodon and P. merguiensis, a hatchery, and will be followed by settlement schemes.
1.3 The Danga scheme (Fig. 3)
An area of about 100 acres (40 ha) at the estuary of Sungei Melayu has been excised to LKIM to implement brackish-water aquaculture development project primarily for the culture of seabass, P. monodon and P. merguiensis, to raise the income of local people in the Tanjong Danga area who are traditionally farmers and estate workers.

Fig. 3 Location plan of the Danga project
1.4 Objective
This paper briefly described the development of the Merbok and Danga aquaculture projects with reference to engineering aspects pertaining to site selection, planning and design of fishpond complexes, design considerations in mechanized pond construction and construction costs.
2. ENGINEERING CRITERIA FOR SITE SELECTION
2.1 Topography
Land elevation in relation to the tidal fluctuations is an important factor in that water management should be effected without pumping as far as possible. The presence of natural water-courses and major creeks are studied in detail. Normally, they act as natural main supply and drainage channels to the ponds but more often due to their meanders they restrict space available to odd shapes and forms and this is a distinct constraint when planning regularly shaped ponds. The stability of creeks and coastlines is also noted as this is an important consideration while planning the layout of ponds as erosive forces may underline the ponds, dikes and water control gates.
In the Merbok site, the ground levels at site generally vary from +2.00 ft (0.6 m) to +4.00 ft (1.2 m) above mean sea level (MSL) and a major portion of the site is subject to tidal inundation during high tide, the mean high water springs being +4.2 ft (1.3 m) MSL. The site is bordered by two major rivers, the Sungei Dedap Kechil and Sungei Dedap Besar in the southwest and two other major tributaries.
The Danga site is more elevated relative to tide levels, i.e. +1.00 ft (0.3 m) to +7.00 ft (2.1 m) MSL, and only a portion of the site is inundated during mean high water springs of +6.00 ft (1.8 m). The site is criss-crossed with a number of creeks and after allowing for major water courses only about 60 percent of the land is available for the pond complex.
Detailed topographic surveys are conducted to determine the actual levels at site and to confirm the initial estimates.
2.2 Soil conditions
Generally, most coastal swamps are of recent alluvial deposit and typical soil profile indicates peaty clay layers ranging from 3 ft to 60 ft (1–18 m) deep. Sometimes presence of sand layers are also noticed.
Visual examination of soil samples indicate that the soil is characterized by low bulk density and shear strength and show large shrinkage in volume upon drying. Chemical analysis generally indicate a high acidic content in soils.
In selecting a site for fishpond development it is important to note the soil conditions are favourable as follows:
Permeability of soil must be low for water retention in ponds.
In both the Merbok and Danga sites, the soil conditions were reasonable and acceptable. However, traces of sand patches were noticed at the Danga site.
Soil investigation and testing are carried out at site to confirm the initial findings.
2.3 Infrastructure
Reconnaissance surveys are essential to determine natural accessibility to site and to determine the type of services available, especially power and water supply as these factors should also be taken into consideration in selection of sites suitable for development of aquaculture facilities.
Merbok site is about 0.5 mile (0.8 km) from the beach resort of Pantai Merdeka and surrounding villages and is served by an all weather road and power and water supply are available at these places. A short connecting access road and extension of services were all that were required to bring essential infrastructure services to the site.
The Danga site is accessible by a new road which is currently under construction up to a certain point, namely Tanjong Danga, after which existing laterite estate roads lead to the site. The site is also accessible by a 20 minute boat ride from Lido Beach near Johore Bharu town. Unfortunately, no public water supply or power supply is available at site or in the vicinity. Deep wells would have to be constructed to obtain potable water and power would have to be supplied by generators at the site.
3. PLANNING AND DESIGN OF FISHPONDS
3.1 Field investigation
3.1.1 Topographic survey
The existing 1:63 300 scale (one inch to one mile), topo-graphic plans and aerial photographs are studied thoroughly to determine the topography of the region, in addition to reconnoitery trips to all potential sites by land and water. Generally, these areas are well below the 50 ft (15 m) contour line and elevations are not indicated in the topographical maps, and selected representative lines are surveyed to determine the topography of the area.
In the case of the Merbok and Danga sites, grid surveys were carried out at 200 ft (60 m) intervals and spot levelling was conducted at 100 ft (30 m) centres along the grid lines to establish levels. Mainly tacheometric survey was carried out at both these two sites to set up horizontal ground control stations and vertical reference points and benchmarks. Measurements for bearings and distances were carried out. Details along the line have been surveyed including establishing positions of investigation points for soil surveys.
3.1.2 Soil investigation
Soil investigations were carried out within these two sites in order to determine the soil types and design parameters such as shear strength, consolidation and shrinkage.
In the Merbok and Danga sites, the following soil investigations were carried out in the field:
Extracts of disturbed and undisturbed samples from all holes
On completion of the field work, the following laboratory tests on selected samples were carried out:
Chemical analysis for pH and sulfate contents
Typical details of bore logs and probes and test results for shear strength, consolidation, permeability, etc., are indicated in Figs. 4 and 5.

Fig. 4 Typical field results for soil investigation

Fig. 5 Typical laboratory test results for soil investigation
3.1.3 Hydrology and hydrographic investigation
Hydrological studies are carried out for selected major streams within the site to determine the magnitude of flows. Hydrological events and the effects of high and low flows will be essential for the assessment of water quality.
Tide studies are carried out to determine the stage-duration-frequency relationship which is a parameter to consider in the engineering designs. Tide studies are based on tide tables as well as field observations. A water level recorder is established at a representative location for gathering tide data. The tide recorders are left at site for continuous recording and to obtain further data during the construction and operation period.
3.2 Planning and design
3.2.1 General
On completion of site selection and confirmatory field investigations and establishment of suitability of site, the next stage is the detailed engineering planning and design of fishfarms best suited to the site and this essentially involves:
system of operation and control
3.2.2 Tide analysis
The operation of fishfarm necessitates regular circulation and renewal of water in order to replenish the ponds with natural nutrients and eliminate metabolic waste thus maintaining good and constant water quality. In coastal fishfarms this is mainly dependent on tidal action and a knowledge of fluctuation of tide levels at site is important in the design of ponds.
Short term recordings at site are used in conjunction with the published tide table predictions for Malaysia and Singapore and correlation analysis and tide prediction is carried out to establish tidal data.
Generally, the tides are semi-diurnal and typical predicted tides at springs and neaps for both Merbok and Danga sites are shown in Figs. 8 and 9. The following tidal data have been established for the sites.
| Merbok | Danga | |
|---|---|---|
| ft (dm) | ||
| Highest astronomical tide | +6.00 (18.2) | +7.50 (22.9) |
| Mean high water springs | +4.20 (12.8) | +6.00 (18.3) |
| Mean high water neaps | +1.40 (4.3) | +3.70 (11.3) |
| Mean low water springs | -3.00 (-9.1) | -2.50 (-7.6) |
| Mean low water neaps | -0.40 (-1.2) | -0.20 (-0.6) |
3.2.3 Ponds
(a) Siting of ponds
In order to take advantage of favourable tide fluctuations and also to minimize earthworks in Merbok, the areas with land elevation between +2.00 to +4.00 ft (0.6–1.2 m) MSL are considered for sitting of ponds as the mean high water springs is +4.20 (12.8 dm). Generally, the entire site is within this elevation and completely inundated during high tide and could be used for siting of ponds. At Danga the land elevation range from +1.00 ft to +7.00 ft (0.3–2.1 m) MSL. MSL and the mean high water springs being at +6.00 ft (18.3 dm) MSL, only part of the area could be used if solely depending on tidal action. However, due to presence of a number of large natural water courses only 60 percent of site could be utilized and therefore the areas at the higher elevations are also included for development.
Generally, ponds are sited approximately 100 ft (30 m) from the coastline, existing streams and possible erosion zones.
(b) Pond levels
The elevation of the pond base in Merbok was set at a uniform level of +0.50 ft (0.15 m) MSL and this permitted a frequency of exchange of water of once in 3 days. Various pond base levels were evaluated for frequency of exchange and the above level was determined the most desirable with both considerations for frequency of exchange and economy in earthworks. The depth of water was maintained at 2 ft (0.6 m) and 3.5 ft (1.06 m) in the peripheral sheltering canal.
In Danga as the land elevation varies from +1.00 to +7.00 ft (0.3–2.1 m) MSL and is above the high tide level maintaining a uniform pond base level would result in extensive earthworks, therefore the ponds were planned with varying pond base levels ranging from +1.50 to +3.00 ft (0.45–0.9 m) MSL. Depth of ponds are similar to that of Merbok. In this case, pumps are used to lift water beyond the tidal range. An alternative design was considered whereby pumping could be eliminated by lowering the pond base. However, the overall cost of project based on this alternative was found to be approximately 20 percent higher.
(c) Layout of ponds (Figs. 6 and 7)
A series of various sized ponds for nursery, rearing and trapping works are specified by LKIM as follows:
| Size of ponds in acres (ha) | Nursery | Rearing | Trapping | |
|---|---|---|---|---|
| Merbok | ||||
| 0.25 | (0.1) | 38 | - | - |
| 0.50 | (0.2) | 3 | - | - |
| 0.75 | (0.3) | - | 7 | - |
| 1.00–1.50 | (0.4–0.6) | - | 13 | - |
| 2.00 | (0.8) | - | 5 | - |
| 5.00 | (2.0) | - | - | 3 |
| 8.00 | (3.2) | - | - | 1 |
| Danga | ||||
| 0.33 | (0.13) | 6 | - | - |
| 2.5–3.0 | (1.0–1.2) | - | 4 | - |
| 3.0–3.5 | (1.2–1.4) | - | 6 | - |
| 3.5–4.0 | (1.4–1.6) | - | 1 | - |
Due to confined space in Danga, nursery ponds were not grouped together in a battery but instead individual nursery ponds were sited adjacent to each rearing pond and this also economizes on the control structure. The nursery ponds also serve as harvesting areas. A typical sketch of this arrangement is shown in Fig. 7. Trapping has not been included in Danga as the function in Merbok has been found to be limited.
Generally, the ponds are rectangular in shape with corners rounded to facilitate uniform dispersal of water in ponds during supply and drainage. Sheltering canals are provided at the perimeter of ponds to facilitate drainage.
The size of ponds are chosen to allow for the throw distance of draglines executing earthworks. Generally, widths of ponds not more than 200 ft (61 m) are economically handled by mechanization. Length to breadth ratio varies from 2:1 upwards. Perimeter channels are provided generally 1½ ft (0.5 m) deep and occupy approximately 20 percent of the pond area. Ponds with larger length to breadth ratios were preferred for ease of construction, water management and harvesting.

3.2.4 Dikes
Dikes are formed to exclude flood and tides from the existing pond complex and delineate boundaries of the ponds and canals. Three types of dikes are required, namely; (a) perimeter dikes (b) secondary dikes; and (c) tertiary dikes.
Perimeter dikes are constructed around groups of ponds at sufficient height to exclude the highest astronomical tides and floods and generally form part of the main access to the ponds. Secondary dikes are provided on both sides of the canals and should be able to contain the mean high water springs. Tertiary dikes are partition dikes and separate the ponds.

Fig. 7 Layout of Danga scheme
Dikes are constructed of material excavated from ponds. In coastal fishfarms as the material is of high salinity, it is not possible to promote the growth of suitable cover crop to prevent erosion. Therefore, the width of dikes are enlarged to allow for the effects of erosion.
The height of dikes after settlement and shrinkage is tabulated below allowing for a freeboard of 1.5 to 2 ft (0.45-0.6 m):
| Merbok | Danga | |
|---|---|---|
| ft (m) | ||
| Perimeter dike | +7.50 (2.3) | +9.50 (3.0) |
| Secondary dike | +6.50 (2.0) | +7.50 (2.3) |
| Tertiary dike | +5.50 (1.7) | +7.00 (2.1) |
The relationships of the tide and specifications of dikes in the two projects are shown in Figs. 8 and 9.
The minimum top width of dike has been maintained at 4 ft (1.2 m) and main access dike at 10–12 ft (3.0–3.7 m). In Merbok and Danga regions, the soil bearing capacity is of the order of 0.25 ton per sq ft (2.69 t/m2) and the shear strength is in the order of 5 psi (0.35 kg/cm2). The slope stability for dikes are evaluated and a side slope of 1:2 is adopted as it gives a factor of safety of 1.70.
Seepage through bunds in peaty clay has not posed much problems as the dikes with 1:2 sides are sufficiently wide provided they are properly constructed and compacted without any tree stump or root or other debris left in the bunds. In Danga sand patches were encountered and to retain water the dikes were enlarged in certain sections from 4 to 12 ft (1.2–3.7 m) wide to minimize seepage.
Settlement of dikes in this type of soil is quite large due to shrinkage in volume and long term consolidation. In Merbok, a settlement of 15 inches (30 cm) for perimeter dikes was estimated but site records show settlement of 18 inches (46 cm).
3.2.5 Supply and drainage canals
A system of supply and drainage canals is installed for efficient operation and management of water. The size of the canal depends on the volume of water and frequency of exchange required for the ponds. Tidal routing is conducted to evaluate the size of the canals.
3.2.6 Water management
In Merbok, water management could be achieved entirely by tidal effects due to its favourable land elevation. However, in Danga areas with land elevations from +1.00 to +3.50 ft (0.3–1.1 m) MSL can be supplied by tidal effects. Land elevations beyond this range would be served by a pumped supply system.

Fig. 8 Merbok Scheme-Tide characteristics and design levels of ponds, dikes and canals

Fig. 9 Danga Scheme-Tide characteristics and design levels of ponds, dikes and canals
3.2.7 Water control structures
Secondary gates and pond gates are essential to regulate flow of water into ponds. The size of gates are designed to permit exchange of water at the specified frequency and rate of flow.
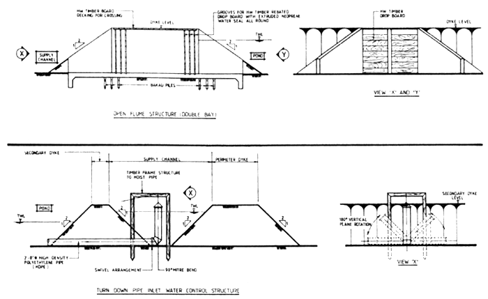
Water control structures regulate the inflow and outflow of water to ponds and must be suitably designed to enable good water management. Different types of water control structures have been adopted in several aquaculture schemes.
They include:
turn-down pipes.
Typical details of these are shown in Figs. 10 and 11.
Gated culverts consist of a series of precast reinforced concrete pipes founded on piles with inlet and outlet guide walls. A screw down mechanism coupled to a hard wood timber gate is provided at the inlet for regulation of flow.
Open flumes are essentially of reinforced concrete founded on piles with inlet and outlet guide walls of concrete or bakau piles. A number of timber boards stacked one on the other in preformed grooves serve to regulate water.
The turn-down pipes consist of a small diameter pipe with swivel-jointed bend on the inlet side and flow of water is regulated by rotating the pipe bend.
In both Merbok and Danga, the open flume structure was adopted. The gated culvert was not preferred as it was found to have foundation problems and also the screw down mechanism was found to be difficult to maintain and in all the structure was difficult to construct. The turn-down pipe is only applicable for small sized ponds, however, currently designs are being developed for large diameter turn-down pipes and a prototype will be shortly installed on a trial basis. Open flumes though of relatively simple construction have a major problem of leakage through the drop boards.
The size of structure is determined by the volume of water exchanged and generally for a 1 acre (0.4 ha) sized pond, a regulating structure of 3 ft (0.9 m) diameter or width was found adequate for operation and maintenance purposes.
In the case of the Danga project, duplicate vertical flow propeller type pumps driven by diesel engine were provided. The pumps are rated 135 000 gph against a total head of 5 ft (1.5 m).

Fig. 10 Typical pond gate

Fig. 11 Typical pond gate
3.2.8 Ancillary structures
Ancillary structures to be provided in the pond complex would generally include foot bridges, vehicular bridges, field shelters, stores, office, warehouse and cold room facilities.
4. CONSTRUCTION OF FISHPONDS
4.1 General
Generally, fishfarm owners do not possess technical and financial capacity to purchase and maintain the range of plant and equipment suitable for construction of fishfarms. Even government agencies who undertake development of large aquaculture projects have found it uneconomical to carry out construction utilizing their own facilities.
In the case of coastal brackishwater fishfarms, generally the magnitude of work so far executed has been on a large-scale and were let out through tenders to contractors who are experienced in working in coastal swamps.
4.2 Mechanized construction
4.2.1 General
The sequence of construction of fishponds would generally be as follows:
Testing and commissioning of complex
4.2.2 Clearing
Trees within the site are felled with chainsaws and dozed by low ground pressure (LGP) equipment or swamp dozers. Draglines are used to grub up roots and tree stumps. Collection of felled trees and grubbed up stumps and roots is often difficult as movements of machines in the swamp are normally slow. However, if the temporary perimeter dike as mentioned in para 4.2.1(b) is constructed, clearing in the dry has proved faster.
4.2.3 Earthworks
General earthworks comprising the construction of ponds, dikes and canals is best undertaken by draglines operating on timber mats. This type of plan has proved to be versatile as it has sufficient reach for excavation and filling and also has the capability of forming and trimming regular side slopes for dikes and canals. Machine excavation and filling have been executed at the rate of 4 000 cu yd (3 059 m3) per machine month.
The main constraint with the use of the dragline has been the haulage of earth in areas where mass movement of earth are required to build dikes. Multiple handling would have to be carried out as no other means of track transportation is possible in swamps and has proved expensive and time consuming.
For the excavation of foundation for structures either the dragline or a backhoe on tracks is deployed.
4.2.4 Compaction
Compaction of dikes is essential to avoid seepage, and to strengthen and reduce excessive settlement of the dikes. In swampy soil conditions, compaction methods, e.g. rollers or vibrating compaction machines cannot be used as the machines tend to bog down in the soft soil. Instead the practical approach is to construct the bunds in layers and have the dragline travel on the dikes as construction proceeds and this has proved to be an effective compaction method.
4.2.5 Water control structures
The reinforced concrete water control structures are founded on bakau piles. Bakau piles are driven to predetermined lengths with a motorized piling rig and then concrete structures are cast insitu using a mechanical concrete tipper mixer.
A number of construction difficulties have been encountered while executing the water control structures. As the structures are generally small and widely scattered over the pond site, it has been expensive to transport material and construction plant to the various locations. As a matter of fact, records indicate that the cost of transport of material in many cases have exceeded the actual cost of material itself.
Precasting of major components of the structure are discussed with the contractors to save time and expenses, however, the question of transport and handling of larger sized components in swampy terrains was still a problem and contractors are reluctant in adopting this alternative.
The use of lightweight materials such as high density polyethylene pipes is a possible alternative which has recently been made available in Malaysia with the setting up of local manufacture.
5. CONSTRUCTION COST
5.1 Rates
With rapid development in Malaysia there is a shortage of labour, resulting in high unskilled labour wages in the range of M$18.00 to M$20.001 per day. As a result, it is more economical to mechanize construction works as much as possible. Other factors that dictate this course of action are:
the scale of the projects which makes it impractical to use labour intensive methods; and
the site conditions — in low-lying areas subject to frequent tidal inundation, manual construction is not feasible.
Generally, the plant hire rates for equipment for fishfarm construction are;
| (a) LGP dozers | - M$220.00 per day |
| (b) Draglines | - M$220.00 per day |
| (c) Backhoe | - M$180.00 per day |
| (d) Piling rig | - M$150.00 per day |
| (e) Concrete mixer (7T) | - M$ 80.00 per day |
These rates are slightly higher than normal construction rates as most works are carried out in swampy ground under the influence of tide.
Basic unit rates for the construction of fishfarms consist of items like jungle felling and clearing, earthworks, piling and construction of control structures and bridges. Break-downs are indicated in Table 1.
1 2.2 M$ or Malaysian Ringgit equals US$1.
5.2 Construction cost
On the average for both Merbok and Danga projects, the overall unit cost of construction of fishponds is of the order of M$12 800.00 per acre (year 1980) and M$19 880.00 per acre (year 1981) complete with control structures, supply and drainage canals and other ancillary structures. The unit cost of Danga site is more expensive due to the presence of a large number of creeks, high land elevation and traces of sand in certain areas and also the effect of inflation is felt as construction commences a year later. Breakdown of construction costs for both Merbok and Danga and for 3 other projects for which feasibility studies have been carried out, are indicated in Table 2.
Table 1
Unit cost for construction of ponds
| Item No. | Description | Unit | Rate (M$) |
|---|---|---|---|
| 1 | SITE CLEARANCE | ||
| (a) Felling of trees, shrubs and other vegetation | Acre | 600.00 | |
| (b) Destumping and grubbing of roots | Acre | 400.00 | |
| 2 | EARTHWORKS | ||
| 2.1 | Construction of ponds, dikes, drainage and supply channel | Cubic yard | 1.50 |
| 2.2 | Excavation for foundation of structures | Cubic yard | 8.00 |
| 3 | STRUCTURAL CONCRETE | Cubic yard | 200.00 |
| 4 | BAKAU PILING (4" diameter) | Linear feet | 0.60 |
| 5 | REINFORCEMENT | Ton | 1 500.00 |
| 6 | FORMWORK (Medium Grade) | Square yard | 15.00 |
| 7 | BRICKWORK | ||
| (a) 4½" thick | Square yard | 18.00 | |
| (b) 9" thick | Square yard | 35.00 |
Equivalents:
1 acre = 0.4 ha
1 foot = 0.3 m
1 cubic yard = 0.76 m2
1 square yard = 0.8 m2
5.3 Economics
Construction cost of the fishfarms vary from site to site and range from M$8 000.00 to M$20 000 per acre (US$3 600-9 000) approximately and the cost is significantly high in terms of capital investment in comparison to operation and maintenance cost.
Earthworks and structures form the major construction costs and approximate 50 to 60 percent of total cost and careful consideration is placed in the planning and design to achieve economy.
It is not a foregone conclusion that schemes with higher capital cost will always be less viable. Capital costs, operating and maintenance costs, environmental factors and the aquacultural inputs and outputs, financing costs and a complete economic and financial evaluation need to be considered in conjunction before the viability of any project can be established. It is appropriate to mention here that such studies carried out for Pulai (Johore) and Batu Berendam (Malacca), respectively showed that Pulai is viable while Batu Berendam is not so, although the capital cost of the former is 130 percent of the latter at M$9 160.00 and M$8 433.00 per acre (M$22 635 and M$20 839 per ha), respectively.
Table 2
Construction cost of fishpond complexes (M$'000)
| Description | PROJECT/YEAR | ||||
|---|---|---|---|---|---|
| Merbok1 1980 | Danga2 1981 | Penang3 1980 | Malacca4 1980 | Sg. Pulai5 1980 | |
| 1. Preliminaries and contingency | 400 | 229 | 440 | 361 | 421 |
| 2. Clearing | 63 | 41 | 80 | 77 | 66 |
| 3. Earthworks for ponds and dikes | 233 | 171 | 384 | 326 | 384 |
| 4. Water control structure | 611 | 262 | 430 | 218 | 538 |
| 5. Other ancillary structures | 102 | 95 | 75 | 182 | 112 |
| 6. Pumpsets and ancillary installation | - | 216 | 109 | 101 | 82 |
| Total cost | 1 409 | 1 014 | 1 518 | 1 265 | 1 603 |
| Total acreage | 110 | 51 | 180 | 180 | 175 |
| Cost per acre (M$) | 12 800 | 19 880 | 8 433 | 7 028 | 9 160 |
1 and 2 Tender prices.
3 Source — Final Report on Feasibility Study on a Selected Site near Sungei Penang, Penang by M/s Equasian Sdn. Bhd.
4 Source — Final Report on Feasibility Study on a Selected Gelam Swamp Site at Malacca by M/s Equasian Sdn. Bhd.
5 Source — Final Report on Feasibility Study on a Selected Mangrove Swamp Site at Sungei Pulai, Johore by M/s Equasian Sdn. Bhd.
Note: In 1980/81 M$ 2.2 = US$1.
6. SUMMARY AND CONCLUSIONS
6.1 General
The Government of Malaysia has initiated a programme to develop medium and large-scale aquaculture schemes throughout the country, mainly through government agencies like the Fisheries Department and the Fisheries Development Authority. Two of the schemes at Merbok, Kedah and Danga, Johore, respectively are described in this paper with reference to engineering design and construction of coastal fishponds.
The Merbok scheme lies in an area of some 13 000 acres (5 260 ha) of mangrove swamp currently under masterplanning for aquaculture and the initial development covers 500 acres (202 ha), while the Danga scheme is about 100 acres (40 ha). Culture species in both schemes are seabass, Penaeus monodon and P. merguiensis. The Merbok scheme includes a hatchery.
6.2 Engineering criteria for site selection
A reconnoitery survey is carried out to check engineering parameters as below:
6.2.1 Topography
Elevation relative to tide levels affects the capital cost of the project. Where possible pumping is avoided and ideally ground elevation should fall within the average tidal range.
6.2.2 Soils
Soils are examined to assess their physical, chemical and engineering properties.
6.2.3 Infrastructure
The availability of piped water supply, electricity and access roads enhances the viability of the project.
6.3 Planning and design of fishponds
6.3.1 Field investigation
When reconnoitery survey show that the selected site may be suitable for development, more detailed field investigations are carried out.
Topographical survey
Surveys are carried out on a 200 ft (60 m) by 100 ft
(30 m) grid to determine ground levels.
Soil investigation
Soil samples are taken for laboratory tests to determine
soil types and design parameters such as shear
strength, consolidation and shrinkage. Insitu field tests
are also carried out using dynamic cone penetrometers,
shear vanes and field permeameters.
Hydrology and hydrographic investigation
Hydrology of major streams in the site are studied.
Tide studies are carried out using tide tables as well as
field observations by the tide level recorders.
6.3.2 Planning and design
Planning and design considerations include:
Systems of operation and control
The design of ponds and the pond operation water levels are influenced by tide levels. A favourable condition exists at Merbok where the ground elevation falls within the mean tide range and analysis of tide stage-duration-frequency relations shows that the scheme can be designed economically to operate solely on tidal action. This is not the case at Danga where part of the site lies above mean high water springs and some pumping is required.
The layout of ponds is dictated by the site topography such as elevation and the presence of streams and large creeks. The depth of ponds are designed at 2 feet (0.6 m) with sheltering canals at 3.5 feet (1.1 m).
Dikes surrounding ponds are classified into three types:
Perimeter dikes surrounding groups of ponds and built to exclude highest astronomical tides;
Secondary dikes forming the sides of supply canals and built to contain the mean high water springs; and
Tertiary dikes forming the partitions between ponds
The design of dikes also takes into account other factors such as erosion, slope stability, seepage, shrinkage and settlement and their use as internal access roads.
A system of supply and drainage canals with water control structures is designed for water management to ensure good water quality at all times. Three types of water control structures have been used, viz., gated culverts, open flumes with drop boards, and turn-down pipes.
6.4 Construction of fishponds
Generally, fishfarm owners do not have the technical and financial capacity to own and maintain the range of plant and equipment required for mechanized construction. Construction works are usually done by contractors.
Clearing of trees and roots are done by chainsaw and low ground pressure dozers. Earthworks in dike construction is best done by dragline excavators operating on timber mats, and pond design takes into consideration the need to minimize movement of soil over long distances. Compaction is done by construction in layers and the dragline travelling on the dike as the work progresses.
For the water control structures, excavation is by either dragline or backhoe on tracks. Concrete is cast insitu as precast components are difficult to move over the swampy terrain. The structures are widely dispersed within the site and material movement cost is high. The use of lightweight materials such as high density polyethylene pipes is a viable alternative.
6.5 Construction cost
In Malaysia mechanized construction is preferred due to labour shortage which has driven up wages. Other factors are the scale of project and tide conditions which render labour intensive methods impractical. The unit rates of cost of construction of fishponds are usually higher than normal as most of the works are done in swampy ground.
The major construction costs in a fishfarm consists of earthworks and water control structures. These capital costs are also significantly high in comparison with operating costs, and varies widely depending on site conditions. Therefore, viability of any scheme cannot be presumed by applying generalized unit rates and needs in-depth study on case-by-case basis.
7. REFERENCES
Equasian Sdn. Bhd. 1981 Study for aquaculture development for Western Johore, Malacca and Balik Pulau/Seberang Prai integrated agricultural development projects, Volumes I, II and III, July 1981.
Equasian Sdn. Bhd. 1979 Assessment of ecological potential of brackishwater in coastal area of Kelantan for aquaculture farms, October 1979.
C.K. Khoo and T.O. Wuan. 1982 Pre-investment study for rehabilitation of a brackishwater aquafarm owned by Malayan Commercial Enterprise at Pulai, Johore, April 1982.
R. Santhanaraj and T.O. Wuan. 1981 Prefeasibility appraisal of brackishwater pond site of Kota Fishery Sdn. Bhd., Tanjong Karang, Selangor for marine prawn farming, June 1981.
C.K. Khoo and T.O. Wuan. 1981 Feasibility study of Kuala Muda for brackishwater aquacultural development, November 1981.
T.O. Wuan and R. Santhanaraj. 1981 Assessment of two sites at Sg. Penang, Balik Pulau for aquaculture development, September 1981.
T.O. Wuan and C.K. Khoo. 1981 Swampland at Hutan Melintang for brackishwater aquacultural development, December 1981.
Wan Mohamed and Khoo Sdn. Bhd. 1975 Preliminary report on the engineering aspects of planning, design and construction of brackishwater aquaculture centre at Gelang Patah, Johore, Malaysia, December 1975.
Wah Mohamed and Khoo Sdn. Bhd. 1980 Report on site visit and reconnaissance survey for Western Kelantan Aquaculture Development Project, November 1980.
Fisheries Division, 1970 Ministry of Agriculture and Land Reform, Kuala Lumpur, Malaysia. Engineering considerations in the construction and management of shrimp trapping ponds in Malaysia, December 1977.