Señor José Ramón Yarza, Representante FAO en Cuba
Ingeniero Enrique Oltuski, Viceministro del MIP
Licenciado Lázaro Montoro, Director de la Empresa Pesquera de Matanzas
Señor Julio Camacho, Jefe de la granja ostrícola de Berraco, Puerto Esperanza, provincia de Pinar del Río
Licenciado José Mier, Biólogo del Buró de Captura CPI (Pinar del Río)
Licenciado Pedro Lorente, Biólogo del Buró de Captura de Empresa Pesquera (EP) Matanzas
Señor Juvenal Sosa, Jefe del Dpto. de Producción de la EP Matanzas
Licenciada Elvira Alfonso, Jefe del Dpto. de Cultivo de Alimento Vivo del CIM Universidad de La Habana
Licenciado Alfredo de la Cruz, Investigador CIM
Licenciada Silvia Leal, Investigadora CIM
Además este consultor ha trabajado de forma permanente con el Grupo Nacional de Ostricultura (MIP), constituido por las siguientes personas:
Doctora Elvira Carrillo, Analista de la Oficina del Ministro
Licenciado José Antonio Frías, Especialista en cultivo de ostión y responsable de su desarrollo comercial, Dirección de Plataforma
Licenciado Carlos Luis Felipe, Biólogo del Dpto. de Cría Experimental
Licenciado Pedro Luis Herrera, Bioquímico del Dpto. de Cría Experimental
Arquitecta Nancy Reyes, Proyectista
A todos ellos, así como al resto de las personas que colaboraron en la ejecución del proyecto, el consultor expresa su vivo reconocimiento.

Figura 1. Puerto Esperanza zona visitada por el consultor

Figura 2. Penísula de Hicacos zona visitada por el consultor

Figure 3. Diagrama general de flujo de agua (—) y alimentación (---)

Figura 4. Toma de agua de mar

Figura 5. Sistema de aprovechamiento de agua
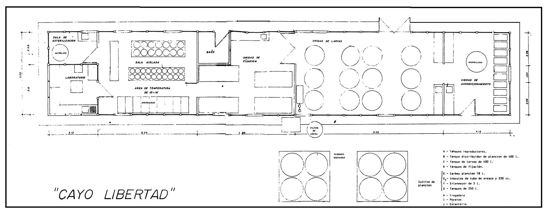
Fig. 6. PLANTA PILOTO DE DESOVE DE MOLUSCOS esc 1:50.
“CAYO LIBERTAD”
Figura 7. INSTALACIONES