Este capítulo tiene por objeto definir las condiciones de realización de un laboratorio de producción de postlarvas de camarón de una capacidad de 160 millones (PL5) al año.
A cada nivel de producción (cría larval, maduración, algas, etc) se ha tomado en cuenta un margen de seguridad importante con el fin de alcanzar en todos los casos la producción prevista, así como la producción de especies menos conocidas por F.A. (P. schmitti).
Las larvas son organismos muy frágiles y las enfermedades representan un problema muy importante. Por eso, el control sanitario de las condiciones de cría debe ser riguroso a dos niveles : en el espacio y en el tiempo.
El diseño del laboratorio está hecho de manera a prevenir los problemas patológicos :
- Separación de las diferentes unidades : maduración, cría, cultivo de algas, etc
- Repartición de los estanques de cría larval en “camarillas” conteniendo cada una dos tanques. Este sistema restringe la posibilidad de propagación de organismos patógenos de un tanque a otro.
El planing anual de producción prevé cuatro veces al año un vacío sanitario de dos semanas. Este vacío sanitario previene y evita la propagación de cepas patógenas :
- Número de ciclos anuales : 4 (de 2 meses y medio cada uno) ;
- Numero de vacíos sanitarios : 4(3 de 1 semana - 1 de 15 dias).

ESQUEMA DE PRODUCCION Y VACIADO SANITARIOS ( 11 DIAS )
DE 1 CICLO DE CULTIVO (3 AL AÑO)
La producción se realiza en 10 meses teniendo en cuenta los vacíos sanitarios necesarios, pero tanto los desoves como las cosechas de postlarvas se reparten sobre 8 meses.
Normas :
Densidad inicial : 90 nauplii/litro ;
Densidad final : 54 PL5/litro ;
Duración de la cría hasta PL5 : 15 días ;
Número de crías por tanque y por mes : 1,4 (teniendo en cuenta el tiempo de aseco y de relleno).
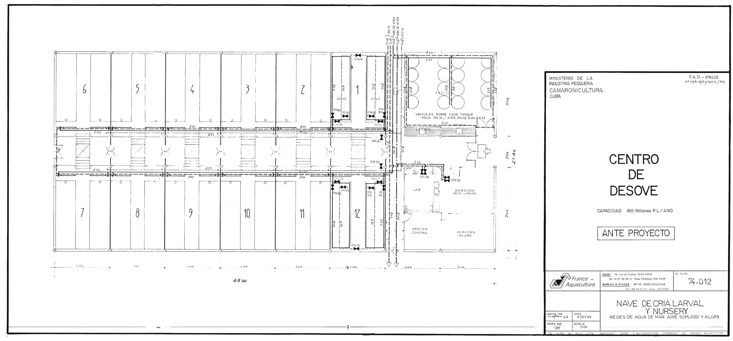
El volumen necesario para la cría larval es :
Sea 12 tanques de 20 m3 (240 m3).
Normas :
Número de huevos/desove : 90 000
Tasa de fecundación : 30 %
Tasa de eclosión : 70 %
Número de nauplii/desove = 20 000
Número PL5/desove :12 000–15 000
Número de desoves/hembra/mes : 1,0
Número de PL5/hembra/mes : 12 000
Para producir 20
millones PL5/mes, se necesita :
Es decir, con un sex ratio de 1 macho por 1 hembra, una carga (biomasa) promedio de 250 gramos por m2, un peso promedio de 50 gramos por camarón :
Con un margen de seguridad teniendo en cuenta la utilización de especies diferentes y debido a la disponibilidad de formas para la construcción de tanqùes de 20 m2, serán previstos 48 tanques de 20 m2.
Para sembrar un tanque de cría larval se necesita :
- 18 000 litros × 90 = 1 620 000 nauplii
- 1 desove = 25 000 nauplii
En todo caso, será suficiente tener 65 tanques de desove.
El número de tanques de eclosión asciende también a 65.
Este cálculo depende de una multiplicidad de situaciones de explotación del laboratorio :
- Crías larvales agrupadas (necesidad masiva de artemia) ;
- Calidad de los huevos de arteia (tasa de eclosión variable según las cepas).
Además el consumo de nauplii de artemia es variable en función del estadio larval :
- De 10 nauplii/larva/día (estadio misis 1)
- A 100 nauplii/postlarva/día (estadio PL5).
Consideramos una hipótesis media de consumo de :
- 40 nauplii/larva/día.
Sea, para un efectivo medio de 1 600 000 larvas o postlarvas por tanque y considerando que 50 % de las larvas en el laboratorio consumen Artemias, el consumo promedio por día es :
- 12 tanques × 50 % × 1 600 000 × 40 = 384 000 000 nauplii/día.
Con las normas siguientes :
- 250 000 huevos de Artemia/gr ;
- Una tasa de eclosión de 60 % ;
- 1 gr de huevos/litro.
El volumen necesario es :
El volumen útil de cada estanque es de 1 000 litros y el ciclo de eclosión y cosecha es de 2 días : por consiguiente, se necesita :
Y sea también 8 tanques para nursery.
Y un global de 16 tanques de 1 m3 para la sala de Artemia.
El cultivo se realiza por etapas sucesivas en volúmenes de capacidades crecientes :
Tubo de ensayo → erlen de 250 ml → erlen de 5 1 → recipiente de 30 1 → tanque de 300 litros (en sala de algas) → tanque de 1,5 m3 (cultivo exterior).
Las algas empleadas como alimento larval deben sacarse y utilizarse durante la fase de crecimiento de su cultivo para que su calidad sea óptima.
Además, se debe tener un cuidado muy particular en las diferentes manipulaciones, para evitar a las cepas cualquier contaminación de organismos exteriores y su degeneración.
Las algas en tanques de 300 litros pueden utilizarse de dos maneras :
- Sea en uso directo, en tanques de cría larval ;
- O como inoculum en tanques exteriores de 1 m3.
Preferentemente se usa tres cepas de algas :
Chaetoceros gracilis, Isochrysis T. galbana, Platymonas sp.
Las dos primeras se producen tanto en los tanques exteriores como en la sala, la tercera se produce solamente en la sala.
Sala de algas :
| DENSIDAD CUMULADA UTILIZADA/CRIA EN CEL./ml | TOTAL* MENSUAL EN CELULAS | DENSIDAD MEDIA EN CULTIVO EN CEL/ml | VOLUMEN DE CULTIVO/DIA EN LITROS | |
|---|---|---|---|---|
| ISOCHRYSIS | 135 000 | 4,23 × 1013 | 2 000 000 | 704 |
| CHAETOCEROS | 190 000 | 5,96 × 1013 | 1 200 000 | 1 654 |
| PLATYMONAS | 15 000 | 0,46 × 1013 | 500 000 | 311 |
* 12 tanques × 20 m3 × 1,4 cría/tanque.mes.
Los cultivos se realizan en tanques de 300 litros y se utilizan el cuarto día.
Entonces, el número requerido de tanques es el siguiente :
Isochrysis → 9 tanques
Chaetoceros → 15 tanques → en cultivo
Platymonas → 3 tanques
Seguridad → 3 tanques → dispuestos
Sea un total de 30 tanques de 300 litros (13 por sala de cultivo) y el número conveniente de otros volúmenes en la cadena de producción.
Se ha previsto :
Cultivo exterior :
Además, para asegurar la alimentación de las larvas, consideramos que 50 % de las algas son producidad en tanques exteriores.
En efecto, la producción de algas es una etapa muy importante que nunca debe ser un factor limitativo.
Los tanques de 1 m3 son inoculados cada uno por un tanque de 300 litros, los cultivos utlizados el tercer día.
Se propone realizar una unidad de almacenamiento intensivo con el fin de poder, en algunos casos, reagrupar las postlarvas antes de sembrarlas.
La densidad de almacenamiento de un tanque se realiza a 25 PL5/litro ; por consiguiente un tanque de cría larval permite la siembra de dos tanques de 20 m3 pues el modelo escogido es de tipo circular en fibra de vidrio de 20 m3 (forma que va optimar los costos de inversión) o según disposición de los tanques de la misma forma que los tanques de cría larval (forma U).
Para una producción promedio de l cría por día y un tiempo de utilización de cada tanque de almacenamiento de 5 o 6 días, necesitamos pues 12 tanques de 20 m3.
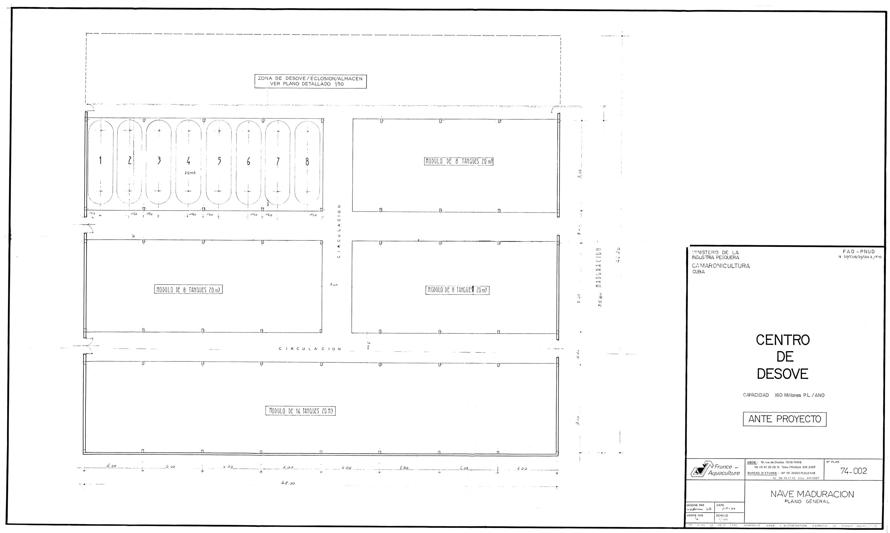
El engorde sera hecho en estanques de 5 000 m2 con un sistema semi-intensivo en 2 etapas y 3 fases.
La necesidades serán 1 667 de hembras y machos sea 4 334 animales con 30 % de mas para tomar encuenta la mortalidad al nivel de la maduración.
LA SEGUNDA ETAPA : 23 g a 50 g
Supervivencia y selección : 50 %
Sea 8 668 animales
Con una densidad de 0,5/m2
sea 17 336 m2 y
4 estanques de 5 000 m2
LA PRIMERA ETAPA :
- 2a fase : 2 g - 20–23 g
Survivencia y selección : 50 %
Densidad 2/m2
Sea 17 336 animales
sea 8 668 m2 y
2 estanques de 5 000 m2
- la fase : PL10 - 2 g
Survivencia y selección : 50 %
Densidad 7/m2
Sea 34 672 animales
sea 4 953 m2 y
l estanque de 5 000 m2
Entonces la necesidad global sera de 14 piscinas tomando encuenta el factor de programación. Una piscina sera para el stock de reproductores.
La cría se realiza en dos etapas, según las normas siguientes :
Etapa 1 :
Densidad inicial : 60 %
Densidad final : 30/m2
Duración : 120 días
Peso promedio final : 18–20 g
Régimen alimenticio : alimento balanceado
Etapa 2 :
Densidad inicial : 15/m2
Densidad final : 7/m2 (selección mejores genitores de la
cosecha)
Peso promedio final : 50 g
Primeros genitores obtenidos en 120 días, hasta 180 días
Régimen alimenticio : alimento balanceado
alimento especial de preparación
alimento fresco.
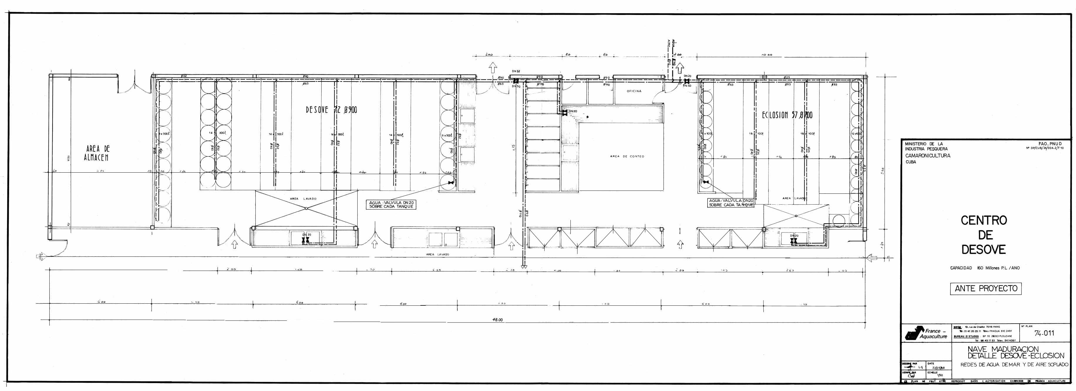
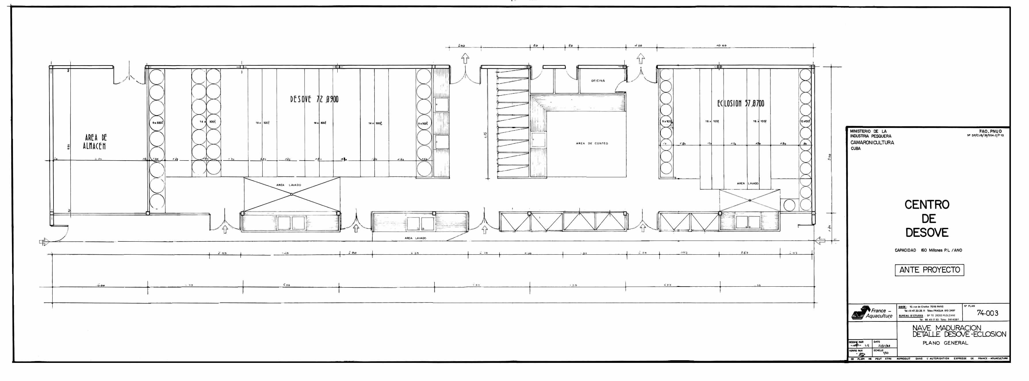
las disposiciones constructivas finalmente retenidas son las siguientes :
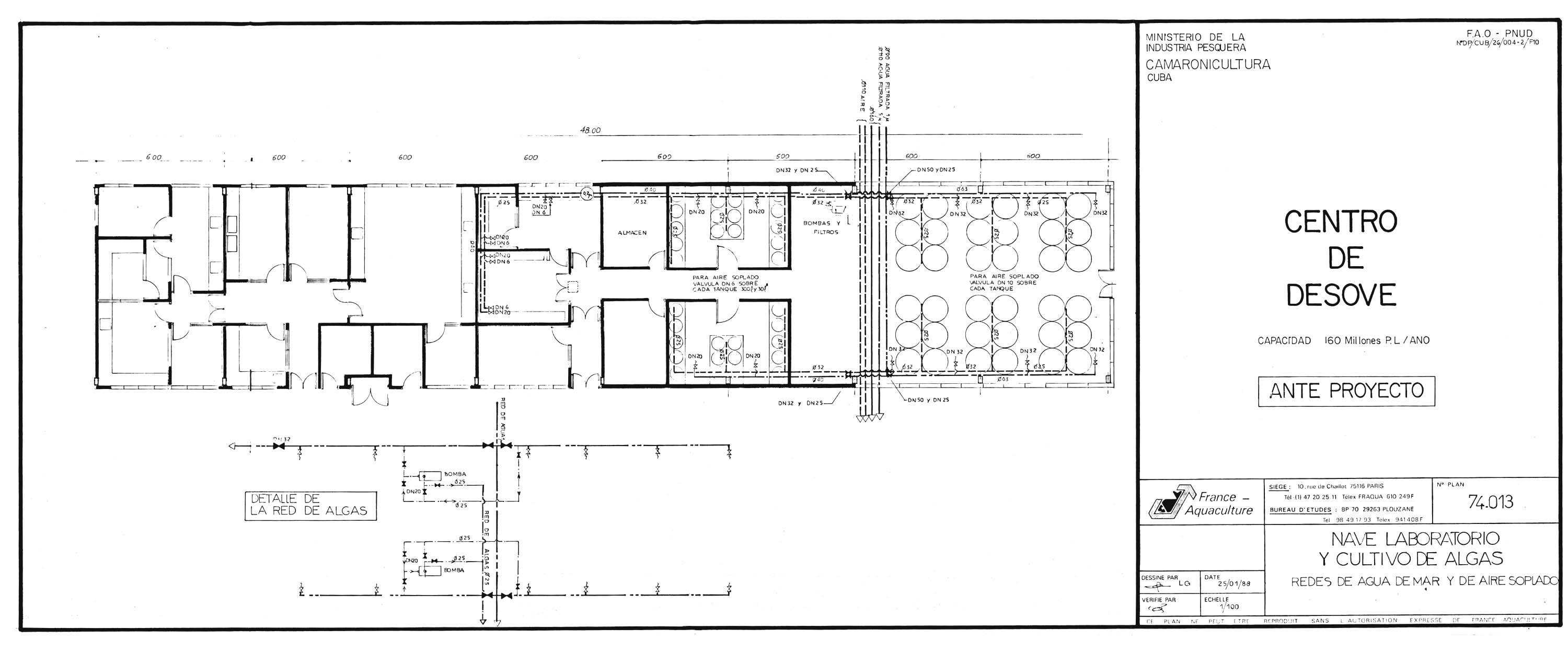
- CRIA LARVAL NURSERY
24 tanques de 20 m3 útil, en una nave con 12 cubiculos de 2 tanques.
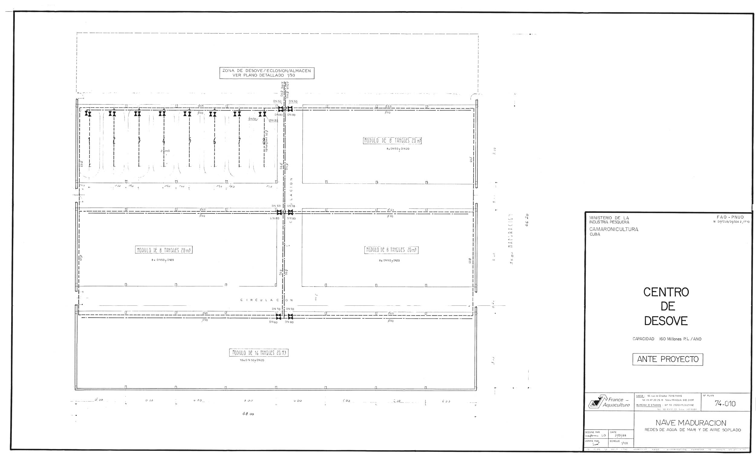
- MADURACION
48 Tanques de 20 m2 (Volumen = 6 m3)
DESOVE Y ECLOSION
72 tanques de desove de 300 l
62 tanques de eclosión de 100 l.
- ARTEMIA
16 tanques de 600 litros útil.
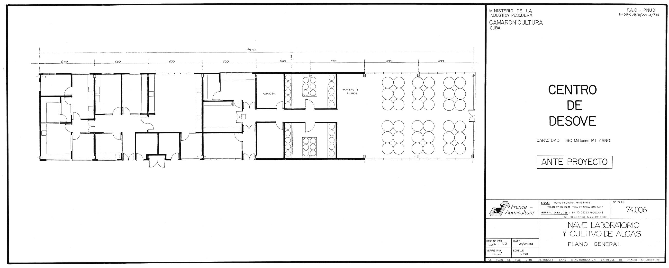
- SALA DE ALGAS
34 tanques de 300 litros, y
34 tanques de 30 litros instalados en 2 salas.
- ALGAS EXTERIORES
2 unidades de 18 tanques de 1 m3.
- CRIA GENITORES
14 estanques de 5000 m2.
CUADRO DE NECESIDAD/AGUA DE MAR
| NAVE/SALA | TANQUES | CALIDAD DE AGUA | CAUDAL M3/h PICO | NOTA |
|---|---|---|---|---|
| MADURACION | 48 × 6 m3 | Filtrada sobre 5 μ calentamiento 28°C | 24 | Renovacion de agua 200% por dia |
| DESOVE | 72 × 300 l | Filtrada 5 μ calentada 28°C | 3,24 | 15% por hora llenada en 2 horas sobre red de maduracion |
| ECLOSION | 62 × 100 l | 3,1 No simultaneo | ||
| CRIA LARVAL | 12 × 20 m3 | Filtrada 5 μ calentada 28°C | 60 | 50% Durante 2 horas. Las 2 necesidades no son asumidas simultaneamente |
| NURSERY | 12 × 20 m3 | 60 | ||
| ARTEMIA | 16 × 600 l | Filtrada 5 μ calentada 28°C | 8 | Llenada 50% durante 1 h |
| ALGAS INTERIORES | 34 × 330 l | Filtrada 1 μ sin calentamiento | 5,6 | Llenada 50% durante 1 h |
| ALGAS EXTERIORES | 36 × 1 m3 | 9 | Llenada 50% durante 2 h | |
| CEPAS Y DIVERSAS | Pequenos volumenes | Filtrada 0,2 μ para cepas | 2 | Necesidades puntuales |
LUJOS DE PICO : Red de maduracion : 27,4 m3/h
Red Cria Larval : 68 m3/h
Algas y diversas : 14,6 m3/h
CUADRO DE NECESIDAD/AIRE SOPLADO
| NAVE/SALA | TANQUES | NECESIDADES | CAUDAL l/s |
|---|---|---|---|
| MADURACION | 48 × 6 m3 | 6 × B por tanque | 43 |
| DESOVE | 72 × 300 l | 1 B/tanque | 10,8 |
| ECLOSION | 62 × 100 l | 1 B pequena por tanque (0,10 l/s) | 6,2 |
| CRIA LARVAL | 12 × 20 m3 | 20 m3/h por tanque mas 0,5 l/s para sistema de desagüe | 72,7 |
| NURSERY | 12 × 20 m3 | 20 m3/h por tanque mas 0,5 l/s para sistema de desagüe | 72,7 |
| ARTEMIA | 16 × 600 l | 0,5 l/s por tanque | 8 |
| ALGAS INTERIORES | 34 × 300 l | 1 B por tanque | 5,1 |
| 34 × 30 l | 0,1 l/s por tanque | 3,4 | |
| ALGAS EXTERIORES | 36 × 1 m3 | 1 B por tanque | 5,4 |
| CAUDAL DE PICO | 227,3 l/s sea 818,3 m3/h | ||
Unidad de burbujas B = 0,15 l/s
![]() | France-Aquaculture |
| DEPARTMENT ETUDES ET INTERVENTIONS B P 337. - 29273 Brest Cedex Tél. : 98 49 17 93 Télex 941.408 FRAQUAB F. |
| JP/88. 29 | Brest, le 25 février 1988 |
| FISHERIES DEPARTMENT | |
| FAO ROME Via Delle Terme di Caracalla 00100 ROMA | |
| A l'attention de Mr KOJIMA |
Objet : Contrat DP/CUB/86/004-2/F10
Monsieur,
Nous vous remettons en l exemplaire l'Avant projet technique préparé en accord avec l'architecte VITIER lors de sa mission en FRANCE en Décembre et Janvier dernier.
Ce dossier comprend :
- Manual operativo y definición de un laboratorio de 160 millones de PL/año.
- Planos del anteproyecto del centro de desove (Liste jointe)
Veuillez agréer, Monsieur, l'expression de nos sentiments les meilleurs.

Jack PICHON
| Société anonyme au capital de 1 600 000 F. | R.C. Paris B 312 908 759 SIRET 312 908 759 00078 | A P E 7701 |
| Siège Social : 10, rue de Chaillot 75116 PARIS | Téléphone : (1) 47 20 25 11 | Télex : Fraqua 610 249 F |
| CAMARONICULTURA | |
| CENTRO DE DESOVE | Contrato FAO No DP/CUB/86/004-2/F10 |
ANTE PROYECTO
LISTA DE LOS PLANOS