L'écloserie, où les jeunes poissons naissent en masse chaque année pour être ensuite distribués aux éleveurs, est devenue un élément essentiel de la pisciculture moderne. Il est évident, en effet, que les petits éleveurs ne possèdent ni les installations ni la compétence qui leur permettent de produire les oeufs et alevins correspondant à leurs besoins, surtout lorsqu'il s'agit d'espèces dont la reproduction est délicate ou qui, normalement, ne se reproduisent pas en eaux fermées.
Il existe deux modèles d'écloserie: les unes où l'on ne traite qu'une seule espèce de poisson (écloseries spécialisées) et celles consacrées à plusieurs. La tendance actuelle penche plutôt pour les écloseries polyvalentes, en accord avec l'orientation moderne vers l'élevage mixte, ou polyculture, d'espèces à habitudes alimentaires différentes, qui permet d'utiliser toutes les ressources nutritives du bassin pour en tirer le meilleur rendement.
La capacité productive d'une écloserie dépend de bien des facteurs: notamment, des effectifs et de la taille du stock de géniteurs, du nombre d'espèces à reproduire, des différences entre leur saison de fraie, de la capacité des bacs de stockage, du nombre de systèmes d'incubation et d'élevage des larves, des disponibilités en eau et de sa qualité, et, bien entendu, de la compétence des éleveurs. La capacité des bacs (ou des bassins) de nourrissage et d'alevinage, ainsi que le taux de peuplement des jeunes poissons dans les systèmes d'élevage, sont les autres facteurs importants.
Dans les pays où le transport des jeunes poissons ne fait pas problème (en raison de l'existence d'un bon réseau routier et de moyens sûrs et économiques de transport), la création de grandes écloseries et de centres de distribution n'offre pas de difficultés. Les recherches effectuées dans ces centres sont capables de promouvoir et d'améliorer les techniques présentes. Mais, même si les grandes écloseries centrales ont d'énormes avantages, en zones tropicales et subtropicales il est conseillé, étant donné le rôle de facteur-limite que jouent ici les fortes températures dans les transports à longue distance, de constituer plusieurs écloseries de dimension moyenne, c'est-à-dire d'une capacité de production voisine de 7 à 10 millions d'alevins âgés de 20 à 30 jours.
Si la saison de reproduction ne coïncide pas entre les diverses espèces, la capacité de production d'une écloserie pourra être considérablement accrue au prix d'un supplément de dépense à peu près négligeable, en échelonnant sur une période plus longue la propagation successive des différentes espèces.
En même temps que le plan général d'une écloserie moyenne fonctionnant à l'eau chaude, on trouvera décrits ci-après les conditions de son fonctionnement.
L'établissement d'une écloserie de poissons est soumis à un certain nombre de préalables: 1) disponibilités d'eau adéquates en quantité et en qualité; 2) superficie de terrain convenant à la construction de bassins, de bacs d'éclosion, de bâtiments, etc.; 3) force électrique disponible, si possible; 4) facilités de communication et de transport; 5) main-d'oeuvre.
Eau. L'eau nécessaire à l'écloserie peut provenir de barrages, réservoirs, étangs, rivières, canaux et puits plus ou moins profonds. L'eau, toutefois, doit être de la qualité requise: d'une salinité n'excédant pas 2 ppm et d'un pH de préférence 7 à 8. Elle ne doit pas être polluée d'eaux résiduelles ou de déchets organiques dissous, ni contaminée par des pesticides, du chlore et autres poisons. Il est très souhaitable que l'adduction d'eau à l'écloserie se fasse par gravité, sinon il faudra prévoir une installation de pompage avec des réservoirs.
L'eau qui alimente l'écloserie (destinée aux bassins de stockage, aux dispositifs d'incubation et d'élevage des larves) doit avoir juste la pression suffisante, que fournira une différence de niveau de 1 m à 1,50 m: une pression plus forte n'est pas à rechercher, car elle pourrait léser les organismes délicats que sont les oeufs et les larves. Si, néanmoins, la pression est trop grande, il faudra construire un réservoir compensateur entre la source d'alimentation et tout l'appareil de l'écloserie, de manière à réduire la pression au débit recommandé.
Si l'eau contient des gaz tels que le méthane ou l'hydrogène sulfuré et n'a pas, ou très peu, d'oxygène dissous (ce qui est le cas des puits profonds ou instantanés, ou de réservoirs d'eau souterraine situés à grande profondeur), un simple filtre aérateur peut la rendre utilisable pour l'écloserie.
La température de l'eau représente un autre facteur important. Les poissons des eaux chaudes ont besoin d'une eau entre 20 et 30°C pour leur reproduction. Trop chaude ou trop froide, elle inhibe le développement ultime des gonades. Pour la carpe ordinaire, la température idéale de reproduction est entre 20 et 23°C, tandis qu'elle sera de 24 à 28°C pour d'autres géniteurs de rivière. La capacité élevée qu'a l'eau de conserver la chaleur (autrement dit sa mauvaise conductibilité) ne permet pas les changements thermiques rapides. On devra tenir compte de ce fait lorsqu'on établira les plans de l'écloserie: si possible, il faudra prévoir une adduction simultanée d'eau froide et d'eau chaude, de manière à pouvoir mélanger l'une avec l'autre pour obtenir la température optimale.
L'eau doit également être indemne d'organismes planctoniques principalement de cyclopidés. L'eau issue d'un barrage, d'un réservoir ou d'un étang peut être purifiée au moyen d'un simple filtre à gravier, ou par des filtres inversés, plus compliqués mais plus efficaces. Les eaux troubles des rivières, canaux, etc. peuvent aussi être utilisées pour les besoins des écloseries, puisque la plupart des reproducteurs de rivière frayent en eau trouble pendant les crues. La turbidité, toutefois, empêche de bien observer les évènements qui se produisent dans les appareils de l'écloserie, et les particules risquent de boucher les mailles fines du tissu filtrant dont sont munis les incubateurs et les bacs d'élevage des larves. C'est pourquoi il est préférable de laisser les particules en suspens se déposer dans un réservoir d'équilibre intermédiaire.
Les algues filamenteuses peuvent être extrèmement gênantes dans une écloserie, si elles envahissent les canalisations d'eau. Aussi, tous les dispositifs filtrants doivent-ils être installés sous un couvert quelconque, de façon à interdire la multiplication des plantes aquatiques filamenteuses sous l'action de la lumière. De même, il faut empêcher, au moyen de crépines-filtres, l'entrée dans l'écloserie de feuilles, résidus végétaux, etc.
En plaine, il est souvent assez difficile de disposer d'eau tombant de la hauteur voulue en quantité suffisante, autrement qu'en provenance d'un étang ou d'un réservoir. Si l'on en manque, on pourra toujours recycler les eaux usées dans l'étang où elles se purifieront suffisamment pour pouvoir être utilisées à nouveau.
L'eau prélevée directement, sans filtrage, dans un étang ou un réservoir risque de provoquer bien des problèmes dans l'écloserie, avec tous les crustacés et autres organismes planctoniques dommageables pour les oeufs, larves et juvéniles qui pourront y pénétrer. En procédant comme suit, on pourra fabriquer un filtre excellent et relativement peu coûteux.
Le bassin (ou le réservoir) est construit en ciment ou en briques sur plan carré, où suffisamment de cavités sont ménagées pour y implanter les montants de la superstructure. Tout autour de celle-ci on tend un solide treillage métallique de 1 × 1 m, ou de 1,50 × 1,50 m, surplombant de 0,50 m le niveau du bassin, et à travers lequel on fait passer le tube de vidange muni d'une crépine, comme le montre la Fig. 58. La face intérieure de ce lattis métallique est recouverte d'un treillis à mailles fines, mais très résistant (de préférence en plastique ou en bronze), pour retenir le blocage de sable grossier qui formera le corps filtrant. A un demi-mètre environ à l'extérieur de cet enclos interne, on installe en effet un appareil équivalent, composé d'un solide treillage extérieur et d'un fin treillis intérieur, qui constitue la clôture externe du filtre. Entre ces deux palissades, on déverse le blocage de sable grossier et de gravier (de 3 à 5 mm de diamètre). L'ensemble de la structure est alors recouvert tout entier d'un toît, afin d'empêcher les algues de pousser sur le sable et à l'intérieur du filtre (Fig. 57 et 58). S'il n'est pas possible d'amener l'eau par gravité, il faudra avoir recours au pompage par moteur électrique ou diesel.
Le volume d'eau disponible est aussi un facteur dont on devra tenir compte, car l'eau de l'écloserie est polluée au fur et à mesure par les matières organiques dissoutes et doit donc être remplacée. Le recyclage des eaux usées n'est admissible que si un dispositif convenable de purification est incorporé dans le système général d'alimentation en eau. Mais un tel appareil est habituellement trop compliqué et très coûteux.
Une écloserie moderne, faisant aussi fonction de centre de distribution d'oeufs et d'alevins, se compose de quatre éléments distincts: le bassin des reproducteurs, l'écloserie proprement dite, la nursery (ou bassin de premier alevinage du jeune frai) et le bassin d'élevage des alevins. L'écloserie elle-même, qui occupe la majeure partie de l'ensemble, exige une eau de qualité pendant la saison de reproduction, bien que l'eau qui y est utilisée puisse être ensuite dérivée sur d'autres sections du centre. Un incubateur du type entonnoir, relié à un dispositif d'élevage des larves d'une capacité d'une dizaine de litres, requiert 0,5 à 1 litre d'eau par minute. Dans une écloserie moyenne, les incubateurs consomment au maximum 5 à 10 l/sec, à quoi il faut ajouter 5 l/sec pour les bassins de stockage et les étangs de stabulation. En tout, l'écloserie nécessite approximativement 15 l/sec. Les autres éléments du Centre peuvent avoir besoin de 25 à 35 l/sec. Pour conclure, disons qu'une écloserie de taille moyenne avec ses annexes pourra être installée là où l'on dispose en saison sèche d'un débit de 40 à 50 litres d'eau par seconde.
Un complexe d'écloserie, rappelons-le, se compose de quatre éléments: 1) les bassins à reproducteurs; 2) l'écloserie proprement dite avec les étangs de stabulation et les bassins (ou bacs) de stockage; 3) les systèmes de premier alevinage; 4) les étangs d'élevage des alevins combiné avec la production.
Les reproducteurs (ou géniteurs), qui fourniront les produits sexuels d'où seront issues les nouvelles générations de poissons, doivent faire l'objet de soins particuliers. Il est possible de tenir entre 20 et 50 reproducteurs, pesant au total approximativement 150 à 250 kg, dans 1 000 m2 (1/10 d'ha) de surface de bassin. Là où est pratiquée une bonne technique de propagation, environ 50 à 150 géniteurs d'une seule espèce (40 pour cent de femelles et 60 pour cent de mâles) suffiront à produire entre 2 et 3 millions d'alevins de 20 à 30 jours. Autrement dit, deux bassins à reproducteurs, chacun de 2 000 m2 pouvant contenir de 50 à 75 géniteurs de taille normale (de 3 à 6 kg), seront nécessaires pour une seule espèce. Si l'écloserie doit traiter 5 espèces de poissons, 8 à 10 bassins de ce type couvrant au total 1,5 à 2 ha suffiraient. On peut mettre ensemble dans le même bassin des reproducteurs ayant des habitudes alimentaires différentes. Mais il n'est pas à conseiller de réduire le nombre des bassins et d'en augmenter la superficie au-delà de 2 000 m2, parce qu'il devient alors difficile de prendre à l'épuisette les reproducteurs quand leur ségrégation par sexe commence à s'imposer.
Les bassins ou étangs à reproducteurs doivent être suffisamment profonds (1,50 m en moyenne) et largement alimentés en eau. Un étang d'un hectare réclamera 100 à 200 m3 d'eau par jour pour remplacer le volume qui s'évapore pendant la saison sèche.
L'emplacement de ces bassins doit être choisi de manière à ce qu'il soit gardé contre le vol éventuel des reproducteurs et situé de préférence à proximité de l'écloserie. Un emplacement plus éloigné entraînerait des problèmes de transport et obligerait à une surveillance et une garde spéciales.
Il est recommandé de construire ces bassins à reproducteurs sur plan rectangulaire: par exemple, de 75 m sur 20, ou de 80 sur 25, dimensions qui donneront la surface appropriée.
La majeure partie du travail s'effectue dans l'écloserie, en commençant par l'introduction des géniteurs mûrs pour la ponte induite et en finissant par la distribution des alevins destinés au repeuplement des plans d'eau situés au dehors. Dans les écloseries commerciales, le personnel travaille habituellement en permanence pendant toute la saison de reproduction. Le détail des différentes installations est schématisé dans les Fig. 59 et 60.
Avant d'être hypophysés, les reproducteurs précédemment sélectionnés sont gardés dans deux petits bassins de 200 à 450 m2 (mesurant 10 m sur 20, ou 15 sur 30), profonds de 1 m à 1,50 m. Tous les poissons nécessaires à la reproduction au cours d'une même semaine, soit de 25 à 50, peuvent être gardés, sexes séparés, dans ces deux bassins que l'on nomme bassins de stabulation.
Après hypophysation, les géniteurs peuvent être mis dans des bassins de brique ou de ciment alimentés en eau courante, filtrée et bien aérée. Ce sont les bassins, ou réservoirs, de stockage, dont le fond en pente douce permet de les vidanger chaque fois que c'est nécessaire. Un trop-plein inversé de 5 cm de diamètre sert à régler le niveau de l'eau (Fig. 60). Le tube du trop-plein, qui pivote autour de sa base, est retenu par une chaînette et une goupille pour l'empêcher de retomber et de faire vider le bassin. Quelquefois, particulièrement lorsqu'il faut procéder à l'extraction manuelle des produits sexuels du poisson hypophysé, une fosse creusée dans l'axe longitudinal du bassin, profonde de 20 à 25 cm et large de 50, sera très utile pour pouvoir saisir le poisson sans trop le perturber. Les bassins de stockage à fond uni conviennent bien là où la reproduction induite est pratiquée. Les dimensions les plus commodes sont de 2,50 × 1,50 × 1 m pour quatre à six géniteurs, de 4 × 2 × 1 m pour huit à dix de 3 à 6 kg chacun. Pour les plus gros reproducteurs, du genre Colossoma par exemple qui pèsent entre 12 et 20 kg, il est préférable d'avoir de plus grands réservoirs, mesurant 7,50 × 2,50 × 1 m. Il n'est jamais recommandé de mettre trop de poissons dans un bassin de stockage, surtout si on doit les induire à se reproduire. Mais, seule, l'expérience permettra de déterminer la charge biotique optimale selon l'espèce. Il importe de fournir aux reproducteurs suffisamment d'oxygène: pour un seul poisson de taille normale (de 3 à 6 kg), on estime que le débit de l'eau courante doit être de 4 litres par minute.
Nombreux sont les géniteurs de rivière qui peuvent devenir très nerveux et agités (carpe argentée, carpe herbivore, grosse tête, rohu, mrigal, coporo, etc.) Aussi, conseille-t-on de les tenir en eau peu profonde (dans 25 à 30 cm d'eau) durant le traitement, pour qu'ils soient incapables de sauter dehors. Il est d'ailleurs recommandé de recouvrir d'un filet le sommet du bassin pour empêcher les poissons hypophysés de sauter par dessus, en ayant soin également de disposer à la surface un objet flottant de teinte sombre sous lequel le poisson puisse se cacher. Le niveau de l'eau peut être élevé jusqu'à 60 ou 70 cm pour les poissons qui restent calmes pendant le traitement.
La manutention des reproducteurs est grandement facilitée si l'on installe dans le bassin un hapa. Celui-ci doit rester tendu pour ne pas déranger les poissons, aussi en attache-t-on le fond autour d'un cadre de fer. Sa longueur et sa largeur devront avoir 5 à 10 cm de moins que le bassin.
Une paire de géniteurs demeure en général de 36 à 48 heures dans le bassin de stockage: soit, 24 heures après l'injection préparatoire, 9 à 10 heures après l'injection décisive, le reste après la ponte pour la collecte des oeufs fécondés. Par conséquent, il suffit de quatre à six bassins de stockage si les opérations de ponte ou d'extraction manuelle ont été prévues sur la base de quatre jours par semaine, un cinquième jour ouvrable étant réservé au nettoyage et à la maintenance des appareils.
Le long de la rangée des bassins de stockage, côté vidange, une rigole large de 60 à 70 cm et profonde de 10 à 25 est prévue pour l'écoulement de l'eau et pour la collecte des oeufs.
En zones tropicales et subtropicales, il vaut mieux abriter sous un toît les bassins de stockage, ou bien les tenir à l'ombre complètement ou partiellement. Un laboratoire (6 m sur 3), ou simplement un local couvert attenant, sera très utile en particulier pour l'extraction manuelle, la préparation des injections, le traitement de la ponte, etc. Ce laboratoire devra être équipé d'eau courante et meublé de tables, placards, étagères, etc. Une petite pièce à usage de magasin est également nécessaire.
Les oeufs fécondés obtenus par extraction manuelle ou par ponte induite doivent être incubés; puis, après éclosion, les larves sont également élevées dans l'écloserie jusqu'au stade de jeune frai.
D'habitude, ce sont des incubateurs du modèle entonnoir que l'on utilise pour les oeufs non-collants des poissons d'eau chaude. Pour les oeufs plus lourds à espace périvitellin étroit, on se sert de jarres coniques de plus petit diamètres (16 à 20 cm) et donc de volume moindre. Lorsqu'on décide du nombre d'incubateurs nécessaires, il ne faut pas oublier que 25 à 30 pour cent seulement du volume total de l'incubateur est utilisable par les oeufs. Autrement dit, une bouteille de Zoug ou une jarre conique de plastique de sept litres ne pourra contenir qu'un litre et demi à deux litres d'oeufs gonflés. Pour les oeufs semi-flottants et flottants, il vaut mieux se servir d'incubateurs dont la partie conique fait un angle moins aigu. Les modèles d'incubateurs-entonnoirs décrits dans le présent manuel suffisent en général pour la plupart des oeufs que l'on a à traiter dans le cadre de la propagation artificielle des poissons. Les grands et très grands incubateurs (de 100 à 200 l) ont habituellement l'inconvénient de recevoir des oeufs de différentes femelles, dont le taux de fécondation varie. Ils sont néanmoins utilisés dans la propagation à grande échelle. Les incubateurs-entonnoirs faits de matériau dur, comme le verre, la fibre de verre ou le métal, sont faciles à installer au moyen d'appliques métalliques.
Les oeufs des géniteurs des rivières tropicales ou subtropicales éclosent en 18 à 30 h. La période de rotation d'un incubateur en service, nettoyage et séchage compris, est d'environ 48 h, soit à peu près la même que celle des bassins de stockage. Pour les dispositifs d'élevage des larves, ce temps de rotation est d'environ cinq jours; mais le nombre de larves qu'on peut y mettre est à peu près le double de celui des oeufs dans un incubateur de même dimension.
Les robinets alimentant les incubateurs et les bacs d'élevage des larves sont montés sur la canalisation d'eau, à intervalles de 25 cm pour les bouteilles de Zoug et les entonnoirs coniques, de 60 cm pour les autres types d'appareils. Ces incubateurs sont reliés aux robinets, soit directement, soit par l'intermédiaire d'un tuyau de caoutchouc ou de plastique; mais, dans un cas comme dans l'autre, le raccord doit être absolument fiable, car tout décrochage accidentel serait fatal aux oeufs ou aux larves.
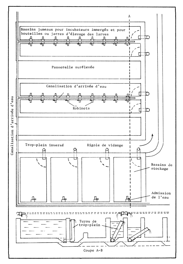
Pour les incubateurs du type immergé faits de matériaux souples, on utilise des bassins jumeaux rectangulaires, où l'eau arrive par une canalisation placée en haut de la partition, les robinets étant montés de chaque côté à intervalles de 60 cm. Chaque robinet devant débiter la même quantité d'eau, que les autres soient ouverts ou fermés, la canalisation d'arrivée doit être d'un gros diamètre: soit 5 cm pour 20 robinets, 7,5 s'il y en a davantage (Fig. 60).
Chacun des bassins jumeaux est long de 6 à 8 m, large de 0,70 m, profond de l à 1,10 m, et muni à une extrémité d'un trop-plein inversé pour régler le niveau de l'eau. Deux bassins jumeaux de cette dimension suffisent pour une écloserie moyenne, où la propagation de la carpe ordinaire requiert 40 à 60 robinets pour autant de bouteilles de Zoug.
Les oeufs et les larves, chez beaucoup d'espèces, sont sensibles, rappelons-le, au rayonnement solaire direct; aussi est-il recommandé d'installer les bassins jumeaux à l'ombre.
Les bassins, où les juvéniles ou les alevins seront mis en condition avant d'être emballés pour leur transport, peuvent être aisément construits dans le complexe de la station. Pour ce conditionnement, qui dure en général 24 heures, les bassins mesurent 1,20 × 1,20 × 1 m et il en faut au moins quatre ou cinq. On y installe en général un hapa, ou une nasse de filet, à maille de 2 mm et mesurant 1 × 1 × 1 m, pour pouvoir mieux manutentionner les poissons. Un bassin de ce genre permet de conditionner environ 50 000 alevins. On peut aussi l'utiliser pour le traitement anti-parasitaire des poissons.
L'élevage des juvéniles, autrement dit du jeune frai qui commence à se nourrir jusqu'à ce qu'il atteigne une taille de 25 mm, constitue la phase la plus délicate et la plus critique de la pisciculture. C'est ce que l'on appelle la gestion de premier alevinage, ou de “nursery”.
La principale difficulté que connaissent la plupart des écloseries est le manque d'espace pour élever le jeune frai jusqu'à 3 ou 4 semaines d'âge, moment où il atteint le stade alevin. Il s'agit là, de toute évidence, d'une activité délicate exigeant une très grande compétence et dont la tâche ne devrait pas être laissée entièrement à la responsabilité des petits éleveurs, en se contentant de leur fournir des larves ou des juvéniles qui commencent à se nourrir. Certes, quelques-uns de ces éleveurs pourront recevoir la formation voulue leur permettant de préparer leurs bassins à recevoir le jeune frai. Toutefois, il est préférable de confier ce premier alevinage à des spécialistes et c'est pourquoi l'incorporation de bassins de nursery dans le complexe de l'écloserie est tout à fait souhaitable. Aujourd'hui où les facteurs déterminants de la survie du jeune frai sont bien connus, cet élevage est devenu une opération beaucoup plus simple que naguère.
Divers modèles de bassins ordinaires de premier alevinage ont déjà été décrits précédemment. Cependant, un complexe moderne d'écloserie requiert des conteneurs spéciaux et de petits bassins de terre, si l'on veut obtenir de meilleurs résultats.
5.2.3.1 Conteneurs spéciaux. Ce sont des enceintes de 20 à 40 m de long et larges de 5 à 6 m, d'une surface de 100 à 240 m2, construits habituellement en briques ou en ciment. Leur charge utile est en moyenne de 200 000 à 400 000 juvéniles commençant juste à se nourrir. L'expérience nous a enseigné qu'une femelle de 4 à 6 kg qui se reproduit dans de bonnes conditions peut donner 0,5 à 0,7 kg d'oeufs secs, capables de produire le nombre voulu de juvéniles pour la mise en charge d'un conteneur spécial de premier alevinage. Si l'on fait reproduire dix de ces femelles par semaine, il faudra disposer de 30 à 40 de ces conteneurs pour élever les juvéniles jusqu'à l'âge de 21 à 28 jours.
5.2.3.2 Bassins de terre. Un bon bassin de premier alevinage ne doit pas dépasser 500 à 1 000 m2, étant de forme rectangulaire et large de 10 à 12 m. Le fond du bassin doit rester plat jusqu'à une distance de 2 m à 2,50 m des parois longitudinales, puis, à partir de là, former un remblai à environ 45° sur chaque face qui délimite une espèce de fosse large de 2 à 3 m et plus profonde de 50 cm que la partie plane du milieu du bassin. Cette fosse sert de refuge aux juvéniles.
Si les murs de ces bassins sont construits en terre, une bonne partie du terrain servira alors à l'édification des parois de séparation entre les bassins. Tandis que si ces partitions sont faites de briques ou de panneaux de ciment préfabriqués, on ne perdra pas plus de 5 à 7 pour cent du terrain. Les briques, dans ce cas, devront être assemblées au moyen d'un bon mortier jusqu'à 1,30–1,60 m de hauteur, la moitié se trouvant au-dessus du niveau du terrain, l'autre moitié au-dessous. Les murs bordant les bassins doivent être plus solides que les partitions longitudinales; ils servent à empêcher les grenouilles, crapauds et serpents de s'introduire dans le bassin. Le dispositif de vidange est très simple: on peut le munir d'une chambre de capture des juvéniles aménagée dans une fosse de briques (pour recueillir le frai losqu'on vide le bassin).
Un bassin de ce genre, de 50 × 10 m (500 m2), devra contenir environ 200 m3 d'eau au moment de la mise en charge; puis, on augmentera progressivement ce volume à 300–350 m3 au fur et à mesure que les juvéniles grandiront. La charge utile d'un tel bassin de nursery est de 500 juvéniles commençant juste à se nourrir par mètre carré, soit 250 000 pour ce bassin.
Le nombre utile de bassins dépendra de la durée du nourrissage. En moyenne, un géniteur dont la reproduction est réussie fournit assez de juvéniles pour un bassin de 500 m2. Une trentaine au moins de ces bassins seront nécessaires si l'on veut assurer une distribution continue d'alevins. Pour plus de sûreté, disons qu'une quarantaine sont recommandés pour une écloserie de moyenne dimension. Les bassins doivent être récoltés quand les alevins ont de 4 à 5 semaines d'âge.
5.2.3.3 Qualités comparées des conteneurs spéciaux et des bassins de terre pour le premier alevinage (“nursery”). Les conteneurs spéciaux ont les avantages suivants:
environ 70 pour cent de la masse d'eau a très peu de profondeur et représente le milieu préféré du jeune frai, à la fois pour y séjourner et pour s'y nourrir;
comme le périmètre peu profond repose partiellement sur un fond dur de brique (à 50 ou 60 pour cent environ), il n'y aura pas prolifération excessive de la végétation (graminées et autres plantes) au cours de la période de nourrissage;
le système peut facilement être mis en assec, nettoyé et désinfecté à volonté;
le jeune frai est facile à observer;
le cas échéant, la population peut facilement être réduite en pêchant à l'épuisette les juvéniles dans le fossé central;
le nourrissage intensif est possible, vu la faible dimension du bassin;
les traitements prophylactique et thérapeutique contre les parasites peuvent s'effectuer dans le conteneur même;
les coûts d'entretien sont minimes.
Le seul désavantage du système réside peut-être dans le coût initial de construction qui est élevé.
Les bassins de terre, surtout s'ils sont de forme carrée et non rectangulaire, ont plusieurs inconvénients sur les précédents, notamment:
le périmètre peu profond est moins étendu: soit seulement 40 à 60 pour cent de la masse d'eau;
les graminées et autres plantes peuvent devenir très denses et empêcher les organismes nutritifs de se développer;
le nettoyage et la désinfection sont plus difficiles: en particulier pour lutter contre l'envasement des parties les plus profondes;
la densité de la végétation gêne la capture à l'épuisette des alevins;
elle rend également difficile l'observation des jeunes poissons.

Figure 56 Modèle de filtre pour écloserie

Figure 57 Construction d'un filtre simple d'écloserie

Figure 58 Fonctionnement d'un filtre simple d'écloserie

Figure 59 Plan général d'une écloserie alimentée en eau chaude

Figure 60 Plan général des bassins jumeaux et des bassins de stockage dans une écloserie
De telles unités ont pour objectifs: élever des grands alevins et de jeunes poissons (“estivaux”) pour les distribuer aux pisciculteurs; produire de futurs géniteurs, élever des poissons donneurs de glandes pituitaires (habituellement des carpes communes); produire, le cas échéant, des poissons pour la vente.
Les bassins d'élevage des alevins et les étangs de production se gèrent généralement en polyculture. L'activité de l'écloserie et des nurseries intéressant la propagation proprement dite ne s'étend pas habituellement au-delà de cinq à six mois, tandis que l'unité chargée de l'élevage des alevins et de la production fonctionne toute l'année. Le coût de production des alevins peut être réduit si l'écloserie dispose de ses propres glandes pituitaires grâce à l'élevage de donneurs et si elle produit aussi du poisson pour la vente.
Normalement, les bassins de l'unité sont construits comme bassins ou étangs de production, chacun d'une superficie variant entre un demi hectare et un hectare, l'ensemble couvrant au total deux à trois hectares.
Pour chaque unité d'un centre moyen d'éclosion et de distribution de ses produits, les plans d'eau et le terrain nécessaire pour l'ensemble occupent les superficies suivantes:
| Unités de l'écloserie | Superficie requise pour les plans d'eau (ha) | Superficie de terrain nécessaire (ha) | |
| 1. | Etangs de reproduction | 2,5 – 3,0 | 3,0 – 4,0 |
| 2. | Ecloserie proprement dite et habitations | 0,5 | |
| 3. | Bassins de premier alevinage | 1,0 – 2,0 | 1,5 – 3,0 |
| 4. | Elevage des alevins | 2,0 – 3,0 | 3,0 – 4,0 |
| Superficie totale de terrain nécessaire: | 8,0 – 11,0 | ||
En général, pour construire un centre de dimension moyenne combinant à la fois l'écloserie et la distribution des produits, il faut disposer d'un terrain de 10 à 15 ha satisfaisant aux critères.
La technologie de l'hypophysation a permis, en se développant, de créer des écloseries et des centres de distribution modernes, où, selon la demande des pisciculteurs, il est possible de multiplier une ou plusieurs espèces de poissons. Les écloseries polyvalentes sont essentielles pour les raisons suivantes:
la technique moderne (et lucrative) de l'élevage mixte ou combiné fait appel aux produits (oeufs et alevins) d'espèces ayant des habitudes alimentaires différentes;
la technologie de la reproduction artificielle étant fondamentalement identique pour la plupart des espèces de poissons, les mêmes installations et le même matériel peuvent servir indifféremment;
comme les saisons de reproduction des divers poissons cultivables ne coïncident pas exactement, l'écloserie peut rester plus longtemps en activité si l'on traite plusieurs espèces;
si, pour une raison ou une autre, la propagation d'une espèce échoue, l'écloserie peut continuer de travailler avec un bon rendement en reproduisant d'autres espèces;
le personnel spécialisé de l'écloserie peut être occupé à plein temps, puisqu'il aura suffisamment de travail tout au long de l'année dans une écloserie polyvalente bien organisée.
En dépit de ce qui précède, plusieurs écloseries se consacrent à la propagation d'une seule espèce, à savoir: la truite arc-en-ciel et la truite de mer, les corégones (Coregonus lavaretus, C. albula), le brochet (Esox lucius), le sandre (Stizostedion lucioperca), l'esturgeon (Acipenser spp.), l'ictalure tacheté (Ictalurus punctatus), les tilapia (Tilapia spp.). Les écloseries de tilapia se consacrent à la production d'hybrides unisexués.
Les écloseries vouées à la propagation d'une seule espèce ont une installation et un matériel spéciaux. Bien qu'elles puissent produire un nombre considérable de jeunes poissons d'une espèce particulière, elles ne fonctionnent habituellement que pendant une période brève. Ces écloseries “univalentes” sont généralement destinées à la production de jeunes poissons pour repeupler les eaux naturelles, afin d'y maintenir ou de reconstituer leur population.
La propagation commerciale des poissons exige, pour réussir, des installations et un matériel stables ainsi que de bons appareils. Toutefois, durant la phase initiale d'un projet, ou bien s'il s'agit d'opérations à caractère expérimental destinées à convaincre un investisseur de la viabilité d'un projet avant financement, le pisciculteur aura avantage à y consacrer des moyens réduits. Il peut, en effet, ne réussir qu'à moitié, ce qui constituera une indication sur la viabilité de sa proposition. Mais, même si les résultats sont satisfaisants avec ces installations provisoires, il est à déconseiller de continuer à les employer. Nous décrivons ci-après le genre d'installations “de fortune” que l'on pourra adopter temporairement.
Les géniteurs requis pour la propagation artificielle peuvent être capturés au fur et à mesure des besoins et transportés à la station. En l'absence d'un bassin de pause, ils peuvent être, soit tenus quelque temps dans des enceintes de tulle (hapas), soit immédiatement induits par hypophysation. Le poisson induit peut être gardé dans une baignore ou une vasque, à condition de disposer d'eau courante bien aérée. L'eau de la ville risquant d'être javellisée, il faut la déchlorurer avant usage.
Chez certains poissons, l'ovulation et la ponte se font dans des enceintes de tulle à maille fine (hapas), attachées sur le fond à des piquets, de préférence près de l'arrivée de l'eau. Ces hapas, qui mesurent 2 × 1 × 1 m pour les plus petits spécimens, ou 3,50 × 1,50 × 1 m pour les plus gros, ont été utilisés avec succès pour la ponte induite de la carpe herbivore, de la grosse carpe indienne et de la carpe commune. Avec les poissons très exigeants en oxygène, la ponte en hapas implantés dans les bassins échoue par manque d'aération de l'eau.
On peut évidemment installer une écloserie provisoire à eau courante, comme le montre la Fig. 61, avec des incubateurs faits d'une feuille de plastique, d'un entonnoir également de plastique tendu sur du treillage métallique, etc. Les larves peuvent aussi être élevées dans des caissons de tissu filtrant ou hapas, avec ou sans eau courante.
Les juvéniles qui commencent à se nourrir peuvent être élevés dans des enceintes à maille fine, implantées dans un bassin de production. Dans une écloserie provisoire, la densité des oeufs mis à éclore en incubateur et celle du jeune frai élevé en hapa doivent être inférieures à la densité habituellement recommandée pour une écloserie pleinement fonctionnelle.
Il faut pouvoir disposer sur place de tout le matériel de base et des accessoires propres à faciliter, sans à-coups, le fonctionnement continu d'une écloserie. Une grande partie de ce matériel ne se trouve pas sur le marché et doit donc être fabriqué sur commande, conformément aux besoins de l'écloserie. Toutefois, c'est bien avant le début de la saison de reproduction qu'il faut se le procurer. On trouvera en Annexe I la liste détaillée du matériel et des accessoires nécessaires aux différentes sections et phases d'un ensemble complexe.
Dans les pays où la pisciculture moderne ne s'est pas encore développée, tous les accessoires et matériels que requièrent la propagation artificielle des poissons et leur manutention peuvent ne pas être disponibles. Aussi, les pisciculteurs de ces pays sont-ils obligés de fabriquer eux-mêmes ces dispositifs et appareils. Il est cependant possible d'utiliser un certain nombre d'articles manufacturés, moyennant parfois quelques modifications mineures: par exemple, les matières plastiques, les bols, plats, seaux, cuvettes, récipients, bouteilles, tôles, tuyaux, tubes, filets ou tulle, etc.
L'étamine à maille fine, que l'on utilise beaucoup dans les écloseries pour tamiser, peut être difficile à trouver. Ce tissu est fabriqué avant tout pour les tamis de minoterie. Il faut pouvoir se procurer tout le métrage nécessaire à la confection ou à la réparation des accessoires recherchés. Le filet à plancton, notamment, exige une étamine de 60 à 100 microns (de 0,06 à 0,1 mm). La Fig. 62 montre comment confectionner un filet à plancton.
De même, les incubateurs du modèle à immersion, les entonnoirs ou caissons servant à élever les larves, etc., peuvent être fabriqués avec de l'étamine à maille de 300 à 400 microns (de 0,3 à 0,4 mm). Avec les très petites larves (au-dessous de 5 mm), la maille utilisée est de 200 à 250 microns (0,2 à 0,25 mm), tandis qu'elle peut être de 600 à 800 microns pour les plus grandes (plus de 1 cm de long).
Les épuisettes rondes ou en forme de pelles, dont on se sert pour recueillir les oeufs flottants ou semi-flottants, peuvent aussi être confectionnées avec de l'étamine de 600 à 800 microns, comme le montrent les Fig. 63 et 64, respectivement. Quant aux juvéniles et alevins, les épuisettes utilisées pour les pêcher sont faites d'un tulle plus fort, de 1 à 2 mm de maille, comme celui des moustiquaires qu'on utilise parfois à cet effet.
Les crépines à tamis dont sont munies les entrées et sorties d'eau dans les bacs et aquariums sont faites de toile métallique, d'étamine et de plastique pour la tuyauterie (Fig. 65a).
Les filets traînants utilisés pour éliminer des juvéniles et alevins, ou pour les pêcher dans les fosses des réservoirs, peuvent être faits de tulle moustiquaire en fibre synthétique, ou de filet spécial à maille fine de 0,2 à 0,5 cm selon la taille du poisson à capturer (Fig. 65b). Si la maille est trop fine, on ne pourra pas traîner suffisamment vite le filet sur le fond; si elle est trop grande par rapport à la taille des jeunes poissons, beaucoup de ceux-ci se prendront par les ouïes au filet, ou bien seront blessés sinon même tués, tandis que certains pourront s'échapper.
Avant de confectionner l'un ou l'autre de ces filets en suivant les indications portées sur les illustrations correspondantes, il est recommandé d'en préparer d'abord le modèle en papier afin d'éviter de perdre de l'étamine ou du tulle, matériaux précieux.
Un grand nombre d'articles utilisés dans une écloserie nécessitent un cadre de fer. Le fer à béton, facile à se procurer, convient parfaitement: le fer rond de 6 à 8 mm pour les cadres d'épuisettes les plus petites, celui de 10 mm pour les plus grandes. Les anneaux des incubateurs et appareils à élever les larves sont faits de fil de fer ou d'acier galvanisé de 3 à 4 mm.
Le fil de fibre synthétique convient le mieux pour piquer et coudre les entonnoirs servant à l'incubation des oeufs ou à l'élevage des larves. S'il n'y en a pas, on se servira de gros fil de coton que l'on utilise aussi pour suturer les femelles de carpe commune et les empêcher de disperser leurs oeufs mûrs.
La Fig. 66 montre le mode de montage de différents modèles de collecteurs de laitance.
L'oxygène comprimé, destiné à remplacer celui dissous dans l'eau que consomme le poisson, donne des résultats plus ou moins bons selon la dimension des bulles qui montent à travers toute la hauteur de la masse d'eau. Les petites bulles ont une surface relativement plus grande, qui facilite l'absorption du gaz par l'eau. De plus, elles montent plus lentement dans la colonne d'eau que les grosses, ce qui laisse davantage de temps à l'oxygène pour être absorbé.
Comme diffuseurs, on peut utiliser des appareils spéciaux de graphite ou de tôle micro-poreuse. Mais il est très facile de confectionner soi-même dans l'écloserie un simple cercle de diffusion (Fig. 67), fait d'un tuyau épais de caoutchouc ou de plastique d'environ 1 cm de diamètre. On lui donne la forme elliptique ou circulaire au moyen d'un morceau de tuyau métallique en T ou en Y. Puis, avec une aiguille que l'on aiguise sur une meule fine, on perce l'anneau de trous à 1 cm d'intervalle, qui doivent pouvoir laisser passer l'oxygène sous pression. Le diffuseur est relié à la bouteille d'oxygène par un tuyau de plastique ou de caoutchouc capable de résister à la pression. Le diffuseur doit être lesté d'un cercle métallique de même dimension pour l'immobiliser au fond du récipient.
Le travail en écloserie, qui est délicat, exige un personnel appliqué, soigneux, précis et adroit. Le système doit faire l'objet d'une surveillance constante pour assurer la sauvegarde des géniteurs, des oeufs et de leurs produits aux divers stades du développement. Durant la saison de reproduction, le personnel de l'écloserie travaille de 8 à 10 h par jour.
Trois ou quatre personnes sont nécessaires pour trier et transporter les reproducteurs. L'hypophysation exige la présence de trois aides: l'un pour administrer l'injection, le second pour tenir le poisson durant l'opération, le troisième pour le porter au bac de stockage après l'injection. Deux personnes au moins sont nécessaires pour recueillir les oeufs dans le bac de stockage, ou pour porter les oeufs des collecteurs aux incubateurs. Il en faut trois ou quatre pour extraire manuellement les oeufs des femelles et recueillir simultanément la laitance: tandis qu'une personne tient et presse le ventre de la femelle, la seconde essuie le poisson et s'occupe de recueillir les oeufs dans des bols, la troisième prépare la femelle suivante pour l'extraction manuelle, la quatrième recueille la laitance. Pour les oeufs de 5 ou 6 femelles (qu'il faut féconder, laver, débarrasser leur membrane de l'assise adhésive, etc.), quatre personnes sont nécessaires, à raison d'une pour deux litres d'oeufs secs. Deux personnes suffisent ensuite pour assurer le travail: c'est à dire manutentionner et traiter les oeufs et les larves, nourrir le jeune frai, transporter les jeunes poissons, nettoyer et désinfecter le matériel, les appareils, les bacs, etc.