“L'autosuffisance alimentaire n'a pas de sens s'il n'y a plus de bois pour cuire les aliments”. 1 Cette réflexion traduit une réalité inquiétante des pays dans lesquels le bois et ses dérivés représentent 95 % de l'approvisionnement énergétique. Parallèlement à l'explosion démographique, la réduction des surfaces boisées au profit de l'agriculture et l'augmentation de la consommation de bois sont à la base de la crise du bois de feu. La consommation excessive en combustible s'explique surtout par des déperditions de chaleur importantes dans les installations employées.
1.1 Fumage
Le fumage est une technique traditionnelle notamment pour la conservation du poisson à qui il confère également une couleur et un goût particuliers, en général très appréciés des consommateurs. Riche en protéines, le poisson constitue un apport nutritionnel de qualité. Mais le problème essentiel dans les pays chauds est de lutter contre la dégradation très rapide en raison des températures élevées.
Le fumage est une sorte de séchage s'accompagnant du dépôt à la surface et dans la moindre mesure, dans la chair du poisson de composants de la fumée produits par une pyrolyse incomplète des polyoses et de la lignite du bois. Nous avons travaillé à chaud. Dans ce cas les fumées ont des températures de 80 à 100°C; et le poisson subit également une cuisson. La teneur en eau finale du produit est un compromis entre le temps de conservation que l'on veut obtenir et la qualité nutritionnelle et de présentation, déterminant la durée du fumage.
1 Rapport CILSS-Club du Sahel “L'énergie dans la stratégie du développement du Sahel”. Octobre 1978
Le procédé de fumage comporte plusieurs opérations : préséchage, cuisson, aromatisation par la fumée. I1 peut être associé au séchage pendant la saison sèche.
Peser le poisson avant de commencer l'opération est un moyen facile de contrôler le temps de préséchage ainsi que le fumage proprement dit.
Au préséchage le poisson doit perdre 20 à 25 % de son poids d'origine. Cette phase qui dure 1H à 1H 30 à 40–50°C évite le phénomène de croûtage en surface et raffermit la texture du produit et permet d'obtenir un produit moins friable et à chair élastique ayant une longue durée de conservation et susceptible de résister à la longue chaîne de distribution.
continuer par un fumage à chaud pendant une durée suffisante pour obtenir un produit séché pouvant se conserver comme tel. Dans cette phase la température du four sera maintenue entre 80 à 100°C.
La fumée qui n'était nécessaire lors du préséchage est à ce stade indispensable. Tout au long du fumage, il faudra vérifier si la couleur et la perte de poids sont correctes.
Le séchage dans le four ne requiert pas de fumée et il est complété lorsque le poisson atteint 15 à 30 % de son poids d'origine. Le poisson salé fumé devra être pesé avant d'être salé. Après le fumage, il faudra refroidir à température ambiante 1H à peu près. Après refroidissement, le poisson sera emballé dans des sachets en plastique. Le refroidissement devra être suffisant pour éviter la formation de vapeur d'eau, qui en se condensant à l'intérieur des sacs pourrait causer la formation de moisissures. Ces sacs devront être soigneusement conditionnés pour éviter la pénétration d'insectes, humidité ou poussière.
Combustible : l'utilisation des résineux est à proscrire.
Préparation du poisson avant fumage - le poisson se dégradant rapidement après sa capture, il est important de ne pas attendre pour le traiter. Les premières opérations à réaliser sont le tri à l'intérieur d'une même espèce par taille, l'éviscération si nécessaire et le lavage dans une eau propre afin d'éliminer les déchets, le mucus et le sable. Un salage avant le fumage permet une meilleure conservation. Les poissons peuvent être salés par immersion dans une saumure (la concentration en sel de la saumure et la durée d'immersion varient en fonction du goût local).
1.2 Salage
Le salage des produits de la pêche consiste à une deshydratation partielle au moyen du chlorure de sodium, des cellules des tissus du poisson et dans la pénétration du chlorure de sodium à l'intérieur de ces mêmes cellules. (par phénomène d'osmose)
l'épaisseur de la peau et la grosseur du poisson influent sur la rapidité de pénétration du sel
les poissons doivent être complétement couverts par le sel ou la saumure et gardés dans des récipients étanches, à l'abri de la lumière qui favorise des oxydations
la préparation et le lavage préliminaire du poisson ont une importance considérable, surtout si la température est élevée, sur la réussite du salage;
les phénomènes d'autolyse ne commencent jamais dans les quatre premières heures qui suivent la mort du poisson, le salage entrepris dans ce laps de temps assure un excellent produit immédiatement après la rigidité cadavérique (Cooper et Linton 1943).
la salage à sec permet une pénétration plus rapide du sel dans le poisson que le salage en saumure du fait qu'au contact des chairs humides, il se forme une saumure, concentrée qui commence à extraire l'eau du poisson. Cette saumure qui se trouve en même temps au contact avec excès de sel, conserve constamment sa concentration malgré l'apport continu de l'eau sortie des tissus de poissons. Les échanges se poursuivent de la sorte régulièrement et intensément tant qu'il reste dans la solution des cristaux de sel. Le sel fin présente l'avantage de pouvoir être réparti de manière plus uniforme sur toute la surface du poisson. En outre il déshydrate plus rapidement les tissus.
Le poisson salé à sec contient moins d'humidité que le poisson salé en saumure et peut être conservé plus longtemps.
Suivant le type de saumure employée, le salage du poisson peut être léger quand le contenu en sel de la saumure ne dépasse pas 16 %, moyen si la quantité de sel ne dépasse pas 20 %, fort si la quantité de sel est supérieure à 25 %.
La pénétration en sel pendant le salage en saumure se fait plus lentement et en moins grande abondance que dans le salage à sec et ceci parce que le poisson cède, avec le temps, son eau à la saumure, tandis que la saumure cède au poisson son propre sel : la saumure s'apprauvrit de cette façon de sel, tandis qu'elle s'enrichit d'eau. Cette diminution de concentration a pour conséquence - par le fait que la rapidité des mouvements osmotiques varie en raison directe de la concentration - un ralentissement dans la déshydration du poisson.
Au cours du salage, les saumures subissent d'importantes modifications transparentes à l'origine et sans odeur, elles changent à tel point, pendant l'usage, qu'elles deviennent troubles, épaisses et malodorantes. Il faudra donc, dans l'emploi des saumures, une surveillance attentive car il importe d'éviter qu'elles se corrompent à l'excès.
Les saumures peuvent être récupérées en oxydant les substances organiques qui s'y trouvent et de les désodoriser. Dès que la saumure est opaque et que son pH baisse (contrôle avec un papier tournesol) on emploiera comme oxydant l'hypochlorite de soude jusqu' à complète désodorisation de la saumure afin qu'il ne reste aucune odeur de chlore en mélangeant continuellement la saumure pendant l'opération.
Avec les poissons étêtés et éviscérés, la solution saline pénétrera plus rapidement et plus facilement à l'intérieur de la cavité abdominale et dans l'épaisseur des tissus.
Le développement des moyens de conservation n'a pas suivi celui de la pêche et ce retard constitue désormais le facteur limitant d'un nouvel accroissement des quantités débarquées. Le fumage permet de surmonter dans une certaine mesure cet obstacle. Nous avons testé la possibilité de fumer l'Isambaza de toutes tailles salé ou non, traité ou entier. A cet effet, nous avons testé deux fours:
les critères retenus pour ces fours sont:
simplicité de construction à partir des matériaux locaux existants
efficacité
maniement aisé
consommation énergétique réduite.
Tout au long de ces essais on s'est fixé comme but d'obtenir un produit de qualité uniforme, adapté au goût local tout en prolongeant sa durée de conservation.
2.1 Description des prototypes
2.1.1 Four parpaing rectangulaire
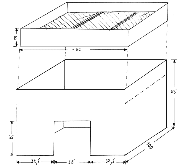
Nous avons construit un four style “banda” amélioré de taille moyenne de 2 m de longueur avec 95 cm de haut et 1 m de largeur avec un mur-médian de 65 cm de haut et de 15 cm d'épaisseur qui permet une bonne répartition de la fumée. Le four est muni de deux bouches à feu de 35 cm de largeur comme de hauteur. Un grillage fin - maille 6,5 mm de ø est placé sur toute la longueur soutenue par une douzaine de barres de fer de 8 mm de ø. Ce grillage est placé à 80 cm de hauteur. La capacité de ce four a été estimée entre 20–25 kg de poissons.
2.1.2 Four chorkor
De coût relativement peu élevé et combinant simplicité et efficacité, le four chorkor s'est avéré dans la pratique plus adapté aux conditions socio-économiques des communautés de pêcheurs artisanaux. Les matériaux nécessaires à sa construction sont souvent disponibles localement. Nous avons décidé de construire le four en briques de terre cuite parce qu'il est plus résistant et se présente esthétiquement mieux avec le crépissage. Les briques sont disponibles localement en grande quantité et sont peu chères (5 FRW la pièce). De plus ce four est thermo résistant et dure plus longtemps s'il est bien entretenu. Il reste bien entendu que ce four peut être construit en argile mais pour cela il nécessite plusieurs jours car l'argile sèche lentement et il faut construire ce four pendant la saison sèche.
N.B. : Pour ces 2 types de four nous avons allié ciment et banco, ce qui nous a fait perdre plusieurs jours pour leur construction.
Mode de construction
nivellement du sol et tracé des murs dessiné sur le sol
une tranchée de 15 cm sera creusé pour les fondations
construction des murs par couche complète en laissant l'argile sécher un jour.
Le four est rectangulaire à peu près 2 fois plus long que large avec 2 ouvertures pour le foyer à l'avant - l'ouverture aura une largeur de 40 cm à la base et de 40 cm de hauteur - Un trou semi oval sera creusé à partir du seuil. Il aura 30 cm de long, 35 cm de large, 15 cm de profondeur, afin d'assurer une distance convenable entre le feu et la couche de poisson disposée sur la première claie. On nivelle le dessus du mur afin de permettre à la première claie de bien se poser sur le mur afin de réduire considérablement les pertes de chaleur à travers les fissures.
Avantages du mur médian
il renforce le four
il empêche la latte médiane de la première claie d'être brûlée
il procure un appui supplémentaire aux claies chargées de poissons
il donne la possibilité de fumer de petites quantités de poissons juste sur un côté en utilisant moins de bois.
Nous avons construit des claies simples et des claies doubles. Chaque claie comprend, deux éléments : le cadre (en bois) et le grillage. Les claies doubles s'adaptent mieux à des situations où il y a des grandes quantités de petits poissons de même espèce.
Les avantages d'une claie simple sont les suivants :
claie légère, facile à manipuler pendant les opérations de fumage
cadre plus résistant, moins long, plus durable.
Les claies superposées forment une cheminée qui utilise le maximum de chaleur et de fumée. Le grillage utilisé pour la fabrication de ces claies a les mêmes caractéristiques que celui utilisé pour le four parpaing rectangulaire. Du bois dur devrait être utilisé pour fabriquer les cadres pour réduire la déformation du cadre sous l'effet de la chaleur. L'existence d'une paire de manches de chaque côté du cadre permet d'avoir des poignées.
1 dollar américain (1 D US) = 79 Francs Rwandais (FRW)
Points clefs
Les claies doivent être mises à l'équerre et s'emboîter parfaitement les unes sur les autres afin de former une vraie cheminée;
les grillages doivent être parfaitement tendus sous les cadres afin de supporter le maximum de charge par claie;
les cadres peuvent durer au moins 3 ans et le grillage 2 si les claies sont parfaitement montées et bien entretenues;
appliquer régulièrement de l'huile végétale sur le grillage;
couvrir afin de protéger du soleil et de la pluie.
2.2 Matières premières
Le Limnothrissa miodon est un petit clupéidé ressemblant l'anchois.
Il perd rapidement ses écailles lors du lavage. Donc il devient assez
vulnérable et demande de prendre des précautions pour son fumage.
De plus il semble unpeu gras. Durant la période des essais de fumage, la pêche
à Kibuye traversait une assez mauvaise période (baisse de production).
Il était difficile de prendre beaucoup de poissons pour permettre des essais
continus. Il a été donc nécessaire d'utiliser du poisson congelé quelquefois pour permettre de faire les essais.
Le poisson est lavé, éviscéré s'il le faut, et mis à égoutter 30 mn.
Les poissons sont ensuite étalés sur les cadres. Ils doivent être disposés
en une couche aussi dense que possible, sans toutefois être trop rapprochés
pour éviter qu'ils ne se collent les uns aux autres et ne se détériorent
pendant le traitement. Il faut laisser subsister quelques espaces libres pour
permettre à l'air chaud et à la fumée d'atteindre facilement les cadres.
Si on utilise la claie pour la première fois, il faudra l'enduire d'huile
végétale.
2.3 Combustible de fumage
Nous avons utilisé essentiellement du bois d'Eucalyptus 1 abondant dans la région. C'est un combustible qui convient parfaitement au fumage.
(Extrait de la revue bois de feu)
Il brûle bien même lorsqu 'il est vert, donne une température élevée et ne produit pas trop de fumée. Toutefois on peut utiliser toute autre sorte de bois non résineux, ni trop vert ni trop humide.
Puis nous avons utilisé des parches de café, combustible semblable à la sciure de bois ou des bourres de coco, que nous avons utilisées après une heure de fumage pour diminuer la consommation énergétique. De plus il est gratuit.
Le combustible est disposé à l'intérieur du foyer à proximité de son ouverture. On introduit simplement du bois sec de taille moyenne et quelques brindilles pour faciliter l'allumage. Si le four a servi de veille, retirer la masse de cendre accumulée pour éviter que sous l'effet du vent, la cendre ne salisse le produit.
La pose des claies sur chaque section du four se fait en mettant au premier rang les grosses pièces puis les moyennes enfin les petites en haut.
2.4 Fonctionnement des fumoirs
Le poisson est d'abord préséché sur un feu de bois à combustion lente puis cuit par élevation de température, fumé pendant deux heures puis séché à une température plus basse une heure. Pour obtenir un fumage plus uniforme il est suggéré de faire fonctionner les fumoirs à pleine charge chaquefois que cela est possible.
La température doit être maintenue à 40–50°C pendant la période initiale de préséchage. Le feu doit être surveillé pour éviter qu'il soit intense pour avoir une déshydratation lente du produit en raffermissant la chair du poisson - durée 1 à 2 heures.
Avant de passer à l'étage suivante c'est-à-dire la période de cuisson-fumage il faut pour le four chorkor :
descendre les claies
laisser refroidir environ 20 minutes
retourner le produit en retournant une claie de poissons dans une claie vide (en frappant le dos du grillage avec la main afin de faire tomber les poissons dans l'autre claie).
Cette opération évite l'adhésion du produit au grillage et de ce fait réduit les casses.
Par la suite, il faut élever la température de 80–100°C pendant les deux heures suivantes. Pour cela recouvrir les dernières claies avec un couvercle en contre plaqué et augmenter l'intensité du feu par apport de combustible. Toutefois l'intensité du feu ne doit pas devenir incontrôlable. Pour le four parpaing 2 tôles de zinc seront suffisantes. A partir de ce stade, une rotation des claies est nécessaire toutes les heures suivie de périodes de 10 mn de refroidissement.
On réduit ensuite la température aux environs de 80°C pour permettre un fumage-séchage. A ce stade nous avons besoin plus de la fumée que du feu. C'est là qu'interviennent la sciure, les parches de café etc… Pour le séchage ultérieur du produit on aura besoin d'un feu doux obtenu en introduisant une grosse bûche qui brûle très lentement.
Pour le chorkor avec la formation de la “cheminée” des claies, la chaleur et la fumée sont recyclés dans le fumoir, ce qui permet d'obtenir un produit fumé de bonne qualité avec peu de combustible.
La durée de l'opération dépend du fumoir, de la taille et la qualité de l'Isambaza, du degré hygrométrique et de la qualité du combustible utilisé y compris de son degré d'humidité.
Pendant l'opération de fumage, il convient de vérifier l'efficacité du traitement à intervalles réguliers ne dépassant pas deux heures. Ce contrôle se fait par observation de l'apparence générale du produit pour décéler l'apparition de la couleur de fumée et voir la texture de la chair au cours du traitement.
Lorsque le traitement de la charge n'est pas uniforme -comme cela se produit le plus souvent - il faut déplacer les claies de la base vers le sommet dans le cas du chorkor. Pour le four parpaing faire un brassage du poisson sur toute la longueur du four.
On estime que l'opération est achevée lorsque la perte en poids atteint le niveau fixé d'avance (environ 25 à 30 % de son poids initial). De plus le poisson fumé est très léger et présente une bonne coloration (jaune brune surtout). Il ne doit surtout pas présenter de brûlure.
Il est absolument indispensable d'ôter les claies du four chorkor ou laisser le feu s'éteindre de lui-même pour le four parpaing pour permettre aux poissons fumés de se refroidir à la température ambiante avant emballage.
Plusieurs essais préliminaires ont été effectués pour obtenir un produit d'une qualité acceptable quant au choix du poisson fumé (frais, traité, séché) et quant à la teneur en sel lors du salage. Nous avons travaillé le plus souvent sur des poissons fraîchement péchés qui sont éviscérés - si nécessaire - plus lavés à grande eau. En période de manque, nous avons travaillé sur le poisson séché et du poisson congelé traité ou non. La décongelation se faisait à température ambiante durant toute une nuit dans un bac en plastique. Décongelés, ils sont lavés et égouttés.
Nous avons seulement utilisé le salage en saumune Le salage à sec allait nous prendre trop de temps. Si on compte l'heure d'arrivée du poisson à la pêcherie, le traitement qui suivait on dépassait largement les 8 heures de travail - ce qui se répercutait sur le salaire journalier des manoeuvres.
L'avantage indeniable du saumurage c'est qu'il permet d'employer un sel relativement impur sans que diminue la teneur en chlorure de sodium dans le produit final. La teneur en sel réglé par le temps d'immersion.
Nous avons chargé les fumoirs le plus souvent à charge moyenne -manque de poisson oblige et vente de frais aussi-Ainsi nous avons testé les fours sur:
la consommation énergétique
la durée de fumage
la qualité du produit fini
L'Exposition Nationale Commerciale de Gisenyi (2–9 août) nous a permis de tester les fours à leur pleine copacité. C'est ainsi que pour le chorkor nous sommes arrivés à 84 kg et pour le parpaing rectangulaire à 20–25 kg. Les claies du chorkor prennent un maximum de 10 kg d'Isambaza par claie simple. Au delà de cette charge les poissons s'entassent en une masse compacte empêchant ainsi un préséchage correct et uniforme.
Les résultats décrits dans les tableaux I, II ne nous donnent pas un aperçu correct de la consommation de bois puisque nous avons travaillé le plus souvent à charge moyenne. Par contre, sur le plan efficacité, consommation énergétique et qualité du produit nous pouvons dire que le four chorkor est plus avantageux et que son maniement a été le plus vite compris par les nationaux.
en moyenne 0,96 kg de combustible par kg de poisson frais fumé pour le four parpaing
en moyenne 0,70 kg de combustible par kg de poisson frais fumé pour le four chorkor.
La réduction du bois utilisé signifie inévitablement la réduction du coût de l'opération. Dans les données économiques, la marge réalisée dépendra des coûts de production et notamment du prix du bois dans le cas du fumage.
Il faut noter que pour une petite quantité de poisson aucun avantage économique intéressant n'est noté pour les deux types de four.
Le suivi du poisson fumé lors de nos essais nous a permis de tirer
les conclusions ci-après :
la durée de conservation du poisson fumé dans les conditions naturelles
dépend de sa teneur en eau initiale et de l'humidité relative de l'air pendant
l'entreposage. Dans les conditions de la zone tropicale humide, la durée
d'entreposage peut varier de quelques jours à plus d'un mois. L'un des principaux
facteurs limitatifs de cette durée d'entreposage est la croissance des moisissures
provoquée par la forte teneur en eau du produit (au bout de 7 jours pour les
produits non salés). La salaison retarde longtemps ces moisissures.
Nous n'avons pas remarqué sur les produits salés la moindre altération.
Il est à noter que le poisson fumé doit être entreposé dans un endroit aéré, ombragé afin de limiter toute formation éventuelle de rosée à sa surface pendant la nuit. Le poisson doit être rangé sur des étagères et soumis régulièrement à un reséchage ou refumage en fonction du climat local. Il convient d'éviter toute manutention superflue pendant la période d'entreposage afin d'éviter que les produits ne se brisent.
Il est plus avantageux :
d'utiliser comme bois de chauffe des morceaux de bois d'une certaine grosseur (5 cm de diamètre). Ces bois à demi sec peuvent se consumer lentement en laissant assez de braises et en produisant assez de fumée surtout pendant la deuxième phase de l'opération. ces observations restent aussi les mêmes pour les parches de café ou la sciure de bois;
tout refumage une fois devenu nécessaire a besoin d'être précédé d'une rotation des claies;
le feu doit être au centre des compartiments des fours pour permettre à tous les produits de bénéficier de la même intensité de chaleur afin d'obtenir un produit de bonne qualité;
le nombre de claies à superposer par compartiment doit rester dans la limite de 8 afin de permettre un contrôle aisé du travail.
Le Limnothrissa se comporte comme les anchois et se prête très bien au fumage. Les essais nous ont permis de déterminer le temps maximum de préséchage (1h) et de fumage (4h) pour obtenir un produit de qualité. A la deuxième phase après 1h on peut coupler cuisson et fumage donc, introduire les parches après pour avoir une réduction de combustible. Le fumage peut être complété par un séchage au soleil sur des claies. Les essais ont donné des résultats satisfaisants, tant au point de vue de la conservation et de l'aspect des poissons que la consommation de bois. Les tests de dégustation ont montré que la majorité des personnes pressenties préféraient l'entier salé. Les tests sur le salage donnent une préférence pour le saumurage à 6% pour l'entier et 5 % pour le traité.
Tous ces tests nous ont permis de nous rendre compte de l'accepatabilité des produits. Le test majeur s'est présenté à l'Exposition Nationale Commerciale de Gisenyi où les produits fumés ont eu un vif succès surtout les poissons entiers.
Par contre nous n'avons rien vu de notable sur le poisson séché sinon que l'aromatisation du produit se faisait difficilement, la qualité du produit fini laissait à désirer (surtout la coloration) pour un temps de fumage très réduit (2h - 2h 30). De plus le produit était trop sec selon l'avis général. Pour contourner ce problème nous avons travaillé sur des poissons ayant un jour de séchage pour arriver à un produit assez acceptable, les poissons de 2 à 3 jours de séchage avaient déjà subi une décomposition avancée.
Le poisson fumé assez peu salé (6–8 % en sel dans le produit final) est accepté. Il semble que les produits fortement salés soient peu appréciés, mais ils sont mal connus de la population locale qui n'a pas compris que le poisson devrait être trempé dans l'eau avant d'être cuisiné. Si l'approvisionnement en sel était suffisant et bon marché son emploi pourrait probablement avoir des effets positifs sur la transformation.
Ce qui semblait être au début comme une alternative au séchage, devient une possibilité fructeuse pour le projet. Les Rwandais en sont friands et ne demandent qu'à mieux connaître le produit pour mieux l'apprécier. Les en priver serait dommage et pour le projet et pour les Rwandais. D'un autre côté le fumage à grande échelle pourrait aggraver la pénurie déjà existante du bois. Il s'agirait de contrôler le fumage tout en veillant au reboisement.
L'emballage est un des principaux moyens de réduire les pertes de produits alimentaires pendant la manutention, le stockage et la distribution. Il doit protéger le produit alimentaire contre les divers risques pendant la distribution et de plus, donner des indications sur le produit, sa destination ou sa source. Ces conditions réunies, le coût unitaire total du système de distribution doit, en principe être réduit. Au projet pêche divers emballages sont employés:
des sachets en plastique de 0,04mm (1kg ou 500g) pour les congelés
des sachets en plastique de 0,02mm (500g) pour les séchés
des sacs en nylon pour stocker les séchés.
Il est possible que l'adoption de bonnes méthodes d'emballages améliorée contribue à réduire les pertes de poisson traité. Cependant des difficultés demeurent pour leur adoption immédiate. Des essais de mise au point d'emballage devraient être poursuivis. Il est peu probable qu'un modèle unique d'emballage convienne à tous les systèmes de production et de distribution du poisson.
La première difficulté vient de la nature physique du poisson traité. Qu'ils soient transformés entiers ou en morceaux, tous les types de poisson sont de formes irrégulière : aussi est-ilmalaisé de les grouper dans un emballage bien net et de volume économique. Les morceaux de poisson présentent souvent des saillies aiguës qui trouent l'emballage. En outre, le poisson est cassant et en essayant de le comprimer dans un emballage de forme régulière on risque de l'endommager. Ce poisson fumé par conséquent cuit est particulière ment enclin à se briser.
Quand l'hygrométrie atmosphérique dépassé 60 %, le poisson séché ou fumé tend à s'humidifier et par conséquent à s'altérer. Il serait donc logique d'utiliser des emballages étanches à l'eau et à la vapeur pour prévenir ce phénomène.
Plusieurs autres difficultés s'opposent à des recommandations à un type d'emballage. Ainsi il faut garantir la fourniture d'emballages au fabriquant, veiller à ce que le prix en soit acceptable par rapport à celui du poisson.
Utiliser les sacs en nylon pour un produit aussi fragile que le poisson fumé risque de l'abimer car il devient cassant lors du remplissage et de la compression, ainsi que lors du transport. On pourrait envisager des paniers tapissés à l'intérieur de papier ou de feuille de banane préalablement passée à la flamme qui protégent ainsi le poisson fumé de la poussière. Eviter de remplir complétement le panier afin d'éviter les casses et refermer le panier avec les restes débordant de la feuille. Mais afin d'associer protection mécanique et résistance à l'humidité on pourrait proposer des caisses en carton compact en obstruant toutes les ouvertures avec de la bande adhésive. Cependant un sac de coton épais, tissé serré, bien cousu et fermé est efficace, surtout là où on ne peut employer d'isolant à l'eau et à la vapeur.
En l'absence de solution vraiment sûre à tous les problèmes techniques posés par l'emballage du poisson traité, toute tentative pour améliorer les pratiques actuelles devrait être faite avec précaution. Des modifications simples aux emballages existants, à l'aide de matériaux locaux (cf produits faits avec les feuilles de bananier) permettraient de résoudre le problème des pertes en n'oubliant pas de desinfecter avant la réutilisation, tout emballage ayant servi plus d'une fois.
Quant au poisson congelé le problème qui se posait le plus souvent c'était l'éclatement des sachets. Nous avons suggéré de prendre des sachets plastiques de plus forte épaisseur (de 0,07 à 0,10 mm) et de dimensions supérieures pour supporter les problèmes de dilatation. En plus pour les poissons fumés un conditionnement en sachets plastiques de 100, 250 g, a été recommandé pour une distribution dans les super marchés.
Tous ces sachets en plastique seraient fermés par une machine simple facile à acquérir et qui a l'avantage, de presque fermer à vide. Autre recommandation, tous les emballages contenant les produits porteraient, désormais le logo du projet avec des variantes en couleur pour les divers produits. Une étude dans ce sens a été posée à la seule usine de plastique du Rwanda “LA MIROPLAST”.
Nous avons remarqué au Rwanda des ressources naturelles considérables et des handicaps matériels et humains difficilement surmontables.
Qu'au niveau de la pêche, les différences d'exploitation tiennent, entre autres aux facteurs suivants:
environnement naturel : difficultés d'évacuation du poisson et éloignement des zones de consommation
insuffisance d'infrastructures routières et de stockage
problème d'approvisionnement en engins de pêche
raisons sociales : faible attirance d'une majeure partie de la population envers le poisson.
L'exploitation des pélagiques pose le problème de leurs fluctuations. L'abondance de certains pélagiques est très fortement dépendante des conditions d'environnement. (cf effondrement stocks d'anchois au Pérou et sardinelles dans le Golfe de Guinée). Un stock peut être surexploité alors même qu'il n'est produit que le tiers de son potentiel. Cela signifie que l'effort de pêche est trop important et que le contrôle de l'effort est susceptible de restituer à terme la majeure partie de cette rente ainsi dilapidée.
Il est généralement convenu que le transfert de technologie est un élément central du développement. Mais il est absolument indispensable de tenir compte de l'environnement pour toute réussite de transferts technologiques. Les choix technologiques doivent découler des contextes dans lesquels ils sont effectués. Les pêches artisanales montrent une grande capacité d'absorber des innovations dès lors que leur intérêt économique est démontré. Les ressources n'étant pas extensibles, les projets d'amélioration de la valorisation des produits doivent prendre le pas sur les projets d'accroissement de la production.
En matière de transformation artisanale, les contraintes technologiques ne pèsent pas au stade de la production. Les contraintes principales nous semblent les suivantes:
préservation contre les insectes
conditionnement des produits
stockage.
Quant au fumage les contraintes sont : la rareté des bois de chauffe, les conditions de travail, difficiles (fumée, chaleur), pollution de l'air par la fumée (ce qui est d'habitude générale pour le fumage traditionnel).
Le manque de glace pour un stockage temporaire des grandes prises qui dépassent les capacités de fumage. Une autre contrainte qui n'est pas directement liée aux activités de fumage est le délai avant la vente des produits. Le produit doit être stocké, ce qui cause des pertes, réduit la quantité à fumer, entraîne des pertes d'argent. La cause fondamentale de ces retards est généralement le manque de bonnes routes.
La technique traditionnelle de fumage a deux inconvénients :
son réglage en vue d'obtenir un produit de qualité uniforme est difficile. Il n'est pas toujours possible de conserver au produit sa qualité pendant une période suffisamment longue pour en assurer la distribution au moyen des circuits commerciaux existants ;
la capacité du four est limitée puisqu'elle est inférieure à 100 kg par jour.
La formation des nationaux a commencé avec Mr. Hilaire BUGABO qui devait prendre ma relève pour assurer la continuité de l'opération fumage au niveau du projet. Il m'a admirablement secondé tout au long du déroulement des essais et m'a été d'un secours lors de la formation d'autres nationaux tels que les filles travaillant à mi-temps au projet et les 3 chefs de Centre du projet (Gisenyi- Kibuye - Cyangugu).
Toutes ces personnes ont suivi d'une oreille attentive toutes mes explications et ont montré un grand intérêt et un grand désir de bien faire - intérêt accentué dans le maniement des fours surtout du four chorkor dès que la réussite du fumage de l'Isambaza a été établie. Elles m'ont aidé, par des critiques et des suggestions, à faire les correctifs nécessaires. Malheureusement au bout de 45 jours, Mr. Hilaire BUGABO devait nous quitter pour réjoindre son poste dans l'administration rwandaise. Son départ cause un grand vide qu'il ne sera pas facile de combler d'autant plus qu'un technologue de poisson fait défaut au projet pêche. La formation des trois chefs de Centre est - à mon avis - trop insuffisante (5 jours). Il serait dommage, vu l'énorme intérêt et les potentialités qu'il suscite, de laisser le fumage à l'état d'essais.
TABLEAU I : RESULTATS MOYENS SUR LE FOUR CHORKOR
| Nature du poisson | Nombre de claies | Préparation | Durée de préparation | Durée de fumage | Poids de poisson (kg) | Perte de poids de poisson (kg) | Poids final poids initial | Poids combustible (kg) | kg bois/kg poisson à fumer | |||
| après égouttage | produit final | Bois | parches de café | Total | ||||||||
| Entiers | 3 | lavage et égouttage | 1h 15 | 4h | 16 | 5,2 | 10,8 | 32 | 10 | 1,2 | 11,2 | 0,7 |
| Entiers | 8 | lavage saumurage 8% 40 mn égouttage | 2h | 6h | 62 | 19,3 | 42,7 | 31 | 42,2 | 5 | 47,2 | 0,76 |
| Entiers (juvéniles) | 2 | lavage égouttage | 1h | 3h 15 | 10 | 2,8 | 7,2 | 28 | 7 | 0,6 | 7,6 | 0,76 |
| Traités | 2 | lavage étêtage, éviscération, égouttage | 2h | 3h 45 | 10 | 3 | 7 | 30 | 7,2 | 0,7 | 7,9 | 0,79 |
| Traités congelés | 12 | lavage saumurage 6% pendant 40 mn | 2h 10 | 7h | 100 | 31,8 | 68,2 | 32 | 50,2 | 13 | 63,2 | 0,63 |
Observation : le prix du bois est de 1,55 FRW (1 stère de bois de ± 450 kg coûte 700 FRW)
TABLEAU II RESULTATS MOYENS SUR LE FOUR PARPAING RECTANGULAIRE
| Nature du poisson | Nombre de claies | Préparation | Durée de préparation | Durée de fumage | Poids de poisson (kg) | Perte de poids de poisson (kg) | Poids final poids initial | Poids combustible (kg) | kg bois/kg poisson à fumer | |||
| après égouttage | produit final | Bois | parches de café | Total | ||||||||
| Entiers | lavage égouttage | 1h 10 | 4h | 15 | 4 | 11 | 26 | 12,65 | 1,4 | 14,05 | 0,93 | |
| Entiers | lavage saumurage 8% 40 mn égouttage | 1h 56 | 4h 50 | 30 | 9,2 | 20,8 | 30 | 25,3 | 3,8 | 29,1 | 0,97 | |
| Entiers (juvéniles | lavage égouttage | 1h | 3h | 10 | 2,6 | 7,4 | 26 | 7,2 | 2,3 | 9,5 | 0,95 | |
| Traités | lavage, ététatge, évisération, égouttage | 2h 05 | 4h | 10 | 2,9 | 7,1 | 29 | 9,4 | 0,8 | 10,2 | 1,02 | |
| Traités congelés | lavage saumurage 6% pendant 40 min égouttage | 1h 50 | 4h | 21 | 6,1 | 14,9 | 30 | 17,6 | 2 | 19,6 | 0,93 | |
Observation : le préséchage se faisant mal quand le poisson était sur 2 couches, on arrivait à perdre
10 % du produit par calcination quand la surveillance du feu taisait défaut.

Figure 1 : Four chorkor avec claies doubles

Figure 2 : Claie simple de four chorkor

Figure 3 : Une section de four parpaing rectangulaire avec une vue de dessus

Figure 4 : Production d'Isambaza du mois de juillet 1988 au Centre de Kibuye.

Figure 5 : Quantité d'Isambaza (poids frais) du mois de juillet 1988 réservée au séchage dans le Centre de Kibuye.
Centre de Kibuye

Figure 6: Quantité d'Isambaza du mois de juillet 1988 réservée à la congelation au Centre de Kibuye.
| FOUR CHORKOR | ||
| Fondation | 10–15 | |
| Hauteur | 65 | |
| Longueur totale | 230 | |
| Epaisseur des murs | 15 | |
| Longueur intérieure | 207 | |
| Largeur totale | 115 | |
| Largeur intérieure | 94 | |
| Largeur et hauteur des foyers (2) | 35 | |
| Claies | ||
| Longueur (y compris poignées) | 240 | |
| Longueur utilisable | 220 | |
| Hauteur de côte | 5,5 | |
| Hauteur (épaisseur) des sous lattes | 1,5 | |
| Maillage du grillage | 0,65 x 0,65 | |
| Largeur rouleau du grillage | 100 | |
| Surface de recouvrement (en contreplaqué) | 110 x 104 | (2 couvercles) |
* Creux de feu ovale de profondeur 15 de longueur 35 largeur 30
FOUR PARPAING RECTANGULAIRE STYLE “BANDA” amélioré
| Fondation | 10–15 | |
| Hauteur | 95 | |
| Hauteur mur de séparation | 65 | |
| Hauteur du grillage | 80 | |
| Largeur et hauteur des foyers (2) | 40 | |
| Longueur totale | 200 | |
| Largeur totale | 100 | |
| Longueur intérieure | 180 | |
| Largeur intérieure | 90 |
Dimensions des briques en terre cuite
| Longueur | 20 |
| Largeur | 10 |
| Hauteur | 5 |
CONSTRUCTION DES FUMOIRS (matériel et coûts)
FOUR CHORKOR
| Matériel | briques de terre cuite | four |
| banco | ||
| ciment | ||
| sable | ||
| grillage 6,5 mm × 6,5 mm | claies | |
| clous de 7 cm | ||
| clous de 4 cm | ||
| planches de bois rouge | ||
| feuilles de contreplaque 3mm | ||
| colle |
FOUR PARPAING RECTANGULAIRE STYLE “BANDA” amélioré
| + matériel | briques de terre cuite |
| ciment | |
| banco | |
| sable | |
| grillage 6,5 mm × 6,5 mm | |
| toles de zinc | |
| fer à beton de Æ 8 mm |
| + Four chorkor | 298 briques de terre cuite | × | 5FRW = | 1.490 | FRW |
| 1+ ¼ sac de ciment | × | 1.250 = | 1.562 | FRW | |
| 28,40 m de grillage | × | 250 = | 7.100 | FRW | |
| 1 tonneau de sable | × | 170 = | 170 | FRW | |
| 2 kg de clous de 7 cm | × | 120 = | 240 | FRW | |
| 3 kg de clous de 4 cm | × | 100 = | 300 | FRW | |
| 6 planches de bois rouge de 4m | × | 1.000 = | 6.000 | FRW | |
| 3 feuilles de contreplaque 3 m/m | × | 960 = | 2.880 | FRW | |
| 1 litre de colle | × | 500 = | 500 | FRW | |
| ménuisier 3 jours et ½ | × | 400 = | 1.400 | FRW | |
| maçon 7 jours | × | 400 = | 2.800 | FRW | |
| aide maçon 7 jours | × | 150 = | 1.050 | FRW | |
| TOTAL 25.492 FRW | |||||
| + Four parpaing rectangulaire | 328 briques de terre cuite | × | 5FRW = | 1.640 | FRW |
| 1+¾ sac de ciment | × | 1.250 = | 2.187 | FRW | |
| grillage 3 m 60 | × | 250 = | 900 | FRW | |
| 1 tonneau de sable | × | 170 = | 170 | FRW | |
| 2 tôles de zinc | × | 438 = | 876 | FRW | |
| 12 m de fer de Æ 8 mm | × | 33 = | 396 | FRW | |
| maçon 8 jours | × | 400 = | 3.200 | FRW | |
| Aide maçon 8 jours | × | 150 = | 1.200 | FRW | |
| TOTAL 10.596 FRW | |||||
HUISINGA, C. Promotion et vulgarisation nutritionnelle de Limnothrissa miodon.
Gisenyi, Projet RWA/87/012, 51 p.
RWA/87/012/DOC/TR/01.
SIBONA, F., Aspects socio-économiques au niveau de la production et de la
commercialisation du L. miodon au lac Kivu (Rwanda).
Gisenyi, Projet RWA/87/012, 45 p.
RWA/87/012/DOC/TR/02.
REUSENS, M., Programme de recherche halieutique au lac Kivu en particulier
sur le L. miodon.
Gisenyi, Projet RWA/87/012, 115 p.
RWA/87/012/DOC/TR/03.
HANEK, G., (red), Rapports des voyages nos 01–15 du projet PNUD/FAO-RWA/87/012,
Gisenyi, Projet RWA/87/012, 141 p.
RWA/87/012/DOC/TR/04.
TIETZE, U., Système de crédit bancaire pour les pêcheurs au lac Kivu auprès
des Banques Populaires du Rwanda.
Gisenyi, Projet RWA/87/012, 30 p.
RWA/87/012/DOC/TR/05.
HANEK, G., BAZIRAMWABO, T., REUSENS, M., BRU, H. et DIQUELOU, J.,
La pêche d'Isambaza (L. miodon) au lac Kivu.
Gisenyi, Projet RWA/87/012, 91 p.
RWA/87/012/DOC/TR/06.
HANEK, G., (red), Rapports des voyages nos 16–30 du projet PNUD/FAO-RWA/87/012,
Gisenyi, Projet RWA/87/012, 116 p.
RWA/87/012/DOC/TR/07.