(extrait de H. Goldbach, 1979)
Détails de construction de la nouvelle unité d'entreposage et de séchage
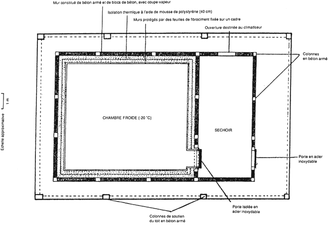
Construction
Etant donné que les fonds disponibles ne permettaient pas d'acheter un bâtiment préfabriqué satisfaisant aux exigences du programme, il a été décidé que le bâtiment principal serait construit directement sur place.
L'unité d'entreposage et de séchage (voir figures A 3.1 à A 3.5) comprend les parties suivantes:
Des fondations s'élevant de 50 cm (au moins) au-dessus du sol. Des tubes en PVC de 2 pouces de diamètre, enfouis dans du gravier grossier compacté sous la chambre froide à des intervalles de 50 cm environ, assurent le drainage et la ventilation sous plancher.
Un toit séparé, constitué de feuilles de fibrociment (Ricalit (R)) posées sur une armature en acier et installé sur des colonnes en béton armé de 30 × 30 cm. Tous les côtés sont laissés ouverts, afin d'assurer une bonne circulation d'air et d'éviter toute accumulation de chaleur sous le toit.
Un séchoir (de dimensions intérieures d'environ 7 × 3 × 3 m) constituant une sorte d'antichambre de la chambre froide.
Une chambre froide (de dimensions intérieures, isolant inclus, d'environ 6 × 7 × 2,5 m).
La structure d'assemblage comprend:
Un plancher en béton armé coulé sur du gravier grossier bien compacté.
Des murs formés de colonnes en béton armé espacées d'environ 3 m et de blocs de béton de grande résistance. Pour que le bâtiment résiste mieux aux tremblements de terre, l'ouvrage en blocs est renforcé par un treillis de tiges de fer de 0,5 pouce de diamètre, noyées dans le ciment entre chaque deuxième assise de blocs et à intervalles verticaux de 80 cm.
Un plafond en béton armé de 20 cm d'épaisseur, suspendu à des poutres (20 × 30 cm avec tiges de fer de 3/4 de pouce) allant d'une colonne à l'autre. L'armature entre les poutres consiste en tiges de 0,5 pouce entrecroisées à 20 cm d'intervalle.
Le plafond est coulé directement sur le matériau isolant maintenu en place par des supports temporaires.
On grade le béton humide de manière à permettre une prise lente, ce qui accroît sa résistance. On termine en appliquant un mortier de ciment sur les deux côtés des murs.
Isolation
Coupe-vapeur: il consiste en une feuille d'aluminium enduite d'un mélange de papier et de fibre de verre placée entre deux couches épaisses d'asphalte. Les feuilles doivent se chevaucher d'au moins 10 cm. Les coupe-vapeur du plancher et du plafond doivent déborder d'au moins 50 cm sur les murs afin d'assurer une herméticité parfaite. L'asphalte assure un raccord élastique et étanche à la vapeur entre les feuilles, ce qui évite tout endommagement du coupe-vapeur par suite de la dilatation et de la contraction thermique des murs.
Dans le séchoir, le coupe-vapeur des murs et du plafond est protégé par des feuilles de fibrociment montées sur armature en bois.
Le plancher intérieur est en béton armé “flottant” sur le coupe-vapeur.
Isolation thermique: on utilise de la mousse de polystyrène ordinaire pour isoler les murs et le plafond de la chambre froide et du polystyrène haute densité pour isoler le plancher. Pour les murs et le plafond, on emploie des feuilles de 40 cm d'épaisseur (1,2 × 2,4 m) coupées de manière à ménager un chevauchement d'au moins 20 cm sur tous les côtés. Les feuilles sont maintenues en place par des fils métalliques fixés aux murs et aussi par un treillis en bois placé à l'intérieur. En ce qui concerne l'isolation du plafond, des tiges de fer recourbées sont enfoncées dans le Styrofoam (épais d'au moins 40 cm) et accrochées à l'armature du plafond. Quant au plancher, il est isolé par deux couches de Styrofoam haute densité épaisses de 20 cm, avec un chevauchement de 20 cm.
Tous les joints sont scellés avec de l'asphalte; les quelques intervalles plus larges sont remplis de polyuréthane mis en place sous forme de mousse.
L'isolant des murs est protégé par des feuilles de fibrociment fixées à l'armature en bois intérieure, et le plafond reçoit une couche supplémentaire de Styrofoam ornemental.
Le plancher est constitué d'une dalle de béton armé de 10 cm d'épaisseur au fini lisse, suffisamment résistante pour supporter la charge prévue. L'isolation est suffisante pour maintenir les températures sous le point de congélation pendant au moins une semaine en cas de panne du dispositif de refroidissement, à condition que la porte reste fermée.
Dispositifs de refroidissement et de séchage
Refroidissement: On utilise des compresseurs de type semi-hermétique. Un compresseur de 5 Hp et un évaporateur de 16 800 BTU/h suffisent à refroidir la chambre et maintenir la température à -20 °C. On emploie du fréon (R12) comme réfrigérant.
Un second dispositif identique sert de dispositif de secours.
Le dispositif principal est commandé par un thermostat réglé à -20 °C (± 1 °C). Quant au dispositif de secours, il est commandé par un thermostat réglé à -17 °C (± 1 °C), de sorte qu'il se déclenche automatiquement dès que la température atteint -16 °C. C'est là la façon la plus simple et la plus sûre de faire intervenir le dispositif de secours. Un panneau de commande muni de lampes témoins indique si le dispositif de secours fonctionne ou non. On inverse une fois par mois les fonctions des deux appareils, de sorte qu'ils s'usent également. Un signal d'alarme, commandé par un troisième thermostat, se déclenche à -15 °C.
Séchage: Un dessicateur à gel de silice, qui maintient une humidité relative de moins de 15 pour cent à +25 °C, est installé à l'extérieur du bâtiment et relié par conduits à l'antichambre. Cet appareil est commandé par un humidistat électronique réglé à 20 pour cent d'humidité relative.
La répartition uniforme de l'humidité dans le séchoir est assurée par l'installation à distance de l'entrée d'air du dessicateur.
Pour compenser le réchauffement dû au fonctionnement du dessicateur, on a prévu l'installation d'un climatiseur de type domestique (9 000 BTU/h). L'intervalle entre le mur et le climatiseur est rempli d'un agent de remplissage élastique et l'appareil est légèrement modifié pour empêcher l'entrée d'air humide.
Une génératrice d'électricité de 30 kW alimente l'ensemble du système (ainsi que le local d'entreposage à court terme et le laboratoire) en cas de panne de secteur. Elle est mise en marche automatiquement en cas de panne de courant ou si la tension varie de plus de 10 pour cent.
Installations annexes
Local d'entreposage à court terme (utilisé en commun avec la Banque de semences forestières d'Amérique latine)
A Turrialba, les semences provenant de récentes campagnes de récolte ou obtenues par introduction, qui représentent normalement des quantités très restreintes, sont conservées dans ce qu'on appelle le local d'entreposage à court terme. Dans ce local, la température est maintenue à +5 °C et l'humidité relative, à environ 30 pour cent. Les semences sont placées dans des sacs en papier et, dans ces conditions, peuvent rester viables pendant 5 à 10 ans.
Le local (dimensions internes: 4,5 × 5,5 × 2,2 m) est construit comme la salle d'entreposage à long terme, à ceci près qu'il bénéficie d'une isolation moindre. Le dispositif de refroidissement comprend un compresseur semi-hermétique de 3 Hp, un évaporateur de 10 400 BTU/h et un compresseur de secours. Un dessicateur au gel de silice maintient une faible humidité relative.
Laboratoire
Une salle réservée à la préparation des semences et un laboratoire où peuvent s'effectuer les essais de semences courants (germination, viabilité, teneur en eau) ainsi que les travaux expérimentaux sur l'entreposage et la germination jouxtent les locaux d'entreposage. L'équipement du laboratoire comprend divers incubateurs, quatre cuves de Copenhague, un petit germoir, une table à thermogradient deux voies, une étuve de séchage à circulation d'air, une balance de précision et d'autres appareils. Un germoir de plain-pied est en service depuis la deuxième moitié de 1979.

A 3.1 Plan d'une unité d'entreposage à long terme du CATIE; vue de face.

* Les coupe-vapeur du plancher et du plafond ne sont pas illustrés; le coupe-vapeur est appliqué sur le côté chaud de l'isolation thermique.
A 3.2 Plan d'une unité d'entreposage à long terme du CATIE; vue latérale, toit omis.

A 3.3 Plan d'une unité d'entreposage à long terme du CATIE
(coupe-vapeur appliqué sur tous les côtés des deux salles non illustré).

* Le coupe-vapeur est constitué d'une feuille d'aluminium entre deux couches d'asphalte
A 3.4 Mur et plancher (détails hors échelle).

A 3.5 Mur et plafond (détails).