El diseño del muestreo de campo está dado en detalle en el manual de campo, el cual se encuentra en el anexo. Aquí se presenta un bosquejo general. La figura 2 muestra la ubicación de las unidades de muestreo.
A partir de la rejilla de puntos de las fotos aéreas un sub-grupo fue seleccionado para realizar el muestreo de campo. Se tomó una muestra de campo por 2 x 3 muestras de las fotos aéreas, de manera que dado los 15 Km. de la rejilla cuadrada de las parcelas de las fotos aéreas, se obtuvo una rejilla de 30km x 45km como resultado para el muestreo de campo. Como consecuencia, de los 235 puntos de rejilla de 15 Km., 40 de estos puntos fueron sistemáticamente muestreados en el trabajo de campo. 26 de éstos estaban cubiertos por fotografías aéreas, para los restantes 14, no hubo disponibilidad de fotos aéreas para la preparación del trabajo de campo. Para las 26 fotos que cubrieron las parcelas, el punto nadir de las fotos aéreas fue seleccionado como el punto central del conglomerado angular de campo (de acuerdo con el proceso de selección descrito en el"Informe GFS II") para las restantes 14, las coordenadas fueron tomadas de la rejilla de puntos de 15 Km.

Figura 2: Mapa de Costa Rica mostrando la ubicación y numeración de los sitios de muestreo. Los polígonos en color gris indican Parques Nacionales y otras categorías de áreas protegidas
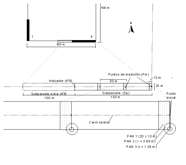
La unidad de referencia en campo fue de 1km cuadrado por lado (la cual debe ser llamada unidad de muestreo primaria si uno quiere usar la terminología de muestreo en dos fases). Esta unidad fue muestreada (en realidad, sub-muestreada) por un conglomerado de sub parcelas en el centro de esta unidad (donde las sub-parcelas serán las unidades de muestreo secundario usando la terminología de muestreo en dos fases). En un conglomerado cuadrado de 500 m de largo, que incluyó cuatro sub-parcelas rectangulares, se tomaron las medidas de los árboles presentes. Se utilizaron parcelas "anidadas" dentro de las sub-parcelas para la observación de árboles pequeños y regeneración. El diseño de la parcela está gráficamente descrito en la Figura 3 y Figura 4; y en el Cuadro 8. En el inventario de campo, se recolectaron cuatro niveles de información:
Unidad de muestreo / unidad de referencia (1 km2)
Parcela o conglomerado, que incluye 4 sub-parcelas
Unidad de uso de la tierra dentro de sub-parcelas
Árboles, ya sea medidas individuales a lo largo de las dos parcelas mayores, o medidas de densidad (conteo) en las parcelas de regeneración.

Figura 3. Diseño de parcela: posición interna de la parcela (4 sub-parcelas) en 1km de unidad de referencia.
Cuadro 8: Tamaños de los diferentes niveles de sub-parcelas
Nivel |
Tamaño de planta |
Forma y tamaño de la parcela |
Todas las sub-parcelas |
dap_30cm |
Rectangular: 150-250x20m (3000-5000m2) |
Parcelas nido nivel 1 |
dap _10_30 cm. |
Rectangular 20x10m (400m2) |
Parcelas nido nivel 2 |
h_1.3m y dap _10 cm. |
Circular r=3.99m (50m2) |
Parcelas nido nivel 3 |
0.3m < h < 1.3m |
Circular r=1.26m (5m2) |
Fuera del bosque no se instalaron parcelas anidadas, debido a que se esperaba una relativa baja densidad de árboles de dimensiones menores; todos los árboles con dap > 10cm fueron medidos y registrados en la parcela completa.

Figura 4. Diseño de la parcela: Parcela o conglomerado con 4 sub-parcelas, en donde cada sub-parcelas tiene tres niveles de parcelas "anidadas" para la observación de árboles de pequeñas dimensiones. (PAN = parcelas anidadas).
Algunas parcelas fueron establecidas como permanentes de manera que puedan ser fácilmente re-localizadas en el futuro; por lo tanto, como parte del diseño de parcelas se consideró instalar marcadores permanentes (tubos de aluminio), realizar buenos bosquejos de mapas, mostrando de forma muy visible los puntos de referencia, y tomar - donde fuera posible-, una serie de mediciones con GPS. En sitios donde existen fotografías aéreas fue posible realizar impresiones de las parcelas, lo cual será una ayuda importante para la re-localización de puntos.
La lista de variables se encuentra en el Anexo 1. Todas las variables listadas fueron medidas y el análisis hecho para este informe se concentró principalmente en las variables dasométricas.
Preparación del trabajo de campo y las actividades relacionadas Un total de 40 muestras fueron localizadas y seleccionadas como parte del trabajo de campo.
34 parcelas fueron visitadas y medidas completamente;
Por problemas de acceso a la parcela 43, ésta no fue visitada, pero se planeó sustituirla por la parcela 40, no obstante, esta también presentó serios problemas, solo una parcela circular fue posible establecer debido a las condiciones topográficas y un accidente (menor) en el campo, que no permitió cuadrilla de trabajo completarla;
Otras tres parcelas no fueron completadas por problemas de acceso: la pacerla 76, solo dos sub-parcelas fueron medidas, la pacerla 78 solo tres, y la pacerla 80 solo una;
Para la pacerla 126 una subparcela no pudo ser visitada, ni medida debido a que el propietario denegó el acceso a la misma.
A continuación se describe la organización del trabajo de campo:
Compilación de toda información necesaria:
Actividades en las que los líderes de cuadrillas de campo fueron responsables:
Realizar las mediciones en las sub-parcelas.
Anotar los detalles que no quedaron claros para luego consultarlos con el equipo de CATIE vía telefónica.
Tomar fotografías de campo de aspectos relevantes. Registraron la localización exacta de cada fotografía.
Entrevistas con los propietarios de tierra.
Organización de la información recolectada, ingreso de datos a la base de datos preparada por CATIE y la elaboración del informe y documentación de los datos y las experiencias de las parcelas muestreadas.
Actividades de supervisión y verificación
Actividades relacionadas con el manejo de los datos:
Actividades de entrenamiento y construcción de formación:
Observaciones
Los resultados del análisis de la investigación de campo están presentados del Cuadro 9 al Cuadro 22, donde el área basal está siempre dada en m2/ha y el volumen en m3/ha.
Todos los resultados deben ser interpretados manteniendo en mente la relativa baja intensidad de muestreo. Sin embargo, existe validez estadística. Todos los resultados presentados se refieren a un área de referencia total (la cual es Costa Rica). Mayores subdivisiones geográficas \ reducen precisión, puesto que menos muestras se situarán en estas sub-regiones. Para las variables dasométricas, se presentan las estimaciones del error estándar relativo. Para el cálculo de este error estándar, fue empleado el estimador de muestreo aleatorio. Este es estándar ya que para el muestreo sistemático al azar no existe un diseño basado en estimaciones de varianza insesgada. Se sabe, sin embargo, que la aplicación de estimadores de muestreo aleatorio lleva a una precisión de estimaciones conservadoras; esto significa que probablemente seamos mucho más precisos que los valores dados en los cuadros. Ahora, cuanto mejor, no puede ser determinado.
El análisis está enfocado en variables forestales claves como área basal, volumen y densidad de los árboles. Para el volumen se utilizó la formula de Lojan, la cual es aplicada en Costa Rica para estimar volúmenes de troza comercial. Esta fue calculada para todos los árboles con dap>30cm:
log Vol =2.03986 log dap+ 0.779 log h - 4.07682
Dada la relevancia de las estimaciones de biomasa y carbono bajo el contexto de UNFCCC, se calculó una estimación de almacenamiento de carbono. Utilizamos una formula de biomasa inédita correspondiente a una reciente investigación efectuada en CATIE, esta tiene como base medidas de biomasa para un total de 75 árboles forestales y no forestales <peso del árbol seco [Kg.] = -136.80 + 0.6144 d2). Del peso seco al carbono, se utilizó el factor de conversión 0.5. Estos cálculos se deberán ver como aproximaciones de carbono de árboles por encima del suelo.
El Cuadro 9 presenta algunas características básicas de las parcelas muestreadas, especificando el área total de las sub-parcelas muestreadas, y la correspondiente área en forma absoluta y relativa para bosques, tierras con árboles fuera del bosque, y otros. De las 38 parcelas, 7 estaban completamente en bosque, y 4 completamente fuera del bosque, mientras que en 27 parcelas de campo se encontraron ambos, bosque y no-bosque. Esto es una indicación de lo fragmentado del paisaje, donde hay más cantidad de bloques compactos de bosque, comparados con áreas sin bosque, o (el hecho conocido) que hay aún más áreas de boque cerrado (sobre todo en los parques nacionales ) y que los bosque fragmentado existen en la mayoría de las regiones el país.
Del Cuadro 10 al Cuadro 12 se presentan las estimaciones por clase de uso de la tierra. El Cuadro 10 presenta estimaciones de error relativo estándar para área basal, volumen comercial y número de árboles, también en la columna del extremo derecho se presenta la estimación del área correspondiente. En el Cuadro 11 se presenta el área basal y número de árboles para la clase correspondiente a 10cm<dap<30cm (denominada como "regeneración establecida"), y el Cuadro 12 presenta el total de área basal, combinando los valores del Cuadro 19 y Cuadro 11.
El Cuadro 13 y el Cuadro 14 presentan un resumen de las estimaciones correspondientes al tipo de bosque y el Cuadro 15 y Cuadro 16 para la relación bosque/no-bosque. Cuando se está leyendo los datos de "bosque primario", se debe tomar en cuenta que no se pudo llegar a varias parcelas de bosque, particularmente en aquellas que se encontraron en el medio de los parques nacionales. Por lo tanto, no se cuenta con estos datos, y el cálculo estadístico para bosque primario en algunos casos se encuentra basado en "bosques primarios fuera de parques nacionales", o mejor dicho, "bosque primario con accesibilidad razonable".
Del Cuadro 17 al Cuadro 21 se presenta información acerca de especies encontradas. Esta es una lista descriptiva y proporciona simplemente el número de especies encontradas en las parcelas. Interesante, (y claramente esperado) es que el porcentaje de árboles no identificados es mucho más alto en los bosques que fuera de ellos. Esto puede explicarse fácilmente, afuera del bosque, frecuentemente las especies forestales comerciales son dejadas como bosques remanentes y las especies comerciales son usualmente mejor conocidas que las no comerciales.
En el Cuadro 21 los datos para el bosque primario cerrado (PFC) se presentaron separadamente para aquellas parcelas que se encuentran en los parques nacionales (PFPA=Bosque Primario en Áreas Protegidas), y las que están fuera de los parques (PFNP=Bosques Primarios No Protegidos). Es interesante notar -y en realidad esperado- que en los Parques Nacionales el número de especies es más alto, y el porcentaje de árboles no identificados, también. Sin embargo, debe tomarse en cuenta que en el PFNP fueron medidos alrededor 350 árboles y en el PFPA se midieron alrededor de 500, lo cual explica las diferencias encontradas.
El Cuadro 22 proporciona un estimado del porcentaje de bosque y no-bosque que existe en los Parques Nacionales (no se toma en cuenta aquí las áreas protegidas que se encuentran próximas a un río o en pendientes pronunciadas). Se estimó que un 40% de los bosques están en los Parques Nacionales, pero un estimado de cerca del 20% de tierras con árboles fuera del bosque.
Cuadro 9: Algunas características de las parcelas muestreadas (hectáreas) (UM=unidad de muestreo)
UM-. |
Área Bosque |
Área con árboles fuera del bosque |
Área, agua y otras tierras |
Área Total |
% Bosque |
% Árboles fuera del bosque |
% Otros |
3 |
1.2000 |
0.000 |
0.0000 |
1.20 |
1.00000 |
0.00000 |
0.00000 |
5 |
0.9650 |
0.235 |
0.0000 |
1.20 |
0.80417 |
0.19583 |
0.00000 |
17 |
0.9160 |
0.284 |
0.0000 |
1.20 |
0.76333 |
0.00000 |
0.23667 |
19 |
0.7480 |
0.452 |
0.0000 |
1.20 |
0.62333 |
0.37667 |
0.00000 |
21 |
0.4630 |
0.737 |
0.0000 |
1.20 |
0.38583 |
0.61417 |
0.00000 |
23 |
1.1500 |
0.050 |
0.0000 |
1.20 |
0.95833 |
0.04167 |
0.00000 |
36 |
0.3250 |
0.875 |
0.0000 |
1.20 |
0.27083 |
0.72917 |
0.00000 |
38 |
0.1510 |
1.049 |
0.0000 |
1.20 |
0.12583 |
0.87417 |
0.00000 |
40 |
0.0825 |
0.037 |
0.0000 |
0.12 |
0.68750 |
0.00000 |
0.31250 |
41 |
0.3610 |
0.839 |
0.0000 |
1.20 |
0.30083 |
0.00000 |
0.69917 |
69 |
0.6700 |
0.190 |
0.3400 |
1.20 |
0.55833 |
0.15833 |
0.28333 |
72 |
0.3330 |
0.867 |
0.0000 |
1.20 |
0.27750 |
0.72250 |
0.00000 |
74 |
0.5150 |
0.685 |
0.0000 |
1.20 |
0.42917 |
0.57083 |
0.00000 |
76 |
0.6000 |
0.000 |
0.0000 |
0.60 |
1.00000 |
0.00000 |
0.00000 |
78 |
0.9000 |
0.000 |
0.0000 |
0.90 |
1.00000 |
0.00000 |
0.00000 |
80 |
0.3000 |
0.000 |
0.0000 |
0.30 |
1.00000 |
0.00000 |
0.00000 |
82 |
0.2400 |
0.960 |
0.0000 |
1.20 |
0.20000 |
0.80000 |
0.00000 |
118 |
0.5700 |
0.570 |
0.0600 |
1.20 |
0.47500 |
0.47500 |
0.05000 |
120 |
1.2000 |
0.000 |
0.0000 |
1.20 |
1.00000 |
0.00000 |
0.00000 |
122 |
1.1240 |
0.076 |
0.0000 |
1.20 |
0.93667 |
0.06333 |
0.00000 |
124 |
0.7860 |
0.414 |
0.0000 |
1.20 |
0.65500 |
0.34500 |
0.00000 |
126 |
0.1330 |
0.767 |
0.0000 |
0.90 |
0.14778 |
0.85222 |
0.00000 |
128 |
0.9310 |
0.269 |
0.0000 |
1.20 |
0.77583 |
0.22417 |
0.00000 |
130 |
0.0000 |
1.200 |
0.0000 |
1.20 |
0.00000 |
1.00000 |
0.00000 |
132 |
0.3510 |
0.781 |
0.0680 |
1.20 |
0.29250 |
0.65083 |
0.05667 |
154 |
0.3000 |
0.900 |
0.0000 |
1.20 |
0.25000 |
0.75000 |
0.00000 |
162 |
0.7680 |
0.432 |
0.0000 |
1.20 |
0.64000 |
0.36000 |
0.00000 |
166 |
1.2000 |
0.000 |
0.0000 |
1.20 |
1.00000 |
0.00000 |
0.00000 |
184 |
0.9000 |
0.300 |
0.0000 |
1.20 |
0.75000 |
0.00000 |
0.25000 |
186 |
0.0000 |
0.000 |
1.2000 |
1.20 |
0.00000 |
0.00000 |
1.00000 |
188 |
0.2820 |
0.918 |
0.0000 |
1.20 |
0.23500 |
0.76500 |
0.00000 |
190 |
0.3000 |
0.900 |
0.0000 |
1.20 |
0.25000 |
0.75000 |
0.00000 |
192 |
1.2000 |
0.000 |
0.0000 |
1.20 |
1.00000 |
0.00000 |
0.00000 |
194 |
0.0000 |
1.200 |
0.0000 |
1.20 |
0.00000 |
1.00000 |
0.00000 |
196 |
0.3000 |
0.900 |
0.0000 |
1.20 |
0.25000 |
0.75000 |
0.00000 |
219 |
0.6300 |
0.570 |
0.0000 |
1.20 |
0.52500 |
0.00000 |
0.47500 |
221 |
0.0000 |
1.200 |
0.0000 |
1.20 |
0.00000 |
1.00000 |
0.00000 |
223 |
0.3000 |
0.900 |
0.0000 |
1.20 |
0.25000 |
0.75000 |
0.00000 |
225 |
0.4360 |
0.764 |
0.0000 |
1.20 |
0.36333 |
0.63667 |
0.00000 |
227 |
0.0550 |
1.145 |
0.0000 |
1.20 |
0.04583 |
0.95417 |
0.00000 |
Cuadro 10: Estimaciones por clase de uso de la tierra (solamente dap > 30cm). Las celdas vacías para las estimaciones significa que no hay árboles en la muestra, no hay especificaciones del error estándar: solamente observaciones en una parcela, no permitió el cálculo del error del muestreo
Clases UT |
Estimaciones |
Error estándar % |
Tipo bosque |
Área | ||||
Área basal |
Volumen comercial |
# de árboles |
Área basal |
Volumen comercial |
# de árboles | |||
GFC |
15.6815 |
63.462 |
65.3527 |
32.3555 |
105.099 |
16.9766 |
galler |
0.02209 |
FPC |
. |
. |
. |
. |
. |
. |
planta |
0.01714 |
FPM |
2.4356 |
12.085 |
26.6667 |
. |
. |
. |
planta |
0.00669 |
PFM |
19.3645 |
156.672 |
84.3882 |
31.6925 |
26.883 |
44.4314 |
prifor |
0.01586 |
PFC |
18.4221 |
136.349 |
88.0005 |
10.0395 |
15.288 |
10.5851 |
prifor |
0.24411 |
ASFC |
7.4985 |
48.281 |
50.8357 |
27.3900 |
50.755 |
18.0948 |
secfor |
0.06604 |
ASFM |
10.5139 |
59.158 |
47.6190 |
38.0827 |
87.134 |
66.5640 |
secfor |
0.01513 |
RSFC |
2.2523 |
11.201 |
13.4362 |
60.5125 |
77.786 |
41.9542 |
secfor |
0.07838 |
RSFM |
5.8279 |
39.522 |
44.4444 |
58.1164 |
38.786 |
13.4535 |
secfor |
0.00239 |
RSFO |
4.0181 |
22.644 |
10.4822 |
28.8590 |
55.156 |
8.6413 |
secfor |
0.01600 |
1.0607 |
9.745 |
9.5694 |
. |
. |
. |
nonfor |
0.04018 | |
BAN |
1.4586 |
0.625 |
14.2450 |
7.3336 |
242.536 |
15.5223 |
nonfor |
0.01265 |
PC |
0.6536 |
2.130 |
5.0088 |
48.4114 |
109.283 |
41.1663 |
nonfor |
0.08664 |
RL |
2.3777 |
11.602 |
11.9344 |
22.6413 |
37.812 |
23.8414 |
nonfor |
0.29306 |
BL |
. |
. |
. |
. |
. |
. |
nonfor |
0.00112 |
G |
. |
. |
. |
. |
. |
. |
nonfor |
0.02045 |
S |
. |
. |
. |
. |
. |
. |
nonfor |
0.01941 |
W |
. |
. |
. |
. |
. |
. |
nonfor |
0.04266 |
(galler=bosque de gallería, nonfor=no bosque, prifor=bosque primario, secfor=bosque secundario).
Cuadro 11: Estimaciones por clase de uso de la tierra para diámetros menores de 10cm < dap < 30cm
Clase uso tierra |
Tipo bosque |
Área basal |
#. de árboles |
ASFC |
secfor |
6.49 |
298.8 |
ASFM |
secfor |
6.59 |
225.0 |
FPC |
planta |
16.46 |
628.6 |
FPM |
planta |
7.90 |
237.5 |
GFC |
galler |
6.82 |
312.5 |
PFC |
prifor |
7.58 |
305.0 |
PFM |
prifor |
8.18 |
293.8 |
RSFC |
secfor |
2.18 |
116.4 |
RSFM |
secfor |
4.37 |
225.0 |
RSFO |
secfor |
2.14 |
97.6 |
AC |
nonfor |
0.35 |
18.3 |
BAN |
nonfor |
0.99 |
42.3 |
BL |
nonfor |
0.00 |
0.0 |
PC |
nonfor |
1.31 |
49.7 |
RL |
nonfor |
0.59 |
23.8 |
G |
nonfor |
0.00 |
0.0 |
S |
nonfor |
0.00 |
0.0 |
W |
nonfor |
0.00 |
0.0 |
(galler=bosque de galería, nonfor=no bosque, prifor=bosque primario, secfor=bosque secundario)
Cuadro 12: Área basal por clases de uso de la tierra, i.e. combinación de las dos tablas anteriores
Clases uso tierra |
Tipo bosque |
Área Basal [m2] |
GFC |
galler |
22.4996 |
FPC |
planta |
16.4617 |
FPM |
planta |
10.3339 |
PFC |
prifor |
26.0034 |
PFM |
prifor |
27.5414 |
ASFC |
secfor |
13.9895 |
ASFM |
secfor |
17.1022 |
RSFC |
secfor |
4.4336 |
RSFM |
secfor |
10.1987 |
RSFO |
secfor |
6.1556 |
AC |
nonfor |
1.41385 |
BAN |
nonfor |
2.44915 |
PC |
nonfor |
1.96609 |
RL |
nonfor |
2.9709 |
BL, G, S, W |
nonfor |
(galler=bosque de galería, nonfor=no bosque, prifor=bosque primario, secfor=bosque secundario).
Cuadro 13: Estimaciones por categoría de bosque (solamente dap > 30cm)
|
Tipo bosque |
Estimaciones |
Error Estándar % |
Área | ||||
Área basal |
Volumen Comer. |
#. de árboles |
Área basal |
Volumen Comer. |
No. de árboles | ||
galler |
15.6815 |
63.462 |
65.3527 |
32.3555 |
105.099 |
16.9766 |
0.02209 |
planta |
2.4356 |
12.085 |
26.6667 |
. |
. |
. |
0.02383 |
prifor |
18.4867 |
137.743 |
87.7531 |
9.3809 |
13.967 |
10.2157 |
0.25998 |
secfor |
5.0032 |
29.827 |
30.1228 |
25.6707 |
40.566 |
21.1672 |
0.17793 |
nonfor |
1.6447 |
7.770 |
8.7327 |
22.7890 |
39.274 |
24.0673 |
0.51616 |
(galler=bosque de galería, nonfor=no bosque, prifor=bosque primario, secfor=bosque secundario)
Cuadro 14: Estimaciones por clases de bosque (solamente 10cm < dap < 30cm)
Tipo bosque |
Área basal por ha |
# de árboles por ha |
galler |
6.82 |
312.5 |
planta |
13.35 |
486.4 |
prifor |
7.63 |
304.2 |
secfor |
4.20 |
195.3 |
nonfor |
0.61 |
24.3 |
(galler=bosque de galería, nonfor=no bosque, prifor=bosque primario, secfor=bosque secundario)
Cuadro 15: Estimaciones de acuerdo a bosque / no bosque (solamente dap > 30cm)
Bosque- No bosque |
Estimaciones |
Error estándar % |
Proporc. área | ||||
Área basal |
Volumen comerciales |
# de árboles |
Área basal |
Volumen comercial. |
# de árboles | ||
1 (bosque) |
12.5416 |
87.7977 |
61.8284 |
12.4374 |
17.4202 |
11.2383 |
0.48384 |
0(área con árboles fuera del bosque ) |
1.8322 |
8.6550 |
9.7279 |
23.0400 |
38.4674 |
23.1485 |
0.43365 |
2 (otros) |
. |
. |
. |
. |
. |
. |
0.08252 |
Cuadro 16: Estimaciones por bosque / no bosque (10cm < dap < 30cm)
Ba_prom |
Vol_prom |
No_prom | |
1 (Bosque) |
6.51253 |
16.1240 |
270.670 |
0 (áreas con árboles fuera del bosque) |
0.72473 |
1.55447 |
28.9154 |
2 (otros) |
0.00000 |
0.00000 |
0.0000 |
Cuadro 17: Especies encontradas con mayor frecuencia en las parcelas muestreadas (dap > 30cm)
Obs |
Código árbol |
Especies |
Nombre común |
Freq. |
%Freq. |
1 |
Ni |
No identificado |
No identificado |
189 |
4.01957 |
2 |
Penma |
Pentaclethra macrophylla |
Gavilan |
108 |
2.29689 |
3 |
Coral |
Cordia alliodor |
Laurel |
47 |
0.99957 |
4 |
Ocosp |
Ocotea spp. |
Ira |
39 |
0.82943 |
5 |
F-Lau |
Familia Lauraceae |
Ira |
36 |
0.76563 |
6 |
Cordi |
Cornus disciflora |
Lloro |
32 |
0.68056 |
7 |
Querco |
Quercus costarricenses |
Encino |
32 |
0.68056 |
8 |
Lagra |
Laguncularia racemosa |
Mangle mariquita |
28 |
0.59549 |
9 |
Spomo |
Spondias bombin |
Jobo |
28 |
0.59549 |
10 |
Rhisp |
Rhizophora spp. |
Mangle rojo |
23 |
0.48915 |
Cuadro 18: Especies más frecuentes encontradas en las parcelas muestreadas (dap > 30cm), separadas de acuerdo a bosque / no bosque
Obs |
|
Código árbol |
Especies |
Nombre común |
Freq |
%Freq |
1 |
No-bosque |
Coral |
Cordia alliodora |
Laurel |
32 |
19.0476 |
2 |
Spomo |
Spondias mombin |
Jobo |
20 |
11.9048 | |
3 |
Penma |
Pentaclethra macrophylla |
Gavilan |
15 |
8.9286 | |
4 |
No identificado |
No identificado |
Sombra de iguana |
8 |
4.7619 | |
5 |
Goeme |
Goethalsia meiantha |
Guacimo blanco |
7 |
4.1667 | |
6 |
Pteof |
Pterocarpus michelianus |
Sangrillo |
6 |
3.5714 | |
7 |
F-Are |
Familia Arecaceae |
Palma real |
5 |
2.9762 | |
8 |
Cedod |
Cedrela odorata |
Cedro amargo |
4 |
2.3810 | |
9 |
Entcy |
Enterolobium cyclocarpum |
Guanacaste |
4 |
2.3810 | |
10 |
Rolpi |
Rollinia pittieri |
Anonillo |
4 |
2.3810 | |
1 |
Bosque |
Ni |
No identificada |
Tabacon |
181 |
14.9094 |
2 |
Penma |
Pentaclethra macrophylla |
Gavilan |
93 |
7.6606 | |
3 |
Ocosp |
Ocotea spp. |
Quizarra rojo |
39 |
3.2125 | |
4 |
F-Lau |
Familia Lauraceae |
Palomo |
36 |
2.9654 | |
5 |
Queco |
Quercus costarricensis |
Encino |
32 |
2.6359 | |
6 |
Cordi |
Cornus disciflora |
Lloro |
31 |
2.5535 | |
7 |
Lagra |
Laguncularia racemosa |
Mangle mariquita |
26 |
2.1417 | |
8 |
Rhisp |
Rhizophora spp |
Mangle rojo |
23 |
1.8946 | |
9 |
Virko |
Virola koschnyi |
Fruta dorada |
22 |
1.8122 | |
10 |
Pousp |
Pouteria spp |
Zapotillo |
20 |
1.6474 |
Cuadro 19: Número de especies encontradas en bosque y no-bosque y % de árboles no identificados (dap>30cm)
|
Identificado |
% Individuos no
identificados. |
Número de individuos. | |
|
No-bosque |
No |
4.8% |
8 |
|
Si |
55 |
160 | |
|
Bosque |
No |
14.9% |
181 |
|
Si |
189 |
1033 |
Cuadro 20: Número de especies por tipo de bosque y % de árboles no identificados (dap>30cm).
|
Tipo de Bosque |
Especies Identif. |
% individuos no identificados. número especies encontradas |
Número de individuos. |
|
Bosque de galería |
no |
19.0% |
12 |
si |
32 |
51 | |
|
No-bosque |
no |
4.8% |
8 |
si |
55 |
160 | |
|
Plantación |
no |
0.0% |
|
si |
2 |
8 | |
|
Bosque primario |
no |
15.5% |
141 |
si |
137 |
769 | |
|
Bosque secundario |
no |
12.0% |
28 |
si |
80 |
205 |
Cuadro 21: Número de especies por clases de uso de la tierra, y % de árboles no identificados (dap>30cm). Aquí, los datos para bosques primarios están presentados en forma separada por parcelas en los parques nacionales (PFPA=Bosque Primario en Áreas Protegidas), y aquellos fuera de las áreas protegidas (NP=Bosque Primario No Protegido).
|
Clases de uso de la tierra |
Especies identificadas |
% individuos no identificados #especies muestreadas |
#. de individuos. |
|
ASFC |
no |
15.1% |
22 |
|
si |
53 |
124 | |
|
ASFM |
no |
0.0% |
|
|
si |
21 |
31 | |
|
FPC |
no |
0 |
0 |
|
si |
1 |
. | |
|
FPM |
no |
0.0% |
0 |
|
si |
1 |
8 | |
|
GFC |
no |
19.0% |
12 |
|
si |
32 |
51 | |
|
PFM |
no |
8.3% |
5 |
|
si |
19 |
55 | |
|
PFNP |
no |
12.7% |
44 |
|
si |
65 |
303 | |
|
PFPA |
no |
18.3% |
92 |
|
si |
104 |
411 | |
|
RSFC |
no |
12.8% |
6 |
|
si |
24 |
41 | |
|
RSFM |
no |
0.0% |
|
|
si |
4 |
4 | |
|
RSFO |
no |
0.0% |
|
|
si |
5 |
5 | |
|
AC |
no |
50.0% |
1 |
|
si |
2 |
1 | |
|
BAN |
no |
20.0% |
1 |
|
si |
5 |
4 | |
|
PC |
no |
0 |
0 |
|
si |
10 |
17 | |
|
RL |
no |
4.2% |
6 |
|
si |
46 |
138 | |
|
BL, G, S, W |
. |
. |
. |
Cuadro 22: Porcentaje de bosque / no bosque, clases de uso de la tierra en áreas protegidas.
Clase |
En áreas protegidas |
% total |
% en clase |
|
Tierra con árboles fuera del bosque |
no |
34.9% |
80.5% |
si |
8.5% |
19.5% | |
|
Bosque |
no |
29.2% |
60.4% |
si |
19.2% |
39.6% | |
|
Otros |
no |
6.3% |
76.9% |
si |
1.9% |
23.1% |
El Cuadro 23 da una idea del desglose del tiempo utilizado durante el tiempo de campo, calculado como promedio por conglomerado de campo.
Cuadro 23: Desglose del tiempo utilizado durante trabajo de campo, promedio estimado por conglomerado (localidad muestreada)
Actividad |
Tiempo/días |
1. Preparación (CATIE) Ortorectificación de fotografías Georeferenciación de mapas |
1 |
2. Campo (equipos de campo) Planificación del inventario Planificación de viaje de campo Primera visita (contactos) Contacto con propietarios y entrevistas 1-2 propietarios 3-4 propietarios Retorno al conglomerado de campo Dificultad en el acceso Fácil acceso Mediciones Bosques en áreas montañosas Bosques en terrenos planos Pastizales o plantaciones forestales Pastizales o plantaciones con pocos árboles Supervisión de campo Preparación de viajes de campo Dificultad de acceso Fácil acceso |
0.5 1 1 1.5 1.5 1 4 (8 hrs./parc) 2.5 (5 hrs./parc) 2 (4 hrs./parc) 1 (2 hrs./parc) 0.5 3.5 2.5 |
3. Oficina (CATIE) Ingreso de datos Base de datos en Excel Geodatos en Surfer y Arc View Foto catálogo (scan y organización ) Revisión y corrección de la base de datos (información completa, digitalización, inconsistencias, enlace entre archivos de bases de datos) |
0.5 0.5 0.5 2.5 |
Registro de campo - incluyendo las 250 parcelas de campo
Las sub-parcelas promedio tienen 20m de ancho y 150m de largo. Cabe señalar, que las parcelas con estas dimensiones proporcionarían datos forestales buenos y suficientes Sin embargo, para las áreas fuera del bosque, donde la densidad de árboles es mucho menor, fue necesario aumentar el tamaño de las parcelas. Por lo tanto, el largo de las sub-parcelas se fijó a 250m y cuando el punto final de los 150m llegara a coincidir con áreas fuera del bosque. Esto significa que 100m más fueron medidos, sin hacer caso a la clase de uso de la tierra que fue encontrada en el transcurso de la parcela; por lo tanto, no solo áreas consideradas como no bosque fueron medidas, sino también se midieron adicionalmente áreas con bosque.
Por lo anterior, se ganó más precisión de lo esperado, particularmente para la estimación de los atributos de árboles en las clases de uso de la tierra fuera de la clase bosque. Obviamente este alargamiento condicional de una sub-parcela, no puede utilizarse para mejorar estimaciones de área. Este debe llegar desde parcelas de 150m (como se presentó anteriormente) o desde un análisis de observación de puntos de las parcelas angulares.
Cuando ahora se comparan los resultados obtenidos en las parcelas de 150m con las parcelas condicionales de 250m se puede concluir si es meritorio continuar con esta idea.
En esta sección, los resultados principales del análisis de las parcelas de 150m y de las parcelas condicionales de 250m son comparados en una serie de tablas.
El primer efecto del alargamiento condicional es que el área total de las parcelas medidas en el campo es más grande. Con la corrección de las parcelas de 150m, un área total de 44.82ha fue visitada y marcadas. Para las parcelas condicionales de 250m, el total de área sumada fue de 62.90ha, lo cual significa un 40% más de área. Solamente en 10 parcelas muestreadas no se tuvieron que ser alargardas.
El número total de especies observadas por dimensión de árboles de 30cm y más, se incrementó ligeramente de 205 a 212; esto probablemente se debe al hecho de que la mayoría del área adicional se localiza fuera del bosque, en donde la diversidad de especies de árboles no es tan grande como lo es en un bosque interno.
Mientras que el esfuerzo de planeación adicional es bajo, el esfuerzo adicional en el campo se estimó de 30 a 90 minutos por parcela, dependiendo de la clase de uso de la tierra y de la densidad de cobertura boscosa encontrada, lo cual se traslada a un estimado de 1-3 horas adicionales por parcela.
Un análisis interesante de bosque/no bosque se hace en el Cuadro 24. Mientras una relativa pequeña área de bosque fue adicionalmente incluida (un incremento de 21.69ha a 24.68ha o 13%), el área para la tierras con árboles fuera del bosque incrementó de 19.44ha con las parcelas de 150m a 32.03ha para las parcelas condicionales de 250m (correspondiendo de un 65% de incremento). También, las "otras" clases donde no se encontraron árboles, no se esperó incremento de 3.7ha a un área muestreada de 6.29ha; donde esta última información provista es de poca relevancia con respecto al recurso árbol.
El Cuadro 25 da la comparación de estimados y errores estándar. Mientras que para bosque, el relativo error estándar no exhibe cambios (al menos en los valores), el diseño con las parcelas condicionales de 250m produce un bajo error estándar relativo para área basal (21% en lugar del 23%), para volumen (35% en lugar del 38%) y número de árboles (19% en lugar del 23%) en tierras con árboles fuera del bosque. Esta mejoría de precisión en la estimación ha sido comparada con el adicional esfuerzo / costo.
Cuadro 24: Comparación sub-parcelas 150m/250m: Área total contada de acuerdo a bosque/no bosque
|
Clase |
Correg.150m |
Condicional 250m | ||||
|
No. de unidades |
Área |
Área |
#. de unidades |
Área |
Área | |
1 (bosque) |
109 |
21.69 |
0.4838 |
123 |
24.58 |
0.3908 |
0 (tierras árboles fuera del bosque) |
221 |
19.44 |
0.4337 |
241 |
32.03 |
0.5091 |
2 (otros) |
19 |
3.70 |
0.0825 |
19 |
6.29 |
0.1003 |
Cuadro 25: Comparación sub-parcelas 150m/250m: estimaciones y errores estándar por bosque/no bosque
|
Clase bosque |
150m sub-parcelas |
250m sub-parcelas | ||||||||||
|
Estimaciones (por ha) |
ES% |
Estimaciones (per ha) |
ES% | |||||||||
|
Área Basal (m2) |
Vol. (m3) |
# de árboles |
Área Basal (m2) |
Vol. (m3) |
No. de árboles |
Área Basal (m2) |
Vol. (m3) |
No. de árboles |
Área Basal (m2) |
Vol. (m3) |
No. de árboles | |
|
1 (bosque) |
12.54 |
87.80 |
61.8 |
12 |
17 |
11 |
12.07 |
84.33 |
59.91 |
12 |
17 |
11 |
|
0 (tierras árboles fuera del bosque) |
1.83 |
8.66 |
9.7 |
23 |
38 |
23 |
1.57 |
6.95 |
8.92 |
21 |
35 |
19 |
|
2 (otros) |
0.00 |
0.00 |
0.0 |
. |
. |
. |
0.00 |
0.00 |
0.00 |
. |
. |
. |
Aunque alguna precisión de las estimaciones del área basal, volumen y densidad de árboles se ganó por la extensión condicional de las sub-parcelas de bosques externos, esta mejoría fue encontrada en forma marginal. Es improbable que el esfuerzo adicional esté justificado. También la información adicional en términos de número de especies no es importante.
Por lo tanto, no logramos ver las ventajas esperadas del alargamiento de las parcelas por lo que no recomendamos seguir la idea de la extensión de parcelas.
Se llevó a cabo una estimación del almacenamiento de carbón en las diferentes clases de uso de la tierra. Los resultados se presentaron separadamente, ya que los autores no contaban con modelos confiables y "aprobados" a la mano, y que en general, sean aceptados para estos cálculos. Las estimaciones tienen, por lo tanto, que verse como aproximaciones con relativa poca precisión. Todos los cálculos están hechos para el total de árboles con un dap > 30cm, ya que (no publicado, desarrollado por ITC, Holland, en el EU fundado Proyecto TROF) el modelo utilizado para esto es solamente para aquellos diámetros.
También, para este análisis la clase pastizales fue separada de las otras clases de no-bosque, ya que allí existe un interés particular en Costa Rica para ver en que extensión los pastos pueden contribuir a las discusiones de cambios climáticos. Del Cuadro 26 al -Cuadro 28 se presentan los resultados. Es de hacer notar que el porcentaje de error estándar (ES%) es tan solo errores de muestreo y no incluye errores de modelo, lo que se espera bastante alto para modelo aplicado.
Cuadro 26: Aproximación del carbono almacenado por clase de bosque)
|
Tipo de Bosque |
Bosque |
Promedio |
ES% |
|
pastur |
0 |
8.485 |
22.8482 |
|
galler |
1 |
56.872 |
34.3148 |
|
planta |
1 |
7.705 |
|
|
prifor |
1 |
66.313 |
9.4523 |
|
secfor |
1 |
17.511 |
26.4063 |
|
nonfor |
2 |
1.738 |
39.3277 |
(pastur=pastisales, galler=bosque de galería, nonfor=no bosque, prifor=bosque primario, secfor=bosque secundario
Del Cuadro 26 vemos que el almacenaje de carbono en pastizales se estimó en cerca del 13% de lo almacenado en bosque primario, y (Cuadro 27) un estimado del 19% por ha que está almacenado en todos los tipos de bosques combinados. Sin embargo, este número es engañoso, ya que en un bosque primario la parte de carbón almacenado en árboles con dap<30cm es mucho más alto comparada con los pastizales. El 13% y 19%, respectivamente, son por consiguiente límites superiores. El Cuadro 27 permite estimar (con todas las restricciones de interpretación mencionadas) la correspondiente parte de carbón almacenado en árboles con dap>30cm en bosque y fuera del bosque para el total del país: si tomamos 44.831*0.48384+0.43365*6.501=24.5 como una medida para el carbón total, entonces aproximadamente el 88% están en bosque y cerca del 12% en áreas fuera del bosque.
Cuadro 28: Aproximación del carbono almacenado de acuerdo a bosque/no-bosque
Clase |
Promedio |
ES% |
Área |
1 (Bosque) |
44.831 |
12.6624 |
0.48384 |
0 (tierra- con árboles fuera del bosque) |
6.501 |
23.3702 |
0.43365 |
2 (otros) |
0 |
- |
0.08252 |
Cuadro 29 Carbono almacenado: valor promedio calculado para todas las clases de uso de la tierra y todo país.
Promedio |
ES% |
22.8171 |
17.8476 |
Se evaluó un conjunto de atributos relativos al uso de bosque por medio de entrevistas con los propietarios de bosque. Para este propósito se contrató un consultor (sociólogo) quien trabajó de cerca con la cooperación del equipo de SINAC y con el equipo de CATIE.
Según los términos de referencia el consultor produciría un informe separado en donde el método aplicado, los resultados obtenidos y las experiencias llevadas acabo son descritas.
Por lo tanto, en este informe, nos restringimos a algunas conclusiones, presentadas en el Capítulo Conclusiones".