SMALL-SCALE SOLAR SALT PRODUCTION UNIT CUM ARTEMIA PRODUCTION

| DRAWING No. 1 | ||
SMALL-SCALE SOLAR SALT CUM ARTEMIA PRODUCTION UNIT GENERAL LAY-OUT | ||
| Prepared by M. Pizzali | 9.11.93 | Not to Scale |
SMALL SCALE SOLAR SALT PRODUCTION SYSTEM

| DRAWING No. 2 | ||
| SMALL-SCALE SOLAR SALT CUM ARTEMIA PRODUCTION UNIT | ||
LATERAL, BACK AND FRONT VIEWS | ||
| Prepared by M. Pizzali | 18.10.93 | Not to Scale |

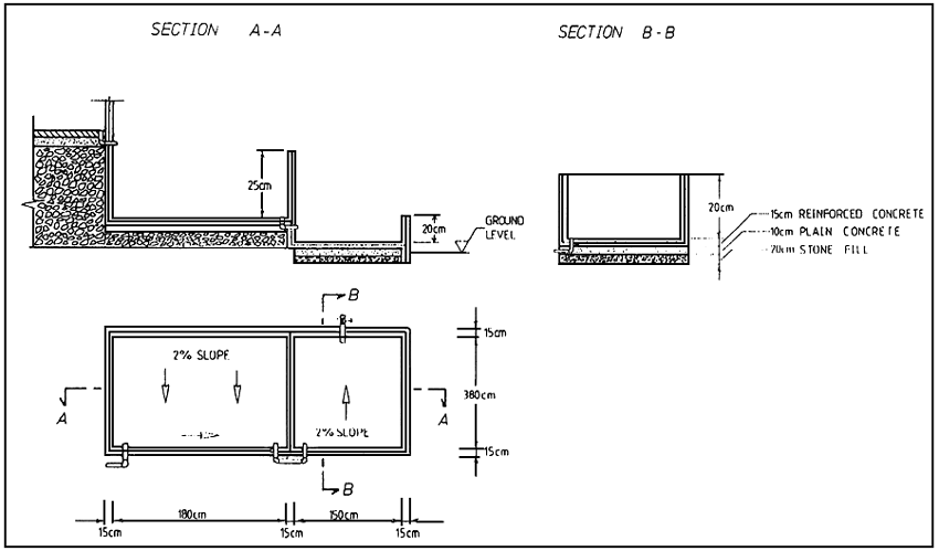
| DRAWING No. 3 | ||
| SMALL-SCALE SOLAR SALT CUM ARTEMIA PRODUCTION UNIT | ||
CONSTRUCTION DETAILS OF EVAPORATION PONDS I & II | ||
| Prepared by M. Pizzali | 9.11.93 | Not to Scale |

| DRAWING No. 4 | ||
| SMALL-SCALE SOLAR SALT CUM ARTEMIA PRODUCTION UNIT | ||
LAYOUT OF CONSTRUCTION DETAILS OF ARTEMIA PONDS I & II & III | ||
| Prepared by M. Pizzali | Not to Scale | |

| DRAWING No. 5 | ||
| SMALL-SCALE SOLAR SALT CUM ARTEMIA PRODUCTION UNIT | ||
CONSTRUCTION DETAILS OF PRE-CRYSTALLISATION & CRYSTALLISATION PONDS | ||
| Prepared by M. Pizzali | 9.11.93 | Not to Scale |
LIBFISH TECHNICAL BRIEFING NOTES
01 Lamboeuf, M., A. Mujahid, & N. Elkebir. ‘Reconnaissance survey of the artisanal fishing fleet of Libya.’ TBN No. 1, April 1994. (En/Ar)
02 Bellec, O. ‘Drydocking and refit of RV NOUR and voyage of vessel to Valetta, Malta.’ TBN No. 2, April 1994. (En/Ar)
03 Meaden, G.J. ‘Background notes and prospects for a Libyan marine fisheries Geographical Information System.’ TBN No. 3, April 1994. (En)
04 Reynolds, J.E, & M. Lamboeuf. ‘1993 Libyan fisheries frame survey planning & preparation workshop.’ TBN No. 4, April 1994. (En)
05 Medina Pizzali, A.F. ‘Technical evaluation and recommendations for the Sabratah fish cannery.’ TBN No. 5, April 1994. (En/Ar - Limited Distribution)
06 Reynolds, J.E. & M. Lamboeuf. ‘1993 Libyan fisheries frame survey: Data handling/dBase management workshop.’ TBN No. 6, May 1994. (En)
07 Reynolds, J.E. ‘Proceedings of the joint MBRC/FAO staff workshop on research training programme development (Tajura, 6 January 1994).’ TBN No. 7, May 1994. (En/Ar)
08 Lamboeuf, M. ‘Notes on the marine resources survey planning workshop (MBRC, Tajura, 31 January 1994).’ TBN No. 8, May 1994. (En/Ar)
09 Medina Pizzali, A.F. ‘Interim report on the national fish handling & processing facilities survey: Workshop proceedings (MBRC, Tajura, 26 March 1994).’ TBN No. 9. May 1994. (En/Ar)
10 Vallet, F. ‘Proposals for MBRC aquaculture facility rehabilitation.’ TBN No. 10, May 1994. (En)
11 Reynolds, J.E., M. Lamboeuf, A. Ben Abdallah, A. Abukhader, R. Abdulbari, & A. Nafati. ‘Preliminary findings of the 1993 Libyan marine fisheries frame survey; Workshop proceedings’ TBN No. 11, June 1994. (En/Ar)
12 Magsoudi, M. & F. Vallet (eds.) ‘MEDRAP II Artemia Workshop (Libya) & Southern salt lakes mission.’ TBN No. 12, July 1994. (En/Ar)
13 Lamboeuf, M., A. Ben Abdallah, J. Sutherland, & E. Ansel. ‘Libya trawl survey: Preliminary results of the first coverage.’ TBN No. 13, July 1994. (En)
14 Lamboeuf, M. ‘Calibration of SIMRAD EK500 scientific sounder - RV NOUR ’ TBN No. 14, July 1994. (En)
15 Meaden, G.J. & J.E. Reynolds. ‘Establishing a marine fisheries GIS: the Libyan experience.’ TBN No. 15, Sept. 1994. (En)
16 Lamboeuf, M. & J.E. Reynolds. ‘The fishing fleet of Libya: preliminary results of the 1993 frame survey.’ TBN No. 16, Oct. 1994. (En)
17 Medina Pizzali, A.F., F. Vallet, & M. Magsoudi. ‘Proposal for an integrated small-scale solar salt and brine shrimp production unit.’ TBN No. 17, Oct. 1994. (En)
LIBFISH FIELD DOCUMENTS
01 Goanec, M. ‘RV NOUR 1993–1994. Chief Engineer's report’ FD No. 1, June 1994 (En)
02 Reynolds, J E. M Lamboeuf, A. Ben Abdallah. A. Abukhader, R. Abdulbari, & A. Nafati. ‘Libyan coastal fisheries: A report on the 1993 baseline survey results.’ FD No 2. July 1994 (En--in prep.)
| For further information please contact: Project Manager, LIBFISH | ||||
| International Mail: | Tajura Office: | |||
| LIB/88/009 - GCP/LIB/021/IsDB | Marine Biology Research Centre | |||
| UNDP Tripoli | P.O. Box 30830 | |||
| Palais des Nations | Tajura, LIBYA | |||
| CH-1211 GENEVA 10 | ||||
| SWITZERLAND | ||||
| Tel + Fax: (218–21) 690002 | Telex: 20523 | |||