
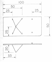
Senne tournante et coulissante à sardines et autres petites espèces pour barque de 10 m (d’après PAJOT, F.A.O.).
■ Longueur et hauteur minimale de la senne, dimensions de la poche
— Longueur minimale selon la longueur du senneur long (senne] …15 x long
(senneur)
— Hauteur minimale
10
% de la longueur
— Largeur et hauteur minimale de la poche = longueur du
senneur
■ Choix du maillage en fonction de l'espèce à pêcher
Il faut éviter l'emmaillage du poisson (tout en respectant la législation en vigueur sur le maillage minimum)
(formule de FRIDMAN) où OM (mm) = ouverture de
maille de la poche
L (poisson), (mm) = longueur moyenne des poissons à pêcher
K = coefficient
fonction de l'espèce :
K = 5 pour les poissons longs et étroits
K = 3,5 pour
les poissons moyens
K = 2,5 pour les
poissons épais, hauts ou larges
Quelques exemples
| Espèce(s) | Dimensions de maille (étirée) mm | Grosseur de fil, R tex |
| petit anchois, ndagala, kapenta (Afrique de l'Est) | 12 | 75-100 |
| anchois, petite sardine | 16 | 75-150 |
| sardine, sardinelle, | 18-20 | 100-150 |
| grande sardmelle, bonga, poisson volant, petit maquereau et chinchard | 25-30 | 150-130 |
| maquereau, mulet, tilapia, chinchard, petite bonite | 50-70 | 300-390 |
| bonite, thon, Scomberomorus sp, wahoo | 50-70 ou plus |
450-550 |
■ Rapport entre le diamètre du fil et le maillage en différents points de la senne
Quelques exemples observés
| Corps de la senne | Poche de la senne | |
| Petits poissons pélagiques | 0,02-0,08 | 0,02-0,09 mer du Nord: 0,09-0,14 |
| grands poissons pélagiques | 0,01-0,06 | 0,03-0,12 |
■ Rapport entre le lestage et le poids d'alèze (dans l'air)
Le poids de lest (dans l'air) représente entre 1/3 et 2/3 du poids de
l'alèze (dans l'air).*
Poids de lest (dans l'air) par mètre de ralingue
inférieur : 1 à 3 kg (jusqu'à 6
kg sur les grandes sennes à thon).
■ Rapport entre la flottabilité nécessaire et le poids total de la senne
Quelques exemples
Lors du montage d'une senne, il faut prévoir, outre la flottabilité nécessaire pour équilibrer le poids total de l'engin dans l'eau, une flottabilité supplémentaire, de l'ordre de 30 % en eaux calmes, 50-60 % en zones de forts courants, afin de prendre en compte les effets liés aux conditions de milieu et de manœuvre. La flottabilité doit être majorée au niveau de la poche (alèze plus lourde) et à mi-longueur de la ralingue inférieure (traction plus forte au boursage). Pratiquement la flottabilité nécessaire équivaut à une fois et demi à deux fois le poids de lest* (dans l'air) disposé à la base de la senne.
– Sennes plutôt grandes dont le poids du filet est élevé : lestage relativement faible, la flottabilité nécessaire équivaut à un peu plus de la moitié du poids de l'alèze (dans l'air)
– Sennes plutôt petites dont le poids du filet est moyen à léger : lestage relativement élevé, la flottabilité nécessaire est augmentée ou un peu supérieure au poids de l'alèze (dans l'air)
En résumé, procédure de choix du lestage et de la flottabilité nécessaire Calcul du :
* Poids d'une nappe de filet, voir p. 35.
Montage sur les ralingues (voir p. 38 et 39)
■ Rapport entre les longueurs des ralingues supérieure et inférieure
Ralingue inférieure ~ Ralingue supérieur + 0 à 10%
■ Rapport entre longueur de coulisse et longueur de filet
Longueur de la coulisse = 1,10 à 1,75 fois longueur
de la ralingue inférieure, soit en moyenne, de l'ordre de 1,5 fois la
longueur de la senne.
Longueur de la remorque = en moyenne, 20 à 25 % de la longueur
de la senne.
■ Choix du matériau et de la résistance de la coulisse
– Bonne résistance à l'usure
– Résistance à la rupture
■ Volume occupé par la senne toute montée
Vm3 = 5 x Poids (t) de la senne dans l'air
■ Estimation rapide de la hauteur réelle dans l'eau (voir p. 39 et 40)
En première approximation, la hauteur réelle dans l'eau (HR) est égale à 50 % de la hauteur étirée (HE) de la senne à ses extrémités, et à 60 % à mi-longueur.
■ Vitesse de plongée d'une senne
Exemples de valeurs mesurées :
2,4 à 16,0 m/min avec
valeur moyenne = 9 m/min
■ Construction
Senne sans poche
une
seule nappe (aucune règle pour hauteur et longueur)
ou
Maillage et/ou grosseur de fils particuliei dans la partie
centrale
Senne avec poche

■ Points de halage
Petite senne haute tenue de chaque côté par un seul homme

■ Bras de halage
En textiles naturels ou en nylon, polyéthylène, polypropylène
Quelques repères
| Longueur de lo senne | Bras en corde synthétique Ø mm |
| 50-100 | 6 |
| 200-500 | 14-16 |
| 800-1 500 | 18 |
■ Maillage(s), grosseur(s) de fil
Dans les ailes les grandeurs de mailles (et grosseurs de fils) peuvent être identiques ou différentes de celles de la partie centrale.
Quelques repères pour la partie centrale
| Espèce recherchée | Maillage (mm) | qrosseur de fil (R tex) |
| Sardine | 5-12 | 150-250 |
| Sardmeile | 30 | 800-1 200 |
| Tilapia | 25 | 100 |
| Crevettes tropicales | 18 | 450 |
| Divers gros poissons | 40-50 | 150-300 |
■ Ralingues : Corde de flotteur et corde de lest
Généralement même matériaux (PA ou PE) et même diamètre en haut et en bas.
■ Rapport d'armement (E) usuel des alèzes sur les cordes haute et basse
Identiques en haut et en bas
pour la partie centrale :
E = 0,5 ou un peu plus 0,5 à 0,7
pour les ailes :
E identique à celui de la partie centrale ou parfois plus E = 0,7 à 0,9
■ Flotteur sur la corde du haut
La quantité de flotteurs nécessaire croît avec la hauteur de la senne
Quelques exemples observés au niveau de la partie centrale
| Hauteur (m) de senne | Flottobiiité en g/m de filet monté |
| 3-4 | 50 |
| 7 | 150 |
| 10 | 350-400 |
| 15 | 500-600 |
| 20 | 1 000 |
Les flotteurs sont soit répartis uniformément tout le long de la corde du haut soit plus serrés au niveau de la partie centrale et de plus en plus espacés vers les extrémités de la senne.
■ Lest sur la corde du bas
Le poids (et la
nature du lest) varie selon l'utilisation souhaitée (pour « gratter » plus ou
moins)
Le lest est soit réparti uniformément
sur la corde du bas soit un peu plus lourd
au niveau de la partie centrale que sur les ailes.
■ Rapport flottabilité/lest
Au niveau de la
partie centrale, souvent Flottabilité/Lest égale environ " ,5 à 2 mais
parfois pour faire gratter, on met plus de
lest que de flottabilité.
Au niveau des ailes, flottabilité/lest égale ou un peu inférieur à 1.
■
Construction, gréement :
très proche des chaluts de fond
Senne de fond
Senne de fond à grande ouverture verticale (GOV)

ex:
| entremise | corde de dos |
| 20-25 | 35 |
| 45-55 | 45 |
■ Déplacement du bateau pour le filage de la senne (sur ancre)
Exemple :
Filage de 12 « coils » soit 2 640 m (1 coil = 220m)

■ Taille des filets
| Bateaux | Périmètre à l'ouverture (m)** | Corde de dos (m) | ||
| Long. | Puissance (ch)* | |||
| Senne de fond (Japon) | 10-15 | 30 | 50 | |
| Senne de fond (Europe) | 15-20 | 100-200 | 20-30 | 55-65 |
| Senne de fond GOV | 10-20 | 100 | 35-65 | 25-35 |
| 20 | 200 | 45-65 | 35-45 | |
| 20-25 | 300-400 | ~100 | 45-55 | |
| 25+ | 50 | 55-65 | ||
■ Ouverture verticale

■ Maillage, grosseur du fil
| Maille étirée | Rtex |
| 110-150 | 1 100-1 400 |
| 90-110 | 1 000-1 100 |
| 70-90 | 700-1 000 |
| 40-70 | 600-800 |
* Puissance en (ch) = 1,36 x Puissance
en (kW)
** Le périmètre est évalué au niveau du carré de ventre
Qualités requises :
Dureté,
Résistance à l'abrasion
Poids
Matériaux
| Bras | |
| Ø | Poids kg/100m |
| PP 20 | 35 |
| 24 | 43 |
| 26 | 55 |
| 28 | 61 |
| 30 | 69 |
Manœuvre :
Longueur
Exprimé
en glènes de
200-220 m,
généralement entre 1 000 et 3 000 m
Technique écossaise :
filage
| Petits fonds (50-70 m) ou fonds doux limités par des bancs de roche |
inférieur à 2000 m |
| Profondeur moyenne (180-260 m) ou fonds doux ou régulier |
supérieur ou égo à 3000 m |
Technique japonaise :
jusqu'à 300-500 m : 8 à 15 fois la profondeur
■ Manæuvre;uvre sur ancre (Danemark)
■ Manæuvre à la volée (Écosse)
■ Manæuvre à la volèe grave;e après traction (Japon, Corèe)

■ Manæuvre à 2 bateaux
Pour un bateau de 50 à 75 ch
Chalut de fond à panneaux, FAO
Pour un bateau de 120 à 150 ch.
Chalut pélagique, en bœuf pour hareng, maquereau France
■ Chaluts de fond
| Puissance (chalutier) = 30 à 100 ch.* |
|
| Maillage étiré (mm) |
Force de fil (R Tex) |
| 100 | 950-1 170 |
| 80 | 650-950 |
| 60 | 650 |
| 40 | 650 |
| Puissance (chalutier) = 100 à 300 ch.* |
|
| Maillage étiré (mm) |
Force de fil (R Tex) |
| 200 | 1 660-2 500 |
| 160 | 1300 |
| 120 | 1 300-2 000 |
| 80 | 950-1 550 |
| 60 | 850-1 190 |
| 40 | 850-1 190 |
| Puissance (chalutier) = 300 à 600 ch.* |
|
| Maillage étiré (mm) |
Force de fil (R Tex) |
| 200 | 2 500-3 570 |
| 160 | 1 230-2 000 |
| 120 | 1 230-2 000 |
| 80 | 1 660 |
| 60 | 950-1 190 |
| 40 | 950- 1 190 |
■ Chaluts à crevette
type américain, semiballon
|
Chalut témoin (voir p. 84) |
|
| maillage étiré | force de fil (RTex) |
| 39,6 |
645 |
| Puissance (chalutier) = 150-300 ch* |
|
| maillage étiré | force de fil (RTex) |
| 44 | 940-1 190 |
| 39,6 | 1 190 |
| Puissance (chalutier) = 300-600 ch* |
|
| maillage étiré | force de fil (RTex) |
| 47,6 | 1 190 |
| 39,6 | 1 540 |

* pour les puissances à retenir, voir p. 95
Puissance en (ch) = 1,36 x
Puissance en (kW)
■ Chaluts de fond à grande ouverture verticale
| Puissance (chalutier) = 75 à 150 ch.* |
|
| Maillage étiré (mm) |
Force de fil (R Tex) |
| 120 | 950 |
| 80 | 650-950 |
| 60 | 650-950 |
| 40 | 650-950 |
| Puissance (chalutier) = 150 à 300 ch.* |
|
| Maillage étiré (mm) |
Force de fil (R Tex) |
| 200 | 1 660-2 500 |
| 160 | 1 300-1 550 |
| 120 | 1 300-2 000 |
| 80 | 950-1 550 |
| 60 | 850-1 190 |
| 40 | 850-1 020 |
| Puissance (chalutier) = 300 à 800 ch.* |
|
| Maillage étiré (mm) |
Force de fil (R Tex) |
| 800 | 5550 |
| 400 | 3570 |
| 200 | 2 500-3 030 |
| 160 | 1 660-2 500 |
| 120 | 1 550-2 500 |
| 80 | 1 300-2 500 |
| 60 | 1 190-1 540 |
| 40 | 940-1 200 |
■ Chaluts pélagiques pour 1 bateau
| Puissance (chalutier) = 150-200 ch.* |
|
| Maillage étiré (mm) |
Force de fil (R Tex) |
| 400 | 2500 |
| 200 | 1 190- 1 310 |
| 160 | 950-1 190 |
| 120 | 650-950 |
| 80 | 650-950 |
| 40 | 450 |
| 40 | 950-1 310 |
| Puissance (chalutier) = 400-500 ch.* |
|
| Maillage étiré (mm) |
Force de fil (R Tex) |
| 800 | 3 700 |
| 400 | 2 500 |
| 200 | 1 310-1 660 |
| 160 | 1 190-1 310 |
| 120 | 950 |
| 80 | 650-950 |
| 40 | 650-950 |
| 40 | 1 660 |
| Puissance (chalutier) = 700 ch.* |
|
| Maillage étiré (mm) |
Force de fil (R Tex) |
| 800 | 7 140-9 090 |
| 400 | 3 700-5 550 |
| 200 | 2 500-3 700 |
| 160 | 2 500 |
| 120 | 1 660 |
| 80 | 1 660 |
| 40 | 1 660 |
| 40 | 2 500 |
| Puissance (chalutier) = 2x 100-300 ch.* |
|
| Maillage étiré (mm) |
Force de fil (R Tex) |
| 800 | 3 030-4 000 |
| 400 | 1 190-2 280 |
| 200 | 1 190-1 540 |
| 120 | 950 |
| 80 | 650-950 |
| 40 | 650-950 |
| Puissance (chalutier) = 2x 300-500 ch.* |
|
| Maillage étiré (mm) R Tex |
Force de fil (R Tex) |
| 800 | 5 550 |
| 400 | 2 280 |
| 200 | 1 540 |
| 120 | 950-1 190 |
| 80 | 950-1 190 |
| 40 | 950-1 190 |

* pour les puissances à
retenir, voir p. 95
Puissance en (ch) = 1,36 x Puissance en (kW)
■ Par le calcul de la surface de fil du chalut (voir p. 37)

| Type de chalut | 1 | 2 | 3 | 4 |
| Facteur de multipl. | 2,4 | 2,2 | 2 | 2 |
■ Par analogie avec un chalut du même type et de même forme utilisé par un bateau de puissance motrice voisine
On «connaît» le chalut (1) utilisé par le chalutier de puissance P, (ch) ; si la puissance de notre bateau est P2 (ch), pour obtenir les dimensions du chalut (2) on multiplie les dimen sions largeurs et hauteurs de chaque pièce de (1) par
*
Pour les puissances à retenir, voir p. 95
Puissance en (ch)
= 1,36 x Puissance en (kW)
■ Chalut de fond à faible ouverture verticale
■ Chalut de fond à grande ouverture verticale
■ Chalut à crevettes
n = nombre de mailles en argeur (coutures non comprises) au niveau de
carré de ventre
CD = longueur (en mêtres) de la corde de dos (sans les bouts libres)
ME = longueur d'une maille étirée (en mètres) au niveau considéré
EH = écartement horizontal approximatif (en mêtres) entre pointes
d'aile.
OV =
ouverture verticale approximative en mètres.
■ Chalut de fond à grande ouverture verticale à 4 faces
■ Chalut pélagique pour 1 bateau
■ Chalut pélagique pour 2 bateaux

n = nombre de mailles en largeur (coutures non comprises) au niveau du
carré de ventre
CD = longueur
(en mètres) de la corde de dos (sans les bouts libres)
ME = longueur d'une maille étirée (en mètres) au niveau
considéré
EH = écartement horizontal approximatif (en mètres) entre
pointes d'aile.
OV = ouverture verticale approximative en mètres.
Principaux types, réglages, longueurs relatives
■ Chaluts de fond à faible ouverture verticale

■ Chalut de fond à grande ouverture verticale : bras et entremises

■ Réglages

■ Longueurs relatives des éléments du gréement
F
jusqu'à 2,2 fois
la sonde sur grands fonds
jusqu'à 10 fois la
sonde sur petits fonds.
En règle générale :
F
= funes filées (m)
B = longueur des bras, ou
des bras
+ entremises, ou des
fourches (m)
* Limité
à un ou quelques maillons de chaîne Pour les puissances à retenir, voir p. 95
Puissance en (ch) = 1,36 x Puissance en (kW)
■ Chalut de fond à grande ouverture verticale : fourches

■ Chalut pélagique pour 1 bateau

■ Chalut de fond

■ Chalut pélagique
P : puissance des chalutiers*
L : distance chalut-chalutuier
G : lest en avant du chalut
d : écart des chalutiers
*
Pour les puissances à retenir, voir p. 95
Puissance en (ch) = 1,36 x
Puissance en (kW)
Il faut estimer l'inclinaison des funes
Attention : uniquement à défaut de sondeur de corde de dos méthodes très imprécises, gare au chalut sur le fond.
Si I'on dispose d'un rapporteur ou autre système pour mesurer l'inclinaison de la fune
Sans rapporteur ou autre système
|
Distance
mesurée D cm |
FILAGE FUNES (m) | ||||
| 100 | 200 | 300 | 400 | 500 | |
| 99 | 14 | 37 | 42 | 56 | 70 |
| 98 | 21 | 42 | 62 | 83 | 103 |
| 97 | 25 | 49 | 72 | 94 | 116 |
| 96 | 28 | 57 | 82 | 106 | 130 |
| 95 | 31 | 62 | 92 | 123 | 153 |
| 94 | 34 | 68 | 103 | 138 | 174 |
■ Chaluts
Types golfe du Mexique
Exemples de maillages
(mailles étirées en mm)
Guyanne
française : 45
Afrique occident. :
40-50
Golfe persique :
30-40/43-45
Madagascar : 33-40
Inde: 50-100
Australie : 44
En zones tropicales, le rendement de pêche est proportionnel à l'ouverture horizontale du chalut. Pour avoir la plus grande ouverture horizontale, il existe
1) Des types de chaluts particuliers
2) Gréement spécial

■ Gréement à tan-gons
(Ce gréement permet d'accroître le rendement en crevettes de 15 à 30 % par rapport à l'utilisation d'un chalut unique). Vitesse de chalutage 2,5 à 3 nœuds
|
Puissance motrice ch* |
longueurs (m) | ||
|
corde de dos |
pattes d'oie |
tangons | |
| 100-150 | 12-14 | 33 | |
| 200-250 | 15-17 | 35 | 9 |
| 250-300 | 17-20 | 40 | |
| 300-400 | 25 | 45 | 10 |
| 500 | 24 | 50 | 12 |
| Sonde (m) | Filage (m) |
| -20 | 110 |
| 20 à 30 | 145 |
| 30 à 35 | 180 |
| 35 à 45 | 220 |
* Pour les puissances à retenir, voir p. 95
■ Chalut de fond

■ Chalut pélagique pour 1 bateau

■ Chalut pélagique bœuf

| Puissance réelle (ch)* |
|
|||||
| FI (kaf) P (ch)* |
L1 (kg air) P (ch)* |
F2 (kgf) P (ch)* |
12 (kg air) P(ch)* |
F3 (kgf) P (ch)* |
L3 (kg air) P (ch)* |
|
| 50 | F1 = P x........ | L1 = P x........ | F2 = P x ..... | L2 = P x........ | F3 = P x........ | L3 = P x........ |
| 100 | 0,20 | 0,28 | 0,27 | 0,29 | 0,28 | 0, 33 |
| 200 | 0,20 | 0,25 | 0,24 | 0,27 | 0,25 | 0,31 |
| 400 | 0,20 | 0,22 | 0,22 | 0,24 | 0,22 | 0,28 |
| 600 | 0,20 | 0,22 | 0,21 | 0,23 | 0,21 | 0,27 |
| 800 | 0,18 | 0,20 | 0,19 | 0,22 | 0,19 | 0,26 |
– Pour les flottabilités, les valeurs indiquées correspondent à des filets en polyamide (nylon), fibre synthétique de flottabilité négative. Pour les filets en textile flottant (PE, PP), on peut diminuer la flottabilité de 10 à 15 %.
– Les lestages indiqués sont estimés à 5-10% près. Ils peuvent varier en fonction de la vitesse de chalutage, de la nature du fond, de l'importance du boulage, des espèces à capturer, etc. Ces poids sont établis pour des lests en chaîne. Pour des matériaux d'autre nature, la densité de ceux-ci devra être prise en compte.
Exemple :
Pour un poids dans l'eau équivalent, 3 à 3,5 kg dans l'air de rondelles de
caoutchouc correspondent à 1 kg dans l'air de
chaîne (voir p. 4)
* Pour les puissances à retenir, voir p. 95
Puissance en (ch) = 1,36 x Puissance en (kW)
|
|
■ Chaluts pélagiques (ouverture verticale maximum) : intermédiaires en PP tressé, bourrelet en corde plombée. |
| ■ Chalutage à grande ouverture verticale ; intermédiaires en PP tressé, bourrelets en chaîne. | |
| ■ Chaluts à crevettes, fonds doux : bourrelet en coco avec anneaux de plomb. | |
|
■ Chaluts à grande ouverture verticale à deux entremises : bourrelet en rondelles de caoutchouc Même chaluts que cidessus, mais usage plus lourd : bourrelets en rondelles avec disques de caoutchouc et chaînesintermédiaires. |
|
| ■ Chaluts à poissons ou à crevettes, fonds durs : bourrelet avec rondelles de caoutchouc et sphères en plastique dur. | |
| ■ Chalut à poissons ou crevettes : sur fonds mous ou sales ; bourrelet avec rondelles en bois montées en deux sections sans avoir à enfiler sur le câble. |
■ Écartement des panneaux

■ Écartement du chalut
Écart entre les pointes d'ailes du chalut, EH
Exemple :
Soit
un chalut de 25 m de long (sans sa poche) gréé avec des bras de 50 m ;
pour un filage donné, l'écart estimé des panneaux (D) est de 40 m
Proportions de différents types de panneaux
■ Panneau de fond rectangulaire plat

■ Panneau de fond à crevette

■ Panneau de fond rectangulaire V

■ Panneau pélagique Suberkrub

■ Angles d'attaque et tierçage de différents types de panneaux

■ Angle d'attaque

■ Réglage de l’angle d’attaque
■ Réglage de l’assiette

|
|
Abaisser un peu les branchons vers la semelle, si possible |
| Remonter un peu les branchons si possible, ou ajouter une semelle supplémentaire | |
| Rallonger la patte du haut (a) ou raccourcir la patte du bas (b) | |
| Raccourcir la patte du haut (a) ou ralloger la patte du bas (b) |
■ Rectangulaires et ovales creux :
Les poids indiqués ci-dessous sont des valeurs maximales. Pour une puissance donnée, on utilise cependant fréquemment des panneaux de la surface indiquée mais beaucoup moins lourds (jusqu'à la moitié)
| Puissance* (ch) | Panneaux rectangulaires | Panneaux ovales creux | Poids (kg) | ||||
| Dimesions | Surface | Dimesions | Surface | ||||
| L (m) | h (m) | m2 | L (m) | h (m) | m2 | ||
| 50-75 | 1,30 | 0,65 | 0,85 | 45 | |||
| 100 | 1,50 | 0,75 | 1,12 | 1,40 | 0,85 | 0,93 | 100-120 |
| 200 | 2,00 | 1,00 | 2,00 | 1,75 | 1,05 | 1,45 | 190-220 |
| 300 | 2,20 | 1,10 | 2,42 | 1,90 | 1,10 | 1,55 | 300-320 |
| 400 | 2,40 | 1,20 | 2,88 | 2,20 | 1,25 | 2,15 | 400-420 |
| 500 | 2,50 | 1,25 | 3,12 | 2,40 | 1,40 | 2,65 | 500-520 |
| 600 | 2,60 | 1,30 | 3,38 | 2,60 | 1,50 | 3,05 | 600-620 |
| 700-800 | 2,80 | 1,40 | 3,92 | 2,90 | 1,60 | 3,65 | 800-900 |
■ En V
| Puissance* (ch) |
Surface m2 |
Poids (kg) |
| 100 | 1,40 | 240 |
| 200 | 2,10 | 400 |
| 300 | 2,50 | 580 |
| 400 | 2,90 | 720 |
| 500 | 3,30 | 890 |
| 600 | 3,60 | 1 000 |
| 700 | 3,90 | 1 100 |
| 800 | 4,20 | 1 200 |
■ A crevettes (à tangons)
| Puissance* (ch) |
Dimensions m |
Poids kg |
| 100-150 | 1,8 x 0,8 - 2,4 x 0,9 | 60-90 |
| 150-200 | 2 x 0,9 - 2,45 x 1 | 90-100 |
| 200-250 | 2,4 x 1 - 2,45 x 1 | 120 |
| 250-300 | 2,5 x 1 - 2,7 x 1,1 | 160 |
| 300-450 | 3 x 1,1 -3 x 1,2 | 220 |
| 450-6020 | 3,3 x 1,1 -3,3 x 1,3 | 300 |
■ Pélagiques, Suberkrub
| Puissance* (ch) |
Dimensions | Surface (m2) |
Poids (kg) |
|
| H (m) | l (m) | |||
| 150 | 1,88 | 0,80 | 1,50 | 90-100 |
| 200 | 2,05 | 0,87 | 1,80 | 110-120 |
| 250 | 2,12 | 0,94 | 2,00 | 150-160 |
| 300 | 2,28 | 0,97 | 2,20 | 170-180 |
| 350 | 2,32 | 1,03 | 2,40 | 220-240 |
| 400 | 2,42 | 1,07 | 2,60 | 240-260 |
| 450 | 2,51 | 1,12 | 2,80 | 260-280 |
| 500 | 2,68 | 1,14 | 3,00 | 280-300 |
| 600 | 2,86 | 1,22 | 3,50 | 320-350 |
| 700-800 | 3,00 | 1,33 | 4,00 | 400-430 |
Exemple du rapport entre la surface du fil (voir p. 37) d'un chalut pélagique (SF, en m2) et la surface d'un panneau - Suberkrub (Sp, en m2) adapté à ce chalut :
* Pour les puissances à retenir, voir p. 95
Puissance en (ch) = 1,36 x
Puissance en (kW)
■ Exemple sur un chalut 25.5/34
| Puissance* ch | L x l |
| 150-250 ch | 0,55 x 0,45 m |
| 250-350 ch | 0,60 x 0,45 m |
| 350-500 ch | 0,65 x 0,50 m |
| 500-800 ch | 0,80 x 0,60 m |
Note : Le plateau élévateur peut être remplacé par une pièce de toile collée à partir de la corde de dos contre la face interne du dos du chalut
* Pour les puissances à retenir, voir p. 95
Puissance en
(ch) = 1,36 x Puissance en (kW)
■ Caractéristiques des funes en acier selon la puissance du chalutier
| ch* |
Ø (mm) |
kg/m | R kgf |
| 100 | 10,5 | 0,410 | 5 400 |
| 200 | 12,0 | 0,530 | 7 000 |
| 300 | 13,5 | 0,670 | 8 800 |
| 400 | 15,0 | 0,830 | 11 000 |
| 500 | 16,5 | 1,000 | 13 200 |
| 700 | 18,5 | 1,200 | 15 800 |
| 900 | 19,5 | 1,400 | 18 400 |
| 1200 | 22,5 | 1,870 | 24 500 |
|
R = Résistance à la rupture |
|||
■ Filage des funes selon la sonde en chalutage de fond
(par petits fonds (< 20 m), le filage ne devrait pas être inférieur à 120 m)
Courbe donnée à titre indicatif, le patron décidera, selon la nature du fond, l'état de la mer, le courant...
* Pour les puissances à retenir, voir p. 95
Puissance en (ch) = 1,36 x Puissance en (kW)
| Principaux goupes d'espèces | Vitesse
moyenne de chalutage (nœuds) |
|
| Crevettes, petites espèces de poissons de fond, poissons plats | ||
| – | très petits chalutiers | 1,5 - 2 |
| – | chalutiers moyens et grands | 2,5 - 3,5 |
| Poissons de fond de taille moyenne et petits pélagiques | ||
| – | petits chalutiers | 3-4 |
| – | chalutiers moyens et grands | 4-5 |
| Céphalopodes (encornets, seiches,...) | 3,5 - 4,5 | |
| Poissons pélagiques (de taille moyenne) | > 5 | |
P = Puissance nominale du moteur = Puissance au frein = BHP
(C'est la puissance généralement indiquée), exprimée en ch (chevaux vapeur)
ou en kW (kilowatt).
1 ch = 0,74 kW
1 kW = 1,34 ch
■ Puissance disponible pour le chalutage
| hélice | k | |
| pas fixe | moteur rapide | 0,20 |
| moteur lent | 0,25 - 0,28 | |
| pas variable | 0,28 - 0,30 | |
Avec k, variable selon l'hélice et le régime du moteur
par mer agitée, (p) est réduit d'un tiers
La puissance disponible pour le chalutage représente 15 à 20 % de la puissance nominale. Cette puissance est utilisée en traction pour le train de pêche
IMPORTANT
■ Choix des caractéristiques du train de pêche en fonction de la puissance
Les tableaux de ce guide qui comportent une indication de puissance de chalutier font référence à la puissance nominale du moteur (PN)
Si le chalutier a une hélice normale, n'a pas de tuyère et un taux de réduction moyen (2 à 4:1), on pourra entrer dans les tableaux tels quels.
Si le chalutier a une hélice à pas variable et/ou une tuyère, il faudra, pour rentrer dans les tableaux, calculer avant une puissance nominale apparente.
Puissance Nominale Apparente PNA (ch) = Traction (kg) au point fixe x 0,09
| Ex. : | Un chalutier avec hélice à pas variable et tuyère est équipé d'un moteur de Puissance Nominale PN = 400 ch, sa traction mesurée au point fixe est de 6 000 kg. |
Les caractéristiques du train de pêche seront choisies dans les tableaux en fonction d'une Puissance Nominale Apparente de 6 000 x 0,09 = 540 ch et non en fonction de 400 ch.
■ Traction exercée par le chalutier au point fixe (vitesse = 0)
Traction To (kg) =
10 à 12 kg par ch de
puissance nominale avec hélice normale
13 à 16 kg par ch de puissance nominale avec hélice à pas variable ou
tuyère
■ Traction exercée par le chalutier en pêche
– A partir de la puissance du moteur :
– A partir de la traction du bateau au point fixe :
Pour que deux bateaux de caractéristiques différentes chalutent en bœuf, choix des régimes moteurs appropriés pour chacune des unités
Le bateau A tire le bateau B, moteur débrayé, à la vitesse choisie, par exemple 2 nœuds.
Puis le moteur du bateau B est embrayé et son régime augmenté progressivement jusqu'à ce que B retienne le bateau A.
On note alors, pour la vitesse de chalutage choisie de 2 nœuds, les régimes des moteurs des bateaux A et B.
On répète les mêmes opérations pour d'autres vitesses afin de couvrir ia gamme de vitesse habituellement utilisée en chalutage.
|
Régime |
Moteur A |
Moteur B |
| Vitesse | ||
| 2nd | – | – |
| 2,5 | – | – |
| 3 | – | – |
exemple de plan et gréement
| Filet maillant | Bateau |
| Calé sur le fond | Lht 5-15 m |
| Pour araignées | ch 15-120 |
| Bretagne, France |
■ Choix du maillage en fonction de l'espèce à pêcher
Il existe un rapport entre le maillage et le périmètre du corps ou la longueur du poisson que l'on veut capturer. (formule de FRIDMAN)
où OM (mm) = ouverture de maille
L Poisson (mm) =
longueur moyenne des poissons à pêcher
K = coefficient
fonction de l'espèce
K = 5 pour les poissons longs et
étroits
K = 3,5 pour les
poissons moyens
K = 2,5 pour les
poissons épais, hauts ou larges
à titre indicatif - quelques exemples de maillages adaptés, exprimés en « maille étirée » mm :
| Poissons demersoux (tropiques, équateur) |
|
| Capitaine | 120-140 |
| Mulet | 110-120 |
| Courbine | 160-200 |
| Dorade | 140-160 |
| Barracuda | 120 |
| Polynemîdes Pomadasides |
50 |
| Ariides | 75 |
| Poissons demersaux (zone septentrionale) |
|
| Morue | 150-170 |
| Lieu noir | 150-190 |
| Lieu noir (Pacifique) | 90 |
| Sole | 110-115 |
| Merlu | 130-135 |
| Rouget | 25 |
| Flétan (Groenlant) | 250 |
| Lotte, turbot | 240 |
| Crustacés | |
| Crevette (Inde) | 36 |
| Langouste verte | 160 |
| Langouste rouge | 200-220 |
| Araignée | 320 |
| Crabe royal | 450 |
| Petits poissons pélagiques | |
| Aterine, sprat | 22-25 |
| Hareng | 50-60 |
| Anchois | 28 |
| Sardine | 30-43 |
| Sardinelle | 45-60 |
| Ethmalose | 60-80 |
| Maquereau petit | 50 |
| Maquereau gros | 75 |
| Maquereau espagnol chinchard | 100-110 |
| Grands poissons pélagiques et requins | |
| Maquereau bonite listao | 80-100 |
| Marlin, Voilier | 120-160 |
| Bonite, cavalle | 125 |
| Thon rouge | 240 |
| Requins | 170-250 |
| Espadon | 300-330 |
| Saumon | 120-200 |
■ Nature du fil constituant l'alèze
Le fin doit être fin mais sans excès, pour ne pas endommager les poissons emmaillés ; résistant, surtout pour les filets maillants calés, selon la grosseur des poissons et la taille de la maille ; peu visible, d'une couleur se fondant avec le milieu ou invisible (mono ou multimonofila-ment) ; souple
Note : tenir compte du lait qu 'un fil avant de se rompre, peut s'allonger de 20 à 40 %.
■ Choix du diamètre du fil
Le fil utilisé sera proportionnel à la dimension de la maille : le rapport
(dans la même unité) doit être compris entre 0,005 pour les filets utilisés en eaux calmes, avec capture limitée, et 0,02 pour les dérivants au large ou calés sur le fond. Le rapport moyen est égal à 0,01.
■ Grosseur du fil nécessaire selon la dimension de la maille et l'utilisation du filet maillant
| maille | eaux intérieures, lacs, rivières |
eaux côtières | eaux du large | |||||
| mm | multifil. m/kg |
monofil. Ø |
multifil. m/Kg |
monofil. Ø |
multimono. n x Ø |
multifil. m/Kg |
monofil. Ø |
multimono. n x Ø |
| 30 | 20 000 | 0,2 | 10 000 | 0,4 | ||||
| 6 660 | ||||||||
| 50 | 20 000 | 0,2 | 13 400 | 0,2 | 6 660 | |||
| 60 | 13 400 | 10 000 | 4 440 | |||||
| 80 | 10 000 | 6 660 | 4 x 0,15 | 4 440 | 0,28-0,30 | 6 à 8 x 0,15 | ||
| 100 | 6 660 | 4 440 | 0,3 | 3 330 | 0,5 | |||
| 120 | 6 660 | 4 440 | 0,35-0,40 | 3 330 | 0,6 | 6 x 0,15 | ||
| 140 | 4 440 | 3 330 | 0,33-0,35 | 6 x 0,15 | 2 220 | 8 x 0,15 | ||
| 160 | 3 330 | 3 330 | 0,35 | 8 à 10 x 0,15 | 2 220 | 0,6-0,7 | ||
| 200 | 2 220 | 2 220 | 1 550 | 0,9 | 10 x 0,15 | |||
| 240 | 1 550 | 1 550 | 1 100 | |||||
| 500 | 1 615-2 220 | |||||||
| 600 | 3 330 | 1 615-2 220 | ||||||
| 700 | 2 660 | |||||||
■ Influence du rapport d'armement sur le mode de fonctionnement du filet
Généralement, le rapport d'armement horizontal E est voisin de 0,5 pour les filets maillants (voir p. 38)
– Si E est plus petit que 0,5, le filet sera plutôt emmêlant, et pourra capturer une variété importante d'espèces différentes. C'est le cas de la plupart des filets calés.
– Si E est plus grand que 0,5, le filet sera plutôt maillant, et plus sélectif que dans le cas précédent. C'est le cas de la plupart des filets dérivants.
■ Exemples de montage
Sur la ralingue du haut garnie de flotteurs
Sur la ralingue du bas garnie de lests
Filet trémail
Calé ou dérivant sur
le fond pour crevettes
Sri Lanka
■ Choix des mailles en fonction de la taille des espèces recherchées
Nappe centrale :
Son maillage doit être suffisamment petit, compte tenu de la taille des
plus petits poissons que l'on veut capturer - par boursage. A titre indicatif,
on peut faire référence à la formule de FRIDMAN appliquée aux poches de filets
:
où OM (mm] = ouverture de maille de la nappe centrale
L (mm) = longueur des poissons les plus
petits que l'on souhaite capturer
K = coefficient
dépendant de l'espèce
K = 5 pour les poissons longs et
étroits
K = 3,5 pour les
poissons moyens
K = 2,5 pour les poissons épais, hauts ou larges
Nappes externes :
Leurs maillages seront 4 à 7 fois plus grands que celui de la nappe
centrale.
■ Hauteur étirée de la nappe centrale
Elle doit être d'une fois et demie à deux fois la hauteur étirée d'une nappe externe.
■ Hauteur pratique dans l'eau
Elle est conditionnée par la hauteur des nappes externes, la nappe centrale devant être très floue.
■ Rapports d'armement des nappes
Le rapport d'armement horizontal est le plus souvent voisin des valeurs suivantes :
E nappe centrale = 0,4
à 0,5
E nappes externes =
0,6 à 0,75
■ Filets maillants flottants
|
|||
| F (gf/m) | 100 - 160 | F2 = 50 - 120 | 600 - 1 500 |
| F1 = 50 - 80 | |||
| P (g/m) | 50 - 80 | P1 = 30 - 80 | 300 - 1 000 |
| P1 = 25 - 60 | |||
| F/P | 2 | F2/P2 2 - 2,5 | 1.5 - 2 |
| Langueur ralingue inf./Langueur ralingue sup.„1 (plus petit ou égal) |
F1 pf + p1 pf = poids du filet dans l'eau |
||
■ Filets maillants et trémails de fond
![]() |
||
| F (gf/m) | 40 - 80 | 100 - 250 |
| P (g/m) | 120 - 250 | 250 - 400 |
| F/P | ~ 1/3 -1/5 | 1/2 - 1/2,5 |
| Langueur ralingue inf./Langueur ralingue sup.„1 (plus petit ou égal) |
||
Remarques : Il n'est pas tenu compte des poids de mouillages (ancres, grappins, etc.)
Exemples
■ Calé (filet maillant et trémail)
■ Dérivant (filet maillant uniquement)
exemple de plan et gréeement
| Casier | Bateau |
| Pour crabes | Lht 12-15 m |
| Hokkaïdo, Japon | ch 40-100 |
| Terre-Neuve, Canada |
Ces engins, qui peuvent être utilisés pour la pêche de poissons, crustacés, coquillages, céphalopodes, se présentent sous une grande variété de formes et de dimensions et sont constitués de matériaux très divers.
Ils peuvent être employés posés au fond, ou en pleine eau, avec ou sans appât.
■ Choix du volume des nasses et casiers
Le volume intérieur disponible pour la
capture doit donc être suffisamment important afin d'éviter tout phénomène de
saturation.
Au-delà d'un certain remplissage par
les individus piégés, une nasse ou un casier n'est plus efficace.
En contrepartie, un volume trop important peut, dans certains cas, favoriser le cannibalisme.
Quelques exemples
| Espèces | Pays | Volume dm3* |
| Poulpe | 6 | |
| Petites crevettes | 40-70 | |
| Petits crabes | Japon | 70-90 |
| Crabes | Canada | 450 |
| King Crab, crabe des neiges | Canada, USA | 2 500-4 500 |
| Langouste, Homard | Europe | 60-130 |
| Homard | USA | 200 |
| Langouste | Caraïbes | 300-800 |
| Langouste | Australie | 2 500 |
| Sparidés | Maroc | 150-200 |
| Divers poissons de récifs | Caraïbes | 500-700 jusqu'à 2 000 |
| Loup, brosme | Norvège | 1 300 |
| Mérou | Inde | 1 400 |
| Mérou noir | Alaska | 1 800 |
* Toutes les dimensions utilisées pour le calcul du volume (voir p. 157} du casier sont exprimées en décimètres (dm).
■ Choix des matériaux constitutifs
Lors du choix, on ne devra pas négliger la résistance des matériaux à l'immersion, à la corrosion, la sensibilité aux salissures.
■ Parois des casiers : dimension des mailles, écartement des lattes
en relation directe avec les tailles des espèces cibles
– Quelques exemples de maillages (mailles en losange) des filets couvrants les casiers
Quelques exemples :
| Espèces | maille en losange |
| Petites crevettes (Europe) |
8-10 |
| Petits crabes (Japon) |
12 |
| Crabes tourteau (Europe) |
30 |
| Crabes (Canada, USA) |
50 |
| Crabe royal King Crob (Alaska) |
127 |
| Langouste (France Maroc) |
30-40 |
| Homard | 25-35 |
| Brosme, Loup (Norvège) |
18 |
| Sparides divers | |
| Mérou (Inde) |
40 |
| Morue noire (USA) |
|
| Poissons récif (Caraïbes) |
15-20 |
| Capitaines (Australie) |
Alternatives
Pour des casiers à
homard :
Mailles en
triangle ∆\ 60 à 80 mm
Mailles rectangulaires
50 à 25 mm
Lattes parallèles,
écart 26 à 38 mm
Pour des nasses à
poissons :
Mailles en triangle ∆\ pour Spari-des divers 35 à 40 mm
Mailles
rectangulaires
pour morue noire (USA) 50,8 x 50,8 mm
Mailles hexagonales ☼ pour capitaine (Australie) 25 à 4U mm
■ Lest
Très variable, entre 10 et 70 kg par unité, selon le type et la taille du casier, selon la nature du fond et le courant.
■ Forme des entrées
Entrée en forme de cône ou de pyramide tronquée, droite ou parfois coudée (voir casier à vivaneaux des Caraïbes)
■ Position des entrées
Quelques
exemples :
Casiers à poisson et à céphalopodes : entrée(s)
par le (ou les) côtés
Casiers à crustacés : entrée(s) par le (ou les) côtés ou par le dessus
■ Diamètre des gouloftes d'entrée
En relation directe avec la nature et la taille des espèces-cibles.
Quelques exemples
|
Espèces |
Pays | Diamètre de l'entrée (cm) |
| Petites crevettes | 4-6 | |
| Crabes petits à moyens | Japon, USA | 14-17 |
| Crabe des neiges | Canada | 36 |
| Crabe royal | Alaska | 35-48 |
| Langouste | Europe, | 10-20 |
| Australie, Caraïbes | 23 | |
| Homard | Europe | 10-15 |
| Sparidés | Maroc | 7-10 |
| Brosme, loup | Norvège | 10 |
| Mérou | Inde | 21 |
| Morue noire | USA | 25 |
| Capitaines | Australie | 25-31 |
| Vivaneau | Caraïbes | 23 |
■ A poissons ou céphalopodes
■ A crustacés
B : Avançon
Résistance de la ligne principale (fil noué, mouillé ; kg) > poids maximal d'un poisson (même s'il y a plusieurs avançons)
– Exemples de résistance de la ligne principale selon la capture attendue (valeurs en usage)
|
Espèce |
Résistance à la rupture en Kg (fil noué, mouillé) |
| Daurade, pageot, vivaneau | 7-15 |
| Courbine, congre, chien, pagre | 15-30 |
| Cernier, mérou, morue, dentex, murène | 30-40 |
| Vivaneau, mérou | 100 |
| Thon, albacore | 150-200 |
Résistance avançon (fil noué, mouillé ; kg)~0,5 à 1 x Résistance de la ligne principale
Hameçons et leurres, voir p. 43 à 45
Vitesse de traîne de 2 à 7 nds selon l'espèce recherchée
A : Amortisseur DP : Dépresseur DV : Divergent
■ Amortisseur (A)
Pour amortir la tension brutale sur la ligne quand le poisson mord
■ Dépresseur (DP)
Pour traîner la ligne en profondeur
■ Divergent - Dépresseur (DV)
Pour écarter la ligne du sillage du bateau et traîner en profondeur
| Palangres pour chiens, raies, congre, lingue, | Bateau |
| Lht 14-15 m | |
| Manche, France | TJB 20-30 |
| ch 150 |
Elles sont constituées d'une ligne principale (ou maîtresse) portant des avançons terminés par des hameçons.
■ Choix du matériau et du diamètre de la ligne
Fonction :
– du poisson
recherché
– du type de
palangre : de fond ou pélagique
– des conditions d'utilisation : manuelle ou mécanique
Pour choisir le diamètre - et donc la résistance à la rupture - ou doit tenir compte de la grosseur des poissons que l'on veut capturer mais aussi du déplacement et donc de l'inertie du bateau utilisateur.
On peut empiriquement
choisir une ligne dont la résistance à la rupture (en kg, fil sec) est :
– à la fois
supérieure à 10 fois le tonnage du palangrier et au carré de sa longueur
– au moins égale
à 10 fois le poids maximal d'un poisson
Ex. : Quelle doit être la grosseur minimale de la ligne principale de la palangre utilisée pour dorades et grondins pour un bateau de 9 m et 4 tx de jauge ?
Résistance
Supérieure à 4 (tx) x 10 40 kg
Supérieure à 9 m x 9 m 81 kg
(si on pense capturer des poissons d'au plus 10 kg l'un)
Supérieure à 10 kg x 10 100 kg
La ligne principale pourra donc être soit en corde ou tresse de nylon Ø 2 mm (Res. 130-160 kg), en nylon monofilament 170/100 (Res. 110 kg), en polyéthylène Ø 3 mm (Res.135 kg).
■ Avançons
Ils doivent être peu visibles dans l'eau, mais parfois en acier (pour thon et requins par exemple)
Résistance à la rupture
Au moins égale à 2 fois le poids du poisson attendu (fil noué, mouillé)
(pratiquement, la résistance de la ligne mère sera égale à 3 à 10 fois celle de l'avançon)
Longueur:
En général inférieure à la moitié de la distance séparant 2 avançons sur la ligne mère (pour éviter l'emmêlement)
■ Hameçons
Choisis, par expérience, en fonction de la taille du poisson et de son comportement, le poisson capturé ne devra pas se décrocher et rester vivant. Voir p. 43 et 44.
câlées (horizontales) : gréements divers
■ Semi pélagique
■ De fond
Quelques exemples :
| PRINCE | soit ■
Palangre montée une fois pour toute
|
soit ■
Palangre démontable
|
|
| STOCKAGE A BORD |
|
Ligne principale | Avançons (ou hameçons) |
|
|
|
||
| FILAGE | Machine à boétter |
|
|
| VIRAGE |
|
||
■ En surface

■ Sur le fond
Quelques types d'ancres

■ Caractéristiques :
Engin rigide traîné sur le fond (modèles pour fonds meubles, modèles pour fonds très durs)
Petites dimensions
– Largeur
généralement < 2 m, exceptionnellement jusqu'à 5 m
– Hauteur toujours < 0,5 m
lourd (adhérence au fond)
■ Divers modèles, quelques exemples

■ Puissance nécessaire
1 ch pour 2 kg de dra gue
■ Câble de traction
(unique)
■ Filage selon la hau teur d'eau et la vitesse
Le filage doit augmenter avec la vitesse en général 3 à 3,5 x profondeur (à 2-2,5 nœuds)
■ Vitesse de dragage :
2 à 2,5 nœuds
■ Gréement, quelques exemples
