Page précédente Table des matières Page suivante


Comment produire du combustible? Quelques techniques simples

Jacek Janczak

JACEK JANCZAK est un ingénieur polonais. Le présent article a été écrit pour la FAO à l'intention de la Conférence des Nations Unies sur les sources d'énergie nouvelles et renouvelables, Nairobi, août 1981.

1. Presse à fagots simple faite d'un tronc fendu

2. Liage d'un fagot

3. Dispositif de pressage des fagots

Les techniques simples pouvant être utilisées dans les pays en développement pour produire du combustible permettent de tirer parti des ressources disponibles sans personnel ni matériel spécialisés. Les outils nécessaires peuvent être produits sur place, mais il faudrait organiser des programmes rationnels de démonstration et de formation dans de vastes régions des pays intéressés.

Il suffit d'un traitement simple pour accroître dans des proportions considérables la valeur calorifique des résidus d'origine biologique, mais pour obtenir une combustion optimale il faut des chaudières ou fourneaux spéciaux adaptés à chaque type de combustible. Par combustible, on entend une substance qui, par réaction chimique exothermique, produit de la chaleur. L'essentiel de l'oxygène entrant dans la réaction provient de l'air qui, en volume, contient 21 pour cent d'oxygène et 79 pour cent d'azote. Dans tout combustible, on peut distinguer deux éléments, à savoir: l'élément proprement combustible, qui comprend des matières volatiles et matières solides, et l'élément non combustible, c'est-à-dire les cendres et l'eau.

Pour obtenir une utilisation optimale du combustible, il faut régler la vitesse de combustion, ce qui se fait en dosant l'admission d'air dans la chambre de combustion.

Le principal critère d'une bonne combustion est que le combustible utilisé est entièrement consumé. La combustion des déchets agricoles est généralement mauvaise, mais peut être améliorée si les déchets sont agglomérés, densifiés ou séchés.

L'humidité réduit la valeur calorifique des combustibles car l'évaporation de l'eau consomme de la chaleur. Ainsi, il faut 5,5 fois plus de chaleur pour faire évaporer un litre d'eau que pour le porter de la température ambiante à l'ébullition. D'où la différence considérable de pouvoir calorifique entre le bois vert et le bois sec (tableau 2).

Traitement des combustibles d'origine biologique

Bois de feu. Le petit bois, la paille, le foin et les feuilles sèches sont souvent les seuls combustibles dont disposent les ruraux. Les bûches, lorsqu'il y en a, sont généralement trop chères. Mais les matériaux disponibles brûlent si vite qu'il est difficile d'entretenir un feu régulier permettant une bonne cuisson des aliments.

Dans ces conditions, le moyen le plus simple d'améliorer la combustion est de faire des fagots très comprimés dans lesquels le matériel végétal est a aggloméré» ou «densifié». On réduit ainsi la pénétration de l'air, ce qui lustrés aux figures 1 à 5 peuvent être bricolés à la maison pratiquement sans frais ou fabriqués par les forgerons locaux.

Briquettes. Les résidus de bois ou de plantes cultivées - sciure, gousses de café, etc., ne peuvent être brûlés directement dans des fourneaux domestiques. Ils brûlent mal, produisent beaucoup de fumée et ne conviennent pas à la cuisson des aliments. Il en va de même du poussier de charbon de bois, ralentit la combustion. Les fagots bien serrés doivent être composés d'un mélange de rameaux et autres matériaux cellulosiques avec, si possible, un morceau de bois au milieu. Ils peuvent être comprimés au moyen de presses simples. Ils doivent être liés avec une poignée de paille, une corde artisanale ou un fil de fer.

Le fil de fer est le meilleur matériau parce qu'il résiste au feu. Avant usage, les fagots doivent être séchés longtemps dans un local bien aéré et protégé de la pluie (figures 1, 2, 3, 4, 4a et 5).

Les fagots peuvent être faits à la main, mais divers appareils permettent d'accroître la pression et, par suite, la valeur calorifique. Ceux qui sont il

Une des meilleures façons de les utiliser consiste à les agglomérer en briquettes. Pour cela, il existe deux procédés fondamentaux: avec et sans liant. Il vaut mieux éviter les liants, mais il faut alors des presses et des séchoirs complexes et coûteux, qui consomment beaucoup d'énergie.

La production de briquettes avec un liant tel que le goudron, la poix ou l'asphalte permet, au moyen de procédés industriels à haute pression, d'obtenir des briquettes d'anthracite, de poussier de coke et, dans une moindre mesure, de poussier de charbon. Ces procédés sont également complexes et coûteux; ils ne conviennent pas aux villages, mais ils pourraient être très utiles dans les projets de l'Etat ou des administrations locales, surtout dans les pays où abondent les déchets de bois et de récolte.

4. Presse de construction facile

4a. Pressage du fagot

5. Presse pour grands fagots

6. Presse à briquettes simple

7. Autre presse manuelle simple pour la fabrication de briquettes

En milieu rural, les meilleures méthodes de production de briquettes sont celles qui permettent d'utiliser les déchets et les matériaux de construction locaux. La fabrication devrait se faire dans des presses manuelles produites sur place. La briquette façonnée à la main conserve sa forme grâce surtout au liant. Selon les ressources locales, les meilleurs liants organiques combustibles sont la résine, le goudron, le fumier, les boues et les déchets de poisson.

Si l'on ne dispose pas de liant combustible ou si la nature des déchets à agglomérer est telle qu'un liant plus puissant est nécessaire, comme c est par exemple le cas pour le poussier de charbon de bois, il faut utiliser des liants non combustibles tels que vase, argile ou boue. Ces liants non combustibles réduisent la valeur calorifique de la briquette et en accroissent la teneur en cendres, mais ils permettent de recycler les matériaux qui autrement seraient perdus.

Presses. Les modèles vont des presses les plus simples produites artisanalement et relevant de techniques primitives aux machines automatiques très modernes. La figure 6 représente une presse manuelle très simple que n'importe quel forgeron de village est capable de fabriquer. La branche inférieure est fixée à une planche. La pression va de 50 à 100 kg par unité, soit de 5 à 15 kg/cm2. On obtient des boulets sphériques, ce qui évite de briser les coins, inconvénient fréquent dans les briquettes artisanales.

On utilise pour ces agglomérés du papier Journal macéré ou n'importe quel vieux papier. L'addition de cendres permet d'obtenir des boulets plus durs et de combustion plus lente. Chaque unité a environ 5 cm de diamètre et pèse à sec environ 30 g. On peut en faire de plus gros, mais le pressage est encore plus difficile. Pour fabriquer une presse, il suffit d'un à deux kg de fer et trois à quatre h de travail. Ce temps peut être considérablement réduit si le travail est bien organisé et que plusieurs presses sont fabriquées simultanément.

La figure 7 illustre un autre type de presse métallique simple pour briquettes. Elle permet d'obtenir une pression de 200 kg par briquette, soit environ 3 kg/cm2. Le moule est fixé à la base par une charnière, ce qui le rend mobile et facilite l'évacuation de la briquette. La presse peut être modifiée: on peut la construire de façon plus résistante et allonger le bras de levier. La base doit être surélevée. Une ouverture munie d'un couvercle métallique sera ménagée sous le moule. Quand la briquette est prête, on ouvre le couvercle au moyen du levier pour l'enlever.

Un autre appareil qui a été mis au point et essayé consiste en un moule carré dans lequel les matériaux sont comprimés au moyen d'une presse à vis semblable à celle qui sert à faire le vin. La pression peut atteindre 2 t par briquette, soit environ 40 kg/cm2. Mais la production est plus lente qu'avec la presse à levier.

On a obtenu de bons résultats avec des presses à briques modifiées. Elles sont bien connues dans les pays en développement sous diverses appellations telles que «Cinva-Ram» a Terstaram» et «Combustaram» (figure 8). Pour produire des briquettes, il faut insérer des moules de la forme voulue (figure 9).

En Europe, pendant la première guerre mondiale, on a employé, pour fabriquer des briquettes, des presses à vis fonctionnant selon le principe des machines à découper la viande. Elles permettaient d'obtenir une masse continue qui était dans un deuxième temps découpée en briquettes. Cette presse à vis avait une pression de loin inférieure à celle de la presse à piston.

Des presses industrielles modernes pour les déchets de bois et de récolte permettent d'obtenir des pressions beaucoup plus fortes, allant de 1 000 à 1200 kg/cm2. A ces pressions, la température est très élevée. La chaleur et la pression détruisent l'élasticité du bois, ce qui permet de former des briquettes sans liant.

Tableau 1. TEMPÉRATURE D'IGNITION DE MATÉRIAUX SOLIDES

Matériaux

Température d'ignition (°C)

Poussier de lignite

150-170

Poussier d'anthracite

150-220

Coke de lignite

300-400

Coke d'anthracite

350-700

Graphite

700-850

Charbon de bois tendre

250-300

Charbon de bois dur

300-450

Tourbe

200-450

Papier

300

Sciure

315-460

Source: Mesures effectuées par l'auteur.

Tableau 2. VALEUR CALORIFIQUE NETTE DES BOIS DE FEU

 

Valeur calorifique

Poids spécifique du bois sec

Sec

Vert

kcal/kg

kg/dm3

Pin (Pinus)

4 658

3870

0,49

Pin de Weymouth (Pinus strobus)

4 876

4 055

0,37

Bouleau (Betula)

4658

3 869

0,61

Epicéa (Picea)

4 622

3589

0,43

Mélèze (Larix)

4597

3818

0,55

Pin (Abies)

4 559

3 785

0,41

Robinier (Robinia)

4 527

3 760

0,73

Hêtre (Fagus)

4 478

3 705

0,69

Tilleul (Tilia)

4474

3713

0,49

Orme (Ulmus)

4419

3810

0,64

Chêne (Quercus)

4 329

3742

0,65

Frêne (Fraxinus)

4 329

3 593

0,68

Aune (Alnus)

4288

3555

0,49

Sycomore (Acer pseudoplatanus)

4 245

3 485

0,59

Peuplier noir (Populus nigra)

4 205

3 518

0,41

Source: T. Woiciechowski, Nauka o drewnie, PWRIL, Varsovie, 1961.

Tableau 3. MATÉRIAUX UTILISÉS POUR LA FABRICATION DE BRIQUETTES

Vieux papiers
Ordures municipales
Déchets de bois
Fibres de noix de coco
Tourbe
Terre de toundra
Déchets de coton
Sciure
Coques d'arachides
Coques de noisettes
Grignons d'olives
Bagasse
Ecorce
Balle de riz salle de graines de tournesol
Déchets de cuir
Chanvre
Fumier
Huile de vidange (comme additif aux ingrédients solides)
Foin
Broussailles
Déchets de poisson
Déchets des industries alimentaires

La société Fred Hausmann, Bâle (Suisse), fabrique une presse à piston de technique avancée (figure 10). La capacité va de 100 à 3 000 kg/h. Les matériaux utilisés peuvent être des déchets de bois, de la bagasse, de l'écorce d'arbres, des grignons, des déchets de cuir, des coques de noix, des vieux papiers, de la tourbe, de la balle de riz ou de graines de tournesol ou d'autres résidus agricoles. La presse à briquettes n'est qu'un des éléments du système de production qui, outre la presse, comprend une meule, un séchoir à suspension et une machine à emballer.

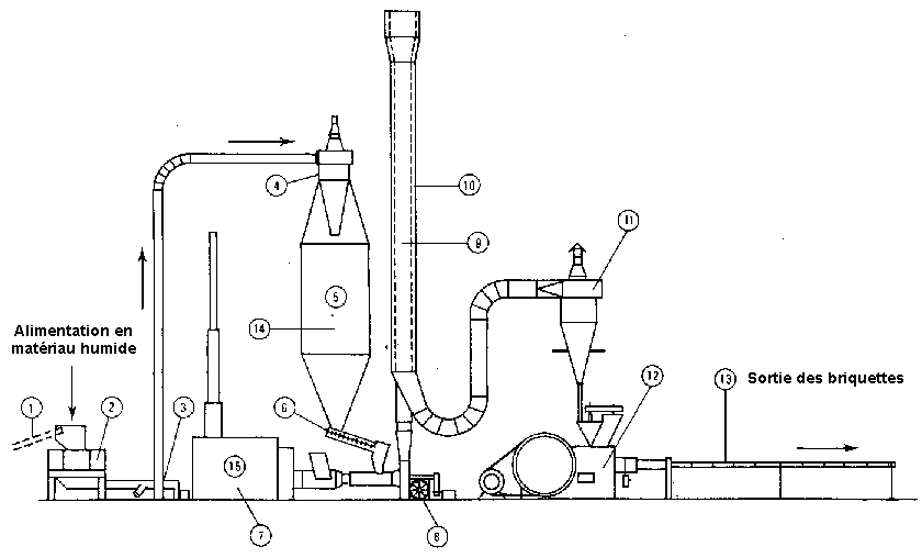
La figure 11 illustre une chaîne de production pour la fabrication de briquettes à partir de déchets de bois. L'industrie polonaise du bois utilise une installation analogue à celle-ci pour produire des briquettes à partir d'écorces. Elle comprend principalement une meule, un séchoir a suspension et une presse à briquettes.

Préparation des déchets

Dans la fabrication des briquettes, la première opération, commune à tous les procédés, est le déchiquetage ou le broyage des déchets combustibles. Dans le cadre d'une technologie villageoise simple où les matériaux à préparer sont des branches, des rameaux et de la paille, le meilleur outil pour déchiqueter les matériaux est la hache. Mais pour produire sur une grande échelle, il faut différents engins, tels que le broyeur de paille couramment utilisé par les agriculteurs européens.

La deuxième opération est le séchage des principaux éléments combustibles. Dans une technologie simple, le séchage doit pouvoir se faire sans emploi de combustible. Ainsi, la seule solution possible est un séchage naturel dans des aires bien aérées et protégées de la pluie. Ce séchage prend longtemps: il faut donc préparer d'avance les matériaux de base qui servent à produire les briquettes.

En troisième lieu, il faut mélanger les différents types de déchets et de liants pour obtenir une consistance et une valeur calorifique optimales. Si l'on dispose d'huile de vidange, on peut l'ajouter aux déchets; elle permet d'accroître la valeur calorifique des briquettes, mais les rend plus friables; il faut donc doser l'huile avec beaucoup de soin. Dans certains cas, pour conférer au matériau une certaine plasticité, il faut introduire un liant humide ou, comme pour le papier, le faire macérer avant de presser les briquettes.

La quatrième opération consiste à comprimer les briquettes; la cinquième est le séchage dans des abris à claire voie. Selon le liant employé et les conditions de séchage, le temps nécessaire pour obtenir des briquettes sèches peut aller de quelques jours à plusieurs mois. Le séchage accroît dans des proportions notables la valeur calorifique des briquettes et permet d'économiser du combustible. Les briquettes doivent donc être fabriquées longtemps avant l'emploi.

8. Presse à levier modifiée pour la fabrication de briquettes avec moule incorporé

Nouveaux types de combustible

L'expérience prouve que le succès de nouveaux projets techniques dépend de facteurs socio-culturels, historiques et économiques et non seulement de facteurs purement techniques. De nombreux projets apportant des améliorations techniques évidentes ont échoué parce que l'on n'a pas tenu compte des facteurs non techniques.

En démarrant un nouveau projet, il est essentiel de faire un travail préparatoire d'organisation et de recherche avant de décider des options techniques. La meilleure façon d'assurer le succès est d'évaluer la situation sous plusieurs angles, par exemple du point de vue des administrations forestières, des associations féminines, des sociétés de travaux à façon et des techniciens. Chacun de ces groupes devrait être invité à dire ce qu'il pense des ressources en déchets combustibles, du climat social, des attitudes de la population locale à l'égard de l'innovation, ainsi que des aspects économiques et autres de l'entreprise.

Sur la base de cette enquête, on pourra établir des objectifs pour la promotion de nouveaux combustibles. Ces enquêtes ne coûtent pas nécessairement cher et ne sont pas toujours très longues. Il ne faut pas négliger les effets sur l'environnement, car en brûlant les déchets de la biomasse, on élimine un élément important du cycle écologique. En effet, dans les conditions naturelles, les déchets de biomasse sont recyclés dans le sol. En détruisant cet équilibre délicat, on risque de faire baisser la productivité du sol et, dans des conditions extrêmes, de provoquer la désertification.

9 Moules à briquettes

Les combustibles ne sauraient être envisagés séparément des fourneaux dans lesquels ils doivent être brûlés, et il est recommandé d'entreprendre simultanément des programmes dans les deux domaines. Un programme combiné pourrait avoir pour objet d'améliorer les modèles de fourneaux et les types de combustible existants pour les adapter à la cuisine locale et de concevoir et construire de nouveaux modèles tout en introduisant de nouveaux types de combustible.

10. Une presse à piston peut produire jusqu'à 3 000 kg/h de briquettes

11. Chaîne de production de briquettes à partir de déchets de bois de feu

1. Convoyeur. - 2. Meule. - 3. Ventilateur. - 4. Cyclone. - 5. Caisson pour le matériau humide. - 6. Sortie du caisson. - 7. Chaudière. - 8. Ventilateur. - 9. Séchoir à suspension. - 10. Isolation. -11. Cyclone. -12. Presse à briquettes. -13. Ligne de refroidissement. -14. Matériau humide broyé. -15. Air chaud.

Les nouvelles briquettes doivent être essayées en laboratoire. En effet, c'est seulement ainsi que l'on pourra rassembler et comparer les paramètres techniques des diverses options possibles localement. Le matériel nécessaire pour ces essais n'est pas excessivement coûteux - environ 5 000 $ U.S. - et les laboratoires des universités et des écoles techniques le possèdent souvent. Il est important de mettre au point des méthodes d'essai complètes, particulièrement pour mesurer la valeur calorifique nette, l'humidité et la teneur en cendres. Le combustible doit être essayé au laboratoire et dans les conditions réelles de la cuisine quotidienne.

Tableau 4. COMPARAISON DES ÉCHANTILLONS DE COMBUSTIBLES D'ORIGINE BIOLOGIQUE

Composition

Valeur calorifique brute

Humidité

Cendres

Valeur calorifique nette

Observations

kcal/kg

%

%

kcal/kg

Bois de hêtre sec

4 554

8,0

0,3

4 224

Type de bois rarement disponible dans les zones rurales pauvres

Bois de bouleau vert

3 308

42,9

0,25

2 889

Type de bois que l'on trouve généralement dans les zones rurales des pays en développement

Boulettes de vieux papiers (papier journal macéré)

4 143

6,9

2,9

3 825

Faites à la main la combustion est meilleure si l'on incorpore de la cendre de bois

Briquettes composées de
30 a 45% de poussier de charbon de bois
30 à 45% de rameaux déchiquetés
15 à 20% de fumier

4626

2,4

32,2

4 408

Comparables a l'anthracite de qualité moyenne; teneur élevée en cendres provenant probablement de sable

Briquettes composées de
25% de poussier de charbon de bois
25% de paille
30% de rameaux déchiquetés
20% de fumier

3 397

7,2

13,7

3 109

Le pourcentage de poussier de charbon de bois étant plus faible, la valeur calorifique est moins élevée que dans la qualité ci-dessus

Briquettes composées de
50% de paille
50% de fumier

3 898

5,4

9,5

3 599

Peuvent être produites n'importe où mais contiennent une grande quantité de fumier alors qu'il vaut mieux utiliser le fumier comme engrais

Briquettes composées de
40% de paille
40% de sciure
20% de fumier

3 561

9,2

14,0

3 266

Nécessitent un séchage soigneux à cause de la sciure

Briquettes consistant en poussier de charbon de bois lié avec de l'argile

1 064

-

73,0

975

La forte teneur en constituants minéraux réduit la valeur calorifique et produit beaucoup de cendres

Il convient également de faire des essais de terrain pour mettre au point ou améliorer de nouveaux combustibles et étudier leur valeur calorifique. Des groupes de personnes d'origine et de formation différentes pourraient être organisés pour étudier et promouvoir les nouveaux combustibles et, par la suite, les essayer chez eux. Ces groupes devraient être invités à étudier en outre la composition des déchets de biomasse disponibles sur place pour la production de briquettes et de liants.

Dans la plupart des pays en développement, il existe de grandes quantités de déchets de biomasse qui pourraient être transformés par agglomération et densification. Pour obtenir les meilleurs résultats, il faut généralement mélanger plusieurs types de matériaux avec un liant. La valeur calorifique des déchets d'origine biologique bien séchés et comprimés est analogue à celle du bois de feu. Mais l'utilisation désordonnée des déchets de biomasse risque de nuire à l'environnement, par exemple en réduisant la fertilité des sols. Il faut donc évaluer scrupuleusement la quantité de biomasse pouvant être utilisée pour la production de combustible dans des régions déterminées, ainsi que les éléments de la biomasse qui peuvent être exportés sans danger, sous le contrôle de fonctionnaires compétents.

Références

HAUSMANN, F. 1974 Briquetting wood waste by the Hausmann method Modem sawmill techniques, t. 3. Miller Freeman, San Francisco, California.

RUDHARDT, PAUL. 1919 Les combustibles suisses et leur utilisation. Sonor S.A., Genève.

STEPHEN, JOSEPH. 1979 Problems and priorities in developing wood stove programmes. FAO, Intermediate Technology Development Group.


Page précédente Début de page Page suivante