A. Fisheries Project in Dambulla
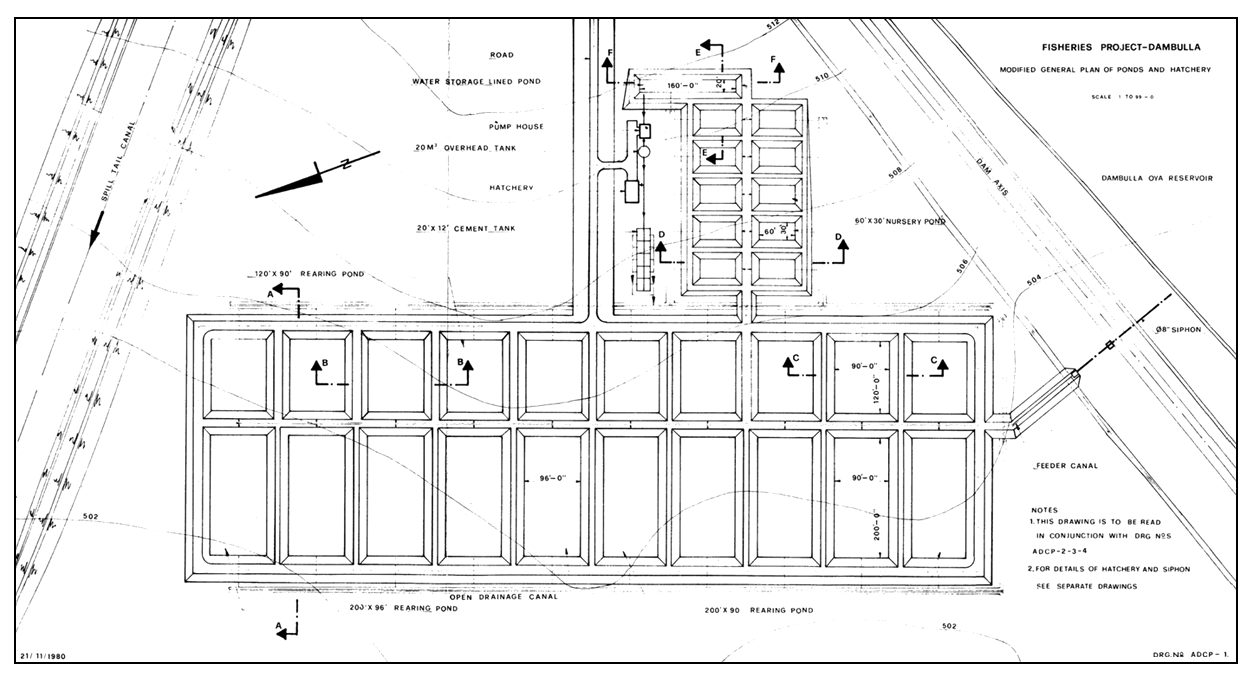
| ADCP-1 | Modified general plan of ponds and hatchery |
| ADCP-2 | Sections of bunds |
| ADCP-3 | Details of inlets |
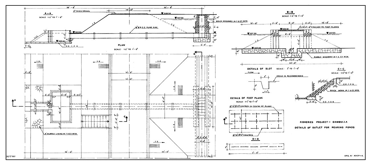
| ADCP-4 | Details of outlets for rearing ponds |
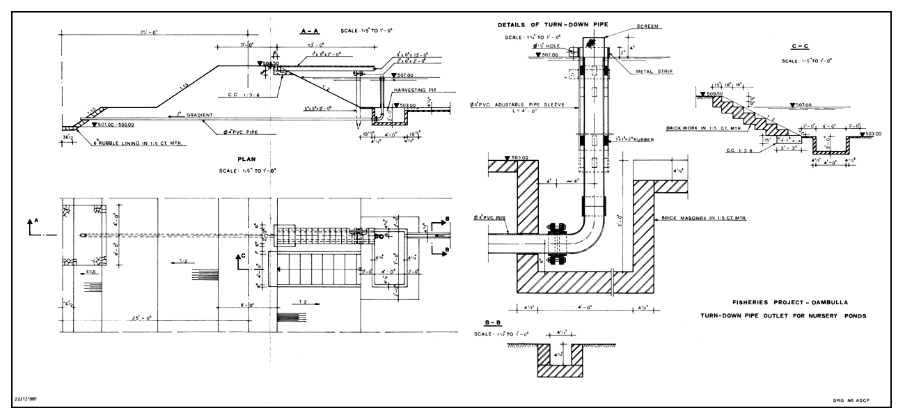
| ADCP-5 | Turn-down pipe outlet for nursery ponds |
| ADCP-6 | Screens for outlets |
| ADCP-7 | Stoplogs for outlets |
| ADCP-8 | Details of siphon |
| ADCP-9 | Hatchery |
| ADCP-10 | Installation plan of 6.35 l jars, Cross Section |
| ADCP-11 | Installation plan of 6.35 l jars, Side Elevation |
B. Brackish Water Station at Pitipana, Negombo
| ADCP-1 | Modified layout plan |
| ADCP-2 | Details of gates |
FISHERIES PROJECT - DAMBULLA
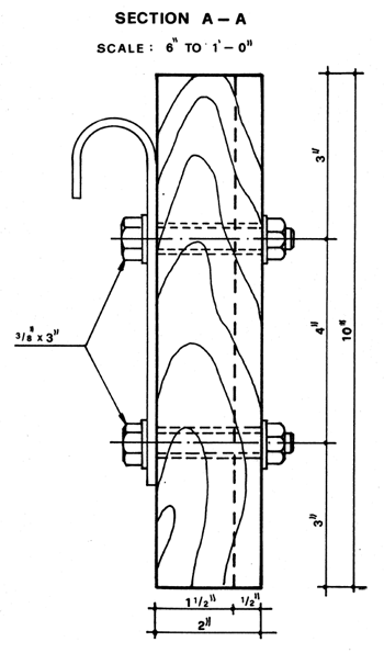
SCREENS FOR OUTLETS
NOTES:
1. ALL METAL WORK TO BE TWICE RED-LEADED.
2. NO. OF SCREEN: 20
NOTES:
1. STOP LOGS TO BE THOROUGHLY IMPREGNATED WITH USED MOTOR OIL.
2. HOOKS TO BE TWICE RED-LEADED.
3. 50 PERCENTAGE OF THE STOP LOGS TO BE INSTALLED WITH HOOKS ON THEIR OPPOSITE SIDES.
4. NO. OF STOPLOGS: 240
![]() | ![]() |
1981
| 9/1/1981 | DRG.№.ADCP-9 |
| 27/1/1981 | ADCP-10 |