1. Introduction
La mission est d'avis qu'il est fondamental pour le développement futur de l'aquaculture en Tunisie que soit établi un centre chargé de divulguer les connaissances fondamentales pour le développement d'une aquaculture viable. Actuellement, aucun des organismes tunisiens ayant des activités dans le domaine de l'aquaculture n'est chargé d'une telle tâche.
Après avoir étudié la situation actuelle et les potentialités de l'aquaculture en Tunisie, la Mission est arrivée aux conclusions suivantes:
Le développement d'une aquaculture commerciale (gestion familiale ou groupement, entreprise privée ou entreprise d'état) est possible en Tunisie;
la création d'un organisme étatique ou semi-étatique est nécessaire pour la réalisation, dans un premier temps, des essais pilotes et, dans une deuxième phase, des actions de vulgarisation;
la lagune de Khniss à Monastir réunit pratiquement toutes les conditions pour y installer un centre de développement et de vulgarisation de l'aquaculture et pour y mener à bien les activités préconisées pour un tel centre.
Etant donné l'intérêt démontré par les organismes concernés par le développement de l'aquaculture, et, en particulier, pour son développement dans la lagune de Khniss, la mission a résumé ses observations au sujet du lac de Khniss et du centre dans un rapport intitulé: “Proposition pour la création d'un centre national de développement de l'aquaculture sur la lagune de Khniss, Monastir”. Ce rapport qui a été soumis à Monsieur Jedidi, Commissaire Général aux Pêches, lors de la réunion du 13 mai 1982, contient les objectifs du Centre, son programme de travail, les infrastructures nécessaires, le personnel et la place du centre dans le Commissariat général aux Pêches.
Plus tard, la mission s'est rendu compte que l'acronyme CNDA existait déjà, et on s'est donc mis d'accord pour introduire le mot vulgarisation dans le titre, ce qui, effectivement, réflète mieux les activités proposées pour le centre. Le titre devient donc: le Centre National de Développement et de Vulgarisation de l'Aquaculture (CNDVA).
La suite de la présente annexe est le résumé des points saillants du rapport remis au Commissaire général aux Pêches.
2. Objectifs du CNDVA
L'objectif principal du CNDVA est de vulgariser l'aquaculture; c'est-à-dire d'assurer que la technologie qui est économiquement et socialement acceptable soit transmise à tous ceux qui pourront en bénéficier pour se créer ainsi un moyen de gagner leur vie.
Il n'est donc pas question de voir le CNDVA faire de la recherche pure, car cela est de la compétence de l'INSTOP. Par contre, le CNDVA devrait tester des techniques aquacoles valables (techniques déjà appliquées à l'étranger ou mises au point par des chercheurs tunisiens), mais qui ne sont pas encore appliquées dans le pays et qui pourraient, le cas échéant, être vulgarisées au bénéfice d'aquaculteurs potentiels. Cela relève des essais pilotes.
La mission estime que les essais pilotes doivent être menés par l'organisme responsable de la vulgarisation, donc, par le CNDVA. Naturellement, la coopération entre l'INSTOP et le CNDVA doit être étroite, permettant au CNDVA d'obtenir des avis des spécialistes de l'INSTOP sur des problèmes techniques précis.
En plus de la vulgarisation et de l'exécution d'essais pilotes, le CNDVA devrait également être chargé de la formation des agents de vulgarisation, des techniciens et des cadres moyens du service de l'aquaculture et des aquaculteurs privés.
Quand le CNDVA sera devenu pleinement opérationnel, on pourra envisager que le Centre prenne aussi en main les opérations pilotes dans le domaine de la conchyliculture et même les opérations pilotes et les élevages en eaux continentales.
3. Programme d'activités du CNDVA
Ce programme concerne la mise en oeuvre d'essais pilotes, la formation des techniciens et des vulgarisateurs, suivis d'actions de vulgarisation sur le terrain.
3.1 Les expériences pilotes
Les priorités à donner aux différents élevages pilotes sont en fonction des objectifs socio-économiques de développement et des caractéristiques des diverses techniques (utilisation de main-d'oeuvre, devises, risques, etc.). Les avis de la mission concernant ces aspects sont discutés dans le rapport à la section 4.2, où se trouvent aussi les opinions relatives aux priorités à donner aux diverses activités pilotes. Ces priorités mènent aux recommandations suivantes quant aux activités qui devront être exécutées par le CNDVA:
élevage extensif de mulets et éventuellement de crevettes dans le bassin à créer de 47 hectares;
élevage extensif de mulets en enclos;
élevage semi-intensif de mulets en enclos;
élevage semi-intensif de mulets en étang;
élevage intensif de mulets en étang;
élevage de loups en cages;
élevage de loups en raceways;
stockage de moules de d'huîtres.
En ce qui concerne les expériences pilotes à mener à Monastir, la mission est d'avis que le programme initial doit comprendre les expériences suivantes pour lesquelles les justifications se trouvent dans le rapport principal.
3.1.1 Mariculture extensive
Construction des digues divisant la lagune de Khniss en trois parties. L'emplacement des digues proposées est indiqué à la figure 16.1. Des sections types de la digue se trouvent à la figure 16.2. Le coût des constructions prévues est repris à l'annexe 16.a.
Le but de la construction de ces digues est double: assurer une meilleure circulation des eaux dans la lagune (oxygénation) et, créer la possibilité de commencer un élevage extensif dans l'étang d'environ 47 ha qui sera formé entre les deux digues.
Elevage de mulets en enclos avec application de fertilisants. Le site proposé pour ces enclos est indiqué à la figure 16.1. La construction des enclos et les coûts sont décrits à l'annexe 12, section 2.
3.1.2 Mariculture semi-intensive
Elevage de mulets en enclos avec alimentation supplémentaire. Cette activité est décrite et analysée à l'annexe 12, section 2.
Elevage de loups en cages. Cette activité est décrite et analysée à l'annexe 12, section 3. Les plans des cages proposées sont repris à la figure 16.3.
3.1.3 Mariculture intensive
Elevage de mulets en bassins existants. Les modifications essentielles nécessaires pour pouvoir élever des mulets en élevage intensif dans ces bassins sont reprises aux figures 16.4 et 16.5. Les coûts des travaux d'aménagement des bassins existants et l'analyse de l'économie potentielle de ce type d'élevage se trouvent à l'annexe 12, section 4.
Elevage des loups en raceways. Les structures appropriées pour des raceways à Monastir sont illustrées aux figures 16.6 et 16.7. Leur implantation est donnée à la figure 16.4 (bassins de production intensive). Pour les faire fonctionner convenablement et avec un échange d'eau adéquat, le fond de la lagune doit être dragué. Les sites de dragage et le site pour déposer les remblais (terre-plein) sont identifiés à la figure 16.8. Une estimation des coûts de construction se trouve à l'annexe 16.b.
3.2 La formation
Le CNDVA sera le centre national de formation en aquaculture. Il faut former des techniciens et cadres moyens, des agents de vulgarisation et ensuite les pisciculteurs.
La formation des techniciens et cadres moyens devrait être fortement orientée vers la pratique des différents systèmes d'élevage (extensif, semi-intensif et intensif), aussi bien des poissons que des mollusques et des crustacés. Les installations prévues à Monastir permettent parfaitement une telle formation.
Les agents de vulgarisation devraient également être formés au CNDVA, après avoir suivi les cours concernant les systèmes d'élevage à vulgariser. La formation des vulgarisateurs devrait porter, notamment, sur la connaissance du milieu des communautés où on envisage des opérations de vulgarisation et également sur les modalités d'obtention de prêts par des particuliers pour leurs opérations aquacoles.
La formation des pisciculteurs et des conchyliculteurs sera essentiellement pratique (par exemple: construction d'enclos, de cages et d'étangs; changement des filets d'une cage en cours d'élevage; capture et transport d'alevins de mulets, etc.). Cet enseignement se fera sur le tas à l'occasion de stages de courte durée.
Actuellement, il n'y a pratiquement pas de possibilités, pour les personnes intéressées, de pouvoir apprendre les technologies de mariculture ou de pisciculture, à l'exception de la conchyliculture.
Des élevages pilotes restent à faire, notamment pour les mulets et les loups, avant de pouvoir identifier, avec certitude, les technologies économiquement viables et qui pourront ensuite être vulgarisées.
3.3 La vulgarisation
Il est indispensable, pour développer l'aquaculture en Tunisie, de créer un service de vulgarisation, dynamique et compétent. Un tel service n'existe pas encore.
Une fois menées à bien, les expériences pilotes et arrêtées les technologies à introduire auprès des pisciculteurs, il faudra commencer la vulgarisation de ces technologies, après avoir formé les vulgarisateurs.
Les techniques et règlements peuvent s'apprendre en suivant des cours, mais la connaissance du milieu est plus difficile à acquérir. Lors de la sélection des agents de vulgarisation, il faudra donner priorité aux ruraux connaissant bien le milieu où sera mis en oeuvre le programme de vulgarisation.
La section de vulgarisation devrait être installée au CNDVA, à Monastir, et être chargée de l'exécution de toutes les activités pilotes et de toutes les actions de vulgarisation.
4. Dépendance administrative du CNDVA
Le CNDVA étant l'organisme étatique ayant le contact le plus direct avec les aquaculteurs potentiels, doit aussi être directement dépendant du Commissariat général aux Pêches, qui est responsable de la formulation de la politique des pêches du Gouvernement. La mission propose donc que le CNDVA dépende directement de la cellule de programmation et suivi de l'aquaculture du Commisariat général aux Pêches.
Etant donné les objectifs particuliers du CNDVA, la mission recommande que le CNDVA dépende uniquement du Commissariat aux Pêches et ne soit pas rattaché, ni à l'INSTOP (organisme chargé des recherches), ni à l'ONP (organisme responsable de la production).
Pour rendre aussi efficaces que possible les opérations du CNDVA sur la lagune de Khniss, il est également proposé que la gestion de la lagune soit transférée de l'ONP au CNDVA, y compris l'exploitation des deux bordigues (capture de juvéniles à utiliser pour le stockage des cages, enclos et étangs).
5. Infrastructures
Les infrastructures essentielles proposées pour le CNDVA sont les suivantes:
Bureaux
Logement de service
Hangar/magasin
Chambre froide
Unité de fabrication de glace
Unité de fabrication d'aliments pour poissons
Laboratoire alimentaire
Local pour gardiens
Garage (2 voitures)
Le CNDVA devra disposer d'électricité, d'eau courante et du téléphone.
La localisation des installations est indiquée à la figure 16.8. Le calendrier des travaux et des essais pilotes se trouve à la figure 16.9.
6. Personnel
| Titre ou spécialité | Nombre |
| Ingénieur principal | 1 |
| Ingénieur (Aquaculturiste) | 1 |
| Ingénieurs adjoints (Aquaculturistes) | 2 |
| Adjoints techniques (") | 2 |
| Techniciens | 2 |
| Chefs d'équipe | 3 |
| Secrétaire | 1 |
| Comptable | 1 |
| Ouvriers | 17 |
| Chauffeur | 1 |
| Gardiens | 3 |
7. Budget
La mission n'a pas effectué une étude détaillée de tous les investissements et frais courants liés à l'établissement et au fonctionnement du CNDVA. Néanmoins, la mission a fait une estimation du coût des investissements nécessaires et des frais de fonctionnement du Centre. Ces chiffres n'ont donc qu'une valeur indicative.
7.1 Investissement
Des travaux proposés, la mission a estimé les frais de construction comme suit:
| Description | Estimation | Voir annexe | |
| basse (milliers DT) | haute (milliers DT) | ||
| Aménagement des digues | 108 | 176 | 16.a |
| Enclos pour mulets (2 ha) | 6 | 8 | 12.1 |
| Cages pour loup (16; 28 m3) | 13 | 16 | 12.3 |
| Modification des bassins existants (5,4 ha) | 158 | 272 | 12.4 |
| Raceways | 250 | 300 | 16.b |
| Total | 535 | 772 | |
Les infrastructures à mettre en place sont détaillées à la section 5. Si nous admettons une surface totale de bâtiments s'élevant à 700 m2, cela signifierait un coût de construction d'environ (700 × 80 DT/m2) = 56 000 DT.
7.2 Frais de fonctionnement
Une fois le Centre établi, la plus grande partie des frais courants annuels seront ceux concernant le personnel (probablement environ 50% du total des frais), les aliments pour poissons, les transports, l'énergie (électricité, diesel) et la manutention. On pourrait envisager un budget annuel - tous frais compris (même les salaires des cadres supérieurs) d'environ DT 130 000 à DT 160 000.
ANNEXE 16.a
Lagune de Monastir Mise en valeur de la lagune
| Estimation du coût | Unités | Prix Unitaire DT | Prix total DT (a) | Prix total DT (b) | |
| 1) | Construction des digues avec terres argilo-sablonneuses (30% d'argile minimum), transportées et compactées | 13 980 m3 | 4 | 55 920 | 83 880 |
| 2) | Protection des digues | 7 250 m2 | 2.4 | 17 400 | 26 100 |
| 3) | Entrée d'eau | 4 | 3 090 | 12 360 | 18 540 |
| Sous-total | 85 680 | 128 520 | |||
| 4) | Ingénierie (5 %) | 4 284 | 6 426 | ||
| Coût total de base | 89 964 | 134 946 | |||
| 5) | Divers et imprévus (20% / 30%) | 17 996 | 40 483 | ||
| Coût total avec divers et imprévus | 107 960 | 175 430 | |||
| arrondi à | 108 000 | 176 000 | |||
ANNEXE 16.b
Bassins de production intensive
(5 raceways et 5 bassins circulaires)
| Estimation du coût | Unités | Prix unitaire (DT) | Prix total (DT) | |
| 1. | Terrassement | 1 500 m3 | 2 | 3 000 |
| 2. | Route | 1 730 m2 | 40 | 6 920 |
| 3. | Béton armé | 355 m3 | 200 | 71 000 |
| 4. | Tube PVC (y compris raccords) | Forfait | 1 500 | |
| 5. | Tube béton évacuation d'eau (y compris raccords) Æ 40 cm | 90 m.l. | 5 | 450 |
| 6. | Moëllons | 30 m3 | 6 | 180 |
| 7. | Planches et grilles | Forfait | 7 000 | |
| 8. | Pompes (spéciales mer) 300 1/sec 3 m HMT immergées (y compris tubes, etc.) | 3 | 15 000 | 45 000 |
| 9. | Amenée ligne électrique et transformateur | Forfait | 15 000 | |
| 10. | Génie civil | Forfait | 10 000 | |
| 11. | Bâtiments: | |||
| - locaux alimentation | 50 m2 | 80 | 4 000 | |
| - bureaux | 40 m2 | 100 | 4 000 | |
| - stockage matériel | 30 m2 | 80 | 2 400 | |
| - salle personnel | 50 m2 | 80 | 4 000 | |
| - sanitaire et divers | 20 m2 | 100 | 2 000 | |
| - chambre froide -15°C | 30 m2 | 150 | 4 500 | |
| - équipements | Forfait | 5 000 | ||
| 12. | Amenée d'eau potable | Forfait | 5 000 | |
| Sous-total | 190 950 | |||
| 13. | Montage | 6 050 | ||
| 14. | Etudes et ingénierie | 10 000 | ||
| Coût total de base | 207 000 | |||
| 15. | Divers et imprévus | 43 000 | ||
| Coût total avec divers et imprévus | 250 000 | |||
LAGUNE DE MONASTIR
PLAN
ECHELLE 1/10 000
LEGENDE
![]() | DIGUE |
![]() | ENTRÉE D'EAU |
![]() | CANAUX DRAGUÉS |
![]() | SITE PROPOSÉ POUR INSTALLATION D'ENCLOS (2 HA) |

| SUPERFICIE TOTALE DE LA LAGUNE | 155 HA |
| SUPERFICIE DES BASSINS D'ELEVAGE Y COMPRIS LES DIGUES | 11 HA |
FIGURE 16.1
LAGUNE DE MONASTIR
COUPES DES DIGUES
ECHELLES 1/100

FIGURE 16.2
LAGUNE DE MONASTIR

FIGURE 16.3
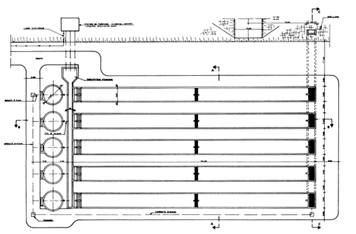
LAGUNE DE MONASTIR PLAN MASSE
ECHELLE 1/5000

FIGURE 16.4
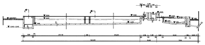
LAGUNE DE MONASTIR ENTRÉE D'EAU MODIFIEE
ECHELLE 1/100
PLAN

COUPE A-A

COUPE B-B

FIGURE 16.5
LAGUNE DE MONASTIR BASSINS DE PRODUCTION INTENSIVE PLAN
ECHELLES 1/200

FIGURE 16.6
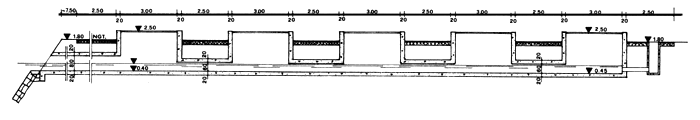
LAGUNE DE MONASTIR COUPES DES BASSINS
ECHELLES 1/100
A-A

B-B

C-C

FIGURE 16.7
TCP/TUN/0104
Date : 7.5.82
PLAN DES DRAGAGES PROPOSES DANS LA LAGUNE DE MONASTIR

FIGURE 16.8
Plan des activites C.N.D.A., Monastir

Fig. 16.9