1. INTRODUCTION
As a term to provide technical assistance in marine hatchery technology, The National Centre for Marine Research (EKTHE) requires a project for a new experimental hatchery with research purposes.
The building shall be located in the same place inside the Centre's area where a 200 m2 building already exists, equipped with limited live food culture facilities, larval rearing tanks, weaning and spawning tanks and laboratory.
The request was to have a new facility operating with up to date technologies, with an improved potential for research programmes dealing mainly with breeders conditioning, larval rearing, and larval nutrition.
The suggested lay-out is based on a maximum level of flexibility in the rearing operations and on a number of tanks, in each unit, for triplicate tests and the choice of various combinations of environmental factors.
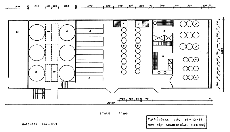
2. PROPOSED INTERNAL ARRANGEMENT
The total covered area is about 300 sq.m. plus a nearby small shed of some 25 m2 housing the emergency generator and its automatic switchboard, the air blowers and the air compressors.
2.1 Water Supply
The main pumping station, considered in another report, shall be equipped with two or three pumps suitable for the needs of the hatchery. The total need of water is about 32 m3/h, of which only 22 m3/h should be processed by the pressure sand filter and 3.5 m3/h should be filtered up to 1 m by a Diatom powder filter. The latter flow shall be sterilized by a Hg-low pressure U.V. lamp in order to provide pure water to the live food sector and the make-up of the recycling circuits.
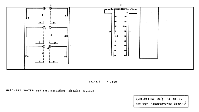
2.2 Water Circuits
The flow-through rates are summarized in table 4 together with the recyling, make up flows and the other water needs.
The complete daily water renewals are three for the spawning tanks, 9.5 for the weaning tanks (with only filtered water) up to 24 (with addition of non-filtered water).
The same type of pumps can be used allowing an easier upkeep and managing of spare parts.
In all the circuits, PVC pipes and components should be used.
Recycling systems components are listed in table 1. Filter tanks should be by fiberglass (in the case using those already existing). Some kind of plastic bacteria support is preferred, say biorings or polyurethane foam, to reach maximum efficiency in reduced space.
2.3 Live Food
The aseptic culture room is equipped with two lighted incubators and one autoclave for water sterilization. A bench is provided as working place for salt enrichment of sea water and for progressive inoculations.
Plastic bags for phyto- and zooplankton cultures are suspended from an anodized steel girder by means of chains and hooks. As the bags will be double there will be no need of a welding machine. The 10 m wall will be equipped with 30 2 × 58 W fluorescent lamps coupled in a plastic waterproof box placed vertically.
Rotifers and artemia will be cultured in 500 l and 250 l fibreglass tanks respectively. Enough tanks are available for triplicate trials on zooplankton culture and for stocking at high density with enriching diets.
2.4 Larval Rearing
Two separated circuits are provided for eggs incubation, hatching and larval rearing, each composed of nine 250 l tanks, a 2 cub.m. filter tank, pump, electric heater, and U.V. lamp. Pipeline should be in P VC. Each filter will have regulated inlet for make-up water. Each tank should be equipped with an internal screen to protect the outlet pipe.
2.5 Weaning
The weaning circuit is of an open-type due to the temperate winter temperatures that make it not necessary to heat the water. Tanks are nine, each of 2 400 l, of raceway type. Each tank should be equipped with a screen to protect the outlet pipe.
2.6 Breeders Conditioning
In a separate room are placed six 900 l tanks, each provided with a recycling filter. The system is equipped with a cooling unit for individual regulation of water temperatures according to natural patterns, recycling pumps, electric heaters and U.V. lamps. Thus the room can host six batches of breeders, each reared with a particular temperature cycle, staggered by some extent from that natural, in order to obtain fertilized eggs all over the year.
The water circuits are foreseen to provide also a water reversal on a flow-through basis. Each tank should also be equipped with lights and individually surrounded by black curtains, thus allowing a regulation of photoperiod (by means of timers).
The fine control of light and water temperature will condition the breeders to mature gonads and spawn sexual products in predetermined periods.
2.7 Laboratory
The laboratory will enable researchers to make the suitable analyses to control the most important environmental factors in the hatchery systems.
Quality control live food cultures can be carried out using microscopes and probes. A photometer equipped with microprocessor and kit of analyses should be the most useful device for water quality analysis, with guarantee of a high level of accuracy. A new oxygen meter, suitable for sea water, should be used for quick and accurate dissolved oxygen analyses. A mincer and cutter, probably placed here, are provided to process fresh fish and other ingredients to produce moist food for weaned fish.
2.8 Service Works
The water heating shall be simplified by using everywhere electrical thermostatically controlled heaters. The air conditioning as well should be obtained by means of electric heat/cool conditioners.
One 200 m3/h air blower, with the suitable back-up will provide the air needed in all sectors of the hatchery. It must be placed under a simple open shed to avoid increasing process air temperatures. The overflow valve must be silenced.
Oxygen and carbon dioxide should be provided by pressure bottles.
The electrical plant must follow the EEC security standard. Most of the plugs, sockets and boards must be waterproof and the whole system must be earthed. Care must be taken in the choice and the installation of the electric heaters in order to avoid dangerous current leakage.
A suitable emergency generator should be connected to the main devices through an automatic switchboard.
The hatchery should have a supply of fresh water for cleaning and hygienic purposes and for mass rotifers cultures: about 5 m3/day are needed.
Table 1 Equipment Specification
| RECYLING SYSTEMS | ||||
| Biofilter Tank | 2.0 m3 | Larval rearing | Fiberglass | |
| 2.5 m3 | Spawning | |||
| Bacteria Support | 1.0 m3 | Larval rearing | Plastic foam or Biorings | |
| 1.5 m3 | Spawning | |||
| Pumps | 4 m3/h/5 m | no 2+1 Larval rearing | Plastic (PVC, HDPE …) Centrifugal, vertical | |
| 4 m3/h/5 m | no 9+1 Spawning | |||
| Heating | 2 KW | no 2+1 Larval rearing | Electrical quartz heater Waterproof, with timer and thermostat | |
| 3 KW | no 9+2 Spawning | |||
| Sterilizing | 4 m3/h | no 2 Larval rearing | Low pressure Hg-lamps at least 25 mJ/sq.m. penetration coeff = 0.80 | |
| 4 m3/h | no 9 Spawning | |||
| GENERAL | ||||
| PRESSURE | 22 m3/h | Nb 1 | ||
| SAND FILTER | max. flow | |||
| DIATOM | 5 m3/h | Nb 1 | ||
| FILTER | max. flow | Nb 1 | ||
| U.V. | 5 m3/h | Hg low pressure | Nb 1 | |
| STERILIZER | 25 m mJ/cm2 | penetration coeff. 0.20 | Nb 1 | |
| REFRIGERATOR | 120 L | 0°–5°C | Nb 1 | |
| FREEZER | 300 L | -20°C | Nb 1 | |
| CUTTER | Stainless steel - butchery type | Nb 1 | ||
| MINCER | 5 kg capacity - stainless steel | Nb 1 | ||
| AIR BLOWER | 200 m3/h/0.25 bar + air filter/silencer | Nb 1+1 | ||
| ELECTRIC | 1.0 KW | quartz tube - waterproof (Rotifers) | Nb 3 | |
| HEATER | 0.3 KW | glass tube, thermostated (Artemia) | Nb 9+2 | |
| MISCELLANEOUS | Glassware: | test tube D.20 mm | Nb 60 | |
| Erlenmeyer flasks 0.5 L | Nb 60 | |||
| " " 2.0 L | Nb 30 | |||
| " " 5–10 L | Nb 30 | |||
| Buckets, nylon pipe D:10 mm and D:6 mm | ||||
| Nylon tube D:32 cm, CO2 bottles, O2 bottles | ||||
Table 2 Tanks Specifications
| Unit | Nb | Dimensions (m) | Unit Volume (cub.m) | Total Volume (cub.m) | Kind/Shape |
| 1. SPAWNING | 6 | D:2.5 H:2 | 9.0 | 54.0 | Fibreglass/cylindrical |
| 2. LIVE FOOD/ROTIFERS | 9 | D:0.9 H:1.5 | 0.5 | 4.5 | Fibreglass/cylindrical PVC-pipe legs |
| 3. LIVE FOOD/ARTEMIA | 9 | D:0.7 H:1.2 | 0.25 | 2.25 | Fibreglass/cylindrical PVC-pipe legs |
| 4. LARVAL REARING | 18 | D:0.7 H:1.2 | 0.25 | 4.5 | Fibreglass/cylindrical PVC-pipe legs |
| 5. WEANING | 9 | 0.7×4×H:1.2 | 2.40 | 21.6 | Fibreglass/cylindrical dixh. pipe D:0.9 |
Table 3 Laboratory Equipment List
| n.1 | microscope |
| n.1 | stereoscope |
| n.1 | oxymeter |
| n.2 | refractometers |
| n.1 | pH meters |
| n.3 | thermometers |
| n.1 | refrigerator |
| n.1 | freezer |
| n.1 | technical balance |
| n.1 | analytical balance |
| n.1 | water analyses kit + spectrophotometer (Merck) |
Table 4 Water Systems: Specifications
| Unit | System | m3/h | Nb. of complete renewals/day | |
| 1. | Spawning | Flow-through | 6.75 | 3 |
| Make-up | 2.9 | 1 | ||
| Recycling | 4.0 | 8 | ||
| 2. | Live Food | - | 0.1 | - |
| 3. | Larval Rearing | Make-up | 0.4 | 1 |
| Recycling | 4.5 | 24 | ||
| 4. | Weaning | Flow-through (F) | 8.5 | 9.5 |
| Flow-through (UF) | 13.1 | 14.5 | ||
| 5. | Feed Laboratory | - | 0.1 | - |
| 6. | Occasional needs | - | 0.05 | - |
| TOTAL | External water (flow-through & make-up) | 31.9 |
Table 5 Main Installed Powers
| Unit | Device | No. | Unitary Power (KW) | Voltage (V) | Total Power (KW) | |
| 1. | SPAWING | Recycling pumps | 6 | 2 | 380 | 12 |
| Cooling system | 1 | 5 | 380 | 10 | ||
| Heaters | 6 | 3 | 220 | 18 | ||
| U.V. lamps | 6 | 2 | 220 | 12 | ||
| Air conditioning | 2 | 2 | 220 | 4 | ||
| 2. | LIVE FOOD | U.V. lamp | 1 | 2 | 220 | 2 |
| Heaters | 2 | 1 | 220 | 2 | ||
| Heaters | 3 | 0.3 | 220 | 1 | ||
| Autoclave | 1 | 2 | 380 | 2 | ||
| Incubators | 2 | 3 | 220 | 6 | ||
| Air conditioning | 1 | 2 | 220 | 2 | ||
| 3. | LARVAL REARING | Heaters | 2 | 2 | 220 | 4 |
| U.V. lamps | 2 | 2 | 220 | 4 | ||
| Recycling pumps | 2 | 2 | 220 | 4 | ||
| Air conditioning | 2 | 2 | 220 | 4 | ||
| 4. | SERVICE | Air blowers | 1 | 2 | 380 | 2 |
| Lights (estimate) | 220 | 12 | ||||
| Lab (estimate) | 220 | 5 | ||||
| TOTAL ESTIMATE POWER | 106 | |||||
WATER SYSTEMS: Sea Water Conditioning Flow-Chart

f.t. = flow-through
F/UF = filtered/unfiltered

| K E Y | ||
| 1. | Live food : plastic bags | |
| 2. | " " : aseptic cultures | |
| 3. | " " : Rotifer maincultures | |
| 4. | " " : Artemia hatching | |
| 5. | Laboratory | |
| 6. | Larval rearing | |
| 7. | Biofilters | |
| 8. | Weaning | |
| 9. | Spawning / Conditioning | |
| 10. | Biofilters | |
| 11. | Feed lab |

| K E Y | ||
| 1. | Larval rearing pumps | |
| 2. | " " biofilters | |
| 3. | " " tauks' inlet | |
| 4. | Conditioning pumps | |
| 5. | " biofilters | |
| 6. | " tauks' inlet | |
| 7. | Larval rearing tanks' outlet | |
| 8. | Conditioning tanks' outlet |

| K E Y | ||
| 1. | Pressure sand filter | |
| 2. | Diatom filter | |
| 3. | U.V. lamp | |
| 4. | Live food supply | |
| 5. | Lab supply | |
| 6. | Larval rearing make-up | |
| 7. | Spawning make-up | |
| 8. | Weaning flow-through | |
| 9. | Spawning flow-through | |
| 10. | Feed lab supply |

| K E Y | ||
| 1. | Air blowers | |
| 2. | C O2 bottle | |
| 3. | O2 bottle |
