STANDARD PLANS FOR A SMALL ABATTOIR AND MEAT MARKET
LIST OF PLANS
| DRAWING NO. | TITLE |
|---|---|
| 1 | Site Layout Plan |
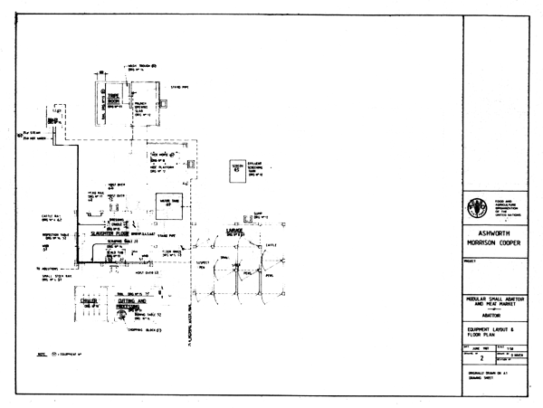
| 2 | Equipment Layout and Floor Plan |
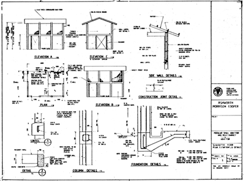
| 3 | Slaughter Floor Plan Elevations and Details |
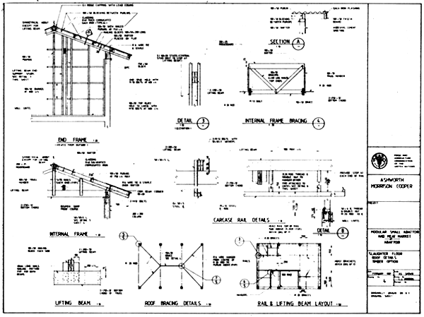
| 4 | Slaughter Floor - Roof Details Timber Option |
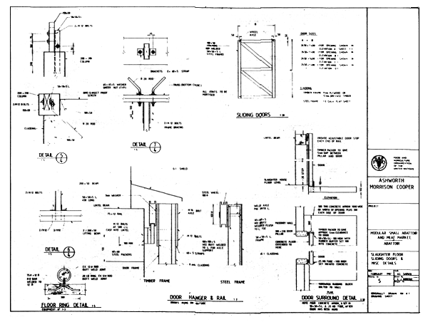
| 5 | Slaughter Floor Sliding Doors and Miscellaneous Details |
| 6 | Slaughter Floor Steel Truss Option Details 1 |
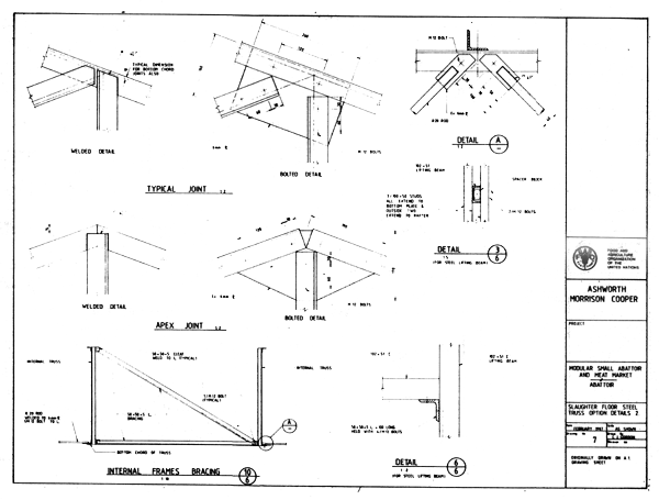
| 7 | Slaughter Floor Steel Truss Option Details 2 |
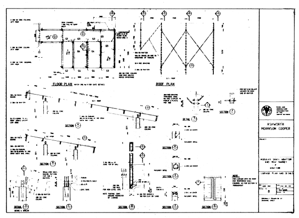
| 8 | Lairage Plan and Details |
| 9 | Lairage Gate Details |
| 10 | Chiller Details |
| 11 | Cutting and Processing/ Tripery Room Details |
| 12 | Drainage Details |
| 13 | Pig Scalding Tank Details |
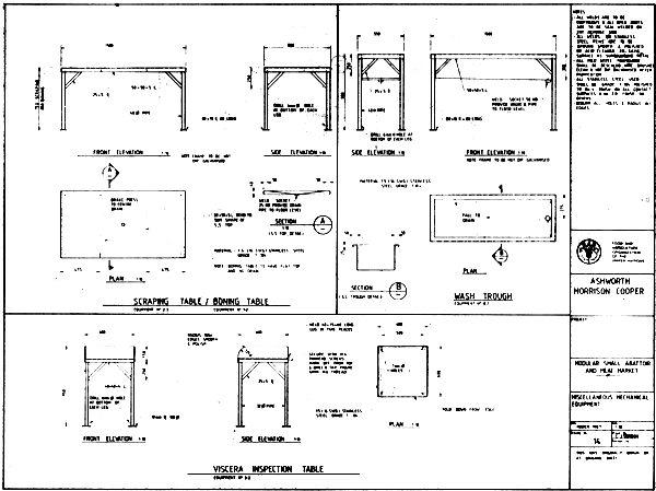
| 14 | Miscellaneous Mechanical Equipment Sheet 1 |
| 15 | Boiler and Miscellaneous Mechanical Details |
| 16 | Electrical Services |
| 17 | Miscellaneous Mechanical Equipment Sheet 1 |
| 18 | Hide Processing Equipment |
| 19 | Meat Market Plan Elevations and Timber Roof Frame Details |
| 20 | Meat Market Foundation Column and Lintel Details |




















