Les communautés de pêcheurs de la région (district de Kwale) se composent principalement d'artisans dont les activités sont concentrées sur une zone allant jusqu'à 10 miles du rivage. La majorité d'entre eux se servent d'engins tels que les piéges traditionnels en fil de fer, les lignes, les éperviers et/ou les seines de plage. Pour pêcher le homard, le crabe et les mollusques, ils plongent et les capturent à la main. Il y a environ 2 400 artisans pêcheurs, dont 58 % travaillent à plein temps en utilisant au total 920 bateaux de pêche, principalement des pirogues à voile et à rames. Durant la mousson de sud-est (mai à août), la pêche est limitée aux eaux abritées en raison des vents soufflant en tempête de 50 à 80 km/h qui, bien qu'ils ne se manifestent que pendant 2 % du temps, obligent à réduire les activités de pêche. En 1984, les artisans pêcheurs ont débarqué sur la côte sud du Kenya environ 715 t de poisson et de crustacés, répartis comme suit:
| Espèce | Pourcentage (%) |
|---|---|
| Démersales | 63, 5 |
| Pélagiques | 18, 7 |
| Crustacés (homards, crevettes et crabes) | 7, 1 |
| Bêches-de-mer, poulpes, calamars | 1, 9 |
| Autres (requins, poissons variés) | 8, 8 |

Figure 38 Plan du hangar de débarquement du poisson à Otaheite

Figure 39 Vue de face du hangar de débarquement du poisson à Otaheite

Figure 40 Table en béton pour la vente en gros/au détail du poisson à Otaheite
En 1984, environ 44 % des prises totales ont été consommées sur place et 56 % ont été expédiées à Mombasa, puis aux marchés à poisson de Nairobi. Dans les centres touristiques de la côte ont été consommés 90 % des crustacés. Les coopératives de pêcheurs de la côte sud ont passé des accords à long terme avec les négociants et le poisson est vendu à des prix fixés à l'avance et ajustés périodiquement. Le poisson est consommé frais (notamment les espèces les plus prisées), salé et séché au soleil, séché à la fumée ou frit. Des négociants privés assurent le commerce du poisson frais en fournissant la glace, les caisses et le transport.
A environ 131 km de Mombasa se trouve un centre de débarquement du poisson géré par la coopérative des pêcheurs de Vanga. Le nombre total d'artisans pêcheurs basés à Vanga est estimé à 249 (dont 187 sont membres de la coopérative), et le nombre d'embarcations à une centaine.
| Bateaux de pêche dans la région | |
|---|---|
| Pirogues monoxyles | 67 |
| Nga lowas (à balancier) | 19 |
| Boutres à voiles | 4 |
| Boutres à moteur | 9 |
On estime à environ 0,8 t de poisson et de crustacés les quantités débarquées par jour à Vanga; 20 % seulement du total est commercialisé par la coopérative de pêcheurs.
La station de débarquement couvre une superficie de 80 m2 et comprend une halle de 33,8 m2 équipée d'une table en béton pour la présentation du poisson (0,95 × 5,4 m), de six réservoirs pour le stockage du poisson (0,9 × 0,9 × 0,9 m), dont quatre sont isolés avec du polystyrène expansé (d'une épaisseur de 50 mm) et revêtus de tôle galvanisée calibre 30, et d'une table en béton (0,95 × 2, 25 m) pour le tri et l'exposition des crabes vivants.
La coopérative demande une commission de 16 % environ aux commerçants. Elle achète directement le poisson aux pêcheurs membres à un prix fixe. Le poisson est conservé sous glace dans des réservoirs isothermes pendant au moins une journée et la glace est généralement fournie par les négociants en poisson sous forme de blocs. Tous les deux jours, ces négociants collectent le poisson et le transportent à Mombasa dans des conteneurs isothermes fabriqués dans le pays qui sont montés sur des camionnettes à plateau (Figures 41, 42, 43 et 44).

Figure 41 Plan du centre de réception du poisson à Vanga

Figure 42 Réservoirs isothermes en béton pour la conservation du poisson frais àVanga

Figure 43 Centre de réception du poisson è Vanga

Figure 44 Réservoir isotherme pour la conservation du poisson frais à Vanga
Production totale de poisson enregistrée dans la zone de Vanga en 19841
| Mois | Poids en kg |
|---|---|
| Janvier | 26 704 |
| Février | 15 187, 5 |
| Mars | 28 028 |
| Avril | 22 352, 5 |
| Mai | 23 673, 5 |
| Juin | 17 073, 5 |
| Juillet | 17 033 |
| Août | 23 632, 5 |
| Septembre | 20 744 |
| Octobre | 21 831 |
| Novembre | 25 803 |
| Décembre | 18 945 |
| Total | 261 007,5 |
1 Poisson, crustacés et bêches de mer
Prix du poisson pratiqués à Vanga (mai 1985)
| Espèce | Prix payé aux pêcheurs (K.Shs) | Prix payé par les négociants (K. Shs) | |
|---|---|---|---|
| 1) | Grands poissons divers (bocasses, lutjidanés) | 10/kg | 11,90/kg |
| 2) | Petits poissons (de moins de 6 pieds de longueur) | 5,5/kg | 6,6/kg |
| 3) | Grosses crevettes et langoustines (type I) | 30/kg | 35,65/kg |
| 4) | Thazard barré type I | 14/kg | 16,65/kg |
| 5) | Thazard barré type II | 12/kg | 14,25/kg |
| 6) | Crabes | 11/kg | 13,10/kg |
| 7) | Calamars | 10/kg | 11,9/kg |
| 8) | Homard type I (> 1kg) | 75/kg | 89, 0/kg |
| 9) | homard type II (< 1 kg) | 55/kg | 65,25/kg |
Cette station qui a une superficie d'environ 69, 4 m2 est gérée par la Coopérative des pêcheurs de Msambweni qui compte 189 membres inscrits. La halle de 41 m2 est équipée d'une dalle de béton surélevée pour les opérations de pesage, deux tables de présentation en béton, quatre réservoirs d'entreposage du poisson non isothermes et un conteneur isotherme portatif en bois (1 × 1,4 × 0,9 m) (Figures 45 et 46).
En 1984, la Coopérative de Msambweni a traité environ 107, 3 t de poisson et de crustacés pour le compte de ses membres.
Le lac Victoria est un grand lac peu profond situé à cheval de la Tanzanie, le2 Kenya et l'Ouganda, qui a une superficie d'environ 68 800 km2 et un périmètre de 3 440 km. On estime à 54 000 le nombre d'artisans pêcheurs du lac, dont 25 000 kenyens environ (Comité des pêches continentales pour l'Afrique, 1983). En 1983, (selon le Ministère du tourisme et de la faune du Kenya, 1984) le volume total capturé par les pêcheurs kenyens utilisant des pirogues monoxyles ou des canoës bordés (environ 5 000) atteignait 77 327 t, réparties comme suit (1982–83):

Figure 45 Plan du centre de réception du poisson à Msambweni

Figure 46 Station de réception du poisson à Msambweni
| Espèce | (Pourcentage) % |
|---|---|
| Perche nilotique (Lates sp.) | 61,0% |
| Anchois (Rastrineobola argentea sp.) | 19,2% |
| Tilapias sp. | 6,4% |
| Haplochromis sp. | 2,5% |
| Autres | 10,9% |
Les engins de pêche utilisés dans la région sont les filets maillants (les plus employés), les palangres, les lignes et les seines de plage. La glace est actuellement très peu utilisée pour la distribution et la commercialisation locale. Seule la perche nilotique, destinée à être transformée en filets congelés (15 % des captures totales de perche) et expédiée à Kisumu ou à des marchés lointains (Nairobi), est mise en glace.
| Prix de gros de la perche nilotique payé par les | |
|---|---|
| négociants (mai 1985) | |
| Kendu | 2,25 K.Shs/kg |
| Kaloka | 2,0 K.Shs/kg |
| Prix du tilapia au détail à Kisumu | 16,35 K.Shs/kg |
Captures par zone et par utilisation (1983)(t)
| Lieux/Utilisation | Luanda Naya | Kendu Bay | Kaloka |
|---|---|---|---|
| Frais | 177 (8,4 %) | 441 (96,7 %) | 461 (58 %) |
| Transformé | 1 929 (91, 6 %) | 15 (3,3 %) | 334 (42 %) |
| Total | 2 106 (100 %) | 456 (100 %) | 795 (100 %) |
Le poisson se vend librement après marchandage mais dans de nombreuses coopératives des accords ont été passés avec les grossistes (surtout du poisson en filets) qui achètent, les perches nilotiques notamment, à des prix fixés à l'avance, collectent le poisson, le mettent en glace et l'expédient dans des camions isothermes. Toutefois, une part importante des prises est vendue sur place par les femmes et les vendeurs à bicyclette. Le poisson invendu (environ 50 % du total) est séché au soleil, fumé dans des fours traditionnels aux parois en terre cuite ou dans des fumoirs, ou encore frit dans des poëles sur des foyers ouverts, pour être distribué aux marchés du voisinage ou aux marchés ruraux de l'ouest du Kenya. Le tilapia frais est très demandé et l'augmentation des disponibilités de perches nilotiques pose des problèmes de commercialisation car cette dernière espèce n'est pas très appréciée par la population. Les conteneurs utilisés pour la manutention du poisson à bord et pour la distribution sont souvent des paniers en osier à claire-voie et de la toile à sac.
Les routes d'accès aux centres de dèbarquement situés autour du lac ne sont généralement pas asphaltées (à l'exception du réseau routier principal) et constituent, durant la saison des pluies, l'entrave majeure au transport des produits halieutiques.
Les artisans pêcheurs de la zone se sont rassemblés en une coopérative dénommée “Buynala Fishermen's Cooperative” qui compte 820 membres inscrits, dont 300 sont actifs et qui gère la station de réception du poisson.
Le nombre de canots de pêche de la zone (11 plages) est estimé comme suit:
| Canots | Membres | Non-membres |
|---|---|---|
| A moteur | 50 | 0 |
| Non motorisés | 200 | 1 290 |
| Total | 250 | 1 290 |
La station de réception est située près de la rive du lac Victoria et à 50 km de Siaya Town. Elle a une superficie totale de 876 m2 et comprend une halle au poisson de 58,5 m2 dotée d'un sol en dalle de béton et d'un toit en tôle ondulée soutenu par une ferme en bois, ainsi que de tables de présentation en béton (4,55 m2 l'une) qui sont utilisées pour la vente, d'un bureau (15 m2) et d'une chambre isotherme (10,88 m2). La conception et la construction de cette station ont été menées à bien par le Département des pêches du Kenya.
Le poisson capturé par les artisans pêcheurs est débarqué à la station, pesé sur une balance suspendue, et exposé pour la vente sur les tables en béton. Après l'avoir acheté, les commerçants le distribuent aux marchés du voisinage à pied, en bicyclette ou à l'aide de camionnettes découvertes. Il y a peu ou pas de glace disponible. Le poisson invendu est fumé-séché ou frit au village. On estime qu'environ 1,3 t de poisson est débarquée chaque jour à la station de Port Victoria. La coopérative demande aux pêcheurs une commission de 10 % sur le total des ventes qui sert à assurer l'entretien du centre, à payer les impôts et à couvrir les dépenses administratives. A la fin de l'année, elle verse une prime aux pêcheurs en fonction de la quantité de poisson débarquée à la station. La coopérative n'est cependant pas en mesure de commercialiser le poisson directement faute de soutien de la part de ses membres, de compétence commerciale, de matériel, de moyens de transport et de fonds de roulement (Figures 47, 48 et 49).

Figure 47 Plan du centre de réception du poisson à Port Victoria

Figure 48 Etal en béton pour la présentation du poisson à Port Victoria

Figure 49 Station de réception du poisson à Port Victoria
Les artisans pêcheurs de Kaloka sont regroupés depuis 1963 en une coopérative qui compte actuellement 108 membres dont 41 pêcheurs actifs exploitant une quinzaine de canots non motorisés.
Cette coopérative a été particulièrement active dans le domaine de la vente en gros et au détail de l'équipement, du matériel de pêche et des marchandises en général, et gère trois magasins à Kisumu, Bondo et Kombewa. En 1983, le “Kenya Freedom from Hunger Council” (Conseil du Kenya pour la campagne mondiale contre la faim) lui a offert une petite camionnette qui sert à transporter les approvisionnements aux magasins.
La coopérative propose à ses membres des tarifs préférentiels sur tous les articles en vente et accorde des prêts (en nature) pour le matériel de pêche pouvant aller jusqu'à 10 000 K. Shs Jusqu'à présent, les membres ont bien accueilli les activités de la coopérative et la station de débarquement du poisson reçoit régulièrement les remboursements des prêts.
La station, située à proximité du village de Kaloka (à 30 km de Kisumu), s'étend sur 78 m2. Elle se compose d'un hangar avec une dalle de béton au sol et un toit en tôle de fer galvanisé soutenu par une ferme en bois. On estime à environ 0,6 t le volumè mis à terre par jour. La station est dotée de cinq tables mobiles pour la présentation du poisson (recouvertes d'acier inoxydable) et d'une balance suspendue. Le poisson frais, notamment la perche nilotique en filets, est vendu ici aux négociants en poisson, transporté à Kisumu dans des congélateursbahuts et revendu sur place ou dans d'autres centres urbains comme Nairobi ou Mombasa. L'alimentation en eau est assurée par une éolienne reliée à une pompe. Le village n'est pas alimenté en électricité (la ligne principale se trouvant à 15 km). La station est gérée par un directeur, deux secrétaires et deux employés (Figures 50, 51, 52 et 53).

Figure 50 Plan de la station de réception du poisson à Kaloka (lac Victoria)

Figure 51 Vue latérale de la station de Kaloka (lac Victoria)

Figure 52 Table de présentation mobile (stations de Kaloka et Wichlum)

Figure 53 Station de réception du poisson à Kaloka
Le nombre d'artisans pêcheurs de cette région est estimé à environ 320, dont 180 sont membres actifs de la coopérative de Wichlum. Ces pêcheurs disposent au total de 90 embarcations non motorisées, dont 40 sont utilisées par les membres de la coopérative. La station de déchargement du poisson, est un hangar de 89,6 m2 doté d'un sol en béton armé et d'un toit en fer galvanisé soutenu par une ferme en bois.
La coopérative de Wichlum gère cette station et emploie trois contrôleurs sur la plage qui perçoivent les commissions des pêcheurs, deux secrétaires et un directeur. La station est équipée de deux tables mobiles recouvertes d'acier inoxydable pour la présentation du poisson et d'une balance suspendue. Les mises à terre totales sont estimées à 0,8 t par jour. (Figures 54 et 55).
Les artisans pêcheurs de la région sont regroupés en une coopérative qui compte 160 membres actifs disposant de 128 canots bordés non motorisés. La station est dotée d'un petit bureau et d'un magasin pour vendre des engins de pêche aux membres. Le personnel de la coopérative est composé d'un directeur, de quatre secrétaires, d'un commerçant et d'un gardien. La station de débarquement est conçue de la même façon que celle de Port Victoria. Cette coopérative a passé un accord avec les négociants en poisson de Nairobi qui collectent le poisson (surtout des perches nilotiques) régulièrement en utilisant des camions isothermes et de la glace. La proportion de poisson frais destiné à la consommation est par conséquent relativement élevée (Figure 56).
Avec le concours d'un organisme de développement bilatéral, le Gouvernement sénégalais a lancé le projet du Centre d'assistance à la pêche artisanale sénégalaise (CAPAS), qui a pour principal objectif de mettre en place des infrastructures de débarquement du poisson de base de façon que les artisans pêcheurs disposent d'un système de vente plus efficace et les consommateurs de poisson de meilleure qualité. La pêche a lieu pratiquement tout au long de l'année, avec une période de pointe durant la saison sèche (janvier, mars, avril, mai).
La flottille des artisans pêcheurs de Kayar se compose surtout de pirogues à moteur (pour des sorties d'une journée) qui utilisent des lignes à la main, des filets maillants ou des nasses (au total, 448 unités de pêche); des senneurs coulissants (97) et des pirogues non motorisées (34); 78 % des embarcations sont exploitées par des migrants. On estime à environ 2 350 les artisans pêcheurs travaillant durant la saison de pêche principale; 70 % d'entre eux sont des migrants qui viennent en haute saison, de leurs villages de pêcheurs aux lieux de pêche de Kayar. Les principales espèces capturées sont les petits pélagiques (81 % de l'ensemble), tels que les sardinelles, les chinchards, les Decapterus sp. et les Euthynnus sp., et, dans une moindre mesure, les espèces démersales telles que Pagellus bellottii, Sparus sp., Pseudolithus sp., etc. En 1983, la production annuelle totale a été de 13 707 t, avec une moyenne de 74 t de poisson par jour en haute saison (de janvier à mai).

Figure 54 Plan de la station de Wichlum

Figure 55 Balance suspendue

Figure 56 Camion isotherme à la station de Kendu Bay
Le village de Kayar est situé dans la région septentrionale de Thies-Nord. Il se trouve à une heure d'automobile de Dakar, à laquelle il est relié par une bonne route asphaltée. Le poisson est vendu au volume, la mesure étant le panier (pour les négociants privés) ou la caisse (au marché au poisson); le poisson est débarqué sur la plage où les pirogues ont souvent du mal à accoster en raison du ressac.
La marée est déposée dans des paniers en osier, transportée au centre de vente, transvasée dans des caisses en plastique et lavée avant d'être mise en glace. Le centre achète le poisson au comptant directement aux pêcheurs. Des tables en acier inoxydable et des caisses à glace sont utilisées pour les opérations de nettoyage, de tri et de mise en glace.
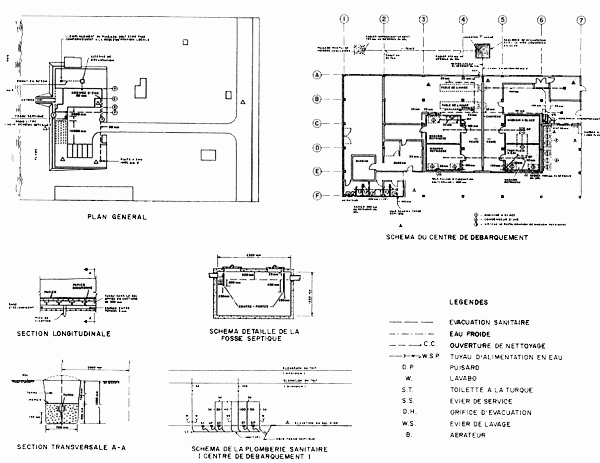
Le centre est pourvu de trois magasins réfrigérés (0-1°C) pouvant recevoir chacun 12,5 t de poisson en caisses, d'une machine à glace en plaques produisant jusqu'à 20 t/24h et d'un entrepôt à glace d'une capacité de 15,4 t. Il a une superficie totale de 3 650 m2, dont 536,5 m2 sont réservés au centre de traitement du poisson. Il comprend également une aire de débarquement couverte de 492 m2 et une aire de pesage et de lavage/mise en glace de 88 m2. Le sol est en béton recouvert de carrelage et divisé par une tranchée d'écoulement centrale couverte d'une grille métallique.
Les marchands de poisson qui travaillent à l'extérieur du centre de commercialisation de Kayar se servent de camions non isothermes pour le transport du poisson. Ils achètent la glace au centre, ou apportent leurs propres blocs qui sont entreposés dans de la sciure dans 13 petits conteneurs de béton sur la plage. Un puits profond avec une station de pompage situé à l'entrée du centre fournit l'eau douce. Le village de Kayar tire l'eau douce de puits artésiens peu profonds au moyen de seaux.
L'électricité est fournie par les lignes haute tension du réseau national. Un transformateur est installé dans l'enceinte du centre qui dispose également d'un groupe électrogène diesel. Des camions-citernes ravitaillent régulièrement en carburant quatre stations-service le long de la plage.
Le centre de commercialisation du poisson de Kayar utilise des caisses à poisson en polyéthylène HD (35 kg de poisson en glace par caisse); approximativement 1 300 caisses peuvent être stockées dans l'entrepôt à caisses. En outre, un camion isotherme d'une capacité en charge de 7 t distribue le poisson aux marchés de l'intérieur. On ne dispose malheureusement d'aucune donnée concernant les livraisons, les volumes et les prix (Figures 57, 58, 59, 60 et 61).
Le village de Lekki est situé à 75 km à l'est de Lagos, à laquelle il est relié par une route asphaltée (qui va de Lagos à Epe); il faut ensuite traverser la lagune de Lekki (45 min en bateau à moteur). Epe, centre de collecte principal du réseau de distribution du poisson pour la région, se trouve à environ 69 km de Lagos.
Le village de Lekki dispose de 16 embarcations de pêche en bois et compte 25 à 30 pêcherus à plein temps, qui capturent principalement des bongas (Ethmalosa fimbriata), des sardinelles, et dans une moindre mesure, des espèces démersales. La saison de pêche du bonga va d'octobre à février, tandis que des poissons démersaux tels que le poisson-chat, la sole, le requin et le tambour sont capturés toute l'année. On estime à 32 kg la pêche journalière d'un bateau et à 500 kg le volume débarqué chaque jour à Lekki. Sur ce total, 30 à 40% est consommé à l'état frais et environ 70 % est séché à la fumée. Le matériel de pêche le plus répandu est le filet maillant qui est posé en fin d'aprèsmidi et levé tôt le lendemain matin. Pendant la saison de pêche du bonga, on place les filets dans la matinée et on les récupère dans l'après-midi. Certains artisans qui pêchent normalement au large viennent travailler dans la lagune durant la saison des pluies (de juin à septembre), lorsque l'état de la mer rend la pêche difficile.
Dans le cadre d'un programme de développement, un centre de pêche a été créé dans la communauté rurale de Lekki. Il comprend un atelier de réparation d'engins de pêche et de moteurs, des logements pour le personnel, une installation de stockage général et un hangar pour le débarquement du poisson.

Figure 57 Centre de débarquement de Kayar

Figure 58 Mise en glace du poisson pour le transport

Figure 59 Station de réception du poisson de Kayar

Figure 60 Espèces pélagiques et démersales débarquées à Kayar en 1963

Figura 61 Quantités totales débarquées à Kayar en 1982 et 1983
Le hangar pour le débarquement du poisson a une superficie de 580 m2, avec un sol en ciment en pente vers les côtés et un toit composé d'une ferme en bois et d'une couverture en tôle ondulée galvanisée soutenue par des piliers en béton armé. La halle au poisson d'une superficie de 362 m2 est pourvue d'un magasin réfrigéré d'une capacité de 7,5 t (poisson en glace dans des caisses), d'une machine pour la fabrication de la glace en paillettes pouvant produire 300 kg de glace en 24 h, de deux congélateurs-bahuts (275 litres chacun), d'une bascule (140 kg × 500 g) et d'une balance à ressort (50 kg × 50 g). Lors de notre visite, la chambre réfrigérée et la machine à glace étaient en réparation.
Le poisson est débarqué des canots dans des paniers. Les marchands de poisson, qui sont principalement des femmes, achétent le poisson présenté sur des étals en béton, qui est ensuite lavé dans une brouette et pesé. Si l'administration achète du poisson frais à expédier au centre de collecte de Epe, le poisson devra être éviscéré et mis en glace dans des caisses ou congelé dans les congélateurs. En général, la commercialisation est relativement efficace. Toutefois, durant la haute saison de pêche au bonga, le marché est fréquemment trop approvisionné et, en raison de la détérioration rapide du poisson en climat tropical, 90 % des prises sont séchées à la fumée. Cette méthode assure la conservation pour une durée allant de quelques jours à quatre semaines (on n'utilise ni sel ni saumure). Ce sont surtout les femmes locales qui s'occupent de la commercialisation du bonga séché à la fumée, et dans une moindre mesure, les négociants de l'extérieur. Le centre halieutique achète aussi du bonga séché qui est transporté dans des paniers en osier d'une capacité de 50 kg au centre de collecte du poisson d'Epe, où il est trié et emballé dans des sacs en plastique contenant 450 g (environ 15 à 20 bongas par sac), puis expédié pour être vendu à Lagos ou dans l'état d'Ogun.
Le centre est alimenté en eau douce par un puits. Les eaux usées sont évacuées au moyen d'une fosse septique et de tranchées de filtrage. L'électricité est fournie par un groupe électrogène diesel (Figures 62, 63, 64 et 65).

Figure 62 plan de la station de réception dy poisson de Lekki

Figure 63 Vue latérale de la station de réception du poisson de Lekki

Figure 64 Table de présentation pour la vente en gros du poisson à Lekki

Figure 65 Caisses isothermes à poisson à Lekki