7.1 Recommended
storage temperature
7.2 Factors
limiting storage life
7.3 Choice of
Planners and Designers
7.4 Shape and Size
7.5 General Layout
7.6 Construction Methods
7.7 Insulation
7.8 Vapour Barriers
7.9 Floors
7.10 Types of cold store
7.11 Cold air
distribution
7.12 Defrosting
7.13
Factors affecting storage conditions
7.14 Product
handling and storage
7.15 Refrigeration
A cold store is any building or part of a building used for storage at temperatures controlled by refrigeration at -1WIC or lower.
The spoilage of fish due to protein denaturation, fat changes and dehydration can all be slowed down by reducing the storage temperature. The FAO Code of Practice for Frozen Fish recommends that frozen fish products should be stored at temperatures appropriate for the species, type of product and intended time of storage.
The recommended storage temperature for all fishery products in the UK is -30°C and this temperature has also been adopted throughout Europe. Spoilage by bacterial action in any practical sense is completely arrested at this temperature and the rate at which other undesirable changes proceed is greatly reduced. Some products can be stored safely at higher temperatures than the -30°C recommended providing storage is only for a short period. Since it is not always possible to guarantee that a product will stay in storage no longer than originally intended, it is generally safer to use the lower recommended temperature.
The International Institute of Refrigeration recommends a storage temperature of -18°C for lean fish such as cod and haddock and -24°C for fatty species such as herring and mackerel. The code also recommends that for lean fish intended to be kept in cold storage for over a year, the storage temperature should be -30°C.
Cold store operators can seldom be sure to store only one species or type of fish, or to store it for a limited period only. Cold stores built for storage of fish should preferably be able to operate at -30°C but can be operated at a higher temperature if circumstances and relevant codes or recommendations allow.
It has been calculated by an eminent authority on cold store design that under specific conditions, the total cost of operating a cold store at -30°C is only 4 percent higher than when operating at -20°C although the corresponding percentage increase in running costs will be higher.
The difference between total cost and running or operational cost will be made clear to the reader by examining the cold store costing detailed in Chapter 10. The total cost is the more realistic figure to use in making comparisons. It can be seen from Table 16 that there is a distinct storage life advantage in keeping fish at -30°C. It is possible that the advantage of improved quality can more than offset the additional cost of storage at the lower temperature. These times are for practical storage life which is defined as the time the product remains suitable for consumption or for the process intended.
Table 16 Practical storage lives (PLS) of fish products
| Product | Storage life in months | ||
| - 18°C | - 24°C | - 30°C | |
| Fatty fish (glazed) | 5 | 9 | > 12 |
| Lean fish (fillet) | 9 | 12 | 24 |
| Flatfish | 10 | 18 | > 24 |
| Shrimp (cooked/peeled) | 5 | 9 | 12 |
A number of codes of practice for fish and fishery products, elaborated by Codex Alimentarius Commission, Joint FAO/WHO Food Standard Programme, also make recommendations for storage conditions and these are listed elsewhere in this document. Reference should also be made to the International Institute of Refrigeration third edition of their book 'Recommendations for the processing and handling of frozen food 1986'.
Protein changes. Fish proteins become permanently changed during freezing and cold storage and the speed at which this denaturation occurs depends very largely upon temperature. At temperatures not very far below freezing point, -2°C for example, serious changes occur rapidly; even at -10°C, the changes are so rapid than an initially good quality product can be spoilt within a few weeks. The rate of deterioration due to protein denaturation, however, can be slowed by ensuring that storage is at as low a temperature as possible.
Fat changes. Fatty fish may become unpleasantly altered during cold storage but they can be protected to some extent either by glazing or by packaging in plastic bags sealed under vacuum. These oxidation changes take place more rapidly at higher temperatures and storage at a low temperature is an effective means of slowing the rate of spoilage by this method.
Colour changes. The quality of fish is often judged by appearance, and colour changes which are not otherwise significant can result in fish being downgraded. The changes in the fish flesh which bring about these colour changes are also retarded at lower temperatures.
Dehydration changes. Dehydration of the product is probably the major concern of the cold store operator and the rate of drying can be linked with a number of factors in cold store design and operation.
When fish get badly dehydrated in cold storage, the surface becomes dry, opaque and spongy. As time progresses, these conditions penetrate deeper into the fish until it becomes a fibrous, very light material. Visible effects of severe dehydration on the surface of the fish are known by the term "freezer burn". This is an unfortunate choice of term since the effect is unlikely to result from freezing in a properly designed freezer, and appears only after periods of storage in a cold store.
Frozen fish may dry slowly in cold storage even under good operating conditions. This is undesirable for reasons other than the obvious one that the product will lose weight. Drying also accelerates denaturation of the protein and oxidation of the fat in the fish. Even totally impervious wrappers used to protect the product do not give full protection if the cold store operating conditions are favourable for desiccation within the pack. In-pack desiccation prevails when there is some free space within the wrapper and the temperature of the store fluctuates. When this occurs, there will be times when the wrapper is colder than the fish and moisture will then leave the product and appear as frost on the inner surface of the wrapper. The total weight of the product and package will not change but if the in-pack dehydration is severe, the fish will have the quality defects of excessive drying.
When considering the construction of a cold store, one of the very first steps is to decide on specialists to be responsible for planning, design and project management. The construction of cold stores involves a number of factors besides the actual building. The use of specialists enables the organisation responsible for the project to:
It is recommended that specialists handle a project all the way from a feasibility study to commissioning, including supervision and training of the local management responsible for the future operation of the cold store.
Cold stores can be divided according to construction into single-storey and multi-storey buildings. They can be used as production stores, bulk stores, distribution stores or retail stores. For a long time, the most appropriate shape was a cube for which the ratio of surface to volume is a minimum. Besides this, the cost of land was a major consideration, especially when stores were located in urban areas. This resulted in multi-storey buildings, with a number of disadvantages, e.g., costly foundations, heavy framework, congested handling areas.
The main considerations which have resulted in the appearance and success of single storey buildings are cost reduction together with mechanised handling techniques. Today multi-storey buildings are built only in congested or costly harbour areas, where cranes can be used externally to mezzanine floors. Those buildings are normally not more than two storeys high.
A single-storey cold store can be easily designed to meet the specific requirements of stacking and handling equipment. Wall and roof constructions can be made lighter as they do not have to support the weight of the product stored, as in a multi-storey building. The main disadvantages are the relatively large ground area covered and the high ratio of surface to volume. The advantages however, normally override the disadvantages. Most European and United States cold stores built in the course of the last 20 years are single-storey buildings.
A production cold store is usually a part of one or several food businesses, storing frozen raw materials and semi-finished, as well as finished products. Bulk stores normally give the same service as production cold stores, but are often located at some distance from the actual processing industries and are normally much larger than the production stores. The storage time at a bulk store is also normally longer. Distribution stores, generally located in urban areas, receive products from the production or bulk store in large lots, which are broken down - order assembled - before delivery to the retail stores. The storage time is short, one week up to two months.
There is a general tendency to build larger installations than those in the past. Capacities of new cold stores are now between 5,000m3 and 250,000m3 where, depending on local conditions, the optimum investment/running cost relationship is generally found. It should, however, be noted that the size of the distribution warehouse depends on a number of factors like amount of traffic, average storage period, number of articles, as well as the number of clients. Bulk and distribution cold stores are often combined at the same location, the main difference between them being stacking arrangements and equipment used.
A single-storey building can have a relatively simple layout. Depending on size, it can either have one single room or it can be divided into a number of rooms. Normally all the rooms are operated at the same temperature, for fish preferably in the range of -24° to -30°C. Most stores, with the exception of small prefabricated ones, are built at a higher level
than the surrounding yard with a special loading ramp at one or more sides. The loading ramp level corresponds to the height of the most commonly used vehicles. Sometimes the stores are also built with a loading ramp for railway wagons, often placed on the opposite side to that used for loading road vehicles.
The engine room should be as close as possible to the position of the air cooling equipment within the store. This sometimes poses a problem in the planning of future extensions and it may therefore be placed at the end of the cold store in such a position that it will easily serve future expansion. Alternatively, the engine room can be placed away from the cold store complex and serves the air cooler via a pipe bridge so that extensions can take place in any direction. Freezing tunnels can either be arranged so that their entrance doors communicate with the loading platform or alternatively they can be arranged with the discharge doors within a cold room so as to minimise the amount of heat losses.
Modern large or medium cold stores are built as one-storey buildings designed for mechanical handling, e.g., forklift trucks and automatic stacker cranes. Manual handling is, however, still used for most small-sized stores.
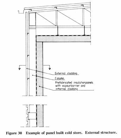
A cold store can be built as an ordinary building using conventional building material, such as bricks, concrete or concrete process sections to which a vapour barrier and insulation is fitted internally. Modern insulation material, in particular polyurethane, has a strength that can be utilised structurally. Today, this is used for panel designs suitable for all sizes of cold rooms from (20m 3 to 250 000m 3) . Factory made insulation panels are delivered to the site complete with a vapour barrier and internal cladding, thus reducing the site work to a minimum. There are two basic principles for panel-built cold stores. A common system has an external structure and cladding with a wall insulation on the inside of the columns and the insulated ceiling hanging from the outer roof structure as shown in Figure 30.
The panels normally used in these systems are either polyurethane or polystyrene insulated panels with or without frames. They are manufactured as sandwich panels, one face being the vapour barrier of light-gauge galvanised steel sheet and the other face being the internal finish of plastic-coated galvanised sheet or aluminium sheet. A decorative external cladding is erected on the outside of the columns.
The roof insulation is constructed as a suspended ceiling. The roof panels are, in principle, the same as the wall panels, but are sometimes equipped with wooden frames.

The wall panels are fixed to the columns or horizontal rails between the columns with special bolts. The joints are sealed with tape or sealant mastic and the internal joints are finished with a cover strip. The roof panels are hung from the outer roof construction with hanger rods and locked together with sealed, tongued and grooved joints or similar. For the roof panels, special care must be taken where the hanger rods pass through the vapour barrier. In humid climates, ventilation might not be sufficient to avoid condensation in the attic space above the insulated ceiling. This problem can be overcome by closing the space and drying the air with some form of air drier.
The other system shown in Figure 31 has an internal structure, i.e., columns and roof trusses are placed in the cold room. The panels used for this system can be of the same types as in the other system but the vapour barrier is also the external weather protection and decorative finish. Therefore the metal sheet itself and the jointing between the panels must be of very high quality. The roof insulation can either be carried out with panels or built oil site.

The latest development are panels with a rib profile on the external face of aluminium which is also the total external cladding - with polyurethane foam insulation and an internal face of low profile corrugated aluminium. The panels are generally of large size and erected with small mobile cranes. Thus the erection time is reduced to a minimum, the panels are pulled together with Camlocs or other special devices giving positive pressure between the joints. The joints are filled with flexible compounds and covered with a metal strip. The walls are attached to horizontal rails fixed at 3 m vertical intervals with clamps, which admit sufficient movement of the construction. These panels are also used for roofing, being place on beams at 3 m intervals. The external cladding joints are made with a special seaming machine, which automatically moves along the joints, mechanically closing the rib profile of one sheet around that of another. The space between the panels is filled with a one component polyurethane foam. The internal cladding is sealed with a PVC strip. One component foam is also used to join wall panels to roof panels and seal around doors, etc, maintaining good insulation properties throughout the building. With this design both the insulation and external vapour barrier are entirely sealed units enveloping the whole building. This means that losses via heat bridges or air leakage are completely eliminated, which gives practical insulation properties closer to theoretical values than normally expected.
In the case of single-storey cold stores, two types of frame work are commonly employed. Metal frameworks, can span distances up to 60m without the need for internal columns. They are prefabricated in the factory and transported to the site in sections for quick and easy erection. The minimum span is approximately 15m. Minimum load is involved as the roof frame is carrying only the waterproof covering and the insulation. In some designs it also carries the weight of the air coolers within the room. Then it is desirable to concentrate these loads near the columns rather than at mid spans. An outside metal framework can be used for electrical earthing connections.
Reinforced concrete frameworks can incorporate concrete beams spanning the room, or can be a combination of concrete columns supporting metal trusses. Overhead rail systems can be supported from the main structure or a separate steel frame can be incorporated inside the cold store with separate columns transferring the load onto the main structural floor.
The choice of insulation is very important as it accounts for a large proportion of the total construction cost. The insulation material and thickness is also important from an energy point of view. Besides a satisfactory thermal conductivity coefficient the insulation material should also be odour-free, anti-rot, vermin and fire-resistant and impermeable to water vapour. Some of the most common materials are shown in Table 17. The table also gives examples of typical insulation thickness for the different materials.
Table 17 Typical insulation thickness for chill and cold stores utilising different insulation materials
| Insulation | Calculated thermal conductivity (kcal/m h °C) | Thickness (mm) |
| Polystyrene | 0.033 | 220 |
| Styrofoam FR | 0.030 | 200 |
| Polyurethane | 0.025 | 170 |
Currently, with existing energy costs, the thermal conductance should not exceed 0. 15 kcal/m2h°C for cold stores. However in the future with ever increasing energy costs this figure may have to be improved.
The final quality of any insulation is not only a matter of the properties of the material itself, but of the way it is erected or fitted to the external building. Heat bridges should be avoided, e.g., those normally created by pipes, cable joints, etc. Piping which carries low pressure refrigerant or other liquids at low temperature must be insulated. The provision of an efficient vapour barrier on the outside of the finished insulation with joints properly sealed is of utmost importance, as moisture vapour penetrating the insulation will form ice and gradually destroy the insulation material. The thickness of insulation depends upon the internal temperature, heat conductivity of the insulation material and the dew point of the ambient air, in order to avoid condensation. The insulation material should be protected against moisture and mechanical damage. Where uncovered insulation material is used, the internal walls and ceiling can be protected by sheets of aluminium, galvanised steel, reinforced plastic, etc., or with materials such as plaster and cement. The choice of material should be related to the use of the store, e.g., need for washing down. Painting of plastered walls are not recommended unless special paint is used as it will quickly peel off.
The insulation of the cold store doors should be the same standard on the store wall. The most common insulation material for doors is polyurethane and door heaters should be fitted to prevent ice forming at the seal thus jamming, and ultimately causing damage to the door.
The air within a cold store holds a good deal less water vapour than the air outside. Water vapour in the air gives rise to a pressure and together with the other gases present, such as oxygen and nitrogen, account for the atmospheric pressure that we are all familiar with. The partial pressure exerted by the water vapour is proportional to the quantity of vapour present and the vapour in the air will tend to migrate from areas of high partial pressure to areas of low partial pressure. Hence, there is a tendency for moisture in the ambient air to pass through the insulation of a cold store to the area of low partial pressure within (Figure 32). When this vapour is cooled, it condenses and at the point where the temperature is 0°C, it freezes to form ice. This process will continue over a long period of time and the build-up of ice will eventually affect the insulation properties of the cold store wall and also weaken the structure of the wall or building. Unfortunately, the outward effects of this build-up of ice may not show for some time, long after the builder's guarantees have become invalid.

To prevent this type of destruction to the store insulation, a vapour barrier has to be provided on the warm side of the insulation. This vapour barrier must be complete and cover all walls, the roof, ceiling and the floors. For stores constructed against a building wall, this may be formed by applying at least two coats of a suitable bituminous sealing compound. With prefabricated stores, a vapour barrier is already provided with the individual sections, usually an outer facing of sheet metal, and only the joints require sealing. It must be remembered that water vapour is a gas and it is not sufficient merely to make the outer surface waterproof; overlapped joints, for instance, must be sealed.
Foundations and frost heave. Low temperature stores built directly on the ground may require special precautions to prevent the build-up of ice below the cold store floor. The ice formation causes distortion known as "frost heave" and in particularly bad cases, it can lead to the complete destruction of the store and structure of the building (Figure 33).

The conditions that give rise to frost heave are rather complex, since they are related to the type and texture of the soil, the insulation properties, the availability of moisture, the dimensions of the store, seasonal climatic variations and other factors.
Two methods of preventing frost heave are commonly used. The ground below the store can be heated either by a low voltage electrical mat in the cold store foundation or by circulating a heated liquid such as glycol through a pipe grid built into the foundation (Figure 34). The heat for the glycol is usually obtained from the compressor hot gas through a heat exchanger.

Another method of preventing frost heave is to leave a space below the store for ventilation (Figure 35). The level of the floor of a cold store is usually arranged to suit the unloading and loading of vehicles. The additional height required for this facility leaves plenty of height for an air ventilation space below the insulation. If there is any danger of flooding, cold store floors will be built above the likely water level and again there will be an opportunity to leave an air space for ventilation. This ventilation arrangement should be clearly defined and not blocked at a later date when the main function of the air space has long been forgotten.
The provision of a vapour barrier and the prevention of frost heave are probably the two most important requirements in the construction of a cold store.

Air ingress .Outside air entering the store adds heat and moisture. This moisture will be deposited as frost on any cold surface and will eventually finish up on the surface of the cooler. Excessive air exchange should be prevented to keep the cold store temperature steady and reduce the frequency of defrosting. Small air locks have been used to prevent the free flow of air in and out of the store but they are not popular with cold store operators (Figure 36). The air-lock space often does not allow complete mobility and unless this condition can be met, both doors are left open. The air lock will therefore serve no useful purpose and merely occupies valuable space.

A curtain of air blown downward or from the side of the doorway can reduce the exchange of air when the door is open. These air curtains, as they are called, can be a useful aid when the door is opened for short intervals. However, they are often abused and doors are often left open for long periods.
Hatches can be used to reduce air ingress when a product is being loaded or unloaded. Hatch openings should be as high up in the store wall as possible to prevent excessive loss of cold air. Portable conveyors can also be used to speed up the transfer of produce.
Store door openings can be fitted with an inner curtain made from overlapping strips of synthetic material suitable for use at low temperatures (Figure 37). This reduces the air exchange considerably without interfering too much with traffic but the curtain must be maintained in good order and, as with the air curtain, not abused by leaving the outer main door open.

Large stores are fitted with power-operated doors which can be quickly opened and closed, usually by automatic vehicle sensor or pendant switches outside and inside the doorway. Because this system is easy to operate even from a moving fork lift truck, door opening times are kept to a minimum.
The ground loads from a cold store are in the order of 5500-8000 kg/m2. This consists of static loads due to merchandise, structure and concentrated rolling loads transmitted by e.g., forklift trucks and other handling equipment. It is of importance that those loads are investigated in detail for each special project.
In the case of a single-storey building, a reinforced raft is usual, including ground beams at the edges or bases for the structural frame. This can rest directly on the existing ground or a supported slab.
The floor wearing surface requires particular care. In addition to the wear other industrial floors have to stand, it is exposed to low temperature. All other parts of the cold store can be repaired whilst most of the space is still used for storage, but not the floor. Most commonly the floor wearing surface is a concrete slab cast on the floor insulation with a thickness of 100-150mm. In cases where intensive traffic is foreseen a special hard wearing top-finish is recommended. Before casting the wearing surface, the floor insulation should be protected by bituminous paper or plastic sheeting, the function of which is twofold. Firstly, to prevent the water from the fresh concrete penetrating into the floor insulation and secondly, to provide a slip-sheet, which will reduce the friction when the concrete when contracts. It is of great importance that the floor wearing surface be level to enable high stacking and easy traffic. The top-finish should provide a reasonable anti-slip surface.
Special attention must be given to floor joints. It is recommended that a device which allows horizontal displacement, but not vertical movement, is used between the joints. If the joints open too much after lowering of the temperature, they must be filled with a suitable jointing compound.
If the pallet layout is painted on the floor (the conventional way for easy location) a special hard-wearing, alcohol-based paint should be used.
Stores with unit coolers. The most widely used method of cooling modern cold stores is by means of unit coolers with fan designed with good air flow characteristics (or good circulation of the air). This type of cooler is generally the cheapest to install; it contains a relatively small charge of refrigerant, it can be readily defrosted without interfering too much with the store conditions and it does not require a heavy structure for support. The main disadvantage is that many designs using this type of cooling unit do not allow for uniform distribution of the air within the store. This gives rise to poor storage conditions where the air circulation is either too high or too low (Figure 38). By suspending the unit cooler from the ceiling (Figure 39) or installing the unit outside the store (Figure 40) and ensuring that pallets are stacked with suitable head space and floor spacing, uniform air distribution can be achieved.



Multiple units are usually better than large single units for a number of reasons. A multi-unit system gives some insurance in case of breakdown. The store can usually be maintained at its design value without the need for all units to be in operation provided there is not a high additional refrigeration load due to product and heavy traffic in and out of the store. Multiple units also allow each unit to be defrosted in sequence and this arrangement has the least effect on storage conditions. If a hot gas defrost system is used, then a multiple unit system is essential so that the units in use provide the necessary refrigeration load for the refrigeration compressor.
With small units, electrical defrosting is more common. The defrosting of unit coolers in small cold stores is usually automatic and operated by a time clock. With this mode of operation, the timing of defrosts should be arranged to coincide with times when the refrigeration load is low, usually during the night.
Prefabricated Cold Stores
Besides prefabricated panels and the structural components used in the construction of cold stores, there are "building kits" available on the market today for small modular cold stores. The most complete "kits" include wall and roof panels, loading ramp, canopy as well as refrigeration plant. A typical example is a cold store with a nominal storage capacity of some 200t measuring 12 x 12 x 6m built with self-supporting polyurethane insulated panels faced inside and out with galvanised and plastic coated steel sheeting, as well as a prefabricated floor. The only local requirement is a concrete floor slab on which the building is erected. Normally the assembly is carried out by specialists and the erection time varies between 4 and 8 weeks depending on local conditions. The material for the store is shipped in three ordinary containers one of which contains the engine room which can be contained in a weatherproof building adjacent to the cold store.
A possible cross-section of such a prefabricated cold store with a simple overhead crane is shown in Figure 41.

Reference to handling equipment viz. pallets etc. handling costs, administrative routines, stock records and engine room logs are all referred to in the FAO Fisheries Circular No,771 Planning and Engineering Data 3.Fish Freezing.
Heat transfer is effected by radiation or convection. The air in a cold room essentially transfers heat by convection. Convection is often referred to as natural when air movement is activated only by a density difference created by the temperature difference. It is called forced when air movement is activated by a fan. The actual cooling is effected by two main types of heat exchangers, natural convection coils and forced-air coolers. Natural convection coils have the advantages of maintaining high relative humidity and low air velocities, but these advantages are offset by disadvantages like difficulties of defrosting, which also could be dangerous to carry out. Furthermore, they are not suited to run with high product loadings since the refrigeration capacity is low and are therefore rarely installed today.
Forced air coolers can be mounted inside the cold store space or placed in an external compartment with air circulation by means of fans through a delivery duct (Figure 40). Such a duct sometimes taking the form of a double ceiling or double floor. The defrosting of air coolers situated externally is convenient since it is possible to isolate the air cooler from the interior of the room for this operation. The normal placement is, however, inside the room for larger cold stores, whereas outside placement is normally used for smaller ones. Forced-air circulation enables greater refrigeration capacities because of high rate of heat transfer. It also gives a more even temperature distribution within the room.
Forced-air coolers are usually built as a single small unit, including the fan which is easily mounted within the room itself. The equipment is often combined with special air ducts for even air distribution in the room. The advantages of this type of equipment are reduced installation costs and easy maintenance.
When the refrigerant temperature is lower than -3°C, frost will deposit on the coils and this results in a reduction in the heat exchange. The frost thickness built up is however, of less importance than ensuring the free passage of air through the coil battery as indicated above. Regular defrosting is of great importance in the operation of a cold store. There are a number of methods available, such as hot-gas defrosting for direct expansion systems, water defrosting and electric defrosting. Sometimes combinations of these methods are employed, e.g., hot-gas defrosting followed by water spraying or hot-gas defrosting of coils with electric tray heating. The latter is now the most used in new installations. It should be noted that labour costs for manual defrosting operations can be high and they are often complicated. In order to increase the operation periods of air coolers between defrost, a wide fin spacing of coils at the inlet side is used in order to act as frost catchers without obstructing the airflow.
Other developments include sensors which measure the frost deposit at specific locations on the cooler fins, the air flow reduction due to frost build up or the refrigerant temperature differential across the cooler. They may be linked to a timer to ensure that auto defrosts do not occur during high refrigeration load period.
The rate of product dehydration can be related to the size and shape of a cold store. A small cold store has a greater heat leak in proportion to the quantity of product in the store since the volume of a store increases at a greater rate than the surface area. This means that one large store is likely to provide better storage conditions than two smaller stores with the same capacity.
Large stores are provided with a loading platform which can be adjusted to accommodate varying vehicle heights. This platform must also provide adequate space for quick sorting and manoeuvring of goods in and out of storage. A platform width of 8 to 10m may be necessary for this purpose. The unloading area should also be roofed over so that goods being transferred in and out of the store are protected from direct sunlight and rain. This cover also protects the doorway, which may ice up if it is exposed to rainfall.
In hot countries, handling frozen fish outside the low temperature storage space can quickly result in exposed fish being warmed and even thawed. The provision of a refrigerated working area and loading dock is therefore recommended for prestorage sorting and the assembly of loads for shipment. This loading dock should be totally enclosed, insulated and refrigerated to a temperature of about MC. The area of this dock will depend on the amount of traffic and the type of store operation. In a public store where a good deal of sorting is required, this area may be much as 25 percent of the store floor area as shown in Figure 42.

In addition to providing a chilled working space, this refrigerated dock will act as a large air lock between the outside air and the low temperature air within the store. As much as 80 percent of the moisture in the ambient air will be removed by the cooler in this space and a good deal of precooling will be done before this air enters the main store. This will reduce the defrost requirement for the store coolers and generally result in a more stable and lower storage temperature.
The means of transporting goods in and out of the store and within the store depends on the goods being handled, the type of cold store, the height of store, the need to reduce labour costs and many other factors that may only have a local significance.
A list of some of the equipment that may be considered is given below:
Two-wheeled trolleys
Manual platform trolleys
Self-propelled platform trolleys
Manual or self-propelled pallet trucks
Belt, chain or roller conveyors, either gravity or self-propelled.
Continuous elevators of various types
Platform elevators
Cranes
Gantries
Hand-stacking equipment
Various types of mechanised stacking equipment
Fork lift trucks, hand or power operated
Adjustable mechanised conveyors
Whenever possible, pallets should be used for storage of product. These divide the goods into unit loads which can be transported, stacked and retrieved with a minimum of effort. Regular-shaped packages or blocks can be readily palletised. Loose fish, such as those broken from blocks and other irregular- shaped products, can also be stored in pallet cages. In public stores where it is often necessary to remove a pallet from the bottom of a stack, the individual pallets do not rest on the pallets below but are supported on a framework. This allows any individual pallet to be added or taken away without the need to break down the stack.
Pallets should not be stacked so that the base of one pallet rests on the produce below except in the case of frozen blocks of fish or where the product cannot be crushed. Framed pallets can be stacked five high with safety, but only if they are correctly stacked. In large distribution stores, pallet racks have been motorised so that there is no need to provide so many passages within the store. The racks are moved as required to allow access to individual rows. This degree of mechanisation would only be employed when store utilisation and quick handling are critical factors.
Attempts have been made to standardise pallet sizes but this has not yet become world-wide. Pallet dimensions of 800 x 1200mm and 1000 x 1200mm have been widely used but the final choice will depend on local circumstances depending on such factors as the degree of interchange of pallets outside the store, vehicle and package dimensions, and other transport and storage considerations.
When a fully accessible palletised system is not used, the product should be loaded in the store so that a first-in first-out system can be operated. This ensures that there is a correct product rotation, and storage times are not unnecessarily long.
The width of passageways will depend on the equipment used for transporting and stacking the product. Details of the space requirements of this equipment must therefore be obtained before a decision is made on the size of store required.
When products are placed in the cold room it is important that an air space is left between the product and the ceiling, the floor and the external walls otherwise heat entering the store through the insulation will pass through the produce before being transferred to the cooler. In the case of internal walls an exception can be made only when the same temperature exists on opposite sides of the wall.
With normal storage of palletised products the required air space is usually obtained through the small irregularities which occur when assembling the product on the pallet. However, in the case of solid block storage or where the pallet sides are completely flat, special care should be taken to ensure that the air space is adequate. Between the product and the floor the air space is automatically provided by the construction of the pallet. The question of air space above the uppermost pallet is, as a rule, no problem since the height of the chamber is designed for a certain number of standardised pallet units and thus allowance is made at the design stage.
Cold store layout . The layout of a store is determined by the type of product, packaging, method of palletization, accessibility required and the equipment used for handling.
Passageways should be clearly defined and in the interests of safety and quick handling, these should be kept free from obstruction at all times.
The floors of large stores are often marked off with a grid and the grid spaces numbered so that the location of goods can be recorded thus enabling quick retrieval.
Products stored near the doorways will come into frequent contact with warm moist air entering the store when the door is open. Some form of partition may be used to reduce the effect of this warm air on products stacked in this area.
The capacity of the refrigeration plant must be based on a thorough heat load calculation for each individual project. Refrigeration load can vary widely for stores of the same capacity depending on design, local conditions, product mix, etc. Therefore no rule of thumb can be applied. In past practice, a safety margin of some 50 percent of the theoretical calculation has been used. Today with a more thorough knowledge of practical cold store operation, combined with theoretical knowledge, the safety margin can be reduced to a more realistic level.
The refrigeration equipment should conform to requirements laid down in national codes of practice, insurance companies, as well as international recommendations (ISO R1662) (BS4434 1989/).
The following discussion is limited to general considerations serving as guidance and introduction to more detailed studies of the factors influencing the purchase and installation of refrigeration plants.
Heat leakage or transmission load can be calculated fairly closely using the known over-all heat transfer coefficient of various portions on the insulated enclosure, the area of each portion and the temperature difference between the cold room temperature and the highest average air temperature likely to be experienced over a few consecutive days.
Heat infiltration load varies greatly with the size of the room, number of door openings, protection of door openings, traffic through the doors, cold and warm air temperatures and humidities. The best basis for this calculation is experience. The type of store has a marked influence on the heat load, as has the average storage time. In comparing long-term storage, short-term storage and distribution operation it can be found that there is a 15 percent increase in refrigeration load for the short-term storage as compared to the long-term storage, whereas the refrigeration load in the distribution operations is in the order of 40 percent higher than for long-term storage, due mainly to additional air exchanges.
Section 8 gives an example on a heat-load calculation of a small cold store.
Most large cold stores are equipped with 2-stage ammonia refrigeration installations. For smaller plants, usually less than 6 000 kcal/h refrigeration capacity, approved refrigerant will probably be used in single stage systems operating with thermostatic expansion valves. Such systems are thermodynamically less efficient, but in areas where only staff with relevant refrigerant experience are available the system may be preferred for service reasons.
The refrigeration system should be designed for high reliability, and easy and proper maintenance. Once a cold store plant has been pulled down in temperature, it is expected to maintain this temperature, literally, forever. Even maintenance jobs that need carrying out only every 5-10 years must be taken into consideration.