Al-Thobaiti, S., 1995. Project progress report, Jul–Dec 1995. Jeddah Fish Farming Centre, UTFN/SAU/010/SAU, 32 pp.
Abou-Ghaloon, S., 1991. Taxonomical and ecological study of the family Sparidae from some regions of Syrian coasts, Aleppo, Syria. 167 p. (Tishreen University)
Barbato, F. and Corbari, L., 1995. New species in Italy. Proceedings of the seminar of the CIHEAM Network on Technology of Aquaculture in the Mediterranean (TECAM), Nicosia (Cyprus), 14–17 June 1995, p 123–128.
Bingel, et al., 1993. A review of the state of the fisheries and the environment of the Northeastern Mediterranean (Northern Levantine basin). GFCM Studies and Reviews No. 65. FAO Rome
Bronzi, P., 1983. Freshwater fish fanning in Syria. Rome, FAO, TCP/SYR/0103.
FAO, 1991. Mediterranean regional aquaculture project. Algeria, Cyprus, Eygpt, Greece, Malta, Morocco, Syria, Tunisia, Turkey, Yugoslavia. Project conclusion and recommendations. FAO, Rome. 46 p.
FAO, 1992. Syrian Arab Republic. Report of the FAO Programming and Project Identification Mission. FAO, Rome 1992.
FAO, 1995. The Syrian Arab Republic. A Policy Framework for Agricultural Development Strategy in Syria (Draft). Vols. I & II. FAO, Rome 1995.
Ferlin, P., 1983. Marine Aquaculture Development in Syria. Rome, FAO, TCP/SYR/0103 (Mi), Field Document 4.
Ferlin, P., 1985. Summary of Preparatory phase: Algeria, Cyprus, Egypt, Greece, Libyan Arab Jamahiriya, Malta, Morocco, Syrian Arab Republic, Tunisia, Turkey and Yugoslavia. Report on Activities of Mediterranean Regional Aquaculture Project FAO-FI-DP/REP/78/004. Rome. 30 p.
Garica-Badell, J., 1983. Improvement of Fisheries and Aquaculture Production Project, Syrian Arab Republic. The future development of fish breeding in Syria.
Gatland, P., 1995. Growth of Puntazzo puntazzo in cages in Selonda bay, Corinthos, Greece. Proceedings of the seminar of the CIHEAM Network on Technology of Aquaculture in the Mediterranean (TECAM), Nicosia (Cyprus), 14–17 June 1995, p 51–56.
Girin, M, 1989. A regional survey of the aquaculture sector in the Mediterranean (including Albania, Algeria, Cyprus, Egypt, France, Greece, Israel, Italy, Libya, Lebanon, Malta, Morocco, Portugal, Spain, Syria, Tunisia, Turkey, Yugoslavia). FAO-FI-INT/81/031FAO-FI-ADCP/REP/89/34.FAO, Rome. 76 p.
Gracia Lopez, V. and Castello-Orvay, F., 1995. Growth of Epinephelus guaza under different culture conditions. Proceedings of the seminar of the CIHEAM Network on Technology of Aquaculture in the Mediterranean (TECAM), Nicosia (Cyprus), 14–17 June 1995, p 149–156.
Josupeit, H., 1995. Aquaculture production and trade world survey. Proceedings of the seminar of the CIHEAM Network on Socio-economic and Legal Aspects of Aquaculture in the Mediterranean (SELAM), Montepellier (France), 17–19 May 1995, p 9–28.
Kapetsky, J.M., 1995. The enhancement of fisheries of Lake Assad (Syria): An overview of opportunities. Mission report, FAO Rome 1995.
Kelleher, M.K.,1996. Preliminary fisheries sector study with particular reference to policy, planning and management of fisheries. Rome, FAO, TCP/SYR/4552(A), Field document (Draft).
Lamendour, P.M., 1983. Handling, processing and marketing of fish. Rome, FAO, TCP/SYR/0103.
Lamendour, P.M., 1983. Improvement of Fisheries and Aquaculture Production Project, Syrian Arab Republic. Handling, processing and marketing of fish. FAO, Rome. Fisheries Dept. 19 p. AO-FI-TCP/SYR/0103(Mi).
Lisac, D., 1989 The culture of the red sea bream, Pagrus major, in Yugoslavia - present status.
Loix, B. and Seltz, J., 1985. Projet-Pilote de Lattaquie, Rapport de mission. FAO / MEDRAP, Tunis, May 1985, 59 p.
MacPherson, N., et al., 1988. Farming of sea bass, sea bream and shrimp in Iskanderun Bay. An assessment of economic and technical feasibility. FI:DP/TUR/87/033, FAO, Rome 1988.
Medina Pizzali, A.F., 1996. Syrian Arab Republic. Fish handling, processing and marketing. FI:TCP/SYR/4552(A), FAO, Rome 1996. Draft report.
Saad A. and Sbaihi M. ,1995. Mise en evidence de la presence de 11 especes de teleostreens originaires de l'ocean Atlantiqu et de la Mediterranee occidentale dans les eaux de Syrie (Mediterranee orientale). Rapport du XXXIVe Congres de la CIESM, Vol. 34, P.256.
Saad A, Sbaihi M., and Hureau J.C., 1995. Impact des facteurs de l'environnement sur la biodiversite de la faune ichylogique dans les eaux cortieres de Syrie pendant les trente dernieres annees. Cybium (in press).
Saad, A., 1996. Biology and life cycles of small pelagic fish on the coast of Syria: Landings and catch profile for the Syrian coastal fleet. TCP/SYR/4552, Jan 1996, Tishreen University, Latakia, 31 p.
Stephanis, J., 1995. Economic viability of production systems seabass/seabream in Greece (industrial scale). Proceedings of the seminar of the CIHEAM Network on Socio-economic and Legal Aspects of Aquaculture in the Mediterranean (SELAM), Montepellier (France), 17–19 May 1995, p 65–78.
Stephanis, J. 1995. Mediterranean aquaculture industry trends in production, markets and outlook. European aquaculture trends and outlook. Eurofish Report Trade Conference, 1995.
Stephanou, D., et al., 1995. Reproduction and larval rearing of the common sea bream (Pagrus pagrus), an experimental culture. Proceedings of the seminar of the CIHEAM Network on Technology of Aquaculture in the Mediterranean (TECAM), Nicosia (Cyprus), 14–17 June 1995, p 79–88.
Stewart, W., 1996. Assistance to artisanal fisheries (fishing technology). TCP/SYR/4552(A), FAO, Rome 1996. Draft report.
UNEP. 1994. Iskanderun Bay Project. Volume II. MAP Technical Reports Series No. 90. Sophia Antipolis, 1994.
US ARMY CORPS OF ENGINEERS, 1984. Shore protection manual, Vol I and II. US Government Printing Office, Washington, D.C. 1222 pp.
| 26 Mar | Golfo Aranci - Rome |
| 27 Mar | Rome - Damascus |
| 29 Mar | Damascus - Tabibieh - Betjen - Damascus |
| 01 Apr | Damascus - Jeble - Latakia |
| 02 Apr | Latakia - Ras el Basit - Latakia |
| 03 Apr | Latakia - Sinn Farm - Baniyas - Latakia |
| 04 Apr | Latakia - Tartous - Arowat Island - Latakia |
| 06 Apr | Latakia - Jeble - Latakia |
| 11 Apr | Latakia - exit to sea (north coast) - Latakia |
| 13 Apr | Latakia - Jeble - 16 Tishreen Dam - Latakia |
| 16 Apr | Latakia - Jeble - Sinn Farm - Latakia |
| 18 Apr | Latakia - Damascus |
| 24 Apr | Damascus-Rome |
| 26 Apr | Rome - Golfo Aranci |
Damascus
Dr. Issam Krouma, Director of Fisheries Resources, MAAR
Dr. Heidar Nidal, Deputy Director of Fisheries, MAAR
Mr. Moustapha Menouar Sinaceur, FAOR Representative, Damascus
Mr. Dominique Burgeon, Programme Officer, FAOR, Damascus
Mr. Kieran Kelleher, FAO Consultant for Planning and Policy,
Mr. Andrew Smith, FAO Fisheries Technologist
Mr. Awad Shubat, Director Damascus Branch of GEF
Mr. Issam Abou Alnaser, Osama Company for Plastic, Damascus
Mr. Mahmoud, Manager of Military Trout Farm, Tabibieh
Latakia / Jeble / Coastal Region
Mr. Moaheen Ismael, Director General, GEF, Jeble
Mr. Fouad Bishara, National Project counterpart, Marine Fisheries Branch of GEF, Latakia
Mr. Badir Mohrez, Director Marine Fisheries Branch of GEF, Latakia
Dr. Adib Saad, Dept. of Science, 16 Tichreen University, Latakia
Dr. Abdullatif Youssef, Director National Oceanographic Centre, Latakia
Mr. Kamel Barakat, Director 16 Tishreen Lake Unit, GEF
Manager, Fish feed production unit, Sinn Farm
General, Marine Military Harbour, Tinat ibn Bouda, Latakia
Harbourmaster, Ras el Bash
Harbourmaster, Latakia
Mr. Hassan Kahlil, Harbourmaster, Arowat

ANNEX 4.b-1. SYRIAN COAST
SCALE 1: 100,000 Soundings in metres

ANNEX 4.b-2. SYRIAN COAST
SCALE 1:100,000 Soundings in metres

ANNEX 4.b-3. SYRIAN COAST
SCALE 1:100,000 Soundings in metres

ANNEX 4.b-4. SYRIAN COAST
SCALE 1:100,000 Soundings in metres

ANNEX 4.b-5. SYRIAN COAST
SCALE 1:100,000 Soundings in metres

ENVIRONMENTAL CONDITIONS PREVAILING AT LATAKIA STATION
| Element | Latitude: 35°30N | Longitude: 35°47E | Elevation: 7 m above m.s.l. | |||||||||||
| Jan. | Feb. | Mar. | Apr. | May | June | July | Aug. | Sep. | Oct. | Nov. | Dec. | Yearly | Period | |
| Temperature °C | 11.7 | 12.7 | 15.1 | 18.0 | 21.3 | 24.4 | 26.5 | 29.1 | 25.8 | 22.7 | 18.0 | 13.4 | 19.7 | 1966–1973 |
| Maximum temperature °C | 15.6 | 16.6 | 18.9 | 21.8 | 24.9 | 27.7 | 29.6 | 30.5 | 29.4 | 27.0 | 22.5 | 17.4 | 23.5 | 1966–1973 |
| Minimum temperature °C | 8.7 | 9.2 | 11.5 | 14.1 | 17.6 | 21.1 | 23.8 | 24.2 | 22.3 | 18.7 | 14.2 | 10.1 | 16.3 | 1966–1973 |
| Abs. maximum. temperature °C | 23.5 | 24.5 | 29.7 | 35.0 | 36.7 | 36.8 | 33.4 | 34.7 | 34.1 | 36.8 | 33.0 | 23.5 | 36.8 | 1966–1973 |
| Abs. minimum temperature °C | 0.5 | 1.0 | 3.9 | 8.2 | 12.3 | 15.2 | 19.8 | 19.7 | 17.8 | 10.8 | 4.8 | 2.0 | 0.5 | 1966–1973 |
| Mean relative humidity % | 62 | 62 | 64 | 67 | 72 | 72 | 73 | 71 | 69 | 65 | 60 | 64 | 67 | 1966–1973 |
| Maximum relative humidity % | 98 | 99 | 97 | 99 | 98 | 94 | 92 | 93 | 96 | 100 | 100 | 97 | 100 | 1969–1973 |
| Minimum relative humidity % | 11 | 13 | 13 | 13 | 09 | 18 | 31 | 23 | 21 | 08 | 07 | 13 | 07 | 1969–1973 |
| Total precipitation mm | 168.8 | 90.8 | 91.8 | 42.7 | 23.2 | 6.4 | 0.6 | 9.6 | 15.3 | 63.0 | 101.7 | 173.4 | 783.1 | 1966–1973 |
| Wind direction | NE | NE | S | S | S | S | S | S | S | NE | NE | NE | S | 1966–1973 |
| Speed mts/sec (mean) | 5.1 | 5.0 | 4.1 | 3.9 | 3.1 | 3.4 | 3.7 | 3.2 | 2.9 | 2.8 | 4.1 | 5.1 | 3.9 | 1966–1973 |
| Ind. speed mts/sec (max.) | 20 | 16 | 16 | 16 | 16 | 13 | 10 | 10 | 13 | 13 | 20 | 23 | 23 | 1966–1973 |
| Average evaporation mm | ||||||||||||||
Source; Meteorological Department, Ministry of Defence, Damascus, Syrian Arab Republic

Source: Tishreen University, A. Saad.
| Expected Date of Storm Occurrence | Wind Direction | Wind Velocity m/sec. | Duration days |
| Nov 15 | NW | 6–28 | 4 |
| Nov 23 | SW | 7–20 | 3 |
| Dec 05 | SW | 7–24 | 5 |
| Dec 20 | NW | 6–27 | 5 |
| Dec 29 | N | 12–28 | 2 |
| Jan 02 | W | 12–28 | 4 |
| Jan 12 | SW | 7–20 | 6 |
| Jan 19 | W | 10–24 | 3 |
| Jan 31 | SW | 10–24 | 7 |
| Feb 11 | NW | 10–24 | 2 |
| Mar 02 | SW | 10–24 | 2 |
| Mar 11 | SW | 7–20 | 2 |
| Mar 15 | NW | 7–10 | 2 |
| Mar 23 | SW | 6–17 | 5 |
| Mar 25 | W | 10–24 | 2 |
Source: GEF Marine Fisheries Branch. Latakia.
| Scientific Name | English name | Syrian name | Period of Reproduction |
| Dentex dentex | Common dentex | Ferride | May–Jun |
| Dentex gibbosus | Pink dentex | Mar–May | |
| Pagellus erythrinus | Common pandora | Jarbide | Apr–Aug |
| Pagellus acame | Axillary sea bream | Salamoura | Jun–Sep |
| Pagellus belotti | Red pandora | Jarbide | ? |
| Lithognathus mormyrus | Striped sea bream | Marmour | May–Aug |
| Sparus aurata | Gilthead sea bream | Ajaj | Oct–Dec |
| Pagrus caeruleostictus | Blue-spotted sea bream | Ferride | Apr–Aug |
| Pagrus pagrus | Common sea bream | Bahlak | Dec–May |
| Diplodus sargus | White sea bream | Sarghous | Mar–May |
| Diplodus puntazzo | Sheepshead sea bream | Sarghous | Sep–Oct |
| Coryphaena hippurus | Dolphin fish | Lambouka | ? |
| Seriola dumerilii | Yellowtail | Mar–Aug | |
| Merluccius merluccius | Hake | Merian | Feb–Mar |
| Solea vulgaris | Common sole | Mousa | ? |
| Epinephelus guaza | Dusky grouper | Lokkos ramli | Mar–May |
| Epinephelus alexandrinus | Colour spotted grouper | Lokkos sakhri | ? |
| Dicentrarchus labrax | Sea bass | Jan–Apr | |
| Mullus barbatus | Red mullet | Sultani ramli | May–Jul |
| Mullus surmuletus | Striped red mullet | Sultani sakhri | May–Jun |
| Mugil cephalus | Flathead grey mullet | Bouri aftess | Aug–Nov |
| Liza aurata | Golden grey mullet | Bouri dehban | Oct–Nov |
Source: Saad, 1996, with integrations.
| Species name | Size* | Wholesale Latakia (SY£/kg) | Retail Damascus (SY£/kg) |
| Dentex dentex | medium | 300 – 600 | 880 |
| Ferride | large | 250 – 500 | 800 |
| Pagellus erythrinus | small | 250 – 450 | 750 |
| Jarbide | medium | 400 – 600 | 880 |
| Sparus aurata | small | 300 – 500 | 670 |
| Ajaj | medium | 400 – 600 | 850 |
| Pagrus caeruleostictus | small | 250 – 500 | 750 |
| Ferride | medium | 300 – 600 | 880 |
| Diplodus sargus | small | 200–400 | 670 |
| Sarghous | medium | 250–500 | 750 |
| Seriola dumerilii | medium | 250–400 | 510 |
| Yellowtail | large | 200 – 350 | 470 |
| Merluccius merluccius | medium | 150 – 300 | 420 |
| Merlan | large | 180 – 380 | 470 |
| Epinephelus guaza | medium | 700 – 1200 | 1450 |
| Lokkos ramli | large | 600 – 1050 | 1450 |
| Epinephelus alexandrinus | medium | 400 – 700 | 850 |
| Lokkos sakhri | large | 300 – 550 | 850 |
| Dicentrarchus labrax | small | 180–350 | - |
| Sea bass | medium | 250 – 400 | 580 |
| Mullus sp. | small | 300 – 600 | 750 |
| Sultani | medium | 450 – 800 | 1050 |
| Mugil sp. | small | 120 – 200 | - |
| Bouri | medium | 150 – 250 | 350 |
* Small: 100–300g; Medium: 300–1 000g; Large: above 1000 g
Sources: Latakia's fish wholesalers, GEF, Damascus retail outlets (April 1996).
| Item - description | Unit | Price (SY£) |
| MATERIALS | ||
| Timber | m3 | 11.000 |
| Cement | ton | 2.700 |
| Iron | ton | 18.000 |
| Aluminium | kg | 150 |
| Sand | m3 | 400 |
| Land-fill rubble | m3 | 250 |
| Concrete | m3 | 1.800 |
| Building block, 15-cm | pc | 12 |
| PE pipe, 250mm, PN6 | m | 1.100 |
| PE pipe, 200mm, PN6 | m | 710 |
| PE pipe, 200mm, PN3.2 | m | 440 |
| PE pipe, 110mm, PN6 | m | 290 |
| CONSTRUCTION WORKS | ||
| Greenhouse, 50 × 8 m | pc | 70.000 |
| Storehouse building | m2 | 4.000 |
| House building (exterior's complete) | m2 | 6.000 |
| House / Office building, complete | m2 | 9.000 |
| Earth excavation / levelling | hour | 600 |
| Rock excavation | hour | 1.000 |
| Diesel generator, 200kVA | pc | 1.250.000 |
| Truck transport, 10 m3 | 100 km | 1.400 |
| ENERGY | ||
| Diesel fuel | litre | 6,25 |
| Gasoline | litre | 20,25 |
| Electricity for industry | kW | 1,25 |
| LABOUR (salaries+charges) | ||
| Worker | month | 3.500 |
| Technician | month | 4.500 |
| Graduate | month | 6.000 |
| Graduate, management post | month | 8.000 |
Sources: GEF; Osama Co. for Plastic.
| BIOTECHNICAL FISH CULTURE PARAMETERS | Average SYRIAN Temperature Conditions | ||||||||||||||||||||
| Year | '96 | '96 | '96 | '96 | '96 | '96 | '96 | '96 | '96 | '96 | '97 | '97 | '97 | '97 | '97 | '97 | '97 | '97 | '97 | '97 | |
| Month of project | Mar | Apr | May | Jun | Jul | Aug | Sep | Oct | Nov | Dec | Jan | Feb | Mar | Apr | May | Jun | Jul | Aug | Sep | Oct | |
| Temp. °C | 17 | 19 | 21 | 23 | 26 | 28 | 26 | 26 | 22 | 18 | 16 | 16 | 17 | 19 | 21 | 23 | 26 | 28 | 26 | 25 | |
| SEA BREAM | |||||||||||||||||||||
| No. of Fish(x1000) | 105,0 | 97,1 | 93,2 | 91.1 | 89,9 | 89,3 | 88,8 | 88,5 | 88,2 | 88,0 | 87,8 | 87,6 | 87,4 | 87,2 | |||||||
| Monthly Mortality (%) | 7,5 | 4,0 | 2,3 | 1,3 | 0,7 | 0,5 | 0,4 | 0,3 | 0,3 | 0.2 | 0,2 | 0,2 | 0,2 | 0.2 | |||||||
| Average Weight (g) | 1 | 3 | 8 | 22 | 67 | 103 | 168 | 228 | 295 | 348 | 384 | 404 | 426 | 448 | |||||||
| Biomass (tons) | 0,1 | 0,3 | 0,8 | 2,0 | 5,2 | 9.2 | 14,9 | 20,2 | 26,0 | 30,6 | 33,7 | 35,4 | 37,2 | 39,1 | |||||||
| JARBIDE | |||||||||||||||||||||
| No.of Fish(x1000) | 115,0 | 106,4 | 103,9 | 102,9 | 102.2 | 101.7 | 101,3 | 100,8 | 100,5 | 100,2 | 99,9 | 99.7 | 99.5 | 99,3 | 99.1 | 98.9 | |||||
| Monthly Mortality (%) | 7,5 | 2.3 | 1.0 | 0,7 | 0.5 | 0.4 | 0,4 | 0,3 | 0,3 | 0,3 | 0.2 | 0,2 | 0.2 | 0,2 | 0,2 | 0.2 | |||||
| Average Weight (g) | 1 | 7 | 26 | 63 | 116 | 166 | 193 | 217 | 238 | 264 | 302 | 352 | 422 | 492 | 573 | 648 | |||||
| Biomass (tons) | 0,1 | 0,7 | 2,7 | 6,5 | 11,8 | 16,9 | 19,6 | 21,9 | 24.0 | 26,5 | 30.2 | 35.1 | 42.0 | 48,8 | 56,8 | 64.1 | |||||
| SEA BASS | |||||||||||||||||||||
| No. of Fish (x1000) | 115,0 | 101,2 | 94,5 | 90,7 | 88,5 | 87.6 | 86,9 | 86,3 | 85,8 | 85,3 | 84.9 | 84,5 | 84,1 | 83.7 | 83,4 | 83,1 | 82,9 | ||||
| Monthly Mortality (%) | 12,0 | 6,6 | 4,0 | 2,5 | 1,0 | 0,8 | 0.7 | 0,6 | 0,5 | 0,5 | 0,5 | 0,5 | 0.4 | 0,4 | 0.3 | 0,3 | 0,3 | ||||
| Average Weight (g) | 1 | 3 | 9 | 24 | 66 | 86 | 123 | 166 | 208 | 236 | 259 | 282 | 310 | 344 | 393 | 464 | 619 | ||||
| Biomass (tons) | 0,1 | 0.3 | 0,8 | 2.1 | 4.8 | 7.5 | 10,7 | 14.4 | 17.9 | 20.1 | 22,0 | 23,8 | 26,1 | 28,8 | 32.8 | 37.7 | 43,0 | ||||
| Mar | Apr | May | Jun | Jul | Aug | Sep | Oct | Nov | Dec | Jan | Feb | Mar | Apr | May | Jun | Jul | Aug | Sep | Oct | ||
| TOTAL BIOMASS (ton) | 0 | 0 | 1 | 3 | 7 | 15 | 25 | 37 | 52 | 65 | 73 | 79 | 85 | 92 | 101 | 68 | 80 | 49 | 57 | 64 | |
| Total No. fish stocked each season | 335 | , of which Sea Bream | 105 | Jarbide | 115 | , and Sea Bas | 115 | thousand. | |||||||||||||
| Total Fish Harvested each season | 103,7 | , of which Sea Bream | 33,5 | Jarbide | 38,0 | , and Sea Bas | 32,2 | tons. | (assuming average harvest weight of 380 g) | ||||||||||||
| BIOTECHNICAL FISH CULTURE PARAMETERS | Average MEDITERRANEAN Temperature Conditions | ||||||||||||||||||||
| Year | '96 | '96 | '96 | '96 | '96 | '96 | '96 | '96 | '96 | '96 | '97 | '97 | '97 | '97 | '97 | '97 | '97 | '97 | '97 | '97 | |
| Month of project | Mar | Apr | May | Jun | Jul | Aug | Sep | Oct | Nov | Dec | Jan | Feb | Mar | Apr | May | Jun | Jul | Aug | Sep | Oct | |
| Temp. °C | 14 | 16 | 19 | 21 | 23 | 25 | 23 | 21 | 19 | 16 | 15 | 13 | 14 | 16 | 19 | 21 | 23 | 25 | 23 | 21 | |
| SEA BREAM | |||||||||||||||||||||
| No. of Fish(x1000) | 90,0 | 83,3 | 79,9 | 77,5 | 75,7 | 74,8 | 74,2 | 73,9 | 73,6 | 73,3 | 73,1 | 72,9 | 72,7 | 72,5 | 72,4 | 72,3 | 72,1 | ||||
| Monthly Mortality (%) | 7,5 | 4,0 | 3,0 | 2,3 | 1.3 | 0,7 | 0.5 | 0,4 | 0,3 | 0.3 | 0,3 | 0.3 | 0,2 | 0,2 | 0.2 | 0,2 | 0,2 | ||||
| Average Weight (g) | 1 | 2 | 3 | 9 | 24 | 65 | 119 | 184 | 221 | 257 | 277 | 295 | 305 | 315 | 336 | 377 | 430 | ||||
| Biomass (tons) | 0,1 | 0,1 | 0,3 | 0,7 | 1.9 | 4,8 | 8.8 | 13,6 | 16,2 | 18,9 | 20.3 | 21,5 | 22,2 | 22,9 | 24,3 | 27,2 | 31,0 | ||||
| JARBIDE | |||||||||||||||||||||
| No.of Fish(x1000) | 90,0 | 83,3 | 80,8 | 79,7 | 79.1 | 78,7 | 78.4 | 78,0 | 77,7 | 77,4 | 77,1 | 76,8 | 76,6 | 76,3 | 76,2 | 76,0 | |||||
| Monthly Mortality (%) | 7,5 | 3,0 | 1,3 | 0,7 | 0,5 | 0,5 | 0,4 | 0,4 | 0,4 | 0.4 | 0,4 | 0,3 | 0,3 | 0,2 | 0,2 | 0,2 | |||||
| Average Weight (g) | 1 | 6 | 24 | 64 | 92 | 117 | 136 | 151 | 159 | 170 | 190 | 223 | 265 | 321 | 395 | 464 | |||||
| Biomass (tons) | 0,1 | 0,5 | 2,0 | 5,1 | 7.3 | 9,2 | 10,6 | 11,8 | 12.4 | 13,1 | 14,7 | 17.2 | 20,3 | 24,5 | 30,1 | 35,3 | |||||
| SEA BASS | |||||||||||||||||||||
| No. of Fish (x1000) | 100,0 | 88,0 | 82,2 | 78,1 | 75,6 | 74,2 | 73,3 | 72.5 | 71,9 | 71,4 | 70,9 | 70,5 | 70,1 | 69,7 | 69,3 | 69,0 | 68,6 | 68,4 | 68,2 | ||
| Monthly Mortality (%) | 12,0 | 6,6 | 5,0 | 3,2 | 1,8 | 1,3 | 1.0 | 0.8 | 0,7 | 0,7 | 0,6 | 0,6 | 0,6 | 0,5 | 0.5 | 0,5 | 0,4 | 0,3 | 0,3 | ||
| Average Weight (g) | 1 | 2 | 5 | 11 | 26 | 48 | 78 | 108 | 130 | 147 | 164 | 173 | 186 | 206 | 238 | 285 | 348 | 417 | 481 | ||
| Biomass (tons) | 0,1 | 0,2 | 0,4 | 0,9 | 1,9 | 3,6 | 5,7 | 7.8 | 9,4 | 10,5 | 11,6 | 12,2 | 13.0 | 14,4 | 16,5 | 19,7 | 23,9 | 28,5 | 32,8 | ||
| Mar | Apr | May | Jun | Jul | Aug | Sep | Oct | Nov | Dec | Jan | Feb | Mar | Apr | May | Jun | Jul | Aug | Sep | Oct | ||
| TOTAL BIOMASS (ton) | 0 | 0 | 0 | 1 | 3 | 7 | 14 | 24 | 31 | 37 | 41 | 45 | 47 | 49 | 53 | 61 | 71 | 48 | 59 | 68 | |



| ITEM / DESCRIPTION | UNIT | US$ | Source |
| Diesel fuel | litre | 0,125 | Local |
| Gasoline fuel | litre | 0,405 | Local |
| Electricity, for industry | kW | 0,025 | Local |
| Growout feed (CIF price) | kg | 0,95 | Import |
| Juvenile feed (CIF price) | kg | 1.10 | Import |
| Larval feeds (CIF price) | kg | 40 | Import |
| Fingerling of 20 g size (CIF price) | each | 0,90 | Imp/Loc |
| Fry of 1 g size (CIF price) | each | 0,40 | Imp/Loc |
| Broodstock fish (CIF price) | kg | 80 | Imp/Loc |
| Live fish eggs (CIF price) | million | 3.200 | Import |
| Annual gross wage, Worker | each | 2.400 | Local |
| Annual gross wage, Tehnician | each | 3.200 | Local |
| Annual gross wage, Biologist / Manager | each | 4.800 | Local |
| Investment Cage Farm | US$ | 280.000 | Depreciation | 8 yrs. |
| Investment Farm on Land | US$ | 1.440.000 | Depreciation | 10 yrs. |
| Investment Pregrowth on Land | US$ | 250.000 | Depreciation | 10 yrs. |
| Investment Pregrowth Cages in Port | US$ | 230.000 | Depreciation | 8 yrs. |
| Investment Hatchery | US$ | 550.000 | Depreciation | 10 yrs. |
| Species produced | Sea Breams, Jarbide, Sea Bass | ||
| Annual production output (3 species) | 100.000 | kg | |
| Market Fish Size | 380 g | ||
| Market Sales Price (SY£ 400) | US$ | 8,00 | per kg. |
| Fingerling Size | 20 g | ||
| Fry size | 1 g | ||
| Fish Survival from 20g to market | 92% | ||
| Fish Survival from 1g fry to 20g fingerling | 85% | ||
| Number of 20 g fingerlings required | 286.041 | pcs. | |
| Number of 1 g fry required | 336.519 | pcs. | |
| Feed Conversion Index, overall | 2,00 | ||
| Currency exchange rate (World Bank) | US$1 = SY£ | 50 |
| Interest rate for agriculture development | 6% | per year |
Landbased farm alone, and in combination with pregrowth and hatchery
| FARM ON LAND ONLY | FARM WITH PREGROWTH ON LAND | FARM WITH PREGR. & HATCHERY ON LAND | ||||
| ITEM / DESCRIPTION | Quantity | US$ | Quantity | US$ | Quantity | US$ |
| Fingerling of 20 g size, pieces | 286.041 | 257.437 | ||||
| Fry of 1 g size, pieces | 336.519 | 134.608 | ||||
| Broodstock fish, kg | 150,00 | 12.000 | ||||
| Live fish eggs, kg | 3,00 | 9.600 | ||||
| Growout feed, kg | 188.558 | 179.130 | 188.558 | 179.130 | 188.558 | 179.130 |
| Juvenile feed, kg | 10.769 | 11.845 | 10.769 | 11.845 | ||
| Larval feed, kg | 600 | 24.000 | ||||
| Electricity, kW | 1.250.000 | 31.250 | 1.370.000 | 34.250 | 1.570.000 | 39.250 |
| Diesel fuel, kg | ||||||
| Transports and travel | 3.000 | 4.000 | 6.000 | |||
| Consumables and small items | 4.000 | 5.000 | 9.000 | |||
| Workers | 4,00 | 9.600 | 7,00 | 16.800 | 10 | 24.000 |
| Technicians | 2,00 | 6.400 | 3,00 | 9.600 | 6 | 19.200 |
| Biologists / Manager | 2,00 | 9.600 | 3,00 | 14.400 | 5 | 24.000 |
| Maintenance | 30.000 | 37.000 | 48.000 | |||
| Administration and miscellaneous | 5.000 | 6.000 | 8.000 | |||
| Depreciation and bank interests* | 257.882 | 302.653 | 401.150 | |||
| Total Production Costs | 793.300 | 755.287 | 815.176 | |||
| Production Costs per kg (US$) | 7,93 | 7,55 | 8,15 | |||
| Production Costs per kg (SY£) | 397 | 378 | 408 | ** | ||
| Sales price (US$) | 8,00 | 8,00 | 8,00 | |||
| Gross profit per kg (US$) | 0,07 | 0,45 | -0,15 | |||
| Gross profit of venture (US$) | 6.700 | 44.713 | - 15.176 | |||
* Based on 100% financing of capital costs. Assumes operational expenses provided by investor.
Offshore cages alone, and in combination with pregrowth on land and hatchery
| CAGES ONLY | CAGES WITH PREGROWTH ON LAND | CAGES WITH PREGR. & HATCHERY ON LAND | ||||
| ITEM / DESCRIPTION | Quantity | US$ | Quantity | US$ | Quantity | US$ |
| Fingerling of 20 g size, pieces | 286.041 | 257.437 | ||||
| Fry of 1 g size, pieces | 336.519 | 134.608 | ||||
| Broodstock fish, kg | 150,00 | 12.000 | ||||
| Live fish eggs, kg | 3,00 | 9.600 | ||||
| Growout feed, kg | 188.558 | 179.130 | 188.558 | 179.130 | 188.558 | 179.130 |
| Juvenile feed, kg | 10.769 | 11.845 | 10.769 | 11.845 | ||
| Larval feed, kg | 600 | 24.000 | ||||
| Electricity, kW | 120.000 | 3.000 | 320.000 | 8.000 | ||
| Diesel fuel, kg | 12.000 | 1.500 | 12.000 | 1.500 | 12.000 | 1.500 |
| Transports and travel | 3.000 | 4.000 | 6.000 | |||
| Consumables and small items | 4.000 | 5.000 | 9.000 | |||
| Workers | 4,00 | 9.600 | 7,00 | 16.800 | 10 | 24.000 |
| Technicians | 2,00 | 6.400 | 3,00 | 9.600 | 6 | 19.200 |
| Biologists / Manager | 2,00 | 9.600 | 3,00 | 14.400 | 5 | 24.000 |
| Maintenance | 10.000 | 17.000 | 28.000 | |||
| Administration and miscellaneous | 5.000 | 6.000 | 8.000 | |||
| Depreciation and Bank interests* | 55.785 | 100.556 | 199.052 | |||
| Total Production Costs | 541.452 | 503.439 | 563.328 | |||
| Production Costs per kg (US$) | 5,41 | 5,03 | 5,63 | |||
| Production Costs per kg (SY£) | 271 | 252 | 282 | ** | ||
| Sales price (US$) | 8,00 | 8,00 | 8,00 | |||
| Gross profit per kg (US$) | 2,59 | 2,97 | 2,37 | |||
| Gross profit of venture (US$) | 258.548 | 296.561 | 236.672 | |||
* Based on 100% financing of capital costs. Assumes operational expenses provided by investor.
Offshore cages alone, and in combination with cage pregrowth and with hatchery
| CAGES ONLY | CAGES WITH PREGROWTH CAGES IN PORT | CAGES WITH CAGE PREGROWTH & HATCHERY | ||||
| ITEM / DESCRIPTION | Quantity | US$ | Quantity | US$ | Quantity | US$ |
| Fingerling of 20 g size, pieces | 286.041 | 257.437 | ||||
| Fry of 1 g size, pieces | 336.519 | 134.608 | ||||
| Broodstock fish, kg | 150,00 | 12.000 | ||||
| Live fish eggs, kg | 3,00 | 9.600 | ||||
| Growout feed, kg | 188.558 | 179.130 | 188.558 | 179.130 | 188.558 | 179.130 |
| Juvenile feed, kg | 10.769 | 11.845 | 10.769 | 11.845 | ||
| Larval feed, kg | 600 | 24.000 | ||||
| Electricity, kW | 10.000 | 250 | 210.000 | 5.250 | ||
| Diesel fuel, kg | 12.000 | 1.500 | 12.000 | 1.500 | 12.000 | 1.500 |
| Transports and travel | 3.000 | 4.000 | 6.000 | |||
| Consumables and small items | 4.000 | 5.000 | 9.000 | |||
| Workers | 4,00 | 9.600 | 7,00 | 16.800 | 10 | 24.000 |
| Technicians | 2,00 | 6.400 | 3,00 | 9.600 | 6 | 19.200 |
| Biologists / Manager | 2,00 | 9.600 | 2,00 | 9.600 | 5 | 24.000 |
| Maintenance | 10.000 | 15.000 | 28.000 | |||
| Administration and miscellaneous | 5.000 | 6.000 | 8.000 | |||
| Depreciation and bank interests* | 55.785 | 101.608 | 200.104 | |||
| Total Production Costs | 541.452 | 494.941 | 561.630 | |||
| Production Costs per kg (US$) | 5,41 | 4,95 | 5,62 | |||
| Production Costs per kg (SY£) | 271 | 247 | 281 | ** | ||
| Sales price (US$) | 8,00 | 8,00 | 8,00 | |||
| Gross profit per kg (US$) | 2,59 | 3,05 | 2,38 | |||
| Gross profit of venture (US$) | 258.548 | 305.059 | 238.370 | |||
* Based on 100% financing of capital costs. Assumes operational expenses provided by investor.


DETAIL OF CAGE SITE
SCALE 1:2000

LAYOUT DRAWING OF CAGE FARM SCALE :250

| PILOT 100 TON CAGE CULTURE FACILITY LOCATION - PORT OF LATAKIA INVESTMENT BUDGET SPECIFICATION |
| All amounts in US$ |
| Item | Description | pcs. | Unit Price | Total Amount | Sub Totals |
| 1. | Set of galvanized steel floating cages, with 2 m wide walkway | 213 400 | |||
| 1.1. | Ongrowing cage, 15m × 15 m | 4 | 24 000 | 96 000 | |
| Pregrowing cage, 15m × 7,5 m | 4 | 17 000 | 68 000 | ||
| Floating walkway to land, 2m × 7,5m, | 1 | 6 400 | 6 400 | ||
| Floating landing plate, 3m × 3 m | 1 | 4 800 | 4 800 | ||
| Connecting walkway to jetty, 1.5m × 10m | 1 | 9 200 | 9 200 | ||
| 1.2. | Transport to Latakia | 1 | 15 000 | 15 000 | |
| 1.3. | Cage assembly and mooring works supervision | 1 | 14 000 | 14 000 | |
| 2. | Floating service platform | 36 500 | |||
| 2.1. | Service platform, size 6 × 10 m; modular construction galv steel walkways and PE floats, carrying capacity 35 tons | 1 | 28 800 | 28 800 | |
| 2.2. | Wood / FBG store house 5 × 4 m | 1 | 6 000 | 6 000 | |
| 2.3. | Electrical installations | 1 | 1 700 | 1 700 | |
| 3. | Moorings | 9 086 | |||
| 3.1. | Concrete blocks, 5 ton | 4 | 250 | 1 000 | |
| 3.2. | Secondhand chain, 32 mm, meters | 80 | 14 | 1 120 | |
| 3.3. | Mooring rope, 32 mm, meters | 660 | 2,6 | 1 716 | |
| 3.4. | Mooring buoys, 600 liter | 4 | 650 | 2 600 | |
| 3.5. | Assorted shackles, thimbels, etc. | 1 | 850 | 850 | |
| 3.6. | Mooring installation | 1 | 1 800 | 1 800 | |
| 4. | Cage nets | 39 578 | |||
| 4.1. | Naylon knotless net, 210/9, half-mesh 4,5mm, 7x7x4m | 3 | 720 | 2 160 | |
| 4.2. | Naylon knotless net, 210/12, half-mesh 6mm, 7x7x5m | 4 | 760 | 3 040 | |
| 4.3. | Naylon knotless net, 210/15, half-mesh 8mm, 7x7x5m | 4 | 750 | 3 000 | |
| 4.4. | Naylon knotless net 210/24, h-m 11mm, 15x7x5m | 4 | 1 310 | 5 240 | |
| 4.5. | Naylon knotless net, 210/30, h-m 13mm, 15x7x5m | 2 | 1 300 | 2 600 | |
| 4.6. | Polyethylene net 380/24, half-mesh 16 mm, 15x15x6m | 3 | 1 750 | 5 250 | |
| 4.7. | Polyethylene net 380/30, half-mesh 20 mm, 15x15x7m | 5 | 1 380 | 6 900 | |
| 4.8. | Antifouling treatment for nets | 8 | 370 | 2 960 | |
| 4.9. | Bird cover-net 380/18, half-mesh 60 mm, 16x16m | 6 | 130 | 780 | |
| 4.10. | Fish harvest net 210/48, h-m 22mm, 7x7x4m | 3 | 660 | 1 980 | |
| 4.11. | Transport of nets to Latakia | 1 | 2 700 | 2 700 | |
| 4.12. | Weights for nets | 64 | 12 | 768 | |
| 4.13. | Assortment of ropes | 1 | 2 200 | 2 200 | |
| 5. | Equipments - General | 22 130 | |||
| 5.1. | Complete set of diving gear | 2 | 900 | 1 800 | |
| 5.2 | Compressor for diving bottles, with petrol engine | 1 | 2 300 | 2 300 | |
| 5.3. | Submersible current mixer, with 2.5 m impeller, Flygt 2.2 k | 1 | 15 000 | 15 000 | |
| 5.4. | Submersible mixer installation | 1 | 900 | 900 | |
| 5.5. | Workshop tools | 1 | 1 400 | 1 400 | |
| 5.6. | Transpallet carrier | 1 | 730 | 730 | |
| 6. | Automatic feeding system | 68 600 | |||
| 6.1 | Centralised pneumatic feeding module, complete with 4 sil VHF remote control, management software. | 1 | 57 000 | 57 000 | |
| 6.2. | PE feed distribution pipes, diameter 63 mm, meters | 750 | 1,2 | 900 | |
| 6.3. | Note-book P.C. for above | 1 | 3 200 | 3 200 | |
| 6.4. | Installation and small items | 1 | 7 500 | 7 500 | |
| 7. | Fish harvest and packing | 13 580 | |||
| 7.1 | Flake-ice machine, 700 kg/day | 1 | 6 500 | 6 500 | |
| 7.2. | Insulated ice-store, 5 m3 | 1 | 2 700 | 2 700 | |
| 7.3. | Fish sorting table | 1 | 250 | 250 | |
| 7.4. | Electronic balance | 1 | 650 | 650 | |
| 7.5. | Sea water submersible pump | 2 | 270 | 540 | |
| 7.6. | Fish harvesting net | 4 | 110 | 440 | |
| 7.7. | Assortment of tubs and boxes for fish transport | 1 | 2 500 | 2 500 | |
| 8. | Laboratory Equipment | 8 610 | |||
| 8.1. | Oceanguard oxygen & temperature continuous monitor | 1 | 5 900 | 5 900 | |
| 8.2. | Portable oxygen meter, Oxyguard Handy | 1 | 850 | 850 | |
| 8.3. | Portable electronic balance, 1 g precision | 1 | 160 | 160 | |
| 8.4. | Stereo magnifying binoculars | 1 | 1 100 | 1 100 | |
| 8.5. | Set of laboratory accessories | 1 | 600 | 600 | |
| 9. | Office Equipment | 5 970 | |||
| 9.1. | Radio - telephone station | 1 | 900 | 900 | |
| 9.2. | Fax machine | 1 | 570 | 570 | |
| 9.3. | Personal computer | 1 | 1 400 | 1 400 | |
| 9.4. | Bubble-jet printer | 1 | 550 | 550 | |
| 9.5. | Photocopier A4 | 1 | 1 150 | 1 150 | |
| 9.6. | Office furniture | 1 | 1 400 | 1 400 | |
| 10. | Pick-up car | 1 | 18 000 | 18 000 | 18 000 |
| 11. | TOTAL | 435 454 | |||
| 12. | Unforeseen | 10% | 43 546 | ||
| 13. | Design and Supervision | 30 000 | |||
| TOTAL FARM PROJECT INVESTMENT | 509 000 |
| ITEM / DESCRIPTION | Quantity | US$ |
| Fry of 1 g size, pieces | 336.519 | 134.608 |
| Growout feed, kg | 188.558 | 179.130 |
| Juvenile feed, kg | 10.769 | 11.845 |
| Electricity, kW | 10.000 | 250 |
| Diesel fuel, kg | 12.000 | 1.500 |
| Transports and travel | 4.000 | |
| Consumables and small items | 5.000 | |
| Workers | 7 | 16.800 |
| Technicians | 3 | 9.600 |
| Biologists / Manager | 2 | 9.600 |
| Maintenance | 15.000 | |
| Administration and miscellaneous | 6.000 |
| Depreciation and bank interests* | 101.608 | |
| Total Production Costs | 494.941 |
| Production Costs per kg (US$) | 4,95 | |
| Production Costs per kg (SY£) | 247 |
* Based on 100% financing of
capital costs.
Assumes operational expenses provided by investor.

ANNEX 13.b.
SITING OF HATCHERY BUILDINGS AT SINN FARM

HATCHERY BUILDINGS
(PILOT PROJECT)
SCALE 1:850
ANNEX 13.c.
GENERAL DISPOSITION OF HATCHERY BUILDINGS

SCALE 1:250
ANNEX 13.d.
MAIN GREENHOUSES

SCALE 1:200
ANNEX 13.e.
BROODSTOCK SECTION
1:200

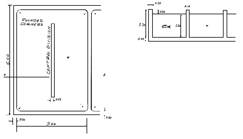
ANNEX 13.f.
| LAYOUT OF CENTRAL HATCHERY BUILDING (TOP-FLOOR) | ![]() |
| CROSS-SECTION OF MAIN HATCHERY GREEN HOUSES |
ANNEX 13.g.
CROSS-SECTION OF GREEN HOUSES

ANNEX 13.h.
PLANKTON SECTION

ANNEX 13.i.
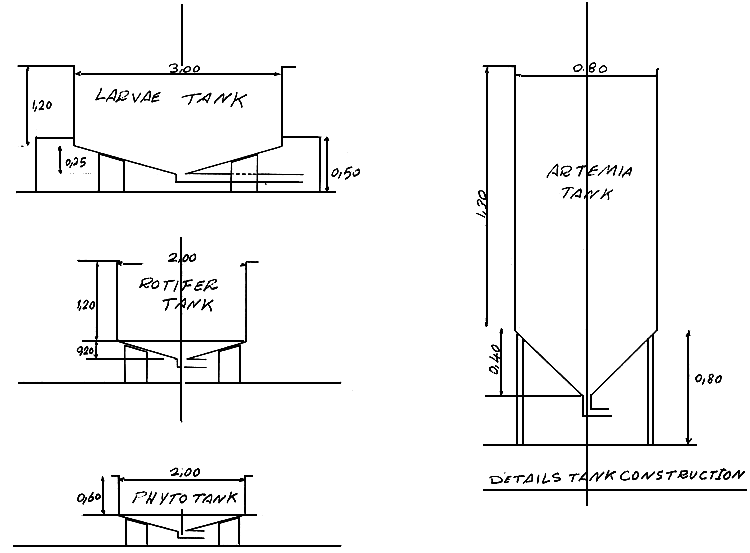
FIBERGLASS TANK CONSTRUCTION

ANNEX 13.j.
DETAILS: BROODSTOCK TANKS
