Field preparation and packaging of produce is possible for only a limited number of crops, and for particular markets. After harvest most horticultural crops must be cleaned, sorted, sized and usually packaged if they are to be sold in the fresh produce market. Usually these procedures take place in packing houses of different types, be it a small thatched shelter on the edge of the field, or a large packing with automated equipment.
Packing houses serve as a sheltered working site for the produce and the packers, and should create an orderly assembly and flow of produce which can be well managed and centrally supervised. They may also provide a storage point for packing equipment and materials and, if large enough, can house office and communications facilities. Packing houses tend to become focal points for the local horticultural industry and centres of information, and if properly designed, can be utilised for packing of different commodities in different seasons. For export of fresh produce, packing houses are an essential part of the operation where selection, grading and quality control must be disciplined.
The packing house design and facilities needed depend very much upon local infrastructure, types and quantities of produce, markets being served and the funds available. It is rare for two packing stations to be identical. The various factors which have to be taken into consideration when planning a packhouse include:
The operations which are carried out in a packing house include some or all of the following:
(i) Receival
On arrival at the packing house, produce is usually counted or weighed and, in some cases, sampled for quality and labelled to identify the date and source.
Usually, the produce cannot be carried directly to the packing lines. It must be unloaded from the trailer or truck in such a way that it is easy to carry into the packing house and yet avoid damage to the produce. Palletised crates of produce are best unloaded mechanically with a fork-lift. Individual crates can be manually off-loaded onto a conveyor and routed direct to the packing line or to a temporary holding area.
(ii) Packaging
Packaging lines differ greatly according to the type and the quantity of the crop. They may consist of simple sloping tables (an example is shown in Figure 5.1. (see Figure 5.1. Simple inexpensive grading and packing table)) where produce is trimmed, cleaned, graded, sized and packed, and this sort of operation is perfectly acceptable for small quantities. For larger quantities of produce, specialized mechanical handling and preparation lines are more usual. However, even in a large packing house with full mechanization it is necessary to include a small simply equipped packing line for special lots of Produce.
The packing line may include the following operations:
(iii) Despatch
At the point of despatch, produce is handled in the condition that it will reach the buyer. It is therefore essential that rough handling, overloading of trucks, infestation and exposure to extreme weather conditions are kept to a minimum. The despatch area should be cool, clean and spacious to allow for temporary storage of packed produce and permit unrestricted movement of loading staff and their vehicles.
(iv) Storage
Depending on the commodities handled, packing houses may have adjacent facilities for long and short-term storage of packed produce. Some produce may be stored before preparation and/or after packing, as a normal function of the marketing process. Except where storage is a necessary part of the handling chain, the aim should be to move packaged produce out of the packing centre and to the buyer as quickly as possible.
5.3. Packing house equipment and facilities
Before considering the design features of a packhouse it is necessary to take an audit of what facilities and equipment will be needed for the packhouse, and what form and quantity of services will be needed for immediate purposes and any future expansion. The general facilities required for packing stations are described below.
5.4. Location of the packing house
The location of a packing house depends on several objective criteria:
5.5. Design of the packing houses
The packing house design should accommodate all those factors described above which are relevant to the specific needs of the operation being planned. The overall design should ensure that floor space is adequate for easy movement, doors are wide enough for passage of vehicles and pallets, storage areas are sufficient for packaging materials, all surfaces can be easily washed and drained, there is a relatively clean and quiet administration office and that the workforce have a clean area where they can wash and eat in reasonable comfort.
It is conventional to segregate a packing house into the three main activity areas of reception, preparation/packing, and despatch. Storage for produce and packaging materials has to be provided according to the needs.
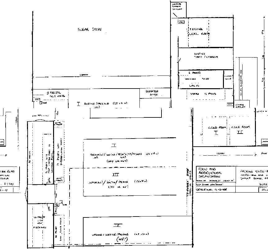
Figure 5.2. (see Figure 5.2. Proposed design and layout for a packhouse in Grenada) shows a proposed design and layout for a packhouse within an existing building in Grenada with initial requirements for a maximum of two packing lines, one for 'wet processing' of crops needing washing and dipping, and one for 'dry processing' of crops where water is not necessary nor advisable. However because of planned expansion, the design allows for two additional packing lines and supporting infrastructure. Figure 5.3. (see Figure 5.3. Proposed flow of produce through the grenada packhouse) indicates the proposed flow of produce through the packhouse from reception to storage prior to despatch.
Land for completely new packhouse building is scarce and becoming increasingly more difficult to obtain, and many organizations are likely to be faced with plot sizes and shapes which are difficult to adapt to the packing operations intended. Lack of funds may also mean that existing buildings will have to be adapted rather than demolished and a new building erected. It is important that designs for packhouses are kept as flexible as possible in case of changed needs for different crop types.
5.6. Construction of the packing house
A popular design for the larger scale of centralized packing house or station utilises the relatively cheap and easily available materials of concrete flooring and corrugated metal sheeting for walls and roof. For many location these materials prove economic and durable. However, where solar radiation and high ambient temperature combine, packing houses built of these materials rapidly turn into sweat-boxes which are uncomfortable for the work force and a serious hazard to the post-harvest life of the produce. It may be necessary therefore to incorporate into the design such features as sprinkler systems on the roof and electrically powered ventilation fans to dissipate the heat load. Often much of the heat load can be avoided by constructing the roof into tiers with clear spaces between to allow natural ventilation.
For the small-scale packing house, the use of very cheap and readily available natural materials, such as grass and rush thatching, is often over-looked. Although possibly not as durable as concrete and corrugated metal sheeting, these natural materials are much cheaper and easily renewable -- crucial factors to the small-scale producer with limited capital.
5.7. Management of the packing house
It is a sad fact of life that many packing stations, even though well supplied by good quality produce and well designed and located, have failed through lack of good management. In the case of the small producer who does his own packing, any deficiencies in management will be directly reflected in his own personal income. The small producer thus has a particular incentive to work harder at improving the efficiency of his packing operation. However, in the case of the larger packing house jointly owned by a co-operative or producers' association, the manager is more likely to be a salaried employee. Thus it is vital that great selectivity is applied when appointing a manager to ensure that they are capable of handling all the necessary operations, and are experienced in the management of a workforce such as packing house staff. It is equally important that the manager can communicate clearly and respectfully with both producers and buyers.
The job of the packing house manager is to maintain a smooth movement of produce from delivery areas through the handling and packing lines to despatch. Bottlenecks in the system invariably lead to damage and deterioration of the produce and are frequently caused by breakdown of machinery, or by the failure to match labour requirements with anticipated deliveries. Regular maintenance schedules for all equipment and training of staff to handle machinery and produce correctly should also be prepared to a adopt a flexible approach to operations, for example by switching operations to two short packing lines rather than one long single line when delays occur.
The period of operation of a packing house is often limited by the restricted growing season of crops and managers should be constantly looking for out-of-season commodities which can extend the operation and reduce the costs of the packing house.