Indice
-
Precedente - Siguiente![]()
PRINCIPIOS Y CONSIDERACIONES GENERALES
Han transcurrido más de 130 años desde que el australiano James Harrinson diseño y construyó el primer equipo de refrigeración efectivo y la primera planta productora de hielo del mundo. Más de 100 años atrás los embarques regulares de Australia a Inglaterra comenzaron con el transporte de carne de vacuno congelada que pronto fue seguido por la operación de las primeras bodegas refrigeradas mecánicamente para manzanas y peras. Desde entonces, las más modernas plantas de refrigeración existentes han cambiado muy poco en su diseño básico, por lo que de acuerdo a esta consideración. su descripción se restringirá a las funciones mecánicas y nomenclatura del equipo.
Una planta de refrigeración, consta de tres componentes básicos:
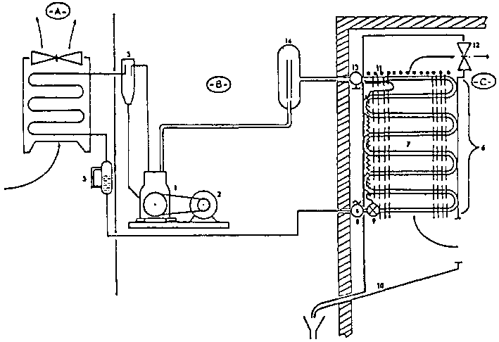
Un compresor en el que el gas refrigerado, ya sea amoniaco o más frecuentemente una mezcla de hidrocarburos halogenados, es comprimido y calentado inevitablemente (Figura 14).
El condensador, enfriado por aire o por agua, en que el gas comprimido y caliente es enfriado, condensado y convertido en liquido.
Los serpentines de evaporación en donde el liquido se evapora y de ese modo absorbe el calor del medio que lo rodea.
Normalmente se necesitan ventiladores para hacer circular el aire sobre los serpentines y a tráves de las estibas de productos en la bodega (Figura 15). El compresor y el condensador siempre están fuera de la bodega, generalmente montados uno detrás de otro. La conexión entre las tres unidades se completa con cañerías de cobre. Para aumentar la eficiencia del evaporador se le colocan aletas metálicas para mejorar sus propiedades de intercambio de calor y el aire es forzado a pasar por medio de un ventilador eléctrico. Una información más detallada puede encontrarse en numerosos textos disponibles sobre la materia. Las figuras 16 y 17 muestran dos sistemas típicos de refrigeración.
Las bodegas refrigeradas son de uso común para muchas frutas y hortalizas. Aunque la tecnología del diseño y la infraestructura de la instalación de la refrigeración esté bien establecida, es una triste realidad que muchas bodegas en los paises en desarrollo funcionan sin ganancias a causa de numerosos problemas comunes. Los más notables de estos problemas son:
Supervisión sin entrenamiento o sin motivación.
Deterioro de la calidad del producto durante el almacenamiento.
A. Ambiente externo (al cual se
expulsa el calor)
B. Sala de máquinas
C. Cámara fría (en la que se absorbe el calor)
1. Compresor
2. Motor
3. Trampa de aceite
4. Condensador de aire
5. Colector de liquido (con tubo nivel transparente)
6. Enfriador de aire (tipo moro)
7. Evaporador (tubo con aletas)
8. Válvula solenoide (controlada con el compresor de motor)
9. Válvula de expansión termostática
10. Canaleta para evacuar el agua de deshielo
11. Pulverizador de agua (agua de deshielo)
12. Ventiladores
13. Válvula de presión constante
14. Dispositivos de antigolpeteo causado por la ebullición
(para hidrocarburos halogenados)
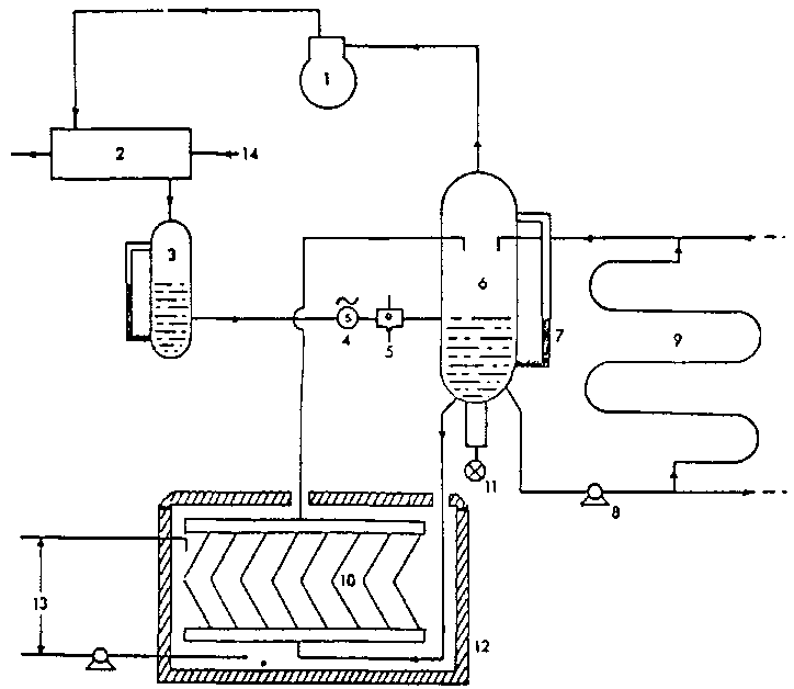
Figura 17. Diagrama de un sistema de refrigeración de amoníaco con inundación.
1. Unidad compresora
2. Condensador de agua
3. Colector de liquido (con tubo nivel transparente)
4. Válvula solenoide, que actúa en conjunto con el compresor
5. Válvula de expansión (válvula de flotador de baja presión)
6. Colector de baja presión
7. Nivel
8. Bomba de circulación de liquido
9. Evaporador, alimentado por la bomba
10. Evaporador tipo espina de pescado (para enfriar una salmuera)
11. Purga de aceite (sólo en caso de máquina de amoniaco)
12. Estanque de salmuera
13. Circuito de la salmuera (con bomba)
14. Circuito de agua
Subutilización del espacio refrigerado.
Todos estos problemas pueden atribuirse directamente a una planificación y administración inadecuadas. La operación exitosa de las instalaciones de almacenamiento con frío depende de algunos conocimientos sobre costos, requerimientos específicos del producto, tecnología de refrigeración y mercadeo de los productos. Los costos de construcción y operación de las bodegas refrigeradas son altos y por lo tanto la inversión no debe decidirse hasta que se haya realizado un estudio completo de factibilidad. La operación de la bodega está limitada por las mismas consideraciones de costo que las bodegas ventiladas, excepto que los costos en este caso serán mucho más altos.
Demasiado frecuentemente, las bodegas se mantienen en operación con un costo muy alto, cuando están casi vacias o cuando no se espera un incremento en el precio de venta del producto. Debe efectuarse una clara estimación de los productos que se proyecta almacenar, de cuáles son compatibles en la bodega en función de temperaturas y humedades específicas y cuáles no lo son, de la vida de almacenamiento que se espera de los diversos productos y de la aplicabilidad a la situación que se espera del mercado. Los administradores deben tener la confianza y autoridad para cerrar las bodegas, aunque ello signifique almacenar algunos productos a la temperatura ambiente, antes que incurrir en operaciones que producen pérdidas.
EXPECTATIVAS DE ALMACENAMIENTO DE PRODUCTOS FRESCOS
El cuadro 4 presenta una lista de la vida de almacenamiento esperada para productos frescos y las temperaturas y humedades específicas que deben mantenerse, a fin de que estas expectativas se cumplan. Se supone que el producto:
está limpio y libre de infecciones;
ha sido cosechado en el estado correcto de madurez;
está libre de daño físico;
se ha puesto bajo condiciones de almacenamiento tan pronto como es posible después de la cosecha;
ha sido preparado adecuadamente para el almacenamiento.
La falta de cumplimiento de estos requisitos dará fugar a una disminución de la vida esperada de almacenamiento. Para evitar contusiones, se supone que la vida de almacenamiento es el periodo máximo durante el cual el producto permanece apto para su mercadeo y no el periodo de envejecimiento total o deterioro. Los valores que se dan son únicamente a vía de ejemplo y de ninguna manera son exactos. información más extensa puede encontrarse en la lista de textos de referencia.
Cuadro 4. Condiciones sugeridas para el almacenamiento de productos frescos.
| Temp. bodega rango | Frutas | Condiciones de la bodega | Hortalizas | Condiciones de la bodega | ||||
| °C | H.r.% | VA | °C | H.R.% | VA | |||
| 0a4°C | Manzana'' | 0a4 | 90-95 | 2-6m | Alcachofas | 0 | 95 | 3-4s |
| Damasco (chavacano) | 0 | 90 | 2-4s | Espárrago | 0a2 | 95 | 2-3s | |
| Cereza | 0 | 90-95 | 1-2s | Repollo** | 0 | 95 | 1-3m | |
| Dátil (fresco) | 0 | 85 | 1-2m | Zanahoria | 0 | 95 | 5-6m | |
| Uva | -1a0 | 90-95 | 1-4m | Coliflor | 0 | 95 | 2-3s | |
| Kiwi | -1.5 | 90-95 | 8-14s | Apio | 0 | 95 | 4-12s | |
| Limón (coloreado) | 0a45 | 85-90 | 2-6m | Maíz | 0 | 95 | 1s | |
| Naranja** | 0a4 | 85-90 | 3-4m | Maíz (dulce) | 0 | 65-70 | 6-7m | |
| Durazno | 0 | 90 | 2-4s | Ajos | 0 | 95 | 1-3m | |
| Pera** | 0 | 90-95 | 2-5m | Puerro | 0 | 95 | 1-2s | |
| Ciruela | 0 | 90-95 | 2-4s | Lechuga | 0 | 90-95 | 5-7d | |
| Frambuesa | 0 | 90-95 | 1-4d | Champiñones | 0 | 65 | 6-8m | |
| Frutilla (fresa) | 0 | 90-95 | 1-5d | Cebolla (seca) | 0 | 65-70 | 1-3s | |
| Arvejas
(sin vaina) |
2a3 | 95 | 1-2s | |||||
| Papas (semilla) | 0 | 90-95 | 1-2s | |||||
| Espinaca | 95 | |||||||
| 4a8°C | Mandarina | 4a6 | 85-90 | 4-6s | Fréjoles (Franceses) | 7a8 | 92-95 | 1-2s |
| Mangostán | 4a5 | 85-90 | 6-7s | Papas (de mesa) |
4a6 | 90-95 | 4-8m | |
| Sandia | 5a10 | 85-90 | 2-3s | (industriales) | 7a10 | 90-95 | 2-5m | |
| MAS DE 8°C | Palta | 7a12 | 85-90 | 1-2s | Pepino | 9a12 | 95 | 1-2s |
| Plátano (verde) | 12a13 | 85-90 | 10- | Berenjena | 7a10 | 90-95 | 10d | |
| (coloreado) | 13a16 | 85-90 | 20d | Pepinillo | 13 | 90-95 | 5-8d | |
| Pomelo | 10 | 85-90 | 5-10d | Jengibre | 13 | 65 | 6m | |
| Guayaba | 8a10 | 90 | 2-3m | Ocra | 75a10 | 90-95 | 1-2s | |
| Limón (verde) | 10a14 | 85-90 | 2-3s | Calabaza
(zapallo) |
10-13 | 50-75 | 2-5m | |
| Lima | 85a10 | 85-90 | 1-4m | Pimiento (dulce) | 7a10 | 90-95 | 1-3s | |
| Mango** | 7a12 | 90 | 3-6s | Camote | 13a16 | 85-90 | 4 7m | |
| Melón | 7a10 | 85-90 | 3-7s | Tomate (verde) | 12a13 | 85-90 | 1-2s | |
| Papaya | 7a10 | 1-12s | (maduro) | 8-10 | 85-90 | 1s | ||
| Piña , | 1 -3s | Ñame | 16 | 85-90 | 3-5m | |||
| (verde) | 10a13 | 85-90 | 2-4s | |||||
| (madura) | 7a8 | 90 | 2-4s | |||||
H R. = Humedad ReIativa; ** =
depende del origen y variedad;
VA = vida de almacenamiento esperada en la practica; d = dias; s
= semanas; m = meses...
PRE-ENFRIAMIENTO DE PRODUCTOS FRESCOS
Una vez que el producto entra a la bodega con frío, irradiara calor hacia el interior debido al calor que trae del campo y a la respiración Mientras más pronto el producto alcance su temperatura óptima de almacenamiento, más pronto estará bajo control la respiración, lográndose la máxima vida de almacenamiento del producto. El calor del producto es transmitido al aire, que a su vez, lo transfiere al evaporar que lo elimina en el ciclo normal de refrigeración mecánica. El enfriamiento del aire y por lo tanto, del producto se acelera instalando ventiladores eléctricos en los serpentines del evaporador, los cuales pueden ser suplementados por ventiladores giratorios que se colocan en la bodega dirigidos hacia el producto. El tiempo que demora el producto en alcanzar la temperatura óptima de almacenamiento (tiempo de enfriamiento) dependerá de la capacidad total de refrigeración del equipo y de la velocidad del aire que pasa por el evaporador y el producto, asumiendo que existe libre circulación del aire alrededor del mismo (Figura 18). El movimiento rápido del aire sobre el producto aumenta la pérdida de agua y por ello en la mayoría de las bodegas refrigeradas para almacenamiento prolongado, la circulación del aire es moderada, a fin de mantener al mínimo la pérdida de agua durante el período de almacenamiento. La reducción de la temperatura bajo estas condiciones será lenta y también se reducirá lentamente el ritmo de la respiración. Para superar estos problemas se han ideado varios métodos de pro-enfriamiento para enfriar rápidamente el producto antes de introducirlo en una bodega refrigerada para almacenamiento prolongado. En el cuadro 5 se comparan los costos y aplicaciones de varios sistemas.
ENFRIAMIENTO MEDIANTE CIRCULACION FORZADA DE AlRE
Este método se entiende mejor observando la figura 19. El producto se estiba de la forma en que se muestra, en una bodega con gran capacidad de refrigeración. Se coloca una lona u otro material sobre el producto estibado en la forma ilustrada y un ventilador eléctrico potente succiona aire frío de la cámara a través del producto empacado. Aunque el movimiento rápido del aire ocasiona una mayor pérdida de agua del producto, el enfriamiento es mucho más rápido que por otros métodos y también se reduce rápidamente la respiración. Tan pronto como el producto ha sido enfriado hasta cerca de la temperatura óptima de almacenamiento, puede ser transferido a una bodega refrigerada ordinaria por el resto de su tiempo de almacenamiento. Hay muchas variantes para el enfriamiento con ventilación forzada y la mayoría depende de que el producto se encuentre en recipientes apropiados, a menudo cajas de tablas de fibra. Los barcos y contenedores adaptados especialmente para refrigeración y transporte de productos frescos, usan una variante de este sistema. El enfriamiento por circulación forzada tiene la ventaja de ser un método de pro-enfriamiento relativamente barato que se opera y mantiene con facilidad y que puede ser usado ampliamente para muchos productos. La transferencia de calor del producto al aire es menos eficiente que cuando el producto lo transfiere al agua, pero muchas frutas especialmente aquellas que son de consistencia suave y algunas hortalizas, pueden deteriorarse durante el almacenamiento después de estar en contacto con el agua.
Cuadro 5. Comparación de los sistemas de pro-enfriado y sus costos (Cont..)
| Sistema de enfriamiento solamente | Bodegas de enfriamiento y mantención | |||
| Hidroenfriado | Enfriado al vacío | Bodega con frío convencional | Enfriamiento con aire húmedo | |
| Tiempo de enfriamiento | 20-40 mio. (continuo) | 20-40 mio. (por partida) | 2 1/2 huras (frutas blandas hasta 24 horas) | 2-8 horas (fruta blanda) 10-17 horas |
| Operación y carga | Simple | Simple | Especializada | Especiali zada |
| Requisitos del material de empaque | Resistente al agua | Casi todos los tipos | Casi todos los tipos | Alta calidad |
| Pérdida de peso | Ninguna | Pequeña pero significativa | Moderada | Mínima |
| Peligros para el producto | Propagación de enferme- dades | Congela- miento del producto | Congelamiento del producto | Ninguna |
| Requerimientos de energía | Altos pero puede aprovechar las ventajas de tarifas especiales | Altos | Moderados | Altos pero puede aprovechar las ventajas de tarifas especiales |
Cuadro 5. Comparación de los sistemas de pre-enfriado y sus costos
| Sistema | Capital bruto (1) (Libras Esterlinas)(3) | Costos operacionales al enfriar a 15° C (2) Peniques/t/dia | Capacidad t/dia | |
| Hidroenfriado | 25.000 | 75 | 30 | |
| Enfriamiento al vacio | - 2 palets | 33.000 | 75 | 10 |
| -5 palets | 45.000 | 75 | 25 | |
| Bodega con frío convencional | -pequeña | 9.000 | 65 | 4(10) |
| -mediana | 16.000 | 65 | 8(25) | |
| -grande | 25.000 | 65 | 14(40) | |
| Enfriamiento con aire húmedo | -pequeña | 17.000 | 90 | 4(10) |
| -mediana | 26.000 | 90 | 8(25) | |
| -grande | 40.000 | 90 | 14(40) | |
Notas:
(1) Capital bruto Incluye equipo auxiliar y se refiere a costos
vigentes en 1983. El costo adicional de cajones para manejo a
granel necesario en el sistema con aire húmedo seria: bodega
pequeña L 1.500; mediana L 3.700; grande L 6.000.
(2) Costos operacionales
Supone la electricidad a 5 peniques
Capacidad:
Las cifras entre paréntesis se refieren a 24 horas por día como
sucede para la mayoría de las hortalizas.
Bodega de retención:
El costo adicional de hacer funcionar una bodega de retención
por 24 horas seria 10 peniques por tonelada, que va incluido en
el costo de la bodega fría convencional y en sistema de aire
húmedo.
(3) Una libra esterlina = 20 chelines y un chelín = 10 peniques
EN FRIAMIENTO RAPIDO
Enfriamiento por aire forzado de cajas paletizadas dispuestas en columnas
Figura 19. Enfriamiento de productos frescos mediante aire forzado (Dibujas reproducidos de Debney, H.G., et al., 1980)
ENFRIAMIENTO POR AGUA
El agua es un excelente medio para transferir el calor desde el producto a la fuente de enfriamiento. En el enfriamiento por agua, el hielo generado por una planta de refrigeración se funde y el agua fría se recolecta en un recipiente que sirve de baño en el cual se sumerge el producto; el agua también puede aplicarse por pulverización o en cascada. Como alternativa, los serpentines de una planta de refrigeración enfrían directamente el agua a la temperatura requerida y el producto se sumerge o pulveriza como en el caso anterior. La eficiencia de esta técnica de enfriado depende de la razón superficie/volumen del producto. Esta técnica sólo es adecuada para frutos que soportan el exceso de agua, pero es usada ampliamente para enfriamiento rápido de muchas hortalizas. Bajo condiciones comerciales, frecuentemente el producto se empaca antes del enfriamiento y el tratamiento se controla automáticamente usando equipo especialmente diseñado para el proceso.
ENFRIADO AL VACIO
Este método se basa en que el agua absorbe calor a medida que se evapora y que la evaporación (por lo tanto el enfriamiento) es muy rápida a presión atmosférica baja. En esencia, el producto se empaca, se estiba en palets y se coloca en una cámara hermética especial. Poderosas bombas ejercen un fuerte vacio sobre la cámara y el agua superficial del producto, lo que ocasiona una rápida evaporación y un enfriamiento directo. La cantidad de agua que se pierde no es suficiente para afectar la calidad y vida de almacenamiento del producto. El enfriamiento por vacio es beneficioso sólo para productos con una alta relación superficie/volumen, tales como repollo, lechuga, apio y otras hortalizas de hoja, en las cuales es posible la evaporación y completo enfriamiento en unos 20 minutos. Las plantas de gran envergadura son de alto costo de instalación, pero existen unidades portátiles que pueden funcionar mediante un tractor. En años recientes, se ha iniciado un sistema conocido como "enfriado hydrovac" que es idéntico al sistema de vacio ordinario; con la diferencia que se agrega agua en forma controlada antes de comenzar el enfriamiento. Con este proceso se disminuye la pérdida de agua del producto, lo cual es beneficioso para algunos cultivos, ya que permite un tiempo de tratamiento más largo y un enfriamiento más intenso.
ENFRIADO POR BLOQUES DE HIELO
Este proceso es relativamente reciente en el que el calor es removido fundiendo un gran bloque de hielo formado durante días en una pequeña unidad refrigerante. El calor de la bodega es removido haciendo pasar aire a través de pulverizaciones de agua fundida a la temperatura del hielo en una cámara separada de la bodega. De esta manera, el aire frío con alta humedad relativa puede enfriar rápidamente la bodega y el producto contenido en su interior. En la actualidad, existen unidades disponibles de menos de cinco toneladas de capacidad.
ALMACENAMIENTO REFRIGERADO DE LARGA DURACION
Una vez que el producto ha sido enfriado a la temperatura requerida debe ser trasladado tan rápidamente como sea posible a una bodega diseñada específicamente para almacenamiento prolongado. Ocasionalmente esta bodega es la misma que se usa para el proenfriamiento, pero normalmente es una bodega independiente y mucho más grande (Figura 20).
Durante el almacenamiento prolongado es importante que el aire de la bodega circule bien, pero a baja velocidad, de manera que la transpiración y la pérdida de agua del producto se mantenga al mínimo. La temperatura de la bodega y por lo tanto del producto almacenado debe ser vigilada y mantenida cuidadosamente y lo mismo debe hacerse con la humedad relativa, la cual debe elevarse si fuera necesario. La ventilación es vital para impedir la acumulación de dióxido de carbono y etileno y la disminución del oxigeno hasta niveles perjudiciales.
Los productos deben estibarse de modo que no dificulten la circulación, ya que ello podría permitir la formación de áreas localizadas en donde se acumula el calor (focos de calor) lo que propicia el deterioro prematuro del producto (Figura 21). Además esto permite la inspección periódica durante el almacenamiento y por lo tanto, la eliminación del producto infectado, sobremaduro o deteriorado, si fuera necesario. La Figura 22 muestra el diagrama de una estiba típica paletizada.