Página precedente Indice Página siguiente


El aserrado en Suecia

por B. THUNELL

Departamento de Tecnología de la Madera, Laboratorio de Investigaciones sobre Productos Forestales, Estocolmo

EN Suecia se produce cada ano cerca de un millón y medio de standards de madera aserrada. De este volumen, más del 64 por ciento es de calidad exportable, ocupando la madera sueca una firme posición en el mercado mundial. Por esta razón es de interés general la experiencia adquirida por este país en cuanto a organización y práctica de aserraderos1.

1 Este artículo es un somero resumen de un informe mucho más detallado que preparó el Sr. Thunell actuando corno presidente de un grupo de trabajo de la FAO sobre el aserrío y la mecanización de la industria maderera.

En Suecia, como en otros países, el emplazamiento de los aserraderos depende de los medios da que se disponga para llevar las trozas desde el monte y transportar los productos aserrados al mercado o centro de expedición. En la porción septentrional del país, los grandes aserraderos suelen estar situados próximos a la costa, ya que así las trozas pueden llevarse flotando río abajo o hasta el aserradero y cargar después los productos aserrados casi directamente en los barcos. En el sur y en la región central de Suecia, donde la mayoría de las trozas de aserrío se transportan en camiones, los aserraderos se hallan emplazados en su mayoría en el interior del país, cerca de la fuente de aprovisionamiento de madera, en lugar de hallarse en la costa. Es más económico transportar los productos aserrados que las trozas Tratándose de una distancia corta, los costes de transporte por camión o por flotación son aproximadamente iguales pero, a medida que aumenta la distancia, el transporte por tierra alcanza en proporción cifras mucho más elevadas que el transporte por agua. En la Figura 1 se ilustran gráficamente los costes de los diversos métodos de transporte.

FIGURA 1. - Gastos de transporte de madera apeada y de trozas de aserrío, según los diferentes métodos.

El tipo de aserradero queda también influido por otras consideraciones de transporte. Los aserraderos suecos son principalmente de dos tipos: los que cuentan con una sierra alternativa o con uno o más pares de sierras alternativas, y los que poseen una sola sierra circular o uno o más juegos de sierras circulares de despiezar, sierras de corte al hilo y canteadoras (aserradero completo). Se opina que la región que surta a un aserradero de sierras alternativas que pesca una pareja de éstas, habrá de tener un área de 3 a 5 veces mayor que la que abastezca a un aserradero completo de sierras circulares. Esto obedece a que el primero ha de recoger una provisión suficientemente grande de trozas que le permitan seleccionar el número necesario de rollos de ciertas dimensiones. De aquí que las distancias de transporte de trozas sean mayores para un aserradero de sierras alternativas que para otro de sierras circulares, y de no poderse efectuar por agua, los costes del transporte serán mucho mayores. Esto favorece la creación de aserraderos de sierras circulares con preferencia a los de sierras alternativas.

Por otra parte, al ir creciendo la producción anual de un aserradero, los gastos de transporte se elevan consecuentemente. Por lo tanto, al determinar el volumen más adecuado de un aserradero para una zona dada, habrán de tomarse en consideración los gastos de transporte.

Suecia es un país con un elevado número de lagos y de vías de agua, razón por la cual las trozas con gran frecuencia se almacenan en agua, sobre todo por cuanto esta práctica facilita la clasificación y evita los ataques de hongos e insectos. En invierno habrán de tomarse precauciones especiales contra la congelación, pero es también muy común apilar en tierra un número de trozas suficiente para mantener el aserradero en funcionamiento durante todo el invierno, y en tal caso se protegen las trozas contra la pudrición rociándolas con agua.

En la mayoría de los aserraderos suecos de sierras alternativas, la selección dé trozas por dimensiones se efectúa en el agua, conduciendo las diversas dimensiones a otros tantos estanques de almacenamiento. Habrá de reunirse y almacenarse un gran volumen de trozas, ya que se precisa una provisión de trozas de cada dimensión capaz de mantener el aserrío activo durante un turno. Este almacenamiento hace crecer los intereses y el peligro de alteración de las trozas. Existen también en Suecia medios para clasificar en tierra que funcionan de manera satisfactoria, pero en tierra no es posible seleccionar al mismo tiempo tantas dimensiones como lo es en agua.

Cuando se trata de aserraderos de sierras circulares no es preciso clasificar las trozas, antes bien, una mezcla de diferentes dimensiones constituye una ventaja.

ASERRADEROS DE SIERRAS ALTERNATIVAS

La cadena de producción básica de un aserradero sueco de sierras de bastidor está formada por tres máquinas principales: la sierra de lavar trozas, la sierra múltiple y la canteadora. Estas tres máquinas se situan una detrás de otra (véase Figura 2). En los grandes aserraderos suecos, de ordinario existen varias cadenas de producción, cada una de las cuales, trabajando un solo turno, es capaz de producir alrededor de 5.350 standards de madera aserrada por año.

FIGURA 2. - Aserradero con una pareja de sierras múltiples Escala 1:300

La serie de operaciones en esta cadena básica de producción, formada por un solo par de sierras alternativas, se ilustra en la Figura 3. Las trozas se descortezan y se clasifican después por tamaños en el estanque. Las de igual dimensión se hacen entrar en la serrería mediante una cadena de elevación que corre a lo largo de un canalón. A medida que se van necesitando rollos, un dispositivo especial los empuja y situa en posición delante de la sierra de lavar trozas, donde el operario encargado del funcionamiento del carro de avance coloca la troza en línea recta y la introduce entre los rodillos de alimentación de la sierra.

FIGURA 3. - Esquema de producción de un aserradero de sierras múltiples, según B. Thunell.

De la troza se cortan una pieza central, tablas laterales y costeros. Un dispositivo detiene la pieza central, mientras que las tablas laterales continúan su marcha hasta la canteadora. Los costeros caen en un transportador de desechos. Mediante un transportador lateral se lleva entonces la pieza central hasta los rodillos de entrada de la sierra múltiple y, después de regularla, se introduce la pieza entre los rodillos de avance y se sierra a las dimensiones requeridas. Del interior se obtienen tablas acabadas, que pasan inmediatamente a la nave de clasificación, mientras que las tablas con gema del exterior se separan y llevan a la canteadora. Los costeros caen sobre el transportador de desechos. En la Figura 4 se ilustran algunas modalidades de despiezado.

FIGURA 4. Ejemplos de despiezado.

Las sierras múltiples modernas funcionan a gran velocidad. Las velocidades de 320 a 370 carreras por minuto son comunes, con una longitud de carrera de 600 mm. La velocidad media de avance es de 25 mm. por minuto.

La canteadora consiste en dos o más sierras circulares que giran sobre el mismo eje y cuya separación se regula por medios mecánicos o hidráulicos. El tipo más común es la canteadora de doble sierra.

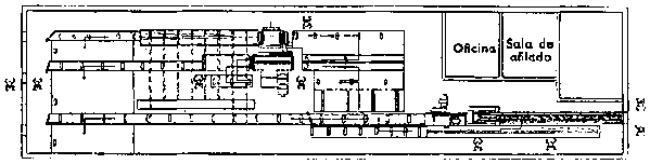
Los grandes aserraderos están formados simplemente por dos o más cadenas de producción análogas a la descrita que funcionan siguiendo trayectorias paralelas (véase Figura 5). La ventaja de contar con dos o más cadenas de producción que funcionan al mismo tiempo es que esto permite cortar simultáneamente trozas de distintas dimensiones.

FIGURA 5. - Aserradero con tres parejas de sierras múltiples. Escala 1:300

Algunos aserraderos muy pequeños cuentan sólo con una sierra múltiple. Las trozas se lavan en esta sierra por la mañana y las piezas enterizas se devuelven al estanque mediante un transportador especial. Por la tarde se cambian las hojas de sierra y se sacan tablas de las piezas utilizando la misma máquina.

En todos estos tipos de aserradero, las tablas procedentes de la canteadora van después a un recortador de testas, formado generalmente por un transportador transversal que lleva las tablas a una hoja recortadura en la que se secciona un extremo. Antes del corte las tablas se sitúan en posición a mano. Después, mediante rodillos de avance se llevan las tablas al otro lado del transportador, donde una segunda sierra corta la otra testa, determinándose la longitud de las tablas mediante una regla graduada fija sobre la mesa. Las tablas retostadas van después, mediante otro transportador, a una mesa de clasificación, pasando antes con frecuencia a través de un baño protector contra el azuleo (madera azul).

En los aserraderos pequeños, la clasificación se efectúa a menudo a mano y por el operario encargado de la primera operación de retostado. En los grandes aserraderos son comunes las máquinas para la clasificación mecánica.

Con los costeros y tablijas se hacen astillas o bien se desmenuzan y emplean en la fabricación de papel, celulosa y tableros de fibra de madera. El serrín se saca con transportadores especiales.

Una vez que se ha secado la madera aserrada y retostada se vuelve a tronzar por sus extremos, dejándola lista para apilarla en pacas para el envío. Existe una máquina moderna que retesta ambos extremos de las tablas, dejando éstas a la longitud necesaria, estampa el sello de envío en cada testa, cuenta el número de tablones de cada longitud, así como el número total, y estampa una cifra en un extremo de la tabla, indicando su longitud.

El número de operarios empleados en un aserradero con un par de sierras múltiples suele ser de 14: uno a la entrada de las trozas, 2 aserradores, 1 ayudante de aserrador, 2 cantadores, 4 clasificadores, 1 encargado de la afiladora de sierras, 1 engrasador, 1 cortador de desechos y un operario de reserva. La capacidad productora de tal aserradero, en una jornada de 8 horas, es de 17 standards. El número de operarios en un aserradero con dos pares de sierras múltiples es de 30:2 a la entrada, 2 aserradores, 2 ayudantes de aserrador, 2 cantadores, 2 ayudantes de cantadores, 3 retestadores, 2 cortadores de desechos, 2 encargados de afiladora de sierras, 1 engrasador, 1 reparador, 8 clasificadores y 1 operario de reserva. Tal aserradero tiene una capacidad de 35 standards por jornada de 8 horas. Un aserradero con tres pares de sierras múltiples emplea 49 operarios y tiene una capacidad de 55 standards por jornada de 8 horas. En estas cifras no se incluyen los operarios que trabajan en el estanque o en los apiladeros y hornos.

ASERRADEROS DE SIERRAS CIRCULARES

Un aserradero completo de sierras circulares cuenta con tres máquinas principales: la sierra de despiezar, la sierra de corte al hilo y la canteadora (Figuras 6 y 7).

FIGURA 6. - Esquema de producción de un aserradero circular (según E. Nyholm, AB Maskinfabrichen, Örnsköldsvik).

FIGURA 7. - Aserradero con sierra circular, sierra de corte al hilo y canteadora (aserradero circular completo). Escala 1:300

La hoja de la sierra de despiezar va montada en un bastidor de madera o de acero soldado. La troza se sitúa sobre una mesa que se desplaza sobre rodillos y que puede avanzar hacia adelante o hacia atrás mediante un mecanismo de alimentación. Después de cortar un costero de la troza, el espesor del próximo corte se determina moviendo la pieza hasta que la cara toque contra un tope de ajuste lateral. La troza se sierra a una, dos o tres caras en esta máquina, según sus dimensiones (véase Figura 8). La pieza enteriza resultante se lleva a la sierra de corte al hilo, y los costeros van al depósito de desechos o bien se llevan a la sierra de corte al hilo para reaserrarlos. En la sierra de corte al hilo, que de ordinario cuenta con rodillos de accionamiento mecánico, la pieza enteriza se transforma en tablas. Las tablas terminadas pasan entonces a la canteadora, si es necesario, y si no, directamente al apiladero.

FIGURA 8. - Despiezado en un aserradero circular completo.

Los desechos procedentes de las tres máquinas se llevan por un sistema transportador situado bajo el suelo al punto en que quedan transformados en leña. Rara vez se desmenuzan los desechos de un aserradero de sierras circulares. Los desechos se cortan en sentido transversal mediante una sierra múltiple o una sierra sencilla de balancín. De ordinario, las tablas se retestan con una sierra basculante transversal.

En Suecia existen otros tipos de aserraderos de sierras circulares más simples. Algunos de ellos cuentan sólo con una sierra de despiezar (véase Figura 9), realizándose el troceo según el esquema de la Figura 10, mientras que otros cuentan también con una canteadora. Algunos grandes aserraderos circulares cuentan con dos sierras de despiezar, dos sierras de corte al hilo y una canteadora. Para la serrería normal que cuente con tres máquinas, se requieren 9 operarios: 2 para situar las trozas sobre rodillos, 2 para la sierra de despiezar, 2 para la de corte al hilo, 1 para la canteadora, 2 para el tronzado y 1 clasificador. Su capacidad por jornada de 8 horas es aproximadamente de 6,5 standards.

FIGURA 9. - Aserradero circular sencillo. Escala 1:300

FIGURA 10. - Despiezado por una sierra circular sencilla.

CONSUMO DE MATERIA PRIMA

En un aserradero, es de la máxima importancia aprovechar la materia prima de la manera más eficaz. Con un mismo volumen de madera rolliza se consiguen diversos rendimientos en madera aserrada, según los métodos de trabajo, lo que obedece a la distinta forma de los dientes, precisión de las operaciones y otros factores.

La diferencia en el rendimiento se echa de ver sobre todo entre la sierra alternativa y la sierra circular. La posición fija y menor espesor de la hoja en la primera conduce a una mayor precisión y menor desperdicio que con la sierra circular.

CUADRO 1. - RELACIÓN ENTRE RENDIMIENTO Y DESPERDICIO SEGÚN LOS DIVERSOS MÉTODOS DE ASERRADO

CONCEPTO

Sierra alternativa

Circular completo

Circular sencillo

Porcentaje

Madera aserrada

54

50

44

Madera desmenuzada para pasta

29

-

-

Serrín

11

13

19

Recortes

3

-

-

Costeros y despojos

-

34

34

Tolerancia por contracción

3

3

3

Las perdidas que obedezcan a una falta de precisión en el aserrado vendrán a sumarse a éstas y probablemente serán mayores con sierras circulares que con sierras de bastidor, si bien con las primeras se está consiguiendo ahora una mayor precisión.

El aserrado en sierra múltiple viene a ser un procedimiento de producción en masa, en el que cada troza se sierra manteniendo las hojas en posición fija, y limitándose el operario a girar la troza colocándola en la posición más conveniente. En cambio, con la sierra circular, el aserrador puede dar los hilos según las características especiales de la troza que esté labrando. De aquí que los resultados dependan mucho más de la pericia del aserrador cuando se una sierra circular. La experiencia adquirida por el Canadá y Noruega confirma que un operario de sierra circular experimentado puede dar cortes con la misma precisión que si se tratase de una sierra de bastidor. Este ideal, sin embargo, raras veces se alcanza.

Con la sierra circular se pueden obtener surtidos especiales de madera sin dificultad, lo cual cría imposible con la sierra alternativa sin que los precios se elevaran considerablemente. Las pequeñas sierras circulares resultan de la máxima utilidad para proporcionar al mercado local estas provisiones mixtas de madera aserrada. La madera producida por la sierra circular de ordinario se cotiza a un precio inferior que las de sierra alternativa, si bien esta diferencia es muy pequeña en momentos de gran demanda.

Diversiones de las trozas y de las piezas aserradas

En su mayoría las trozas suecas tienen una longitud media de 4,5 m. con un diámetro de cogolla de 20 cm., siendo estas dimensiones las que se han tomado en cuenta en las estimaciones dadas hasta aquí. Sin embargo, en algunas regiones, sobre todo en el sur de Suecia, estas dimensiones no representan la regla general. Muchos aserraderos de las tierras altas de Smaland se ven obligados a cortar trozas de 3,7 a 4 m. de longitud, con un diámetro medio de cogolla de 15 a 18 cm.

Si bien las condiciones varían de un aserradero a otro, la regla general es que la producción de madera aserrada descienda y los gastos asciendan considerablemente cuando el tamaño de la troza es reducido (véanse Figuras 11 y 12). La longitud de las trozas influye de manera más decisiva cuando se trabaja con la sierra circular. Esto se explica por el hecho de que el avance y retroceso de las trozas consume en la sierra circular una proporción del tiempo de trabajo mayor que en las sierras alternativas. En una de estas últimas es casi posible aserrar con las trozas tocándose por sus extremos, de manera que el tiempo perdido es muy reducido (no superior al 5 por ciento)

FIGURA 11. - Ejemplos de la variación en el coste total de aserrío con diferentes dimensiones y según distintos métodos por standard. Trozas de 8 pulgadas = 100 por ciento; longitud de las trozas, 15 pies.

FIGURA 12. - Ejemplo de las variaciones en el coste total de aserrío con trozas de diferente longitud y según distintos procedimientos. Trozas de 15 pies de longitud = 100 por ciento; trozas de 8 pulgadas.

Aprovechamiento de desechos

El costo de los diversos procedimientos de aserrado depende en gran parte de la aplicación que se haga de los despojos. En los grandes aserraderos del norte de Suecia esto no es ya problema, toda vez que en ellos, a excepción de las tablijas, se aprovechan todos los desperdicios. El serrín se emplea como combustible y los costeros y recortes se desmenuzan para la fabricación de pasta o de tableros de fibra de madera.

Para que los costeros y desechos puedan utilizarse de esta forma es preciso descortezar las trozas. La instalación de máquinas descortezadoras es cara y, por consiguiente, sólo se adaptan a grandes aserraderos. Cuando se utilizan tales máquinas, generalmente se" instalan prensas que reduzcan el contenido de humedad de la corteza hasta un 55 por ciento aproximadamente, de manera que pueda utilizarse como combustible. Se ha observado que, cuando el aserrado es continuo durante la mayor parte del año y la capacidad de 2.000 a 2.500 standards, un aserradero con una pareja de sierras alternativas es el tipo más pequeño en que resulta económicamente aconsejable la instalación de maquinaria descortezadora.

En cambio, un desmenuzador de madera queda justificado en un aserradero con capacidad de sólo 500 standards, siempre que pueda resolverse el problema del descortezado.

Hacia la solución de este problema contribuyen las máquinas semiportátiles que funcionan en los apiladeros, que sin embargo no permiten el aprovechamiento de la corteza. En la actualidad se están efectuando ensayos para determinar un procedimiento de descortezar costeros y recortes con provecho y que, si resultan satisfactorios, abrirían nuevos caminos en este aspecto.

Las fábricas de pasta adquieren los recortes y costeros al por mayor y con frecuencia se ocupan asimismo de su transporte. En Suecia hay poca demanda de costeros y de desechos como combustible, y el mercado local de carbón vegetal ha sufrido una baja tal en los últimos anos que la mayoría de los aserraderos han dejado de fabricar carbón con residuos de madera.

COMPARACIÓN DE LOS COSTES ENTRE DIVERSOS TIPOS DE ASERRADEROS

En la siguiente comparación de los costes de producción en los diversos tipos de aserraderos existentes en Suecia, se dan por supuestas varias cosas.

Por ejemplo, se supone que todos los aserraderos son de tipo moderno. Su capacidad productora se basa en 280 días de trabajo por año, si bien el período anual de trabajo oscila entre 150 y 287 días. Las dimensiones medias de las trozas son las ya anteriormente mencionadas. Se supone que la madera se ha secado al aire en patios abiertos. El acarreo en los patios de aserraderos completos de sierras circulares y de una o dos sierras alternativas se supone es por camión; así corno también que en los aserraderos de 4 ó 6 sierras alternativas existen puentes-grúas.

Los costes se basan en los niveles de 1947-48 (los costes de hoy son aproximadamente un 50 por ciento más altos), y se han ajustado según las diferencias conocidas. Los salarios medios de los operarios se han considerado como de 2,30 coronas suecas (0,44 dólares E.U.A.) por hora, incluida la vacación retribuida.

Al estimar la depreciación, se ha sumado al porcentaje un 3 por ciento de interés sobre el capital y un 1½ por ciento de interés por seguros, etc. El período de depreciación se ha estimado en 5 años para un aserradero de sierra circular sencilla, 8 años para un aserradero completo de sierras circulares y 15 años para un aserradero de sierras alternativas. Los gastos de construcción de apiladeros de almacenamiento en los aserraderos completos de sierras circulares se estima que varían según la producción anual. No se incluyen los gastos de viviendas, terrenos para los operarios, etc. En Suecia, los gastos de energía eléctrica por standard son bajos, pero las sierras de bastidor exigen más potencia que las circulares, por ser de mecanismo más complicado.

En la Figura 13 se representa la manera en que la producción varía en los diversos tipos de aserradero, y en la Figura 14 aparecen las horas de trabajo por standard en estos aserraderos. En la Figura 15 se ilustra la forma en que los costos de funcionamiento por standard de madera aserrada varían según la producción anual en los diferentes tipos de aserradero.

FIGURA 13. - Producción en standards por hora en distintos tipos de aserradero.

FIGURA 14. - Horas de trabajo por standard, según el tipo de asseradero

FIGURA 15. - Comparación de los gastos de producción en aserraderos de distinto tipo. (Gastos por mano de obra en la serrería y el apiladero, así como por retostado y depreciación incluidos los gastos de la materia prima, los de administración y otros gastos generales).

En la Figura 16 se representa una comparación de los gastos de producción, teniendo en cuenta el aprovechamiento de los desperdicios. La distancia entre las curvas y la línea representativa de un desecho particular es la medida del coste neto.

FIGURA 16. - Comparación de los costes de producción, excluido el material, en aserraderos de distintos tipos con referencia a los factores externos e internos y al valor de los desperdicios.

En la Figura 17 queda ilustrado el coste mínimo de aserrío para una producción anual variable en diferentes tipos de aserradero.

FIGURA 17. - Coste total.

Para determinar el coste total de transporte y aserrado de madera se suman los valores de la Figura 17 a los costos de transporte. Los gastos totales calculados en esta forma aparecen en la Figura 18.

FIGURA 18. - Costes mínimos de aserrío (costes de producción, excluido el de la materia prima), para distintos volúmenes de producción anual.

Las cifras indican que existe una diferencia notablemente pequeña entre los gastos para aserraderos de distinto volumen. Se echan de ver, sin embargo, las ventajas de un transporte en masa por flotación.

Condición indispensable para la construcción de un aserradero grande, donde no sea posible el transporte por flotación, es que se cuente con un adecuado sistema de carreteras, cosa que no ocurre con mucha frecuencia en las zonas extensamente forestadas.

A continuación se indica el tipo de aserradero que, para diversos volúmenes de producción, exigiría el menor gasto de funcionamiento en Suecia:

CUADRO 2. - TIPO DE ASERRADERO QUE EXIGE EL MENOR GASTO DE FUNCIONAMIENTO

Producción (standards)

Tipo de aserradero

Hasta 50

circular, simple

De 50 a 200

circular con canteadora

De 200 a 975

circular, completo

De 975 en adelante

sierras múltiples

(Articulo traducido de un texto inglés).


Página precedente Inicìo de página Página siguiente