| Numero | |
|---|---|
| Maconnerie en briques, plan et élévation | 1 |
| Vue en perspective des baies des planchers et fenêtres et | |
| élévation des baies des portes | 2 |
| Elévation des baies des portes et fenêtres | 3 |
| Plan de la vue et de la perspective de l'étable d'isolement | 4 |
| Plan détaillé de la pente de l'étable | 5 |
| Plan détaillé de la construction de l'étable | 6 |
| Plan détaillé des abreuvoirs longitudinaux | 6A |
| Plan de situation de l'abattoir | 7 |
| Vue en perspective de l'abattoir | 8 |
| Plan et l'élévation de l'abattoir | 9 |
| Plan d'abattoir pour le bétail (cent) | 9A |
| Elévation côté sortie de l'abattoir | 10 |
| Denivellation du magasin à fumier | 11 |
| Fondations et égouts de l'abattoir | 12 |
| Vues en coupe des égouts (a) | 13 |
| Vues en coupe des égouts (b) | 14 |
| Pompe de vidange | 15 |
| Plan côté et plan de la toiture en bois | 16 |
| Box d'étourdissement | 17 |
| Bassin d'evaporation | 18 |
| Grilles d'égout | 19 |
| Decanteur à graisses et boîte de distribution des effluents | 20 |
| Fosse septique | 21 |
| Rigoles à sang et cuve à sang | 22 |
| Cuve à sang | 23 |
| Collecte du sang dans des seaux | 23A |
| Fosse de décharge des viandes saisies | 24 |
| Fonctionnement du circuit d'eau froide, d'eau chaude et | |
| d'eau surchauffée | 25 |
| Emplacement des installations hydrauliques et thermiques | |
| dans un abattoir | 26 |
| Pompe de distribution d'eau froide | 27 |
| Details de la pompe de distribution d'eau froide | 28 |
| Plan de chambre froide et chambre de congélation | 29 |
| Elévations et coupes avec chambre froide et chambre de | |
| congélation | 30 |
| Plan et élévation du poste d'abattage | 31 |
| Poste d'abattage: fondations et égouts | 32 |
| Charpente: poste d'abattage | 33 |
| Abattoir pour porcins | 34 |
| Profils des abattoirs pour porcins | 35 |
| Façades des abattoirs pour porcins | 36 |
| Plan côté de l'abattoir pour porcins | 37 |
| Système d'égouts de l'abattoir pour porcins | 38 |
| Charpente: abattoir pour porcins | 39 |
| Plan de la ferme de toiture de l'abattoir pour porcins | 40 |
| Coupe A-A et détail de la ferme de toit de l'abattoir pour porcins | 41 |
| Coupe B-B et C-C de l'abattoir pour porcins | 42 |
| Schéma des opérations d'abattage (bovins) | 43 |
| Berceau de dépouillement pour grands animaux | 44 |
| Berceau de dépouillement pour petits animaux | 45 |
| Monorail (pour bovins) dispositif de transfert | 46 |
| Jambier et crochets | 47 |
| Chariot | 48 |
| Rail tubulaire pour porcins, petits animaux et abats | 49 |
| Crochet et écarteur pour porcins et petits animaux | 50 |
| Crochet à chaîne pour suspendre les porcins au rail d'égorgement | 51 |
| Crochet à viande pour porcins et petits animaux | 52 |
| Crochet pour abats etc. | 53 |
| Autoclave | 54 |
| Détails de la chaufferie et de la cuve à mazout | 55 |
| Suspension de la tuyauterie | 56 |
| Réseau aérien no. 1 | 57 |
| Réseau aérien no. 2 | 58 |
FIG. 1
| Brickwork | Masonnerie de Brique |
| Measurements in centimetres | Mesures en centimètres |
| Elevation | Elévatíon |
| Foundation | Fondation |

FIG. 2
| Openings for doors and windows | Ouvertures de porte et de fenêtre |
| Perspective view | Perspective, |
| Measurements in centimetres | Mesure en centimètres |
| Door opening | Ouverture de porte |
| Elevation | Elévation |
| Foundation | Fondation |
| Lintel | Linteau |

FIG. 3
| Door and Window opening | Ouverture de porte et de fenêtre |
| Measurements in centimetres | Mesures en centimètres |
| Foundation | Fondation |
| Door opening elevation | Ouverture de porte: elèvation |
| Lintel | Linteau |
| Elevation | Elévation |
| Window opening | Ouverture de fenêtre |

FIG. 4
| Lairage | Parc a bestiaux |
| Measurements in centimetres | Mesures en centimètres |
| Perspective view | Perspective |
| Animals in | Entrée des bêtes |
| Detail Perspective view | Detail en perspective |
| Detention pen | Etable de surveillance |
| Drinking Trough | Abreuvoir |
| Pen | Etable |
| Gate | Porte |
| Cattle | Bovins |
| Sheep and Goats | Moutons et chèvres |
| Blood tank | Cuve à sang |
| Slaughterhouse | Abattoir |

FIG. 5
| Lairage-Fences | Cloture du parc |
| Fall | Pente |
| Measurements in centimetres | Mesúres en centimètres |
| Plan of pens | Plan des Etables |
| Sliding door - animals in | Porte d'entrée coulissante |
| Slaughterhouse | Abattoir |
| Sheep and Goats | Moutons et chèvres |
| Pens | Etables |
| Animals in | Entrée des bêtes |
| Cattle | Bovins |
| Detention pen | Etable de surveillance |

FIG. 6
| Lairage - Details | Détails de etables |
| Measurements in centimetres | Mesures en centimètres |
| Drinking trough detail | Abreuvoir : détail en perspective |
| Perspective view | |
| Drinking trough | Abreuvoir |
| Detail Perspective view | Détail, en perspective |
| Fall | Pente |
| Bolt | Boulon |
| Pole | Poteau |
| Bolt M 1,6 | Boulon M 1,6 |

FIG. 6A
| Longitudinal Drinking Troughs | Abreuvoirs oblongs |
| Measurements in centimetres | Mesures en centimètres |
| Perspective view | Perspective |
| Elevation | Elévation |
| Fall | Pente |
| Pipe | Tuyau |
| Drain | Rigole |
| Wooden Bung | Bonde en bois |
| Drinking water | Eau à boire |
| Concrete | Béton |
| Plan of pens | Plan des étables |
| Slaughterhouse | Abattoir |
| Drinking troughs | Abreuvoirs |

FIG. 7
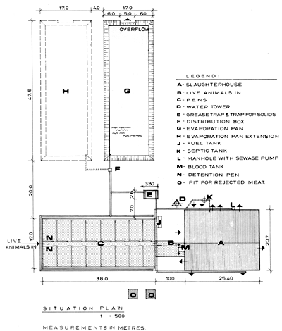
| Situation Plan of cattle, sheep and goats | Plan de situation de l'abattoir à bovins, |
| Slaughterhouse | ovins et caprins |
| Measurements in metres | Mesures en mètres |
| Situation plan | Plan de situation |
| Live animals in | Entrée des bêtes |
| Legend : | Legende : |
| A - Slaughterhouse | A - Abattoir |
| B - Live animals in | B - Entrée des bêtes |
| C - Pens | C - Etables |
| D - Water tower | D - Chateau d'eau |
| E - Grease trap and trap for solids | E - Bac de décantation des graisses et des matières solides |
| F - Distribution box | F - Coffret de distribution |
| G - Evaporation pan | G - Bassin d'évaporation |
| H - Evaporation pan extension | H - Bassin annexe |
| J - Fueld Tank | J - Citerne à mazout |
| K - Septic tank | K - Fosse septique |
| L - Manhole with sewage pump | L - Trou de visite et pompe de vidange |
| M - Blood tank | M - Cuve a sang |
| N - Detention pen | N - Etable de surveillance |
| O - Pit for rejected meat | O - Fosse de décharge des viandes de rebut |
| Overflow | Trop plein |

FIG. 8
| Perspective view of cattle, sheep and goats | Perspective de l'abattoir à bovins, |
| Slaughterhouse | ovins et caprins |

FIG. 9
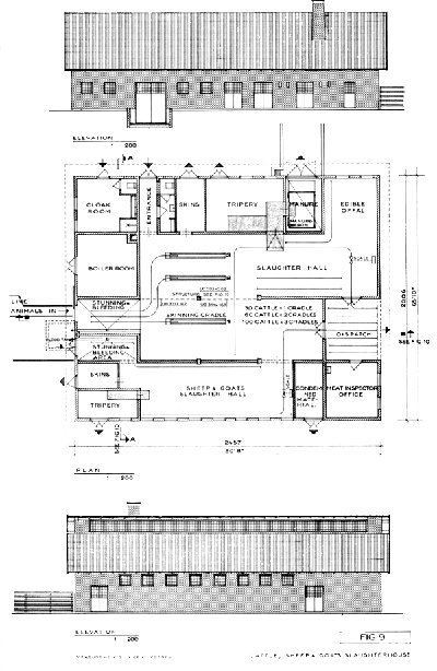
| Cattle, Sheep and Goats slaughterhouse | Abattoir à bovins, ovins et caprins |
| Measurements in centimetres. | Mesures en centimètres |
| Elevation | Elévation |
| See Fig. … | Voir Fig. … |
| Tripery | Boyauderie |
| Skins | Peaux |
| Sheep and goats slaughter hall | Halle d'abattage des moutons et chèvres |
| Scale | Bascule |
| Condemned material | Saisies |
| Meat Inspector Office | Bureau de l'inspecteur des viandes |
| Blood tank | Cuve à sang |
| Stunning and Bleeding area | Aire d'étourdissement et de saignée |
| Skinning cradle | Chevalet de dépouillement |
| 30 cattle = 1 cradle | 30 bovins = 1 chevalet |
| 60 cattle = 2 cradles | 60 bovins = 2 chevalets |
| 100 cattle = 3 cradles | 100 bovins = 3 chevalets |
| Dispatch | Expédition |
| Stunning and Bleeding | Etourdissement et saignée |
| Live animals in | Entrée des bêtes |
| Structure | Charpente |
| Slaughter hall | Halle d'abattage |
| Boiler room | Chaufferie |
| Cloak room | Vestiaire |
| Entrance | Entrée |
| Manure | “Fumier” |
| Manure wagon | Chariot à “fumier” |
| Edible offal | Abats comestibles |

FIG. 9A
| Cattle, sheep and goats slaughterhouse | Abattoir à bovins, ovins et caprins |
| Measurements in centimetres | Mesures en centimètres |
| Live animals in | Entrée des bêtés |
| Blood tank | Cuve à sang |
| Stunning and bleeding | Etourdissement et saignée |
| Skins | Peaux |
| Stunning and bleeding area | Aire d'étourdissement et de saignée |
| Boiler room | Chaufferie |
| Stunning pen | Box d'étourdissement |
| Cloak room | Vestiaire |
| Entrance | Entrée |
| Sheep and goats slaughter hall | Halle d'abattage des moutons et chèvres |
| Scale | Bascule |
| Manure | “Fumier” |
| Manure wagon | Chariot à “fumier” |
| Dispatch | Expédition |
| Meat Inspector Office | Bureau de l'inspecteur des viandes |
| Condemned material | Saisies |
| … Carcasses | … Carcasses |
| Tripery | Boyauderie |
| Edible Offal | Abats comestibles |

FIG. 10
| Cattle, sheep and goats slaughterhouse | Abattoir à bovins, ovins et caprins |
| See Fig. … | Voir Fig. … |
| Blood tank | Cuve à sang |
| Stunning and bleeding | Etourdissement et saignée |
| Skinning cradle | Chevalet de dépouillement |
| Slaughter hall | Halle d'abattage |
| Dispatch | Expédition |
| Animals in | Entrée des bêtes |
| Entrance - removing feet and flaying | Entrée - Sectionnement des pieds et ecorchag |
| Evisceration | Eviscération |
| Inspection | Inspection |
| Clean meat | Viande “propre” |
| Washing | Lavage |
| Wood pools … | Montants en bois … |
| Measurements in centimetres | Mesures en centimètres |
| Cloak room | Vestiaire |
| Boiler room | Chaufferie |
| Tripery | Boyauderie |
| Wash tub | Lavabo |
| Shower | Duche |
| Cattle entrance elevation | Elévation, côté entrée des bêtes |
| End elevation | Elévation, arrière du batiment |

FIG. 11
| Slope in manure room | Déclivité du magasin à “fumier” |
| Measurements in centimetres | Mesures en centimètres |
| … leveling screed | Couche d'arásement de … |
| Manure | “Fumier” |
| Slope | Pente |
| Drain pump See Fig. … | Pompe de vidange Voir Fig. … |
| … at … | … à … |

FIG. 12
| Foundation and Drainage system | Fondation et égoûts |
| Cattle, sheep and goats slaughterhouse | Abattoir à bovins, ovins et caprins |
| Drainage system | Reseau d'égoûts |
| Measurements in centimetres | Mesures en centimètres |
| Notes : | Notes : |
| FFL = Finished floor level | FFL = Niveau plancher fini |
| X = Level in channel | X = Niveau rigole |
| o/oo = Fall in mm per metre | o/oo = Déclivité en mm par mètre |
| See Fig. … | Voir Fig… |
| Concrete cover | Couverture béton |
| Blood tank | Cuve à sang |
| Lairage | Parc |
| Septic tank | Fosse septique |
| Foundation | Fondations |

FIG. 13
| Section in drain (a) | Coupes des égoûts (a) |
| See Fig. … | Voir Fig. … |
| Sewerage grating | Grille d'égoût |
| Measurements in centimetres | Mesures en centimètres |

FIG. 14
| Section in Drain (b) | Coupes des égoûts (b) |
| See Fig. … | Voir Fig. … |
| Measurements in centimetres | Measures en centimètres |
| Grating | Grillage |

FIG. 15
| Drain pump | Pompe de vidange |
| See Fig. … | Voir Fig. … |
| View | Vue |
| Detail … | Détail … |
| Plan Section … | Section Plan … |
| Bolt … | Boulon … |
| Screw | Vis |
| Pipe | Tuyau |
| Washer | Rondelle |
| Rubber sheet | Feuille caoutchouc |
| Adjusted to the tube | Ajustée au tube |

FIG. 16
| Dimensioned Plan and Plan of timber truss | Plan coté et plan de la toiture |
| All measurements in centimetres | Toutes mesures en centimètres |
| Plan of timber truss | Plan de la toiture |
| Roof Purlin | Panne |
| Wall Plate | Sablière |
| Outside rafter | Chevron extérieure |
| Dimensioned Plan | Plan coté |

FIG. 17
| Stunning Pen | Box d'étourdiseement |
| Perspective view | Perspective |
| Ramp | Rampe |
| Pipe | Manchon |
| Sliding bolt | Verrou |
| Welding | Soudure |
| Detail … | Détail … |
| Hinge | Charnière |
| Steel bar | Tige d'acier |
| Front view | Vue de face |
| Hoist | Treuil |
| Concrete | Béton |
| Measurements in centimetres | Mesures en centimètres |

FIG. 18
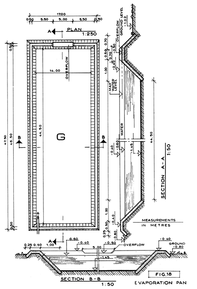
| Evaporation Pan | Bassin d'évaporation |
| Overflow | Trop plein |
| Measurements in metres | Mesures en mètres |
| Ground | Sol |
| Water | Eau |
| Max water level | Niveau max. Eau |
| Ground level | Niveau du sol |

FIG. 19
| Sewerage-grating | Grilles d'égoût |
| Measurements in millimetres | Measures en millimètres |
| Bolt | Boulon |

FIG. 20
| Grease Trap | Décanteur de graisses et |
| Distribution Box | Coffret de distribution |
| Distribution Box for diverting effluent | Coffret de distribution des effluents |
| Wooden plugs | Bondes de bois |
| Plan of grease trap | Plan du décanteur de graisses |
| Measurements in centimetres | Mesures en centimètres |
| See Fig. … | Voir Fig. … |
| Concrete | Béton |

FIG. 21
| Septio-Tank | Fosse septique |
| … at … | … à … |
| Measurements in centimetres | Measures en centimètres |
| Lifting Hook… | Crochet de levage |

FIG. 22
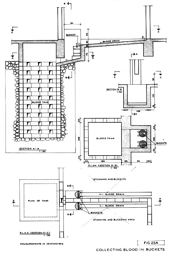
| Blood drain and Blood tank | Rigoles et cuve à sang |
| Measurements in centimetres | Mesures en centimètres |
| Cover (Reinforced concrete) | Couvercle (Béton armé) |
| Lifting hook | Crochet de levage |
| Stunning and bleeding area | Aire d'étourdissement et de saignée |
| Blood drain | Rigole à sang |
| Blood tank | Cuve à sang |
| Stunning and Bleeding | Etourdissement et saignée |

FIG. 23
| Blood tank | Cuve à sang |
| Blood | Sang |
| Plan of tank | Plan de la cuve |
| Bleeding area | Aire de saignée |
| Measurements in centimetres | Mesures en centimètres |
| Cross section … | Section transversale … |
| Pebble | Empierrement |
| Hole | Trou |
| Brickwork | Brique |
| Concrete | Bèton |
| Air duct | Conduit d'aération |

FIG. 23A
| Collecting Blood in Buckets | Collecte du sang dans des seaux |
| Measurements in centimetres | Mesures en centimètres |
| Stunning and Bleeding area | Aire d'étourdissement et de saignée |
| Buckets | Seaux |
| Plan of tank | Plan de la cuve |
| Blood drain | Rigole à sang |
| Blood tank | Cuve à sang |

FIG. 24
| Pit for rejected meat | Fosse de décharge des viandes de rébut |
| See Fig. … | Voir Fig. … |
| Detail … | Détail … |
| Perspective view | Perspective |
| Floor Plates | Dalles |
| … Bolt | Boulon … |
| Measurements in centimetres | Measures en centimètres |
| M = Mild steel bars | M = Barres d'acier doux |
| Pebble | Empierrement |
| Concrete | Béton |
| Brickwork | Brique |

FIG.25
| Domestic water supply and heating diagrams | Schémas des circuits d'eau et de chauffage |
| Cattle, sheep and goats slaughterhouse | Abattoir à bovins, ovins et caprins |
| Cold water tank on the water tower (… height) | Réservoir de 5 000 litres d'eau froide au sommet |
| 5 000 litre | du château d'eau (hauteur …) |
| To taps | Vers les robinets |
| Alternative piping | Amenée directe |
| Public cold water supply | Distribution d'eau de ville |
| Drive - Shaft - Pump | Moteur - Arbre - Pompe |
| Cold water storage tank … litre | Citerne d'eau froide … litres |
| Indication of piping valves etc. | Représentation des appareils etc. |
| Piping general | Tuyauterie générale |
| Impulse line | Amenée directe |
| Two-way valve | Vanne à deux voies |
| Check valve | Soupape de retenue |
| Thermostatic valve | Soupape thermostatique |
| Swimmer operated valve | Soupape à plongeur |
| Tap | Robinet |
| Mixing tap | Robinet mélangeur |
| Thermometer | Thermomètre |
| Air eliminator | Purgeur d'air |
| Pressure gauges | Manomètres |
| Flow diagram for domestic cold, warm and hot water | Circuit d'eau froide, chaude et surchauffée |
| Vent tap … | Conduit d'air … |
| Dip stick hatch with a cap … | Trou de gauge, bouchon … |
| Filling connection | Raccord pour le remplissage |
| Manhole | Trou de visite |
| Boiler water | Eau de chaudière |
| Specifications | Spécifications |
| Boiler with a 600 litre domestic water (90°) | Chaudière à brûleur incorporé donnant 600 litres |
| heater built in the capacity of the boiler | d'eau à 90°. Puissance nécessaire 150 000 |
| should be 150 000 Kcal/hr | Kcal/h |
| Fully automatic burner for fuel oil | Brûleur à mazout entièrement automatique |
| The capacity should be 25 Kg/h | Capacité nécessaire 25 kg/h |
| 2000 litre domestic warm water (40°C) heater | Echangeur à batterie tubulaire |
| with a heating tube battery | |
| The heating battery should be able to heat … | Chauffé par de l'eau de chaudière à 100/60° |
| litre of water from 15°C to 40°C/hr with boiler | doit pouvoir porter en une heure … litres |
| water of 100/60°C | d'eau froide de 15 à 40°C |
| 100 litre expansion tank | Vase d'expansion de 100 litres |
| 10 000 litre fuel oil storage tank | Citerne à mazout de 10 000 litres |
| Diagram for heating | Installation de chauffage |
| Legend : | Légende : |
| BWF (BWR) Boiler water flow (return) | Sortie (retour) d'eau de (à) la chaudière |
| CWS (CWT) Cold water supply (tap) | Distribution (Robinet) d'eau froide |
| EP Expansion pipe | Tuyau de détente |
| FOF (FOR) Fuel oil flow (return) | Amenée (retour) de mazout au brûleur (à la citerne) |
| HB (HT) Hand basin (trough) | Lavabo individuel (collectif) |
| HWC (HWS) Hot water circulation (supply) | Circulation (distribution) d'eau surchauffée |
| OP Overflow pipe | Conduit de trop-plein |
| SH Shower | Douche |
| ST Sterilizer | Autoclave |
| UR Urinal | Urinoir |
| WWS Warm water supply | Distribution d'eau chaude |

FIG. 26
| Installation for heating domestic cold, warm | Plan et coupe des installations d'eau et |
| and hot water | de chauffage |
| Cattle, sheep and goats slaughterhouse | Abattoir à bovins, ovins et caprins |
| Filling connection | Manche de remplissage |
| Fuel oil storage tank | Citerne à mazout |
| From water tower or public cold water supply | Amenée d'eau directe ou par le réservoir |
| Cloak room | Vestiaire |
| Entrance | Entrée |
| Skins | Peaux |
| Tripery | Boyauderie |
| Manure | Fumier |
| Edible offal | Abats comestibles |
| Flue duct | Tuyau de cheminée |
| Boiler - Boiler room | Chaudière - Chaufferie |
| Oil burner | Brûleur |
| Domestic hot water heaters | Réchauffeurs d'eau |
| Expansion tank | Vase d'expansion |
| Slaughterhall | Halle d'abattage |
| Live animals in | Entrée des bêtes |
| Stunning and bleeding | Etourdissement et saignée |
| Skinning cradle | Chevalet de dépouillement |
| 30 cattle = 1 cradle | 30 bovins = 1 chevalet |
| 60 cattle = 2 cradles | 60 bovins = 2 chevalets |
| 100 cattle = 3 cradles | 100 bovins = 3 chevalets |
| Dispatch | Expédition |
| Pipe for cold, warm and hot water | Conduites à eau froide, chaude et surchauffée |
| Sheep and goats slaughterhall | Halle d'abattage des moutons et chèvres |
| Condemned material | Saisies |
| Meat inspector office | Bureau de l'inspecteur des viandes |
| Legend : | Légende : |
| Same as Fig. 25 | Voir Fig. 25 |
| Indication of piping | Représentation de la tuyauterie |

FIG. 27
| Pump for domestic cold water supply | Pompe élevatrice |
| Measurements in millimetres | Mesures è millimàtres |
| For details see Fig. … | Voir détails à la Fig. … |
| Front view | Vue de face |
| Sump | Puisard |
| Bottom | Fond |
| Cold water storage tank | Citerne à eau froide |
| Pipe | Tuyau |
| Tank Depth | Profondeur |
| Door | Acces |
| Deck | Plafond |
| Alternative route to water tower | Autre ligne vers le chateau d'eau |
| To water tower | Vers le château d'eau |

FIG. 28
| Details of pump for domestic cold water supply | Détails de la pompe élévatrice |
| Measurements in millimetres | Mesures en millimètres |
| For front view, see Fig. 27 | Pour la vue de face se reporter à la |
| Fig.27 | |
| Iron plate | Tôle |
| … axle journal | Tourillon … |
| … pipe | Tuyau … |
| Flat iron bar | Barre de fer plate |
| Bolt | Boulon |
| Round iron | Fer rond |
| Rubber sheet | Feuille de caoutchouc |
| Hole | Trou |
| Fillet weld | Soudure d'angle |
| Stud bold | Boulon |
| Motorcar tyre | Pneu auto |
| Rubber packing | Garniture caoutchouc |
| Pipe sleeve concrete in | Enveloppe métal, remplissage béton |
| Recess … | Niche … |

FIG. 29
| Cattle, sheep and goats slaughterhouse | Abattoir à bovins, ovins et caprins avec |
| including chilling and freezing room | chambre froide et chambre de congélation |
| Measurements in centimetres | Mesures en cenèmètres |
| Elevation | Elévation |
| Cloak room | Vestiaire |
| Entrance | Entrée |
| Tripery | Boyauderie |
| Manure | “Fumier” |
| Manure wagon | Chariot à “fumier” |
| Edible offal | Abats comestibles |
| Freezer | Congélateur |
| Boiler room | Chaufferie |
| Slaughterhall | Halle d'abattage |
| Beef chill room | Chambre froide (bovins) |
| Scale | Bascule |
| Live animals in | Entrée des animaux |
| Stunning and bleeding area | Aire d'étourdissement et saignée |
| Blood tank | Cuve à sang |
| Skinning cradle | Chevalet de dépouillement |
| Dispatch | Expédition |
| Skins | Peaux |
| Sheep and goats slaughter hall | Halle d'abattage des ovins et caprins |
| Condemned material | Saisies |
| Meat inspector office | Bureau de l'inspection des viandes |
| Compressor room | Salle des compresseurs |

FIG. 30
| Elevation and Section cattle, sheep and goats | Elévation et coupe, abattoir à bovins, |
| slaughterhouse including chilling and | ovins et caprins avec chambre froide |
| freezing room | et chambre de congélation |
| Measurements in centimetres | Mesures en centimètres |
| End elevation | Elévation, arrière du bâtiment |
| Cattle entrance elevation | Elévation, côté entrée des animaux |
| Wash tub | Lavabo |
| Shower | Douche |
| Boiler room | Chaufferie |
| Stunning and bleeding | Etourdissement et saignée |
| Blood tank | Cuve à sang |
| Skins | Peaux |
| Tripery | Boyauderie |
| Animals in | Entrée des bêtes |
| Entrance | Entrée |
| Removing feet and flaying | Sectionnement des pieds et écorchage |
| Skinning cradle | Chevalet de dépouillement |
| Clean meat | Viande “propre” |
| Washing | Lavage |
| Ceiling height | Hauteur de plafond |
| Freezer | Chambre froide |
| Evisceration | Eviscération |
| Dressed carcasses out | Carcasses habillées |
| Dispatch | Expédition |
| Slaughter hall | Hall d'abattage |

FIG. 31
| Slaughter - Slab | Poste d'abattage |
| Elevation | Elévation |
| Measurements in centimetres | Mesures en centimètres |
| Dispatch | Expédition |
| Slaughter hall | Halle d'abattage |
| Skins | Peaux |
| Hanging rail | Rail aérien |
| Tripery | Boyauderie |
| Skinning cradle | Chevalet de dépouillement |
| Sheep and goats slaughter hall | Halle d'abattage ovins et bovins |
| Condemned material | Saisies |
| Manure | “Fumier” |
| Entrance | Entrée |
| Stunning - Bleeding | Etourdissement - Saignée |
| Live animals in | Entrée des bêtes |
| Blood tank | Cuve à sang |

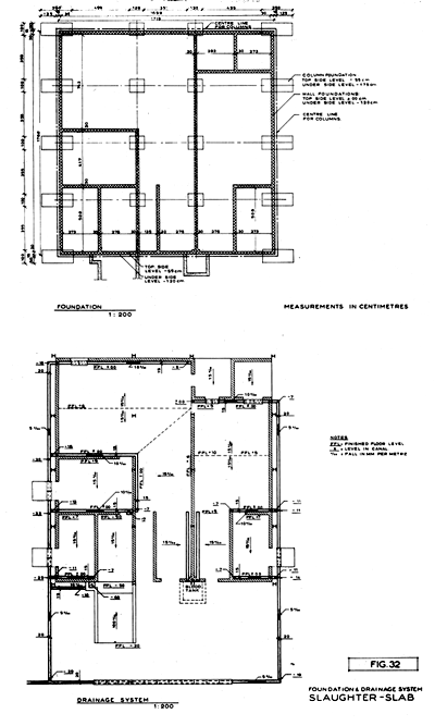
FIG. 32
| Foundation and Drainage system | Foundations et égouts |
| Slaughter-slab | Poste d'abattage |
| Drainage system | Réseau d'égouts |
| Blood tank | Cuve à sang |
| Notes | Notes |
| FFL = Finished floor level | FFL = niveau plancher fini |
| X = Level in canal | X = niveau rigole |
| 0/00= Fall in mm. per metre | 0/00= déclivité en mm. par mètre |
| Foundation | Foundations |
| Measurements in centimetres | Mesures en centimètres |
| Top-side level … | Niveau du sommet … |
| Under-side level … | Niveau de la base … |
| Column foundation : | Foundation des piliers : |
| Wall foundations : | Foundations des murs |
| Centre line for columns | Ligne centrale des piliers |

FIG. 33
| Slaughter - slab | Poste d'abattage |
| Measurements in millimetres | Mesures en millimètres |
| Supporting structure … | Charpente … |
| Angle … | Cornière … |
| Bolt … in rafter and … in plate | Boulons … dans chevron et … dans |
| sablière | |
| Plate … fastened to column with … bolts … | Plaque … fixée au pilier par … boulons … |
| … bolt washer … | Rondelle de boulon … |
| Column | Pilier |
| Column plate in relation to the fastening | Pour la fixation de la plaque |
| See detail A | Voir détail A |
| Column … with plate … fillet weld | Pilier …, plaque …, soudure d'angle |
| Fastening with … bolts | Fixation par … boulons … |
| Plate … Fillet weld … | Plaque … soudure d'angle … |
| Level … | Cote … |
| UC = Universal columns | UC = colonnes universelles |
| Rafter … | Chevron … |
| … Splice plates … | … plaques … |
| Washers … | Rondelles … |
| Column height | Pilier hauteur |
| Plate … bolted to column with … bolts | Plaque … fixée au pilier par boulons … |
| Column socket should be concreted after the | Bétonner l'alvéole après fixation du |
| column is fixed | pilier |
| Ground level | Niveau du sol |
| Extra … stirrup reinforcement for the | … étriers … pour renforcer le pilier |
| column embedded in the foundation | encastré dans la fondation |
| Foundation | Foundation |
| Reinforcement U - stirrup … | Renfort par … étriers … |

FIG. 34
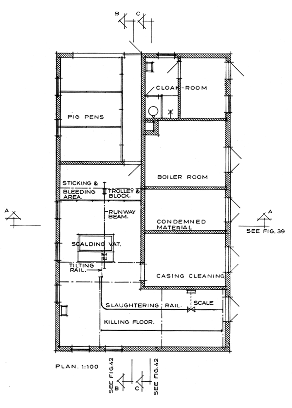
| Pig slaughterhouse | Abattoir à porcs |
| See Fig. … | Voir Fig. … |
| Killing floor | Aire d'abattage |
| Scale | Bascule |
| Slaughtering rail | Rail d'habillage |
| Casing cleaning | Boyanderie |
| Tilting rail | Rail basculant |
| Scalding vat | Cuve d'échaudage |
| Runway beam | Poutrelle de roulement |
| Condemned material | Saisies |
| Boiler room | Chaufferie |
| Trolley and block | Treuil et chariot baladeur |
| Sticking and bleeding area | Aire d'égorgement et de saignée |
| Pig pens | Loges à porcs |
| Cloak room | Vestiaire |

FIG. 35
| Side elevations | Elevations latérales |
| Pig slaughterhouse | Abattoir à porcs |
| Elevation | Elevation |

FIG. 36
| End elevation | Elevation face et arrière |
| Pig slaughterhouse | Abattoir à porcs |
| Pig entrance elevation … | Elevation, coté entrée des animaux |
| Elevation … | Elevation, arrière du bátiment |

FIG. 37
| Pig Slaughterhouse | Abattoir à porcs |
| Measurement plan | Plan coté |
| See Fig. … | Voir Fig. … |
| (All measurements in centimetres) | (Toutes mesures en centimètres) |
| Killing floor | Aire d'abattage |
| Slaughtering rail | Rail d'habillage |
| Tilting rail | Rail basculant |
| Casing cleaning | Boyanderie |
| Scalding vat | Cuve d'echandage |
| Runway beam | Poutrelle de roulement |
| Condemned material | Saisies |
| Trolley and block | Poulie et chariot baladeur |

FIG. 38
| Drainage system | Réseau d'égouts |
| Pig slaughterhouse | Abattoir à porcs |
| Pig pens | Loges à porcs |
| Cloak - room | Vestiaire |
| Sticking and bleeding area | Aire d'étourdissement et de saignée |
| Boiler room | Chaufferie |
| Condemned material | Saisies |
| Casing cleaning | Boyauderie |
| See Fig. … | Voir Fig. … |

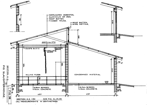
FIG. 39
| Pig slaughterhouse | Abattoir à porcs |
| Corrugated asbestos, aluminium or iron | Tôle alu ou fer ou amiante. Ciment ondulé |
| Roof batten | Lattis |
| Timber truss | Ferme de bois |
| Wire netting | Treillis métallique |
| Joists… | Poutrelles … |
| (Runway beam) | (Chemin de roulement) |
| Trolley and block | Treuil et chariot baladeur |
| Condemned material | Saisies |
| Killing floor | Aire d'abattage |
| … screed | Arasement … |
| … concrete | Béton … |
| See Fig. … | Voir Fig. … |
| All measurements in centimetres | Toutes mesures en centimètres |

FIG. 40
| Plan of timber truss | Plan de la toiture |
| Pig slaughterhouse | Abattoir à porcs |
| Wall plate | Sablière |
| Timber truss | Ferme en bois |
| Roof purlin | Panne |
| Outside rafter | Chevron extérieur |
| All measurements in centimetres | Toutes mesures en centimètres |
| Roof beam joists | Poutrelles |

FIG. 41
| Pig slaughterhouse | Abattoir à porcs |
| Detail of timber truss | Détail de la ferme |
| … bolt and 2 pieces … plate | boulon … et 2 plaques … |
| Wall plate | Sablière |
| Wall anchor | Ancre |
| All measurements in centimetres | Toutes measures en centimètres |

FIG. 42
| Pig slaughterhouse | Abattoir à porcs |
| Joists … | Poutrelles … |
| Runway beam joints… | Poutrelles de roulement… |
| Trolley and block | Treuil et chariot |
| Tilting rail | Rail basculant |
| Scalding vat | Cuve d'échaudage |
| Sticking and bleeding area | Aire d'étourdissement et de saignée |
| Pig pens | Loges à porcs |
| … pipe railing | Clôture tubulaire … |
| Killing floor | Aire d'abattage |
| See Fig. … | Voir Fig. … |
| Joints (roof beam) | Poutrelles (de toit) |
| Casing cleaning | Boyauderie |
| Condemned material | Saisies |
| Boiler room | Chaufferie |
| Cloak-room | Vestiaire |
| All measurements in centimetres | Toutes measures en centimètres |
| CH = channels | CH = fers en U |

FIG.43
| Sequence of operations in the slaughterhouse | Séquence des opérations |
| Beef slaughter diagrammatic representation | Représentation schématique de l'abattage des bovins |
| Skinning cradle See Fig. … | Chevalet de dépouillement Voir Fig. … |
| Equipment for slaughtering | Matériel d'abattage |
| Beef spreader and hooks | Ecarteur et crochets |
| Landing section - guide plate | Plaque de guidage |
| Single rail - flat iron bar track | Monorail |
| Trolley | Chariot baladeur |
| Beam | Poutrelle |
| Track hanger | Suspension du monorail |
| Wall hoist | Treuil d'applique |
| Sequence of operations | Séquence des opérations |
| Diagrammatic representation … | Représentation Schématique… |
| Removing feet and flaying | Sectionnement des pieds et écorchage |
| Hide | Peau |

FIG. 44
| Skinning cradle | Chevalet de dépouillement |
| Stainless steel plate … | Tôle d'acier inoxydable… |
| Closed with an endplate | Plaque de fermeture en bout |
| Shut | Obturation |
| Measurements in millimetres | Mesures en millimètres |

FIG. 45
| Dressing cradle for small animals | Chevalet de dépouillement pour petits animaux |
| Galvanized wood screws | Vis à bois galvanisées |
| Front view | Vue de face |
| Measurements in centimetres | Mesures en centimètres |

FIG. 46
| Single rail beef lander | Monorail pour bovins |
| Perspective view | Vue en perspective |
| Beam | Poutrelle |
| Rail hanger | Attache du rail |
| Centre of track | Centre de la voie |
| Welding | Soudure |
| Flat iron bar track | Monorail |
| Trolley | Chariot |
| Measurements in millimetres | Mesures en millimètres |
| Channels beam | Poutrelle profilée |
| Equipment for slaughtering | Matériel d'abattage |
| Beef spreader and hooks | Ecarteur et crochets |
| Landing section guide plate | Plaque de guidage |
| Wall hoist | Treuil d'applique |

FIG. 47
| Beef spreader and hooks | Ecarteur et crochets |
| Beef spreader made of heavy steel plate | Ecarteur en grosse tôle d'acier |
| with both forged steel hooks parallel to | Crochets en acier forgé |
| frame to deposit beef on a single rail | Dépose sur monorail |
| Flat iron bar track | Monorail |
| El evation | El évation |
| Measurement in millimetres | Mesures en millimètres |
| Trolley See Fig. … | Chariot Voir Fig. … |
| Landing section guide plate | Plaque de guidage |

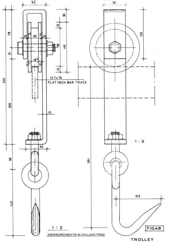
FIG. 48
| Trolley | Chariot baladeur |
| Flat iron bar track… | Monorail … |
| Measurements in millimetres | Mesures en millimètres |

FIG. 49
| Round bar overhead rail for pigs, small | Rail aérien tubulaire pour porcins, |
| animals and offal | petits animaux et abats |
| Measurements in millimetres | Mesures en millimètres |

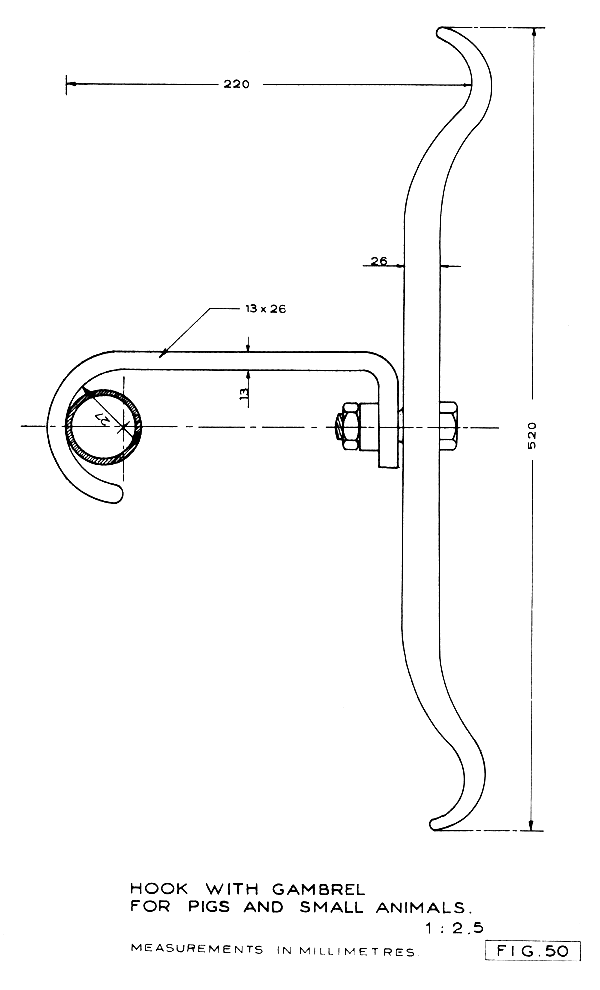
FIG. 50
| Hook with gambrel for pigs and small animals | Crochet et jambier pour porcins et petits animaux |
| Measurements in millimetres | Mesures en millimètres |

FIG. 51
| Hook with chain for pigs in the sticking area | Crochet à chaîne pour porcins à égorger |
| Measurements in millimetres | Mesures en millimètres |

FIG. 52
| Hook with meat hook for pigs and small animals | Croc à viande pour porcins et petits |
| animaux | |
| Measurements in millimetres | Mesures en millimètres |

FIG. 53
| Meat hook for offal etc | Croc à viande pour abats etc. |
| Measurements in millimetres | Measures en millimètres |

FIG. 54
| Sterilizer | Autoclave |
| Measurements in millimetres | Measures en millimètres |
| Basin of … stainless steel | Cuve en acier inoxydable … |
| … galvanized drain pipe | Tuyau d'écoulement …, acier galvanisé |
| Pipe holder | Fixation |
| Drain | Egout |
| Hot water pipe | Tuyau d'eau chaude |
| Valve | Soupape |
| … copper tube | Tube de cuivre … |
| Front view | Vue de face |
| Carrying frame of … galvanized pipe | Berceau en tube d'acier galvanisé … |
| Cone of … stainless steel | Cône d'acier inoxydable … |
| Fillet weld | Soudure d'angle |
| Pipe of stainless steel | Tuyau d'acier inoxydable |
| Outer diam: … | Diam. ext. : … |
| Inner diam : … | Diam. int. … |
| Strap of … | Bride d'acier inoxydable de … de diam. |
| Stainless steel | Acier inoxydable |
| Basin wall | Paroi de la cuvette |
| Basin bottom | Fond de cuvette |
| Ground conical to match | Ajustage conique à la pièce correspondante |
| Galvanized pipe socket | Collier galvanisé |
| … galvanized pipe | Tuyau galvanisé |
| Radius - | Rayon - |

FIG. 55
| Details of boilerroom and fuel oil tank | Détails de la chaufferie et de la citerne à mazout |
| Cattle, sheep and goats slaughterhouse | Abattoir à bovins, ovins et caprins |
| Measurements in centimetres | Measures en centimètres |
| … screw | Vis … |
| Vent pipe | Conduit d'air |
| … band iron two pieces | 2 feuillards … |
| Expansion tank | Vase d'expansion |
| Roofing | Couverture |
| Rafter | Chevron |
| Chimney | Cheminée |
| … angle | Cornière … |
| Fillet weld | Soudure d'angle |
| Wire | Fil métallique |
| Iron band | Bague de fer |
| Pipe sleeves | Fourreaux |
| Valve | Soupape |
| Check valve | Soupape de retenue |
| Pipe holder | Fixation du tuyau |
| Tap | Robinet |
| Domestic warm water heater | Réchauffeur d'eau |
| … angle two pieces welded to column | 2 cornières … soudées à la colonne |
| Oil burner | Brûleur à mazout |
| Boiler | Chaudière |
| Damper | Registre |
| … pipe column two pieces | 2 colonnes … |
| Concrete foot | Socle de béton |
| Cleaning out door | Porte de nettoyage |
| Flue duct | Tuyau de cheminée |
| Cleaning out door and explosion door | Porte de nettoyage et porte de sécurité |
| From water tower or public cold water | Arrivée d'eau directe ou par le château |
| supply | d'eau |
| Filling connection | Manche de remplissage |
| Dip stick hatch | Trou de jauge |
| Front view | Vue de face |
| Fuel oil storage tank | Citerne à mazout |
| Legend : | Légende : |
| BWF (BWR) Boiler water flow (return) | Sortie (retour) d'eau de (à) la chaudière |
| CES (CWT) Cold water supply (tap) | Distribution (robinet) d'eau froide |
| EP Expansion pipe | Tuyau de détente |
| FOF (FOR) Fuel oil flow (return) | Amenée (retour) de mazout au brûleur (citerne) |
| HWC (HWS) Hot water circulation (supply) | Circulation (distribution) d'eau surchauffée |
| OF Overflow pipe | Conduit de trop-plein |
| WWS Warm water supply | Distribution d'eau chaude |
| Channel … | Fer … |
| bolt - two pieces | Deux boulons |
| Concrete foundation | Foundation de béton |

FIG. 56
| Pipe hanger | Suspension de la tubulure |
| Measurements in millimetres | Mesures en millimètres |
| Angle iron | Cornière |
| … hole | Trou … |
| Alternative hanging | Modèles de suspension |
| … ring screw for timber or expansion | Piton … |
| bolt | |
| Steet strap | Bride d'acier |
| … iron band | Baguer de fer … |
| … bolt | Boulon … |
| Pipe | Tuyau |

FIG. 57
| Structural design | Constructions métalliques |
| Plan of track hangers for steel beams and bar tracking | Plan de réseau aérien |
| Measurements in centimetres | Mesures en centimètres |
| Structural design | Ossature métallique |
| Structural steel beams | Poutrelles d'acier |
| Single or flat iron bar overhead rail | Rail aérien plat (monorail) |
| Round bar overhead rail for small | Rail aérien tubulaire poru petits |
| animals and offal | animaux et abats |
| Hoist block and tackle | Treuil |
| Trolley | Chariot baladeur |
| Meat hook | Croc à viande |
| Perspective view of bar tracking | Vue perspective du réseau aérien |

FIG. 58
| Structural design | Construction métallique |
| Perspective view | Perspective |
| Structural system | Charpente métallique |
| … column | Pilier … |
| Bolts | Boulons |
| Closed with an end plate | Plaque d'obturation |
| Welding | Soudure |
| Hoist block and tackle | Treuil |
| Measurements in centimetres | Mesures en centimètres |
| Composite section | Coupe composite |
| Flat iron bar track | Monorail |
| Universal beams | Poutrelles universelles |
| Plate | Plaque |
| Anchor bolt … | Boulon d'ancrage … |
| Anchorage in the wall | Ancrage mural |
| Flat iron bar track | Monorail |
