Sheep housing and other facilities such as feed storage, feeders and waterers, lambing pens, creeps, etc., are important factors in protecting animals, feed and equipment, saving labour and aiding in effective management. In planning a sheep breeding/fattening operation decisions have to be made depending on the production system to be adopted, the size of the operation, the housing and feeding system, environmental conditions and the location. The cost of housing must be kept low, with buildings providing only the most essential facilities. Sheep housing should retain the flexibility of internal subdivisions in order to make more intensive use of the buildings.
The location where the farm buildings are to be constructed must fulfil the following conditions: 1) it should be on land that is not suitable for crop production; 2) buildings should be located in such a direction that animals would be protected from prevailing winds (usually from a south-easterly direction); 3) the land should be at a slope away from the buildings (3-4 percent); 4) water supply should be adequate in quantity and quality; 5) the farm should be accessible from a main traffic road; 6) electricity should be available for yard lights and other electrical conveniences.
Open front barns with open yards providing adequate shelter for protection from heat and rains are the most suitable. The roof shape should be of the shed type (Figure 1) sloping toward the open yard. The roof should be constructed from galvanized corrugated sheets placed on a wooden frame, but preferably on mild steel tubes. Galvanized iron poles should be used to hold the roof. The roof may be insulated with materials such as polyurethane providing protection from high temperatures. The height of the ceiling should be about 3 metres at the lowest point of the slope to 3.5 metres at the highest point at the back of the shelter. Cement blocks should be used to build the three wall sides (15 cm wide) . The water from the roof should be collected in a concrete gutter on the ground and directed out of the yard. Fenceline feeding bunks should be constructed on the two sides of the open yard or under the sheltered area. The front side should be fenced and a door constructed in the middle (3m x 1.2m) for tractor access. Lighting should be provided by a 100 watt electric lamp for each 40 square metres area.
Figure 1 -Types of roof shape.
The barn floor should be solid,sloping (2 percent) toward the open front. It may be constructed from crushed limestone or a mixture of sand, gravel and compacted clay (5-10 cm deep). Along the open front and the yard a concrete apron (25 cm width) should be constructed sloping to a ditch of 10-15 cm. The surface of the yard should be compact and well drained.
A slatted floor may be used for large lamb fattening units. It has certain advantages (no bedding, less labour, reduction of space requirements per animal, a dry, clean floor, better control of parasites and more comfort in hot weather) but also certain disadvantages (temporary lameness, shortage of feeder space and more expensive to construct). Slatted floors are constructed from galvanized steel mesh with openings of 0.8 cm x 5.5 cm.
The following sheltered floor space per animal is recommended:
|
- |
Adult dry ewes or rams 1.0- 1.2 square metres (m2) |
|
- |
Pregnant ewes 1.2 m2 |
|
- |
Ewes with one lamb 1.8 m2 |
- |
Ewes with two lambs 2.2 m |
|
- |
Ewe lambs (replacements) 0.7 m2 |
|
- |
Artificially reared lambs as a group 0.3 m2/lamb |
|
- |
Fattening lambs 0.6 - 0.8 m2 /lamb |
|
- |
Feeder lambs (older lambs) 0.8 - 1.2 m2/lamb |
The space per animal in the open yard should be about twice the above recommended figures.
Ventilation is of paramount importance. It is a continuous process to remove moisture from inside the building, to provide fresh air for animals, to remove excess heat in hot weather and odour and gases from animal waste. The aim should be free circulation of air above the animals' heads. Air movement is controlled through fixed openings (open front) and a continuous slot (10-15 cm) at the top of the back wall, or adjustable openings (windows and wall panels on the back wall).
The common practice is to handle manure as a solid which involves scraping, loading and hauling. The design of the buildings should be such that a tractor and scraper have easy access for manure removal. The manure is placed either directly in the field or is stockpiled. Manure, urine and water runoff are first collected through small ditches into a settling tank, where solids settle and liquids are diverted to a holding pond for field spreading. Solids from the basin are removed as required. The holding pond is emptied as required and the effluent may be used for irrigation.
The type of facilities for feed handling depends on the size of the unit and whether feed ingredients are purchased and rations prepared at the farm,or. compound feeds are purchased regularly.
Storage sheds should be built for roughages like hay, straw or alfalfa (Photograph 1) when they are available for use later in the year. Storage sheds (Figure 2) should be constructed with galvanized iron pipes and galvanized corrugated sheets and the frame made from mild steel tubes. The quantities to be stored depend on the number of animals and the feeding programme. The volumes required per ton of alfalfa hay, non-legume hay and straw, when stored loose, baled or chopped, are indicated below.
1. Storage shed for hay
Figure 2 - Hay storage shed. Dimensions depend on the quantity of hay to be stored.
| Loose | Baled | Chopped | ||||
| m3/ton | Kg/m3 | m3/ton | Kg/m3 | m3/ton | Kg/m3 | |
| Alfalfa hay | 13-14 | 70-65 | 6-9 | 160-95 | 8-10 | 110-80 (cut 4 cm) |
| Non-legume hay | 13-17 | 70-55 | 7-9 | 130-95 | 8.5-11 | 105-80 (cut 8 cm) |
| Straw | 19-28 | 48-30 | 11-14 | 80-65 | 7-10 | 130-15 |
Feed stores should be built from cement blocks near the barns for purchased compound feeds. When feed rations are prepared at the farm the ingredients are stored in a building with the necessary equipment for metering, elevating, grinding, mixing and delivering feeds to metal or fibre glass bins. The handling system may be a bulk bin from which the feed can be augered to self-feeders or feed may be fed by hand. Pellets can be purchased in bags or in bulk and stored in a bin from which they can be3 augered to self-feeders or hand fed. Stored concentrates require a volume of about 1.5 m3 per ton.
Feeding facilities should be planned to prevent contamination and to allow for frequent cleaning. Sheep should be fed only in troughs or from feed racks which should be constructed.so that the animals cannot stand in the feed and contaminate it with droppings.
Feeding space per sheep is determined by the size of the sheep and the number of sheep that eat at one time. For adult sheep hay and grain bunkspace is 30-45 cm/sheep and 25-35 cm for older lambs. In self-feeding systems about 4 cm for creep-feeding lambs, 6 cm for weaned lambs and 10 cm for older lambs should be allowed.
Plans for the fabrication of portable troughs are given in Figures 3 and 4. Photograph 3 illustrates a well-fabricated feeder for both hay and concentrates. Plans for grain and hay racks are given in Figure 5.
Figure 3 - Portable grain trough with cover. The length is variable. Cover is optional. Small quantities of hay can also be fed.
Figure 4 - Portable grain and hay feeder. Hay is placed on the top. It is used for small groups of ewes (see also Photograph 3).
Figure 5 - Grain and hay racks.
2. Fenceline feeding bunk and feed storage shed
3. Portable trough for roughage and concentrates
Self feeders (Figure 6) allow more efficient use of labour, the feed remains clean and there is no wastage. There is also maximum consumption of feed resulting in improved rate and efficiency of gain. Self feeders are not usually used in the case of ewes.

Figure 6 - Grain self-feeder for lambs. The length is variable. Lambs can be fed from one side(single)or both sides(double).
Various types of concrete bunks are also constructed for feeding. Bunks for mechanical feeding are often constructed on the dividing line between two lots and sheep are fed from both sides. The throat height for the bunk should be a maximum of 38 cm for ewes, 33 cm for feeder lambs and 25 cm for creep fed lambs.
Fenceline feeding bunks (Figure 7 and Photographs 2 and 4) are useful for easy delivery of feedstuffs. Feeders are constructed on the perimeter of the feeding area so that they can serve as a feeder as well as a fence. They can be used for ewe flocks or feedlot lambs. Fenceline bunks are often oriented from N-S or NE-SW with the buildings constructed at the north end.

Figure 7 - Fenceline feeding bunk. Hay and grains or complete diets can be fed. The bunks are constructed on the perimeter of the open yard or under the sheltered area (see also Photographs 2 and 4).
4. Fenceline feeding bunk
Small flocks or small groups of ewes are often hand-fed. For this purpose bunks are located in areas where they can be kept dry. The floor height of the hand-fed bunks is about 2.5-5.0 cm above the sheep's feet. Outdoor bunks may be raised to keep the sheep and dirt out of the bunks. Pavement along or around the feeders (1.5 m width) with 2.5 percent slope away from the feeders is adequate to prevent muddy conditions. Gravel or compacted clay is often used. Walkways should be provided from the barns to the feeding areas.
Creep feeding constructions (Figure 8, Photograph 5) are essential in early weaning systems to provide feed for the lambs during the nursing period.

Figure 8 - Creep feeding and partial suckling enclosure. Creep feeding starts two weeks after lambing. When partial suckling starts after the fourth week, a sliding door or a fence is used to close the creep panels and isolate the lamb's from the ewes. A similar construction without the creep panels is used for lamb-bar. Milk is placed in plastic containers outside the enclosure and suckling teats inside, connected with plastic tubing (see also Photograph 5).
5. Creep feeding and partial suckling enclosure - Creep panel closed
5. Creep feeding and partial suckling enclosure - Creep panel open
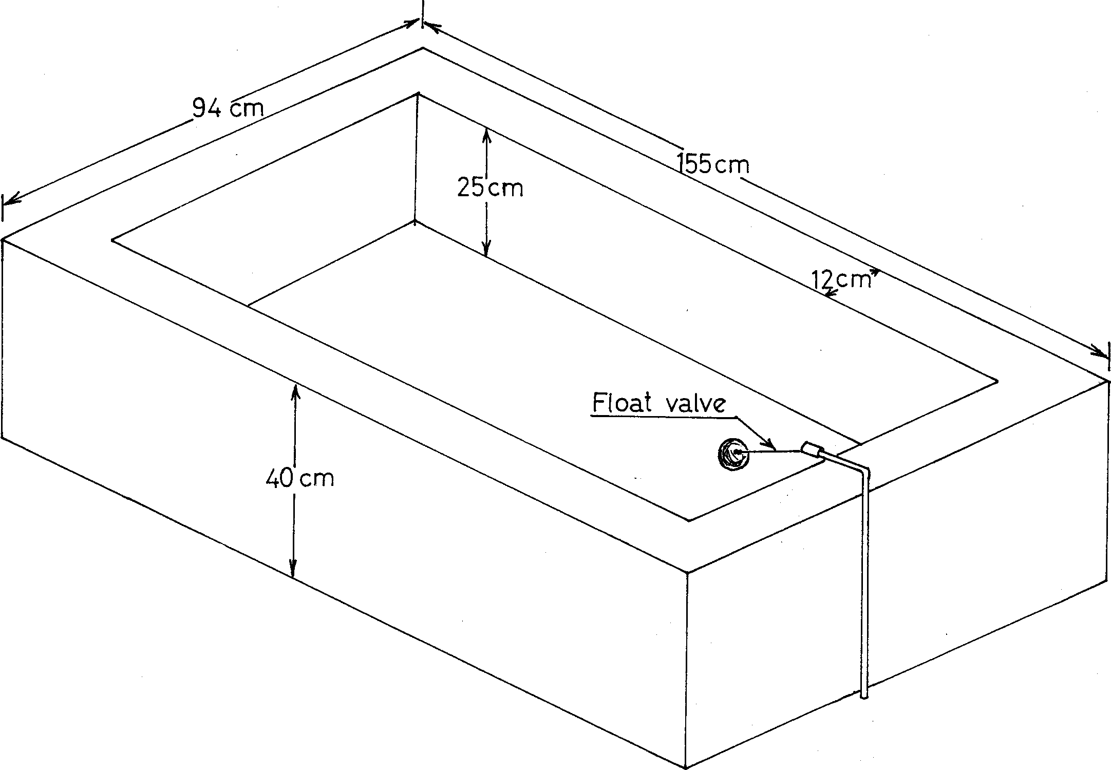
An adequate quantity of clean water should be available at all times and should not be allowed to become unreasonably warm or cold. Adequate space for drinking should be provided for all animals. Watering facilities should be properly located so that droppings cannot contaminate them and drainage should be planned so as to prevent muddy areas around them. Pavement with gravel or compacted clay, sloping away from the waterer, as for feeders, may be constructed. The tank with a float valve (Figures 9 and 10) or an automatic waterer (Figure 11) is used. The tank waterer may be constructed from concrete (Figure 9) or from cut oil drums (Figure 10). About three centimetres of tank perimeter per animal is adequate. Up to 40 sheep can be watered per automatic bowl.

Figure 9 - Concrete waterer with float valve. The length is variable.
Fencing can be used to fence areas inside and around the barns to enforce the utilization of pastures and to save labour. Electric fencing can be used successfully with grazing sheep at a much lower cost than other types of fences. A two-strand electric fence should be used, the first strand being 20 cm from the ground and the second strand 20 cm from the first strand. Boundary fence is made from galvanized chain link fencing with barbed wire on the top. The height of the galvanized chain link fencing should be 1.0-1.5 m with three strands of barbed wire on the top giving an additional height of 60 cm. All fence posts should first be set, the corner or end posts being supported on each side by another post at an angle after which the wire is fastened (Figure 12).

Figure 10 - Oil drum waterer. Float valve may beinstalled if connected to a water pipe.

Figure 11 - Automatic waterer.

Figure 12 - Fencing: corner post. With barbed wire to fence the perimeter of the barns or of the pastures. Without barbed wire for divisions inside the barn or the paddocks.
A plan for a metal gate is given in Figure 13 and a plan for sorting chutes is illustrated in Figure 14.

Figure 13 - Gate. Width of three metres for tractor access in the yards.

Figure 14 - Sorting chutes. Two way (left) or three way (right) sorting chute.
The materials to be used for the constructions depend on what is available on the market and on their price. However, the substitution of wooden materials by other materials such as galvanized iron, pipes for poles, framework from mild steel tubes, etc. is preferable since the latter last longer. Walls can be constructed from cement blocks; poles for the sheds from galvanized pipes; framework from mild steel tubes; ceiling from galvanized corrugated sheets, feeders from flat sheet steel; bars from mild round steel bars; fencing posts from angle iron or galvanized iron pipes; hurdles for subdivision or temporary constructions (lambing pens and partial suckling enclosures) from galvanized iron pipes with or without galvanized chain link fencing, and water tanks from flat sheet galvanized steel. Lead-free paint must be used in all places where sheep have access to lick or eat it.
The correct layout of the barns for ewes and fattening lambs, auxiliary buildings, temporary subdivisions (lambing pens, creep feeding facilities, partial suckling enclosure), feed and watering facilities, dipping and spraying facilities, etc., will contribute to better management, feeding and health control resulting in higher efficiency of production. The recommended layout and the type of construction are in accordance with the climatic conditions of the Near East which require protection from heat and good ventilation and with a dual purpose sheep production system. Lambs are weaned early, following a partial suckling regime for the last two weeks before weaning, and fattened to slaughter weight under a system of maximum consumption of concentrates and minimum consumption of roughage. Ewes are grazed for 2-3 hours daily and milked in a milking parlour after weaning. The use of wooden materials should be limited.
A sheep breeding/fattening unit includes the following:
- |
barn with sheltered and open area for breeding ewes with subdivisions for the weaning of lambs (lambing pens, pen(s) for artificial rearing, creep feeding area, partial suckling enclosure); |
|
- |
barn for growing and fattening lambs after weaning; |
|
- |
milking parlour; |
|
- |
pen for males; |
|
- |
isolation pen for sick animals; |
|
- |
operators room; |
|
- |
toilet; |
|
- |
hay storage shed; |
- |
store-house for concentrates; |
|
- |
fencing of the whole breeding/fattening unit. |
A farm layout for 100 ewes and 50 fattening lambs is presented in Figures 15 - 18. Female lambs selected for replacement of ewes are moved at 100 days of age from the fattening to the breeding barn. The layout for larger units can be constructed by repeating the layout of 100 ewes and 50 fattening lambs.

Figure 15 - Fattening unit for 50 lambs from weaning up to 40 kg liveweight. Sheltered area of 6m x 8m including feeding alley and feeding troughs for 50 lambs. Windows for better ventilation during hot weather. Gate three metres wide for tractor access. Feeding alley is used for sorting. Perimeter of the open yard with permanent fencing. Division between the two open yards permanent fencing or movable hurdles.

Figure 16 - Fattening unit for lots of 50 feeder lambs over 40 kg liveweight. Sheltered area 8m x 8m for 50 lambs. Other details as in Figure 15.

Figure 17 - Farm layout for 100 ewes. Hay and grain bunks are used. W = Automatic waterer. Creep = Creep feeding area and partial suckling enclosure. S.P. = Starter pen. l.b. = lamb-bar. Office includes a small toilet. After lambing the area of lambing pens is used for lamb fattening after weaning. Hurdles for divisions in the barn are moved after weaning. Permanent fencing (-/-/-/-/) hurdles (-.-.-), alterations after lambing to form the fattening unit (-------).

Figure 18 - Farm layout for 100 ewes. Fenceline bunk is used. Other details as in Figure 17.
Plans for the construction of lambing pens, milking stands or milking parlour and dipping trench are given in the next chapter.