por
I. Salinas Arce
CIFSA-Consultores, México, D.F.
Extracto
Se describe la instalación de una granja para el cultivo del bagre de canal Ictalurus punctatus, así como los factores tomados en consideración para su construcción. Se procedió a construir estanques de tierra para la reproducción con profundidad entre 1 y 1,5 m. Los alevines son pasados después de la eclosión a piletas de 3 × 0,5 × 0,4 m recubiertas de azulejos. Para el engorde se eligió el sistema de canales con circulación de agua, que fueron construidos de tierra con un talud de 3:1 y una longitud de 62,5 m por 10 m de ancho. Se espera alcanzar una producción máxima de 14 toneladas por hectárea. Se describe también la planta de elaboración aneja a la granja.
Abstract
The set-up of a channel catfish Ictalurus punctatus farm is described and the factors taken into account for its construction are given. The reproduction ponds were excavated in the ground, the depth being between 1 and 1.5 m. After hatching, the fry are transferred to special tanks of 3 × 0.5 × 0.4 m, lined with tiles. For fattening, the raceway system was chosen and earthen raceways were built with a slope of 3:1, and of 62.5 m length and 10 m width. By this system a maximum production of 14 tons/ha/year is expected. The processing plant annexed to the farm is also described.
1. INTRODUCCION
La necesidad de resolver el problema alimenticio en todo el mundo ha provocado la creación de unidades de acuicultura, y dentro de ellas destacan las granjas para cultivos especiales como trucha, carpa, bagre, etc.
En México se inició un estudio de factibilidad técnica para la creación de una granja de cultivo de bagre de canal (Ictalurus punctatus) a partir de 1971, logrando magníficos resultados a la fecha. Las principales granjas de este cultivo se han desarrollado en los EE.UU., aloansando un auge tecnológico y científico. Dichas granjas se tomaron como modelo del cultivo, adaptando a las condiciones locales cada una de las instalaciones, reformando o cambiando donde fuera necesario, dando como resultado una granja con características propias.
El primer paso fue localizar un sitio con temperatura constante durante la mayor parte del año; después se consideró la dirección de los vientos dominantes; se realizó un estudio de mecánica de suelos para determinar las propiedades del terreno y poder diseñar la estantería, canales, etc. Además se analizó la calidad del agua, su captación, almacenamiento, distribución y desecho de la misma. Por otra parte, se analizaron otras condiciones y necesidades como la energía eléctrica, materiales y equipos, así como el personal requerido y todo aquello de índole general que requiere un proyecto de este tipo.
2. EL CICLO BIOLOGICO Y LAS INSTALACIONES
El cultivo del bagre de canal consiste en lograr que se cumpla el ciclo biológico del pez, utilizando las instalaciones que sean necesarias, las cuales dan al animal las mismas condiciones que aquellas que le brinda la naturaleza.
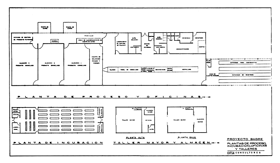
El ciclo biológico es el siguiente: La reproducción se verifica en estanques; cuando la hembra va a depositar un conjunto de huevos (freza) lo hace en el interior de una cueva, en este caso en un recipiente colocado en el talud del estanque; una vez depositada la freza, sale la hembra y penetra el macho, que fertiliza e incuba los huevos mediante movimientos de la cola, con lo cual existe una renovación constante de agua y por tanto de oxígeno sobre los huevos, y las crías nacen aproximadamente a los siete días. En la granja las frezas se depositan en la incubadora y a los siete días nacen las crías, reproduciendo lo natural en forma mecánica. Las crías en estado natural se mantienen a poca profundidad y se alimentan con plancton y pequeños organismos, mientras que en la granja las crías pasan a unas piletas en donde se les mantiene, alimentándolas artificialmente, hasta llegar a 10 cm de longitud; después se pasan a los canales de engorde hasta alcanzar su talla comercial, un año después del nacimiento. Al llegar a este tamaño, se realiza la cosecha y se mandan a la planta procesadora y congeladora.
3. ESTANQUES PARA REPRODUCCION
La reproducción se lleva a cabo en estanques de tierra, sin circulación de agua y en donde se ha logrado un medio semejante al natural, y sólo se adiciona agua para cubrir la evaporación y pequeñas filtraciones. Se eligió un terreno de lomerío con una base magnífica de tepetate arenoso con alta cantidad de arcillas, de tal modo que distribuyendo el material adecuadamente se obtuvieron estanques de magnífica calidad. El talud recomendable en estos estanques es de 2:1, colocando los nidos en este sitio a media agua; la profundidad varía de 1 a 1,5 m y el tamaño del estanque depende del número de animales reproductores.
4. INCUBADORA
La incubadora es el medio mecánico para obtener crías y consiste en una pileta con agua corriente, en donde se colocan canastillas con las frezas y una serie de paletas unidas a un eje o transmisión motriz - proporcionan el movimiento semejante al movimiento de la cola del pez. Estas incubadoras se instalan dentro de una construcción, en donde se controla el agua mediante refrigeradores y filtros, laboratorio, aire comprimido para aireación artificial, energía eléctrica, y si es necesario, clima artificial.
5. PILETAS PARA CRIAS
Después de obtenidas las crías en la incubadora se pasan a unas piletas con agua corriente, en donde se condiciona a los peces a recibir el alimento artificial. Las paredes de estas piletas y de la incubadora se recomienda que sean recubiertas de barro vítreo o de azulejos, para evitar reacciones con medicinas y desinfectantes utilizados. Las dimensiones y número de piletas dependen del número de peces con que se vaya a trabajar. En este caso se diseñaron piletas de 0,50 m de ancho, por 0,40 m de altura y 3,00 m de longitud.
6. CANALES DE ENGORDE
Para lograr un cultivo intensive del pez es necesario llevar a cabo cualquiera de los métodos, conocidos, por ejemplo en jaulas, en estanques abiertos, en estanques largos que medio funcionen como canal o bien en canales de engorde. La diferencia entre los distintos métodos estriba en la producción obtenida en cada uno, ya que para estanques abiertos y en jaulas se tiene un rendimiento de 2 000 kg/ha; en los estanques largos que medio funcionan como canal se obtienen 4 500 kg/ha y en el sistema de canales de engorde se obtienen 14 000 kg/ha después de un año. Por supuesto que el método elegido fue el de canales de engorde.
Estos canales de engorde (raceways) de alta velocidad del agua, se construyen de tierra con alto contenido de arcilla, con talud de 3:1 en los bordes para evitar que la velocidad del agua levante las partículas, con una corona del borde de 3 m para que circulen vehículos y alimentadores mecánicos. El tinante de agua es de 0,60 a 0,90 m y el espejo de agua de 10 m de ancho por 62,50 m de longitud, en cuatro tramos iguales, dando una longitud total de 250 m. Entre un tramo y otro existe un desnivel que se aprovecha para airear el agua con objeto de equilibrar el nivel de oxígeno. La velocidad del agua es decisiva para mantener el nivel de oxígeno adecuado, siendo de V = 0,015 m/s el promedio.
7. PLANTA DE PROCESADO
Los peces llegan a estanques de recepción en donde permanecen hasta que son sacados en cajas especiales en las cuales se les da un electrochoque a fin de que la sangre se acumule en la cabeza y es entonces cuando el pez se pasa a una máquina decapitadora, quedando el cuerpo sin sangre, logrando así una carne blanca. Después se pasan a otra máquina despellejadora y posteriormente a otra máquina evisceradora, quedando el cuerpo limpio, sin aletas, ni cabeza, ni piel y sin vísceras, de tal modo que solamente se pasa al congelado, glaceo y empaquetado. Esta planta es una nave industrial en donde se alojan las diferentes máquinas del proceso, cuartos de empaquetado, cuartos de congelación, servicios generales y oficinas administrativas.

