Previous Page Table of Contents


Appendix 1
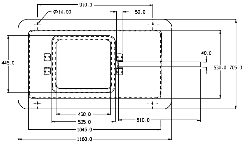
THE FISH TRANSPORT TANK

Top view
Side viewFront view

Appendix 2
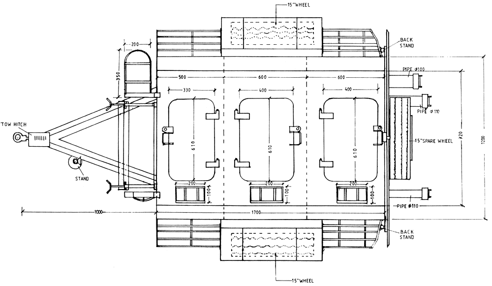
THE FISH TRANSPORT TRAILER

Top view

Side view




Back Cover

Previous Page Top of Page