Le lac Melah est une lagune côtiére d'environ 865 ha s'ouvrant sur la mer par un chenal long de 900 m. Situé à l'est d'Annaba, prés d'El - Kala, le lac reçoit outre l'eau salée, les eaux douces des oueds ER-RIK BIT, EL MELAR, EL BELAROUG et SATA.
Le cnenal reliant le lac à la mer présente les caractéristiques suivantes :
Un ensablement important réduisant la section libre du chenal. Des mesures à différents endroits ont permis de mettre en évidence des couches de vase et de sables de plus de 4 m de hauteur.
Le résultat de ce colmatage progressif du lit du chenal est la diminution des échanges lac - mer. Le plan d'eau (voir carte bathymétrique) a une profondeur moyenne de 3,5 m. La plus grande profondeur est proche de 6 m. Une plus grande superficie (environ 45% de la surface du lac.) présente des fonds de 4 m et plus.
Ces zones peuvent présenter un intérêt pour un développement aquacole : cages flottantes et conchyliculture. Les zones profondes doivent vraisemblablement servir de poche de décantation aux matiéres en suspension et donc se colmater progressivement. Les échanges d'eau à ces niveaux doivent être restreints ce qui doit à peu transformer ces zones profondes en zones anoxiques.
• TEMPERATURE:
Elle évolue parallélement à celle de la mer. La température minimale est de l'ordre de 10°C en hiver et de l'ordre de 27 – 28°C en été.
• SALINITE:
Directement liée aux échanges lac - mer et aux précipitations, elle semble évoluer d'un minimum (22 à 23 pour mille) finMai à un maximum (33 à 35 pour mille) fine Septembre.
Le fond du lac, au Sud, plus directement sur l'influence des oueds, peut voir sa salinité s'abaisser fortement lors des crus importants
• (PH) : peu de variations (7,9 à 8,1)
• OXYGENE DISSOUS:
En général, la teneur en oxygéne dissous varie de 6 à 8 ppm. Mains il faut remarquer que la décomposition de la matiére organique au niveau du fond qui consomme beaucoup d' oxygéne, rend les eaux de ces zones profondes trés pauvres en oxygéne dissous, si les eaux du fond sont peu de pas renouvelées comme cela semble se passer dans les zones profondes du lac.
En effet, ce phénoméne se vérifie si l'on effectue des mesures d'oxygéne dissous à différentes profondeurs. Au niveau de la cuvette centrale du lac, où l'on a une profondeur maximale, la teneur de l'eau en oxygéne dissous est trés faible (0,5 ppm) à 0,5.1m du fond vaseux (com.pers Guelorget X imenes). Cette situation se retrouve sur ne grande surface du lac où le dépôt vaseux est important.

FIGURE 1 : Relevé bathymétrique sommaire effectué au sondeur enregistreur sur le lac Melah le 5/5/1980, à partir d'un repère de zéro marqué sur l'appontement de la base Enapêche.
SOURCE : Les potentialités de l'aquaculture en Algérie - Rapport Final France Aquaculture - SEPTA (1982).
Il est absolument indispensable d'effectuer des mesures de températures, de salinité et d'oxygéne dissous de fačon régulière. Ces paramétres sont trés utiles en conchyliculture et pisciculture intensive en cages flottantes.
L'équipe ENAPECHE - lac Melah devrait pouvoir effectuer ces mesures sans difficultés puisqu'elle dispose du matériel nécessaire.
Dans le cadre d'un développement de l'exploitation aquacole du lac comprenant d'une part la réorganisation de la pêche et de la conchyliculture et d'autre part la création d'un élevage intensif de loups et de dorades en cages flottantes, nous avons proposé différents modéles de cages adaptées au lac Melah et en utilisant le plus possible les matériaux locaux.
Cet élevage se ferait dans un premier temps à échelle afin que l'équipe de l'ENAPECHE lac - Melah acquiert le savoir-faire nécessaire à un élevage ultérieur de plus grande capacité.
An vu des conditions du milieu (renouvelement de l'eau) et de l'implantation des bâtiments à proximité de la bordigue, il serait souhaitable d'installer les cages flottantes dans la partie nord du lac à proximité du chenal ou dans la baie située de l'autre côté de la presqu'île dans une zone où la profondeur de l'eau varie entre 3 et 4 m. Il existe acutuellement à ces endroits des tables de concyliculture. La proximité des locaux est indispensable afin d'éviter de faire des trajets trop immportants entre le lieu de stockage des aliments et les cages flottantes aux moments du nourrissage gui doit se faire 2 à 3 fois par jour.
Durant le séjour trés bref en Algérie à EL KALA, on a confectionné une cage avec des matériaux trouvés sur place. Le but de cette opération est de montrer à l'équipe ENAPECHE - Lac - Melah comment réaliser un cadre flottant et une poche en filet. Dans l'immédiat, cette cage pourrait être utilisée pour stocker des géniteurs pêchés dans la bordigue ou dans le lac en attendant d'avoir des alevins de taille suffisante pour être mis en cage.
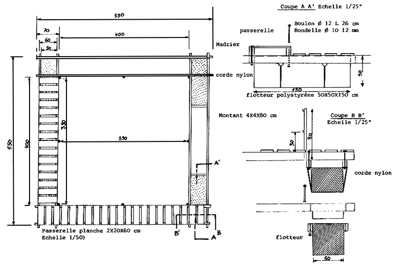
Le cadre flottant soutenant la cage (poche de filet) est constitué par des madriers de section 7 × 12 CM et des chevrons de 7 × 7 CM trouvés sur place (pin).
L'assemblage des madriers est réalisé à des cornières (4 × 40 mm) à chaque coin ainsi que pour les chevrons sur les madriers (voir figure 2).
Les flotteurs sont des fûts en plastique de 601 trouvés sur place. Ils sont fixés sur le cadre en bois à bois l'aide de corde nylon ou en polypoyléne (figure 2).
Nous avons utilisé, pour confectionner la poche, une nappe de filet pour ailes de capéchade disponible à l'ENAPECHE EL KALA.
Les caractéristiques de la nappe de filet sont les suivantes :
- Maille 14 mm; fil tréssé noir à 4 brins
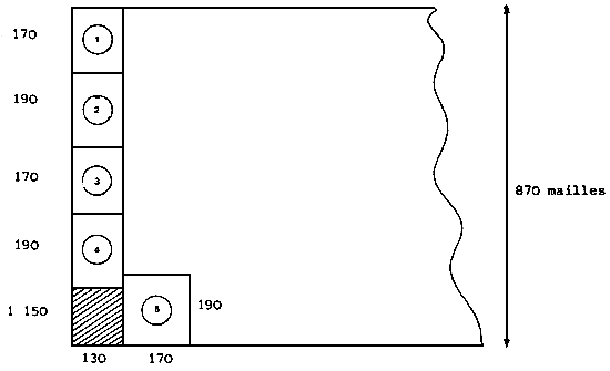
- Hauteur de la nappe : ±870 mailles.
Comme le montage se fait à 71% (nappe de filet de 100 mailles étirées montée sur une relinque de 71 m;, les mailles de filet ont une forme carrée dont les dimensions sont les suivantes :
- Côté = c = 14 mm
- Diagonales = d=cV2 = 19,8 mm.
Les dimensions de la poche de filet étant de 3,40 × 3,80 × 2,60 m., Le nombre de mailles de filet sur chaque côté est :
- Côté 3,40 m (contre sens du filet)
nombre de mailles=
= environ 170 mailles
- Côté 3,80 m (contre sent du filet)
nombre de mailles =
= environ 190 mailles
- Hauteur 2,60 m (sens filet)
nombre de mailles =
= environ 130 mailles
La découpe de la nappe de filet se fait selon la figure 3.
Le montage du filet sur les ralingues Ø 5 mm en nylon ou polyéthyléne avec du fil
210/18se fait de la maniére suivante :
| - Côté 3,40 m: armement: | 34 fois 10 cm avec 5 mailles |
| - Côté 3,80 m : … | 38 " |
| - Hauteur 2,60 m : " | 26 " |
On entend par armement, une portion déterminée de la relingue devant soutenir un certain nombre de mailles à l' aide d'un fil de même grosseur au minimum que le filet et que l'on attache sur la ralingue (figure 5).
Les ralingues sont montées sur les bords supérieurs et inférieurs du filet ainsi qu'aux 4 coins de la poche. La ralingue verticale des 4 coins de la cage doit dépasser le fond de 50 cm afin de pouvoir accrocher un poids mort d'environ 5 kg, (bloc en béton, cailloux…) pour maintenir le filet ouvert et tendu. On peut éventuellement mettre un cadre en PVC Ø 50 m des dimensions intérieures de la poche qui repose sur le fond.
Une fois la cage complétement terminée (cadre en bois et poche de filet montée) elle est installée à proximité des tables conchylicoles dans une zone profonde de 3 à 3,50 m afin de laisser une tranche d'eau libre d'eau libre d'un mètre sous la cage (figure 4). Le cadre flottant est immobilise à la surface de l'eau grâce à l immersion de 2 à 4 corps morts (pneus remplis de béton, blocs en béton…)., Entre le corps mort et la corde reliant au cadre flottant, on intercale une grosse chaîne d'une longueur d'un mètre afin que celle-ci serve de contre-poids lors de la montée et descente du cadre au moment des marées.
Echelle : 1/25° FIGURE 2 : Cage réalisée au lac MELAH

FIGURE 3:
Découpe de la nappe de filet et montage de la poche
Caractéristiques de la nappe : Maille 14 mm ; fil tréssé noir 4 brins
Hauteur : 870 mailles
Dimensions de la poche : 3,40 × 3,80 × 2,60 m
Montage : - 71%
| Maille carrée | diagonale : 19,8 | ||
| (14 ×√2) | |||
| Nombre de mailles : | Côté 3,40 m | 170 mailles | |
| Côté 3,80 m | 190 mailles | ||
| hauteur 2,60 m | 130 mailles | ||
DECOUPE DE LA NAPPE

| Montage de la poche: | Montage sur la ralingue Ø 5 mm avec fil 210/12 |
![]() | |
| côté 3,40 m -170 mailles 34 armements de 10 cm avec 5 mailles Côté 3,80 m – 190 mailles 38 armements de 10 cm avec 5 mailles hauteur 2,60 m–130 mailles 26 armements de 10 cm avec 5 mailles | |
FIGURE 4 : Installation de la cage sur le lac - coupe transversale


FIG 5 Fixations
Vu les conditions particulières du lac Melah (renouvelement faible de l'eau, dépôt de vase), il serait préférable d'installer des cages isolées à différents endroits du lac plutôt que d'installer un ponton fixe et une batterie de cages tout autour de celui-ci. Cela permet de déplaceraisément une cage lorsque les conditions deviennent défavorables à un élevage intensif en cage flottante.
De plus, vu l'importance des salisures dans le lac, il faudrait changer le filet de la cage assez réquliérement (tous les 15 jours) pour permettre une libre circulation de l'eau du travers des mailles du filet. Le filet“sale” serait nettoyé et séché afin de pouvoir le réutiliserpar la suite. A cet effet, il faudrait prévoir un filet supplémentaire pour deux cages, c'est à dire que pour 2 cages, il faut 3 poches de filet. La procédure détaillée du changement de filet se trouve à la figure 24.
Le cadre flottant soutenant la poche de filet est constitué par une armature de madriers en bois rouge de 5 × 15 cm ou en bois blanc de 6,5 × 10 cm suivant la disponibilité sur le marché d'ANNABA. Les madriers du cadre sont maintenus entre eux à l'aide de boulons de Ø 12 mm et de longueur 22 ou 32 cm suivant le type de madriers utilisé (5 × 15 ou6,5 × 10 cm). Les madriers sont montés les uns sur les autres et non assemblés par mortaises, ce qui permet une plus grande solidité.
Il est prévu d'installer une passerelle en planches (2 × 20 × 65 cm) tout autour de la cage à l'extérieur de la poche en filet.
Les flotteurs sont constitués:
- soit par des feuilles de polystyréne expansé aux dimensions voulues et empilées afin d'obtenir un flotteur de dimensions 50 × 50 × 150 cm qui est ensuite entouré de fibre de verre et de résine.
- soit par des fûts métalliques vides de 200 l enduits au goudron pour éviter une corrosion trop rapide.
Il semble difficile de se procurer des fûts plastiques provenant d'usines textiles ou autres sociétés utilisant des produits chimiques.
Les modéles de cadres flottants proposés seraient les suivants:
- un cadre en bois avec une seule poche de filet
- un cadre en bois avec deux poches de filet.
Les deux modéles de cadres flottants en bois sont repris aux figures 6 et 7. Dans les 2 cas les flotteurs utilisés sont en polystyréne expansé entouré de fibre de verre de 50 × 50 × 150 cm. Dans le cas éventuel où il ne serait' pas possible de se procurer du polystyréne, il suffit d'utiliser des fûts métalliques de 2001 et de les installer sur le cadre de la même manière sans modifier les dimensions des cadres. Les flotteurs (polystyréne ou fût métallique) sont attachés au cadre à l'aide de corde nylon de polyéthyléne Ø5 mm comme indiqué sur les figures 6 et 7. Le filet est maintenu sur le cadre grâce à des montants munis de crochets à crochets à une hauteur de 30 cm du cadre ce qui fait sortir le filet d'environ 50 cm hors de l'eau.
FIGURE 6: Premier modéle de cadre flottant Echelle 1/50°

FIGURE 7: Deuxième modéle de cadre flottant
Echelle 1/50°

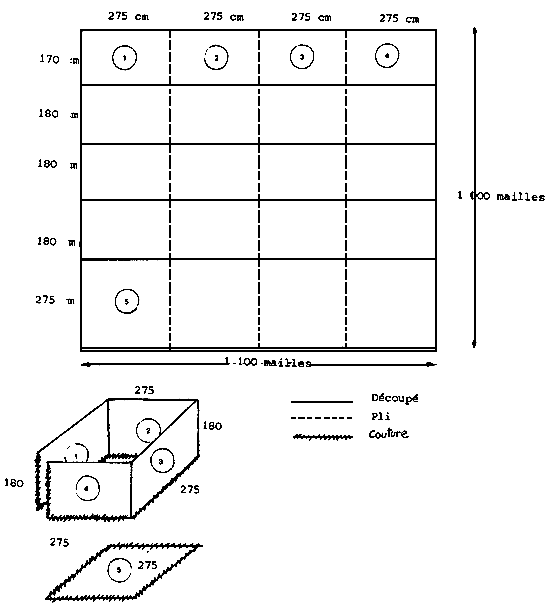
La nappe de filet utilisée en vente chez ECOREP à ANNABA a les caractéristiques suivantes:
- Maille 10 cm fil 2220 (280/18)
- Longueur mailles étirées 22 m ou 1100 mailles
- Hauteur de le nappe: 1000 mailles.
Pour les deux modéles de cadre flottant, on utilise un seul type de poche de filet de dimensions 3,90 × 3,90 × 2,50 m. Le volume total de la poche de filet est de: 38 m3, comme il n'ya qu'une hauteur de 2 m sans eau le volume utile pour l'élevage est d'environ 30 m3.
Le montage du filet sur les ralingues se faisant à 71%, les mailles du filet ont la forme d'un carré dont les dimensions sont:
- côté = c= 10mm
- diagonales = d= eV2: 14,1 mm
Le nombre de mailles sur chaque côté de la poche de filet est:
- côté 3,90 m:
= environ 275 mailles
- hauteur 2,50 m:
= environ 180 mailles
La découpe de la nappe de filet se fait comme indiqué à la figure 8 et permet ainsi de confectionner 4 poches de filet. Le montage sur les ralingues de nylon ou polyéthyléne ø5mm est indiqué à la figure 9. La poche de filet est montée sur une ralingue supérieure et inférieure (fond de la poche) ainsi qu'aux 4 coins. Le filet est monté sur les ralingues maille par maille On fait un noeud réalisé à une distance correspondant à un armement (figure 10) Ce montage donne une plus grande solidité à la poche.
Les ralingues aux 4 coins de la cage doivent dépasser le fond de 50 cm afin de permettre l'accrochage de poids morts (blocs en béton ou pierres) affin de maintenir le filet tendu et ouvert.
Cages flottantes simples isolées (figure 11)
Les cadres flottants comprenant une seule poche de filet peuvent être installées isolées les unes des autres à différents endroits du lac où la profondeur le permet. Ces cages sont ancrées grâce à 4 corps morts (blocs en béton ou pneus remplis de béton) qui sont reliés aux 4 coins du cadre flottant. On peut ainsi regrouper plusieurs cages flottantes à un systéme de corps morts communs à plusieurs cages en maintenant une distance de 5 á 10 m entre chaque cage (figure 12).
Regroupement de cages flottantes simples (figures 13)
On peut regrouper un ensemble de 4 cages flottantes en croix. Les cages seraient indépendants les uns des autres afin de permettre un transfert éventuel de celles-ci en cas de mauvaises conditions d'élevage intensif. Les cadres flottant sont maintenus entre eux grâce à des cornières ou plus simplement avec des cordes en nylon ou polyéthyléne.
FIGURE 8 Découpe et montage de la poche de filet pour les cages flottantes du lac Melah
NAPPE DE FILET maille 10 mm
longueur mailles étirées = 22 cm, ± 1100 mailles
hauteur nappe: 1000 mailles
| Montage à 71 % | ||
| Nombre de mailles: | côté 3,90 m | 2 75 mailles |
| hauteur 2,50 m | 180 mailles |

FIGURE 9 : Montage du filet sur les ralingues des cages flottantes pour le lac MELAH


FIGURE 10 : Montage du filet sur la ralingue
Figure 11 : Installation des cages flottantes simples isolées les unes des autres
Figure 12

FIGURE 13 : Regroupement de cages flottantes

FIGURE 14 : Cage flottante double

| Figure 15: LAGUNE DE MONASTIR | ![]() |
Cages flottantes doubles :
Les cages flottantes doubles (1 cadre en bois avec 2 poches de filet) seront ancrées grâce à 4 corps morts reliés aux 4 coins de la cage (figure 14). Les cages flottantes doubles seront installées isolément les unes des autres à différents endroits du lac.