























List of Project Field Documents
| No. 1 | - | Survey of commercial seaweed available in South-East Viti Levu (Fiji Islands): A preliminary study of farming potential of seaweed species present in Fiji by T.Pickering and S.Mario |
| No. 2 | - | Commercial sponge survey in Kiribati and sponge farming development in the South Pacific by R.Croft |
| No. 3 | - | Comparative taste test on Nile tilapia and marine fish in Samoa and Nauru by L.Bell, et al |
| No. 4 | - | Survey of seaweed “Limu Tanga'u” (Cladosiphon sp) in Tongatapu, Ha'apai and Vava'u Islands in Tonga: Observation on growth in December 1996 by E.Lovell |
| No. 5 | - | Potential of commercial development of Mabe pearl farming in Vava'u Islands, Kingdom of Tonga by T.Yamamoto and H.Tanaka |
| No. 6 | - | Potential of milkfish farming development in Fiji. by T.Yanagisawa by E.Dela Cruz |
| No. 7* | - | Sea cucumber ranching in Japan and applications for the South Pacific by T.Yanagisawa |
| No. 8 | - | Market Survey of Aquarium Giant Clams in Japan by H.Okada |
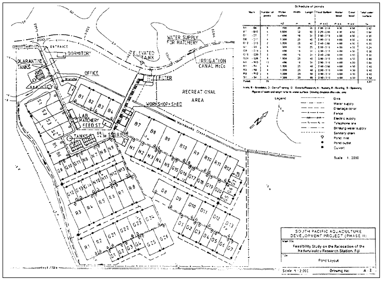
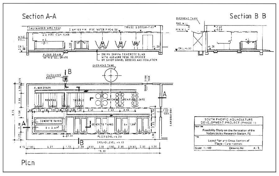
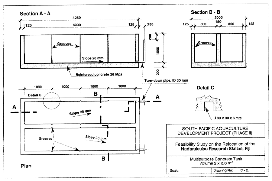
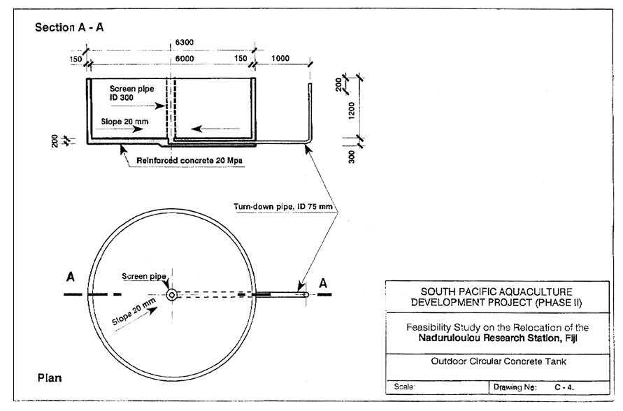
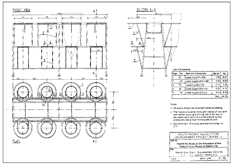
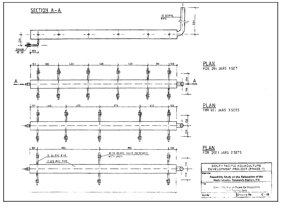
| No. 9 | - | Feasibility Study on the relocation of Naduruloulou Aquaculture Research Station, Fiji by E.Woynarovich |
| No. 10* | - | Technical guidance on pearl oyster hatchery development in the Kingdom of Tonga by M.Ito |
| No. 11* | - | Construction of tilapia demonstration pond and technical guidance on its farming in Samoa by S.Nandlal |
| No. 12* | - | Feasibility study of green snail (Turbo marmoratus) and trochus (Trochus niloticus) transplantations to Samoa by M.Amos |
| No. 13* | - | Pearl marketing trends with emphasis on Black Pearl Markets by Y. Hisada |
| No. 14* | - | Manual of marine snail seed production and stock enhancement by K. Kikutani, H. Yamakawa, et al. |
| No. 15* | - | Technical guidance on Java carp and common carp seed production at the Highlands Aquaculture Development Centre, Papua New Guinea by Z. Jangkaru |
| No. 16* | - | Recommendation towards shrimp farming industry development in Solomon Islands by H. Kongkeo |
| No. 17** | - | Potential of Eucheuma seaweed farming development in Tonga and Samoa by D.Luxton |
* In printing
** Under preparation