SCSP-SFDC/77/AEn/CP24
by
B. Tiensongrusmee
Faculty of Fisheries, Kasetsart University
Bangkhen, Bangkok
Thailand
1. INTRODUCTION
The success of commercial farming enterprises depends not only on biological advances in aquaculture but also on the development of engineering techniques for the design and construction of ponds and its associated facilities.
Small-scale fish culture is an old practice in Thailand, however, commercial-scale aquaculture has just been developing during the last decade. The species raised in commercial farms are catfish (Clarias batrachus), Pangasius sutchi, sepat siam (Trichogaster pectoralis), snakehead (Ophicephalus striatus), grass carp, bighead carp, silver carp, common carp, and true eel (Anguilla japonica). Besides finfish culture, the cultivation of the freshwater prawn (Macrobrachium rosenbergii de Man) also has recently received wide attention from fish farmers.
Table 1. Areas used for aquaculture production in Thailand
| Type of water | Area used for aquaculture (ha) |
| 1. Ponds | 2 313 |
| 2. Water ditches of vegetable and fruit farms | 100 |
| 3. Paddy fields | 21 346 |
| 4. Cage culture | 772 |
| Total | 24 531 |
Source: Dept. Fish., 1977
The area used for aquaculture in 1975 is about 228 904 ha (Table 1), and there are about 29 669 fish farm operators in Thailand. The total production of freshwater fish from farms in 1975 was about 29 975 tons or about 315 million bahts (Table 2).
Table 2. Freshwater fish production from farms
| Kind of operation | Production (metric tons) |
| 1. Pond culture | 14 821 |
| 2. Cage culture | 227 |
| 3. Water ditches of vegetable and fruit farm | 215 |
| 4. Ricefield fish culture | 14 712 |
| Total | 29 975 |
Source: Dept. Fish., 1977
3. LAYOUT AND CONSTRUCTION
In planning and design of fishponds, consideration should be given to the physical features of land such as the properties of soils, quantity and quality of available water and topography of the area; the climatic conditions of the region such as the temperature, sunshine, rainfall, and hazards; the availability and cost of construction equipment and materials, and transportation and communication facilities; and social factors such as the quantity and quality of available manpower.
The layout should be planned with maximum use of natural phenomena so as to make it economical. The major constituent structures of a typical freshwater fishpond in Thailand are embankment (levee and dike), water supply and drainage systems.
2.1 Methods of construction
2.1.1 Embankment
In design of a levee, attention should be given to the foundation on which the levee is built. For wet and clayey soil, it is necessary to work out a suitable device to prevent differential settlement of soil or collapse of construction. In the case of sandy ground, the leakage of water must be prevented.
The main function of the embankment is to prevent the ponds from flooding and to hold water for fish production. The height of the embankment is calculated from the following data:
| Elevation of ground level | - | (GL) |
| The maximum flood level | - | (MF) |
| The water level of river or other type of water source | - | (WLR) |
| Shrinkage | - | (% S) |
The height of the embankment can be obtained from the following formula:

2.1.2 The slope of levee
The slope of the levee to be constructed is determined by (i) the texture of the soil, (ii) wave action, and (iii) the velocity of the stream.
From experience, under normal conditions, the slope of levee constructed on clayey ground should be 1 : 2, and 1 : 3 or 1 : 4 for sandy ground.
2.1.3 Seepage
To maintain a watertight pond, leakage and seepage should be given attention in dike design. A normal seepage line in the dike constructed with homogeneous diking material on an impermeable foundation is a parabola and the seepage flow can be calculated by Casagrande's formula

| Where | Q | = | seepage flow (cm3/hour) |
| k | = | permeability coefficient (cm/hour) | |
| h | = | height of water level | |
| d | = | efficient width of dike |
When the dike is placed on a permeable foundation, the seepage flow would be:

| Where | k1 | = | permeability coefficient of foundation (cm3/hour) |
| H | = | thickness of permeable foundation |
Since the permeability of alluvial clay is relatively constant, the amount of seepage flow out of fishpond depends mainly upon the level of underground water and effective width of the dike which can be determined by calculation as shown in Fig. 1.

Fig. 1. The seepage line in the dike with homogeneous material placed on a permeable foundation (after Tang, 1976)
2.1.4 Water supply and drainage systems
In most cases, water supply for freshwater fishponds in Thailand is obtained from the water source by means of pump, either engine pump or wooden dragon wheel pump. A series of canals at different levels are designed for maximum utilization of gravitation to adequately control the inflow and outflow of water in a given period of the time required by the farm management system. The canals are connected to the ponds with pipes in order to bring the water into the ponds or discharge out as required.
In the design of the canal, it is necessary to give consideration to (i) the cross-section to provide the required flow of water; (ii) the canal should be free from seepage; (iii) if the canal is used for other purposes other than water supply, such as stocking or gathering of fishes or flood control, it should be designed for all purposes.
Assuming that the canal has a trapezoidal section the flow velocity is available by Manning's formula shown below:

| Where | V | = | velocity of flow |
| R | = | depth of water flow | |
| S | = | canal bed gradient | |
| n | = | coefficient of roughness (0.02) |
cross section of the canal can be obtained from (5)
| Q = AV | (5) |
| Where | Q | = | volume of water discharge |
| A | = | cross sectional area of the canal | |
| V | = | velocity of flow |
2.1.5 Associated facilities
Facilities such as installation of water gauges in the main canal are important for the measuring of flow affected by pumping or in flowing water systems.
Water in the fishpond should be mixed or diffused in order to adjust the water quality. Facilities for the purpose may include water turbines, water wheels or windmills which will be determined according to the depth of water and their power referred to the pond area.
3. ENVIRONMENTAL CONSIDERATIONS OF FRESHWATER FISH FARMS
3.1 In relation to water supply
It is obvious that most of the freshwater fish farms in Thailand have only a single ditch from the same source of water serving for both supply and discharge. This source of water is used to fill the ponds and also serve as a means of disposal of low quality water which is pumped out of the ponds. Hence it happens that a farm operator may fill his ponds with water that promotes the transmission of diseases among all producers in the region.
In many cases such as catfish farming, the amount of fish stock exceeds the capacity of the water supply. This gives rise to deteriorated water quality, and increase of mortality due to rapid spread of protozoan and bacterial diseases and parasites.
3.2 In relation to other uses of land
Joint culture of ducks, geese, poultry, and pigs in combination with aquaculture on a commercial scale should be given attention, since it reduces the cost of fertilizer and feed and increases the production of animal protein per unit area. In addition, the environmental pollution often resulting from warm-blooded animal husbandry can be avoided and the wastage utilized to effect a substantial increase in the fish crop. It has been calculated that one duck produced about 6 kg of droppings during 30–40 days on a pond (Woynarovich, 1976). One hectare can maintain at least 500 ducks/year, which produces about 3 tons of duck manure, and may increase the fish production by 120–180 kg.
Experiments in the German Democratic Republic have shown that an average annual production of carps in a fish-cum-duck farm in Taiwan, China, is about 3 500 kg/ha. The daily supply of duck droppings is sufficient to fertilize the pond to promote and maintain a rich growth of natural fish food organisms. At the same time, part of the droppings are eaten by fish directly. Therefore, application of fertilizer and/or supplemental fish feed is not necessary, thus greatly reducing the cost of production. In Thailand joint culture of pigs and Pangasius sutchi and Tilapia is common practice, and yields promising returns.
3.3 In relation to environmental quality (pollution effects, etc.)
It is well known that along the downstream of the Chao Phraya, Tachin, Bang Pakong, and Mae Klong Rivers, domestic and industrial wastes are commonly discharged directly into the rivers without treatment facilities. As a result water pollution becomes evident. It could be considered that water pollution will be a constraint for the development of aquaculture in the future.
The effects of pollutants could be direct and indirect effects on actual farming. The direct effects may cause fish kill, poor or slow growth, spread of diseases, and decrease of economic value of production.
The indirect effects of pollutants may induce harmful organisms which occur with algae bloom from eutrophication of the river, canal or lake waters. The enrichment of waters with organic substances from wastes is not always harmful, and often it is helpful to increase the productivity of water. However, if the supply of organic substances is too high, they contaminate the water and finally cause eutrophication.
4. MANAGEMENT
4.1 Intensification through improved technique
It is obvious that in catfish culture, the farm operators tend to stock the fish in high densities providing high feeding rates and without adequate water exchange resulting in drastic deterioration of water quality. In order to provide increased survival rates and production, water quality of catfish ponds must be improved by (i) reducing the number of fish in ponds to a level within the carrying capacity of available water supply; and (ii) by changing the system of water supply so that one ditch from the source of water serves as a supply canal for all inflows while a second serves as a discharge canal.
The use of dry pellet feeds containing fishmeal would avoid most of the problems associated with the present wasteful feeding using ground trash fish. Pellet feed can be formulated to supply the nutritional requirements of fish; hence, the pellet is almost entirely absorbed during digestion and fecal volume is decreased.
4.2 Facilities and inputs required
Artificial aeration would significantly improve water quality in ponds. To serve the purpose aerators, air pumps, or air compressors should be used to spray the water into the air or bring the lower layer to the surface. The dissolved oxygen will be increased, and some harmful organisms killed through exposure to sunlight. Occasional, but not constant aeration would probably be necessary and this can be determined by adequate water quality monitoring and experimental tests on selected ponds.
Running water systems should be installed. The beneficial effect of running water on the growth of fish is well known. Kawamoto (1957) and Chiba (1965, 1970) have shown that the yield and the growth of carps in pond with running water was 100 to 1 000 times higher than that in still water. If water supply is limited, the recirculating should be carried on and water used in rearing pond should have some form of pre- and post-treatment.
5. CONCLUSIONS AND RECOMMENDATIONS
5.1 With regard to design
Fishpond facilities consist of embankments, sluices, canals and pipes. Construction of such structures are intended to create an environment in which production of aquatic animals can be improved in both quantity and quality. The design and construction require knowledge and experience of aquaculturists, engineers, and experts in farm management. The combination of this expertise will ensure a good system of fishpond.
5.2 With regard to production and management
Increased production can be achieved through intensification of management. However it should be initiated only insofar as necessary inputs are available and economic.
5.3 With regard to environmental quality
Water pollution is a growing problem, and could greatly affect the aquaculture industry and its future improvement and expansion. Attention should be called to the possible consequences of this problem, to the policy makers and to the administrative authorities in the different countries, so that appropriate safeguards can be instituted.
6. REFERENCES
Chiba, K., 1965 Studies on carp culture in running water ponds I. Fish production and its environmental conditions in a certain fish farm in Gumma prefecture. Bull. Freshwat. Fish. Res. Lab. Tokyo. 15(1): 13–33
Chiba, K., 1970 Studies on the carp culture in running water pond III. On the relation between fish growth or harvest and environmental conditions in fishponds. Bull. Freshwater. Fish. Res. Lab. Tokyo. 20(2): 199–215
Department of Fisheries, 1977 Fisheries record of the production of freshwater fishpond. Department of Fisheries, Ministry of Agriculture and Cooperatives. Doc.(9): 94p.
Kato, J., 1975 Guide to design and construction of coastal aquaculture pond. Japan International Cooperation Agency, vi + 76p.
Tang, Y.A., 1976 Planning, design and construction of a coastal fish farm. FAO Technical Conference on Aquaculture, Kyoto, Japan, 26 May – 2 June 1976. FIR:AQ/Conf/76/E68: 9p.
Woynarovich, E., 1976 The feasibility of combining animal husbandry with fish farming with special reference to duck and pig production. FAO Technical Conference on Aquaculture, Kyoto, Japan, 26 May – 2 June 1976. FIR:AQ/Conf/75/R.6: 11p.
SCSP-SFDC/77/AEn/CP34
by
Low Su Ji, Inland Fisheries Extension
and Hashim Othman, Fisheries Division
Ministry of Agriculture
Malaysia
1. INTRODUCTION
Freshwater fisheries (culture and capture) is the main activity in inland fisheries in Malaysia at the present time.
In terms of production, inland fisheries still plays a secondary role in the fisheries sector. In 1976, there was an estimated production of 7 000 metric tons of freshwater fish from ponds totalling 4 558 ha (11 263 acres) in area. This production is only 1.7% of the total marine fish landings of 410 968 metric tons for that year.
2. EXTENT OF FRESHWATER FISH CULTURE AND PRESENT PRACTICES
Fish culture is an integral part of rural agricultural activities in Malaysia. Polyculture of carps in freshwater ponds and disused mining pools is the prevalent practice. This is carried out mainly on a subsistence or artisanal level, and operated as part of mixed farming by integration with agriculture and animal husbandry.
Table 1 gives the total number of fishponds in operation in Peninsular Malaysia at the end of 1976 and Table 2 gives the number of fishponds newly opened in 1976. Average sizes of the fishponds have been computed according to the various states, to give an idea of the size range of ponds. The actual size range of ponds is much wider than is seen from Table 1 and 2, constructed ponds being found to range in size from less than 1.2 ha (0.1–3.0 acres). Disused mining pools which are operated as fishponds could be as large as 12 ha (30 acres).
3. SITES FOR FISHPONDS
Fishponds can be constructed in badly-drained land which is not suitable for planting and, therefore, need not compete with agriculture for land space. Some of the land in rubber and oil-palm estates, which cannot be utilized for planting due to topography, can be converted into fishponds. Fishponds may also be constructed in the following types of sites:
Mining pools which are used for fish culture do not require any modifications. These are found mainly in the tin mining areas like Perak, and also in Selangor and Negeri Sembilan (Table 1).
4. POND CONSTRUCTION
As mentioned above, the sizes of constructed ponds range from less than 0.1 acre to 3.0 acres. Very small ponds are usually sited in pockets of low-lying land or marshes, where a minimum of excavation is required to make the pond. These ponds are usually of irregular shape.
Small ponds are usually constructed by hand labour, with excavation to a depth of 1–2 ft., to use the excavated material to build up the bunds, around the pond.
Levelling of the pond in relation to the water supply and drainage ditch is done very empirically, depending on past experience rather than on scientific calculations.
Water supply is usually taken from a river or stream, although there are a few fishponds which depend entirely on ground water. When the water supply is taken from a stream or river, the farmer may construct a small dam across the stream to get the necessary head of water, and then divert the water to his pond via a small canal.
4.1 Design for fishpond
The Fisheries Division (Extension and Training Section) circulates a small booklet on fish culture, which includes a standard design for a fishpond water control system (Figures 1 and 2).
The T - pipe 1 drainage pipe combination for overflow and draining is the most commonly used type in Peninsular Malaysia. This system has been found to present problems of silting and clogging around the outlet opening near the pond bottom.
It is felt that a small sluice-gate (made of wood or concrete) with screen and removable wooden slats may be more efficient for the purpose of controlling the water level and draining the pond. A typical design for a sluice-gate which is used in Sarawak is given in Figure 3.
Most fish-farmers operate one or two ponds for rearing purposes only, but a few may construct breeding and nursery ponds as well. A design for the layout of a small pond-complex, as suggested by the Sarawak Inland Fisheries Department, is given in Figure 4.
4.2 Materials used
Materials used for inlets, outlets and sluice gates vary from place to place. In very small ponds in clayey soil, the inlet channel may be just a trough dugout in the ground leading from the water source to the inlet. In others, proper cement-lined inlet canals are constructed.
Inlet pipes may consist of lengths of bamboo or glazed earthen ware pipes 9" (23 cm) in diameter depending on the size of the pond.
Combined T-pipe/outlet pipes are usually of glazed earthen 9" (23 cm) in diameter.
Sluice-gates are constructed either of hard wood or concrete, with wooden slats and wire-mesh screens.
4.3 Methods of construction
Small ponds can be constructed by hand labour. A period of about 3 months is required to construct a pond (roughly 0.1 acre in area) by hand.
Larger ponds are constructed using machinery (excavators) wherever possible. The pond-owner may either contract out the construction work or hire excavators at an hourly/daily rate (as is being done in Sarawak).
Bunds are recommended to be at least 0.9 m wide, with the slope at 45° to the horizontal, although it is not always practicable to follow this. Very small ponds may have bunds about 0.6 m wide only. Bunds are usually planted over with grass as protection against erosion. In some cases, especially the larger ponds, the inside slope of the bunds are lined with planks to prevent erosion by wave action. Small fruit trees are quite commonly planted on pond bunds, although this may not be considered a desirable practice due to the damage which may be caused by the tree roots.
5. IMPROVEMENTS IN POND LAYOUT AND CONSTRUCTION
Constraints to improving the layout and construction of fish ponds in Malaysia include the lack of technical expertise, choice of sites available for fishponds, and economic considerations such as cost of materials and labour, life span of the pond and returns to the fish farmer.
Apart from the lack of fishery scientists in the country with respect to culture practices, there is also very little experience in pond engineering among fishery workers. Most of the engineering aspects of pond construction, especially in large pond complexes such as government fish breeding station and tendered out to engineering specialist. At the moment, extension workers for freshwater fisheries are not trained in the engineering aspects of pond construction. Most of their knowledge is based on past practice and trial-and-error.
Layout and construction of fish ponds are to a great extent governed by the site of the pond, which may not be always suited to the standard type ponds. In such cases, it is up to the fish farmer and/or extension worker to improvise on the design.
Cost of hiring machinery for excavation of fishponds has been one of the major constraints to improvement of pond construction. However, with the government subsidy scheme for capital costs in pond construction, more fish farmers will be able to afford the use of machinery. This would of course depend on whether the site of the pond is accessible to machinery.
A fish farmer, who is usually part-time, may not be willing to invest a large capital outlay for his pond. In this case he may construct a small pond (0.1 acre or less in size) by hand labour using cheap materials such as bamboo for the inlet and outlet. Such ponds are usually used for rearing fish for home consumption, and economic returns are not a major consideration.
Large, well-constructed ponds are estimated to have a life span of 10–15 years. The returns are such that the operator would expect to recover his capital outlay within 3–5 years. In such cases, better materials are used and proper inlet and drainage systems are constructed.
In connection with the above, it is interesting to note that in a survey carried out of ponds in the Selangor area (Tan, C.E., 1973), 35% of pond operators were found to be squatters (illegal holdings), 32% were on Temporary Occupation License, 16% were on freehold land and the rest were on government or private leases.
Most were owner-operators 95.7%. Only 15 out of the 350 establishments surveyed employed any workers.
36% of the establishments surveyed reported that fish culture constituted their main source of income.
25% earned their main income from non-agricultural activities such as manual labour. 16.9% engaged in rubber cultivation mostly on land schemes.
A note must be made here that the situation in Selangor need not necessarily reflect the situation in the country as a whole. The 36% which had fish culture as their main source of income were mainly Chinese farmers operating disused mining pools for Chinese carp culture. This is not the case in the rest of the country except for Perak where there are also large number of mining pools used for fish culture. Most of the ponds in the rest of the country are small, subsistence-type family or communally-owned ponds.
Table 1. Number and Average Size of Fishponds in Operation at the End of 1976 (Peninsular Malaysia)
| State | CONSTRUCTED PONDS | MINING POOLS AND OTHERS | ||
| Number | Average size ha (acres) | Number | Average size ha (acres) | |
| Perlis | 16 | 0.09 (0.22) | 2 | 0.66 (1.64) |
| Kedah | 191 | 0.17 (0.43) | 11 | 1.61 (3.99) |
| Penang | 107 | 0.11 (0.28) | 1 | 0.45 (1.10) |
| Perak | 2 003 | 0.14 (0.35) | 1 725 | 1.67 (4.12) |
| Selanger | 555 | 0.15 (0.37) | 217 | 1.40 (3.45) |
| Negeri Sembilan | 2 017 | 0.10 (0.25) | 201 | 0.55 (1.36) |
| Melaka | 321 | 0.12 (0.31) | 4 | 1.01 (2.50) |
| Johore | 1 241 | 0.14 (0.34) | 23 | 1.24 (3.07) |
| Pahang | 1 160 | 0.18 (0.45) | 61 | 1.89 (4.68) |
| Trengganu | 133 | 0.08 (0.21) | 14 | 0.76 (1.89) |
| Kelantan | 289 | 0.09 (0.22) | 21 | 0.51 (1.25) |
Table 2. Number and Average Size of New Fishponds in 1976 (Peninsular Malaysia)
| CONSTRUCTED PONDS | MINING POOLS AND OTHERS | |||
| Number | Average size ha (acres) | Number | Average size ha (acres) | |
| Perlis | 8 | 0.10 (0.26) | - | - ( - ) |
| Kedah | 77 | 0.17 (0.42) | 1 | 0.67 (1.65) |
| Penang | 7 | 0.13 (0.33) | - | - ( - ) |
| Perak | 342 | 0.18 (0.45) | 31 | 19.53 (48.25) |
| Selangor | 55 | 0.14 (0.35) | 17 | 1.08 (2.67) |
| Negeri Sembilan | 115 | 0.17 (0.42) | 2 | 0.57 (1.40) |
| Melaka | 8 | 0.25 (0.61) | - | - ( - ) |
| Johora | 117 | 0.17 (0.41) | 1 | 0.40 (1.00) |
| Pahang | 122 | 0.16 (0.39) | 3 | 0.15 (0.38) |
| Trengganu | 16 | 0.16 (0.39) | - | -( - ) |
| Kelantan | 9 | 0.06 (0.15) | 2 | 0.46 (1.13) |
6. CONCLUSION
As stated above, knowledge of the engineering aspects of pond construction is lacking, even among fishery workers. There is a need to organize some sort of training programme in surveying, levelling and design and construction of ponds, for fisheries extension workers in the country.
This training programme may take the form of a short course-cum-study tour organized within the country (with the help of an expert in this field), or may be organized as part of the regional cooperation programme in fisheries development.
7. REFERENCES
Ong, K.B., 1968 Fish culture - A guide for people in Sarawak and elsewhere who wish to rear fish
Tan, C.E., 1973 Report on a survey of the economics of fish culture in Selangor, West Malaysia. Ministry of Agriculture, Malaysia
Annual Fisheries Statistics, 1976 Malaysia
Inland Fisheries Report (Peninsular Malaysia) 1976

Fig. 1. Water inlet (cross-sectional view)

* Depending on the soil condition and size of the pond. If the pond is big, the bunds should be made wider.
# Subject to soil condition. If pond site is sandy or muddy, the slope for the bunds should be decreased.
Fig. 2. Combined overflow/drainage system (cross-sectional view)

Figure 3. Sluice Gate

Figure 4. Layout and size of fishponds
SCSP-SFDC/77/AEn/CP7
by
N. Rudayat and K.S. Oetomo
Directorate General of Fisheries
Ministry of Agriculture
Jakarta, Indonesia
1. INTRODUCTION
1.1 Importance
Freshwater pond fish culture in Indonesia has been practised for centuries, however, the traditional system of culture makes it a subsistence activity.
In order to develop an economic yield, production must be increased. At the present time, the culture technique is increasing by the application of new technique method, which is being introduced by the Government to the fish farmers. The Government furnishes advice about design, layout and construction of fishpond, as well as information about soils and water supply.
1.2 Present extent and production
Due to the water situation, there are two kinds of pond management, as follows:
1.2.1 Ponds with stagnant water are usually managed with traditional methods. The productivity of these ponds depends on the fertility, which can be increased by application of organic and inorganic fertilizers. The construction of the traditional ponds is very simple. The average depth is 80 cm, allowing sunshine to reach the pond bottom. Usually the design of pond is square. The average annual production for polyculture is about 2.1 ton/ha.
1.2.2 Ponds with running water systems were introduced in 1974, and are still developing extensively in many areas. The main problem is finding location with good running water supplies. Running water ponds are constructed of concrete and are mostly triangular and rectangular, but some are circular. The stocking rate is usually 1 to 3 kg per cubic meter of pond. It requires a high volume of pelletized feed. In general the average yield for harvesting at the end of 3 months is 2 to 3 times the stocking weight. There are also semi running water systems in conjunction with irrigation systems. This usage is just developing. One of the problems of this type of system is the effect of pesticides applied to irrigated lands, which can then cause fish mortality. Of several species of freshwater fish culture, several species of carp are dominant, because of their high market price. Other species are Buntius, giant gourame, kissing-gouramy, Tilapia and Trichogaster.
1.3 Potentials
Increased production of traditional methods is accomplished by:
increasing irrigation water supplies used for fishponds;
more intensive application of fertilizers;
using better quality fish fry;
providing protection against parasites and diseases by spraying with dipterex, sumithion, etc.
application of better fishpond engineering.
The climate, soils and water supplies are all favourable for the development of the freshwater fish culture in Indonesia. At the end of 1976, Indonesia had 23 000 ha of freshwater ponds with a total production about 48 500 tons, or an average of about 2 108 kg/ha. Most of this was traditional fishpond culture. With intensive pond culture a yield of 5 ton/ha can be realized.
Extension of the traditional fishpond production is possible by more widespread application to irrigation areas.
Increase of the running water system production requires:
adequate water supply;
availability of better quality fry;
use of pelletized feed of high quality;
application of better culture techniques.
The improvement of freshwater pond culture by increasing production will give increased income to the farmers and increase the national food supply.
2. SELECTION OF SITE
2.1 Water supply
In Indonesia, government regulations allow 2 liter/sec/ha for rice production. No fixed allowance is yet available for freshwater fish culture. Thus the use of running water pond culture can only be accomplished where there is an abundant water supply. The water supply for running water ponds must be returned to the stream flow system so that it can be used for irrigation and public usage. Pollution caused by industries and others discharging into open waterways makes fish farming downstream impossible.
2.1.1 Water supply for traditional ponds
Before construction the following items have to be examined:
Continuous and sufficient water supply. Practical experience shows that 5 – 15 liter/sec/ha is sufficient for a freshwater fishpond, where the soil is not porous and the dykes are firm.
In the unirrigated area, the water supply is only from rain water, so that culturing season is for 6 to 7 months annually.
Quality of the water for ponds should have a temperature of 25 to 30° Celsius, p.H of 6 to 8, and dissolved oxygen content 5.0 ppm. In addition a high nutrient content and absence of pollutants is desirable.
2.1.2 Water supply for running water ponds
Similar to above, except that the requirement is 1 liter/sec/cu m of pond.
2.2 Soils
2.2.1 The best soil for ponds is clay. The characteristics of clay are imperviousness to water and ease of farming.
2.2.2 Granular soils are not good for ponds because of their porosity.
2.2.3 A sloping topography of not more than 3% is desirable.
2.3 Other considerations
2.3.1 Experience has taught that the elevation of freshwater fishponds in Indonesia should be between 50 and 800 metres above sea level.
2.3.2 If possible, ponds should be located in areas not subject to flooding.
2.3.3 If possible, the site should be accessible to markets with good road connections.
3. LAYOUT PLANS
3.1 Type and purpose
These are some of the purposes of freshwater fishponds.
3.1.1 Hatcheries for breeding.
3.1.2 Nurseries for rearing fingerlings.
3.1.3 Rearing ponds for fish production. These ponds are nearly similar; there are only differences in depth and area. The ratios of pond area for hatcheries, nurseries and rearing ponds can be 1: 5: 10.
3.2 Typical layouts
3.2.1 Traditional ponds, see Fig. 1.
3.2.2 Running water ponds, see Fig. 2.
4. DESIGN AND CONSTRUCTION
4.1 Design
4.1.1 The traditional pond design is determined by the method of construction. There are three kinds of construction:
Excavated pond. This means the bottom of the pond is excavated and the soil is hauled to another site. See Fig. 3.
Embankment pond. The dykes are constructed of soil from another site. See Fig. 4.
Cut and fill dam. The soil is excavated from the bottom of the pond and placed in the side wall embankments. See Fig. 5.
4.1.2 Design running pond
Triangle, see Fig. 6.
Rectangular, see Fig. 7.
Circular, see Fig. 8.
4.2 Method of construction
The following description applies to construction of traditional ponds.
Firstly, determine the site where the ponds will be located.
Determine the extent of ponds.
Clean up the site from all things which are not necessary, for example: stones, all vegetable materials, rubbish, etc.
Investigate the slope of the land, so that inlets and outlets are put at the right place in the dykes. See Fig. 9, 11 and 12.
Build a template for shaping the dykes. The template should indicate the width and height of the dykes.
The ground for the foundation of the dykes should be excavated, in order to integrate the new and the old soils.
Excavate the soils inside the bottom of dykes at least 20–30 cm from the inside wall and place the soil in the dyke.
Every layer of piled soil in the dyke should be compacted at 20 cm thickness. It is very necessary for strengthening the dyke and making it water-tight.
Dykes should be constructed 20 cm higher than needed to allow no shrinkage.
The piles must be put in the right places. The inlet pipe should be 30 cm above the water level of the pond, so that the end of the pipe allows the water to fall into the pond, thus adding oxygen to the water. The 30 cm elevation also prevents the fish going out of the pond. The outlet pipes are placed at the bottom of the ponds for draining and connected to a monique, also known as a regulating structure. See Fig. 10.
The crown dykes should be planted to prevent erosion from rain.
After the dykes are constructed the bottom of the ponds should be leveled by plough or broad hoe. Ditches should be made in the bottom of the pond for drainage.
Finally allow the water to flow into the ponds to know whether the dykes leak.
The construction of running water ponds is similar to above except that the inlet and outlet are designed for water circulation. See Fig. 7.
4.3 General construction guides
4.3.1 The extent of ponds
Farm, rearing ponds average 500 square metres. This size is easy to manage.
4.3.2 The shape of ponds
The best shape of ponds is rectangular. The ratio between length and width is 2 or 3:1. The corners of ponds should be rounded, in order to help water circulation and in harvesting fish.
4.3.3 The depth of ponds
In Indonesia, the sunrays are also to penetrate water to 80 cm beneath the water level. Thus a depth of pond water about 80 cm, and a height of the dyke of about 100–120 cm, will allow high productivity of water.
4.3.4 Dykes
A good dyke is constructed with good compaction so that it cannot be penetrated by water. To prevent erision, the dyke above the water line should be planted to grass. The slope of foundation dykes should not be steeper than 30° to 45° depending on the structure of soils. The width of the dyke crown should be 0.5–1.4 metre.
4.3.5 The bottom of ponds
Principally, the bottom of ponds should be easy to drain. Ditches should be excavated in the bottom of ponds, with widths of 30–40 cm and depths of 20–30 cm and connected to inlets and outlets. The bottom of ponds should slant to the ditches, in order to facilitate draining and catching of fish.
4.3.6 The inlets
The parallel system of flow into ponds is much better than the series system. The advantages of the parallel system are:
Every pond gets new fresh water.
Spreading of pests and diseases is minimized.
The weakness of this system is that it requires more water. It is not suitable in the dry season or low flow water supply.
Inlet pipes are better located in the centre of short sides of ponds, in order to help water circulation.
4.3.7 The outlets
Outlets should be on the opposite side to inlets. Outlet structure may be made of:
Bamboo
Wood
Concrete (monique)
5. ENGINEERING ASPECTS OF MANAGEMENT
Good management requires sound engineering. If ponds leak or do not function properly, the harvest will be greatly reduced or lost.
6. CONCLUSIONS AND RECOMMENDATION
6.1 Better information is needed on water quality and water quantity for all types of freshwater fishpond culture.
6.2 More information is needed in regard to integrating irrigation and fishpond culture.
6.3 More information is needed on how to reduce pond leakage.
6.4 More information is needed on how to control parasites affecting fish production.
6.5 Recommendation
The international bodies should assist developing countries in establishing formal training for fishey engineers, for the special problems of freshwater fish farming.

Figure 1. Layout of Traditional Pond

Figure 2. Layout Running Water Pond
Design and construction of pond

Fig. 3. Excavated

Fig. 4. Embankment

Figure 5. Cut and fill

Figure 6. Running water pond (triangle)

Figure 7. Construction of running water pond (Konstruksi kolam air deras)

Figure 8. Running water pond (circular)

Figure 9. Inlet and outlet situation

Figure 10. Monique system (Outlet)

Fig.11 KONSTRUKSI KOLAM PENELURAN
(CONSTRUCTION OF BREEDING POND)

Fig. 12 KONSTRUKSI KOLAM PENETASAN/PENDEDERAN
(CONSTRUCTION OF NURSERY POND)
SCSP-SFDC/77/AEn/CP5
by
A.W. Sin
Department of Agriculture and Fisheries
Hong Kong
1. INTRODUCTION
Brackishwater ponds are being used for two aquaculture systems in Hong Kong: the intensive polyculture of the Chinese carps and grey mullets, and the tambak culture of brackish species of fish and shrimps. Polyculture ponds are constructed to hold stagnant bodies of water, while tambaks are designed to allow free regulation of tidal water exchange for various purposes inherent in tambak culture, thus resulting intermittent rising and falling of water levels.
Because of these modes of operations, there are several factors which have direct or indirect impact on the structural requirements of these fishponds and tambaks. These must therefore be taken into consideration in the design and subsequent construction of brackishwater ponds
2. TIDAL EFFECTS
Tambaks are located at sites which are higher than the average low tide level, but lower than the average high tide levels. This allows efficient filling and draining the tambaks at all tidal levels. In Hong Kong, the highest tidal level recorded is 2.6 metres and the lowest level 0.1 metre. Because of the rise and fall of tides, a difference in hydrostatic pressure exists in opposite directions alternately on either side of the bund. As a result, water seeps through the bund and tends to create crevices or tunnels, thereby eroding the bunds. Thus, when brackishwater ponds are built under such conditions, a hard and impervious core should be erected inside the bund, and at the same time the soil of the bund should be mechanically compacted.
The alternating high and low levels of the tide also have a great eroding power on the external surface of the bund, which should preferably be covered with cement concrete and provided with slope of less than 1:3. If possible, wave brakes, formed of a layer or rocks or growing plant covering the external side, would reduce the erosive tidal effects.
3. TAMBAK OPERATION
Since normal operation involves filling and draining the tambak the rise and fall of water levels will also tend to erode the internal bunds in a similar manner. Repair of the bunds of tambak is, therefore, more frequently required than in the case of the stagnant brackishwater pond.
Sluice gates of tambaks must be built with strong and durable material such as cement concrete or stone slabs in order to reduce erosion caused by the passage of large volumes of water at high speed. Concrete water spillways slanting downwards should be constructed on both sides of the gate to diverge the flow directions and to prevent water falling straight to the bottom thus minimizing erosion. Such an installation is serviceable for over 20 years in Hong Kong.
Tidal brackishwaters have a high silt content, thus causing a high rate of silting over the bottom of tambaks. Consequently, tambaks are in a way being gradually reclaimed. This process of sedimentation is so rapid that the existing extensive mudflats around Deep Bay have all been developed within the past 300 years (Grant, 1969)1. In view of this, the bottom mud in tambaks should be periodically removed.
4. NATURAL WATER COURSE
The aquatic environment in established brackishwater ponds should not be hampered particularly the blocking, constricting and change of the natural courses of streams and rivers often leading to disastrous flooding. On the other hand, sharp stream bends against the bunds should be avoided unless the turn of the bend can be straightened to a certain extent to redirect the force of water current or a current brake can be built to reduce soil erosion.
As river water loses its momentum at downstream the suspended particles would tend to be deposited over the river bed. Thus, the capacity of the rivers for smooth passage of surface runoff from catchment areas above can be significantly reduced. The occurrence of exceptionally heavy rainstorm in association with high tide can result in flooding causing loss of investment. The bottom mud of streams or rivers should, therefore, also be removed periodically. Such a costly project should be the responsibility of the government.
5. WIND DIRECTION
In Hong Kong, easterly winds prevail in all seasons with the maximum wind speed ranging from 8–15 knots. The wave action thus created is highly erosive to the bunds. In view of this, the length of a pond should be arranged in a east-west direction.
6. EFFECTS OF BIOTIC MATERIALS AND ACTIVITIES ON BUND STRUCTURES
Mangroves and other vegetations on the estuarine mudflats have to be completely removed from a selected site before the soil is used for the erection of bunds. This is to avoid the plant materials which, when decayed, form humus thus deteriorating the structure of bunds.
Burrowing animals such as the crabs and eels, have also to be removed as far as possible, to prevent piping of the bund. When the common carp is included in a polyculture system, the bund should be sufficiently thick and strong, since this fish has the habit of digging up burrowing and benthic animals and detritus over the bottom and the slopes of bunds.
SCSP-SFDC/77/AEn/CP18
by
R.S. Esguerra
SEAFDEC Aquaculture Department
Tigbauan, Iloilo, Philippines
1. INTRODUCTION
Based on the 1975 BFAR statistics, the national fish production in the Philippines amounted to 1 336 803 metric tons. Of this amount, only 106 406 metric tons came from fishponds or only 8% of the total production. The total area of privately-owned and leased fishponds in the Philippines in 1975 was 173 036 hectares, with an investment of 3 809 220 pesos. The average production from fishponds in 1975 was 600 kg/ha. There still remains a total of 527 143 hectares of undeveloped areas, 126 253 hectares of which are freshwater, whiel 400 890 hectares are mangrove swamps.
Areas being developed into fishponds are either privately-owned parcels of land or public lands leased for a period of 25 yèars to private individuals, or both. Coastal ricelands with low productivity are usually converted into fish farms during the rainy months. In regions affected by pronounced dry season, fish farms are converted into salt beds during the dry spenn and operated as fishponds during the rainy months of the year.
With the rapid advancement in aquaculture practices all over the world, fishpond engineering has broadened its scope. The proper culture of all cultivable species in the aquatic environment necessitates specific and precise layout and construction of impoundments or holding structure to suit the needs not only of each species but also to conform with the needs of each stage of development in order to maximize productivity at the least expense. Very little attention was paid to this phase of the industry in the past. However, with the advent of contemporary research and studies, the urgent to improve the size and shape of structures together with the installation of labour saving devices for efficient management has been felt. Thus, today aquaculture engineering embraces a complicated and much broader field which is considered a very vital factor for the success in increasing survival and productivity of the cultured species.
Present day Aquaculture Engineering relates to such fields of studies as:
| Geodetic engineering | : | Plane and topographic survey, and map reading. |
| Mechanical engineering | : | Operation and maintenance of tractors, bulldozers, shover cranes and aerators. |
| Civil engineering | : | Construction of buildings, power houses, warehouses, concrete and wooden water sluice gates and pipes. |
| Electrical engineering | : | Installation, operation and maintenance of electronic gadgets for monitoring various parameters in the laboratories and pond systems. |
2. SURVEY AND LAYOUT OF PROJECT
2.1 Site selection
Considering the high cost of labour and materials for pond development, proper studies have to be conducted in selecting a site to be converted into a fish farm. The following factors need to be carefully evaluated before investing on fishpond development:
2.2 Survey of site
After considering the above-mentioned factors and a site has been selected, a survey of the site is conducted.
During the survey, some vital points to consider and verify are to:
After undertaking the above-mentioned verifications and all ownership papers have been firmed up, a project development plan is prepared which should include both the technical and financial aspects which serves as a guide for future management and programming of operations to be performed with specified periods.
2.3 Construction
2.3.1 Methods of construction
Clearing of vegetation
Fishpond construction starts after proper verification of property boundaries. A salvage zone of 10 to 15 m from the bank of rivers and creeks is allowed as bank protection and about 50 m from the shore facing the sea. Swamp vegetation within this salvage are left untouched. Markers with flags are usually installed to straighten the paths of the main dike. A clearing of 20 m wide is the cut.
Dike construction
Puddle trench - a canal 30 cm wide and 50 cm deep is first dug at the center of the path of the main dike to cut out the roots of mangrove vegetation. Preferably pure clay soil is needed to replace the excavated soil from the trench. This puddle trench of pure clay usually extends to half the height of the main dike.
To construct the dike, excavation is started about 3 m from the foot of the main dike. Mud blocks 30 cm2 50 to 70 cm long then dug and placed end to end with a provision for a layer or two at the center where mud blocks are laid perpendicular to the blocks laid end to end. The above method is practised where mud blocks could be dug and held in one piece. The blocks are passed over from one person to the other or by sliding the mud blocks on wooden boards. Another system is applied when the consistency of the soil is such that mud blocks could not be formed. Whenever the mud is soft, dike construction is effected by laying a layer of soft soil at a time and allowed to harden for a day before the next layer is set over the preceeding hardened soil. Whenever the soil used for dike construction is soft, the base of the dike is supported by bamboo trunks with splitted bamboo to hold the soft soil. To prevent soil erosion, terrace dike sides have been found more practical. After a rainy season when the salinity of the dike soil have been washed off, creeping grass such as Sessuvium Portilucostrum (dampalit) is planted along the dike sides. Construction of secondary and tertiary dike follow the same procedure. Whenever possible secondary dikes are built pen-pendicular to northeast and southwest monsoon to prevent scouring and erosion of dike and to serve as a wave break.
Gate construction
Main water sluide gates used in the Philippine fishponds are either poured concrete, CHB with poured cement beams adobe stone, slabs or made of lumber. Single, double and triple gates are common while multiple 4 to 10 door gates are rare except in big landed projects.
Slab grooves are made of either plain cement, hard wood, copper, or stainless steel.
Some considerations in gate construction are:
Cement mixture (cement-sand-gravel ratio)
1:2 1/25 for walls
1:2:4 for flooring
1:7 for concrete hollow blocks
Secondary water gates are usually made of creosated lumber, CHB, poured cement, or Eternit (asbestos cement) boards with lumber studs. Materials and equipment used:
Excavation - leveling
Hand tractor (rotivator)
Construction specifications:
| Main dike | : | 3–8 mb × 2 mh × 2 mc |
| Secondary dike | : | 3–4 mb × 1.5 mh × 1 mc |
| Main gate | : | 1 m opening, 8 m long |
| Secondary gate | : | 1 m opening, 4 m long |
| Peripheral canal | : | 5 m wide, 75 m deep |
| Nursery pond | : | 30 × 50 m |
| Transition pond | : | .5 ha - 1 ha |
| Formation Pond | : | 2 ha |
| Rearing pond | : | 5–10 ha |
Costs:
| Earth moving | : | 4.00 per cu m |
| Bulldozer rate | : | 100.00 per day |
| Shovel crane | : | 200.00 per day |
3. ENGINEERING ASPECTS OF MANAGEMENT
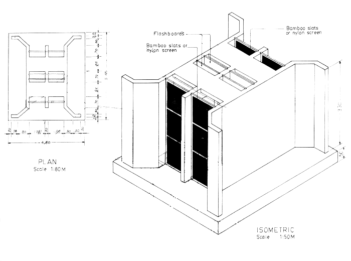
3.1 Overflow gate (Fig. 1)
In areas susceptible to floods, emergency overflow gates are installed. This construction is provided with cement floor extending to about half the total height of the dike. Two main posts are installed grooves for slab and screen. When not in use this is covered with soil. In case of emergency, this site is dug and screen wire is installed.
3.2 Repair of washed-out dike (Fig. 2)
Whenever a portion of a dike is damanged by flood, the dike is repaired by deviating from the original path of the dike and constructing a V-shaped temporary dike toward the pond side.
3.3 Bamboo jetties to prevent scouring at river bends (Punta Diamante) (Fig. 3)
Fast currents of river bends can erode river banks and endanger fishponds in the vicinity. To prevent this, jetties made of bamboo or coconut trunks set in the form of an inverted V towards the bank is installed. Branches and twigs of swamp trees are placed inside which serve to slow down the current and allow colloidal suspension to settle at the bottom thus in due time the site becomes shallow due to accumulation of sediments.
3.4 Installation of wave breakers (Fig. 4)
In the construction of main dikes in areas directly facing the wash of waves, the cut down branches and twigs of some vegetation are piled and held together by stakes 3–5 m from the base and laid parallel to the main dike to serve as wave breaker. By the time these branches have rotted the soil of the newly-constructed dikes would have compacted and stabilized capable of withstanding pressure erosion.
3.5 Main dikes laid diagonal to direct wash of waves (Fig. 5)
There are two main monsoon wind directions in the Philippines, the northeast and the southwest monsoons. The southwest monsoon brings the more destructive typhoons. To minimize wave destruction and erosion of newly-constructed dikes, they are laid out diagonal to the main wash of waves.
3.6 Double main dike construction (Fig. 6)
In the development of fish farms that are 50 hectares or more in area, whenever there is sufficient soil for dike construction, double peripheral dikes forming a canal surrounding the project is constructed. This canal serves as a protective moat around the project, excess soil is properly utilized and the canal is likewise used for shrimp or crab culture. The drainage and exposure of the pond bottom can be effected without danger even during high tide conditions.
3.7 The catching pond used as a protection for newly-constructed main gates (Fig. 7)
In order to equalize water pressure on both sides of a newly-constructed main gate, tidal water is allowed free entrance and exit in order to prevent water seepage under the newly-constructed structure. Water control is managed by operating the secondary gate until proper stability of the new gate has been assured.
4. MILKFISH POND MANAGEMENT
Procedure is based on two pronounced seasons, i.e. dry from November to April and wet during the rest of the year.
First rearing season - pond preparation Pond pest control and fertilization
Pond bottoms are drained and dried for 2–3 weeks for bottom soil to harden and crack to dryness.
To eliminate fish predators use any of the following:
Application of 180 kg/ha of teaseed cake (Camellia sinensis). Pond fertilization may follow 10 days after. When the toxicity has worn off the pond, then it may be stocked.
Application of 0.1 ppm Gusathion A. Ponds have to be washed thoroughly to eliminate any toxic substance.
Application of 16 ppm potassium permanganate. Wash ponds after eliminating unwanted species.
To eliminate polychaete worms and snails, apply 0.3 ppm Bayluscide in pond water.
Apply 2 000 kg/ha chicken manure and 400 kg/ha of tobacco dust evenly on dried pond bottom. Let in 10–15 cm tidal water to cover entire pond bottom.
The water is allowed to evaporate until pond bottom cracks to dryness (3–4 weeks).
Upon drying, apply 10–15 kg of Nitrogen and 10–15 kg of P2O5 chemical fertilizer. Add 150–200 kg/ha of rice bran. Fill the pond with tidal water 10–15 cm.
After one week, let in 20–25 cm of tidal water. Depending upon the quantity of algal food generated, the ponds should then be ready for stocking with fingerlings.
After the harvest of the first crop of milkfish from the ponds, the ponds are refertilized with 100 kg of 16–20-0. Two weeks pond preparation in between crops is allowed before stocking. Three crops a year of from 500–800 kg of milkfish per crop is feasible with proper management techniques on a properly laid out pond system.

Figure 1. Overflow gates

Figure 2. Repair of washed-out dike

Figure 3. Bamboo jetties to prevent scouring at river bends (Punta diamante)

Figure 4. Installation of wave breakers

Figure 5. Main dikes laid diagonal to direct wash of waves

Figure 6. Double main dike construction

Figure 7. The catching pond used as a protection for newly constructed main gates
SCSP-SFDC/77/AEn/CP27
by
M.M. Lijauco
SEAFDEC Aquaculture Department
Leganes Station
Leganes, Iloilo, Philippines
1. INTRODUCTION
1.1 Historical background and objectives
The Leganes Station is one of the eight that comprise the present network of field units of the SEAFDEC Aquaculture Department in the Philippines (Fig. 1). The other seven are: the Binangonan Sub-Station, located in Rizal Province in Luzon designed for freshwater aquaculture research; the Pandan Sub-Station in Panay Island, for induced spawning of the milkfish; the Igang Sub-Station in Guimaras Island and Batan Sub-Station in Panay Island, both for broodstock development; the Himamaylan Sub-Station in Negros Island for research on mussel culture; the Zamboanga Sub-Station in Mindanao for seafarming, and the Naujan Station in Mindoro for breeding of mullet and other marine species.
Originally, the site at Leganes was the main and focal point of discussion and evaluation during the negotiations in the early seventies for the establishment of SEAFDEC Aquaculture Department in this part of the world. Subsequently, construction work started in April 1972 for a 10-ha experimental farm which was the first landmark of SEAFDEC in this country. Before long, however, a combination of technical and administrative considerations led to the final decision to put the main research and administrative facilities complex of the Department at its present site in Tigbauan, Iloilo. The original Leganes site, because of its inherent characteristics was developed into a farm composed of six one-hectare ponds. It later expanded through the acquisition of surrounding areas, and has since then been going through a series of physical developments expected to be completed in 1978. The Station developed and progressed as a vital and invaluable supportive unit of the Department, primarily, by providing brackishwater experimental and production ponds of varied sizes and designs for field testing of results routinely obtained in the more basic and indoor-type studies conducted using the facilities at Tigbauan.
Initially, the concept was that pond facilities at the Station would be used almost exclusively to support research on shrimp cultivation. However, along with the Department's ultimate thrust into research on milkfish and other cultivable fin fishes and crustaceans, additional ponds and supportive facilities were provided for including personnel.
At the present stage, research and development projects for the cultivation or production of P. monodon still make up the bulk of activities, with production schemes for milkfish undertaken in most of the still unrenovated portions of the area. Studies on the monoculture of mud crab (Scylla serrata) and its polyculture with milkfish are programmed to start in early 1978. Invariably during the next two years, it may be expected that development projects borne out of advances in aquaculture research will increase in terms of both number and magnitude. In this regard such development projects requiring the use of brackishwater ponds will further make even more significant and indispensable the farm facilities at Leganes.
More recently, the unequivocal response among the traditionally biology-oriented fish culturists towards the concept of engineering as a potent tool in increasing pond productivity, constitutes more than a valid proof that aquaculture is more of a science rathar than it was thought of predominantly as an art. Research will eventually proliferate in the field of aquaculture engineering relating to pond designs and layouts, water flow control systems, etc. In this regard, the Leganes pond facilities may yet become the pioneer laboratory of the Department in this very essential field of aquaculture research.
1.2 Location of site
The Station is located on the southern coast of Panay Island, 15 km by road northeast of Iloilo City, at a site about 5 km eastward from the center of the Municipality of Leganes (Fig. 2). It faces Guimaras Island at a distance of about 5 km across the Iloilo Strait. It is reachable in a 25-minute drive from Iloilo City on a concrete-asphalt road passing through Leganes, from where the road leading to the site has been concreted except for about a kilometer stretch. It is alos accessible by way of the sea although necessitating the use of shallow-keeled vessels to negotiate the bottom of the Guigui Creek towards the approach leading to the site.
The Municipality of Leganes owns 186 ha of fishpond, a portion of which was leased to the Department for the establishment of the Station. It lies adjacent to the 40-ha experimental pond system of the Brackishwater Aquaculture Center of the University of the Philippines and with which it shares a common supply-drain canal in one section. The SEAFDEC pond system comprises three lots. The first, on one side of the Guigui Creek, follows the coastline along the mouth of the creek in an ox-bow fashion ending at a point about 600 meters upstream. The Guigui Creek vanishes into a maze of fishponds, salt beds and rice lands about 1 km further inland. The second on the opposite side is almost trapezoidal in shape but is shielded from the sea by a 60-ha reclamation project undertaken by a private fish farmer. The third is at the bank of the Jalaud River bordering a bend just before the river spills into the sea 1 km downstream. This lot is connected to the second by a canal.
To the north of the site and across the Jalaud River are the towns of Zarraga and Dumangas, which are two of the towns on the vast coastal plains characterizing the eastern part of Iloilo Province where productive fishpond areas are found. The immediate surrounding area is flat, composed mostly of ponds and salt beds punctuated by small communities of families of fishpond workers and fishermen.
1.3 Ponds and other facilities
Ponds
As already mentioned the Station started with a 10-ha project in 1972. Later in 1974, the total area increased to 96 ha after an agreement was entered into between the Department and the Municipality of Leganes for the lease of the surrounding fishponds. Immediately after acquisition, site development was initiated which was carried out over a period of about two years. By the middle of 1977, approximately 70 ha had become almost fully operational, although, large and irregular-shaped ponds were still the dominant features. These large ponds were invariably not very suitable for controlled experiments, thus, were used primarily for production schemes of milkfish.
The need for a large number of smaller and uniform-size ponds increased as more and more basic studies yielded results requiring follow-up studies under pond conditions. For instance, in the field of fish nutrition much of the work has been done, as a normal course, under simulated conditions in tanks at the Tigbauan complex. Field-testing in smaller ponds of formulated feeds developed in this manner is but a normal sequence before the same is done in large growout ponds.
As another example, the case may be cited of the hatchery technology developed by the Department for mass-producing post larvae of P. monodon which, in itself, was a significant success; but not quite so complete when it was discovered later that hatchery-bred postlarvae almost could not survive when directly stocked in grow-out ponds. Preliminary trials indicated strongly the use of small intermediate nursery ponds to increase survival.
In the face of these needs, the most recent construction project was started in August and programmed to be completed in April 1978. The development plan calls for an additional 105 units of ponds, bringing the total to 177 units upon completion.
On the whole, the Station will soon have a brackishwater pond system that will, for some time, allow continuing research, production and development projects for shrimp, milkfish and possibly other cultivable species of crustaceans. Most of the larger and irregular ponds are being subdivided into smaller and uniform-size compartments to permit ample replication. Water control structures will be provided to maximize the use of water from both sources, the Guigui Creek and the Jalaud River.
In the new development plan, additional features have been incorporated to provide for flexibility and manageability both in terms of pond use and of supervisory work needed in coordinating activities of various studies undertaken simultaneously. One important feature makes it possible to draw in and store freshwater available at Jalaud River during certain phases of the tidal cycle for use in studies or project needing deliberate control of salinity levels in ponds. Two pumps, each delivering 4 000 to 5 000 gallons per minute will be installed at the gate fronting the Jalaud River to supply freshwater into a supply canal leading to reservoirs built for the purpose. Also, lock gates in the main canals will control flow of water along their entire lengths, which will allow simultaneous but independent activities.
In general, the new plan reduces pond bottom elevations to give a wide range of possible water depths. Some studies may require shallow water, some deep exceeding over a meter. Excavations will give finished pond bottom elevations ranging from 0.7 to 0.9 m above the tide datum.
1.4 Supportive facilities
Together with the development of the pond system is a continuing programme for land-based facilities to ensure both the smooth conduct of research and the orderly supervision and administration of the Station. A two-storey wooden structure with a total floor area of 168 m2 and built in 1975 has served over the years to house the offices, laboratory and quarters of the staff. Power is provided with a number of small generating units with capacities ranging from 5 to 20 KVA. A one-way radio system links the Station with Tigbauan and Iloilo City.
Construction of four one-storey concrete structures was recently completed on an 8 200 m2 strip of land reclaimed along the bank of Guigui Creek. The main administration-research building has a total floor area of 768 m2, apportioned mainly into offices for the administrative staff, a chemistry-biology laboratory, cubicles for researchers and assistants, a library and a 60-seat audio-visual and briefing room. Some spaces are also provided for a modest clinic, a projection and photograph processing room and a coffee counter.
A 160 sq m utility building provides spaces for stonage of supplies and materials and for offices of some ground and field personnel. A row of six apartment houses and a duplex are reserved for staff housing and for accommodating transient researchers, visitors and guests. A 150-KVA generator has been installed in a separate power house with another standby unit forthcoming. Also, plans have been drawn for a 500 m2 wet laboratory, a canteen-cafeteria, additional storages and caretaker's houses.
Freshwater supply for laboratory and domestic use is a problem long ago recognized. This is partly alleviated by catching cistern water in two underground tanks, one with a capacity of 2 400 gallons, the other 2 200 gallons. Water is circulated into the buildings by booster pumps.
A Roots blower will be installed from where aeration lines will lead to strategic places within the immediate vicinity of the complex. For field work or for some activities in the pond system needing aeration portable compressors, instead, will be used.
On the whole, one can now speak of the Station's physical facilities as nearing full development. In 1978, almost all the entire area will become functional, drawn to the specifics of a number of pre-selected research studies and development projects the Department will be involved within the years to come. The rapid pace at which these facilities are set up very well reflects in large measure the overwhelming optimism that SEAFDEC has in achieving its immediate and long-term goals.
2. GENERAL LAYOUT
The prevailing concensus has always been for the maximization of utility with equal consideration given for flexibility in the use of ponds and landbased facilities to serve the diversified needs of research, development projects and training programmes. The ease or difficulty of supervision over these activities was also heavily considered.
2.1 Design and specification of ponds
As repeatedly mentioned, the pond system was so planned out to provide facilities for various research, development projects and training programmes in brackishwater aquaculture. Specifics in terms of pond size, number, location relative to the whole area, canal system, etc., are drawn following certain definite requirements. For purposes of identification and description, the entire pond complex of the Station is divided into zones as Shown in Fig. 3, indicating more categorically the varied types of layouts adopted.
2.1.1 Shrimp nursery pond system
Zone I sits on the initial 10-ha area acquired by the Department in 1972 (Fig. 4). The buildings and other land structures are located in the portion nearest the bank of Guigui Creek. The adjoining row of six ponds, each with an area of about 1 ha was used during the early years of the Station both for milkfish and shrimp research and production schemes. These ponds are sandwiched between the main supply canal of the Station and the main drain canal (not indicated in the figure) of the fishpond system of the Brackishwater Aquaculture Center (BAC). These six ponds were constructed along the traditional concept, i.e. large rectangular compartments with two sharing a common catching pond through which water is drawn in or out through a secondary gate connected directly to the main canal. A pair of tertiary gates are positioned diagonally at the promontory corners. The inherent weakness of this set-up was not readily recognized until about a year of operation. Poor conditions in ponds pointed to inefficient water exchange and circulation as two of the probable causes. Subsequently, wooden gate pipes have been installed connecting the paired ponds with each other and with the BAC canal.
The series of rhomboid ponds at the far end is a recent construction specifically designed for both experiments on and mass production of P. monodon juveniles, the latter being the direct sequence to the successful shrimp hatchery operation achieved in Tigbauan.
This latter series in its present form incorporates innovative features (Fig. 5 to 7) borne out of actual experience by SEAFDEC researchers. For instance, it was found out that rhomboid ponds if properly oriented to the prevailing wind direction allows the funneling of floating clumps of lab-lab in the acute corners, from where they may be dispersed and pushed back by the incoming water. Heavy piling-up of lab-lab has been identified as one of the probable causes of low recovery rate in shrimp nursery ponds, associated with accumulation of toxic gases, low dissolved oxygen and outright stress due to excessive handling when handpicking entrapped shrimp.
The pond area has been considerably reduced. The major consideration revolves around manageability, facility of water exchange and ease of harvest, all found virtually lacking in the larger 1-ha ponds. The new series totals 32 experimental nursery ponds, 16 of 200 m2 and 16 of 500 m2. The ponds are laid out in rows separated alternately by a supply and drain canal so that each pond receives water from an inlet and drains out through an outlet at the opposite end. Sufficient height of embankments is provided with water ranging from 1.0 to 1.5 m deep.
The latest innovation on the water supply system are two reservoir ponds. From these reservoirs water is distributed via a concrete trough, 40 × 70 cm (section) built on the crown of the dike leading into the 200 m2 ponds, and by underground 5 in diameter PVC pipe that feeds the earthen canals in the rows of 500 m2 ponds (Fig. 6). In both cases, each pond receives water through a 2 in or 5 in diameter PVC stand pipe with small perforation towards the end. A wooden plug is provided to block the flow if so desired, so that water comes out through the perforations like in a sprinkler. Preliminary observations by a researcher on the use of this sprinkling device showed a significant increase in the daily minimum levels of dissolved oxygen.
The provision of two reservoirs also makes it possible to effect a flow-through water system in the experimental ponds and to adjust salinity to desired levels. The reservoir bottom elevation is so constructed high enough to provide the necessary head for water by gravity. In this case, however, it is necessary to use a pump in filling the reservoir with the required volume of water to maintain the flow.
One other feature introduced is the use of a box-like contraption fashioned out mainly of lumber boards and joined structurally with the monktype control gates. The open top is fitted with a removable screen tray on which a 3-inch layer of coarse sand is placed to increase filtering effect. The boards at the bottom may be replaced, instead, with bamboo splits should there be a need to increase discharge through the box.
Coupled with the drain pipe, the box doubles as a collecting pit for shrimp when the lid tray is removed during the final phase of draining the pond. The Station uses two types of this device, one installed at the reservoir which serves to filter water prior to distribution; the other at the drain end of each experimental pond. The former measures 4 feet long, 8 feet wide and 18 inches deep; the other 3 feet long, 4 feet wide and 18 inches deep.
2.1.2 Shrimpand milkfish experimental ponds (Zone II)
Two systems (Sub-Zones I and II) are lumped together for reasons other than proximity alone (Fig. 8). The combined area totalling 16 ha was acquired as a single parcel and until lately used almost entirely as production ponds for milkfish.
Zone II-A consists of a series of eighteen 1 000 m2 ponds (labelled nursery ponds) and forty-eight of 200 m2 ponds (labelled shrimp experimental ponds). All these are presently under construction and scheduled to become operational by January 1978. The nursery ponds when completed will be immediately put to use in field-testing pelleted feeds for milkfish. The ponds are designed to receive water to a depth as much as 1.2 m by gravity through open sluice gates opening to the two main canals.
The shrimp experimental ponds are divided into three groups, each consisting of two rows of eight units separated by a canal leading to the main. These ponds are built within a large compartment on purpose. The unoccupied portion, with a surface area closely matching that of the total of the ponds is designed as the reservoir from where water is drawn into individual ponds and draining out through the common canals between the rows. This set-up will permit both a flow-through system and maintaining of desired salinity levels in the ponds. The design also provides for a possibility in the future to make the groups function independently from one another. A dike built parallel to the rows midway between two groups makes one independent of and still proportionally similar to the remaining two in terms of the reservoirpond area ratio.
On account of the small area of each compartment and the unavoidable large embankments to hold water reaching as high a 1.2 m, problems associated with excessive siltation were foreseen. To alleviate, the entire side of the earthen dike forming the pond is lined with a vertical wall made of concrete hollow blocks.
Eight compartments make up Zone II-B into a so-called modular pond system for milkfish production, thus, in a way setting aside for the moment a set of ponds specifically for this particular pond management technique. Nonetheless, a slight renovation in the future could easily transform the layout into smaller and uniform-size ponds that are normally required by other research undertakings.
The modular set-up consists of ponds literally linked up one after the other in a continuous sequence of rearing and transfer of stock until finally the fish are fully grown for harvest. A pond once vacated is immediately prepared to receive the incoming stock from the preceding pond following a preset schedule. Starting out with a high density the stock is herded into the next larger compartment, thus, reducing density and progressively on to the next.
At the Station various combinations of stock density, size or weight of fish, and length of culture or frequency of transfer will be tried to measure the efficiency of the system in increasing total production. For this purpose, the Station has a module consisting of four 1 500 m2 nursery ponds, one 0.5 ha stunting pond, and single units of 1.0 ha, 2.0 ha and 5.0 ha rearing ponds.
2.1.3 Shrimp nursery and production pond system (Zone III)
Repeatedly mentioned explicitly or implicitly is the ultimate goal of the Department to build around a cultivable aquatic species a completely packaged technology on three aspects, namely, the mass production of seeds for both intensive and extensive farming, the culture techniques itself that ensures economic viability, and the complete independence from the wild spawners to sustain continuous hatchery operation. Towards this end, some degree of success has already been achieved as far as the P. monodon is concerned. It is now possible to produce in land-based hatchery large quantities of postlarvae of this penaeid shrimp. However, the advances on the two other aspects have yet to be asserted. The hatchery still operates virtually dependent on gravid spawners collected from the wild, while the farming techniques in the production of full-grown in ponds have hardly deviated from the traditional practices.
Research directed toward the solution of the two above problems prompted construction of a portion of the Leganes area into a pond system designated as Zone III, the detail of which is shown in Fig. 9. The 11.0-ha area is closest of all to the Jalaud River, a major consideration in its choice. Salinity has been recognized as one of the key environmental factors affecting growth of P. monodon in ponds, and the Jalaud River as earlier mentioned makes it possible to maintain salinity of the pond water at preferred ranges. Two pumps each delivering about 4 000 to 5 000 gallons per minute has been installed onto a five-door monk-type main control gate (Fig. 10). The pump-gate combination has been structurally arranged to simultaneously pump water into the main canal and drain the sump at the extreme upper end of the row of smaller experimental ponds. This simultaneous operation, possible only during low tides, is designed to effect a flow-through system in the smaller ponds. The area is divided essentially into two sections separated by the main canal. To the left are, a reservoir, 24 units of 1 000 m2 nursery ponds and a sump. The canal and gate system allows independent water management for individual compartments aside from and a flow-through system earlier mentioned.
On the other side of the canal are four 1-ha grow-out ponds, two broodstock ponds and a reservoir. In the grow-out ponds are programmed a number of studies on the production of adult P. monodon aimed towards the development of intensive type of culture. In the broodstock ponds further attempts will be made to induce gonadal maturation and possibly spawning in captivity of P. monodon.
Two other ponds located alongside the main supply canal are unprogrammed. In the middle is a rectangular lot, 30 × 50 m, to accommodate field offices and storages for supplies and equipment. The dotted lines indicate the boundary of still undeveloped area of about 11.0 ha reserved for future expansion.
2.1.4 General utility ponds (Zone IV)
Viewed from above, the whole area (Fig. 11) totalling 17.5 ha when finally constructed has a shore development of one closely resembling an oxbow lake, criss-crossed by dikes that make up the large old-shaped ponds. Closely examined, some regular patterns become discernible in the form of a centrally located main canal that extends from the Guigui Creek to a point about midway between the two most remote extremities, a number of parallel dikes radiating from the canal and a cluster of nursery ponds.
The four ponds nearest to the creek each has an area of about 1 ha giving them some limited uses for comparative type studies. These ponds have already been programmed for use in a preliminary study on the polyculture of mud crab (Scylla serrata) and milkfish. In the future these ponds may be subdivided into smaller and uniform-size ponds to increase their utility.
Presently, the plan calls for the construction of sixteen 200 m2 nursery ponds which may be utilized for experiments requiring small ponds. At least for the incoming year, these nursery ponds are programmed to receive and rear milkfish fry for stocking in the larger ponds, and also to make available test fishes needed by other studies under the milkfish research programme.
The strip of land along the boundary facing the sea has been considerably eroded. Future reclamation work will involve extension and relocation of dikes as shown in dotted lines.
3. DESIGN AND SPECIFICATIONS
3.1 Dikes
The design and specifications of dikes delineating the boundaries of the Station and the ponds and canals in the various areas or zones described in the preceding section, categorically follow a definite pattern for height, slope and width of crown. However, rather than present the specifications of the dike structures in each of the zones or ponds as though reviewing through an engineer's work plan, it is thought best to give, instead, the set of criteria that were used in arriving at such specifications. Doing so may also reveal other overriding factors aside from those normally viewed from a purely engineering standpoint. Admittedly, the case may also be stated in reverse.
3.1.1 Height of dikes
This is governed mainly by the normal maximum height of water the dike is expected to contain or block. Sufficient freeboard must be provided to ensure against both overflooding during inclement weather and the less likelihood of the stock jumping over the dike. As most brackishwater ponds are fed with tidal water by gravity, the height is expressed more appropriately as the elevation of the crown from the zero datum. Expression of height from the base becomes misleading in the case of a dike between a canal or river and a pond, since the bases do not fall on the same plane.
In deciding the height an overriding factor often encountered is when getting rid of excess soils becomes outrightly impossible or economically difficult, making the dike the most logical place to put them on. An extra inch or two added to the height may not at all work against the dike, but excessively topped, its slope becomes excessively steep.
In Leganes, the tides approximate very closely those predicted for Iloilo City. The highest level reaches 2.0 m, and on this basis, the heights of the crowns of the perimeter and main supply-drain canals are 3.70 and 2.8, respectively.
The height of pond dikes are determined in the same manner, that is, depending on the depth of water the pond is expected to contain. At the Station the ponds are given as much flexibility in depths to maximize their usefulness. Bottom elevations range from 0.7 to 0.8 m; height of dikes from 2.0 to 2.8 m from the datum level.
3.1.2 Slope
Mathematically, the slope is an expression of the ratio height is to base. The choice of a wider ratio, say, 1:2 over 1:1.5 primarily takes into consideration the type of soil filling material. However, when the height becomes the more limiting element in a dike like those in deep-water ponds, some other considerations may influence a particular decision. A wider ratio assures more stability, but may reduce considerably the area for production. Also, dikes with broader bases may increase the watershed area to a proportion as to contribute significantly to rapid siltation of the pond, especially so in the case of the smaller compartments. Considering the above, a 1:1 ratio is for the most part adopted at the Station.
3.1.3 Crown
A long-term objective is to have mechanized means for transporting supplies and materials, equipment and personnel to strategic points within the pond system. The main route has a 3-m crown, the rest 1 or 2 m in width.
3.2 Water control gates
The absence of any other structure controlling the flow of water in and out of a brackishwater pond virtually makes it a mere semi-enclosed extension of the sea. This control structure takes varied forms, designs and specifications, but on the whole, its usefulness is measured in terms of its effectiveness as a devise in helping increase the probability of success for other biological and physical means in increasing pond productivity.
In addition to those earlier described and illustrated in Zones I and II, the other types of control gate structures used at the Station are shown in Figs. 12 to 15.
4. CONSTRUCTION
4.1 Methods used and costs
In the construction of ponds intensive manual labour is employed. A swampdozer with a blade 8 × 2 feet was tried on a high ground where a reservoir was to be built. The machine was constantly bogged down in the soft sub-soil prompting the calling off of plans for mechanization.
The work programme has scheduled for completion first the shrimp nursery and production ponds (Zone III) and 14 units of milkfish nursery ponds (Zone II-A), followed by the concrete-lined experimental ponds, the modular ponds and the production ponds (Zone III), in that order. The nature and extent of earthwork in each schedule served as the basis in subdividing it into a number of jobs. For instance, Zone III pond system was divided into two, each requiring a separate contractor. A contractor normally fields a force of about 100 to 120 men grouped in teams of 8 to 12 men.
Work on a job follows after a negotiated contract is signed. The
average prevailing price is 4.00 ($0.54) per cubic meter of trimmed dike,
with a maximum hauling distance of 15 to 20 m. Flatboats and foot planks
are provided. The same price is asked for excavation and dumping into a
dike. The cost is lower in the case of levelling at
1.00 ($0.14) per
square meter.
Construction of water control structures is by direct supervision. It assures strict compliance to designs and specification which in the long run will more than compensate for the additional cost and longer time involved.
4.2 Problems
Viewed strictly from experience at the Leganes area and vicinities, two types of problems easily stand out from the rest. The first one is related to labour, more specifically, its cost and availability. The market price of labour required in pond construction is far from being standardized a problem many times magnified in a situation when the demand widely exceeds the supply. Often, the result is that negotiated contract applies more heavily on the basis of the more unfavourable conditions of ponds or jobs. If hired on a daily basis, the workers easily catch on with the practices of “feather-bedding” and deliberate control of output at any slight instance of a difficult job or working condition. The practices are, in many instances, detectable but control against them cannot be instituted that easily. Some compromise must be made between strict work rules and the strong possibility of losing the workers.
A common problem is that related to mobility of labour. Mobility among pond workers in the area is very fluid, that is, they tend to shift freely from fish farming to rice farming with the latter probably exerting the stronger influence. An oversupply in a month may turn in the next to a critical shortage once the rice harvesting season starts. Delays in schedules of start or completion of work are not uncommon.
Hauling of supplies and materials is almost always a major constraint. Very seldom is a brackishwater fish farm accessible by good roads. Feeder roads, if at all present, are rutted during inclement weather that makes transporting extra difficult and time consuming.
5. RECOMMENDATION
In a general sense, ponds are no different from one another, in that, they all serve but one single purpose - for increasing aquatic life. Such a generality has long given way to those more specific and precise. Aquaculturists now speak of various kinds of ponds according to a number of categories such as species cultured, nature of water supply, type of culture operation, depths, and even the type of food base used during culture, to name a few. There is no way telling when this categorization will eventially stop. But while aquaculture develops zoology, botany and chemistry continue to be the three most dominating disciplines. Only recently has engineering attracted considerable attention not because it is entirely new for even traditional ponds have some forms of layout and designs. But the main consideration has revolved only around the physical or structural aspects of dikes and water control devices to give these structures durability and longer life.
The emerging importance of engineering to aquaculture comes with the realization that the physical attributes of a pond have strong influence on its inherent productivity. Transforming this concept into specific terms has yet to be accomplished. Suffice to say that the objective should be towards developing pond management schemes based on specific definitions of the physical-biological-chemical relationship conducive to high production.

Figure 1. Map of the Philippines and Panay Island showing the location of the main and field units of the SEAFDEC Aquaculture Department (Revised from a map in the 1971 survey report by a team of Japanese experts, Otca, Japan)

Figure 2. The site of the Leganes Station and immediate vicinities. SEAFDEC, Tigbauan, 25 km west of Iloilo City through the town of Oton. (Abridged from a 1:50 000 topographic map, Board of Technical Surveys and Maps)

Fig. 3 Development plan showing pond system grouped into zones.

Figure 4. The shrimp nursery pond system composed of rectangular and rhomboid ponds

Figure 5. A-1-ha nursery pond system in a diamond shaped design

Figure 6. Diagram illustrating the positions of inlet pipe
A - different positions at side view. A vertical
position no water goes out while at horizontal
position water pass through perforations thus
provide aeration by the sprinkling water.
B - Vertical position side view
C - Horizontal position, top view

Figure 7. Diagram showing filtration box in reservoir pond
A. Top view showing layers of coarse sand, nylon screen
and bamboo splits.
B. Side view of filter box in reservoir pond.
C. Inset showing the details inside filter box and drain box.

Figure 8. Shrimp and milkfish experimental ponds (Zone 11-A) and a modular system of ponds for milkfish production (Zone 11-B)

Figure 9. Shrimp nursery and production pond system

Figure 10. Main control gate fronting the Jalaud River. Fresh water is sucked (pump not shown) from sump pit and discharged into the pipes leading to supply canal
Figure 11. Milkfish production ponds of varied sizes


Figure 12. Main gate

Figure 13. Secondary gate

Figure 14. Tertiary gate

Figure 15. Wooden gate