SCSP-SFDC/77/AEn/CP17
by
P. Edwards
Asian Institute of Technology
Bangkok, Thailand
ABSTRACT
The objective of the described project is to investigate the operation of a stabilization pond driven, two trophic level fishpond system involving phytoplankton produced in high rate pond and phytophagous fish reared in the 16 associated fishponds. The yield and feeding efficiencies of the fish as a function of stocking density and algal feeding rate will be studied. The major objective is to quantify and optimize fish productivity and to determine the optimal land ratio between stabilization and fishponds. An evaluation will be made of the total yield of fish of marketable size for human consumption and of small fish for processing into fish meal for feeding aquatic animals with a high market value. The fertilization potential of the final effluent for agricultural crops will be assessed. The attenuation of human intestinal bacteria through the system will be monitored.
1. INTRODUCTION
The provision of adequate sanitation and food are major problems in the developing world. With a soaring human population due to elevated population growth rates in most countries, these problems are likely to become exacerbated in the future. Since human wastes are a good source of nutrients and thus potentially a valuable natural resource, it is essential that a study of their recycling be implemented.
Taiganides (1976) has proposed the development of a new science, coprology or the study of wates, from the Greek word, kopros meaning dung. The basic tenet of this discipline is that there are no such things as wastes, i.e. “all wastes are resources out of place”. The recycling of wastes would achieve the objective of their sanitary disposal and thus alleviate water pollution and diseases caused by insanitation; the production of a valuable by-product in the form of an agricultural or aquacultural fertilizer would help to defray the cost of the process and could even lead to a profitable venture.
It is axiomatic that human wastes (also kitchen and animal wastes) be used in aquaculture directly as organic fertilizers or indirectly to produce feed, e.g. algal or duckweed, for aquatic food organisms. The provision of feed in pond fish aquaculture comprises well over 50% of the total operating costs (Hepher, Pruginin and Schroeder, personal communication) If aquacultural practices are to be rapidly expanded in developing countries to provide supplies of sorely needed high quality animal protein, then non-conventional sources of feed derived from wastes should be developed. The people who most need to become involved in aquaculture, the rural poor people, do not have enough capital to purchase fertilizers and fish feed, but even if they had, there is insufficient conventional fish feed available to support a large expansion in aquaculture.
1.1 Human wates and fish cultivation
Domestic wastes have been used in aquaculture in Asia for centuries but more recently their use has become widespread and a variety of methods are employed. A classification of the ways in which human wastes may be utilized in pond fish cultivation is presented in Fig. 1. The scheme is based on information from the textbooks of Hickling (1971) and Bardach, Ryther and McLarney (1972) and from review papers on the use of sewage in aquaculture by Allen (1970), Allen and Hepher (1976), and Hepher and Schroeder (1977). The following references not cited in the above sources were consulted also: Chattergee, Arora & Gupta (1967), Ghosh & Hanumantha Rao (1973); Ghosh, Hanumantha Rao, & Banerjee (1974); Ghosh, Hanumantha Rao & Saha (1976); Huang (1968); Konefes & Bachmann (1970); Krishnamoorthi, Abdulapa & Jagannath Rao (1976); Krishnamoorthi, et al. (1975); Muthuswamy, Govindan & Sundaresan (1974); Prowse (1966); Schroeder & Hepher (1976); Slack (1974); Tapiador (1973); Teoh (1974).
The use of human wastes in pond fish culture is divided into seven categories. However, three of these have little potential for more widespread use because of aesthetic and public health reasons. They are the direct application of human wastes, e.g. the location of latrines directly over fishponds, or the indirect application without further treatment, e.g. nightsoil or as undiluted or diluted sewage, e.g. with river water. Those methods which use treated nightsoil have potential widespread applicability for rural Asia because of its almost universal availability. These are the composting of nightsoil during which there is evidence of pathogen destruction (Kawata, Cramer & Burge, 1977), and the use of nightsoil in biogas production, after which the sludge, effluent, or the slurry formed by combining the two may be used as an organic fertilizer. If sewage is available, it may be pretreated by trickling filtration, activated sludge, or stabilization ponds prior to application to fishponds. In both dilution and pretreatment of sewage, which are sometimes combined in the same system, a preliminary filtration or sedimentation of the wastes may be employed to reduce the biological oxidation demand (BOD). This may be necessary for a given system to function properly, but it is wasteful since it shortcircuits some nutrient containing organic matter from the system. Methods should be developed which fully recycle the waste. Additional waste treatment schemes not incorporated into the classification are those reported by Chatterjee, Arora, and Gupta (1967), and Chan (1974). In the former, fish were cultivated directly in a stabilization pond which received only very dilute sewage. Chan (1974) proposed a scheme in which sludge from a biogas digester is added to a stabilization pond and then the effluent from the stabilization pond is led into a fishpond.
1.2 Fish yields using human wastes
The maximum yield in labour intensive subsistence aquaculture using only fertilization is 5 to 8 tons/ha/year but the normal yield for Southeast Asia is usually only 1 to 5 tons/ha/year (Bardach, Ryther & McLarney, 1972). However, where human wastes are used in aquaculture, much greater yields are reported. In Taiwan where rich sewage is diverted into fishponds, yields of Tilapia of 6.5 to 7.8 tons/ha/year have been obtained (Huang, 1968). Muthuswamy, Govindan & Sundaresan (1974) reported a yield of 7.7 tons/ha/year of Cyprinus carpio in a fishpond receiving stabilization pond effluent in India. Ghosh, Hanumantha Rao & Banerjee (1974), also in India, reported a yield of 7.7 tons/ha/ 7 months which is equivalent to an annual yield of 13.2 tons/ha. Sewage has passed into a sedimentation tank and then into a pond containing three Indian major carps and Chinese silver carp. In a commercial fish farm near Calcutta, yields of up to 28 tons/ha/year of marketable fish of 200 g average size were obtained in ponds receiving sewage. The growing season is 2 to 3 months and only two crops of fish a year are produced. If smaller fish were harvested and several crops a year grown yields of 50 tons/ha/year seem feasible (Tapiador, 1973). Yields of this magnitude were obtained by extrapolation in Thailand for Tilapia nilotica in an experimental stabilization fish pond system (see section on earlier Thai work).
1.3 Waste driven aquatic food chains
There are two basic ways or food chains by which organic matter can be converted into fish protein. The first food chain involves the production of phytoplankton from the nutrients released by the bacterial breakdown of the organic matter, which are then consumed by phytophagous fish. The second bypasses photosynthesis, and the bacteria which break down the organic matter are fed upon by protozoa and zooplankton which provide food for carnivorous fish. Both of course usually occur together, but one route can be encuraged at the expense of the other by the choice of system employed, e.g. the photoplankton route can be selected by breaking organic matter down in a high rate stabilization pond and then feeding the algal cells formed to fish. The food chain via protozoa and zooplankton can be favoured by adding sufficient organic matter to a fishpond to reduce the light penetration and thus impede photosynthesis. The latter system appears to be more productive in Israel since fish yields in ponds receiving only chemical fertilizers, which stimulate phytoplankton growth, rarely exceed 10 kg/ha/day whereas those ponds receiving intense organic fertilization have yields as high as 30 kg/ha/day (Schroeder, 1977). However, in tropical Asia with highly favourable conditions for photosynthesis throughout most of the year the phytoplankton - herbivorous fish food chain may be a more productive way to convert sewage into fish protein, especially if a fish such as Tilapia is used which can withstand a high stocking density. Monoculture of such a fish may even give rise to higher yields than polyculture, which is widely acknowledged to be a good method of increasing fish productivity through utilization of all the niches in a pond (Yashouv, 1966).
1.4 Stabilization ponds in aquaculture
Stabilization ponds, shallow rectangular lagoons, are widely acknowledged to be the least expensive method of treating sewage in the tropics. They have low construction and operating costs and produce an effluent of acceptable sanitary quality in terms of coliform bacteria and stabilize the waste in the form of algal cells. They are ideal for tropical areas provided that land is available.
Two groups of organisms are involved in the process; aerobic bacteria oxidize the waste to release inorganic nutrients and CO2 which are incorporated into algal cells. Oxygen released during algal photosynthesis is used by the bacteria during respiration with the net result that the waste is essentially converted into algae, which have a high protein content and thus form a valuable economic crop (Fitzgerald & Rohlich, 1958; Oswald, 1963). McGarry (1970) obtained an algal yield of about 109 tons of dry matter/ha/year in a high rate stabilization pond in Thailand.
It is difficult to harvest the algae because they are of small physical size and are in a dilute suspension which precludes simple sedimentation or floatation. There are methods of removing the algae from the pond water, e.g. flocculation or centrifugation followed by drum or sun drying but these have been uneconomical in the past (Oswald & Golueke, 1968; McGarry, 1970). However, because of a diminishing world supply and an increasing price of fish meal, research is being conducted in Israel to determine if it is possible to substitute the fish meal constituent of pellets for feeding fish with algae harvested by chemical flocculation from stabilization ponds. This process also has potential for developing countries in tropical Asia which are also faced with shortages and rising prices of fish meal.
A second approach to the utilization of stabilization pond algae in aquaculture is to keep the algae in solution and feed them directly to phyto-phagous fish which can filter them out of the water. Should the aesthetic and/or public health problems associated with the human consumption of fish reared on algae produced in stabilization ponds prove to be insurmountable, then perhaps the fish oculd be used to produce fish meal for feeding to high value aquatic food organisms. A prolific species such as Tilapia could produce several small crops of small fish per year to give a high total yield (Tapiador, 1973). This system may be economically viable in the near future because of the shrinking marine fish harvests due to the declaration of 200 miles fishing limits and overharvesting.
The fish would be unable to filter out all the algae in a stabilization and fish pond system. The final effluent from such a system could probably be used as an agricultural fertilizer. The fertilization potential of the fish pond effluent may exceed that of commercial inorganic fertilizers because only part of the former is soluble. Most of the nutrients would be tied up in algal biomass and would be released slowly as the algae decompose. Thus, rapid leaching of the nutrients from the soil would be prevented and the nutrients would be more fully utilized.
1.5 Earlier Thai work on stabilization and fish pond systems
Research on the conversion of sewage into herbivorous fish began in Thailand over five years ago (McGarry & Durrani, 1972). This preliminary work clearly demonstrated the feasibility of growing Tilapia on algae grown in stabilization ponds. A more extensive study was conducted by Wattayakorn (1976), who explored further the feasibility of converting sewage into fish protein. This study will be discussed in some detail since the project reported in this paper is an extension of this work.
The system consisted of a sewage holding tank from which raw sewage was pumped into a 4 m × 2 m × 0.9 m deep stabilization pond. The effluent was led into a 1 m × 1 m × 0.9 m holding tank to homogenize the algal concentration of the effluent prior to being pumped into a series of four fish ponds, each 2 m × 2 m × 0.9 m deep (not 1 m deep as reported, as measured from the bottom of the pond to the overflow pipe). Values were used to regulate the flow of stabilization pond effluent into the fish ponds. Two steel fish cages 1 m × 0.5 m × 0.9 m deep, with nylon bobinetting of quadrilateral mesh, were placed in each fish pond. The oxidation pond had a loading of 224 kg BOD5/ha/day and a three-day detention period and produce yields in the vicinity of 143.8 tons dry weight algae/ha/year.
Three fish were studied, Tilapia nilotica, Puntius gonionotus, and Pangasius sutchi, but since the former grew much better than the other two species, further discussion will be restricted to this species. Impressive yields of fish were obtained, but neither optimum algal feeding rates nor optimum fish stocking densities can be calculated from her data. The following feeding rates were employed: 100% surface water and fed with commercial fish pond twice a day at the rate of 4% fish body weight; 33% stabilization pond effluent, 67% surface water; 50% stabilization pond effluent, 50% surface water; 100% stabilization pond effluent. Flow rates were not measured so it is not possible to calculate the percentage of the pond volume replaced per day.
At a stocking density of 38 fish/m2 all regines had similar growth, although high mortalities occurred after four months in the undiluted stabilization pond effluent. The average weight of each fish after six months was about 70 g which gives an extrapolated annual yield of 53 tons/ha. In another experiment, the stocking density was varied, with a constant algal feeding rate of 33% stabilization pond effluent. There was little difference in growth at stocking densities of 10 and 20 fish/m2 but growth at 38 fish/m2 was much less after 4.5 months. The following results were obtained: 10 fish/m2, average weight 99 g, extrapolated annual yield 26 tons/ha; 20 fish/m2, average weight 90 g, extrapolated annual yield 48 tons/ha; 38 fish/m2, average weight 30 g, extrapolated annual yield 30 tons/ha. These yields should be reduced by an estimated 36% to include the area occupied by the stabilization pond which was used to grow the algae. Since flow rates of algal laden effluents were not measured, the reduction in yield was calculated as follows. The four ponds of area 4 m2 each were fed at 0, 33, 50 and 100% algal effluents from a stabilization pond of 8 m2 area. If all the ponds had been fed with 33% effluent, the lowest percentage tested, but which gave at least as high a yield as 50% and a greater yield than 100% effluent, then the stabilization pond could have fed an area of 22 m2. The yields should be expressed in terms of the combined fish pond and stabilization pond area, 30 m2 in the experiment, and not just 22 m2.
The above stocking density data can only give an approximate indication of the systems potential because the fish did not occupy all the water in the pond but only the space enclosed by the net. Thus, the fish waste products were diluted into a larger volume than that occupied by the fish, and algal cells were able to enter the net from outside the enclosed area. However, a point which may be very significant once the system is evaluated economically is that if total fish yield only is important and not the size of the fish, then high yields albeit of small fish can be obtained.
2. PROPOSED SYSTEM
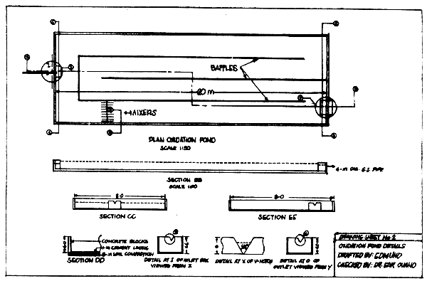
The proposed system is illustrated in Fig. 2, 3 and 4, and consists basically of a continuous flow stabilization pond linked to 16 fish ponds. It will be constructed of concrete hollow blocks and will be linked by PVC pipes.
Equalization tank - The sewage at the Asian Institute of Technology (AIT) fluctuates considerably diurnally and thus an equalization tank is necessary to equalize the influent quality to the stabilization pond. The equalization tank will be 6.2 m × 3 m × 1.8 m and thus have sufficient volume to handle the 25.60 m3 of sewage required daily (see below for calculation). The waste water in the equalization tank will be mixed by continuous recirculation by a high volume and low head pump. Since the pump will have an energy head approximately equivalent to 10 m of water, the changes in water level in the tank will have a minimal effect on the flow rate since the water feed will be bled off the recirculating flow. The flow rate will be measured by a rotameter.
Stabilization pond - The stabilization pond will be a high rate pond and will be designed according to McGarry (1970) to produce the maximum biomass of algae per day, i.e. 224 kg BOD5/ha/day loading and a 45 cm deep pond. The sewage at AIT is relatively weak with a maximum strength of 150 mg/l of BOD5 compared to the strength of typical domestic sewage in Asia of 376 mg/l of BOD5 (Chow & McGarry, 1970).
The total weight of BOD5 generated per day in the required 25.60 m3 of sewage per day is:

At a constant loading of 200 kg of BOD5/ha/day (the reduction of the loading from 224 to 200 kg of BOD5/ha/day involves a 10% safety factor, so that if the loading is increased then the pond will not go anaerobic because it is being operated with a loading less than the maximum).

Thus the area has been calculated based on the loading, the major constraint, using the strength of AIT waste.
The second calculation is the volume of the pond:
Volume = depth × area = 45 cm × 192 m2 = 86.4 m3
Thirdly the detention time is calculated:

The three-day detention time is equivalent to diluting the effluent by 50% to meet the maximum loading rate without the pond going anaerobic.
The stabilization pond will be 20 m long × 10 m wide. It has been designed to minimize shortcircuiting which could result in premature discharge of waste, by having a length/width ratio of two, and by having baffles and a motor driven brush aerator.
Stabilization pond effluent homogenizing tank - The effluent from the stabilization pond will be led into a homogenizing tank (with a one day detention period) prior to being pumped into the fish ponds to ensure a more homogenous suspension of algal cells.
Fish ponds - The stabilizing pond effluent will be pumped continuously into a series of sixteen 4 m3 fish ponds, of 2 m × 2 m × 1 m deep dimensions. The flow rate will be regulated by rotameters. A depth of 1 m has been chosen as a compromise figure between reduction in algal productivity with increasing pond depth and rising temperatures which can lead to fish kills in extremely shallow ponds (McGarry & Durrani, 1972).
The effluent from each fish pond may be sampled through a tap. The effluent from all sixteen fish ponds will be composited in an effluent homogenizing tank prior to discharge into a canal.
To facilitate fish capture for growth measurements, nets made of nylon bobinetting with quadrilateral mesh will be installed in each fish pond. These will be of the same internal dimensions as the ponds and will be weighted so that they will fit flush with the pond walls. Thus the fish will occupy the total volume of each pond.
2.1 Experimental design and rationale
Preliminary experiment - A stabilization pond of 192 m3 is based upon algal feeding rates of 10, 30, 50 and 70% fish pond volume replacement values per day. The higher figures may be too high for two possible reasons, (i) the algal biomass may be far in excess of that which the fish need for maximum growth even at the highest stocking density, and (ii) the algal biomass in the fish pond may be so large as to cause anaerobic conditions through night time respiration, which would lead to a fish kill. The latter is the more significant operational concern and the maximum daily fish pond volume replacement will be determined in the following preliminary experiment.
The 16 fish ponds will receive the following daily percentage volume replacement values: 5, 10, 20, 30, 40, 50, 60 and 70. Two ponds will receive each replacement volume regime, and one pond in each pair will be stocked with eighty 50 g Tilapia nilotica, to test the system with fish and without fish because of the report of Schroeder (1975) that fish minimize plankton and therefore dissolved oxygen fluctuations in waste water ponds. The fish will be weighed at the start and conclusion of the experiment. Dissolved oxygen will be measured at dawn when it reaches a minimum and during mid-afternoon when it reaches a maximum. Algal biomass of the surface water of each pond and of the influent and effluent will be determined four times a day. The esperiment will run for one month.
If it should prove possible to reduce the daily fish pond replacement volumes, this would lead to a significant reduction in stabilization pond area. With possibly more realistic algal feeding rates of 5, 10, 25 and 50%, the stabilization pond would need an area of only 108 m2 to treat the 14.4 m3 of sewage required daily, a reduction in size of 43.75%. The stabilization pond has been overdesigned to ensure sufficient effluent to feed the system at the maximum daily fish pond replacement volume possible without night-time anaerobic conditions. Excess effluent will be run off to a canal or will be used to feed a larger earth pond which will be constructed and operated to test whether data obtained in the 4 m3 concrete fish ponds can be extrapolated to larger more natural ponds.
Main experimental phase - The stabilization pond performance will be assessed. The major parameters of interest will be algal concentration and yield, and BOD5 removal efficiency. The latter will be calculated from the filtered influent and effluent BOD5. Stabilization pond loading in kg of BOD5/ha/day will be determined also. In addition a variety of other determinations will be made, e.g. air and water temperatures, pH, alkalinity, dissolved oxygen, and algal and zooplankton genera present. The most important measurement that will be made will be the daily algal biomass of the stabilization pond effluent. This will be determined initially through chlorophyll measurements, but studies will be made to determine if biomass measurements can be made by a more rapid method such as optical density or nephelometry.
The fish species chosen for the study are Nile tilapia, Tilapia nilotica and silver carp, Hypophthalmichthys molitrix since they are both phytophagous fish. However, the former will feed on zooplankton if these are available. Work in Thailand during the last five years clearly demonstrates the potential of growing Tilapia on stabilization pond algae (McGarry & Durrani, 1972; Wattayakorn, 1976). The rapid growth of silver carp on stabilization pond algae has been demonstrated in India (Ghosh, Banerjee & Hanumantha Rao, 1973).
The factorial design will consist of four fish stocking densities, 1, 10, 20, 30, fish per m2, i.e. 4, 40, 80 and 120 fish per 4 m3 pond and four algal feeding rates, 10, 30, 50 and 70% of the volume of the fish pond replaced each day by stabilization pond effluent. The feeding rates are tentative at present as discussed above and will be finalized following the completion of preliminary experimentation.
The rationale for the choice of 1, 10, 20 and 30 fish per m2 stocking densities is the need to elucidate conditions under which both large individual fish that can be used as human food as well as a large biomass of small fish than can be converted into fish meal can be produced. Since the individual growth rate of fish decreases as the stocking density increases (Hepher, 1975), a wide range of stocking densities has been chosen in an attempt to determine stocking densities for both optimum individual fish size and optimal fish yield. The smallest feasible stocking density for the proposed study is one fish per m2 or four fish per 4 m3 fish pond. A lower stocking density would lead to unreliable data due to a small sample size. Wattayakorn (1976) obtained an average fish weight of approximately 90 g and an extrapolated annual yield of 48 tons/ha in 4.5 months at a stocking density of 20 fish per m2, and an average fish weight of 30 g, and an extrapolated annual yield of 30 tons/ha in the same period at a density of 38 fish per m2. A stocking density of 38 fish per m2 therefore is too high since the yield has fallen compared to that with 20 fish per m2. Thus, a stocking density of 30 fish per m2 has been chosen as the maximum stocking density because this level may lead to a higher yield than 20 fish per m2.
The higher stocking densities proposed are higher than those normally used (Bardach, Ryther & McLarney, 1972) but Tilapia can thrive in crowded conditions. The fish will be stocked when only a few centimeters long and will be provided with ample food by the continuously flowing stabilization pond effluent. Decreased growth rates of fish at higher stocking densities may be due also to an accumulation of toxic, excretory products (Kawamoto, Inouye & Nakanishi, 1957) which is supported by the incredible fish yields obtainable in flowing water culture systems (Bardach, Ryther & McLarney, 1972). In the present study, a flow through system will minimize build up of excretory products. Furthermore, the algae in the system will probably take up ammonaical compounds as a nitrogen source.
One problem in maintaining a constant stocking density with Tilapia is the ability to breed and produce offspring when only a few months old. To ensure that stocking densities do not change during the experiment, male fish of Tilapia nilotica will be used. The fish can be readily sexed when only a few centimeters long. An adequate supply of small male fish has been promised by the National Inland Fisheries Institute (NIFI), Bangkok. Silver carp must be induced to breed in Thailand, so precocious maturity is not a problem with this species. The fry will be also supplied by the above institute.
To establish the algal feeding rates to the fish ponds, the latter will be filled with AIT campus canal water initially and the fish introduced at the appropriate stocking densities. Ten, 30, 50 and 70% of the fish pond volumes (four ponds at each value) will then be replaced daily by continuously flowing stabilization pond effluent.
Fish growth will be assessed every two weeks by measuring increases in weight of the fish.
The amount of algal biomass removed each day by the fish in each pond will be determined from the following equation:
BI + BP = BG + BE
| BI | = | daily algal biomass flowing into the pond. This can be calculated from the algal biomass in the stabilization pond effluent and the flow rate. |
| BP | = | daily algal net productivity in the pond. Algal productivity figures will be converted into algal biomass using previously derived formulae from the literature. |
| BG | = | daily algal biomass removed by the fish. |
| BE | = | daily algal biomass flowing out of the pond. |
Primary productivity will be determined using the Winkler light and dark bottle method. The methodology employed will essentially be that of Hepher (1962). The bottles will be suspended at different depths on a frame throughout the day so that daily productivity figures for an entire pond can be calculated. The incubation time will be only 1–2 hours because of the high algal biomass. A homogeneous distribution of algae in the pond will be assumed, which will probably hold true due to fish movement. One diurnal productivity run will be made per week. It will be necessary to develop a more rapid method to assess daily pond algal productivity since there will be 16 fish ponds, each with a different combination of fish stocking density and algal feeding rate, and conditions will change with time in each pond as the fish grow. According to Hepher (1962) and Krishnamoorthi, et al (1975) there is a constant proportion of the total daily productivity taking place between 10.00 and 12.00 a.m.; this will be studied to see if it can be used to compute daily productivity. There probably will be a relationship between algal biomass at noon and total daily productivity, which will be investigated also.
The following will also be determined and their diurnal and seasonal variations assessed; ammonia, nitrite, nitrate, organic nitrogen, phosphate, dissolved oxygen, pH, alkalinity, light penetration (Secchi disc), algal genera, zooplankton composition and biomass.
The total nitrogen, phosphorus and potassium in dissolved and particulate form in the composite effluent from the fish ponds will be measured to assess its fertilization potential for terrestrial crops.
The possibility of the transfer of human intestinal bacteria through the system will be studied. Bacteria will be monitored in raw sewage, stabilization pond effluent and fishpond effluent at different seasons of the year.
2.2 Economic evaluation
The final phase of the work will consist of an economic appraisal. The financial analysis will include construction and land costs, the value of the fish for human consumption or as feed for valuable aquatic food fish, the fertilization potential of the fish pond effluent, and the sewage treatment aspects.
3. ACKNOWLEDGEMENT
I would like to thank Dr. E.A.R. Ouano for help in the design of the system. The work is supported by a grant from the International Development Research Center (IDRC), Canada.
4. REFERENCES
Allen, G.H., 1970 The constructive use of sewage, with particular reference to fish culture. In “Marine pollution and sea life” M. Ruivo (ed.), Fishing News Books: 506–13
Allen, G.F. and B. Hepher, 1976 Recycling of wastes through aquaculture and constraints to wider application. FAO Technical Conference on Aquaculture, Kyoto, Japan, 26 May–2 June 1976. FIR: AQ/Conf/76/R25: 18p.
Bardach, J.E., J.H. Ryther and W.O. McLarney, 1972 Aquaculture, the farming and husbandry of freshwater and marine organisms. Wiley-Interscience, xii + 868p.
Chan, G.L., 1974 The use of pollutants for aquaculture - conditioning of wastes for aquaculture. Proc. IPFC 15th Session, Wellington, N.W. 1972: 84–91
Chatterjee, S.N., B.K. Arora and D.R. Gupta, 1967 Some observations on utilization of sewage for fish culture in oxidation ponds. Environm. Hlth 9: 156–61
Chow, T.K. and M.G. McGarry, 1970 Application of the sewage grown mass algal culture process to the Asian urban environment. AIT Res. Rep. (6)
Fitzgerald, G.P. and G.A. Rohlich, 1958 An evaluation of stabilization pond literature. Sewage Industr. Wastes, 30: 1213–24
Ghosh, A., 1973 M.K. Banerjee and L. Hanumantha Rao, Some observations on the cultural prospects of silver carp Hypophthalmichthys molitrix Valenciennes in sewage-fed ponds. J. Inland Fish. Soc., India, 5: 131-3
Ghosh, A., L. Hanumantha Rao and S.C. Banerjee, 1974 Studies on the hydrobiological conditions of a sewage-fed pond with a note on their role in fish culture. J. Inland Fish. Soc., India, 6: 51–61
Ghosh, A., 1976 L. Hanumantha Rao and S.K. Saha, Cultural possibilities of air breathing catfish Clarias batrachus in domestic waste waters. J. Inland Fish. Soc., India, 8: 151–2
Hepher, B., 1962 Primary production in fish ponds and its application to fertilization experiments. Limnol. Oceanogr., 7: 131–6
Hepher, B., 1975 Supplementary feeding in fish culture. Proc. Int. Congr. Nutr., Mexico, 1972, 9(3): 183–98
Hepher, B. and G.L. Schroeder, 1977 Wastewater utilization in Israel aquaculture. In “Wastewater renovation and reuse”, E.D'Itri (Ed.), Marcel Dekker Inc., USA: 529–59p.
Hickling, C.F., 1962 Fish culture. Faber & Faber, London: 317p.
Huang, T.N., 1968 Sewage for Tilapia. Curr. Aff. Bull. Indo-Pacif. Fish. Coun. (51/52)
Kawamoto, N.Y., Y. Inouye and S. Nakanishi, 1957 Studies on effects by the pond-areas and the densities of fish in the water upon the growth rate of carp (Cyprinus carpio L.), Rep. Fac. Fish. Univ. Mie, 2: 437–47
Kawata, K., W.N. Cramer and W.D. Burge, 1977 Composting destroys pathogens. Wat. & Sewage Works 124: 76–9
Konefes, J.L. and R.W. Bachmann, 1970 Growth of the fathead minnow (Pimephales promelas) in tertiary treatment ponds. Proc. Iowa Acad. Sci., 77: 104–11
Krishnamoorthi, K.P., M.K. Abdulappa and A.V. Jagannath Rao, 1976 Productivity of Clarias batrachus in the sewage fertilized fish ponds. Indian J. Environ. Hlth, 18: 292–8
Krishnamoorthi, K.P., 1975 et al, Productivity of sewage fertilized fish ponds. Wat. Res., 9: 269–74
McGarry, M.G., 1970 The treatment of sewage and production of protein through the mass culture of algae. Summary report on research conducted during 1969–70, Asian Inst. Technol.: 26p.
McGarry, M.G. and S.M.A. Durrani, 1972 Reuse of human wastes in agriculture. Paper presented at 11th Session of National Conference on Agricultural Sciences, Thailand, February 1972: 14p. (Mimeo)
Muthuswamy, S., S. Govindan and B.B. Sundaresan, 1974 Productivity of Cyprinus carpio in stabilization pond effluents. Indian J. Environm. Hlth., 16: 370–9
Oswald, W.J., 1963 The high-rate pond in waste disposal. Developm. Industr. Microbiol., 4: 112–9
Oswald, W.J. and C.G. Golueke, 1968 Harvesting and processing of waste-grown micro algae. In Algae, man and the environment, D.F. Jackson (Ed.), Syracuse Univ. Press, 371–89p.
Prowse, G.A., 1966 A review of the methods of fertilizing warm-water fish ponds in Asia and the Far East. FAO Fish. Rep., (44) Vol.3: 7–12
Schroeder, G.L., 1975 Some effects of stocking fish in waste treatment ponds. Water Res. 9: 591–3
Schroeder, G.L., 1977 Agricultural wastes in fish farming. A commercial application of the culture of single-celled organisms for protein production. Water Res. 11: 419–20
Schroeder G.L. and B. Hepher, 1976 Use of agricultural and urban wastes in fish culture. FAO Technical Conference on Aquaculture, Kyoto, Japan, 26 May-2 June 1976. FIR:AQ/Conf/76/E.9
Slack, E.B., 1974 Sewage and aquacultural production. Proc. Indo-Pacif. Fish. Coun. Sess. 15, 1972: 70–6
Taiganides, E.P., 1976 Principles and techniques of animal waste management and utilization. FAO/SIDA Workshop on Organic Fertilizers in Asia, Conf. Pap. (8) 23/2: 28
Tapiador, D.D., 1973 A preliminary review on the possibility of commercial fish meal production from sewage fish farming. Contribution to the FAO Technical Conference on Fishery Products, Tokyo, December 1973: 5p. (Mimeo)
Teoh, B.L., 1974 Ecological conditions for successful culture of fish in sewage pond effluents. Proc. Indo-Pacif. Fish. Coun., Sess. 15, 1972: 76–83
Wattayakorn, G., 1976 Optimization of sewage treatment and fish propagation in ponds, M.Sc. Thesis, AIT, Bangkok (1976): 79p.
Yashouv, A., 1968 Mixed fish culture - an ecological approach to increase pond productivity. FAO Fish. Rep. (44) Vol.4: 258–73

Fig. 1 - A Classification of the Use of Human Wastes in Pond Fish Culture

Fig. 2 - Layout of the Experimental Stabilization Pond and Fish Pond Aquaculture System

Fig. 3 - Details of the Stabilization Pond

Fig. 4 - Details of the Fish Ponds and Rotameters which Control the Flow of Stabilization Pond Effluent into the Ponds
SCSP-SFDC/77/AEn/CP8
by
K. Soesilo Oetomo
Directorate General of Fisheries
Ministry of Agriculture
Jakarta, Indonesia
1. INTRODUCTION
Records and information indicate that fish culture in rice fields started in the middle of the 19th century. Rice fields used for fish culture in Indonesia fall into three methodologies:
paddy-cum-fish culture or fish culture in rice crop
The first form of fish culture is practised mostly in East Java, in rice fields of more than one hectare where rice is grown once a year and rains cause flooding after the rice crop is harvested. Milkfish (Chanos chanos) and Puntius are the two kinds of fish which are cultivated by this method, with stocking rates of about 5 000–5 500 of milkfish fry and 10 000–11 000 of Puntius gonionotus fingerlings.
The second method is between two rice crops. This industry began in West Java in rice fields situated in the neighbourhood of centres of pond culture, mainly found in the vicinity of well-known religious schools. After finishing their courses, many students brought this practice to their places of origin and thus many religious teachers became pioneers of fish culture in rice fields.
1.1 Importance of this industry
this industry increases the yield of rice and fish as source of animal protein
this industry is increasing the farmer's income
the fields profit from the fertilizing action of the pond culture
the profit derived from the fish helps to meet the expenses necessary for the work in the rice fields
as a result of the constant irrigation the soil is softer and yields better to the plough
irrigation is better controlled
aquatic weeds are better controlled
the movements of the fish aerate the soil
organic substances are better oxidized
diseases and pests of the rice are more efficiently dealt with
probably the yield of rice increases
Investigations concerning some of these benefits are still in progress and have not yet yielded clear-cut results.
1.2 Present status, production, area covered and value
This industry is now undertaken as an additional activity of farmers. Their principal activity is rice farming. This industry is practised mostly by small-scale farmers with holdings smaller than one hectare, except for the “sawah tambak” methodology.
Production or yield of each of the three methods is as follows:
Yields of second crop fish production method (“sawah tamtak”) per season:
Fish - one harvest of about 800–1 000 kg/ha
| Milkfish (Chanos chanos) | - | 80% |
| Puntius gonionotus | - | 20% |
Yields of fish production in between two rice crops method (“penyelang”):
Fish - one harvest of about 40–60 kg/ha
Fingerlings
Carp, one or two harvests, 40 000–60 000 of 3–5 cm or 20 000–30 000 fingerlings of 5–8 cm and 20–30 kg of large fish for consumption.
Puntius gonionotus, one harvest of about 80 000– 100 000 fingerlings of 2–3 cm or 20 000 fingerlings of 3–5 cm.
Paddy-cum-fish method
Fish - one harvest in 60 days
| Cyprinus carpio | - | 50–70 kg/ha |
| Puntius gonionotus | - | 40–60 kg/ha |
| Equal number of both | - | 60–110 kg/ha |
The total area of paddy fields in Indonesia is 4.2 million hectares in Java and 3 million hectares outside Java. About 10 to 25% of irrigated rice fields may be used for fish culture. In 1976, about 28 500 ha in Java and 44 000 ha outside Java were used for fish culture, producing about 30 million kg of fish for consumption.
The value of fish marketed was 30 million kg or Rp 11 000 million (US$26 190 000). The total number of fry raised in paddy fields in 1976 amounted to 100 million fry. This number is roughly estimated to have a value of not less than Rp 10 million (US$24 000).
The relative efficiency of each method is illustrated by comparison of the cost of the stocking materials and the prices for the end product.
Fish - value of end product is two to four times that of fingerlings.
Fingerlings - value of end product is three to five times that of fry.
1.3 Future of industry - its fluctuation and prospect
Of the total acreage of paddy fields in Indonesia, about 7.2 million hectares, about 10% of the total area, or 25% of the irrigated area, may be added to the area used for fish culture, mainly by extension of the method of fish culture between two rice crops and the paddy-cum-fish method.
Procurement of fry is among the most important problems encountered in extension. For this reason, Puntius and Tilapia may become more important in the near future.
2. SELECTION OF SUITABLE FIELDS
Though economic features of the area may be very promising, one must not neglect to make a careful survey of the technical requirements.
The first requirement is that the water supply should be adequate.
The site should be neither too steep nor too flat, because this influences the size of individual plots and also affects the ability to drain the fields properly.
Another point is, that one must not risk spoiling the rice harvest by continually inundating soils which need intermittent drainage. This last danger is especially imminent in areas where fish culture is practised as a second crop. One should not stock the same fields again during rice cultivation or at least not after the second weeding.
Another danger not to be overlooked, is that arising in stocking experimental plots which are small. In that case many predators and pests concentrate in these small areas.
It is therefore necessary to stock about 5 hectares simultaneously, and to select them as close to a village as possible, in order to frighten birds, otters, snakes, etc.
3. LAYOUT AND CONSTRUCTION OF FIELDS
3.1 The layout
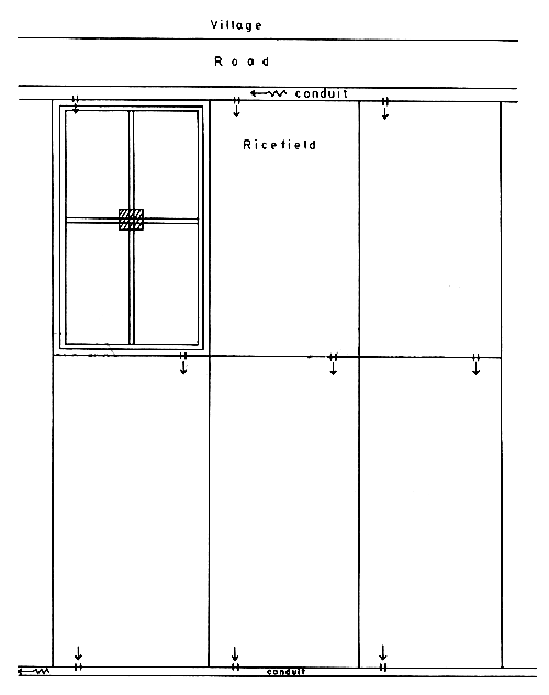
The layout of rice fields used for fish culture is as shown in Figure 1. Considerations in the design and layout are the following:
3.1.1 Size of field
This usually considers the ease of managing the water and the natural topography of the field. Each field should be independent of each other; that is it can be drained or filled with water at will. Size of individual field may vary from 2 500 to as high as 5 000 square metre, as long as there is even flooding and an appropriate number of ditches are provided.
3.1.2 Ditches
Fields are provided with ditches where water can be held. These ditches serve both as refuge for fish should water level drop low and also serve as passage ways for the easy movement of fish around the field. At harvest time, as water level is lowered, fish also collect in the ditches making harvesting easier.
Ditches having dimension of 0.4–0.5 m deep and 0.8–1.0 m wide may be constructed around the periphery of the field or run across or lengthwise of the area. The latter scheme may consist of one or more properly spaced parallel ditches, depending on the size of the area. Spacing considers the distance which fish travel during grazing from the ditch.
3.1.3 Water supply
All water entering into the field should be free of unwanted species, insecticides or other poisons. Ground water is excellent for rice field fish culture, if available and reliable.
3.1.4 Dikes
Field dikes should be raised higher than the normal height needed for rice culture and should be strong enough to retain as much water with minimal loss. A dike approximately 0.4–0.5 m at the bottom, 0.4–0.5 m high and 0.3–0.4 m wide at the top is satisfactory, if made of clay. Grasses and weeds on dikes should be trimmed as they harbour rodents and other pests.
3.2 Construction specifications
Immediately after the harvest, the farmers start working together to make the irrigation conduits operate in good order; moreover, every farmer makes the necessary repairs of his own ditches.
After that the construction of temporary dykes is started according to the following procedures.
3.2.1 Fields situated nearest to the water source are each surrounded by a dyke, but in those farthest away, several fields are united by one dyke, thus forming larger units. The bottom of such a unit is always sloping and the depth may amount to 1 m in the lowest corner after the dykes are completed. This arrangement is necessary wherever the supply of water is not absolutely reliable, that is the source is at a considerable distance. On the other hand, the fields near the source are not combined into larger units and are not as deep because the water level may be kept constant.
3.2.2 Every field and every unit is supplied with new dykes because the old ones (used during rice growing) are not high enough. The soil for their construction is taken from within the dyked area. There is a surrounding ditch along the inside of the dykes which provides the dyke construction material. The difference in level between ditch bottom and the dyke crown must be 0.8 to 1.0 m (Figs. 2, 3 and 4).
3.2.3 In flooding rice fields, the water is generally allowed to enter and drain from the field through a narrow gap. Fields stocked with fish are provided with bamboo pipes as feeder and outlet and these are combined with some kind of screening apparatus (Fig. 5).
3.2.4 The pipes are placed in a sloping position so that the water enters at the lower end.
3.2.5 Field stubble is either down-trodden or cut off and stacked. This may be done either before or after the first flooding. The water used in first flooding the field usually purifies within two or three days and is let out again. At the same time, there is opportunity to detect any leakage in the new dykes. When the field units are large, the surrounding ditch is provided with several cross ditches (Fig. 6).
4. PROBLEMS AND CONSTRAINTS
4.1 Conflict in use of water
The right to irrigate fields in order to cultivate fish, especially during the wet season is established by law. The farmers planting fish receive as much water as rice cultivators, and even 30% more than pond operators in the same area during the same season. Still they only manage to succeed by taking the utmost care in the maintenance of dykes and conduits.
The necessary quantity of irrigation water is 1 to 2 litres of water per hectare per second. In order to meet this demand, the Government Irrigation Service has to supply this quantity. There are unavoidable losses in local conduits. These are as much as 20% in one area. Exact data are lacking on the quantity of water needed exclusively for fish culture in paddy fields. Irrigation authorities usually allot equal quantities to rice and fish.
4.2 Conflict in use of land
In an important centre of fish culture, rent for paddy fields is usually moderate, but high for the small holder. This stimulates the farmer to embark upon fish culture in one of its various forms. The main aim is to get an additional income from fish production.
Sometimes the cost of planting rice exceeds the price of the crop and only supplemental fish production can provide a profit.
4.3 Application of pesticides
After applying pesticides in the rice fields in the last decade, fish culture in rice fields had some problems and constraints.
The farmers are faced with two alternatives, especially in the paddy-cum-fish method, namely either the security of their fish or paddy.
Possibly, selection of pesticides having the least effect on fish may be possible. Some pesticides are very long lasting in their effect and are harmful to fish. Others may rapidly break down into less toxic substances. This matter needs further research and study.
5. CONCLUSIONS AND RECOMMENDATIONS
5.1 Conclusions
Joint use of paddy fields for rice and fish culture is the most suitable way to increase the returns from rice fields at present time.
Technically, economically and socially, this industry is now profitable and has good potentials or expansion in the near future.
5.2 Recommendations
Irrigation development should be planned to accommodate both rice and fish culture.
More work is needed on making use of pesticides which are not harmful to both rice and fish culture.

Figure 1. Layout of ricefield used for fish culture

Figure 2. Specifications of the bund and ditch (Dimensions in meters)

Figure 3. Arrangement of inlet pipe

Figure 4. Arrangement of outlet pipe

Figure 5. Arrangement of inlet pipe and screen in relation to bund (topview)

Figure 6. Cross ditches used in large units
SCSP-SFDC/77/AEn/CP25
by
R.G. Arce and C.R. dela Cruz
Freshwater Aquaculture Center
Central Luzon State University
Muñoz, Nueva Ecija
Philippines
1. INTRODUCTION
Instances of fish crops obtained in ricefields had been reported since 1917 from at least 25 countries of the world including the Philippines. The common practice before was to trap wild fish that enter the ricefields and to harvest these with rice. With the advances made in fish culture, farmers learned to stock known number of fish and grow them to harvestable size together with rice. Further, some have practiced the alternate cropping of rice and fish.
A thorough review of rice-fish culture literature (Indo-Pacific Fisheries Council, 1958; Hora and Pillay, 1962; Coche, 1967; Grover, 1976; etc.) indicated that this system can provide farmers additional income from rice farms. The interest, however, in rice-fish culture had declined in recent years because of the application of highly fish-toxic insecticides in modern farming. In the Philippines, renewed interest on the practice came about with the introduction of insect-resistant High Yielding Varieties (HYV's) developed by the International Rice Research Institute (IRRI). The reason for this interest is because of the country's irrigated rice lands covering no less than one million hectares which, if made to produce fish, will augment the protein needs of the people especially those who are in the hinterlands where fresh fish is scarce. Technology in rice-fish culture, however, is necessary before these areas can be made to produce fish.
Yield trials on rice-fish culture began at the Freshwater Aquaculture Center (FAC), Central Luzon State University in 1974 to the present. The center has already developed an extendable technology for the system including the necessary facility. Yield trials at first were done in fishponds and in ricefields until a riceland area of more than 2.5 hectares was developed for the purpose. The farm layout (Fig. 1) has so far been considered functional and satisfactory for rice-fish culture. Thus, the experience gained in developing the facility and the technology developed at the center are the subject of this paper.
2. RICE-FISH CULTURE FARM
The main considerations in establishing the facility were: farm layout, the respective cultural requirement of rice and fish, and water management.
2.1 Farm layout
While it is possible to use the existing individual paddy in the farm, it is better to do some land forming or introduce improvement in the partitioning of paddies. Considerations in the design or layout are the following:
2.1.1 Site selection
The area should be free from flooding, away from insecticide contamination, and provides better control of water - that is, it should have clayey soil to minimize seepage and that drainage by gravity should be possible whenever necessary.
2.1.2 Size of paddy
This usually considers the ease of managing the water and the natural topography of the paddy. Each paddy should be independent of each other -that is, it can be drained or filled with water at will. Size of individual paddy may vary from 100 to as high as 2 500 square metre, as long as there is even flooding and appropriate number or density of trenches are provided. The size of individual paddy at the FAC is 200 square metres.
2.1.3 Trenching
Paddies are provided with trenches running through the area where water can be held (Figs. 3 and 4). These trenches serve both as a refuge for fish should water level drop very low and also serve as passage ways for the easy movement of fish around the paddy. At harvest time, as water level is lowered, fish also collect in the trenches making harvesting easier.
Trenches having dimension of 0.5 m deep and 1 m wide may be constructed around the periphery of the paddy or run across or lengthwise of the area (Fig. 2). The latter scheme may consist of one or more properly spaced parallel trenches, depending on the size of the area. For a 200 m2 paddy as much as 30 percent of the area is wasted if peripheral trench is used. Experiments at the FAC have shown that a single trench running lengthwise at the center is sufficient for its 200 square metre area. This trench occupies only about 10 percent of the area. It was further shown that the 10 percent reduction in space did not significantly reduce the yield of rice when compared to the yield of an equal area without trench.
Paddies much larger than 200 square metres require more properly spaced trenches. Spacing considers the distance which fish travel during grazing from the trench. Normally, each center trench can serve a 10-metre strip of paddy, meaning that spacing between trenches should be approximately 10 metres.
2.1.4 Water supply
All water entering into the paddy should be free of unwanted species, insecticides or other poisons, and excess silt. Ground water is excellent for rice-fish culture, if available and reliable. If communal irrigation water is used, “bio-assay” the water first before using. This is done by getting a pail of irrigation water and putting in live fish for observation if it will die or not.
2.1.5 Dikes
Paddy dikes should be raised higher than the normal height needed for rice culture and should be strong enough to retain as much water with minimal loss. A dike approximately 50 cm wide at the base, 40 cm high and 30 to 40 cm wide at the top is satisfactory if made of clay (Fig. 2). Grasses and weeds on dikes should be trimmed as they harbour rodents and other pests.
2.1.6 Screens
Screens in every water supply/drainage gate are needed to avoid unwanted fish from entering the area. The same screen can also be positioned to allow excess water to spill during heavy rains. Welded wire screening of 1 to 2 openings per square centimeter and fixed in a wooden frame works fine for this purpose. Stakes might be used to hold the screens in firm positions.
2.2 Fish culture
2.2.1 Selection of species
Tilapia species, especially T. nilotica and monosex T. mossambica, and common carp are the recommended species for the system. Monoculture and polyculture of these species can be done.
Mudfish (Ophicephalus striatus) is a predatory fish and should not be stocked or allowed to enter the rice paddies. Catfish as well as mudfish are difficult to contain in the paddies resulting to poor recovery at harvest.
2.2.2 Rate of stocking
The number of fish to stock a given area depends on the size and species to be grown and availability of food. Findings at the FAC indicate that 3 000 to 4 000 common carp fingerlings and 5 000 tilapia fingerlings per hectare is appropriate for the monoculture of each species without supplemental feeding. Initial results show that the rate of stocking in the polyculture of tilapia and carp is 4 000 and 2 000, respectively.
As tilapia are reproducing in the paddy, a nursery pond should be provided to hold the collected youngs for restocking in the following cropping. It is also recommended to maintain a breeding pond to ensure supply of stock.
2.2.3 Size at stocking
The right size to stock is determined by the length of culture period of rice after transplanting. Fish must be able to attain harvestable size by the time rice are to be harvested. Usually the culture period for fish vary from 80 to 100 days.
Table 1 shows the various size of fish at stocking and the corresponding weights during harvest in the yield trials done at the FAC. This serves as a guide in projecting the expected size of fish at harvest for a given stocking weight.
2.2.4 Fish handling
Proper handling should be observed before and during stocking. Prior to stocking, avoid prolonged time for the fish to be out of water, overcrowding and poor water quality. At stocking, fish should be transferred slowly allowing several minutes for the water temperature in the transport containers and in the paddy to attain equilibrium.
2.3 Rice culture
2.3.1 Variety
The rice varieties recommended are the newer IRRI typed with inbred and insect and disease resistance. Traditional variety are not recommended because of their susceptibility to insects and diseases, low yields, long growing season, and poor response to fertilizers.
2.3.2 Culture
Generally, the recommendations of government technicians and manual for rice culture should be followed. Rice culture embraces practices on seed soaking, seedbed preparation, sowing of seeds, land preparation, transplanting, weeding, pest control, fertilization, water management, up to harvesting. Details of these are not discussed here, except fertilization and water management for both rice and fish.
2.4 Fertilization
Fertilizer applied in the paddies is not all being used by rice for growth. A part of it goes to the production of plankton and other organisms that serve as natural fish food. In rice-fish culture, fertilization procedure is based on the usual requirement of rice without regard to the fish except on the application of acid forming types such as ammonium sulfate which is toxic. The kind and rate of fertilizer to be applied usually depend upon the recommendations suitable for the area where the project will be established. The usual practice at the FAC is to do basal fertilization prior to transplanting at the rate of 150 kg 16–20–0 and 75 kg urea per hectare. At 40 to 60 days after transplanting, applications of 75 kg urea per hectare is repeated.
2.5 Water management
Water must be kept in the paddy at all times the fish are there. When fish and rice are still small the depth may be kept relatively shallow (2–5 cm). As the rice grows, water depth increases to 10 to 15 cm. Water used during dry season may be excessive so that careful judgement is needed when to conduct rice-fish culture.
Careful screening of the water need to be done during inflow to avoid entry of unwanted species and during outflow to prevent escape of stock.
3. RICE-FISH PRODUCTION
Table 2 shows the results of series of trials conducted at the FAC. It can be noted that the yield for both rice and fish have improved much in the recent trials.
4. CALENDAR FOR RICE-FISH CULTURE
An example of rice-fish calendar for IR-32 variety which matures at about 140 to 145 days is given below:
| Cultural date | Activities |
| - | Soak seeds for one day |
| 0 | Plant seedbed/fertilize seedbed |
| 5 | Seedbed treatment with carbofuran insecticide |
| 24 | Pull seedlings and soil incorporation of 1 to 4 bags (17 kg) Furadan 3G plus basal fertilization of 75 kg/ha 45-0-0 (urea) and 150 kg 16–20–0 per ha |
| 25 | Transplant seedlings (wet bed method) |
| 32 | Stock fish - common carp fingerlings 3 000 to 4 000 per ha or 5 000 for tilapia. Ensure water supply in the field |
| 40–60 | Apply top dressing 75 kg/ha 45–0–0 (urea); Spray with carbofuran as needed |
| 135 | Drain water and harvest fish |
| 140–145 | Harcest rice |
5. CONCLUSION
The technology on rice-fish culture without supplemental feeding is currently undergoing nationwide field testing in the Philippines. The FAC is continuously improving the production of rice and fish through the use of supplemental feeding, proper use of insecticide keeping the fish alive and safe for human consumption, and through polyculture system. Improvement in the design of facility and other schemes of culturing rice and fish are also being undertaken.
6. REFERENCES
Coche, A.G., 1967 Fish culture in ricefields a worldwide synthesis, Hydrobiol., 30: 44p.
Grover, J.H., 1976 Rice-fish culture and the green revolution. FAO Technical Conference on Aquaculture, Kyoto, Japan, 26 May -2 June 1976. FIR:AQ/Conf/76/E17: 3p.
Hora, S.L. and T.V.R. Pillay, 1962 Handbook on fish culture in the Indo-Pacific Region. FAO Fish. Biol. Tech. Pap., (14): 203p.
Indo-Pacific Fisheries Council, 1958 Symposium on fish culture in rice fields. Indo-Pacif. Fish. Coun., 7 Sess., 1958: 119–214
Inland Fisheries Project Philippines, 1974 Exploratory trial on rice-fish culture; Field trial on rice-fish culture; rice-fish culture. Inl. Fish. Proj. Philip., Tech. Rep. (5): 1–8, 65, 81–6
Inland Fisheries Project Philippines, 1975 Rice-fish culture: Production of rice IR-26 and Tilapia; Culture of male Tilapia mossambica with rice IR-26. Inl. Fish. Proj. Philip. Tech. Rep. (16): 31-3, 56–61
Inland Fisheries Project Philippines, 1975 A preliminary study on the culture of common carp and male Tilapia mossambica with rice; Rice-fish culture. Inl. Fish. Proj. Philip., Tech. Rep. (7): 90-2, 109
Inland Fisheries Project Philippines, 1976 Production of common carp and sexreversed Tilapia mossambica in rice paddies. In Inl. Fish. Proj. Philip., Tech. Rep. (8): 84–8
Table 1. Size of fish at stocking and during harvest
| Year | Trial | Fish species | Mean initial weight at stocking (g) | Mean weight of fish at harvest (g) | Number of fish culture days |
| 1974 | I | Tilapia mossambica Cyprinus carpio Clarias macrocephalus | 6.7 kg/ha 6.2 kg/ha 10.5 kg/ha | 130.0 kg/ha | 109 |
| 1975 | II | Male T. mossambica | 15.0 | 40.4 | 84 |
| 1975 | III | T. mossambica C. carpio | 35.0 47.0 | 80.1 236.7 | 94 |
| 1976 | IV V | T. mossambica C. carpio | 35.7 7.3 | 69.8 48.5 | 87 |
| 1976 | VI VII VIII | C. carpio T. nilotica T. mossambica T. nilotica | 58.9 9.3 11.8 1.0 | 82.5 41.6 33.2 45.0 | 82 96 68 75 |
| 1977 | IX X XI XII XIII | T. nilotica T. nilotica T. nilotica C. carpio T. nilotica T. nilotica T. nilotica T. nilotica | 17.5 10.7 26.0 14.2 3.5 13.5 21.1 26.8 | 52.0 60.9 45.7 94.7 51.3 32.7 41.9 47.6 | 94 110 94 104 72 72 72 |
Table 2. Estimated production obtained from the best treatment mean per experimental result
| Year | Trial | Rice variety | Cav/ha | Fish species | Stocking density (per ha) | Mean weight of fish at harvest (g) | Fish Yield (kg/ha) | Fish culture days |
| 1974 | I | IR-26 | 83 | Tilapia mossambica* Cyprinus carpio Clarias macrocephalus | 6.7 kg | Too many tilapia reproduction | 130.0 | 109 |
| 1975 | II | IR-26 | 75 | Male T. mossambica | 3 300 fish | 40.4 | 78.0 | 84 |
| 1975 | III | IR-26 | 73 | T. mossambica* C. carpio | 30 kg 30 kg | 80.1 236.7 | 89.0 108.0 | 94 |
| 1976 | IV V VI VII VIII | IR-30 IR-32 IR-32 IR-36 IR-38 | 71 93 113 92 115 | T. mossambica* C. car pio C. carpio T. nilotica T. mossambica T. nilotica | 30 kg 30 kg 3 000 fish 3 000 fish 4 000 fish 4 000 fish | 69.8 48.5 82.5 41.6 33.2 45.0 | 56.0 121.0 187.0 94.0 86.0 108.0 | 87 82 96 68 75 |
| 1977 | IX X XI XII XIII | IR-36 IR-38 IR-40 IR-40 IR-40 IR-40 IR-40 | 138 117 131 129 87 88 95 | T. nilotica T. nilotica T. nilotica* C. carpio T. nilotica T. nilotica T. nilotica T. nilotica | 5 000 fish 3 000 fish 4 000 fish 2 000 fish 5 000 fish 5 000 fish 5 000 fish 5 000 fish | 52.0 60.9 47.5 94.7 51.3 32.7 41.9 47.6 | 110.0 135.0 128.0 165.0 151.0 133.0 176.0 211.0 | 94 110 94 104 72 72 72 |

Figure 1. Layout of rice-fish culture area at the Freshwater Aquaculture Center, Central Luzon State University, Nueva Ecija, Philippines Scale 1:1,000

Figure 2. Cross section of paddy, dike and trench (Not drawn to scale)

Figure 3 - Location of trench for a 10 m × 20 m paddy
Scale 1:200

Figure 4 - Location and spacing of trench for a 20 m × 20 m paddy
Scale - 1:200
SCSP-SFDC/77/AEn/CP2
by
W.L. Chan
Fisheries Research Division
Agriculture and Fisheries Department
Hong Kong
1. GENERAL
Floating cages presently in use for the culture of marine fishes in Hong Kong are considerably diverse in size, design and structural material. Variation in each of these features is due primarily to the preference of the fish farmers concerned and in some instances, also to the natural setting of culture sites and the nature of structural materials. This paper can, therefore, only attempt a general account on this topic.
In general, an operational unit comprises essentially a floating raft for the suspension of one or more cages. A floating raft is either square or rectangular with a number of square divisions which varies in accordance with the number of cages to be accommodated. Floatation is ensured by securing buoyant objects at appropriate locations. A cage is typically square with equal width and length, and a variable depth depending on the preference of the operator concerned. It is rigged to one of the divisions of a raft in such a way that it is secured enough to withstand adverse sea and weather conditions, and easy to be detached. A cover net is commonly used. A raft with cages thus arranged is provided with four mooring anchors/weights, each of which is attached to a corner of the raft.
2. FLOATING RAFTS
2.1 Design
The design of floating rafts varies with the number of cages to be accommodated, and the type of raft material and floating device to be used. In general, two-, six- and eight-cage rafts are rectangular, and four- and nine-cage rafts are square. The size of rafts is extremely uneven ranging from 10–25 ft (3.0–7.6 m) in width, and from 20–80 inches (6.1–24.4 m) in length.
The frame of rafts is constructed with either bamboo poles each averaging 5.6 inches (12–15 cm) in diameter at the broader end and a total length of 22 ft (6.7 m), or wood normally of a size of 3 inches (7.6 cm) by 5–6 inches. For both rectangular and square rafts, each side is made of two pieces of appropriately spaced bamboo or wood. In the former conformation, the pair of bamboo or wood pieces for the widths is placed over that for the lengths. The space between the two pieces of bamboo or wood is determined by the kind of floatation device to be used.
In general, the size of a bamboo raft is limited by the utilisable length of bamboo poles, while that of a wooden raft may vary.
Within the confine of a raft, divisions are similarly made for the accommodation of the intended number of cages.
2.2 Floatation
Four types of floatation devices are presently in use in Hong Kong. These are oil drums (44-gallon size), plastic containers of different sizes and shapes, styrofoam blocks, and more recently fibreglass boxes encasing styrofoam sheets.
Oil drums are made air-tight and coated with a layer of anti-rust paint or tar. They are secured to a raft by wrapping with galvanized iron wire commonly of S.W.G. No. 12 size. For a two-cage bamboo raft with a surface cage area of 10' × 10' (3 × 3 m), ten drums five along each length can provide excellent floatation (Fig. 1). This number can also apply to wooden raft of the same size. The average life-span of oil drums ranges from 9–12 months under Hong Kong conditions.
Due to the diverse variety and quality of plastic containers, it is not possible to even generalize the application of this kind of floatation device. Normally, “round” containers are less preferred. Attachment to the raft is done by the use of nylon twine instead of wire. The life-span of plastic containers tends to be longer averaging two years. Such plastic containers must be of strong material strength, and able to withstand weathering under the pressure of the raft structure.
Styrofoam blocks are usually used either in combination with plastic containers for the bigger rafts, or for small bamboo rafts. Again attachment is by the use of nylon twine. The life-span of styrofoam blocks is limited as they are not protected from fouling organisms and mechanical damage.
A recent introduction, the fibreglass box type of floatation device is 5 ft long, 3 ft wide and 2 ft deep (1.5 × 0.9 × 0.6 m). To each of its two widths of one surface are glued two fibreglass rings for attachment to the raft material. Inside the box are two one-inch thick styrofoam sheets. This is designed for large heavy duty wooden rafts holding large cages of about 15' × 15' (4.6 × 4.6 m). It is being on trial by a large-scale farm.
2.3 Construction
The construction of floating rafts is one of simplicity. In the case of bamboo rafts, as shown in Fig. 1, each joint is secured by galvanized iron wire in such a way that the two pieces of bamboo are attached at right angle. This applies to both the frame and the inner divisions of the raft. If oil drums are used, each pair of bamboo poles is so placed that each piece rests on either side of the top of the curved profile of the side of an oil drum. This spacing ensures stronger attachment of the two and at the same time, with the aid of wire prevents the oil drum from “shearing” away from the bamboo as a raft rises and falls under heavy weather conditions.
If plastic containers are used, the spacing of each pair of bamboo poles would depend upon the “width” of the selected type of container. The same applies to the use of styrofoam blocks. The number of units to be attached to a raft is also highly variable.
The construction of wooden rafts is in the main similar to that of bamboo rafts, with the exception that all joints are secured by nuts and bolts. The attachment of oil drums and plastic containers is similarly done with wire and nylon twine, respectively. In the case of the fibreglass box, it is secured by means of nuts and bolts.
All rafts are provided with wooden planks secured to each pair of bamboo poles or wooden pieces. These catwalks serve primarily as working platforms.
3. FISH CAGES
3.1 Design
Fish cages are essentially square with varying depths. Their sizes vary from 8–20 ft square (2.4–6.1 m), and from 8–15 ft (2.4 × 4.6 m) deep). Each unit comprises four side and one bottom pieces of netting material, and a distension device.
Netting materials include mainly knotted nylon netting of the same kinds as used for the construction of fishing nets with meshes varying from 1–4 inches (stretched). Wire netting, though uncommon, is also used. Openings of wire netting are square or hexagonal with a width ranging from 0.75–1.0 inch.
A cage is distended either by a frame of galvanized water pipe, angle iron or PVC pipe, or by square loops, one for the bottom and the other for the top of a cage.
3.2 Construction
The construction of fish cages is a simple process involving the rigging together of five pieces of nylon net and the fitting of a frame or an upper and lower loops to the inside of the nylon net cage. In the case of wire net cages, the five pieces are simply tied to a frame with galvanized iron wire.
The completed cage is then placed inside a square division of a floating raft with its head ropes properly secured to the raft.

Figure 1 - General layout of a two cage floating bamboo raft used in Hongkong
SCSP-SFDC/77/AEn/CP9
by
D. Sodikin
Directorate General of Fisheries
Ministry of Agriculture
Jakarta, Indonesia
1. INTRODUCTION
1.1 Importance in Indonesia
Fish consumption level in Indonesia is 11.4 kg/capita/year. It is a very low figure compared to many other countries. The national target for annual fish consumption is 29.5 kg/capita. Thus, there is still a big gap between fish consumption and the goal to be achieved. Therefore, it is very important to increase fish production by making it more effective and efficient.
In Indonesia, there are about 13 million hectares of open waters comprised of lakes, rivers, swamps, etc. Floating cage culture is a technique for growing fish in open waters that is considered suitable to practice in some provinces such as West Java, West Kalimantan, Central Kalimantan, South Kalimantam, East Kalimantan, South Sumatera and Jambi.
1.2 Location and species used
Fish culture using floating cages is a technique which has been developed in some provinces which have open waters.
In Jambi and East Kalimantan, this technique is practised in lakes Sipin, Mudung, Semayang, Belon, Jintan and in some small rivers. In West Java, fish culture using cage is practised at the bottom of small rivers and is called bottom cage culture.
Essential in practice of this technique is the availability of fish fry and wood or bamboo for cage construction.
The species of fish which are generally utilized in cage culture in Indonesia are Ophicephalus sp. and Leptobarbus sp. for floating cage culture, and Cyprinus carpio for bottom cage culture. The market price of those species is good and also these species are preferred by consumers.
Another important application of fish cage culture is the production of ornamental fish for export. The species included Botia macrocanthus, Balanteochilus melanopterus (Bala shark and flying fox). The fingerlings of these species are captured wild and grown to market size in cages.
In Jambi, Leptobarbus hoeveni is often polycultured with Puntius schwanefeldi. Cultivation of Puntius sp. is rarely practised by farmers, possibly due to its lower price compared with Leptobarbus sp.
1.3 Production, weight and value
In 1976, there were 725 cages in about 3 470 square meters of open waters in Jambi, producing about 72 500 kg of fish valued at Rp 43 500 0001 (US$104 819.28). A 2.50 × 1.50 × 1.00 m dimension cage could produce Leptobarbus sp. averaging 100 kg/cage/year. In 1977, the producer's price of Leptobarbus sp. averaged Rp 600/kg. Thus, the farmers' sale price for one cage of fish was Rp 60 000 (US$150).
In Central Kalimantan, 2 × 1 × 1 m dimension cage produced Ophicephalus sp., 120 kg/cage every eight months.
In East Kalimantan, a 2 × 2 × 4 m dimension cage produced 500 kg of Ophicephalus sp. per cage every nine months. The producer's price for this Ophicephalus averaged Rp 400/kg.
In 1974 in West Java, there were 2 655 cages of the bottom type mostly, and most of the cages were located at Cianjur regency. They contributed a total production of 402 815 per kg. In 1976, the City of Cianjur had 1 163 cages belonging of 829 owners, having a total area of 6 631 kg/m2/month, whereas along the river Cibitung, 0.872 kg/m2/month and along the river Ciraden 0.996 kg/m2/month. The producer's price for this carp averaged Rp 800/kg (8–10 pieces per kg) or Rp 1 200/kg (1–2 pieces per kg).
2. DESIGN AND CONSTRUCTION OF THE CAGE
2.1 Material used
The cage is usually made of bamboo or wood. The local name of the wood is bulian (in Jambi), blangiran ulin (in Central Kalimantan) and ulin (in East Kalimantan). These materials are used for the cage screening and for the cage frame. Cage framing of wood is usually 5 cm in diameter or rectangular of 5 × 7 cm section. Zinc nails are used because they are more durable in the water. Cages are supported by bindings attached to floating logs averaging 0.5 m in diameter (Fig. 1 and 2). The cages are bound to the floating round logs with rattan, a local forestry product.
2.2 Construction cost and specifications
In Jambi, generally the size of a fish rearing cage is 2.50 × 1.50 × 1.00 m. The cost of construction averaged Rp 15 000 for a bamboo cage and Rp 40 000 for a bulian cage complete, including the logs. In East Kalimantan, the cost of a 2.00 × 2.00 × 4.00 m cage is Rp 44 000.
The frame has a cross pole every 0.50 m. All parts of the frames are used for nailing the bamboo or wood screen. Bamboo or bulian woods are nailed 1 cm apart to the poles, placed across the frame.
Every cage has a door of about 0.50 × 0.50 m, placed in the middle of the top screen.
In the case of bamboo cages, it is important to place pinching bamboo, nailed at every wood frame piece, in order to hold the bamboo wall screen firmly in place. This pinching bamboo can also be bound using rattan or rope, when the bamboo would be broken by using a nail.
3. MANAGEMENT OF FISH CAGES
3.1 Stocking
In Jambi, the cage is usually stocked with 200 to 300 Leptobarbus fingerlings of sizes of 10 to 12 cm. In a rearing time of about one year, they become two or three pieces per kg.
In East Kalimantan, the 2.00 × 2.00 × 4.00 m cages are stocked with 75 to 100 kg fingerlings of Ophicephalus measuring 25 to 30 cm.
In West Java, the 3.00 × 2.00 × 1.00 m cages are stocked with 10 to 12 kg fingerlings of common carp measuring 15 to 17 cm.
3.2 Facilities used for management
Equipment used:
Each cage has two floating logs of diameter 0.50 m or more, and a length of 3 m.
Two vertical poles of wood or bamboo may be used for anchoring, so that the cage cannot be carried away by the stream flow. The cages are fastened to the vertical poles with rings or rope so that they can change elevation as the water level changes.
The sides have mesh of 0.50 to 1.00 cm opening to permit water circulation.
Some farmers use canoes for carrying fish fry, fish food, etc. to the cages.
Some farmers place a 0.50 × 0.50 × 0.75 m sized cage above the fish cage for human waste disposal.
A dip net is used to catch the fish at harvest time.
3.3 Procedures
The two floating logs are tied on the two long cage sides and the cage is placed in such a way that the upper part of the cage (about 10–15 cm) is constantly above the water level. This is important for fish feeding and for respiration of the fish.
Two poles of wood or bamboo are driven into the bottom at the two cage sides, where the cage is fastened to the log. The cage is fastened in such a way that it can move up and down following the movement of the water level. Anchors can be used in place of the poles.
Stocking of the fingerlings usually begins in the rainy season, when the fingerlings of Leptobarbus are available (October-December). Generally, farmers stock their cages with fingerlings of 8 to 12 cm size. Some stock their cages with bigger fish which are caught or purchased from other fishermen.
There are varieties of food used for feeding the cultured Leptobarbus, e.g. coconut wastes, rice bran, cassava, leaf of cassava and young leaf of rubber tree. Feeding is twice a day, in the morning and in the afternoon. As long as the fish are actively rising to the surface for eating, the food is continuously supplied. Feed for the fish are chosen according to the availability of each type and cost of food. The average feed cost is Rp 12 000/cage/year.
The growth rate of the fish depends on the food supplied by the farmers. Usually a marketable size of fish will be attained after one year for Leptobarbus.
Food used for feeding Ophicephalus sp. consist of small trash fish such as Rasbora sp., small Trichogaster sp., etc. The amount of food is 6 to 10 kg/cage/day. Feeding is usually three times a day.
In West Java, there is no special feeding for common carp cultured in cages. Usually fish farmers use rice bran or kitchen wastes.
In Jambi, most farmers still harvest their fish according to the market and economic condition of the farmers. Some will sell the fish at any time when they need money.
4. PROBLEMS AND CONSTRAINTS
4.1 Effect of pollution
In Jambi, there are no man-made pollution problems in cage culture. Problems exist because of changing chemical characteristics caused by brown water with high acidity (below pH 5) from the forest surrounding the cage area. This condition occurs during the middle of the rainy season and is at maximum several days after a flood occurence. The high acidity brown water occurs because of the decomposition of leaves which have fallen. Fish fatalities occured in cage culture exposed to this water.
The situation can be overcome by moving the cages to another area away from the brown water, usually to the middle of a lake. Pollution problems have not been experienced with floating cage culture in open waters connected to inland waterways. There have not been any adverse effects caused by cage culture.
In Kalimantan, besides brown water, pollution problems occur as a result of log harvesting operations. The cut ends of the logs are painted with a chemical highly toxic to fish. When logs are floated down stream, the chemical dissolves in the water causing widespread damage to fish cage culture.
The pollution problems of cage culture in West Java occur as a result of domestic waste. This organic matter causes widespread damage to fish in cages, especially during the dry season.
4.2 Durability of material used
The economic life of cages made of bamboo is generally two years, and of bulian cages six to ten years, according to maintenance by farmers and quality of wood used. Small repairs as well as heavy repairs are important and affect the life period of the cages. Repair and replacement of broken wood screens is an important requirement to prolong cage life.
4.3 Others
The bamboo cages are less durable and are difficult to construct because of difficulties in getting straight bamboo. It is also difficult to get a uniform mesh of bamboo screen. The use of crooked bamboo cause openings which permit small fingerlings to escape from the cage and also permit undesirable wild fish fingerlings and fry to enter the cages and after reaching adult size, attack and feed on the fish. To solve this problem, it is desirable to culture fingerlings of sufficient size so that they are somewhat larger than the mesh openings and can be retained in the cage.
5. CONCLUSIONS AND RECOMMENDATION
5.1 Conclusions
In Indonesia, it has been found that cage culture in open waters can be an important source of income for fish farmers.
The cages are in a development process. The bulian cage has a longer economic life than bamboo, but it is more costly.
Fish culture in cages could be more intensively developed by improvement of stocking rate and feeding, selection of species and regulating the culture cycle for maximum profitability.
5.2 Recommendation
Research on technology, biology and economics in this field could greatly assist fish cage culture development.

Figure 1 - Cage frame

fl - floating log
p - pole of wood where the cage are held in place
ws - water surface
wsc - wood screen
Figure 2 - Figure show floating cage in perspective