The local pattern of tide curve upon which fishpond design is based can be obtained from an analysis of the tide record. It is also referred to as design tide curve. The design tide curve is drawn along the zero datum level which is usually the Mean Lower Low Water (MLLW). Adoption of inappropriate design tide curve can cause problems in the management of the pond after construction is completed.
The bottom elevation of ponds is the primary consideration in the design and is determined based on the design tide curve (Figs. 5.1 and 5.2). Primary consideration should be given to both the biological needs of the cultured species and construction aspect such as the minimum and maximum water level to be maintained in the pond and adequate flow of water into the ponds. On the economic side of construction, the elevation of pond bottom should strike a balance between the excavation or filling work and the tidal range. For a site with relatively high ground elevation, it is possible in a specific instance that pumping water to the ponds can prove to be more economical than excavating the soil to the desired elevation (Gedney, Shang and Cook, 1983).

Fig. 5.1 Relation of tide curves to design elevations of a fish farm at the Sungai Merbok estuary, Malaysia
(After Hechanova and Tiensongrusmee, 1980)

Fig. 5.2 Relation of tide curves to the different pond elevations (Modified after Denilo, 1976)
The elevation of other structures such as gates, canals and dikes are also based on the design tide curve and these should fit properly to the water management and operational requirements of the ponds. An example of representative tide curve which applies to the Ban Merbok estuary in Malaysia is given (Fig. 5.3).

Fig. 5.3 Representative tide curve (Mean High Water Spring)
referred at Tanjong Dawai, Secondary Port,
Ban Merbok Estuary, Malaysia
(After Hechanova and Tiensongrusmee, 1980)

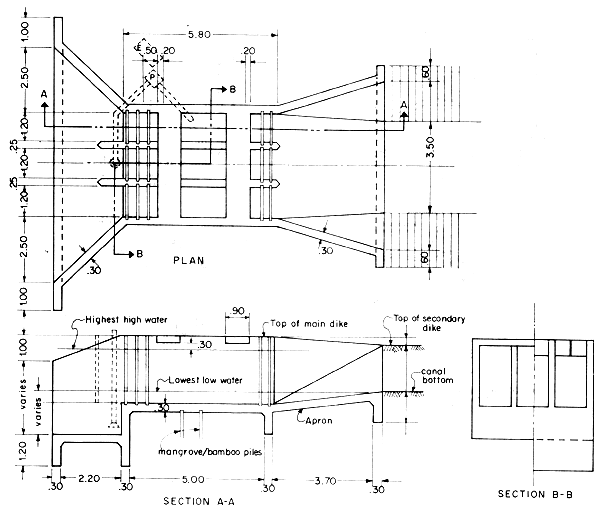
Fig. 5.4 Parts of a main gate (double opening) made of reinforced concrete (Modified after Jamandre and Rabanal, 1975)
(a) Floor. The floor serves as the foundation of the structure and its elevation for main gates must be lower than the pond bottom elevation and as low or slightly lower than the lowest tide in the site. If this is observed, the main gate which rests on a prepared foundation support will not be exposed even during extreme low tides.
(b) Apron. This is the broadened and extended part of the floor and also generally rests on the foundation piles, which are made of seasoned bamboo or wood driven at 0.3 m intervals into the soft soil with the butt end up. The apron serves as protection to scouring and future seepage of water at the gate's sides.
(c) Cut-off-walls. Cut-off-walls are provided at both ends of the gate's floor to prevent seepage and undercutting of water within the gate's foundation. They extend down into the soil at a minimum of 0.60 m and are an integral part of the gate's foundation. Wooden sheet piles may be used as an extension of concrete cut-off-walls in order to reach deeper depths at reduced cost.
(d) Side or breast walls. Side walls define the sluice way in addition to their being retaining wall for the dike fill. Grooves or double cleats for flashboards and screens are built on these walls. The top of these walls are as high as the top of the dike.
(e) Buttress. This is built against the side walls to support or reinforce it. It also helps in reducing seepage flow along the side walls.
(f) Wing walls. Wing walls provide the transition from the sluice way into the main canal in addition to retaining the earth at both sides of the gate. This transition improves the condition of the flow by providing a control on flow velocities from one bed material to another.
(g) Bridges or catwalks. These are reinforced concrete slabs or thick wooden planks that span the side walls. At least three catwalks are provided, two at each end and one at centre near the flashboard grooves.
(h) Flashboards. Slabs or flashboards are generally wooden planks, 2.5 to 5 cm thick and 30 cm wide inserted into grooves or double cleats. They are used to control the amount of water flowing through the gate.
(i) Screens. Screens are usually made of bamboo strips or of fine polyethylene meshes attached to a wooden rectangular frame that fit into the grooves. The screens are used to prevent the exit of the cultured fish and the entry of predators into the ponds.
(j) Pillars. In wooden gates, these are vertical supports where wooden walls are nailed. They are placed at regular intervals so that they form a framework for the gate itself.
(k) Braces. In wooden gates, these wooden members hold or fasten two or more pillars together or in place. They keep the opening of a gate rigid.
The main gate links the pond system to the source of water. It regulates the exchange of water between the pond system and the tidal stream or sea. Instead of wood, it should be made of concrete for effective control and to last longer. The main gate is usually situated at the central side of the proposed fishpond facing the source of water. The following provides some information needed in the design of the main gate.
(a) The floor elevation of the main gate should be lower than the lowest pond bottom elevation desired inside the pond system. It should also be as low or slightly lower than extreme low tides (Fig. 5.5). The front end or riverside elevation of the floor or apron may be made lower if a pump is to be installed (Fig. 5.5).
(b) The height of the main gate depends upon the highest tide and flood and should be the same as the elevation of the main dike which is also dependent upon the tidal fluctuations, floods and other factors in the area.

Fig. 5.5 Detail of main gate with pump sump (Reinforcement not shown)
(After Hechanova and Tiensongrusmee, 1980)
(c) Main gates may have single, double, or triple or even quadruple or more openings (Figs. 5.6 to 5.8). The opening of the main gate depends upon the area to be flooded. Gates should not have too wide opening so that they would be difficult to manage. One to 1.2 m wide per opening has been found appropriate for easy handling of wooden slabs and screens. Wider opening than these may require lifting mechanisms in the operation of the gate. Experience in the Philippines shows that a single opening of 1.0 m for a concrete main gate could flood a 10 to 15 ha pond system in a milkfish farm in two or three successive high tides. This opening, however, does not necessarily apply to shrimp farm because of the difference in water depth requirement between shrimp and milkfish. Based on the computations done (Appendix B), a gate with three openings and 1.2 m wide each would fill an 11.35 ha shrimp farm to a minimum depth of one meter in two consecutive tide cycle. For much larger areas and deeper ponds, a double or triple opening-gate of proper width may be constructed at one or more spots along the perimeter dike.
![]() | ![]() |
| Fig. 5.6 Main concrete gate single-opening (After Lijauco, 1977) | Fig. 5.7 Main concrete gate double-opening (After Lijauco, 1977) |

Fig.5.8 Sample of a triple-opening concrete main gate
(d) There must be a separtate groove for the slabs and screens. It may be necessary to have four pairs of grooves; two pairs for slabs and two pairs for screens (one at each end) depending upon their use.
(e) The wings should be properly designed to provide easy current flow. The best angle of flare should be 45° towards the outside. This angle may not be necessarily the same for both ends of the gate.
(f) The gate foundation must be rigid and stable. It must be able to carry the whole weight when the gate is fully constructed. There are two designs of gate foundations in use — one has the floor and apron of gate resting on a combination of piles and layers of boulders and gravel. The other one uses piles alone to stengthen the foundation that supports the structure. The former design is common in the Philippines and Indonesia while the latter is found in Malaysia (Fig. 5.9 to 5.11).
(g) Cut-off-walls and aprons must be provided. They must be wide enough to include portions susceptible to scouring and under-cutting of water.
(h) Adequate reinforcements against sidewise pressure must be provided. Spacing of steel bars should not exceed 40 cm centre to centre. The size of vertical bars should be 12 to 13 mm and 10 mm for horizontal bars.

Fig. 5.9 Foundation support and piling scheme (Philippines) (Portion of flooring only)

Fig. 5.10 Foundation support plan and piling scheme (Malaysia) (Portion of flooring only) (After Khoo, pers. comm., 1982)

Fig. 5.11 Foundation and elevation plan of concrete main gate (single opening) (After Denila, 1976)
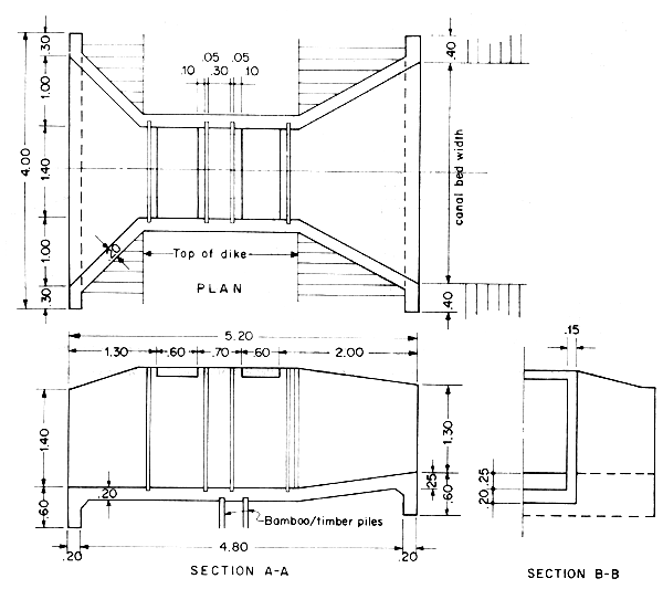
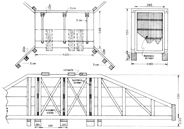
These provide the control of water to and from the main canal and into the different pond components such as catching ponds, rearing ponds and nursery ponds. These structures are usually made of wood and can be treated with coal tar for durability. Single or double opening made of reinforced concrete or hollow blocks can also be used but it is sometimes too expensive (Figs. 5.12 to 5.14). Considerations in the planning and designing of secondary and tertiary gates are the same as those of the main gate except that their respective elevations are dependent upon the elevation of the canal bed where they are being constructed. The usual elevation of the flooring of these gates above the canal is 0.15 m. The flooring elevation of the farthest gate from the main gate should be checked against the design tide curve to insure that it still is capable of filling the pond within the prescribed time. The width of opening may vary from 0.6 to 1.0 m. Wing walls can be provided (Figs. 5.15 and 5.16) but some existing designs, especially the wooden gates, do not have these structures (Figs. 5.17 and 5.18). Anti-seep boards at the side of the gate is also a good feature (Fig. 5.16).
These structures convey water across dikes, roads, and similar embankments. A recent innovation for a smaller and less expensive gate is the use of culverts or pipes made of concrete hollow blocks or asbestos cement. Culverts or pipes gates may or may not have wing walls (Figs. 5.19 and 5.20) and are likewise provided with slabs and screens and are even more effective for water control in a fishpond, the conduit section may be circular or square in shape (Figs. 5.19 to 5.21). For low-cost design wooden culvert may be used (Fig. 5.22).

Fig. 5.12 Detail of a single opening secondary concrete gate
(After Hechanova and Tiensongrusmee, 1980)

Fig. 5.13 Details of secondary gates with double opening (After Hechanova and Tiensongrosmee, 1980)

Fig. 5.14 Concrete hollow blocks sluice gate (single opening - Indonesia)
(After Djajadiredja and Daulay, 1982)

Fig. 5.15 Wooden sluice gate - with wing wall in two ends side braces and cat walk (After Djajadiredja and Daulay, 1982)

Fig. 5.16 Wooden main sluice gate (Top view) - with middle anti-seep board and wing wall in pond side (Modified after Jamandre and Rabanal, 1975)

Fig. 5.17 Secondary wooden gate (No wing wall)
(After Jamandre and Rabanal, 1975)

Fig. 5.18 Detail of wooden tertiary gate, for nursery/rearing ponds
(After Hechanova and Tiensongrusmee, 1980)

Fig. 5.19 Cut-out diagram of concrete culvert as secondary gate (with wing wall)
(After Jamandre and Rabanal, 1975)

Fig. 5.20 Concrete culvert (No wing wall)
(After Djajadiredja and Daulay, 1982)

Fig. 5.21 Design of a square culvert gate
(After BFAR - UNDP/FAO, 1981)

Fig. 5.22 Wooden square culvert
(After Djadjadiredja and Daulay, 1982)
The function of perimeter dikes is to retain water for use in the fish farming operation as well as to protect the farm ponds, fish crops and other farm facilities from destruction by floods and tidal inundation. Design of these embankments must be based on sound engineering principles and economic feasibility. The design of perimeter dikes are two types: (i) for exposed areas; and (ii) for protected areas (Figs. 5.23 and 5.24).

Fig. 5.23 Sample designs of perimeter dike within the reach of coastal waves

Fig. 5.24 Sample designs of perimeter dike located along river or protected area
The perimeter dikes of a coastal fish farm is usually built along the river banks, on the seaward side or in certain spots that are vulnerable to flooding. In locating the dike, the Philippines require a belt of mangroves of 20 m from a river bank, and 100 m wide from seashore to be left for the purpose of protecting the dikes against waves and currents, and absorption of wave energy and, to some extent, for flood control and conservation of the environment. Indonesia requires 400 m of mangrove as green belt of trees along the shore.
The path of the dike is determined by survey to avoid (a) crossing of streams or creeks that have substantial rate of flow; (b) areas of extremely poor soil which result in high construction cost; and (c) locating the dike near an actively eroding line of rivers or coasts.
The cross-section of dikes is described by the crown or top width, height, side slope and the bottom width or base (Fig. 5.25). Modifications are made by providing berm and core or puddle trench (Fig. 2.6). Cross-section of the perimeter dike should be designed to: (a) prevent over-tapping at high tide combined with a maximum flood height from the river system; and (b) prevent failure due to slips and seepage.
Due to poor and soft foundation soil in coastal swamps, the embankment requires a process of consolidation before it becomes stable. Consolidation is a natural phenomenon and it occurs as a counterbalance between the settlement and bearing capacity of the foundation. Slip and collapse of an embankment constructed on poor ground occurs when irregularities or unbalanced conditions develop in the foundation.
(a) Determination of height
The height of the dike should be above the highest tide and flood that occur in the site. The design flood level is based on the maximum flood water that was observed in the locality to recur within 10 to 15 years (in Chapter 2).

Fig. 5.25 Steepness of side of dike for different values of side slope (Horizontal and vertical ratio)

Fig. 5.26 Design of different dikes
(After BFAR-UNDP/FAO,1981)
The design height of dike should be provided with a freeboard after shrinkage and settlement of 0.3 to 1.0 m above the highest water level. Given below are the recommended allowance for shrinkage and settlement:
| Condition | Allowance for structure and settlement (%) | |
|---|---|---|
| 1. | Poor material and poor methods and practices in construction | 15–30 |
| 2. | Soil exceptionally high in organic matter | 40 or more |
| 3. | Compacted by construction equipment | 5–10 |
The total height of the main dike above the ground level can be computed by the following formula (see Fig. 5.27).
![]() | ||
| Where: | Hm | =height of the main dike |
| Hat | =highest astronomical tide | |
| Gs | =elevation of the ground surface | |
| Mf | =maximum flood level | |
| F | =allowance for freeboard | |
| %S | =percent shrinkage and settlement | |

Fig. 5.27 Cross-section of perimeter (main) dike and basis for determining height
Example 5.1
It is required to determine the height of a main dike with the given conditions in the site as follows:
Solution:
Hm | ![]() |
| = 2.04 m |
(b) Determination of side slopes, crown and base
The dike should also be of adequate width so that it could hold water inside and prevent flooding from outside with appropriate side slope of 1:1 for clay soil and height up to 3.0 m. Side slope of 2:1 (horizontal to vertical) is used for height greater than 4.0 m and even flatter if located along seashore and being subject against wave action. If available soil permits, provision for a berm (single or both sides) is desirable for additional stability. The berm should slope towards the dike wall to trap eroded soil particles during rains. It also serves as small ditch that conveys runoffs towards the outlet gate especially when acidity of exposed dike is a management problem.
The top width or crown of the dike should be designed so as to serve its purpose. For dikes used as roadways, top width of 3.5 m to 4.0 m can be used but preferably 4.0 m. A 0.6 m wide allowance should be provided on each side of a roadway dike to prevent ravelling. In the Philippines, the desirable minimum crown for milkfish culture is at least 2.0 m for main dike.
Dikes subjected to wave action should have a minimum crown of approximately equal to the height of the maximum wave.
The base (without a berm) is computed in accordance with the width of crown and side slope as follows (Fig. 5.28)

Fig. 5.28 Simple pond dike
b = T + 2(zd) | |
| Where: | b = width of base, m |
| T = width of crown, m | |
| d = height of dike, m | |
| z = horizontal value of side slope |
Example 5.2
Referring to Figure 5.28, determine the width of base if the dike should have a top width of crown of 2.5 m, height of 1.3 m and a side slope of 1.5:1 (or z = 1.5).
Solution: Using the formula above:
| b | = 2.5 + 2(1.5) (1.3) |
| = 6.4 m |
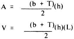
(c) Cross-sectional area and volume of dike
The cross-sectional area is estimated by adding the width of crown and base, divide the sum by two, and multiplied by the height. The height should be the estimated height for main, secondary or tertiary dike which includes allowance for shrinkage. The volume of soil required to construct the dike is computed by multiplying the cross-sectional area by the length of dike. In symbol,
![]() | |
| Where | A = cross-sectional area of dike, m2 |
| V = volume of dike, m3 | |
| L = length of dike, m |
Example 5.3
From Example 5.2, the cross-sectional area and volume of a dike that will be constructed 1 250 m long are:

To maintain a watertight pond, leakage should be given due attention in dike design and proper construction procedure followed. After the dike has been constructed, leakage is usually caused by the damage of the dike due to crustacean burrows, particularly the species Thalassina anomala (Tang, 1982). They make burrows in the soft mud under the dike thereby causing “piping” by which sand and silt particles are moved by seepage flow. Effective measures for preventing leakage include:
Minimizing the amount of seepage flow through proper compaction, core trenching, embedding vertical plastic membrane inside dike, covering dike wall with concrete bricks, riprapings, etc.
Minimizing destruction by crustaceans by desalinizing and drying out the embankment soils.
The rate of seepage through a dike can be estimated if the following factors are known: (i) the permeability coefficient of the dike; (ii) height of water level in the pond or canal; (iii) effective width of the dike; and (iv) the nature of dike foundation whether permeable or impermeable. Under normal conditions, the passage of water through a dike with impermeable foundation is only confined within the dike soil. When the foundation is permeable, the rate of seepage flow is the sum of the seepage passing through the dike itself and the quantity passing through the thickness of the dike soil foundation. In brackishwater fish farm, dike foundation is mostly, if not all, permeable. The appropriate formula for estimating seepage flow is given in Appendix E.
Since the permeability of alluvial clay is relatively constant, the increase or decrease of seepage flow in a coastal fish farm depends mainly upon the levels of tidal fluctuation and effective width of dike. The effective width of dike can be calculated by constructing the seepage line (Appendix E). For a value of permeability of the embankment and foundation soil of 1.32 cm/hour, water level in the pond maintained at 3.3 m, and tidal level of 4.8 m and 0.0 (datum level), estimates of seepage inflow and outflow through the dikes with three effective widths is given by Tang, 1976 (Table 5.1). The table shows that as the effective width of dike becomes narrower, more seepage flow occurs. Hence placing linings of impermeable material is more needed in small dikes.
The secondary and tertiary dikes are smaller than the main dikes. Secondary dikes are usually provided on both sides of the canals and should be able to contain the mean high water springs. Tertiary dikes are partition dikes that separate the ponds and should be able to contain the desired water levels in the ponds.
Table 5.1
Seepage flow through dikes with three effective widths
| Dimension of dikes | Minimum seepage inflow in rising tides | Minimum seepage outflow in ebb tides | ||||
|---|---|---|---|---|---|---|
| Top width (m) | Height (m) | Slope | Effective dike width (m) | Rate of seepage flow (cm3/hr) | Effective dike width (m) | Rate of seepage flow (cm3/hr) |
| 2.0 | 2.0 | 3:1 | 11.0 | 0.13 | 14 | 0.28 |
| 2.0 | 2.0 | 2:1 | 8.0 | 0.18 | 10 | 0.32 |
| 2.0 | 2.0 | 1:1 | 5.0 | 0.29 | 6 | 0.69 |
The equation below can be used for the determination of dike heights:
(a) Secondary dikes (Fig. 5.29)
![]() | |
| Where: | Hs = height of the secondary dikes above the ground |
| surface | |
| Hst = mean high spring tide | |
| Mr = maximum rainfall within 24 hours |
Example 5.3
If the mean high spring tide above the zero datum is 1.35 m, the ground elevation at the side of dike is 1.00 m, and maximum 24-hour rainfall in the locality for 15-year interval is 12 cm. Determine the height of secondary dike needed. Provide 25% allowance for shrinkage and 30 cm freeboard.
Solution: (Refer to Fig. 5.29)
= 1.30 m
(b) Tertiary dikes (Fig. 5.30)
![]() | |
| Where: | Ht = height of the tertiary dike above datum |
| Dwl = desired water level above datum |

Fig. 5.29 Typical cross section of secondary dike showing ground elevation, water levels and basis for determination of height

Fig.5.30 Typical cross section of tertiary dike showing ground and water levels and basis for determining height
Example 5.4
Determine the height of a tertiary dike if the desired water level in the pond is 1.35 m from the zero datum and the ground elevation is 1.00 m. The maximum 24-hour rainfall is 12 cm, allowance of shrinkage is 20% and freeboard is 30 cm.
Solution: (Refer to Fig. 5.30)
= 0.96 or rounded to 1.0 m
The top width of secondary and tertiary dikes are narrower than the perimeter or main dike. Top width of 1 to 2 m are common for the secondary dike and even less than one meter for the tertiary dike.
The side slope is usually 1:1. Side berms in secondary dike may be provided if there is excess soil in order to reduce the cost of hauling. Puddle trench in the dike base is provided when necessary.
The computation of the width of base is done in the same way as in the perimeter or main dike. Table 5.2 gives values of base for different values of dike height, crown and side slopes.
Fishponds are designed to have the best environment for the cultured species — through efficient water management, ease in the cultivation of food organisms and manipulation of stock for good growth and production. This objective could be attained when the arrangement of the pond compartments, water control structures and all other facilities mutually complement each other.
Production ponds are designed independent of each other by providing each with individual water supply and drainage gates. Within the compartment, pond bottoms are designed to further fit the environmental requirement of cultured species. The whole bottom should slope towards the drainage gate to facilitate removal of water. This sloping bottom can be modified and improved by providing bottom ditch within the pond running along and close to the base of the dike. This ditch collects and leads the water to the catching pond where the drainage gate is also located. In this scheme, a slope divide is provided at the centre of the pond (Fig. 5.31). For much larger compartments, a middle ditch connecting the peripheral ditch may be provided (Fig. 5.32).
Ponds designed purposely for shrimp culture usually have two separate gates — supply (inlet) and drainage (outlet) gates. Peripheral canals are provided mainly to serve as shelter for the shrimp; to increase the pond bottom surface area; and to have better water circulation. Facilitating drainage is only secondary in the purpose. Hence, more canals or bottom platforms are sometimes provided (Fig. 5.33) and some Figures in Chapter 4).
Table 5.2
Relationship among the top width,
bottom width and height of dike with given side slopes
| Height (m) | Top width or crown (m) | Bottom width, m at given side slop | ||
|---|---|---|---|---|
| 1:1 | 1:5:1 | 2:1 | ||
| 1.5 | 2 | 5 | 6.5 | 8 |
| 2 | 2 | 6 | 8 | 10 |
| 3 | 2 | 8 | 11 | 14 |

Fig. 5.31 Peripheral ditch or canal in bottom of shrimp pond
(Not drawn to scale)

Fig. 5.32 A central ditch in addition to peripheral ditch in shrimp pond
(Not drawn to scale)

Fig. 5.33 A flow-through type of pond bottom design for shrimp pond
(After Pinij, pers.comm., 1982)
(Not drawn to scale)
Pond bottom for shrimp culture may or may not be cleared of tree stumps depending on harvesting method. Stumps may just be cut short well below the pond water level (Fig. 5.34). Milkfish ponds, however, require that the pond be totally cleared of stumps to facilitate harvesting by gillnet seine. This method of harvest, however, is not common in the Philippines, because it removes some of the scales, thus reducing the quality of fish.
Water from the outer sea is drawn into the fishpond at the specified rate and time through the canal and discharged into the outer sea also through the same canal. In the design of the canal, it is necessary to give consideration on the following criteria:

Fig. 5.34 Dike-canal type pond (Modified after Cook, 1976)
The cross-section is determined to effect the flow of required amount of water in rational way. That is, the most effective section in terms of hydraulics; within the possible minimum time.
If the canal is to be used for other purposes than water conveyance, it should be designed to fulfill such purpose.
Canals in fish farms are usually made of soil material. They may only vary in size depending on its location and purpose. A canal may serve the purpose of supplying and draining water to and from the ponds.
Main water supply canal. — This starts from the main gate and usually traverses the central portion of the fish farm. The size of the main canal should consider the emergency discharge of water from the entire fish farm and surrounding area, if any, during heavy rain.
Secondary water supply canal. — This serves the portions where main canal cannot reach. It starts from the main canal and traverses the inner portion of the fishpond. It is usually constructed in large fishpond areas and is smaller than the main canal.
Tertiary canal. — This is the canal that usually supply water in the nursery and transition ponds. Because of the small size, it is sometimes said to be a part of the nursery pond system. The tertiary canal may be modified to serve as catching pond. Usually the bed width is 1.0 to 1.5 m.
Diversion canal. — The purpose of this canal is to protect the farm from being flooded with runoff water coming from the watershed. It should have the capacity to carry at least the peak runoff from the contributing watershed for a ten-year frequency storm. The slope of the diversion canal should be such that the water flows toward the drainage area or around the fish farm to a convenient and prepared outlet.
Drainage canal. — A separate drainage canal is recommended in intensive culture, especially of shrimps, in order to effect flow-through system. This is usually located at the other side of the pond, opposite and parallel to the supply canal, if provided.
The cross-section of the canal is generally of trapezoidal shape with side slope of 1:1 for the alluvial clay soil (Fig. 5.35). The depth of the main canal ranges from the level of mean higher high water (excluding the height of freeboard) for mixed tide or mean high water (for diurnal), to the mean lower low water (the datum plane); and the secondary canals from the designed pond water level to the mean tide level. The lower limit of the water canals depends on the range of tide. Generally, a smaller tide range requires a lower canal bed.

Fig.5.35 Design of different canals (After BFAR-FAO/UNDP,1981)
For the most efficient cross-section, canal bed should be.
![]() | |
| Where: | b = canal bed |
| d = depth of canal excluding freeboard | |
| z = horizontal value of side slope |
Example 5.5
Using the above formula, if the water depth inside a canal that has side slope of 1:1 is 1.0 m, the bottom width would be 0.83 m. Values of bottom width for other depths and side slopes are given in Table 5.3. The table also includes the cross-sectional area.
Velocity of water on canals should be designed properly to avoid soil erosion and siltation on the canal bed. Velocity should be slow to prevent excessive erosion but not too slow to prevent siltation. In most soils, design velocity of water in canals should not be lower than 0.3 m/sec to avoid silting. The usual velocities in canals are within 0.5 to 0.7 m/sec.
The nature of velocity of flow in a canal during tidal inflow is different compared to the velocity during drainage of pond water at ebb tide. The former is an unsteady flow and water is flowing against the direction of canal slope. The latter is a flow of water in the same direction of slope. It is still an unsteady flow or flow that changes with time because of the falling depth of water in the ponds during drainage.
The opposite of unsteady flow is steady flow. This flow does not fluctuate or change with time. An example of a steady flow that exists in brackishwater fish farm is when pumping water from a river or a well and discharging in a canal that delivers the water to the ponds. The flow in the canal is further called uniform flow because the depth of water does not change and flows by gravity or in the direction of the slope.
Table 5.3
Cross-sectional area, A of trapezoidal earthen
canal at given side slope, z:1; water depth, d; and bottom width, b

| Side slope 1:1 | 1.5:1 | 1.75:1 | 2:1 | |||||
|---|---|---|---|---|---|---|---|---|
| d m | z = 1 | z = 1.5 | z = 1.75 | z = 2 | ||||
| b m | A m2 | b m | A m2 | b m | A m2 | b m | A m2 | |
| 0.25 | 0.207 | 0.114 | 0.152 | 0.132 | 0.133 | 0.142 | 0.118 | 0.155 |
| 0.50 | 0.414 | 0.457 | 0.302 | 0.526 | 0.265 | 0.570 | 0.236 | 0.618 |
| 0.75 | 0.621 | 1.028 | 0.453 | 1.184 | 0.397 | 1.284 | 0.354 | 1.391 |
| 1.00 | 0.828 | 1.828 | 0.604 | 2.104 | 0.530 | 2.280 | 0.472 | 2.472 |
| 1.25 | 1.035 | 2.856 | 0.755 | 3.288 | 0.662 | 3.562 | 0.590 | 3.863 |
| 1.50 | 1.242 | 4.113 | 0.906 | 4.734 | 0.795 | 5.130 | 0.708 | 5.562 |
| 1.75 | 1.449 | 5.598 | 1.057 | 6.444 | 0.927 | 6.981 | 0.826 | 7.571 |
| 2.00 | 1.656 | 7.312 | 1.208 | 8.416 | 1.060 | 9.120 | 0.944 | 9.888 |
| 2.25 | 1.863 | 9.254 | 1.359 | 10.652 | 1.192 | 11.541 | 1.062 | 12.515 |
| 2.50 | 2.070 | 11.425 | 1.510 | 13.150 | 1.325 | 14.250 | 1.180 | 15.450 |
| 2.75 | 2.277 | 13.824 | 1.661 | 15.912 | 1.457 | 17.241 | 1.298 | 18.695 |
| 3.00 | 2.484 | 16.452 | 1.812 | 18.936 | 1.590 | 20.520 | 1.416 | 22.248 |
Under the condition of steady and uniform flow, the velocity of water in the canal can be calculated by using Manning's formula:
![]() | ||
| Where: | V = | velocity, m/sec |
| R = | hydraulic radius, A/P, m | |
| S = | canal bed slope, m/m | |
| n = | roughness coefficient of the canal wall | |
| A = | cross-sectional area of the canal | |
| P = | wetted perimeter or cross-sectional length of side wall of canal that is in contact with the water, m | |
The design discharge or capacity of a canal for steady and uniform flow is calculated by using the continuity equation: Q = AV, where Q = discharge or rate of flow in m3 sec.
Example 5.6
Determine the bottom width and capacity of an earthen canal with water depth of 0.75 m and side slope of 1.5:1. The canal has a bed slope of 0.0010 or 1 1 000.
Solution:
From Table 5.3, for d = 0.75, and side slope of 1.5:1, the bottom width of the canal for an efficient cross-section is 0.453 m. The velocity of flow at bed slope of 1 1 000 is 0.44 m/sec (Table 5.4). In Table 5.3, the corresponding area for d = 0.75 and b = 0.453 m is 1.184 m2. Therefore, the capacity of the canal is 1.184 m2 × 0.44 m/sec = 0.521 m3 sec.
When canals are used for temporary holding of fish, the size of the canal will be calculated by the quantity of fish to be held. Under normal conditions, the maximum quantity of milkfish that can be held by tidal water is about 1.3 to 1.7 kg/m3. If the length and depth of canal are fixed, then the width should adjust in order to satisfy the required volume of water for a given quantity of fish to be held. The bottom of the canal if intended for temporary holding of fish should be 30 cm lower than the pond bottom or secondary gate.
Table 5.4
Velocity of water (m/sec) in trapezoidal earthen canal in clay soil
at given side slope; roughness coefficient, n = 0.025; depth, d; and bottom width, b
Side slop = 1:1
| C A N A L S L O P E | ||||||||||||
|---|---|---|---|---|---|---|---|---|---|---|---|---|
| Depth (m) | Bottom width (m) | |||||||||||
| 0.25 | 0.207 | 0.45 | 0.37 | 0.32 | 0.28 | 0.26 | 0.24 | 0.22 | 0.21 | 0.20 | 0.19 | 0.18 |
| 0.50 | 0.414 | 0.71 | 0.58 | 0.50 | 0.45 | 0.41 | 0.38 | 0.35 | 0.33 | 0.32 | 0.30 | 0.29 |
| 0.75 | 0.621 | 0.93 | 0.76 | 0.66 | 0.59 | 0.54 | 0.50 | 0.46 | 0.44 | 0.42 | 0.40 | 0.38 |
| 1.00 | 0.828 | 1.13 | 0.92 | 0.80 | 0.71 | 0.65 | 0.60 | 0.56 | 0.53 | 0.50 | 0.48 | 0.46 |
| 1.25 | 1.035 | 1.31 | 1.07 | 0.92 | 0.83 | 0.75 | 0.70 | 0.65 | 0.62 | 0.58 | 0.56 | 0.53 |
| 1.50 | 1.242 | 1.48 | 1.21 | 1.05 | 0.94 | 0.86 | 0.79 | 0.74 | 0.70 | 0.66 | 0.63 | 0.60 |
| 1.75 | 1.449 | 1.64 | 1.34 | 1.16 | 1.03 | 0.94 | 0.87 | 0.82 | 0.77 | 0.73 | 0.70 | 0.69 |
| 2.00 | 1.656 | 1.79 | 1.46 | 1.26 | 1.13 | 1.03 | 0.96 | 0.89 | 0.84 | 0.80 | 0.76 | 0.73 |
| 2.25 | 1.863 | 1.94 | 1.58 | 1.37 | 1.22 | 1.12 | 1.03 | 0.97 | 0.91 | 0.87 | 0.83 | 0.79 |
| 2.50 | 2.070 | 2.08 | 1.69 | 1.47 | 1.31 | 1.20 | 1.11 | 1.04 | 0.98 | 0.93 | 0.88 | 0.85 |
| 2.75 | 2.277 | 2.21 | 1.81 | 1.56 | 1.40 | 1.28 | 1.18 | 1.11 | 1.04 | 0.99 | 0.94 | 0.90 |
| 3.00 | 2.484 | 2.34 | 1.91 | 1.66 | 1.48 | 1.35 | 1.25 | 1.17 | 1.10 | 1.05 | 1.00 | 0.96 |
| Side slope = 1.5:1 | ||||||||||||
| 0.25 | 0.152 | 0.45 | 0.37 | 0.32 | 0.28 | 0.26 | 0.24 | 0.22 | 0.21 | 0.20 | 0.19 | 0.18 |
| 0.50 | 0.302 | 0.47 | 0.39 | 0.34 | 0.30 | 0.27 | 0.25 | 0.24 | 0.22 | 0.21 | 0.20 | 0.19 |
| 0.75 | 0.453 | 0.62 | 0.51 | 0.44 | 0.39 | 0.36 | 0.33 | 0.31 | 0.29 | 0.28 | 0.26 | 0.25 |
| 1.00 | 0.604 | 0.67 | 0.55 | 0.48 | 0.42 | 0.39 | 0.36 | 0.34 | 0.32 | 0.30 | 0.29 | 0.27 |
| 1.25 | 0.755 | 0.87 | 0.71 | 0.62 | 0.55 | 0.50 | 0.47 | 0.44 | 0.41 | 0.39 | 0.37 | 0.36 |
| 1.50 | 0.906 | 0.99 | 0.81 | 0.70 | 0.62 | 0.57 | 0.53 | 0.49 | 0.47 | 0.44 | 0.42 | 0.40 |
| 1.75 | 1.057 | 1.09 | 0.89 | 0.77 | 0.69 | 0.63 | 0.58 | 0.55 | 0.52 | 0.49 | 0.47 | 0.45 |
| 2.00 | 1.208 | 1.20 | 0.98 | 0.85 | 0.76 | 0.69 | 0.64 | 0.60 | 0.56 | 0.54 | 0.51 | 0.49 |
| 2.25 | 1.359 | 1.29 | 1.06 | 0.92 | 0.82 | 0.75 | 0.69 | 0.65 | 0.61 | 0.58 | 0.55 | 0.53 |
| 2.50 | 1.510 | 1.39 | 1.13 | 0.98 | 0.88 | 0.80 | 0.74 | 0.69 | 0.65 | 0.62 | 0.59 | 0.57 |
| 2.75 | 1.661 | 1.48 | 1.21 | 1.05 | 0.94 | 0.85 | 0.79 | 0.74 | 0.70 | 0.66 | 0.63 | 0.60 |
| 3.00 | 1.812 | 1.51 | 1.28 | 1.11 | 0.99 | 0.90 | 0.84 | 0.78 | 0.74 | 0.70 | 0.67 | 0.64 |
| Side slope = 1.75:1 | ||||||||||||
| 0.25 | 0.133 | 0.45 | 0.37 | 0.32 | 0.28 | 0.26 | 0.24 | 0.22 | 0.21 | 0.20 | 0.19 | 0.18 |
| 0.50 | 0.265 | 0.71 | 0.58 | 0.50 | 0.45 | 0.41 | 0.38 | 0.35 | 0.33 | 0.32 | 0.30 | 0.29 |
| 0.75 | 0.397 | 0.93 | 0.76 | 0.66 | 0.59 | 0.54 | 0.50 | 0.46 | 0.44 | 0.42 | 0.40 | 0.38 |
| 1.00 | 0.530 | 1.13 | 0.92 | 0.80 | 0.71 | 0.65 | 0.60 | 0.56 | 0.53 | 0.50 | 0.48 | 0.46 |
| 1.25 | 0.662 | 1.31 | 1.07 | 0.92 | 0.83 | 0.75 | 0.70 | 0.65 | 0.62 | 0.58 | 0.56 | 0.53 |
| 1.50 | 0.795 | 1.48 | 1.21 | 1.04 | 0.93 | 0.85 | 0.79 | 0.74 | 0.70 | 0.66 | 0.63 | 0.60 |
| 1.75 | 0.927 | 1.64 | 1.34 | 1.16 | 1.03 | 0.94 | 0.87 | 0.82 | 0.77 | 0.73 | 0.70 | 0.67 |
| 2.00 | 1.060 | 1.79 | 1.46 | 1.26 | 1.13 | 1.03 | 0.96 | 0.89 | 0.84 | 0.80 | 0.76 | 0.73 |
| 2.25 | 1.192 | 1.93 | 1.58 | 1.37 | 1.22 | 1.12 | 1.03 | 0.97 | 0.91 | 0.86 | 0.82 | 0.79 |
| 2.50 | 1.325 | 2.08 | 1.69 | 1.47 | 1.31 | 1.20 | 1.11 | 1.04 | 0.98 | 0.93 | 0.88 | 0.85 |
| 2.75 | 1.457 | 2.21 | 1.81 | 1.56 | 1.40 | 1.28 | 1.18 | 1.11 | 1.04 | 0.99 | 0.94 | 0.90 |
| 3.00 | 1.590 | 2.34 | 1.91 | 1.66 | 1.48 | 1.35 | 1.25 | 1.17 | 1.10 | 1.05 | 1.00 | 0.96 |
| Side slope = 2:1 | ||||||||||||
| 0.25 | 0.118 | 0.48 | 0.39 | 0.34 | 0.30 | 0.28 | 0.26 | 0.24 | 0.23 | 0.21 | 0.20 | 0.20 |
| 0.50 | 0.236 | 0.71 | 0.58 | 0.50 | 0.45 | 0.41 | 0.38 | 0.35 | 0.33 | 0.32 | 0.30 | 0.29 |
| 0.75 | 0.354 | 0.93 | 0.76 | 0.66 | 0.59 | 0.54 | 0.50 | 0.46 | 0.44 | 0.42 | 0.40 | 0.38 |
| 1.00 | 0.472 | 1.13 | 0.92 | 0.80 | 0.71 | 0.65 | 0.60 | 0.56 | 0.53 | 0.50 | 0.48 | 0.46 |
| 1.25 | 0.590 | 1.31 | 1.07 | 0.92 | 0.83 | 0.75 | 0.70 | 0.65 | 0.62 | 0.58 | 0.56 | 0.53 |
| 1.50 | 0.708 | 1.48 | 1.21 | 1.04 | 0.93 | 0.85 | 0.79 | 0.74 | 0.70 | 0.66 | 0.63 | 0.60 |
| 1.75 | 0.826 | 1.64 | 1.34 | 1.16 | 1.03 | 0.94 | 0.87 | 0.82 | 0.77 | 0.73 | 0.70 | 0.67 |
| 2.00 | 0.944 | 1.79 | 1.46 | 1.26 | 1.13 | 1.03 | 0.96 | 0.89 | 0.84 | 0.80 | 0.76 | 0.73 |
| 2.25 | 1.062 | 1.93 | 1.58 | 1.37 | 1.22 | 1.12 | 1.03 | 0.97 | 0.91 | 0.86 | 0.82 | 0.79 |
| 2.50 | 1.180 | 2.08 | 1.69 | 1.47 | 1.31 | 1.20 | 1.11 | 1.04 | 0.98 | 0.93 | 0.88 | 0.85 |
| 2.75 | 1.298 | 2.21 | 1.81 | 1.56 | 1.40 | 1.28 | 1.18 | 1.11 | 1.04 | 0.99 | 0.94 | 0.90 |
| 3.00 | 1.416 | 2.34 | 1.91 | 1.66 | 1.48 | 1.35 | 1.25 | 1.17 | 1.10 | 1.05 | 1.00 | 0.96 |