Le modéle présenté dans cette étude de cas est fondé sur l'expérience d'une petite coopérative de commercialisation du poisson dans la région indo-pacifique.
La coopérative compte 330 membres dont 300 sont des artisans pêcheurs, les autres s'occupent du traitement du poisson (séchésalé, fumé et fermenté). La commercialisation du poisson frais et des produits halieutiques constitue un des grands problémes de cette communauté. La coopérative cherche à améliorer les conditions de vie de ses membres grâce au perfectionnement de la pêche, de la commercialisation et du traitement du poisson et des produits halieutiques.
Aprés un programme de formation initial sur les coopératives et une campagne ininterrompue pour encourager les pêcheurs de la région à adhérer, un plan de développement de la commercialisation au niveau de la coopérative a été mis en oeuvre par ses membres. Ses principaux objectifs étaient les suivants:
lancer la commercialisation collective du poisson afin de réduire au minimum les fluctuations de prix et les dépenses d'exploitation et de commercialisation; assurer des livraisons réguliéres pour satisfaire la demande et obtenir des prix intéressants;
réaliser le passage de la vente de poisson au volume (au niveau des villages) à la vente au poids; arriver à commercialiser du poisson de qualité supérieure grâce à l'amélioration des techniques de manutention;
favoriser l'adhésion des membres à la coopérative en procurant crédits, vulgarisation et formation appropriés ainsi qu'un approvisionnement régulier en facteurs de production à des prix raisonnables; ouvrir d'autres sources de crédit et d'approvisionnements au niveau du village;
mettre en oeuvre un systéme d'information pour faciliter la planification quotidienne des opérations de commercialisation du poisson.
La coopérative a encouragé ses membres à participer à un programme de collecte du poisson. Chaque jour, un bateau de collecte prenait livraison du poisson chez les pêcheurs membres des villages éloignés. Des centres de collecte du poisson ont été créés dans les villages les plus importants; ils se composaient d'un hangar avec sol en ciment, une bascule, des caisses à poisson isothermes, des bacs à glace, et une table de nettoyage et de tri.
Chaque centre de collecte achetait le poisson vivant au poids aux membres et aux non-membres en le payant au comptant. Le poisson était ensuite trié, lavé, réfrigéré et emballé dans des conteneurs isothermes pour être chargé sur le bateau de collecte, qui s'arrêtait à tous les centres de collecte chaque jour et approvisionnait en carburant, en glace et en engins uniquement les pêcheurs de la coopérative sur une base de crédit journalier, et chargeait ensuite le poisson frais réfrigéré. Au centre de débarquement principal de la coopérative, le responsable de la commercialisation affectait, en fonction de la demande du marché, une partie (environ la moitié) du poisson collecté aux marchés locaux et aux centres de traitement, le reste étant destiné aux marches de gros de la capitale et aux collectivités.
Au centre de débarquement principal de la coopérative, on a expérimenté avec succés la réfrigération rapide du poisson non glacé et l'entreposage réfrigéré en construisant un simple réservoir à eau de mer réfrigéré. Ce réservoir a été utilisé surtout pour le poisson de premier choix comme les mérous, les fusiliers, les brèmes de mer, les crevettes, et les petits thons aux nageoires jaunes. Le réservoir, d'une capacité de 850 kg, est fondé sur le refroidissement du poisson avec un mélange d'eau de mer propre et de glace, que l'on recycle au moyen d'une simple pompe à eau manuelle. Le poisson était stocké pendant 2 à 3 jours, temps suffisant pour regrouper une cargaison de camion à transporter au marché de gros de la capitale. Ce réservoir présentait les avantages suivants pour les artisans pêcheurs de la coopérative:
refrodissement du poisson plus rapide qu'avec la glace uniquement;
réduction des dégâts causés au poisson par écrasement;
baisse des besoins de main-d'oeuvre pour la réfrigération du poisson;
diminution des pertes dues à la réduction.
Le programme de collecte et l'amélioration des techniques de manutention, de commercialisation et de distribution du poisson ont permis à la coopérative de livrer du poisson de meilleure qualité aux consommateurs et d'obtenir des prix plus élevés pour les produits halieutiques. Cette expérience, destinée à combler les lacunes des pêcheries artisanales en matière de commercialisation, s'insérait dans un programme à long terme de développement de la commercialisation à l'échelle nationale (Figures 25 à 29).

Figure 25 Centre de débarquement du poisson d'un village de pêcheurs du Sud-Est asiatique

Figure 26 Plan d'un Centre de collecte du poisson dans le Sud-Est asiatique

Figure 27 Coupe transversale du centre de collecte du poisson dans le Sud-Est asiatique

Figure 28 Vue latérale d'un centre de collecte du poisson

Figure 29 Table de lavage/tri en acier inoxydable fabriquée sur place pour un centre de collecte du poisson
Ce project, opérationnel depuis mars 1982, est axé sur les communautés de pêche artisanale de Bayawan (province méridionale du Négros oriental, Philippines). Il a pour objectif à long terme de réduire le coût de la collecte et de la vente du poisson, d'améliorer la condition solio-économique des communautés d'artisans pêcheurs en leur démontrant les capacités des coopératives, et de mettre en place un système intégré de commercialisation fournissant du poisson de qualité supérieure grâce à l'établissement d'infrastructures de base.
En 1980, la population de la commune de Bayawan était de 71 113 habitants, soit approximativement 12 695 ménages, dont 304 ménages de pêcheurs. Bayawan est reliée à Dumaguete City, la capitale de la province, située à 102 km de distance, par une route carrossable en toutes saison. L'alimentation en électricité est assurée en permanence et les puits artésiens constituent la source d'eau habituelle des communatés de pêcheurs.
La coopérative de commercialisation des pêcheurs de Bayawan (BFMC), composee de 8 samahang nayons (pré-coopératives) compte 212 members inscrits. La gestion générale et les opérations quotidiennes sont effectuées par le directeur sous le contrôle d'un conseil d'administration de 13 membres. Des programmes de formation pré-inscription et des cours de formation sur les techniques de manutention/commercialisation et de gestion ont été organisés pour améliorer les compétences des pêcheurs locaux.
La production annuelle de poisson des pêcheurs déjà membres et des membres potentiels dans la zone du projet est estimée à environ 415 t, la pêche au hamecon fournissant 81 % du total, la pêche aux filets maillants 14 % et d'autres techniques 5 %. Les pirogues à balancier à moteur pêchent 148 jours par an et prennent en moyenne 33, 5 kg par bateau et par jour; les pirogues non motorisées pêchent 186 jours par an et prennent en moyenne 8,9 kg par bateau et par jour. On suppose toutefois (Hotta, 1984) qu'au début, la production annuelle du projet ne sera que de 270 t par an.
Les pêcheurs apportent leur poisson chaque jour au centre de manutention du poisson de Bayawan (BFHC); des stations de collecte doivent être installées dans cinq villages de pêcheurs, et seront équipées de balances, de caisses en plastique et de glace.
Le poisson est trié pesé par espèces et emballé sous glace. Le paiement se fait au comptant, soit 50 % d'acompte sur la valeur estimée et le reste après déduction d'une commission de 5 % du prix de vente brut et d'une redevance supplémentaire variable pour les dépenses de commercialisation. On déduit également 2 % du prix de vente brut pour le fonds des pré-coopératives. Le poisson est pris régulièrement aux stations de collecte et livré au Centre de manutention de Bayawan par le camion isotherme du BFHC.
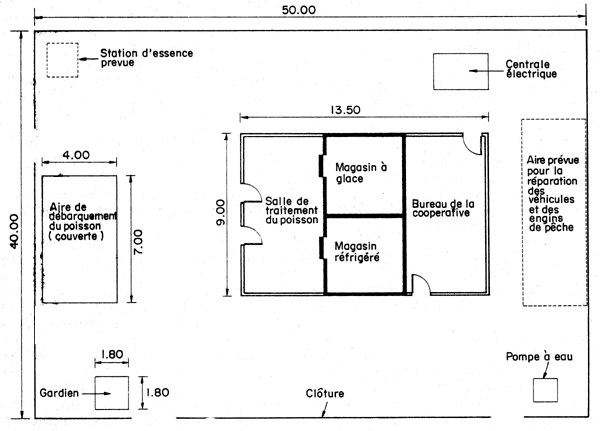
Deux centres de manutention ont été créés, l'un à Bayawan et l'autre à Dumaguete. Le complexe de Bayawan (BFHC), situé à côté du port de pêche principal, est concu pour traiter environ 600 t de poisson frais par an et comprend les éléments suivants:
halle de déchargement du poisson et salle de traitement
Une digue construite le long du fleuve Bayawan facilite le mouillage des bateaux de pêche, le débarquement de la marée, et l'approvisionnement en carburant, en eau douce et en glace. La halle de débarquement couverte (28 m2) est équipée d'une balance (capacité 500 kg) et alimentée en eau et en électricité. La salle de traitement (405 m2) sert au nettoyage, au tri et au conditionnement du poisson sous glace et à d'autres opérations commerciales (criées).
Usines de fabrication de glace, entrepôt à glace et chambre froide
Le BFHAC dispose d'une usine de fabrication de glace en paillettes d'une capacité de 2,5 t, d'un entrrpôt à glace de 6,4, t er d'un magasin réfrigéré de 25 m3 qui peut contenir 6,25 t de poisson en glace en caisses.
Camion isotherme
Un camion isotherme d'une capacitéde 2,8 t sert à transporter le poisson du centre à l'entrepôt frigorifique de Dumaguete et à le livrer aux marchés de gros et au détail de la zone du projet.
Magasin
Le projet exploite également un magasin coopératif fournissant des produits alimentaires de base et du matériel aux pêcheurs, ce qui permet de réduire les emprunts aux intermédiaires et aux prêteurs à gages.
Station de ravitaillement en carburant et en huile
Le Centre de Bayawan dispose d'une station-service qui ravitaille les membres en essence et carburant diesel avec règlement au comptant ou à crédit, les nonmembres uniquement moyennant paiement comptant (Figure 30).

Figure 30 Plan du complexe halieutique de Bayawan
Cette installation, destinée à compléter celle de Bayawan, comprend une usine de fabrication de glace de 2,5 t, un entrepôt à glace de 6,4 t et un entrepôt réfrigéré d'environ 25 m3 (6,25 t de poisson en glace en caisses). Une salle de traitement (40, 5 m2) est prévue pour le tri, la réception et l'emballage du poisson, l'expédition, ainsi que pour d'autres opérations de commercialisation (vente de glace, criées) (Figure 31).

Figure 31 Plan des installations de manutention du poisson de Dumaguete
Les deux centres travaillent en étroite collaboration dans le domaine de la commercialisation. On estime à environ 4,5 t le volume de poisson réfrigéré reçu chaque semaine par le DFCS du Centre de Bayawan (BFCS). Le DFCS fournit également des services de stockage du poisson et de vente de glace en écailles aux commerçants locaux.