A la Barbade, la pêche est pratiquée principalement par des artisans: 1 050 pêcheurs à plein temps, 250 vendeurs et 200 propriétaires de bateaux non actifs.
Les pêches pélagiques fournissent la majeure partie des prises annuelles. Les principales espèces pêchées sont les poissons volants (Hirundichtys sp.) (50–60 %), les coryphènes (Coryphaena hippurus) (25 %), et les voiliers et marlins, thazards barrés, thons et requins (25 %). La pêche de toutes les espèces pélagiques est fortement saisonnière; durant la saison qui va de décembre à juin, ces espèces sont capturées au filet maillant, à la cuiller ou à la ligne. Afin d'améliorer les infrastructures, le Gouvernement de la Barbade a réalisé le complexe de Oistins qui est en service depuis mars 1983. Les fonds ont été fournis par le Fonds européen de développement (FED) et le Centre de développement des Caraïbes (CDF). Le coût total de la construction a été de 2,8 millions de dollars E. -U. Les estimations de mises à terre à la Barbade et a Oistins sont présentées ci-après (Figures 32 et 33).
Les artisans pêcheurs satisfont la demande locale de poisson pendant sept mois de l'année (décembre à juin), mais de juillet à novembre, le poisson vient à manquer; on compense en partie cette pénurie au moyen de poisson des récifs, d'autres espèces démersales et d'importations. La consommation de poisson à la Barbade est estimée à 30,5 kg par personne et par an (variant de 26,5 kg à 34,5 kg selon les années).
En règle générale, l'essentiel des captures est commercialisé sous forme de poisson frais et vendu aux consommateurs des environs des lieux de débarquement ainsi que des zones à haute densité de population. Les consommateurs ont l'habitude d'acheter le poisson frais débarqué l'après-midi qui est vendu au détail sous forme de poisson entier, de steaks ou de filets (poisson volant désossé). La demande de filets de poisson volant prêts à cuire est en augmentation.
L'amélioration des infrastructures de pêche à Oistins a permis d'augmenter les disponibilités de poisson de meilleure qualité de sorte que les marchands de poisson peuvent étendre la distribution le long des côtes. En revanche, l'intérieur du pays n'est pas régulièrement approvisionné en poisson frais. A cet égard, un plan de développement de la commercialisation du poisson est à l'étude afin de contribuer à augmenter les disponibilités locales de poisson.

Figure 32 Captures estimatives annuelles ventilées par espèce à la Barbade (moyenne 1971–81)

Figure 33 Volume estimatif de poisson débarqué à Oistins en 1983
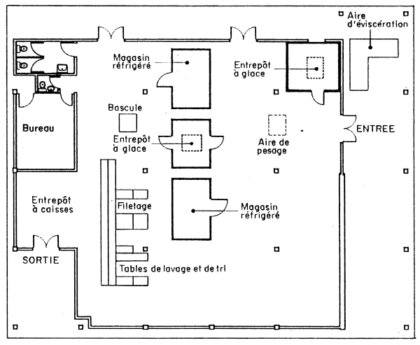
Le centre comprend: (Figure 34)
un môle de 145 m de long et 4 m de large, conçu pour accueillir simultanément 5 bateaux à décharge et 2 autres à ravitailler. Il permet donc de décharger 70 bateaux en 4–5 heures, à raison de 2 bateaux de 12 m LHT et de trois autres moins longs en même temps. Afin de faciliter les opérations de débarquèment, chaque poste d'amarrage dispose de deux débarcadères (1,2 m au-dessus du niveau de la mer) équipés de protections en caoutchouc pour ne pas abîmer les bateaux lors de l'accostage.
Le centre de traitement du poisson (490 m2), où le poisson est réceptionné, pesé et vendu à la criée (133 m2), lavé, trié et fileté si nécessaire (le poisson volant est désossé), mis en caisse et en glace, et l'excédent est entreposé en magasin réfrigéré l'après-midi pour être vendu le lendemain matin. I1 y a deux magasins réfrigérés, chacun d'une capacité de 5 t de poisson sous glace dans des caisses, et deux machines à fabriquer de la glace en paillettes (capacité de 2 t/24 h chacune) installées au-dessus des entrepôts à glace qui peuvent contenir au total 13 t de glace. D'autre part, à l'extérieur du centre, une machine à glace en paillettes d'une capacité de 12 t/24 h, pourvue de deux conteneurs du type wagon frigorifique pour le stockage de la glace pouvant contenir 24 t, ravitaille les bateaux. Le centre a été conçu pour traiter 6,4 t de poisson/jour.
Six étals de vente au détail peuvent recevoir 36 marchands de poisson qui disposent ainsi de tout l'espace requis pour le filetage et le nettoyage du poisson. Les étals sont en béton armé et les plans de travail sont recouverts de carrelage. Le complexe dispose d'autres étals du même type pour la vente des légumes, de deux buvettes/épiceries et d'une cantine pour les pêcheurs.
Un chantier de réparation des bateaux, avec une vaste aire pour la mise à sec et l'entretien des embarcations de pêche, dotée d'une cale de halage de 5 m de large munie d'un cabestan, pouvant recevoir des bateaux de 12 m de long, d'un atelier mécanique, d'une aire d'entretien des bateaux, d'un magasin d'engins de pêche et de fournitures pour bateaux. Toutefois, ce chantier n'est pas encore complètement opérationnel faute d'équipement de halage.
Des services auxiliaires de base, comprenant un système de citernes de stockage du carburant, des prises électriques, une alimentation en eau douce pour les bateaux et des toilettes publiques.

Figure 34 Complexe halieqtique d'Oistins
La vente à la commission est pratiquée au complexe de Oistins: un agent prend la cargaison totale d'un bateau et la vend à la criée, au prix le plus élevé du marché. Actuellement, seuls les marchands de poisson et les mareyeurs licenciés sont autorisés à participer aux transactions avec les agents. En décembre 1984, la licence des marchands de poisson coûtait 0,75 dollars BA/jour1. Les droits de mise à terre versés parles pêcheurs étaient les suivants:
| Espèce | Droit de mise à terre |
|---|---|
| Thazard barré | 0,10/kg |
| Poisson volant | 0,04/kg |
| Autres espèces | 0,06/kg |
Les droits d'entreposage réfrigéré étaient de 10 cents/kg pour 7 jours. La glace était vendue aux pêcheurs au prix de 88 dollars E.-U. la tonne et revendue au détail à 132. Le complexe dispose d'un personnel permanent de 21 employés travaillant toute l'année, et de deux directeurs qualifiés chargés de la gestion, de gardiens, de conducteurs de chariots élévateurs, de frigoristes, et d'agents des services généraux.
Le poisson frais débarqué au centre de Oistins est soit expédié aux marchés de poisson frais du voisinage, soit vendu sur les six étals du complexe. En outre, une grande partie du poisson est traitée (congelé entier ou fileté) dans les usines de traitement voisines. Le poisson est transporté en vrac ou en caisses de plastique dans des camionnettes de 1 à 2 t. Les poissonniers et les petits négociants utilisent généralement des seaux en plastique déjà usagés pour transporter les poissons volants.
un chariot élévateur d'une capacité de 2,5 t et d'une hauteur d'élévation de 2,7 m;
deux transpalettes à main d'une capacité de 2 250 kg;
trois bascules;
quatre conteneurs isothermes en polyéthylène haute densité (750 litres environ);
onze conteneurs isothermes en polyéthylène haute densité (675 litres environ);
seize conteneurs isothermes en polyéthylène haute densité (200 litres environ);
cent caisses à poisson réutilisables en polyéthylène haute densité (d'une capacité de 42 litres);
quatre pelles en aluminium pour la manutention de la glace (Figures 35 et 36)
1 Taux de change: 1 dollar E.-U. =1,98 dollar BA
Prix moyens du poisson frais en mai 1983:
| Espèce | En Gros (dollars E.-U./kg) | Au Détail (dollars E.-U./kg) |
|---|---|---|
| Poisson volant (entier) | 0,57 | 0,75 |
| Coryphène (entier) | 2,08 | 2,84 |
Le marché au poisson de la ville de San Fernando est situé à environ 45 min en voiture au sud de Port of Spain. Il comprend une dalle en béton couverte pour le déchargement du poisson (3 x 12 m), une petite halle de vente en gros à la criée (40 m2 environ), une machine de fabrication de,glace en paillettes (300 kg/24h), un magasin réfrigéré à 0-2°C d'une capacité de 6,8 t et une chambre froide (-3,5° à -5°C) d'une capacité de 2,2 t de poisson.
En 1983, la flottille de pêche artisanale de la région de San Fernando a débarqué 319 t de poisson; cependant, l'excédent de poisson des plages voisines est aussi souvent expédié par camion au marché de San Fernando pour être vendu à la criée.
Le marché de gros/détail de San Fernando, qui traite 1 000 t de poisson par an, est considéré comme le deuxième marché au poisson de Trinidad, par ordre d'importance. Au cours de la saison de pêche, environ 3 t de poisson/jour sont vendues à la criée. Le poisson est présenté par petits lots et 6 crieurs conduisent habituellement la vente. Le poisson est débarqué dans des paniers en osier ou des seaux en plastique, puis est trié et pesé sur une bascule dans la halle. Les intermédiaires achètent le poisson qui est distribué aux marchés au détail voisins, aux marchands ambulants, ou transporté à Port of Spain, emballé dans de la glace dans de vieux congélateurs, des conteneurs isothermes en polyéthylène HD (introduits récemment dans le système de distribution local) ou dans des caisses en polystyrène expansé (montées sur des camionnettes à plateau).
L'aire de vente du poisson au détail est située dans la partie droite du bâtiment. Là, les marchands de poisson utilisent des étals en béton (1,2 × 1 m) recouverts en partie de carreaux blancs, qui sont équipés de prises d'eau, de système d'évacuation et de matériel de travail de base. Le marché peut recevoir environ 24 marchands (Figure 37).

Figure 35 Plan du centre de manutention du poisson à Oistins

Figure 36 Plan des étals de vente au détail du poisson à Oistins

Figure 37 Plan du marché au poisson de gros/détail de San Fernando
On utilise un hangar simple pour le déchargement des crevettes et du poisson pêché par les artisans pêcheurs du village de Otaheite. Environ 27 embarcations de pêche (pirogues utilisant surtout de petits chaluts), équipées de moteurs horsbord (7) ou de moteurs diesel fixés (20) y déchargent leurs prises. La manutention à bord se limite à maintenir le poisson humide et à le protéger des rayons du soleil, sans utiliser de glace.
Les variations des marées influent sur les opérations de mise à terre des petits bateaux de pêche, et à marée basse, la mer se retire de 200 à 300 m. Les principales espèces pêchées sont les crevettes (Penaeus sp.), le thazard atlantique (Scomberomorus maculatus), le thazard barré (Scomberomorus cavalla) et le saumon (Cynoscion sp.); on estime à 1 t/jour le poisson débarqué au cours de la saison de pêche. Le poisson est déchargé dans des paniers en osier et deux chariots à bras sont utilisés pour le porter jusqu'au hangar et aussi pour transporter les moteurs hors-bord.
Le poisson est trié et lavé dans deux cuves d'eau douce en béton (un tuyau souple est raccordé à la prise d'eau), puis il est exposé sur des tables en béton surélevées pour la vente aux grossistes. Des commerçants ambulants et des intermédiaires achètent le poisson au poids et les crevettes en fonction de leur taille. S'il doit être transporté jusqu'à Port of Spain ou des marchés de détail éloignés, le poisson est normalement mis en glace dans des caisses (rapport crevettes:glace 1:1). On utilise couramment pour le poisson et les crevettes réfrigérés, des bacs en polystyrène expansé, de vieux congélateurs-bahuts et des conteneurs en polyéthylène HD, qui sont transportés par des camionnettes à plateau au marché de gros de San Fernando ou au marché au poisson de Port of Spain.
D'autres services sont à la disposition des artisans pêcheurs: un hangar pour la réparation et le stockage des filets et un chantier pour les petites embarcations. Le village est alimenté en permanence en eau douce par le réseau public et en électricité. Une route asphaltée relie le village d'Otaheite aux autres localités de la côte telles que San Fernando, Orange Valley et Port of Spain (Figures 38, 39 et 40).