Las condiciones esenciales y universal mente acordadas para matar animales cuya carne está destinada al consumo humano son:
Simplicidad,
Seguridad del personal,
Consideraciones humanas evitándose todo sufrimiento innecesario,
Conseguir un grado elevado de sangramiento
Condiciones higiénicas en las operaciones de preparación de la carne
Las dos últimas condiciones son sumamente importantes para mantener la calidad de las canales.
Las consideraciones húmanas guardan relación con la manera en que los animales se trasladan al lugar de la matanza; la evitación de visiones, olores y ruidos que puedan aterrar al animal que está esperando (véase corrales), y la utilización de métodos de contención y matanza que causen el menor dolor posible. Primeramente se ha de pensar en los animales y, en segundo lugar, en los sentimientos, que pueden incluso estar descarriados, de los matarifes y del público.
Los métodos no rituales de matanza consisten en cortar la garganta y degollar al animal desangrándolo hasta que muera; sin embargo, cada vez se exige más un acto preliminar que consiste en inmovilizar y aturdir o atronar al animal para que quede inconsciente antes de colgarlo de un carril de desangrar. En la mayor parte de los países, con excepción de la matanza ritual, esto constituye ahora un requisito legal.
Teniendo en cuenta estas consideraciones de humanidad, higiene y eficiencia, es lógico que se proceda a la separación física del atronamiento, el desangrado y la carnización. Esto se aplica incluso en el sistema de las casillas; y naturalmente en el sistema lineal, cuyo elemento esencial es la división industrial de todas las partes del proceso de la matanza.
Para la matanza normal no ritual - es decir, es atronamiento con martillo, pistola, electrocución o gas CO2 -, los animales se deben inmovilizar y no han de ver reses muertas o sangre, y los matarifes deben estar protegidos. Tras estas explicaciones preliminares, a continuación se describen diversos métodos de matanza y sus repercusiones en el diseño:
El método primitivo de las cadenas y las argollas que se utiliza en todos los países en desarrollo para inmovilizar a los animales grandes no satisface las exigencias anteriormente mencionadas. Sin embargo, en pequeños mataderos rurales este método se puede utilizar para poner en la posición adecuada a animales impetuosos o nerviosos para prepararlos para el atronamiento. Se coloca una cadena alrededor del cuello del animal y se pasa por una argolla empotrada en el suelo, obligando de ese modo al animal a avanzar hasta que su cabeza toca la argolla y el matarife le corta el cuello o lo atrona con un instrumento adecuado.
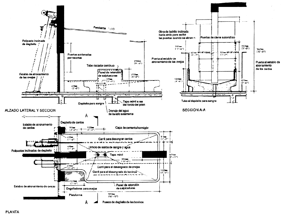
La manera más eficaz de satisfacer las condiciones exigidas consiste en disponer de encerraderos individuales para el atronamiento. El encerradero o establo debe medir 3,5m por 7 m como mínimo y el animal entra por el pasillo a través de un extremo estrecho mientras que el matarife opera desde una plataforma o a través de una apertura situada en el extremo opuesto. Los encerraderos deben tener compuertas o puertas giratorias y ajustarse a un diseño patentado o de concepción local, y estar construidos de acero o de acero y hormigón o de madera y hormigón. Fig. 14. El suelo del encerradero es ligeramente más elevado que el suelo de la nave de carnización, para facilitar la expulsión del animal atronado. Con excepción de los sistemas de anestesia esos encerraderos se pueden utilizar para cualquiera de los métodos de matanza indicados.

FIGURA 14 PUERTA GIRATORIA
Entre los métodos de atronamiento de grandes animales cabe mencionar los martillos machos, las lanzas, las pistolas que disparan balas abiertas (para todos, marranas y grandes cerdos) y los pistoletes de punzón.
Los martillos requieren fuerza y pericia, pero se siguen utilizando cuando son a veces necesarios para los bovinos. En situaciones en que los bovinos son dóciles, es normal utilizar pistoletes de punzón que por medio de un cartucho vacío dispara un afilado punzón de 25 mm a 30 mm de largo al cerebro del animal. Fig. 15a. El atronamiento eléctricos de los bovinos (fig. 15b) se practica también utilizando una lanza como electrodo y el suelo del encerradero como el otro. Recientemente se han perfeccionado sistemas eléctricos de atronamiento para los bovinos que se aceptan incluso en algunas comunidades musulmanas.
![]() | ![]() b) Atronamiento eléctrico con lanza |
| a) Atronamiento con pistola de punzón percutor |
FIGURA 15 ATRONAMIENTO DE BOVINOS
Para el atronamiento y la matanza de cerdos por electrocución (cuando se exportan grandes cantidades de cerdos, se les anestesia con CO2), es ahora normal y se describe más adelante. El atronamiento y la matanza con pistoletes de punzón o pistolas de aire comprimido de los cerdos tal como se describe requiere un encerradero de inmovilización (fig. 16a) con cabida para un solo animal a la vez. De lo contrario, los establos para la matanza sólo tienen cabida para seis a ocho ánimales pequeños a la vez con el fin de evitar la excitación excesiva de los animales cuando se intenta inmovilizar al último o a los dos últimos para matarlos.
Cuando se sacrifican hasta 150 cerdos, la matanza se realiza en establos individuales. Cuando hay que ocuparse de más de 150 cerdos por hora, la matanza se lleva a cabo en un doble encerradero al que se van trasladando cerdos alternativamente. Este establo está dividido por el centro en dos partes por un montacargas común que transporta a los cerdos hasta el carril de desangrar aéreo. Esto tiene la ventaja de que, mientras que en una de las partes se mata y eleva a un animal, en la otra se está metiendo un cerdo. Actualmente se dispone también de una planta para una única especie de rendimiento superior y de un atronador inmovilizador automático. Se facilita así el encadenamiento y degüello por medio de pistas especiales que conducen a los cerdos hasta los encerraderos constituidos por dos transportadores provistos de tablillas inclinados a los lados para formar una V abierta cuando se los mata automáticamente. A los animales pequeños se les aturde y mata eléctricamente mediante la aplicación en la cabeza de tenazas eléctricas (fig. 16) o un cuchillo de doble punta o “auriculares”. Este método es ampliamente utilizado para cerdos, ovejas y terneros con voltajes de 75 a 500 (los voltajes superiores en los Estados Unidos de América). El cuadro 1 muestra los niveles mínimos de corriente recomendados (2) para corriente alternativa sinusoidal de 50 Herz.
Cuadro 1. Atronamiento eléctrico - niveles mínimos de corriente
| Especie | Niveles mínimos de corriente |
| Bovinos | 2,5 amps (de la cabeza al cuerpo sólo con paro cardíaco) |
| Terneros | 1,0 amps |
| Cerdos | 1,25 amps |
| Ovejas y cabras | 1,0 amps |

FIGURA 16a INMOVILIZADOR PARA ATRONAMIENTO ELECTRICO DE MARRANAS Y CERDOS

FIGURA 16b INSTALACIONES DE ATRONAMIENTO Y DE APLICACION DE TENAZAS DE ATRONAMIENTO A ANIMALES PEQUEÑOS
El atronamiento eléctrico exige pericia, para evitar las sacudidas de los matarifes y proceder a un degüello rápido después de retirar las tenazas, con el fin de evitar hemorragias en la carne o condiciones PSE de la misma1. En algunos casos se mata también a los cerdos, y no sólo se los aturde, por medio de sacudidas eléctricas, lo que perjudica el desangrado. No se debe desangrar a ningún animal si parece estar consciente. El desangrado de los animales de los que no se esté seguro de que están atronados de manera irreversible debe iniciarse sin demora y, en cualquier caso, dentro de los límites siguientes:
Métodos de atronamiento - Tiempo máximo para iniciar el desangrado
| Punzón, bala | 60 segundos |
| Electricidad, concusión | 20 segundos |
| Gas de dióxido de carbono | 30 segundos |
La exigencia de que los animales no vean a otros animales que se están matando no se aplica expresamente al atronamiento eléctrico. Los establos de atronamiento para la electrocución deben, por consiguiente, ser lo bastante grandes como para contener a varios animales a la vez.
La anestesia con dióxido de carbono se utiliza principalmente para los cerdos de los que se va a obtener tocino, lo que permite lograr altos rendimientos con respecto a la viabilidad económica, y es aplicable, aunque en menor medida, a las ovejas. En el caso de los bovinos se plantean problemas de aplicación práctica debido a su tamaño. Este sistema tiene la ventaja de que puede aplicarse mejor que el atronamiento eléctrico, que los cerdos están más relajados y que existe un menor peligro de hemorragias en la carne, fracturas de huesos, etc. Sin embargo, el costo del equipo es tan elevado que sólo resulta económico para altos rendimientos.
El dióxido de carbono se obtiene de dependencias que transforman el hielo seco o el dióxido de carbono sólido en gas. Ese gas es inhalado por los cerdos y se disuelve en la sangre, causando la pérdida de conocimiento, pero desaparece cuando los cerdos respiran oxígeno. No se producen efectos nocivos.
Se han utilizado tres dispositivos para anestesiar a los cerdos con dióxido de carbono: (a) el túnel oval; (b) la rueda giratoria; y (c) el gancho de inmersión. Los dos primeros son para rendimientos altos por hora principalmente para cerdos productores de tocino. Un matadero de tamaño mediano, dedicado principalmente a la matanza de cerdos puede utilizar de manera económica el sistema del gancho de inmersión para cumplir algunas condiciones del mercado. En este sistema (fig. 17) los cerdos entran en una cesta que desciende hasta el lugar que contiene el dióxido de carbono y luego vuelve a la posición original cuando se ha descargado a los cerdos. El rendimiento por hora es de cuarenta cerdas u ochenta cerdos.
1 Condiciones PSE (pale, soft, exudative): condiciones de palidez, blandura, exudación.
En los sistemas que utilizan dióxido de carbono se debe prestar atención a la posición relativa de la instalación y de los corrales. El control de la ventilación es particularmente importante ya que cualquier corriente apreciable a bajo nivel puede modificar considerablemente la concentración del gas en las cámaras, con lo que aumentan los gastos corrientes. De ello se deduce que la luz del día que puede llegar a la zona debe proceder de ventanas elevadas o de luces del techo. La instalación debe estar dotada de una fuente de vapor, ya que un chorro de vapor suprime rápidamente el CO2 del pozo para que se pueda limpiar o mantener sin peligro. Debe ser posible inspeccionar la cámara de dióxido de carbono mientras se está utilizando y tener acceso a los animales en los casos de emergencia.
Los métodos rituales de matanza - islámico, jatka y judío - entrañan un solo acto de matanza y desangrado: todos consiguen un alto grado de desangrado y pretenden ser humanos. El método jatka (practicado por los sijs y también por los punjabis, rathads y gurkas de la India y ciertas comunidades tribales de parte de Asia sudoriental) consiste en cortar la cabeza de un golpe de espada. Los métodos islámico (halal) y judío (kosher) consisten en cortar la garganta con un cuchillo, con uno o tres golpes, respectivamente: el animal pierde rápidamente el conocimiento. Cuando no se ha procedido al atronamiento, el animal no se debe mover después de la incisión durante por lo menos dos minutos y en cualquier caso hasta que hayan cesado todos los reflejos impulsados por el cerebro. Muchas comunidades islámicas están dispuestas a adoptar y algunas incluso lo practican ya el atronamiento de los bovinos y de los pequeños rumiantes utilizando métodos eléctricos antes de cortar la garganta y de proceder al desangrado. La promoción del atronamiento sobre una base más amplia está ahora siendo activamente impulsada por la FAO particularmente en países donde sólo por falta de equipo no se están utilizando estos procedimientos más eficaces.
Para la matanza ritual islámica y judía es conveniente que los animales se inmovilicen y de ser posible se coloquen de lado antes de proceder a cortarles la garganta. Un método razonablemente humano en lo que respecta a los bovinos consiste en utilizar un encerradero de expulsión semigiratorio (fig. 18). (Se ha manifestado la opinión de que la dificultad de hacer penetrar al animal en ese encerradero y su rotación para colocar al animal en una postura no natural unido a la extensión del cuello a menudo crea tensión; por otro lado, a falta de un dispositivo mecánico más adecuado este tipo de encerradero crea mucha menos tensión que cuando se atan las patas traseras del bovino y se tumba a los animales sobre el suelo atándolos con cuerdas. El animal penetra en el encerradero y sus patas se agarran juntas con una barra plana horizontal accionada por una palanca que está fuera del encerradero. El encerradero se gira lentamente 90° para proceder al corte ritual. Tras depositar la sangre en un recipiente, el animal es expulsado de lado. El dispositivo permite el atronamiento normal y también la matanza ritual en la posición de pie y el encerradero puede recibir a bovinos con cuernos largos o con cuernos muy abiertos.

FIGURA 17 APARATO DE TIPO GANCHO DE ELEVACION PARA ATRONAMIENTO DE CERDOS CON CO2

Jaula de derribo ritual…posición de carga

Jaula de derribo ritual…posición de expulsión
FIGURA 18 JAULA DE DERRIBO RITUAL Y OPERACIONES

FIGURA 19 ESTABLO DE RETENCION ASPCA PARA ANIMALES PEQUEÑOS (OVEJAS, TERNERAS Y CABRAS)
La Sociedad para la Prevención de la Crueldad con los Animales Estadounidense (ASPCA) ha diseñado encerraderos para pequeños animales (fig. 19) que permiten matar hasta a 300 terneros, ovejas o corderos por hora. Ese dispositivo se parece a una rueda giratoria de tres posiciones de unos 2m de diámetro.
Los animales pasan de una escalera mecánica a una posición horizontal inmóvil en la “casilla de establo” superior del mecanismo, colocados casi patas arriba en la segunda posición, en que se los mata y, finalmente, son expulsados al moverse la rueda hasta el tercer tope. Se pretende que los animales están tranquilos y relajados en la “rueda giratoria”. El método es sólo económico para grandes producciones.
En muchos países, después del atronamiento, se mata a los bovinos introduciendo una fina y larga varilla en la apertura causada por el punzón. La varilla destruye la médula espinal de modo que durante el desangrado o la carnización no se producirá ningún reflejo muscular: el matarife puede actuar así con más rapidez y seguridad. Después de introducir la varilla (sin atronamiento cuando se trata de una matanza ritual) se corta la garganta del animal para desangrarlo.
En todas las situaciones, salvo en las más sencillas, es preciso encadenar una o las dos patas traseras de los animales (ambas en algunos países) y alzarlas hasta un carril de desangrar, antes de cortar la garganta. Este método permite proceder al atronamiento, la expulsión y el desangrado en rápida sucesión y la recogida centralizada adecuada de la sangre.
La sangre se recoge normalmente en una artesa para sangre de un metro de ancho con una inclinación adecuada desde la que pasa a un depósito recolector para el procesamiento con el fin de producir fertilizantes o piensos. La artesa para sangre debe tener una superficie lisa impermeable, por ejemplo, de losas, acero inoxidable u hormigón liso.
La construcción y el diseño de una artesa para desangrar combinada para una producción media de animales grandes y pequeños están ilustrados en la fig. 20. Mediante la inserción de un obturador en una de las dos salidas indicadas es posible descargar agua de limpieza en las tuberías o la sangre en un depósito de recolección o de expulsión. La sangre puede solidificarse y bloquear las tuberías y, a menos que se almacene para su procesamiento industrial posterior, es conveniente recogerla en un recipiente para proceder a su venta o para mezclarla abundantemente con el estiércol recogido y preparar compostes como un fertilizante enriquecido.
Una vez terminado el desangrado y cortada la cabeza, se procede a la primera etapa de preparación sobre la mesa (véase el capítulo 6). El desangrado normalmente dura seis minutos, y la cantidad media de sangre por bovino es de 10 a 12 litros. Para las ovejas, de 0,75 a 1,0 litros (para los carneros menos) y para los cerdos, de 3 litros.
El traslado de los animales grandes y pequeños a lo largo del carril de desangrar aéreo puede realizarse mediante el encadenamiento de las patas traseras del animal que se cuelga de un carrito o corredera que avanza por gravedad a lo largo de un carril ligeramente inclinado o colgándolo de un polipasto móvil (para grandes animales) manejado a mano por el operador que se mantiene de pie. El degüello de pequeños animales en la matanza musulmana se realiza a menudo mientras el animal se encuentra en un polipasto inclinado adecuadamente colocado en relación con la Meca que conduce al carril para desangrar. En el caso de la matanza ritual de bovinos, por supuesto, hacen falta uno o más encerraderos con dispositivos individuales para la recogida de la sangre.
Si el traslado de las canales de los bovinos está mecanizado, se dispondrá de un sistema de carril o de mesas múltiples, como se describe más tarde. La altura de los carriles de desangrar para diversas clases de ganado se indica en el cuadro 2. Es posible también desangrar a animales pequeños en posición horizontal tras proceder al atronamiento en receptáculos de desangrar individuales cuando se trata de una producción pequeña o en plantas de alta capacidad para utilizar un transportador elevado móvil. Los animales han de colocarse en el transportador para evitar un hacinamiento excesivo y lograr que el desangramiento efectivo pase por el canal de desangrado situado a lo largo del propio transportador.

FIGURA 20 DETALLES DE CONSTRUCCION DE UN PILON PARA EL DESANGRADO DE ANIMALES GRANDES Y PEQUEÑOS
En los mataderos de dos pisos, un sistema consiste en colocar los corrales en el piso bajo y atronar a los animales en el mismo piso, y matarlos y desangrarlos en el piso superior. Otra solución con la que se obtiene un rendimiento superior, consiste en sangrar a los bovinos y a los animales pequeños en un transportador inclinado que comunica con el piso superior, aunque esto complica la recogida y la eliminación de la sangre. Es mucho más fácil hacer subir al ganado por un pasillo inclinado hasta el primer piso, para matar y desangrar a los animales en ese piso.

FIGURA 21 SECCION TRANSVERSAL DEL PILON PARA SANGRE
No se debe permitir que la sangre penetre en el sistema de drenaje ya que es sumamente putrescente y difícil de eliminar en el tratamiento de las aguas residuales. Sin embargo, si se necesita con fines de fabricación (para preparar piensos o fertilizantes) es posible, según el volumen de que se disponga, tratar la sangre en el lugar o enviarla en vagones cisterna a una planta central de elaboración. Se utilizan dos tipos de sistemas de recogida: el de vacío y el neumático. Estos pueden emplearse para transferir la sangre a una cisterna o a la propia planta de elaboración del matadero situada en otro lugar o en el mismo lugar. La fig. 22 ilustra un sistema de recogida de la sangre de una pileta sin necesidad de disponer de una cisterna subterránea. Es ideal para instalarlo en un matadero existente sin que sea preciso romper los suelos de hormigón para instalar drenajes, etc.
Tras extraer por bombeo la sangre de una o más piletas, la operación inversa del bombeo en vacío somete a presión a la cisterna de recogida de la sangre vaciando ésta en un vehículo para el transporte por carretera destinado a su eliminación. La fig. 23 ilustra un sistema neumático para un matadero que lleva a cabo su propia elaboración. Un tanque de aspiración de la sangre situado debajo del suelo puede complementarse con una cisterna de almacenamiento en la sala de elaboración de la sangre.

FIGURA 22 DIAGRAMA DEL SISTEMA DE RECOGIDA DE LA SANGRE POR VACIO
La operación se efectúa como sigue: una válvula que funciona neumáticamente en la cisterna de absorción de la sangre entra en funcionamiento cuando la cisterna está llena y la cierra y envía aire comprimido al recipiente obligando a la sangre a pasar a la tubería de comunicación con el tanque de almacenamiento. Cuando el recipiente está vacío la válvula de suministro de aire se cierra y la válvula interior se abre para dejar que la sangre vuelva a pasar al recipiente. Para hacer funcionar el sistema normalmente se requieren tuberías neumáticas de 5,62 a 7,03 barios.
El vapor, si se puede obtener del sistema generador, se puede asimismo utilizar en grandes plantas que funcionan sobre el mismo principio del aire comprimido.
Si la sangre se recoge para fines comestibles, se debe recuperar de una manera que elimine la contaminación. El sistema utilizado se describe en el capítulo 10.

FIGURA 23 SISTEMA DE RECOGIDA E IMPULSION DE LA SANGRE PARA SU ALMACENAMIENTO Y TRATAMIENTO POSTERIOR