La preparación de la carne es el proceso de convertir las canales en productos comerciables, comestibles y no comestibles. Las operaciones siguen normalmente el orden siguiente: después del sangrado, se procede al desuello y a cortar la cabeza y las patas, para desollar los costados y la cola, a extraer las tripas y los intestinos, a extraer los órganos, a retirar completamente el cuero, a dividir los lados, y a la limpieza, el pesaje y a veces el amortajamiento.
La carnización puede llevarse a cabo mientras las canales están en mesas situadas sobre el suelo, o suspendidas de un carril, sistemas a los que se denomina de puesto y lineal, respectivamente. Obviamente, la carnización sobre el suelo es más higiénica, mientras que la primera etapa de la carnización en mesa es más aceptable. Cuantas más operaciones se realicen mientras la canal está colgada, más limpio el proceso; y cuanto más se utilicen los carriles, mayores posibilidades existirán de mecanización y de aceleración. La tendencia histórica general ha consistido, por lo tanto, en organizar la preparación de la carne cada vez más en los carriles; y en los sistemas más recientes, en los países industrializados, todas las operaciones se realizan en el carril, desde el desangrado hasta el pesaje y la refrigeración.
En el sistema de puestos un equipo compuesto de uno o dos hombres se ocupa de todo el proceso de preparación de una única canal, y las operaciones se realizan en un solo lugar. En el sistema lineal la canal se traslada principalmente en el carril, en una dirección o línea, y las operaciones de preparación se realizan en etapas sucesivas.
Existen numerosas variantes de los sistemas de puesto y lineal y, huelga decir, que ambos sistemas se funden. Las principales variantes son las siguientes:
La matanza, el desangrado y la preparación de las canales de los animales se efectúan en una mesa en la misma zona o puesto: el ritmo de la operación es aproximadamente de un bovino y cuarto por hombre y hora.
Se procede a la matanza y desangrado de los animales en un departamento central (carril aéreo y pila para la sangre), la canal pasa a continuación a puestos separados para la preparación; rendimiento aproximado: un bovino y cuarto por hombre y hora.
La matanza y el desangrado se llevan a cabo como en b), pero la canal se arría hasta una mesa fija o móvil para proceder al primer desuello, luego se alza a un carril para las operaciones posteriores sucesivas: la producción aproximada es de un bovino y medio por hombre y por hora, ocupándose un mínimo de tres a cinco hombres de cuatro a ocho bovinos por hora, y un máximo de quince hombres de doce a quince animales. Con la mecanización de los procedimientos de inspección, el ritmo puede elevarse hasta 24 bovinos por hora.
La matanza y el desangrado como en (b), pero todas las operaciones de preparación de las canales se realizan sucesivamente en el carril, moviendo la canal y mecanizando las operaciones de preparación de la carne en diversa medida: la producción es de uno y tres cuartos a tres bovinos por hombre y hora, con un mínimo de seis hombres y diez bovinos o de 15 hombres y 24 bovinos, para las cadenas no mecanizadas y semimecanizadas, respectivamente. En una cadena plenamente mecanizada se puede conseguir tratar hasta 250 bovinos por hora. Un matadero nuevo debe, si el ritmo de matanza supera los diez bovinos por hora, incorporar un sistema vertical o lineal, pero unidades menores pueden estar equipadas para la “carnización en mesa”; los locales existentes que no pueden convertirse en un sistema vertical deben utilizar mesas estáticas o móviles para que ninguna parte de la canal pueda tocar el suelo.
El sistema de puestos en su forma más primitiva, como en muchos países en desarrollo, significa que la matanza y la preparación de canales se efectúa en el suelo con una argolla a la que se encadenan los animales para la matanza, un agujero para la sangre y una zanja para el contenido del estómago. El suelo, a menos que se lave repetidas veces, está cubierto de sangre excrementos y subproductos, lo que produce una gran contaminación así como la contaminación de las aguas subterráneas por los materiales de desecho descartados. Estos procedimientos son, por supuesto, totalmente inaceptables.
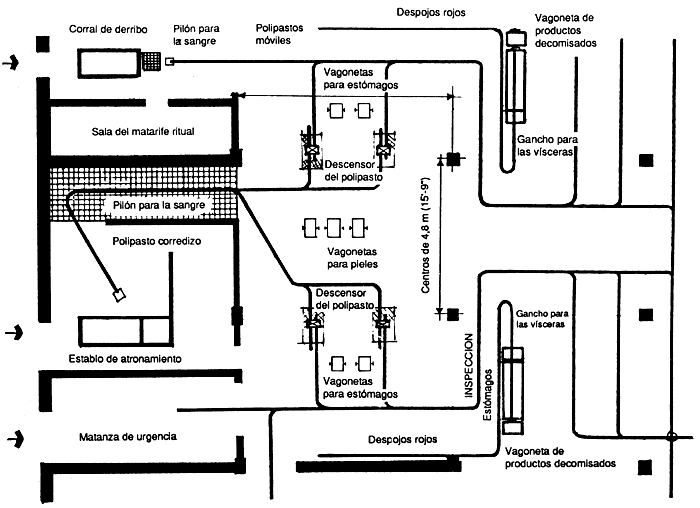
La fig. 24 ilustra una nave de carnización de múltiples puestos. En este caso es conveniente, por razones de economía e higiene, centralizar la matanza y el desangrado. El carril de desangrar puede ser extendido para que pueda transportar y arriar las canales a varios puestos. Cada puesto exige una superficie mínima de 2,44 por 2,44 metros cuadrados en pendiente hacia un drenaje. Una mesa fija para la primera operación de desuello, y mucha agua. Para atender a los cuatro puestos, un único polipasto corredizo puede ser suficiente tanto para alzar como para arriar las canales. Obviamente, el sistema se puede perfeccionar más mediante la adición de más puestos, la centralización del desangrado y la utilización compartida de instrumentos, verbigracia, el empleo de sierras eléctricas para cortar al terminar el proceso de preparación de la carne.
Es posible asimismo mecanizar el traslado de la canal desde la zona de inspección hasta la de colgar. Estas medidas, sin embargo, podrían causar problemas derivados de un gran aumento del tráfico de las carretillas de retirada de subproductos dificultando el mantenimiento de unas normas de higiene adecuadas.
Esto podría resultar posible, sólo en cierta medida, con un edificio de dos pisos en el que la matanza se realice en el piso superior y los subproductos se dejen caer al piso inferior.

FIGURA 24 ESQUEMA DE PLANTA DE PREPARACION DE SECCIONES MULTIPLES
Las características esenciales del sistema semilineal es que la canal avanza en una dirección y puede encontrarse sucesivamente en el carril de desangrar, la mesa y el carril de carnización; y luego en el carril de salida.
Por otra parte, el avance de la canal y la carnización se pueden mecanizar en diversas medidas. Una disposición muy sencilla, para un equipo de tres o cuatro hombres que preparan las canales de cuatro a seis bovinos por hora, se ilustra en el fig. 25. Un polipasto móvil se extiende por la zona de desangrar y arría las canales hasta la mesa de carnización, regresando luego al punto de partida para recoger la próxima canal.
El orden normal de las operaciones es el siguiente:
| En la mesa de carnización: | Desuello y corte de la cabeza y las patas |
| A mitad del polipasto: | Desuello de los costados |
| Continuación del desuello | |
| Extirpación de las tripas y los intestinos | |
| Extirpación de los órganos | |
| Desuello | |
| Descuartización | |
| Limpieza | |
| Amortajamiento (de ser necesario) |

FIGURA 25 SISTEMA LINEAL SENCILLO
En este dispositivo el factor de limitación es el tiempo empleado para el regreso del polipasto, la recogida y el desangrado de una canal. Por ese motivo, no resulta ventajoso prever más de la distancia mínima entre el punto de arriado y el polipasto de carnización, y la extensión mínima del carril de carnización: no es posible ocuparse de más de una canal a la vez.
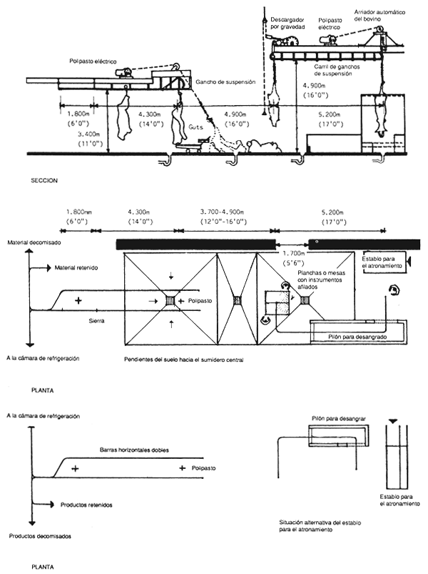
Esta limitación puede superarse disponiendo de polipastos separados para la recogida y el arriado (fig. 26). La distancia entre el arriador y el polipasto y la extensión del carril de carnización pasan a ser importantes.
La primera debe bastar para que cuando una canal se encuentre a mitad del polipasto la siguiente sea arriada, es decir, un mínimo de 4,9 m según el número de trabajadores y de mesas. No tiene sentido superar esas extensiones, ya que el factor de limitación pasa rápidamente a ser el tiempo que lleva la primera etapa de la preparación de la carne en la mesa, que en cualquier caso limita la producción a entre doce y quince bovinos por hora.
Esta limitación a su vez puede superarse mediante el empleo de mesas móviles. La fig. 27 muestra dos mesas en el arriador que posibilitan que la primera etapa de preparación de las dos canales se lleve a cabo simultáneamente.
Los factores de limitación son, en este caso, la extensión del carril de carnización y el número de hombres. Con varias mesas, es posible conseguir una producción de 20 a 24 bovinos por hora. Cuando se utilizan dos mesas una al lado de la otra, entre los centros de las mesas debe haber una distancia no inferior a los 3m. La mesa debe construirse con materiales resistentes a la corrosión. Es preferible el acero inoxidable, pero si se utiliza acero suave se debe galvanizar en caliente por inmersión después de la fabricación. Las ruedas deben ser impermeables a la grasa, la sangre y el agua, pero se deben evitar las ruedas con llantas de metal para evitar causar daños al acabado del suelo (fig. 28).
En los mataderos más viejos a menudo existen sistemas de preparación de las canales en mesa con dos carriles en los que, después de las operaciones en la mesa, la canal se alza y cuelga de dos carriles paralelos separados por una distancia aproximada de 1,07m para abrir la canal con el fin de extraer las vísceras y de descuartizarla (figs. 29 y 30b).
Es común utilizar mesas con un único carril. En este caso, las canales transportadas en carritos son colgadas de un gancho con pendolón (fig. 30a) y luego alzadas para ser transportadas al carril de carnización. Mientras que el sistema de doble línea concentra principalmente la operación de preparación de la carne en el área del polipasto de carnización, la línea única permite una mayor flexibilidad en la colocación de los puestos de trabajo. Estos puestos deben espaciarse por lo menos a 1,5m, pero la separación preferida es de 1,8 m.

FIGURA 26 SISTEMA SEMILINEAL DE CARNIZACION DE BOVINOS

FIGURA 27 SISTEMA DE LA MESA DE CARNIZACION

FIGURA 28 VARIAS MESAS EN LOS SISTEMAS DE CARNIZACION DE BOVINOS

Orden de las operaciones de tratamiento: léase de derecha a izquierda
FIGURA 29 SISTEMA DE MESA MOVIL PARA PREPARAR LA CANAL

a) Transferencia de la canal del camal o pendolón hasta un único carril de carnización

b) Transferencia de la canal del camal o pendolón a un carril de carnización doble
FIGURA 30 CAMALES O PENDOLONES DE CARRIL UNICO Y DOBLE CARRIL
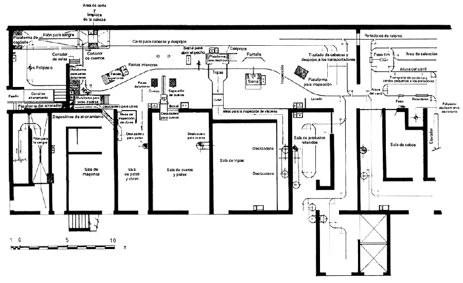
Dicho sea de pasada, este sistema de mesas constituye una etapa de transición entre los viejos puestos y los sistemas horizontales semilineales y los sistemas verticales de carril; y da además la posibilidad de que se realicen las operaciones de carnización de la primera etapa individualmente. Les gusta a los carniceros que siguen conservando y utilizando su pericia individual para la operación de desuello; el factor limitativo es el grado en que se puede llevar a cabo con buen resultado la inspección de la carne, en particular la de los estómagos y asaduras. A partir de esta etapa el logro de un mayor rendimiento depende de que aumente el número de cadenas o la mecanización total o parcial de éstas. La mecanización puede variar de grado y estar relacionada con el avance de las canales y los despojos y con la manera de realizar las operaciones, por ejemplo, la extracción de las pieles y cueros, el corte de las patas, el descuartizamiento, etc. La fig. 31 muestra una disposición que utiliza mesas en que la producción es tan alta (hasta 70 bovinos por hora) que es necesario proceder a la mecanización de las instalaciones destinadas a la inspección (despojos rojos y estómagos) mediante la introducción de transportadores para realizar estas actividades subsidiarias y se requiere un edificio de dos pisos para proceder a la separación de los subproductos.
En todos los sistemas mencionados existe una discontinuidad entre los carriles de desangrar y de carnización. El arriado se elimina en casi todos los sistemas actualmente; todas las operaciones se realizan sucesivamente, mientras la canal está suspendida, razón por las que los sistemas se denominan “en el carril o cadena”.
Los sistemas de cadena total o “en el carril” entrañan la utilización de una combinación de diversos instrumentos manuales que funcionan con motor o neumáticamente y otra maquinaria y equipo conexo que, cuando están adecuadamente coordinados con un sistema de carril aéreo para la canal permite la carnización completa de la res desde la zona de descarga seca hasta las cámaras frigoríficas o las naves donde quedan colgadas las canales. En los sistemas de carril existen diversos tipos de preparación de la canal. Muchos factores intervienen en la determinación de cuál es el sistema de carril más adecuado para las circunstancias, pero las operaciones efectivas de preparación de la canal se realizan de la misma manera en todos los sistemas. Es el medio mecánico de transporte de la canal a lo largo de estas diversas operaciones el que varía con cada sistema debido a la capacidad y la disponibilidad de espacio. En la fig. 32 se describen los dos sistemas más importantes con sus planos respectivos y sus características típicas.

Plano de nave de camización para bovinos, debajo ilustración de su disposición

FIGURA 31 EVISCERACION DE BOVINOS Y MESA MOVIL DE INSPECCION PARA SISTEMAS DE PREPARACION DE CANALES DE MESAS MULTIPLES


FIGURA 32 SISTEMAS DE CARRIL AEREO PARA EL TRASLADO DE GRANDES ANIMALES CON CARACTERISTICAS TIPICAS DE MANIPULACION DE LA CANAL
Se trata de un sistema en que la canal, mientras está suspendida de un camal y de un carrito de rueda única, desciende por gravedad a los puestos donde se realizan las operaciones, deteniéndose en su posición por medio de topes del carril. Este sistema puede utilizarse para ritmos de matanza de 10 a 40 bovinos por hora. La evisceración se realiza en un carrito para tripas (fig. 35) o directamente en una mesa de inspección estática (fig. 36). Este es el sistema más compacto y económico de todos los “sistemas en el carril”. Sin embargo, se necesita una altura de techo suficiente debido al dispositivo del carril necesario para descender por gravedad a las canales a lo largo de la cadena de preparación de la carne.
En este sistema, las canales suspendidas del camal y del carrito en centros predeterminados, avanzan hasta los puestos de trabajo por medio de una propulsión mecánica intermitente.
La sección de propulsión está controlada por un dispositivo de regulación del tiempo variable que se fija previamente para determinar el ritmo de la matanza. Se puede establecer de ese modo un ritmo que permita una realización fluida de las operaciones. El desollado se puede realizar sin utilizar un extractor de pieles. La evisceración se puede llevar a cabo en una mesa móvil alta de inspección de las vísceras.
(Fig. 38). Este sistema de semipropulsión mecánica resulta sólo económico y es únicamente adecuado para un matadero de mediano tamaño mejorado en el que resulte posible la utilización múltiple de la cadena (véase el capítulo 10) para conseguir un ritmo máximo de matanzas (de 10 a 75 bovinos por hora). Al ser propulsado el carril puede estar continuamente al mismo nivel y requiere una menor altura de techo que el sistema de gravedad.
En cada uno de estos dos trazados existen dos variantes: los sistemas de cadena de anillo y único que se describen a continuación.
El sistema de anilla de preparación vertical de las canales de bovino es particularmente adecuado para los nuevos mataderos de producción intermedia o para locales existentes cuando el espacio es limitado.
Después del desuello y corte de las patas traseras a lo largo del carril de desangrar la canal se transfiere a caballetes que están permanentemente suspendidos de un carril de anilla independiente. Los camales de que se cuelgan las patas giran 360 grados para que pueda trabajarse en torno a toda la canal desde una posición fija y la retirada de la piel, la evisceración y el descuartizamiento se pueden realizar desde cualquier lado del carril de una manera sumamente conveniente e higiénica. Al terminar la preparación, la canal se transfiere al sistema general de carriles de la nave de carnización, mientras que el caballete de suspensión regresa al punto inicial de la transferencia.

FIGURA 33 NAVE DE CARNIZACION DE BOVINOS DE UNA SOLA PLANTA CON SISTEMA DE PREPARACION DE LA CARNE DE UN CARRIL QUE FUNCIONA POR GRAVEDAD

FIGURA 34 PLANTA SUPERIOR DE UNA NAVE DE CARNIZACION DE BOVINOS CON SISTEMA DE CARRIL DE GRAVEDAD PARA MATADERO DE DOBLE PLANTA

FIGURA 35 PLATAFORMA DE TRABAJO BAJA PARA LA EXTRACCION DE TRIPAS

FIGURA 36 DETALLES DE LA PLATAFORMA FIJA PARA LA EXTRACCION DE TRIPAS

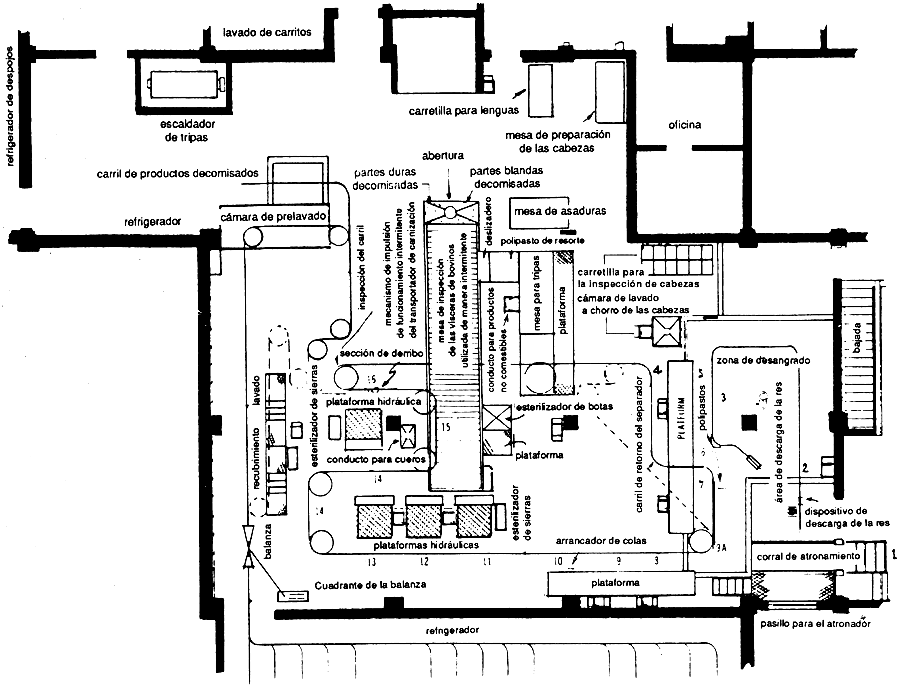
1. Pasillo al corral de atronamiento
2. Matanza y desangrado
3. Desuello y corte de las patas delanteras
4. Corte de la cabeza y lavado
5. Desuello y corte de la primera pata trasera,
extirpación de la cola
6. Traslado de la pata desollada al polipasto,
retirada de la argolla, desuello y corte
de la segunda pata trasera
7. Traslado al separador, extirpación de las
ubres o la verga, marcado de la cadera
8. Apertura de la cadera, inserción
de la cinta y extirpación del ano
9. Vuelta y flanqueo de ambos lados
9A. Desuello y corte de las patas
delanteras
10. Desuello de los cuartos traseros,
extirpación de la cola
11. Aserramiento del pecho, alzamiento y
amarrado de la tráquea, ensanchamiento
del agujero del lado derecho
12. Ensanchamiento del agujero,
puesta de lado y de espaldas
13. Desuello de los lados, la espalda y desgastado
14. Apertura de las patas, limpieza del cuello
y retirada del cuero
15. Destripamiento y marcado de lomo y costados
16. Aserramiento y traslado
FIGURA 37 PLANTA SUPERIOR DE UNA NAVE DE CARNIZACION DE BOVINOS PARA SISTEMAS INTERMITENTES (HASTA 75 RESES POR HORA) EN UN MATADERO DE DOBLE PLANTA

FIGURA 38 MESA DE SUPERFICIE MOVIL PARA INSPECCION DE LA EVISCERACION DE BOVINOS
El sistema de cadena única de preparación vertical de las canales de bovino utiliza una única cadena de preparación de la carne, conectada con el sistema general de carriles, en el que se coloca la canal después de proceder al desuello y al corte de las patas traseras. No es posible girar la canal porque cada pata trasera está enganchada a una rueda del carril. En consecuencia, son esenciales la orientación de la canal y los asientos colocados en la plataforma. Sin embargo, cabe instalar en el carril una plataforma giratoria para que sea posible girar la canal 180 grados con el fin de extraer las tripas.
La espalda de la canal debe estar situada frente a la sala de subproductos para la retirada higiénica de la piel y la posible instalación de una máquina de desuello. Esto resulta posible con una disposición adecuada o por medio de una plataforma giratoria del carril de preparación de la carne.
Los puestos de trabajo a lo largo de la cadena deben estar a una distancia no inferior a 1,5 m, aunque es preferible una distancia media de 1,8m (esencial con un transportador).
La ventaja evidente del sistema de cadena frente al de puestos es la higiene y la posibilidad de una inspección más centralizada. Esta ventaja se puede aprovechar al máximo disponiendo que todas las partes de la canal se desplacen paralelamente y sean identificadas, inspeccionadas y selladas juntas, lo que constituye el principio de la inspección no separada tal como se requiere para garantizar una higiene adecuada de los alimentos.
Por estos motivos, el sistema de cadena, en sus diversas formas, ha ganado terreno en todo el mundo. No obstante, es inevitable que en los países en los que predomina el sistema de puestos algunos matarifes y carniceros se opongan al sistema de cadena, a menos que se modifique.
Aunque existen situaciones - por ejemplo en zonas rurales con una población escasa y malas comunicaciones o en comunidades donde las diferencias sociorreligiosas imposibilitan una producción constante - en las que únicamente es factible un sistema de tipo puesto fijo.
El sistema de cadena exige un equipo y una producción mínimos. Para la cadena más sencilla de bovinos se requieren de tres a cuatro hombres. Con más hombres, el trabajo en la cadena se hace gradualmente más fácil y más económico.
El sistema de cadena, con excepción de las instalaciones más pequeñas, es el más productivo. Esto viene indicado por la cifra citada más arriba y está puesto de manifiesto por el hecho de que la capacidad de las cadenas instaladas para las producciones mínimas señaladas puede aumentarse en el 50 por ciento más, simplemente incrementando el número de hombres o las horas extraordinarias.
El sistema de cadena tiene otras ventajas importantes, que se señalan a continuación:
Exige una superficie de suelo mucho menor; en consecuencia, los gastos de mantenimiento y limpieza del edificio son inferiores. En los edificios de dos pisos evita la necesidad de prever una multiplicidad de conductos de descarga caros y de áreas de recepción adecuadas.
Posibilita un uso más económico de un número relativamente menor de dispositivos auxiliares mecánicos como los polipastos y las sierras eléctricas, etc. Es posible aumentar la producción por hombre (véase el cuadro 6).
Es más limpio en muchos sentidos:
Las operaciones de preparación de las canales pasan de la zona sucia a la zona limpia.
Las operaciones en el suelo se eliminan parcialmente y, con los sistemas actuales, totalmente.
Los despojos y otros subproductos se pueden retirar en ángulos rectos con la cadena o a través de conductos que comunican con el piso inferior (evitando un tráfico cruzado) o regresando luego a través de las áreas de desangrar o “sucias”.
Necesita relativamente menos trabajadores calificados; se pueden emplear trabajadores no calificados a los que se promoverá posteriormente para que asuman actividades que requieren una mayor capacitación.
Facilita la inspección adecuada de la carne.
Los criterios de planificación que se indican a continuación, relativos a las diferentes operaciones de preparación de la carne en la nave de carnización de bovinos, el diseño y las relaciones con las salas de servicio se aplican en general a todos los sistemas de mesa y cadena. (Véanse también los planos de los diferentes pisos).
La zona situada frente a los corrales de separación o de atronamiento de los que se extrae la canal se designa como zona de descarga seca y debe estar proyectada para garantizar las condiciones de trabajo más seguras posible para los matarifes cuando realizan las operaciones de matar al animal, colgarle de las patas traseras y elevarle.
Se recomienda una distancia no inferior a 0,90 m entre los extremos delantero y trasero del corral y cualquier pared u obstrucción. Debe existir un espacio libre mínimo de 3 m entre la puerta de salida del corral y las paredes de enfrente o el depósito para la sangre. El espacio mínimo deseable para trabajar con seguridad es de 4,50m de largo por 3m de ancho, independientemente de la producción, y debe ser suficiente para ritmos de matanza de hasta 40 bovinos por hora a condición de que se instale un polipasto de desangrar de alta velocidad, lo suficientemente rápido como para seguir este ritmo.
La percha del polipasto debe teóricamente encontrarse a 1,80 m de la puerta giratoria de salida del corral y estar orientada hacia las patas traseras de los animales arrojados, con el fin de evitar que se dañe la cadena del polipasto de izar y arriar o el cable de alambre de la puerta giratoria.
El suelo del área de arriado seca está sometido al impacto de las cargas de las canales y las argollas, por lo que el acabado del suelo no sólo debe soportar este impacto, sino también ser resistente al ácido y a la sangre y poseer buenas cualidades antideslizantes. El suelo debe mantenerse lo más seco y limpio posible para evitar un aumento de la contaminación de las pieles. Debe tener pendientes de 50 mm en 3 m de preferencia en dirección hacia una superficie más hundida adyacente al depósito para la sangre.
Las operaciones de corte de la cabeza y de las patas delanteras deben realizarse mientras la canal está suspendida del carril de desangrar. Las cabezas deben estar completamente desolladas y lavarse inmediatamente después de ser cortadas y antes de trasladarlas al punto de inspección. La cabeza debe estar colgada de un gancho fijo para inmergirla en un recipiente para el lavado, mas con el fin de evitar una manipulación indebida es preferible utilizar un carril de nivel bajo que esté directamente en conexión con el puesto de inspección.
La dispersión de agua a gran presión con una pistola manual constituye el mejor medio de limpiar la cabeza. Con el fin de evitar que se produzcan excesivas salpicaduras de agua y desperdicios, la zona del lavado debe estar protegida. El agua de la zona de lavado y el exceso de sangre deben llevarse a un desagüe a partir de las áreas de corte de la cabeza y lavado. Una disposición adecuada consiste en disponer de un depósito para el drenaje separado o de una rejilla abierta instalada en el suelo encima del desagüe.
Llegados a esta etapa es preciso cortar y extraer las patas delanteras, si la disposición permite su despacho inmediato desde el piso donde se procede a la matanza. Si ello no es posible, pueden colocarse en receptáculos para facilitar su retirada de la nave de carnización. La longitud de los canales dobles de preparación de la carne, cuando se utilizan, debe permitir que se cuelguen por lo menos tres canales con una distancia de 1,5m entre cada dos de ellas con el fin de disponer de un espacio para trabajar suficiente para proceder al desuello y descuartizamiento. La distancia mínima entre el centro de una mesa y la pared de enfrente es de 1,80 m.
Como la mayor parte del trabajo de extracción de las tripas y las pieles y cueros se concentra en el área del polipasto de preparación de canales, la entrada a las salas de tripas y pieles debe ser adyacente a este punto. Ello permitirá la eliminación directa de los subproductos de la hilera de las canales. El carril o la carreta de despojos comestibles debe estar situado en el lado más alejado de las salas de subproductos.
Los estómagos y los intestinos no pueden pasar directamente a la sala de tripas después de ser extraídos porque deben permanecer en la nave de carnización con el fin de que estén en relación con la canal, la cabeza y los despojos hasta que se complete la inspección de esa canal y esos despojos. Un área próxima a la sala de tripas debe reservarse para los estómagos y los intestinos en espera de la inspección. Se pueden conservar en carritos para tripas o ser izados por un resorte mecánico hasta una mesa de suficiente longitud como para que cada conjunto de estómago o intestinos disponga de por lo menos 0,90 m.
Para la preparación de las patas traseras y el corte de las patas, se desuella la pata trasera no encadenada y se corta la pezuña, mientras la canal está colgada de la extensión del carril de desangrar. La percha de un mecanismo de poleas se fija frente al tendón de Aquiles y la canal se alza para que la otra pata pueda quedar libre de la argolla y ser preparada. La canal se transfiere al carril de preparación de la carne tras la terminación del trabajo.
Se necesitan plataformas, aproximadamente de 2 m de alto, para que los matarifes preparen las patas traseras, corten los pies y desuellen. Las plataformas deben estar construidas con materiales resistentes a la corrosión y ajustarse a un suelo no deslizante de material impermeable. Para evitar el peligro de una contaminación cruzada entre las canales, éstas deben estar colgadas con una separación de 1,80 m. Se deben utilizar carritos para transportar los subproductos, pero no se debe permitir que estos se acumulen en el piso dedicado a la matanza ni que entren en contacto con las canales. Deben limpiarse a fondo cada vez que se usan, antes de regresar al piso dedicado a la matanza.
En la cadena de preparación de la carne de bovino la canal debe colocarse con su espalda hacia la entrada de la sala de pielés, con el fin de que al retirar la piel pueda salir de la nave de carnización evitando la posibilidad del contacto con sus propias canales o con las de otros.
Antes de su extracción, la espalda y los flancos de la canal deben estar desollados. Esta suele ser una operación en dos partes con puestos de trabajo (plataformas escalonadas espaciadas a 1,80 m), uno a cada lado del carril de preparación de las canales en el caso de un sistema de un único carril.
Los mataderos de producción media pueden instalar un desollador (fig. 39). El desollador está equipado con un dispositivo que cuando se engancha a la piel de las patas delanteras o traseras, tira de la piel verticalmente hacia arriba o hacia abajo y las separa de la canal. Extrae la piel completamente y requiere un carril de una extensión de 4,30m y un espacio por encima libre de 6,10 m si la piel se extrae verticalmente. No se necesita ninguna plataforma en la parte delantera de la canal, pero las máquinas se suelen suministrar con plataformas a cada lado desde las que los asistentes pueden ayudar a retirar la piel (fig. 40). Las cadenas se deben limpiar entre dos usos con respecto a cada canal.

FIGURA 39 DESOLLADOR MECANICO

FIGURA 40 MATARIFE PROCEDIENDO AL DESUELLO Y CADENAS PARA INMOVILIZAR LAS PATAS DELANTERAS EN EL DISPOSITIVO PARA DESOLLAR
La evisceración es una operación en dos partes. El estómago y los intestinos se colocan encima de la mesa o carril de inspección mientras que el hígado, el bazo, el corazón, los pulmones, la traquea, el esófago y la parte gruesa del diafragma se cuelgan de un carril o de un transportador. Pueden también ser colocados en un compartimento separado sobre una mesa o transportador de inspección.
El aserrado del pecho se lleva mejor a cabo con una sierra mecánica especialmente diseñada. Aunque una plataforma no es esencial para la preparación de la carne en mesa, frecuentemente se utilizan para la preparación de las canales “en el carril”.
Debe haber un área concreta para la inspección de la carne en la nave de carnización, con el fin de que un conjunto de vísceras correspondan a su canal hasta después de la inspección. Las canales se pueden descuartizar para la inspección. De ello se deduce que la longitud de la mesa para tripas y del carril para despojos deben tener en cuenta el número de canales que se pueden suspender entre la posición de evisceración y el punto de inspección de la canal después del descuartizamiento y que se debe prever 0,90m por cada conjunto de estómagos e intestinos.
En una disposición eficiente, la sierra de descuartizar se situará a lo largo del punto de evisceración para no dejar la posibilidad de una acumulación de canales. El descuartizamiento se puede realizar desde una plataforma de dos niveles, aunque una plataforma impulsada por motor es un auxiliar mecánico útil para aserrar las canales con eficiencia. La construcción no debe tener rebordes, tuberías sueltas o cables sucios. Debe poder limpiarse fácilmente y estar galvanizada. Los matarifes que trabajan en el puesto de evisceración necesitarán una plataforma de 1m de alto. En el puesto de evisceración el matarife se mantiene de pie en una plataforma. La canal puede estar colocada de frente o de espaldas a la sala de tripas según que se utilice o no una plataforma giratoria del carril. Si está de cara a la sala de tripas, el estómago y los intestinos deben deslizarse bajo la canal, en cuyo caso se necesita un deslizador mecánico para llevar esta parte de las vísceras a la inspección y a la altura a que se trabaja (figs. 41 y 42).
El área de la inspección de la carne debe estar diseñada de manera que la canal, las vísceras y la cabeza se correspondan. El movimiento de los inspectores entre la mesa de tripas, la canal y la cabeza y el carril de despojos no debe tropezar con obstáculos, si se desea mantener el ritmo máximo de matanza.
La disposición de la zona y los sistemas de carriles deben permitir la separación inmediata de las canales y los despojos suspendidos a la sala de la carne retenida y retirar los materiales decomisados directamente al cuarto destinado a la carne decomisada.
Toda la zona de inspección debe disponer de luz artificial de una intensidad de 500 lux medida a nivel del ojo. Si la inspección se efectúa en diferentes lugares, cada uno de ellos debe estar iluminado con esa intensidad. La luz artificial utilizada no debe distorsionar el color de las canales.
La mejor manera de lavar las canales consiste en utilizar un rociador manual. Por consiguiente, la zona de lavado debe estar emplazada de manera que se evite un exceso de salpicaduras sobre otras canales o despojos. Una placa de protección galvanizada que se extienda desde el suelo hasta 0,6m por encima de la parte superior del carril y que tenga aproximadamente 1,80 m de longitud constituirá una barrera eficaz. El suelo de esta zona debe estar inclinado hacia los canales necesarios y drenarse individualmente.
Para pesar las canales se aconseja que el sistema del carril dé una vuelta alrededor de la balanza para reducir al mínimo el efecto en la producción de cualquier retraso en el procedimiento de pesaje.
La nave de carnización debe estar equipada con unas instalaciones de lavado a mano, con unidades de cuchillo y sierra esterilizados, resultar fácilmente accesible y ser adecuada para los matarifes y los inspectores de la carne y no estar separadas por más de 15m. Para trabajar en las plataformas, estas instalaciones deben estar emplazadas en la propia plataforma. Por otra parte, los esterilizadores de las sierras han de ser lo suficientemente hondos como para sumergir totalmente la hoja de la sierra de que se trate.

FIGURA 41 EVISCERACION Y COLOCACION EN EL CARRITO PARA SU TRANSPORTE AL MONTACARGAS

FIGURA 42 MESA DE INSPECCION Y VACIADO DE TRIPAS CON MONTACARGAS MECANICO