ASPECTOS DE LA PLANIFICACION E INFLUENCIA EN LA FORMA DEL EDIFICIO
Un matadero se divide en tres áreas principales: los corrales, la nave de carnización y la sala de suspensión/refrigeración. Si las dimensiones del lugar son suficientes, los corrales y las cámaras de refrigeración se pueden ampliar para incrementar la producción. En cambio, la nave de carnización, que es un conjunto de áreas cuidadosamente dispuestas y de cuartos auxiliares, debe estar planificada desde el principio para atender a toda la demanda previsible.
La instalación de un matadero en el que sólo se sacrifican una especie de animales a la vez difiere considerablemente de la de otro que permite sacrificar simultáneamente a dos o tres especies, pero cada sistema tiene sus ventajas cuando se ajusta correctamente a la producción y a prácticas comerciales y de venta concretas. Cabe optar entre varios sistemas en lo que respecta al diseño y los más comunes de éstos se comparan, indicándose a continuación su repercusión sobre la forma del edificio.
Siguiendo la práctica generalmente aceptada de carnización de los bovinos en mesas y la eliminación gradual de la matanza en puestos fijos, se ha desarrollado una pauta común de cadenas de matanza para cada categoría de animales que siguen una línea paralela a lo largo de la nave de carnización. Las salas de subproductos se colocan a un lado. Con este sistema, la cadena para bovinos debe estar situada junto a las salas para subproductos y paralelamente, pero a más distancia, se sitúan las cadenas para cerdos y ovejas. Es posible retirar de inmediato de la nave de carnización los subproductos de bovinos no comestibles, pero las pieles y los subproductos de los cerdos y las ovejas tienen que atravesar la cadena para bovinos donde puede seguir estando colgada la carne de la canal limpia.
La introducción de un transportador neumático (que no resulta económica para un matadero de tamaño intermedio) ofrece una solución parcial de este problema, pero el traslado de las pieles de las ovejas a través de la cadena para bovinos seguirá impidiendo la matanza simultánea de bovinos y ovejas por razones prácticas e higiénicas. De cuanto antecede se deduce que un único piso de una nave de carnización no musulmana para múltiples especies diseñada en cadenas paralelas se limitará a la matanza de una clase de animales en un momento determinado a menos que exista una separación completa y estructural de la sección destinada a los cerdos (fig. 56). Esos edificios son fáciles de construir con bloques locales de ladrillo u hormigón y dentro planchas de tejado de hormigón armado. Los sistemas de carnización de cadena paralela son económicos de equipar. Todo el sistema del carril aéreo está suspendido de la plancha de hormigón, con lo que se evita la necesidad de un marco de acero estructural para realizar el desplazamiento. Son muy adecuados para grandes producciones de una única especie o una producción moderada de dos o tres categorías de animales y una cuadrilla de matarifes se ocupa de todas las especies durante las horas normales de trabajo.
Una variación es la creación de un matadero en forma de T (fig. 57) con cadenas de producción convergentes que permiten que los bovinos y las ovejas se maten en una sección y los cerdos en otra. Las canales preparadas se dirigen a continuación a la sección central de suspensión y refrigeración.
Con esta disposición se puede proceder de manera adecuada a la matanza de cerdos por separado, pero el problema de sacrificar simultáneamente a los bovinos y a las ovejas sigue sin resolverse. Por añadidura, los corrales separados plantean dificultades con respecto al acceso a los medios de transporte y se debe prever una ampliación adecuada de los corrales a menos que la forma del emplazamiento sea adecuada.
Esta forma de diseño es apropiada para los establecimientos con grandes producciones de cerdos y un predominio de bovinos o de ovejas.
Con el sistema de cadena la utilización múltiple de los carriles aéreos y la utilización en común del equipo es el objetivo del diseñador. En la fig. 20 del capítulo 6 se ilustra este sistema concretamente con respecto a las cubetas para sangre que forman parte de pequeñas cadenas de carnización, las balanzas y las instalaciones de suspensión de los animales. Para dar un paso más en este sentido en una planta intermedia estaría justificada una cadena impulsada de manera intermitente y que permitiera utilizar casi el 100 por ciento de prácticamente la totalidad de unos sistemas de carril aéreo único para todas las categorías de ganado.
La inversión en maquinaria y en edificios se reduce, el ritmo de explotación del equipo de procesamiento se utiliza constantemente y aumenta la igualización del consumo de energía diario, lo que produce una mayor uniformidad en los gastos de capital y de explotación y el 30 por ciento de disminución de los gastos de inversión. En las figs. 58 y 59 se muestran los planos de este sistema combinado. La eficiencia de funcionamiento de las cadenas mejora asimismo al aumentar el número de puestos de trabajo. La cadena empieza a partir de dos puntos - las áreas de atronamiento de bovinos y de cerdos, respectivamente. Las dos cadenas convergen antes del proceso de degüello y se vuelven a separar para el escaldado y desuello de los cerdos; y vuelven a converger para las fases restantes de la preparación. La disposición da una capacidad de matanza de hasta 30 bovinos o 60 cerdos o 120 ovejas por hora.

FIGURA 56 MATADERO DE TAMAÑO MEDIANO PARA TODAS LAS ESPECIES CON INSTALACIONES COMPARTIDAS

FIGURA 57 MATADEROS DE SERVICIO DE TAMAÑO MEDIANO PARA “TODAS LAS ESPECIES” CON INSTALACIONES COMPARTIDAS EN PARTE

FIGURA 58 NAVE DE CARNIZACION PARA INSTALACIONES UNIFICADAS
(Secuencia de las operaciones con bovinos)

FIGURA 59 NAVE DE CARNIZACION PARA INSTALACIONES UNIFICADAS
(Secuencia de las operaciones con cerdos y ovejas)
A continuación figura una descripción esquemática de la carnización de tres categorías de ganado y de los planos correspondientes:
El atronamiento de los bovinos se efectúa en un corral de atronamiento. Después de haber encadenado la pata, el animal se iza y se arría automáticamente en un carril elevado. El carril de desangrar vuelve al área de atronamiento. Para proceder al desuello preliminar. las patas traseras del animal se encadenan al camal automático controlado por el transportador, al estar dotado el carril de carnización de un transportador que se desplaza delante de las plataformas de paso de diferentes niveles. Cuando los animales son de diferente tamaño, se puede prever una única plataforma que funcionará hidráulicamente.
En la plataforma superior se desuellan las patas traseras y en las plataformas inferiores los costados y las patas delanteras. Aproximadamente el 20 por ciento de la piel se retira manualmente para poder transportarlo a la máquina de desuello situada en la sección de paso y cuya velocidad varía dentro de amplios límites durante el desuello. Las pieles retiradas se depositan en una carretilla para transportarlas a la sala de limpieza y almacenamiento de pieles.
El esternón se abre con una sierra eléctrica y la canal se empuja hasta el final de la sección de derivación desde donde el transportador la traslada para la evisceración.
El carril corre a continuación durante varios metros paralelamente a la mesa alta de inspección de las vísceras que se mueve sincrónicamente. De pie ante la mesa el trabajador abre el costado y saca las tripas poniendo sobre las mesas la masa abdominal y los despojos rojos, colgando estos últimos de ganchos separados al otro extremo de la mesa.
Una vez acabada esta operación, el trabajador se desplaza al otro lado de la mesa. La cadena se aleja de la mesa para el descuartizamiento. Durante este tiempo el operario trabaja desde una plataforma movida hidráulicamente. La velocidad de descenso de la plataforma es controlada por un pulsador colocado en el mango de la sierra, mientras que su movimiento ascendente está controlado por un pedal.
Simultáneamente se facilita el examen veterinario del rumen y los intestinos, con lo que se llega a la mesa de inspección de las vísceras (que está conectada con los despojos rojos que se trasladan por su carril); se consigue así una velocidad sincrónica del transportador de las canales en su carril aéreo.
Los despojos decomisados y confiscados se depositan en un carrito. Si se ha confiscado la propia canal, el inspector de la carne la enviará a un carril de derivación. Los materiales comestibles sanos descienden automáticamente del gancho a una bandeja que los transporta a la cámara de refrigeración. El rumen se lleva a la sala de limpieza y tratamiento de las tripas. Las partes restantes de los estómagos y los intestinos caen directamente en un carrito y se dirigen a la zona de procesamiento correspondiente. Los trabajadores, de pie en las plataformas de diversos niveles, extraen los riñones, la grasa macerada, y lavan las medias canales.
Después de pesarlas y cortarlas en cuartos, las canales se refrigeran y se trasladan posteriormente a la cámara frigorífica o al compartimento de carga para el despacho. Cuando existen cámaras de refrigeración para bovinos y “animales pequeños”, las canales se descuartizan en la nave de carnización, con el fin de poder utilizar el equipo de refrigeración de doble finalidad para ahorrar costos de construcción y de los soportes de los carriles. De ser necesario, con enfriadores de más potencias (para bovinos), el descuartizamiento se puede también llevar a cabo después de la refrigeración.
En la fig. 58 las líneas gruesas indican las secciones utilizadas para las operaciones de matanza de bovinos.
Para los cerdos se pueden llevar a cabo los tres procedimientos siguientes:
matanza y escaldado;
retirada de la piel;
desuello completo con excepción de la cabeza y las patas.
Después de atronar eléctricamente al cerdo, se encadena para transportarlo a un elevador inclinado y luego a un carril que lo llevará hasta una artesa para la sangre donde lo matan trabajadores que están de pie sobre una plataforma elevada. Tras el desangrado, el carril se deriva por medio de conmutadores y el cerdo desangrado se suspende del arriador para transferirlo a la caldera de escaldado. Tras el escaldado una artesa colgante levanta al cerdo de la caldera de escaldado para eliminar las cerdas y lo descarga sobre una mesa de raspado, colocada en el otro lado.
A renglón seguido la canal se cuelga y eleva hasta el carril aéreo. En ese punto las cadenas para cerdos y para bovinos están unidas. Los transportadores trasladan a los cerdos a lo largo del carril aéreo. La piel se limpia en la cadena destinada al predesuello. Esta está dotada de duchas que funcionan automáticamente.
Para la producción de tocino o jamón se puede instalar un horno de chamuscado y un raspador en la sección anterior al transportador. Una vez abierto el esternón, se corta la canal y se extraen las vísceras como en el de los bovinos. El descuartizamiento del cerdo se lleva a cabo con una sierra eléctrica manejada desde una plataforma móvil que funciona hidráulicamente.
Para los bovinos las cuchillas de la sierra se cambian según el tipo de animal de que se trate.
El descuartizamiento de las canales va seguido del examen veterinario, la extracción de la grasa abdominal y de los riñones, antes de procederse al limpiado y lavado. Tras el pesaje, la canal se traslada a las naves de suspensión. Cuando se procede al desuello después del desangrado, la cabeza del cerdo colgado se escalda de la manera siguiente:
La canal se arrastra hasta colocarla encima de una cuba de escaldar manejada mecánicamente, que se eleva hasta la altura requerida. El paso siguiente consiste en trasladar la canal a la máquina de raspado de la cabeza, que funciona hidráulicamente.
La canal se transporta luego al depósito de agua de escaldar que está a unos 38°C a 40°C. Desde la tabla de raspado la canal se puede a continuación trasladar al carril o, de ser necesario, al transportador de predesuello, donde el 10 por ciento de la piel se retira a mano. La piel puede a continuación extraerse en la máquina de desuello horizontal.
El proceso siguiente en el carril ya se ha descrito anteriormente.
La matanza de ovejas es análoga a la de cerdos, y el mismo elevador inclinado levanta la oveja para trasladarla a los puestos donde se las mata y sangra. Sin embargo, tras el desangrado, se derivan hacia una cadena para proceder al corte de las patas, el desuello, la apertura de los pechos y la evisceración desde cadenas largas.
La velocidad del transportador puede ajustarse mediante una regulación variable de la velocidad del motor eléctrico impulsor, según las especies de animales y el número de operarios. Existe también la posibilidad de trasladar sincrónicamente con la mesa destinada a las vísceras mediante el control directo manual o un motor de impulsión variable.
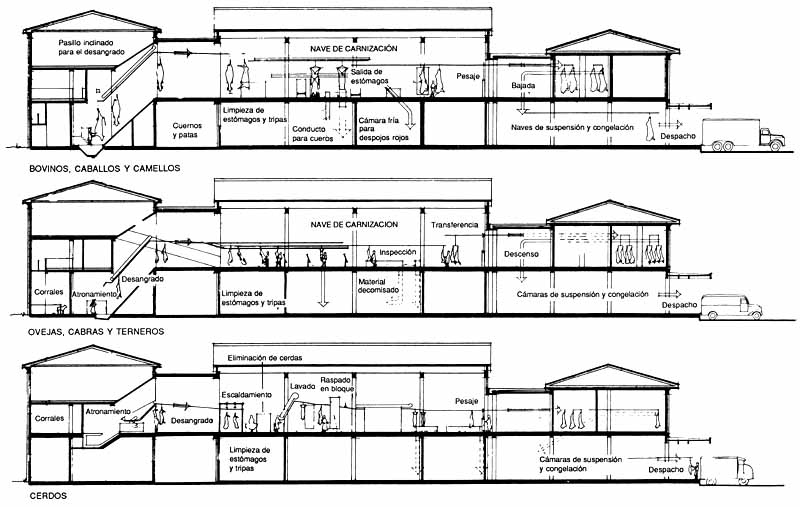
Los mataderos de dos o más niveles eran en otros tiempos comunes (fig. 60).
Los ritmos de matanza por hora eran elevados y los subproductos de la matanza eran tratados en uno o más pisos inferiores. Con la nave de carnización situada en el piso más alto y los subproductos dirigidos por medio de conductos hacia los pisos inferiores es posible conseguir la total separación de las cadenas de matanza, con lo que se permite trabajar simultáneamente con todas las especies.
Sin embargo, si las pieles, las tripas, los intestinos, la harina de huesos, etc., se procesan en locales separados, esta sola razón explicará que construcciones de tres o más pisos por lo general resultarán poco económicas debido a que las grandes superficies situadas debajo de la nave de carnización excederán a las necesidades. Por otro lado, a menos que los animales se desplacen por sí solos, existe el gasto de alzar las canales sobre transportadores inclinados de desangrar hasta el piso superior, transportadores para devolver los accesorios de matanza hasta el punto donde se utilizan.
La disposición racional de los cuartos de los niveles inferiores plantea un grave problema de diseño. Los subproductos son llevados a estos cuartos a través de conductos situados funcionalmente en el piso de matanza.
El punto de descarga de un conducto está determinado por su ángulo crítico de descenso. Este varía con el tipo, el peso y el grosor del producto. Una correlación entre el piso de matanza y el de los subproductos normalmente sólo se consigue por medio de soluciones intermedias que pueden menoscabar la eficiencia.

FIGURA 60 ORGANIZACION TIPICA DE LAS OPERACIONES EN UN MATADERO DE DOBLE PLANTA
Como en los mataderos de múltiples pisos pueden sacrificarse a muchos animales, su utilización está económicamente limitada a los grandes establecimientos. Aunque no se prestan a cambios en la construcción, de ser necesario, existen casos especiales en que lugares con una fuerte pendiente pueden utilizarse con ventaja para construir mataderos de producción media.
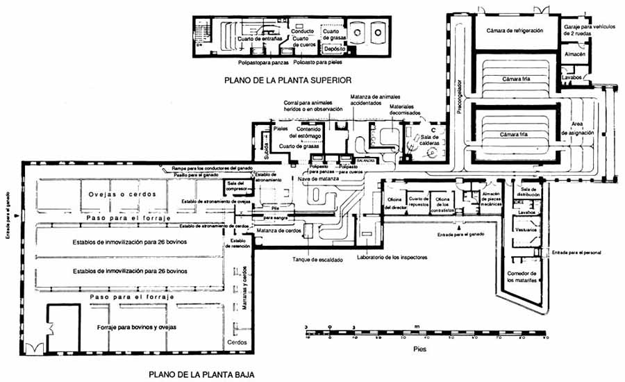
Las ventajas de los diseños de planta única y de varias plantas pueden combinarse económicamente en la construcción de un nivel para el descuartizamiento (fig. 61).
Un lugar en pendiente se presta a instalar un sistema de cadenas de matanza paralelas o de naves de carnización individuales sobre un semisótano destinado a subproductos, pero esta situación se puede asimismo crear artificialmente.
La altura de las naves de carnización para varias especies se regula por la altura necesaria para el desangrado de los bovinos. Esta es casi el doble que la requerida para matar a cerdos y ovejas y para los cuartos de subproductos. Con un aumento mínimo de la altura, es posible adecuar las cadenas para matar cerdos y ovejas encima del área destinada a los subproductos, mientras que la cadena para la carnización de bovinos puede situarse a lo largo en el nivel principal.
Las cadenas para ovejas y bovinos se separan en este caso y, si la cadena para cerdos está también separada por una pared de la cadena para ovejas en el piso superior, se puede trabajar con los tres sistemas simultáneamente.
Aunque se requieren elevadores y conductos, éstos se pueden diseñar para cargas menores y más ligeras. El emplazamiento de los cuartos de subproductos en el piso principal es ideal para la colocación funcional de los conductos en el piso destinado a la matanza de cerdos y ovejas. Sin embargo, los cuartos para subproductos, a menos que se duplique su superficie, sólo se podrán destinar a la clasificación, la primera limpieza, el almacenamiento temporal y el despacho de productos más que a su procesamiento.
El diseño es económico en el empleo del terreno y suele permitir que se utilicen edificios de marco uniforme de acero u hormigón. Este sistema totalmente flexible se puede ajustar a producciones de hasta 50 000 reses o más al año.
En todas estas soluciones, los revestimientos de suelos, paredes y techos no deberán deferir en cuanto al diseño. La recomendación general al respecto es que se ajusten a cuanto se describe en los capítulos 12 y 15 y se tengan en cuenta las recomendaciones específicas para las zonas especiales. Los detalles relativos a los establos, zonas de descarga o depósitos de sangre se describen en los capítulos correspondientes o se ilustran en los diseños que los acompañan.
Los factores que influyen en la elección de una solución de construcción adecuada son las producciones actual y proyectada, y la probabilidad de que la producción de los mataderos se exporte o no, así como el equilibrio de las especies que se van a sacrificar y las limitaciones impuestas por las autoridades encargadas de los edificios actuales o de la planificación.
Las soluciones de pisos múltiples no son atinadas para mataderos cuya producción se destinará posiblemente a la exportación debido a que no se prestan a adaptarse fácilmente para atender a nuevas necesidades funcionales impuestas por los cambios inevitables de la producción, pese a lo cual tienen ventajas con respecto al tipo de mataderos de servicio de capacidad media y con un diseño y una construcción de niveles divididos.
El emplazamiento de los departamentos de servicios y de los servicios técnicos es más sencillo y más compacto que en un edificio de un único piso; las pérdidas menores de calor y, en cambio, las ganancias solares entrañan una beneficiosa reducción de los gastos de calentamiento y refrigeración del espacio, respectivamente. La circulación de los productos que se están procesando puede ser más rápida y, si se recurre a la gravedad, también más barata. La supervisión de los departamentos se pretende que es mejor debido a la superficie reducida del espacio.
Las ventajas funcionales que se indican con respecto a los edificios de un único piso entrañan el uso máximo de la luz natural; una ventilación mecánica más fácil; un movimiento más fácil de los materiales entre departamentos; la falta de restricción a la disposición de cargas y equipo pesados; los menores problemas de aislamiento, cuando es necesario; una supervisión general simplificada de los procesos individuales; un mayor uso del espacio del suelo debido al número reducido de columnas de soporte o su total eliminación. Por añadidura, cuando todo el matadero está en un solo nivel, se simplifica la disposición de la producción en cadena, al mismo tiempo que el propio edificio se construye en menos tiempo y a menor costo (del 10 por ciento al 20 por ciento menos que un edificio industrial de pisos múltiples con una superficie equivalente).
Los acabados del suelo, las paredes y los techos no difieren en cuanto al diseño en todas estas soluciones. En general son válidas las recomendaciones indicadas al respecto en los capítulos 12 y 15, junto con las recomendaciones concretas para áreas especiales. En los capítulos correspondientes o en las figuras conexas se dan detalles sobre los corrales, las áreas de descarga o los depósitos para sangre.

NAVE DE CARNIZACION DE BOVINOS DE LA PLANTA BAJA

NAVE DE CARNIZACION DE OVEJAS Y CERDOS EN LA PLANTA SUPERIOR

FIGURA 61 PLANTAS Y SECCIONES DE UN MATADERO DE SERVICIO DE TAMAÑO MEDIANO DE DOBLE PLANTA