Página precedente Indice Página siguiente


ANEXO


1. DIBUJOS DE UN BUQUE PESQUERO DE ARRASTRE POR LA POPA DE FERROCEMENTO DE 12,8 M
2. ESBOZO DE ESPECIFICACIONES DE UN BUQUE DE ARRASTRE DE FERROCEMENTO DE 2,8 M DE ESLORA
3. COSTES DE UN BUQUE DE ARRASTRE DE FERROCEMENTO DE 12,8 M
4. REGISTRO DE LOS DATOS REFERENTES A LA MANO DE OBRA Y LOS MATERIALES PARA LA CONSTRUCCIÓN DE BUQUES DE FERROCEMENTO
GLOSARIO
BIBLIOGRAFÍA UTILIZADA EN EL PRESENTE DOCUMENTO Y FACILITADA POR LAS ORGANIZACIONES INDICADAS EN EL RECONOCIMIENTO

1. DIBUJOS DE UN BUQUE PESQUERO DE ARRASTRE POR LA POPA DE FERROCEMENTO DE 12,8 M

Estos dibujos corresponden a un buque de arrastre de ferrocemento de 12,8 m de eslora construido en 1985-87 por el Central Institute of Fisheries, Nautical and Engineering Training de Cochín, Estado de Karala, India, con la asistencia técnica de la Organización de las Naciones Unidas para la Agricultura y la Alimentación (Proyecto FAO IND-101).


LISTA DE DIBUJOS

Plano de formas

IND-101 pl

Construcción del casco

IND-101 p2

Disposición general

IND-101 p3

Secciones de las cuadernas

IND-101 p4a
IND-101 p4b
IND-101 p4c

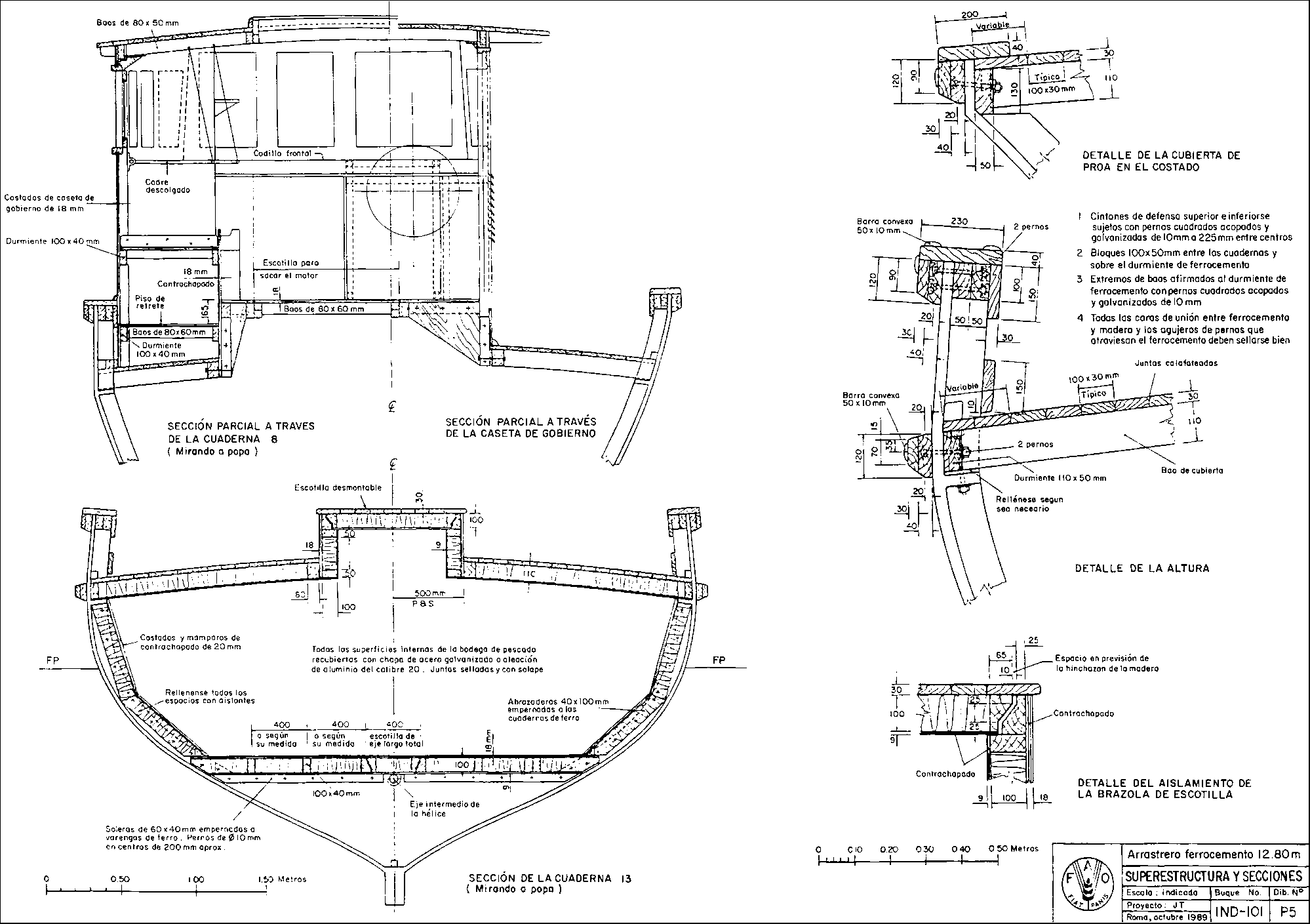
Superestructura y secciones

IND-101 p5


PLANO DE LÍNEAS

CONSTRUCCIÓN DEL CASCO

DISPOSICION GENERAL

SECCIÓN CUADERNAS (A)

SECCIÓN CUADERNAS (B)

SECCIÓN CUADERNAS (C)

SUPERESTRUCTURA Y SECCIONES

2. ESBOZO DE ESPECIFICACIONES DE UN BUQUE DE ARRASTRE DE FERROCEMENTO DE 2,8 M DE ESLORA

El proyecto de este buque de arrastre fue elaborado teniendo en cuentas las condiciones de pesca prevalenciantes en Veraval, centro pesquero del Estado de Gujarat, y resulta apropiado para ilustrar las características propias de una embarcación de ferrocemento. Las características principales son las siguientes:

Eslora total

12,80 m

Eslora en la flotación

12,00 m

Manga de trazado

4,28 m

Puntal de trazado en el centro

1,99 m

Calado máximo en la flotación de proyecto

1,80 m

Motor

Ashok Leyland ALM 680

Potencia

128 CV a 1500 RPM


148 CV A 1825 RPM

Caja de cambios

Accionada hidráulicamente en la marcha alante y atrás, reducción de la caja de cambios 3,83:1

Velocidad

8 nudos a 1500 RPM

Capacidad del tanque de combustible

1433 litros

Capacidad del tanque de agua

420 litros

Autonomía

65 horas a 1500 RPM

Alojamiento

6 cabinas

Capacidad de la bodega de pescado

13 m3


Comparado con los buques de arrastre de madera tradicionales y de dimensiones parecidas, el buque de ferrocemento es más estable, tiene un francobordo más alto, mayor resistencia, una maquinilla más potente, una bodega de pescado aislada mayor, un motor mayor y una disposición de la cubierta más eficaz para las operaciones de pesca. Además, el buque tiene algunas características nuevas que se describen a continuación.

La construcción del casco se indica en el dibujo No. IND-101 P2. Los detalles de la construcción de las cuadernas y del forro exterior del casco se indican en la figura 10, y muestra la varilla de cuadernas de gran límite elástico laminada en frío de 16 mm, la doble capa de varillas estiradas en frío semibrillantes de 6 mm y las tres capas de malla de alambre soldada de 13 mm x 13 mm y calibre 19 que se aplican a cada lado (es decir, 6 capas en total) del refuerzo de las varillas. El casco está dividido en 5 compartimentos por 4 mamparos de madera (véase la disposición general en el dibujo IND-101 P3).

La cubierta está hecha de madera con tablones de 30 mm colocados sobre baos de 110 x 80 mm; el dibujo IND-101 P5 muestra las interfaces ferrocemento-madera. La embarcación tiene una gran cubierta de trabajo a popa, con un pórtico que lleva una red elevada arrastrada por la maquinilla. El copo se levanta con la red de cerco por medio de la maquinilla y pasa por un rodillo fijo situado en la parte superior del pórtico. De esta manera las capturas pueden dejarse caer en una cubierta totalmente despejada y después clasificarse todos los estanques antes de almacenarse bajo cubierta. La maquinilla de tres tambores está accionada mecánicamente por el motor principal a través de un embrague y un eje secundario. La maquinilla puede enrollar automáticamente y tiene una potencia de tracción de una tonelada cuando el tambor está lleno a la mitad. La capacidad del tambor es de 800 m de cable de 12 mm.

La bodega de pescado está aislada con espuma de poliestireno de 4 pulgadas de espesor, lo que permite conservar las capturas en hielo hasta seis días. La bodega puede subdividirse para llevar hielo a los caladeros y para clasificar diversas especies de pescado si se desea. En el prensaestopas puede inspeccionarse y llenarse de nuevo retirando una sección del aislamiento en el fondo de la bodega.

El motor Ashok Layland ALM 680 acciona una hélice de 3 palas y 1,17 m de diámetro x 0,761 de paso, montada en una tobera Kort, lo que da una velocidad de arrastre de 3,7 nudos a 1600 RPM y una velocidad máxima en funcionamiento libre de 8,8 nudos.

La caseta de gobierno se extiende hasta el mamparo de babor para obtener el máximo espacio de alojamiento. La base de la caseta está montada sobre un bastidor de madera dura y aislada con un material pirorretardante; comprende también una escotilla a paño para facilitar el desmontaje del motor.

El alojamiento tiene capacidad para 6 personas, con 4 literas en el castillo de proa y 2 en la caseta de gobierno; hay un retrete al que se accede por cubierta. Las dos ventanas situadas en el extremo popel de la caseta de gobierno permiten una buena vista de la cubierta de trabajo.

La instalación eléctrica es de 12 voltios, con dos baterías 180 Ah; una para arrancar el motor solamente y la otra para el sistema de alumbrado. Todos los circuitos están debidamente cableados con sus correspondientes interruptores y fusibles. Las cajas de las baterías están forradas de plomo y aireadas.

Los dispositivos de seguridad responden a las prescripciones del Departamento de Marina Mercante y la Autoridad Portuaria. Los dispositivos son:

Una balsa salvavidas para 6 hombres
Dos aros salvavidas (uno de lo cuales lleva un cabo flotante de 18 m)
Seis chalecos salvavidas
12 bengalas de socorro con paracaídas
Extintores

3. COSTES DE UN BUQUE DE ARRASTRE DE FERROCEMENTO DE 12,8 M


3.1 Coste de la cama de construcción, los caballetes de montaje y las plantillas
3.2 Costes del casco
3.3 Costes de armamento
3.4 Análisis de los costes

En esta sección se indican los costes de fabricar un arrastrero de ferrocemento de 12,8 m de eslora. El primer casco se construyó entre mayo y agosto de 1985, y el armamento de la embarcación se realizó entre marzo de 1986 y marzo de 1987, periodo que se ajustaba a las exigencias del proyecto.

Los costes se dividen en cuatro grupos:

1. Gastos de inversión en la cama de construcción, caballetes de montaje y plantillas necesarios para construir el casco desde el principio y que se consideran elementos reutilizables cuyo coste no se incluye en el coste final (aunque podría amortizarse con un número determinado de embarcaciones). Esta partida se incluye con carácter informativo para tener una idea de los costes de construcción de la primera embarcación de ferrrocemento.

2. Desglose de los costes de producción del componente de ferrocemento del buque.

3. Desglose en secciones de los costes de armamento.

4. Análisis general de los costes presentados.

El casco fue construido de acuerdo con el método indicado en las secciones anteriores del presente documento.

Si bien los costes pertenecen a un país determinado y no corresponden a los costes de la actualidad, resultan interesantes para determinar la distribución y magnitud de los gastos, utilizando un buque determinado como ejemplo para el cual se contabilizaron los costes con detalles.

3.1 Coste de la cama de construcción, los caballetes de montaje y las plantillas

a) Materiales

Cantidad

Descripción

Destino

Valor: rupias

239 kg

Hierro en "U" a.d., 150 x 75 x 6

Cama de la quilla

1664,15

18,5 kg

Pletina a.d., 100x 6

Cama de la quilla

138,38

24

Pernos hex d.y a., 40 x 12

Cama de la quilla

64,56

15 kg

Hierro en "U" a.d. 150 x 75 6

Chumaceras

104,45

119 kg

Angular a.d. 50 x 50 x 6

Caballetes de la cama de la quilla

774,60

76,5 kg

Angular a.d. 40 x 40 x 5

Cama de la quilla

567,63

18 kg

Angular a.d. 40 x 40 x 3

Cama de la quilla

119,23

10 kg

Angular a.d. 30 x 30

Cama de la quilla

65,61

5 kg

Pletina a.d. 40 x 3

Cama de la quilla

34,00

14 kg

Angular a.d. 50 x 50 x 6

Cartabones de tirantes

103,88

12 kg

Angular a.d. 40 x 40 x 3

Asientos de tirantes

79,49

3,5 kg

Pletina a.d. 40 x 3

Asientos de tirantes

23,80

70 m

S.B.A.R. 25 x 25 xg.12

Tirantes

2312,76

79 m

S.B.A.R. 30 x 30 xg.12

Tirantes

4281,01

19 m

Espárragos M10

Tirantes

570,19

98

Pernos H. 45x 10, 120 arandelas, 150 tuercas

Tirantes

212,78

15 kg

Angular a.d. 50 x 50 x 6

Arbotantes

97,65

40 kg

Angular a d. 40 x 40 x 3

Arbotantes

264,96

64 kg

Angular a.d. 35 x 35 x 6

Arriostramiento general

446,34

8 paq.

10 varillas para soldadura

Espaciadores
Cama de quilla
Soportes en pirámide
Tirantes

617,36

2,5 lt

Óxido rojo imprimación

General

74,45

8 hojas

Contrachapado 6 x 3 x 6 mm

Plantillas

933,04

1 hoja

Contrachapado 6 x 3 x 3 mm

Plantilla brusca cubierta

171,63

17 hojas

Aglomerado 8 x 4 x 3 mm

Plano del cuerpo

1929,50

1 hoja

Contrachapado marino 8 x 4 x 9 mm

Plantillas

525,10

15 kg

Pintura al temple

Trazado de gálibos

307,65

3,25 kg

Clavos de alambre

General

37,43

13

Hojas de sierra 12 x 1/2

General

103,93

4 ft3

Teca

Cantos estructurales

1000,93

6 m3

Oxígeno + 3 m3 D/acetileno

General

___253,35___


Coste total del material (incluida la entrega y los impuestos)


Rs 17878,91

b) Mano de obra: Para realizar la cama, caballetes, y plantillas

Rs 17248,87


Total materiales y mano de obra:

Rs 35127,78


3.2 Costes del casco

(incluida la bancada del motor, varengas, vagras, quillas de balance, tubos interiores del timón y la bocina)

a) Materiales

Cantidad

Descripción

Destino

Valor en rupias

79 kg

Pletina a.d. 25 x 3

Cuadernas

527,25

45 kg

Angular a.d. 25 x 3

Cuadernas

293,58

28

Longitud del tubo negro M20

Cuadernas

3593,53

192 kg

Varilla a.d. 12 mm

Cuadernas Bancada, etc.

1436,54

556 kg

Varilla a.d. 16 mm

Cuadernas, quilla, roda, espejo

4075,48

2 m

Espárragos M10

Quilla

60,02

600

Pernos hexagonales a.d. 25 x 8

Cuadernas

186,00

140

Pernos hexagonales a.d. 25 x 8

Regala

43,40

110

Pernos hexagonales a.d. 25 x 8

Durmiente

34,10

70

Pernos hexagonales a.d. 25 x 8

Gambotas

21,70

90

Pernos hexagonales a.d. 25 x 8

Agujeros drenaje

27,90

130

Pernos hexagonales a.d. 25 x 8

16 no. Imbornales

40,30

2280

Tuercas hexagonales a. d. 8 mm

16 no. Imbornales

410,40

2280

Arandelas flexibles 8 mm

16 no. Imbornales

196,08

14 kg

Angular a.d. 40 x 40 x 3

Montaje

92,74

7 kg

Angular a.d. 40 x 40 x 3

Refuerzos espejo

46,37

13 kg

Pletina a.d. 25 x 3

Groeras

86,76

45 kg

Angular a.d. 30 x 30 x 3

Regala

315,00

35 kg

Angular a.d. 30 x 30 x 3

Durmiente

245,00

6 kg

Angular a.d. 30 x 30 x 3

Refuerzos espejo

42,00

9 kg

Angular a.d. 30 x 30 x 3

Arriostramiento general

63,00

13 kg

Pletina a.d. 30 x 3

Durmiente e imbornalese

90,01

36 kg

Pletina a d 30 x 6

Regala

247,00

33 kg

Pletina a.d. 30 x 6

Bancada de motor

226,41

58 kg

Pletina a.d. 50 x 6

Montaje cuadernas

374,74

5 kg

Pletina a.d. 75 x 6

Plantilla roda

37,40

55 kg

Perfil cuadrado a.d. 12 x 12

Durmiente

364,32

82 kg

Pletina a.d. 100 x 15 (6,5 m)

Bancada de motor

615,00

6 m

Espárragos M20

Bancada de motor

520,62

36

Tuercas hexagonales M20

Bancada de motor

53,64

1 m

Espárragos 20 mm

Chumaceras

86,77

8

Tuercas hexagonales M20

Chumaceras

11,92

81 kg

Alambre de enlace 1,6 mm

Grapas

805,64

1047 kg

VEFS de 6 mm

Todo

11710,53

280 kg

VEFS de 8 mm

Todo

3132,06

22 rollos

Malla galvanizada de 30 m x 1 m x ½" x ½" y g.19

Todo 660 m2

24538,80



Suma y sigue

54652,01


Cantidad

Descripción

Destino

Valor en rupias



Suma anterio

54652,01

6½ rollos

Malla galvanizada de 30 m x 1 m x ½" x ½" y g.19

273 m2

10133,21

25 paq.

10 varillas para soldadura

Todos

1929,25

1 l

Óxido rojo imprimación

Regala, cuadernas

29,78

6 m

110 x 50 Aini (0,41 ft3)

Bancada a motor

86,60

1,22

Camión de arena

Moldeado

319,64

1 ton

Hielo

Moldeado

153,60

110 sacos

Cemento Porland

Moldeado

6894,80

2 cajas

Yeso blanco

Moldeado

11,26

30

Hojas de sierra 12" x ½"

Moldeado

244,44

1

Hojas de sierra 18" x 1"

Moldeado

47,44

9

Hojas de sierra 14" x 1"

Moldeado

390,24

10 kg

Pintura al temple blanca

Plano del cuerpo

205,10

200

Mudi (cuerda)

Curación

80,00

6 m3

Oxígeno + 3 m3 D/acetileno

General

242,31


Alquiler del generador 10 Kw

Curación

2550,00


Alquiler de 2 x 40 mm eje/agujas de vibrador

Curación

150,00

2 no.

Lona alquitranada 15 x 12 alquilada

Curación

24,00

13 kg

Masilla poliéster

Bulárcama, varengas

748,02

3 kg

Masilla marina

Relleno

301,68

1

Tubo interior a.d.1252 borde a borde 102 DI

Estructura popa

1500, 00

1

Tubo interior a.d.220 borde a borde 102 DI

Mecanismo


1

Talón del codaste a.d. cojinete, incluyendo montaje y botón

Mecanismo

___1740.50___


Coste total del material (incluida la entrega y los impuestos)


Rs 83377,88





b) Mano de obra






Coste de la mano de obra para construir el casco, incluido el coste de la subcontrara de los enlucidores por valor de Rs 4887,00



Costes totales de mano de obra

Rs 40660,69


Coste total:

Rs 124038,57


El coste medio de la mano de obra para el casco fue de Rs 47,50 por un día de trabajo de siete horas (1985). Debe recordarse que todos los operarios utilizados eran nuevos en la construcción de ferrocemento y estaban acostumbrados a trabajar para un organismo estatal. Los costes de mano de obra se habrían reducido considerablemente si el casco se hubiese construido en el sector privado.

3.3 Costes de armamento

Como los precios cotizados normalmente para los buques varían tanto de un constructor a otro, se estimó que no era necesario enumerar cada uno de los artículos. Sin embargo, podría resultar más útil una lista que indicara el desglose de las secciones de trabajo de armamento.

Pueden seleccionarse los artículos que se desee de la lista para obtener el coste combinado en una sección.

La consulta de las especificaciones y dibujos facilitados en el anexo puede contribuir a evaluar la calidad y extensión del trabajo realizado.

En el cuadro 3 se reproduce una lista de los costes de material y mano de obra para el armamento de un buque de 12,8 m. Se ha incluido el coste de construcción del casco (partida 1) para conocer el coste total de construcción del buque.

El coste medio de la mano de obra para la etapa de armamento ha subido ahora a RS 56,60 por un día de trabajo de 7½ horas.

3.4 Análisis de los costes

Al examinar los costes presentados, convendría tener en cuenta las condiciones siguientes:

a) Todos los costes de materiales indicados comprenden la entrega y los impuestos
b) De los costes totales se ha deducido los gastos generales y los beneficios
c) Este coste reducido parece más apropiado por los motivos siguientes:
i) el buque fue construido en virtud de un proyecto de formación del Gobierno de la India y la FAO

ii) el buque era un nuevo proyecto e incorporaba varias características noveles (para los operarios)

iii) el contenido de mano de obra correspondiente a i) y ii) fue necesariamente superior que de haberse tratado de una construcción comercial

iv) la compra de materiales por una oficina del Estado resulta prolongada y es más cara, debido a los trámites que deben seguirse para solicitar precios y efectuar pagos, que en el caso de una empresa comercial.

Parece justo suponer que para llegar a unos costes comerciales deducidos los gastos generales y los beneficios, cabe reducir las cifras correspondientes a la mano de obra en un 25% y en un 20% las correspondientes a material para el armamento, excluido el motor, las piezas de respeto del motor, la estructura de popa, el mecanismo del timón, la tobera, el pórtico, la maquilla y los artes de pesca.

Estas observaciones pretenden ofrecer una idea más ajustada a la realidad a los que quieran utilizar estas cifras para calcular sus propios costes.

4. REGISTRO DE LOS DATOS REFERENTES A LA MANO DE OBRA Y LOS MATERIALES PARA LA CONSTRUCCIÓN DE BUQUES DE FERROCEMENTO

Mano de obra

La forma más fácil de llevar a cabo un análisis de la mano de obra necesaria para construir un buque de ferrocemento es realizar un desglose de las tareas. Así, para la construcción de un casco corriente tendríamos:

1. Construcción de cuadernas, incluida la roda y el espejo de popa

2. Enmallado de las cuadernas

3. Montaje de la quilla, cuadernas, roda y espejo de popa

4. Alineación del casco

5. Instalación del tubo interior de la bocina

6. Instalación completa de la bancada del motor

7. Instalación de las chumaceras

8. Instalación del angular del arrufo, creando puntos de codillo

9. Instalación completa de los durmientes

10. Gambotas

11. Vagra en la crujía

12. Colocación completa de las varillas del casco

13. Colocación completa de la malla del casco

14. Terminación de las quillas de balance

15. Instalación del mecanismo del timón, tubo interior y talón del codaste

16. Perforación en el forro de orificios y aberturas para los imbornales y guíacabos

17. Revisar el casco

18. Moldear el casco

19. Curación

20. Prueba de estanquidad, retirar estructuras de acero y rellenar los orificios de los pernos según sea necesario

Naturalmente, los costes de preparación de los tirantes, quilla, cama de construcción y demás elementos de montaje deben incluirse en partidas separadas y amortizarse tras la construcción de un número determinado de cascos del mismo tipo.

Distribuyendo los gastos de mano de obra en las secciones indicadas puede obtenerse una más clara idea tras la construcción de dos o tres cascos en cuanto al número de horas necesarias para cada etapa de los trabajos, así como tener una idea de si resulta rentable construir un durmiente de ferrocemento en lugar de instalar uno de madera.

Materiales

La única manera de llevar la cuenta de los materiales utilizados es separarlos y agruparlos cada día para la tarea que sea necesaria, o bien sabiendo las cantidades existentes en el almacén antes de iniciar una tarea determinada y procediento a un inventario al final del periodo de construcción del casco. Evidentemente, si se construye más de un buque al mismo tiempo el primer método será el más indicado.

Si los materiales están separados por tamaños resulta fácil entonces mantener las existencias dentro de los límites necesarios y la salida del almacén es mucho más sencilla.

La reserva de materiales para la salida del almacén puede hacerse diariamente asignándole un número de tarea que se transfiere a un expediente en el que se consigna el coste tomado de un índice de la lista de precios actualizados, incluidos los impuestos y gastos de entrega reducidos al coste por metro de longitud o kilogramo de cantidad.

Cada seccón del expediente permite consultar fácilmente la sección cuyo coste se calcula, por ejemplo, la fabricación de la cama de construcción fabricación, del casco, etc.

Estimación de los costes del trabajo en ferrocemento

Naturalmente, a los efectos de estimación de costes resulta útil disponer de algunos costes de las tareas realizadas anteriormente partiendo de dichos datos puede llegarse a una cifra de los costes de mano de obra y materiales por unidad de superficie. Es conveniente que la estimación se base en los costes correspondientes a distintos tipos de embarcaciones.

COSTES AGRUPADOS DE UN ARRASTRERO DE FERROCEMENTO DE 12,8 M DE ESLORA

Cuadro 2

DESCRIPCIÓN

MATERIALES

MANO DE OBRA

PRECIO TOTAL EN RS

% DEL COSTE

1 Construcción del casco

83377,88

40660,69

124038,57

10,68

2 Motor ALM 680 con caja de cambios hidráulica e instalación de toma de fuerza, toma de mar, conducto de salida, escape, mandos, etc.

222708,50
6454,17

3283,15

232445,82

20,03

3 Estructura de popa, hélice RH Kaplan de tres palas

42513,63

479,85

42993,48

3,70

4 Tobera entubada

10446,73

10730,95

21177,68

1,81

5 Mecanismo del timón y mandos de gobierno

21509,53

1237,50

2274,03

1,96

6 Sistema de lavado de sentina y cubierta

13930,54

1692,09

15622,63

1,35

7 Tanques de combustible, con el sistema completo

8002,36

3358,91

11361,27

0,98

8 Tanque de agua potable e instalación

2394,37

2904,33

5298,70

0,46

9 Trabajos electromecánicos varios

7333,20

-

7333,20

0,63

10 Sistema eléctrico

16372,28

2601,27

18973,55

1,63

11 Cubierta, mamparos, zapatas, pies derechos, BS, pique de proa, caseta de gobierno, RS y tapa de regala todo ello de madera

110498,79

57758,20

168256,99

14,49

12 Bodega de pescado, con tablones de encajonar

65904,13

14395,36

80299,49

6,91

13 Fregadero de la cocina, retrete

6113,37

1969,89

8083,26

0,70

14 Barandilla y amura

4340,34

4040,80

8381,14

0,72

15 Equipo general de cubierta

39364,64

4545,91

43910,55

3,78

16 Pórtico completo

9137,56

5909,67

15047,23

1,30

17 Maquinilla con eje intermedio y mandos

39159,23

3813,51

42972,74

3,70

18 Ánodo del casco

525,76

404,08

929,84

0,08

19 Pintura total

36263,33

6642,07

42905,40

3,69

20 Sujetadores

19099,24

-

19099,24

1,64

21 Botadura, pruebas y trabajos finales

39139,20

1161,73

40300,93

3,47

22 Motor, caja de cambios y respetos generales

28185,31

-

28185,31

2,43

23 Equipo facultativo

91718,00

1464,80

93182,80

8,02

24 Artes de pesca, 6 redes y dos juegos de puertas de red

61434,71

6293,11

67727,82

5,83

Costes totales excluidos gastos generales y beneficios

985926,80

175347,87

1161274,67

100,00


Para realizar una estimación cuando no se disponga de experiencia anterior, damos un ejemplos a continuación tomados del proyecto de Cochin en el que se realizó una construcción de ferrocemento por primera vez, utilizando operarios calificados que no estaban familiarizados con la construcción en ferrocemento:


Costes de materiales incluidos impuestos

Costes de mano de obra por m2

a) Casco de buque pesquero de 10,5 m

Rs 730/m2

60 hrs/m2

b) Casco de buque pesquero de 12,8 m

Rs 730/m2

53 hrs/m2


Estas cifras corresponden a 1985, por lo que al realizar una estimación en el momento actual habría que tener en cuenta la inflación, el coste proporcional de las camas de construcción, los gastos generales y los beneficios, para llegar al precio de venta hoy en día.

Las cifras indicadas anteriormente para la mano de obra cambiarían considerablemente si se refirieran a los tiempos de construcción de una empresa comercial que utilice personal bien capacitado y que trabaje según un plan de incentivos:


Costes de mano de obra por m2

a) Casco de buque pesquero de 10,5 m

21,5 hrs/m2

b) Casco de buque pesquero de 12,8 m

19,0 hrs/m2


Es esencial, por lo tanto, conocer la capacidad de la mano de obra de que uno dispone para poder estimar los costes correctamente. El cuadro 3 puede ayudar a estimar los costes de la construcción de un buque de ferrocemento.

ESTIMACIÓN DE LOS COSTES DEL FERROCEMENTO

Tipo de casco: _____________________________

Tarea No.: _____________________

Preparado por: ______________________________

Fecha: ________________________

Cálculos por área de la superficie

1. Casco: ____________

5. Durmiente: __________

9. Brazolas: _______________

2. Vagras: ___________

6. Mamparos: ___________

10. Quillas de balance: ________

3. Varengas: _________

7. Cubierta: ____________

11. Refuerzos long.: __________

4. Bancada de motor: ___

8. Baos de cubierta: ______

12. Zonas de bloques:_________


Superficie total = m2

Cuadro 3

Mano de obra:

Horas a por hora
Gastos generales a %
Total mano de obra: -

           


           


           


           


           











Materiales:

Metros cuadrados a por m2
Gastos generales a %
Total materiales: -
















Coste del moldeo a contrata
Coste del traslado interior
Coste de la sociedad de clasificación

Gastos generales a %
Total varios: -


























Gastos tatales mano de obra: -

Margen de beneficios %











Partidas adicionales de costes:
a) Honorarios de proyectistas %
b) Trazado de gálibos
c) Coste de recuperación de cama y caballetes
d) Coste trabajos de cuna ÷


























Total cotes: -







Precio de venta

hasta 19

(excluidos los gastos de entrega, transporte e impuestos)

GLOSARIO

Terminología utilizada en este documento

Punto popel

Punto extremo de la popa o bien el punto en que la flotación de proyecto corta la quilla vertical.



Centro del buque

Es el punto medio de la eslora.



Línea base

Línea paralela a la flotación de proyecto que pasa por el punto de intersección de la sección central y la línea de quilla de trazado o el alefriz, según corresponda. Es una línea horizontal tanto en la sección transversal como en los dibujos en alzado.



Manga

Anchura del buque.



Durmiente

Madero longitudinal que forma el soporte de los extremos de los baos.



BS (British Standard)

Norma británica.



Mamparos

Estructuras verticales que dividen el espacio que hay bajo cubierta en distintos compartimientos.



Longitudinales

Curvas derivadas de una serie de secciones longitudinales del casco de un buque por planos verticales, paralelos a la quilla y a intervalos uniformes desde ella.



Brusca

Curvatura transversal que se da a la cubierta de un buque para facilitar el drenaje y conferirle una resistencia.



Esloras

Vigas longitudinales bajo cubierta que forman los apoyos intermedios de los semibaos.



Protección catódica

Proceso de superponer una célula electroquímica más potente que la célula de corrosión.



Brusca parabólica

El punto más elevado de la cubierta del buque a lo largo del eje longitudinal.



Hombre muerto

Punto de anclaje fijado en el suelo del taller para facilitar el cambio de dirección necesario en el empleo de un cable de chigre.



Cubierta en el costado

Intersección del techo de la cubierta con el exterior del casco.



Bao de cubierta

En construcción de madera, cada uno de los maderos que descansan sobre los durmientes y sostienen los tablones de la cubierta



Flotación de proyecto (FP)

Longitud total de la línea de agua.



Alineación

Proceso de conseguir que todas las curvas representadas en el plano de formas sean curvas continuas sin irregularidades o inflexiones y que armonicen completamente en las tres vistas del plono de formas, es decir, el plano longitudinal, el plano transversal y el plano horizontal.



Varengas

Miembros transversales del fondo que constituyen, en unión de las vagras y quilla, la estructura principal del mismo y confieren resistencia transversal adicional al casco.



Punto proel

Punto extremo de proa del casco o donde la flotación de proyecto corta la roda.



Cuadernas

Miembros transversales dispuestos con una separación determinada a lo largo del casco.



Cuadrícula

Red de líneas que representan las secciones de proyecto, las líneas de agua y los longitudinales.



Regala

Las tracas anchas de madera que refuerzan el arrufo del buque en las embarcaciones de materiales compuestos.



Semiacoplamiento

Medio de unir dos largos del eje y de acoplar el eje a la caja de cambios.



Codillo

Cada uno de los puntos de la quilla desde donde arrancan la roda y el codaste.



Eslora total

Longitud de un buque medida a lo largo del eje longitudinal desde el canto proel de la roda al canto popel del espejo en un plano horizontal que comprende la barandilla pero excluye el timón en voladizo, el bauprés y otros apéndices.



Groera

Agujero o canal practicado en los costados y trancaniles de un buque para dar salida al agua.



Tubo interior de la bocina

Tubo con bridas o sin ellas insertado en el refuerzo de ferrocemento para facilitar el desmontaje del equipo instalado en el casco o la cubierta.



Plano de formas

Trazado de la forma de un buque en tres planos, a saber: plano longitudinal, plano horizontal y plano transversal.



Líneas de carga

Líneas trazadas paralelamente por encima de la línea de flotación con una separación determinada.



Trazado de gálibos

Trazado de las líneas de un buque a tamaño natural.



Flotación a plena carga

Línea horizontal designada de un buque en condiciones determinadas de carga.



Sala de gálibos

Zona amplia de un astillero en la que las formas reales del buque se trazan a tamaño natural.



Tobera:

Unidad instalada alrededor de la hélice propulsora para aumentar su empuje.



Soporte de chumaceras

Pedestal o bloque reforzado dispuestos en el casco para servir de apoyo a las chumaceras del eje.



Toma de fuerza

Toma de fuerza del motor para accionar el equipo auxiliar.



Alefriz

En un casco de ferrocemento, lugar en que el exterior del forro del casco enlaza con el costado de la quilla.



Cintón de defensa

Defensa en forma de cinturón de madera que rodea los costados del casco para protegerlo en las atracadas.



Escantillones

Las dimensiones principales de las distintas partes estructurales del buque.



Arrufo

Curvatura longitudinal del costado del casco representada por la cubierta o la regala.



Estructura de popa

Nombre colectivo dado a la hélice, bocina, ejes y acoplamientos.



Líneas de agua

Líneas trazadas paralelamente, por debajo de la flotación de proyecto base con una separación determinada.



Vagra

Prolongación de las varengas en forma de una viga incorporada al casco.

BIBLIOGRAFÍA UTILIZADA EN EL PRESENTE DOCUMENTO Y FACILITADA POR LAS ORGANIZACIONES INDICADAS EN EL RECONOCIMIENTO

American Bureau of Shipping: (Documento indicado en las secciones 5.7 y 10)

Extractos de: ABS Guidelines for the construction of ferrocement vessels 1969, y carta a la CIFNET del 3/6/1986

Berger Paints Ltd: (Documento indicado en la sección 8.3)

Extracto de una carta de fecha 21/4/1986

Cement & Concrete Association: (Documento mencionado en la sección 5)

Extractos de publicaciones: Concrete Practice 1960 & 1987

Central Institute of Fisheries Nautical & Engineering Training (Totalidad del documento)

Fotografías indicadas en los número de referencia, tomadas por K Balasubramanian e información facilitada en el cuadro 5 del anexo

Det Norske Veritas: (Documento indicado en la sección 4 y 5)

Pequeños estractos de: Tentative rules for the Construction and Classification of Ferrocement Vessels

International Ferrocement Information Center: (Documento mencionado en la sección 1)

Información general tomada de varios númros del Journal of Ferrocement

MacAlister Elliot and Partners Ltd: (Documento mencionado en la sección 1)

Información general facilitada en la carta de 24/7/89

MG Duff Marine Ltd: (Documento mencionado en la sección 9.1)

Extractos de MG Duff Marine Protection Systems, incluida la figura 20.

Shalimar Paints Ltd: (Documento mencionado en la seción 9.3)

Extracto de una carta de fecha 20/7/85


Página precedente Inicìo de página Página siguiente