Page précédente Table des matières Page suivante


Chapitre 7 - Fours en briques


7.1 Le four argentin hémisphérique
7.2 Le four brésilien en ruche d'abeilles
7.3 Le four brésilien semi-enterré
7.4 Le four Missouri
7.5 Production de charbon de bois centralisée


Bien construits et bien employés, les fours en briques sont sans aucun doute l'une des méthodes de production de charbon de bois les plus efficaces. Au cours de dizaine d'années d'utilisation, il se sont avérés peu coûteux en investissement initial, peu exigeants en main-d'oeuvre et susceptibles de fournir avec des rendements étonnamment élevés du charbon de bois de qualité, propre à tous les usages industriels et domestiques

Il existe de nombreux modèles de fours en briques en usage à travers le monde, et la plupart donnent de bons résultats. Ils doivent pour cela répondre à un certain nombre de conditions importantes: être simples à construire, être relativement insensibles aux alternances de chauffage et de refroidissement, être suffisamment solides pour résister aux efforts mécaniques lors du chargement et du déchargement, et enfin résister aux intempéries pendant six à dix ans.

Le four doit permettre de régler à tout moment l'entrée d'air, et pouvoir être fermé hermétiquement lors du refroidissement. La construction doit être assez légère pour que le refroidissement puisse se faire assez facilement, tout en fournissant une bonne isolation thermique pour le bois en cours de carbonisation, sinon il se produira des points froids sur les parois du four aux endroits touchés par le vent, ce qui nuira à la bonne marche de la carbonisation et occasionnera une proportion excessive de morceaux incomplètement carbonisés ("fumerons") et une baisse de rendement. La capacité du four en briques de conserver la chaleur de carbonisation est un facteur important de son coefficient élevé de conversion du bois en charbon.

Photo 13. Fours Missouri construits en béton arme. Noter les portes d'acier, et le tas de charbon de bois. Missouri, Etats-Unis. Photo A. Baker

Les modèles traditionnels de fours en briques ont été perfectionnés au cours des siècles, mais il existe d'autres types de fours qui ont fait plus récemment l'objet d'essais systématiques en vue de les améliorer: le four brésilien en ruche d'abeilles, le four argentin hémisphérique, le four européen Schwartz, et enfin le four Missouri aux Etats-Unis. Dans le premier, le second et le quatrième de ces fours, on brûle une partie de la charge à l'intérieur du four pour carboniser le restes tandis que le four Schwartz utilise les gaz chauds provenant d'un foyer extérieur, que l'on fait passer dans le four pour apporter la chaleur nécessaire au séchage et au chauffage du bois afin de démarrer la carbonisation. Le four Schwartz exige une quantité importante d'acier pour les tirants métalliques maintenant la voûte de briques, ainsi que pour les grilles et portes de foyer. Etant donné que son rendement global n'est en pratique pas supérieur aux autres, on ne peut recommander son emploi dans les pays en développement. Le quatrième type de four bien éprouvé en pratique est le four Missouri, né aux Etats-Unis où il est toujours employé. Il est généralement construit en béton armé ou en parpaings de béton, avec cheminées et portes en acier. Son rendement est comparable à celui des fours argentin et brésilien. Il est pourvu de grandes portes métalliques qui permettent d'utiliser des engins mécaniques pour le chargement et le déchargement. Il présente pour les pays en développement deux inconvénients: il exige pour sa construction une grande quantité d'acier et de ciment, matériaux coûteux et généralement importés, et il est plus difficile à refroidir que les autres fours. C'est pourquoi son emploi est plus approprié pour les pays tempérés, où l'on dispose des matériaux et du savoir-faire nécessaires pour une construction en béton armé et acier, et où le climat plus frais permet un refroidissement aisé. Il est intéressant là où l'on dispose de main-d'oeuvre compétente, de chargeurs frontaux' etc.

Les avantages du four argentin et du four brésilien sont les suivants:

- On peut les faire de moyenne et grande taille.

- On peut les construire entièrement en briques à faible degré de cuisson, faites localement avec un mélange d'argile et de sable, et en mortier de terre. Ils n'exigent pas d'acier, à l'exception de quelques barres de fer plat au-dessus des portes et comme renforts à la base de la coupole dans le cas du four brésilien.

- Ils sont robustes, et ne sont pas facilement endommagés. Ils résistent bien à une surchauffe, et peuvent rester exposés au soleil et à la pluie sans corrosion ou autres inconvénients, et avoir une vie utile de 5 à 8 ans.

- Les briques liées avec un mortier de terre peuvent être récupérées et réutilisées ailleurs lorsqu'on déplace les fours.

- Le contrôle de la carbonisation est relativement simple, notamment dans le cas du four argentin.

- Les fours sont faciles à refroidir à l'aide de boue argileuse, et à clore hermétiquement lors du refroidissement. Une méthode récente de refroidissement rapide est l'injection d'eau.

- La marche des opérations pour une batterie de fours a été bien étudiée et normalisée, de telle sorte que la main-d'oeuvre et la matière première sont utilisées avec un rendement maximum.

- Le charbon de bois obtenu convient pour tous usages tels que domestiques ou métallurgiques, et production de charbon activé.

Le principal défaut de ces deux types de fours est qu'ils ne se prêtent pas à la récupération ou au recyclage par combustion des sous-produits goudronneux ou gazeux, ce qui accroît la pollution atmosphérique et abaisse légèrement le rendement thermique. Toutefois, pour être juste! il faut ajouter qu'il n'existe pas de fours en briques éprouvés industriellement qui soient capables de récupérer simplement les goudrons sans exiger d'éléments métalliques, ce qui augmente considérablement le coût et la complexité du four.

Photo 14. Construction d'un four en briques hémisphérique. Noter la perche en bois servant de jauge de rayon, le mode d'assemblage des briques, et la double épaisseur de briques sur une portion du mur pour accroître la solidité du four. Argentine. Photo J. Bim

7.1 Le four argentin hémisphérique


7.1.1 Préparation de l'emplacement
7.1.2 Dessin et construction du four
7.1.3 Conditionnement du bois
7.1.4 Chargement
7.1.5 Fonctionnement
7.1.6 Confection des briques


7.1.1 Préparation de l'emplacement

Pour une batterie de 12-14 fours, il faut un espace défriché de 4000 - 5000 m². Le bois provenant du défrichement, à l'exception des arbres pouvant donner des grumes de sciage ou des perches, sera utilisé en bois de feu. L'emplacement sur lequel sera construit un four doit être légèrement damé, et ensuite ramené à niveau par un apport de terre afin de permettre un bon écoulement de l'eau.

7.1.2 Dessin et construction du four

La figure 5 montre le dessin de ce four, qui est construit entièrement en briques. On utilise comme mortier un mélange de boue et de poussier de charbon, sans aucun fer de support en général. Le four a l'aspect d'un igloo hémisphérique, d'un diamètre d'environ 6 m (entre 5 et 7m). Les dimensions des briques sont de 24 x 12 x 6 cm. Pour la construction d'un four il faut compter 5500-6000 briques, compte tenu des briques cassées en cours de travail.

Le four a deux portes diamétralement opposées, dans un sens perpendiculaire à la direction des vents dominants. Elles ont 1,60-1,70 m de hauteur, 1,10 m de largeur à la base et 0,70 m au sommet. L'une des portes est utilisée pour le chargement du bois, l'autre pour le déchargement du charbon. Les portes du four sont fermées avec des briques que l'on monte lorsque le chargement est terminé, et que l'on enlève une fois la carbonisation achevée. C'est une opération simple, qui est répétée à chaque chargement du four et consiste à poser les briques les unes sur les autres et à les couvrir avec de la boue. Il faut environ une centaine de briques par porte, et on peut les réutiliser jusqu'à ce qu'elles finissent par se casser.

Au sommet du four se trouve un trou - appelé "oeil" - de 22-25 cm de diamètre, par où sort la fumée. Sur le pourtour de la base, au niveau du sol, se trouvent dix orifices d'entrée d'air régulièrement espacés, de 6 cm de hauteur sur 12 cm de large.

Photo 15. Four hémisphérique après achèvement. Noter les piliers de renfort de la porte pour éviter les dégâts lors du chargement et du déchargement du four. Noter également l'assemblage croisé des briques en double épaisseur autour de la porte, par comparaison avec le mur en simple épaisseur que l'on aperçoit dans l'angle supérieur droit de la photographie. Argentine. Photo J. Bim.

La fondation consiste en trois doubles rangs de briques superposées, lices avec un mortier de terre.

Fig. 5 Four argentin en briques. Ce four, de forme hémisphérique, a deux portes diamétralement opposées pour faciliter le chargement et le déchargement et assurer la ventilation. La paroi est pour la plus grande part en une seule épaisseur de briques, avec une double épaisseur autour des portes. Des piliers de briques sont en outre souvent construits de part et d'autre des ouvertures de portes. La construction du four nécessite environ 6000 briques ordinaires faites manuellement, liées au mortier de terre mélangée de poussier de charbon.

Photo 16. Achèvement de la coupole d'un four hémisphérique. Noter la jauge de rayon, et l'orientation des briques dans la coupole. Argentine. Photo J. Bim.

Photo 17. Four hémisphérique partiellement terminé, et réservoir à eau. Noter l'assemblage croisé des briques dans la partie du mur en double épaisseur' et la manière dont elles sont disposées dans la section en simple épaisseur. Argentine. Photo J. Bim.

7.1.3 Conditionnement du bois

Les bois à carboniser sont coupés en morceaux de 1,00 - 1,30 m de longueur, d'un diamètre minimum de 5 cm et maximum égal à la largeur de la porte du four. Le bois amené de la forêt doit être placé aussi près que possible de la porte de chargement. Il est recommandé de le laisser sécher au moins 4 à 5 semaines, selon les conditions climatiques locales. On peut recourir à un écorçage manuel ou mécanique; beaucoup d'écorcer tombent d'elles-mêmes au cours du séchage. On peut faire entrer dans le four environ 30 tonnes de bois sec à l'air, à 25% d'humidité, de densité moyenne voisine de 850 kg/m3.

7.1.4 Chargement

Le plus commode est de charger par la porte proche de la pile de bois. Cette opération nécessite deux hommes, et ne devrait pas prendre plus de six heures. Les bois à carboniser sont placés sur des longerons faits de bois de faible longueur, d'un diamètre maximum de 8 à 10 cm, afin d'éviter le contact direct avec le sol. Les billes de plus gros diamètre doivent être placées au centre, où l'on a de plus hautes températures prolongées. Les bois sont empilés verticalement, sur une hauteur d'environ 1,20 m correspondant à leur longueur. Au-dessus on place des billes horizontalement, jusqu'à remplir complètement le four' comme le montrent la figure 5 et la photo 18 d'un four partiellement chargé. Il faut veiller particulièrement à ne pas obstruer les évents à la base du four. On place du petit bois sec au sommet de la charge sous l'oeil du four, pour aider à l'allumage. Lorsque le chargement est terminé on bouche les deux portes avec une maçonnerie de briques.

Photo 18. Chargement typique d'un four hémisphérique. Argentine.

7.1.5 Fonctionnement

Tous les évents de la base ainsi que l'oeil du four doivent être ouverts. On jette par l'oeil des morceaux de charbon enflammés, des feuilles sèches et des brindilles pour assurer un bon allumage de la charge. Au bout de quelques minutes une fumée blanche bien visible commence à sortir par l'oeil. Cette phase correspond à une première distillation, au cours de laquelle le bois perd l'eau qu'il contient. La fumée blanche continue pendant quelques jours, selon la teneur en humidité du bois, et commence alors à virer au bleu, ce qui indique que la carbonisation proprement dite est en cours. On la contrôle en ouvrant ou fermant les évents à la base du four. Il ne doit pas apparaître de flamme à l'oeil Lorsque la carbonisation est terminée la fumée devient presque aussi limpide que de l'air chaud. A ce point il faut fermer les évents avec de la boue, ou les couvrir de terre et de sable. Cette phase est appelée la "purge''. L'oeil au sommet du four est ensuite obturé, et la phase de refroidissement commence. On accélère le refroidissement en jetant sur le four de la boue délayée, ce qui contribue en outre à colmater tous les trous ou fentes dans les parois du four et empêche ainsi toute entrée d'air. L'application de boue liquide doit se faire environ trois fois par jour.

Avant de décharger le charbon, lorsque le four est suffisamment refroidi, il faut avoir sous la main une provision d'eau suffisante pour parer à une réinflammation lorsqu'on ouvrira la porte du four. Un fût de 200 litres est suffisant pour un four. Le déchargement est fait par deux ou trois hommes, utilisant de préférence une fourche spéciale dite "fourche à pierres", à 12-14 dents espacées de 2 cm, laissant passer le plus grande partie du poussier (morceaux de moins de 20 mm) qui reste ainsi dans le four. Le charbon est placé sur un carré de toile de 1,20 m de côté, et porté par deux hommes hors du four.

Le calendrier normal de l'opération est le suivant:

Chargement

6 heures

Carbonisation

6-7 jours

Purge

1-2 jours

Refroidissement

3-4 jours

Déchargement

3-4 jours

Une durée de 13-14 jours doit être suffisante pour un cycle complet produisant 9-10 tonnes de charbon de bois avec un four de 7 m de diamètre.

Avec un four de 6 m de diamètre la production par fournée est d'environ 7,5 tonnes, soit 15 t/mois. Le rendement moyen obtenu en 1978 par le plus grand producteur de charbon de bois en Argentine, la Salta Forestal S.A., a été de 1 tonne de charbon pour 3,75 tonnes de bois. Le bois et le charbon sont toujours pesés. Les rendements pourront être moins élevés avec des bois de densité plus faible ou de teneur en humidité plus élevée.

Lors des trois ou quatre premières fournées, lorsque les briques et le sol finissent de sécher, le four est considéré comme "vert", et les rendements sont un peu plus faibles. La vie utile d'un four est de cinq ans au moins, et aucun entretien spécial n'est nécessaire. S'il apparaît des fissures sur les parois, on les bouche aussitôt avec de petits morceaux de brique et de la boue.

Le nombre normal de fours par batterie est de 10 à 14, selon le type de forêt, la superficie exploitée et la distance de transport. Il faut également un approvisionnement en eau; on peut construire un réservoir d'environ 3000 litres de capacité avec des briques et du ciment. Une batterie est conduite par trois hommes, un charbonnier et deux aides.

7.1.6 Confection des briques

Le type de briques utilisées pour les fours est important. Une brique idéale est assez poreuse, résistante aux variations brusques de température, et isolante. Les parois du four doivent protéger le bois en cours de carbonisation des pertes de chaleur excessives, dues notamment au vent, et cependant transmettre la chaleur suffisamment pour permettre un refroidissement rapide lors de la phase correspondante.

Par mesure d'économie, les briques doivent être confectionnées et cuites près de l'emplacement où seront construits les fours. On prépare un mélange d'argile et de sable, contenant environ 65% d'argile. Pour augmenter la porosité des briques, on peut ajouter 20% de sciure de bois au mélange. Les briques une fois séchées sont empilées en grands tas formant four, et cuites au bois.

Les briques de forte densité et de grande résistance faites à la machine, telles qu'on en utilise dans les constructions urbaines permanentes, conviennent moins bien, ayant davantage tendance à se fendre à la chaleur, Elles sont aussi beaucoup plus coûteuses, avec le transport, que des briques faites sur place.

Les disponibilités en terre argileuse sont importantes. Une bonne terre à briques contient une proportion assez élevée de sable et de matière organique, et ne se rétracte et ne s'écaille pas au séchage. Elle ne doit pas non plus trop durcir au séchage, parce que lorsqu'on l'utilise en boue liquide pour le refroidissement il faut périodiquement gratter la couche de boue qui s'accumule sur le four après quelques fournées; cette argile peut être réutilisée.

La photo 19 montre un chantier de fabrication de briques. On utilise une argile sableuse extraite des berges alluviales d'un cours d'eau voisin. Le mélange humide compacte est découpé à l'aide d'une bêche pour façonner les briques, que l'on étale pour les laisser sécher. Une fois sèches, on les empile en tas de 20000 à 30000, dans lesquels sont ménagés des conduits fumée qui partent de foyers répartis le long de la base sur les quatre côtés et débouchent au sommet du tas. Lorsque le tas est terminé, on allume des feux de bois dans chacun des foyers, et on les entretient pendant 10-12 jours ou plus afin d'élever la température du tas jusqu'aux alentours de 900 C. On laisse alors refroidir le tas, et on le démantèle. Les briques bien cuites sont séparées des briques insuffisamment cuites se trouvant à l'extérieur du tas, que l'on peut recuire à la prochaine fournée ou utiliser pour des constructions de qualité inférieures

Photo 19. Aire de confection de briques. Salta, Argentine. Photo. H. Booth.

Photo 20. Fabrication manuelle de briques, cuites au feu de bois en tas dans lequel sont ménagés des conduits de fumée. Embarcación, Argentine. Photo H. Booth.

7.2 Le four brésilien en ruche d'abeilles


7.2.1 Conception
7.2.2 Construction


L'industrie brésilienne du charbon de bois, qui est à la base de la sidérurgie de ce pays, est l'un des exemples les plus réussis de technique de carbonisation dans des fours en briques que l'on puisse trouver dans le monde aujourd'hui. Il y a beaucoup à apprendre de l'expérience brésilienne pour tous les pays désireux de développer leur production de charbon de bois sur des bases rationnelles. La description qui en est donnée ci-dessous suit de très près le rapport de H. Meyers sur la sidérurgie au charbon de bois au Brésil (23).

Les fours qui sont utilisés largement et avec succès au Brésil, et notamment dans l'Etat de Minas Gerais, sont du type à chauffage interne, fixes, à fonctionnement discontinu. Les grandes industries de la fonte et de l'acier en utilisent plusieurs milliers. Ils sont de forme circulaire, avec un toit en dôme, et sont construits en briques ordinaires. Le mur circulaire est entièrement en contact avec l'air extérieur. Ce type de four est connu sous le nom de "four en briques en ruche d'abeilles" (voir figure 6).

Fig. 6 Four brésilien en ruche d'abeilles

Diamètre du four

5 m

Volume brut

48,94 m3

Volume utile

45,31 m3

Nb. d'évents

18

Nb. de cheminées

6

Nb. d'orifices de sortie de fumée

26

Nb. d'orifices de sûreté

30

Nb. de briques nécessaire

8500

7.2.1 Conception

Le four brésilien présente les avantages suivants:

- Les gaz traversent la charge de bois, et la chaleur qu'ils renferment est partielle ment utilisée dans le processus de séchage et de carbonisation du bois.

- Bon rendement, jusqu'à 62% en volume, soit 1 m3 de charbon pour 1,6 stère de bois, lorsque l'opération est bien conduite.

- Faible coût, environ 700 $US (en 1978), y compris les voies d'accès pour les camions.

- Facilité de construction. Deux hommes peuvent bâtir un four en 8 jours.

- Matériaux simples: 8500 briques avec seulement une bande de fer plat pour la coupole.
Pas de fondations en béton.

- Longue durée de vie utile: jusqu'à 6 ans au même endroit. Peut être démonté sans perte importante de briques, et reconstruit sur un nouvel emplacement.

- Production de 5 tonnes par cycle de neuf jours.

- Carbonisation uniforme.

- Refroidissement uniforme, parce que les murs sont entièrement en contact avec l'air extérieur.

- Programme d'opération court: environ 9 jours, que l'on peut raccourcir par un refroidissement forcé au moyen de pulvérisation fine d'eau.

- Réglage uniforme de la combustion interne par 18 évents laissant entrer la quantité d'air nécessaire pour la combustion.

- Entretien facile et peu coûteux, peu de réparations, pas de fentes dans les murs, pas d'électricité, très peu d'eau: environ 100 litres par fournée.

Photo 21. Batterie de fours brésiliens à différentes étapes du cycle de carbonisation. Minas Gérais, Brésil. Photo J. Bim.

7.2.2 Construction

Une batterie de 7 fours demande un espace de 70 m de longueur sur 25 m de largeur pour les fours eux-mêmes, le stockage et le conditionnement du charbon pendant deux jours, le stockage d'une certaine quantité de bois, les voies d'accès et un espace de manoeuvre pour les camions qui amènent le bois et qui emmènent le charbon. La préparation du terrain pour l'implantation des fours et l'aire de chargement du charbon exige toujours un certain travail au bulldozer. Le sol doit être en pente légère pour permettre l'écoulement des eaux de pluie. Deux ou plusieurs batteries de fours sont souvent groupées ensemble sur une seule rangée; c'est le cas lorsque les forêts avoisinantes sont vastes, et qu'on dispose de grandes quantités de bois de carbonisation à courte distance. Chaque batterie se compose de sept fours, et la superficie totale doit être un multiple de celle indiquée pour une batterie. La construction d'un grand nombre de batteries permet une bonne centralisation des opérations et une supervision efficace, ce qui assure une bonne qualité et des rendements élevés en charbon de bois.

Le nombre total de fours d'un centre de carbonisation doit être limité à 35 ou 42, en raison de l'émission de fumées qui, si elles ne sont pas nuisibles à la santé, sont irritantes pour les yeux et les poumons. Les fours doivent en conséquence être implantés à au moins 2 km des villages. Il faut également tenir compte de la direction des vents dominants.

Pour implanter une batterie de fours, on commence par tracer sur le sol la ligne centrale, sur laquelle on marque, à 8 mètres d'intervalle, le centre de chaque four par un tuyau de 2 m planté verticalement dans le sol. La circonférence intérieure du four est tracée avec un diamètre de 5,00 m, la circonférence extérieure 5,40 m.

On marque l'emplacement des deux portes de 1 m de large, des fondations des piliers de portes, des six cheminées et des fondations du four, et on creuse une tranchée pour le soubassement. Celui-ci doit comporter quatre assises de briques au-dessous de la surface du sol, une au-dessus, toutes étant soigneusement posées de niveau.

Fig. 7 Coupe du four brésilien en ruche d'abeilles montrant les caractéristiques de construction

Une perche de bois de 2,50 m est fixée horizontalement sur le tuyau central pour servir de guide pour la construction des murs. Lorsqu'on monte les murs, il faut laisser les ouvertures pour les portes, mais bâtir les piliers de portes. On prépare un mortier avec dix parties d'argile pour une partie de poussier de charbon, préalablement tamisé. En posant la première assise de briques, on doit laisser les ouvertures nécessaires pour les évents, au nombre de trois sur chaque intervalle entre deux cheminées, soit un total de 18 ouvertures symétriquement réparties. Les évents ont 10 cm de largeur sur 8 cm de hauteur. Les cheminées sont bâties en même temps que les murs; le conduit intérieur a une section de 12 x 10 cm. Lorsqu'on bâtit les murs, il faut veiller à ce que les différentes assises de briques soient bien de niveau; on utilise à cet effet une règle en bois. Après avoir posé cinq assises de briques, on laisse deux orifices de sûreté à la verticale des deux évents situés le plus près de chaque cheminée. Après les cinq assises suivantes, on laisse un orifice central, et après une nouvelle couche de cinq assises on laisse deux orifices à la verticale des premiers. Ces orifices de sûreté ont 7 x 7 cm; il y en a cinq sur chaque intervalle entre deux cheminées. Lorsque le mur atteint une hauteur de 1,60 m, on pose les linteaux en fer cornière sur les piliers de portes avant de poursuivre la construction du mur. Les deux ouvertures de portes, de 1,00 m de large sur 1,60 m de hauteur, sont ainsi prêtes Après avoir chargé le four, le charbonnier doit lorsqu'il obture les portes avec ces briques y ménager un orifice d'entrée d'air à la même hauteur que les autres.

La hauteur totale du mur vertical sera de 1,80 m, et la dernière assise de briques doit être bien nivelée. On posera encore au-dessus une dernière assise faite d'un rang de briques posées sur chant' liées au mortier, autour de laquelle sera disposée une bande de fer plat composée de quatre segments assemblés entre eux par des boulons non serrés.

La première assise de briques de la coupole sera ajustée contre cette dernière assise du mur, en taillant les briques à l'angle voulu. Le tuyau central sera alors enlevé, et remplacé par un piquet enfoncé dans le sol jusqu'au niveau de la dernière assise du soubassement. Une perche de 3,10 m de longueur environ, formant compas à verge, sera fixée à ce piquet pour servir de guide dans la construction de la coupole. Celle-ci est bâtie à l'épaisseur d'une demi-brique, avec un minimum de mortier, la solidité étant assurée par la pression des briques les unes sur les autres.

10 orifices de sûreté de 7 x 7 cm seront ménagés à la cinquième assise de briques, 10 autres à la dixième assise, et 6 à la quinzième. Un orifice d'allumage, de forme triangulaire de 10 x 10 x 10 cm, sera ménagé au sommet de la coupole. Une fois celle-ci terminée, la frette métallique sera serrée, les murs crépis avec un fin mortier d'argile, et la coupole badigeonnée avec une boue liquide argileuse pour obturer les trous et fentes.

Fig. 8 Four en briques semi-enterré

Diamètre du four

4,0 m

Volume brut

24,8 m3

Volume utile

21,6 m3

Nb. d'évents

1

Nb. de cheminées

4

Nb. d'orifices de sortie de fumée

4

Nb. d'orifices de sûreté

4

Nb. de briques nécessaire

2000

7.3 Le four brésilien semi-enterré


7.3.1 Construction du four à flanc de coteau
7.3.2 Entretien du four


La figure 8 montre une variante du four en ruche d'abeilles. Il s'agit d'un four circulaire de 4 m de diamètre, construit sur une pente qui forme les murs latéraux et le mur de fond. Il utilise beaucoup moins de briques. De nombreux milliers de ces fours semi-enterrés sont en service dans l'Etat de Minas Gerais et d'autres Etats du Brésil; ils sont très en vogue auprès des petits producteurs de charbon or indépendants. Leur conduite est plus facile que celle du four en ruche d'abeilles, parce qu'ils n'ont qu'un orifice d'entrée d'air à contrôler au lieu de 18. La composition chimique et physique et les rendements du charbon produit dans ces fours semi-enterrés sont très proches de ceux obtenus avec le four en ruche d'abeilles; on ne signale aucune différence importante de qualité entre les deux.

Photo 22. Four brésilien semi-enterré, construit à flanc de coteau, fermé et prêt pour l'allumage. Brésil. Photo J. Bim.

7.3.1 Construction du four à flanc de coteau

On doit défricher un cercle de 6 m de diamètre à l'emplacement du four, et y tracer un cercle de 4 m de diamètre. La chambre du four, de 1,40 m de hauteur, est creusée dans le sol, et le fond bien nivelé, et on marque la position de la porte, large de 0,60 m, et de trois ou quatre cheminées de 0,35 x 0,35 m de section, régulièrement espacées entre elles. (Fig. 8).

L'ouverture de la porte et les saignées pour les cheminées sont creusées dans le talus sur une hauteur de 1,40 m, et les cheminées sont bâties à 1,50 m de hauteur avec des briques posées sur chant.

Un piquet est enfoncé au centre de la sole' et on y fixe la verge de compas qui servira de guide pour la construction de la coupole; sa longueur est exactement égale à la hauteur intérieure de la coupole, soit 2,45 m.

Si la hauteur du talus est insuffisante, il sera nécessaire d'ajouter quelques assises de briques pour atteindre une hauteur de mur de 1,40 m. Le mortier utilisé est le même que pour la coupole. Un arc de briques est bâti au-dessus de l'ouverture de porte. Il faut enfin faire une entaille circulaire oblique sur laquelle reposera la base de la coupole.

La coupole est construite à l'épaisseur d'une demi-brique, avec peu de mortier fait de dix parties de terre argileuse pour une partie de poussier de charbon tamisé. Quatre orifices de sûreté de 7 x 7 cm doivent être ménagés, symétriquement disposés, dans la dixième assise de briques, et quatre autres de 8 x 8 cm après dix nouvelles assises, et on laisse un trou d'allumage de 10 x 10 cm au sommet de la coupole.

L'arc construit au-dessus de la porte est fait de briques placées sur chant, et lices à la maçonnerie de la coupole. Près de la porte du four on fait une taille dans le talus pour faciliter la manutention du bois. Une fois le four chargé et la porte obturée, il faut laisser un orifice d'entrée d'air à la hauteur de la sole. Enfin on creusera des rigoles de drainage tout autour du four.

7.3.2 Entretien du four

L'excès d'argile qui se dépose par suite des badigeonnages successifs à la boue liquide doit être raclé périodiquement, ce qui améliore le refroidissement du charbon,

Il faut éviter d'endommager la maçonnerie du four par des chocs dus aux camions, charrettes, grumes, etc. Les piliers de porte doivent être protégés par deux poteaux d'angle. Les briques qui se détachent des murs ou sont branlantes doivent être remises en place en les bourrant solidement.

Les orifices de sûreté doivent être bouchés avec des briques en forme de coin, sans mortier, colmatées extérieurement avec de la boue liquide. Les conduits de fumée des cheminées doivent être soigneusement nettoyés avec une baguette longue et flexible.

Les cheminées doivent déboucher plus haut que la frette métallique de la coupole, afin de réduire la corrosion par la fumée. Cette corrosion se produira de toute façon au bout de quelques années. Il faut la resserrer à intervalles réguliers, et remplacer les parties corrodées.

La sole du four doit toujours être maintenue bien plane. Si nécessaire, on apportera de la terre argileuse que l'on tassera avec le pied. Si elle se craquèle, il faudra boucher les fentes pour éviter des dégâts dans les fondations, par infiltration d'eau par exemple. Les rigoles de drainage doivent être maintenues constamment dégagées.

Les animaux errants doivent être tenus à l'écart du chantier de carbonisation par une clôture de fil de fer barbelé ou autre.

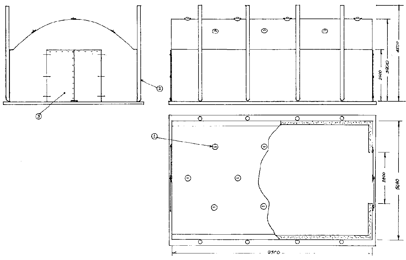
7.4 Le four Missouri


7.4.1 Dessin du four
7.4.2 Construction
7.4.3 Fonctionnement
7.4.4 Emploi du four Missouri dans les pays en développement


Le four Missouri a été mis au point au cours de longues années dans les forêts feuillues de l'Etat de Missouri aux Etats-Unis. Le dessin en a été plus ou moins normalisé vers 1960, et des dimensions et détails de construction recommandés ont été publiés par Pitts Jarvis dans "The Wood Charcoal Industry in the State of Missouri" (English Series Bulletin No. 48, Engineering Experiment Station, Columbia' Missouri). Ce modale de four est adapté à des hivers rigoureux, à des coûts élevés de main-d'oeuvre, à un chargement et un déchargement mécanisés' et utilise des méthodes de construction et des matériaux qui peuvent être coûteux et difficiles à obtenir dans les pays en développement.

Le four Missouri doit pouvoir supporter en hiver des gelées intenses qui seraient très dommageables pour des fours en briques de construction légère. Les deux principaux dangers sont le soulèvement du sol par le gel' et le gel de l'eau dans les fissures de la maçonnerie. Un renforcement sérieux des fondations, des murs et du toit, et une construction monolithique en béton armé, sont indispensables pour éviter une rapide détérioration du four. Les basses températures atmosphériques imposent également un bon isolement afin de réduire les pertes de chaleur et une proportion excessive de fumerons dans le charbon produit.

Le four Missouri est conçu pour permettre d'y entrer facilement avec des engins mécaniques tels que petits tracteurs, camions et chargeurs frontaux, afin d'assurer un chargement et un déchargement aisés et rapides du four. C'est l'une de ses caractéristiques les plus intéressantes là où la main-d'oeuvre est chère.

7.4.1 Dessin du four

Les fours Missouri ont des volumes allant de 4 m3 à 350 m3, l'optimum se situant semble-t-il autour de 180 m. Cette dimension donne un coût assez bas au mètre cube utile, et un volume qui reste dans des proportions maîtrisables. Elle représente environ trois fois la capacité du four argentin ou du four brésilien (voir 7.1 et 7.2).

Le plan du four est rectangulaire (Fig. 9), et il a environ 7 m de large sur 11 m de long. Les murs ont environ 2,50 m de hauteur pour permettre aux engins mécaniques d'y entrer. La hauteur maxima du toit en voûte est de 4 m environ au-dessus du sol. Les murs ont environ 25 cm d'épaisseur. La photo 13 montre un groupe caractéristique de fours Missouri.

Les quantités de matériaux qui entrent dans la construction d'un four Missouri sont impressionnantes, et avant de se lancer dans une telle entreprise il faut calculer avec soin le coût de ces matériaux. Le tableau 5 présente une comparaison entre le coût des matériaux nécessaires pour un four Missouri de 180 m et pour quatre fours brésiliens d'une capacité totale d'environ 200 m. Le grand inconvénient du four Missouri dans les pays en développement est la grande quantité de ciment et d'acier qu'il exige, et qui sont des matériaux généralement importés et souvent coûteux et difficiles à obtenir. Le savoir-faire pour l'utiliser peut être limité dans les régions traditionnelles de production de charbon de bois. Enfin l'avantage de pouvoir charger et décharger le four par des moyens mécaniques doit être soigneusement pesé dans chaque cas particulier.

Le coût de l'acier peut être un élément décisif dans les pays en développement, c'est pourquoi il importe d'évaluer l'efficacité relative de son utilisation dans les différents types de fours.

Un indice utile est la quantité de charbon de bois produite par kilogramme d'acier utilisé dans la construction du four. Les charbonnières en meule ou en fosse occupent évidemment la première place, étant donné qu'elles n'utilisent pas d'acier du tout, donc leur indice est infini. Si nous comparons les divers types de fours, en prenant la quantité de charbon de bois produite pendant la durée de vie utile d'un four convenablement utilisé, telle qu'indiquée dans le présent manuel, nous trouvons les indices suivants: four brésilien 8200 kg de charbon par kg d'acier entrant dans la construction, four Missouri 550 kg de charbon par kg d'acier, four métallique transportable 330 kg de charbon par kg d'acier. Le four brésilien utilise donc l'acier 15 fois plus efficacement que le four Missouri, lequel est une fois et demie plus efficace que le four transportable entièrement en tôle d'acier.

Le four Missouri exige pour sa construction une certaine technicité et un respect des spécifications. Des affaissements se produiront si les fers d'armature sont insuffisants ou mal disposés. Si on n'utilise pas du gravier de schiste expansé, ou s'il y a surchauffe du four, la voûte du toit s'effondrera par suite de la fusion des fers d'armature. Un tel accident, en raison du prix de ce type de four, serait un désastre économique pour la plupart des producteurs, et si l'on ne dispose pas d'une main-d'oeuvre compétente et des matériaux prescrits, mieux vaut ne pas en entreprendre la construction.

Tableau 5 - Matériaux entrant dans la construction d'un four Missouri et de quatre fours brésiliens de capacité équivalente

Matériaux

1 four Missouri de 180 m3

4 fours brésiliens de volume total 200 m3

béton à base de gravier de schiste expansé

46 m3

néant

Briques ordinaires

néant

34000

Acier total

4,4 t

0,58 t

dont: armatures et renforts

1,56 t

0,58


encadrements de portes

0,74 t



conduits d'air

0,34 t



portes

1,11 t



divers

0,20 t


Conduits de céramique

37 m de 0150 mm

néant

7.4.2 Construction

Les murs, la sole et le toit du four sont en béton armé coulé, les cadres de portes en acier étant mis en place avant la coulée. Le type de gravier recommandé est le schiste expansé léger, afin d'améliorer l'isolation thermique et la résistance à l'effritement sous l'action de la chaleur; ce matériau n'est généralement pas disponible dans le plupart des régions de production de charbon de bois du tiers monde. Les doubles portes en acier sont un élément crucial et coûteux. Elles doivent être faciles à ouvrir, et cependant pouvoir être fermées hermétiquement pour éviter toute entrée d'air durant la carbonisation. On recommande d'employer une tôle d'acier laminé de 10 cm d'épaisseur, pour réduire le gondolage qui nuit à l'étanchéité. Celle-ci est obtenue en boulonnant les portes au cadre noyé dans le béton, et entre elles à leur ligne de jonction; on recommande d'utiliser des boulons de Ø18 mm. Chacun des battants de portes pesant plus d'un quart de tonne, ils doivent être bien montés sur des gonds robustes capables de résister à des ouvertures et fermetures répétées.

Le four est pourvu de huit cheminées faites de tuyaux d'égout en céramique de Ø15 cm; on peut également utiliser des tuyaux d'acier ou de fonte. Ces cheminées, d'une hauteur de 4,50 m, sont tenues par des pattes fixées dans le mur du four.

Les fours sont généralement groupés en batteries de 3 à 6 fours ou plus, ce qui permet une meilleure économie d'équipement et de main-d'oeuvre. Afin de réduire la pollution, les batteries de fours, aux Etats-Unis, sont parfois reliées à un conduit de fumée central et à un dispositif de postcombustion, alimentant une grande cheminée commune. Les conduits de fumée normaux sont démontés, et les orifices de fumée connectés par des tuyaux d'acier horizontaux au dispositif de postcombustion. Celui-ci, qui est alimenté au mazout, est nécessaire pour chauffer les gaz de combustion afin de les réduire entièrement en dioxyde de carbone et vapeur d'eau par mélange avec la flamme du brûleur avant d'être rejetés dans l'atmosphère par l'intermédiaire d'un ventilateur. Un tel système ne peut évidemment être économique que là où le prix du charbon de bois est élevé et où l'on peut se permettre de brûler du mazout pour produire du charbon de bois.

7.4.3 Fonctionnement

Le rendement de la carbonisation avec le four Missouri est comparable à celui des fours en briques de type brésilien ou argentin lorsqu'ils sont utilisés dans des conditions optimales. Le coût élevé de construction du four Missouri est compensé par les économies de main-d'oeuvre dues à l'emploi d'engins mécaniques pour le chargement et le déchargement. Théoriquement, un grand four Missouri ayant un volume équivalant à environ 4 fours brésiliens, il devrait y avoir une économie supplémentaire de main-d'oeuvre pour la carbonisation' mais en pratique le four Missouri n'atteint pas son rendement potentiel maximum, surtout sous les climats chauds, en raison de la lenteur du refroidissement. Il existe une relation étroite entre la surface du four, son volume, la température ambiante et la rapidité du refroidissement. Le fours et meules de très grandes dimensions mettent longtemps à refroidir et, si leur coût de construction est élevé, ils représentent une moins bonne rentabilité du capital, en raison de la baisse de production due à la lenteur du refroidissement.

Le fonctionnement du four est contrôlé d'une manière comparable à celui des fours métalliques transportables. La circulation des gaz est assez analogue. Les rendements sont généralement plus élevés en raison de la meilleure isolation thermique, et le rapport plus élevé volume/surface a pour conséquences une meilleure utilisation de la chaleur dégagée par la carbonisation, et un moindre effet de refroidissement Dû au vent et à la pluie qu'avec un four métallique non isolé.

Les fours Missouri sont généralement équipés de thermocouples pour mesurer la température en divers points à l'intérieur du four. C'est un point important avec ces fours de grande dimension, car on peut ainsi détecter rapidement les points froids ou chauds, et les corriger en ouvrant ou fermant les évents répartis à la base du four. Le processus de refroidissement peut également être contrôlé, et on n'ouvrira le four que lorsque la température du charbon aura suffisamment baissé. Cela évite une inflammation spontanée qui dans ces grands fours serait difficile à maîtriser même avec des moyens mécaniques.

Le chargement et le déchargement demandent une équipe de deux hommes utilisant un chargeur frontal et un camion. Un opérateur par poste est suffisant pour contrôler la carbonisation, et si l'on utilise des thermocouples un homme par poste peut surveiller plusieurs fours.

Le cycle de carbonisation dure généralement de 25 à 30 jours, selon la rapidité du refroidissement. Deux fours de 180 m utilisent à peu près la même quantité de bois qu'une batterie normale de sept fours brésiliens, mais en raison de la durée différente du cycle la main-d'oeuvre n'est pas utilisée aussi efficacement que possible, à moins d'avoir une batterie comptant un plus grand nombre de fours. L'utilisation de l'équipement mécanique, également, n'est pas optimal si l'on n'a pas un nombre de fours suffisant pour le faire travailler de manière plus ou moins continue.

La durée du cycle du four Missouri dans un climat chaud est d'au moins un mois, se décomposant comme suit:

Chargement

3 jours

2 hommes + machines

Carbonisation

7 jours

2 hommes travaillant par postes de 12 heures, ou 3 hommes travaillant par postes de 8 heures

Refroidissement

21 jours (min.)

1 homme surveillant à temps partiel

Déchargement

2 jours

2 hommes + machines

La durée totale est de 33 jours. Si l'on ne dispose pas de machines le cycle peut s'allonger à deux mois ou plus.

7.4.4 Emploi du four Missouri dans les pays en développement

Le four type Missouri est, encore aujourd'hui, une méthode importante de fabrication de charbon de bois aux Etats-Unis. La production a atteint en 1958 au Missouri un maximum de 45000 tonnes - ce qui est infime par comparaison avec les tonnages produits par d'autres méthodes dans les pays en développement, mais est suffisant pour attirer l'attention sur cette méthode.

Fig. 9 Four Missouri Volume 150 m3

1. Bouchons d'orifices de sortie de fumée
2. Cheminées
3. Portes en plaques d'acier

Le plus grand avantage du four Missouri par comparaison avec les fours en briques est la possibilité - en fait la nécessité - de chargement et de déchargement mécaniques.

Ses inconvénients sont son coût élevé dû à l'emploi d'une grande quantité d'acier et de beton, et son manque de mobilité. A la différence des fours en briques, on ne peut le démolir et le reconstruire plus loin. Il faut donc disposer d'un approvisionnement en bois pour dix ans à distance économique de transport des fours Cela représente, pour une batterie de six fours de 180 m, de l'ordre de 120000 m3. Il faudrait donc réserver pour dix ans environ 4000 ha de forêt pouvant produire 30 m/ha pour assurer l'approvisionnement en bois. Une telle superficie correspond à une distance moyenne de transport de 2,5 km, ce qui est raisonnable.

Les fours de type Missouri ou équivalent seraient plus acceptables si la construction en était plus légère et par conséquent moins chère, et s'ils pouvaient être refroidis plus rapidement, en recourant éventuellement à l'injection d'eau. L'industrie brésilienne mène une expérimentation dans cette voie. On a réalisé un refroidissement plus rapide et une construction plus simple aux Etats-Unis, en faisant des fours avec des panneaux isolants revêtus de tôle d'acier. Malheureusement le prix de l'acier reste élevé, ce qui est un obstacle pour les pays en développement où on doit l'importer.

D'un point de vue de transfert de technologie' l'expérience du projet FAO/PNUD au Ghana est intéressante. On y a construit un four Missouri, dont le fonctionnement est techniquement un succès. Les problèmes restent le coût élevé de construction, et l'équipement mécanique de chargement et déchargement.

Photo 23. Batterie de fours hémisphériques, vieux de plus de 8 ans et toujours en service. Los Tigres, Argentine. Photo H. Booth.

7.5 Production de charbon de bois centralisée


7.5.1 Cycle de fonctionnement d'une batterie de sept fours
7.5.2 Instructions pour le fonctionnement des fours en ruche d'abeilles
7.5.3 Carbonisation en fours semi-enterrés


Les fours brésiliens en ruche d'abeilles sont groupés en batteries de 7, 14, etc. (toujours un multiple de 7), et les fours de type semi-enterré en batteries de 14, 28 etc. (multiple de 14).

Fig. 10 Cycle de carbonisation du four ruche d'abeilles

Déchargement du charbon et chargement du bois

8 heures

Carbonisation

96 heures

Refroidissement

88 heures

Total

192 heures = 8 jours

Chaque batterie est servie par deux hommes seulement, un charbonnier et un aide.

Un chantier de production centralisé se compose d'une ou plusieurs batteries de fours, chacune étant complète avec l'infrastructure nécessaire pour travailler en continu, telle que parc à bois, aire de stockage de charbon, moyens de chargement pour le charbon, voies d'accès, approvisionnement en eau, etc.

7.5.1 Cycle de fonctionnement d'une batterie de sept fours

Le cycle de fonctionnement de chacun des sept fours part de jours successifs. Si le four no. 1 est déchargé et rechargé (8 heures) un lundi, le four no. 2 sera déchargé et rechargé le mardi, etc. Le four no. 1 sera prêt à être déchargé et rechargé le mardi suivant, le four no. 2 le mercredi, etc.

Le dimanche est jour de repos, et aucun déchargement ou chargement n'y est fait. Les fours qui devraient être déchargés le dimanche le sont le lundi suivant. Le cycle recommence par conséquent un lundi pour chaque four à tour de rôle toutes les six semaines.

Tableau 6: Caractéristiques des fours brésiliens en ruche d'abeilles et semi-enterré

Type de four

Volume de bois en stères

Rapport Réel/Nominal

Volume de charbon par fournée (m3)

Rendement moyen Bois/charbon (en volume)

Nominal

Réel

Four en briques en ruche d'abeilles de Ø5 m

48,94

37,34

76%

17,8

2,1 : 1

Four de type semi-enterré de Ø4 m

24, 80

17, 40

70%

7,9

2,2 : 1

Les rendements indiqués ci-dessus sont ceux obtenus jusqu'à 1975 environ. Depuis 1976, grâce à une recherche et une expérimentation continues, une meilleure organisation du travail, une formation des ouvriers charbonniers, et une meilleure supervision, les rendements dans les entreprises privées de carbonisation n'ont cessé de progresser passant à 1,9: 1 (53%), 1,8: 1 (55%),1,7: 1 (59%), et enfin 1,6: 1 (62%) récemment en opération normale (1977).

La production d'une batterie de 7 fours ruche d'abeilles en 30 jours est de 30 x= 26,25 fournées, arrondi à 26. Chaque fournée étant de 17,8 m de charbon la 8 production mensuelle de charbon de bois est de 17,8 x 26 = 462,8 m, et la production annuelle de 17,8 x 26 x 12 = 5553,6 m3.

7.5.2 Instructions pour le fonctionnement des fours en ruche d'abeilles

(i) Chargement

Tout d'abord placer deux billes à l'intérieur et en travers de la porte de déchargement, ensuite l'obturer avec une maçonnerie de briques sans mortier. On en badigeonnera l'extérieur avec une boue liquide argileuse, mais seulement une fois le chargement terminé.

Le chargement peut alors commencer. Les billes sont placées verticalement, les plus minces contre la paroi du four, les plus grosses vers le centre où la température sera plus élevée. L'extrémité taillée en biseau est posée sur le sol pour faciliter la circulation des gaz. Les bois empilés sous la coupole doivent être disposés horizontalement pardessus ces bois verticaux. Il faut bien remplir jusqu'à la coupole, en serrant les bois le plus possible pour charger le four au maximum. Près de l'orifice d'allumage on empilera le bois moins serré, et on placera du petit bois d'allumage. S'il y a du bois altéré, il faudra le placer près de l'ouverture de déchargement, car le charbon qu'il produit a tendance à s'enflammer facilement, et si cela se produisait on pourrait le sortir rapidement lors du défournement. Fermer la porte de chargement de la même façon que la porte de déchargement.

Lorsque le four est prêt à être allumé, tous les évent et orifices doivent être maintenus ouverts.

(ii) Allumage du four

Introduire par l'orifice central de la coupole une pelletée de charbon ardent. A la saison des pluies il pourra être nécessaire d'aider l'allumage avec du pétrole ou de l'huile de vidange. Cet orifice ne doit être utilisé que pour l'allumage, car la carbonisation doit progresser du sommet vers le bas. Au début de la phase d'allumage il sort du trou d'allumage une fumée d'abord blanche, devenant foncée après quelques minutes. Cela indique que le feu a pris. L'orifice doit alors être obturé avec une brique colmatée avec de l'argile liquide.

Photo 24. Déchargement d'un four en briques à Salta, Argentine, à l'aide d'une fourche qui permet de séparer le poussier. Photo M. Trossero.

(iii) Carbonisation

Immédiatement après l'allumage, de la fumée sort par les orifices de la coupole, tout d'abord blanche, ce qui signifie que la zone de carbonisation s'étend. Les orifices de sûreté des murs et ceux de la coupole sont alors obturés.

Les cheminées commencent à fumer. Le four fonctionne à partir de ce moment exclusivement avec de l'air fourni de manière contrôlée par les évents, et avec le tirage des cheminées qui rejettent les gaz provenant de la carbonisation.

La carbonisation progresse du sommet vers le bas, et également dans le sens horizontal. Les cheminées doivent être surveillées pour s'assurer qu'elles fonctionnent uniformément. On y parvient en réglant le débit de l'air entrant par les orifices d'admission, par le changement d'inclinaison d'une brique posée devant l'orifice.

L'opérateur contrôle la carbonisation en observant la couleur de la fumée qui sort des cheminées. Tant qu'elle se poursuit, la fumée reste blanche. Elle devient ensuite d'un blanc bleuté, puis d'un bleu transparent. Lorsque cette couleur devient stable, les évents doivent être fermés.

A la fin de la carbonisation la fumée devient incolore et limpide. Lorsqu'une zone de fumée incolore d'une vingtaine de centimètres de hauteur apparaît au sommet des cheminées, celles-ci doivent être bouchées.

Les cheminées ne présentent pas simultanément la même couleur de fumée, même si l'on a pris toutes les précautions voulues. Il est par conséquent nécessaire de régler l'un après l'autre l'ouverture des évents, et fermer les cheminées correspondantes. Elles continueront à émettre de la fumée pendant un certain temps après que les évents auront été obturés. Il ne faut pas les fermer trop tôt, afin d'éviter d'avoir des morceaux de bois non carbonisés.

Une fois bouchées les cheminées, le processus de carbonisation est terminé. Après avoir bouché tous les orifices, il faut les badigeonner avec de l'argile liquide pour empêcher toute entrée d'air.

(iv) Refroidissement

Le four est badigeonné entièrement de boue argileuse liquide pour colmater toutes les ouvertures et fissures. Cette opération doit être répétée de trois à six fois; mieux elle est faite, et plus le refroidissement sera rapide. Lorsque l'étanchéité du four n'est pas totalement réalisée, l'air continuera à pénétrer et le feu ne pourra pas s'éteindre, d'où une perte de charbon qui sera ainsi consumé, et une augmentation de la teneur en cendres.

(v) Déchargement du four et aération du charbon

Lorsque le four est suffisamment refroidi, on l'ouvre et on détourne le charbon. L'opérateur reconnaît la température correcte - 60° - 70°C - en tâtant la paroi de la porte avec le dos de la main.

Il ne faut jamais ouvrir un four tant qu'il n'est pas suffisamment refroidi, afin d'éviter une inflammation spontanée. Le feu pourra alors être éteint avec de l'eau, mais dans la plupart des cas il faudra refermer immédiatement le four. Il en résulte toujours une perte de charbon. On doit avoir sous la main une quantité d'eau suffisante, au moins un fût de 200 litres, avant d'ouvrir le four. L'espace où le charbon sera déposé devant le four doit être bien nettoyé. Il ne faut jamais placer le charbon frais par dessus du charbon plus ancien. Le four est ouvert rapidement; l'opérateur note d'après l'odeur des gaz qui s'échappent s'il y a encore du feu quelque part, et dans ce cas il l'éteint par aspersion d'eau.

Les briques de la porte sont placées sur le côté pour ne pas gêner le déchargement, qui se fait manuellement avec une grande fourche spéciale et un panier. Il est bon de séparer les morceaux de bois non carbonisés, les briques, la cendre, le poussier et les débris d'argile. Les fumerons sont mis de côté pour être remis dans la fournée suivante. Le charbon sorti est mis en tas disposé de façon à permettre une parfaite aération. Le charbon frais absorbe de l'oxygène; cette réaction chimique s'accompagne d'une élévation de température qui peut provoquer une inflammation spontanée. C'est pourquoi on doit laisser ''reposer" le charbon à l'air libre pendant deux jours avant de le transporter vers un entrepôt ou une usine sidérurgique. Il est naturellement difficile de contrôler si cette opération est toujours effectuée avec le soin nécessaire. Aux fins de mois en particulier, lorsque les charbonniers sont soucieux de compléter leur contingent mensuel de production, il arrive fréquemment que le charbon soit insuffisamment aéré, d'où risque d'inflammation.

Les tas de charbon frais ne doivent pas avoir plus de 1,50 m de hauteur, afin de permettre un bon contact avec l'air extérieur.

Après déchargement, on nettoie le sol du four, et on débouche tous les orifices et les cheminées et on les débarrasse des résidus de carbonisation. Tout l'intérieur du four se recouvre d'une épaisse couche de goudron durci ou de poix qui se condense et s'accumule lors des fournées successives, et protège les briques.

7.5.3 Carbonisation en fours semi-enterrés

L'opération est la même que pour les fours en ruche d'abeilles, mais elle est plus simple parce qu'il n'y a qu'un orifice d'entrée d'air à surveiller et à régler. Ces fours sont souvent implantés dans des endroits difficiles d'accès et dépourvus de routes, et le charbon de bois produit doit être transporté à dos de mulet jusqu'à la route la plus proche ou à un point de chargement. Les points de comparaison suivants peuvent permettre d'orienter judicieusement le choix entre les deux types de fours:

Four en briques en ruche d'abeilles

Four semi-enterré

N'exige pas une topographie particulière

Exige une pente naturelle ou artificielle

Exige souvent des mouvements de terre importants pour préparer une aire plate de dimension suffisante

N'exige que très peu de terrassement

Aucune exigence particulière en ce qui concerne la texture ou la composition du sol. Dans le cas d'un sol sableux, il faut faire la sole avec de l'argile rapportée.

La texture et la composition du sol sont importantes. S'il est très argileux il se craquèle sous l'effet de la chaleur de carbonisation, et il se produira des entrées d'air parasites. S'il est sableux, le mur du four s'éboulera facilement, et il retiendra trop la chaleur pour permettre un refroidissement rapide.

Durée de vie: au minimum 1200 m3 de charbon de bois.

Durée de vie: au minimum 350 m3 de charbon de bois.

Les fours doivent être construits sur une plateforme aménagée de façon à permettre de charger le charbon après repos directement dans les camions, qui doivent arriver à un niveau plus bas (voir fig. 10).

Les fours doivent être construits le plus près possible des coupes de bois de carbonisation.

Distance maxima de transport du bois: 5 km

Distance maxima de transport du bois: quelques centaines de mètres.

Main-d'oeuvre: 2 hommes par batterie de 7 fours

Main-d'oeuvre: 2 hommes par batterie de 14 fours.

Les charbonniers doivent avoir acquis un grand savoir-faire pour être capables de surveiller et de régler correctement les 18 évents du four. Une formation spéciale de la main-d'oeuvre est recommandée.

Conduite aisée. Une seule entrée d'air à contrôler. Pas de formation spéciale nécessaire.


Page précédente Début de page Page suivante