Previous Page Table of Contents Next Page


IV CONSTRUCTION AND EQUIPMENT

4.1 General specification

This section comprises a brief description of the site; general specifications for construction and for selected items of equipment; a list of the buildings; a description and drawing of each building together with cost estimates in US$ at 1975 exchange rates 1 and a layout of furniture, equipment, machinery, and sketches of furniture. Lighting, piping and sewage disposal are shown only for the milk plant. The following is not included in cost estimates:

  1. purchase and development of the site;
  2. connection to mains electricity and water; water storage; fire precautions; and any special needs such as air-conditioning;
  3. carriage insurance and freight of machinery and equipment;
  4. housing for staff;
  5. an allowance for contingencies (except for 10 percent in construction costs).

1 8.4 Kenya Shillings to 1 US$

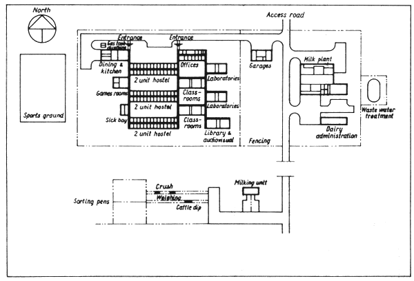
In drawing 01 a model site layout is shown comprising all buildings required for a full-scale dairy training centre. In the event that a simpler version is required this drawing could serve as a general guide for arranging the buildings on the site, particularly if expansion is envisaged in the future.

Costings have been based on the following specifications and these will have to be adapted to local conditions. Only a brief description of construction requirements has been given as it is considered that Ministry of Workd specifications will generally be followed.

Standard Length

All buildings have been designed on a standard module length of three meters.

Foundations

Foundations are excavated to a depth of 90 cm and comprise concrete blocks layed on a concrete strip. Where required, protection against earthquakes or earth tremors should be incorporated.

Walls

These may be constructed from:cement blocks
bricks
natural stone cut to size
prefabricated material

Roof construction

Untreated timber is used for roof construction. If local conditions necessitate the use of treated timber, the estimate will have to be increased.

For covering the roof corrugated asbestos sheets or best quality galvanized or painted corrugated iron is used.

Ceilings

Ceilings are lined with cellotex boards or similar material.

Floors

All floors are finished with 150 mm of concrete followed by 40 mm of screed. Terrazo of grano finish is used where specified in the drawings and where floor covering is included vynil tiles are used.

Windows

Metal windows are used throughout with panes fitted in putty.

Doors

Flush doors are used except where otherwise specified.

01 Site layout 1:2000

Sanitation

Porcelain is used for toilets and stainless steel for kitchen units, etc. galvanized iron piping is used for the water supply. Sewage piping below ground is of cast iron and above ground either cement pipes or pitch fibre pipes.

Electricity

All wires are enclosed in PVC conduits and wherever possible fluorescent lighting is used. Provision for automatic fusing has been included for all units.

Paint and emulsion

Walls and ceilings should be given two coats of plastic emulsion. In areas where traffic is likely to be heavy, a further coat of oil paint should be applied to a height of 100 cm.

Curtains

Curtains are hung from a standard rail system and made of cotton.

Equipment

In the kitchen and laboratories stainless steel is used in preference to other materials.

Furniture

Drawing and specifications are given for the construction of furniture. If preferred, this may be purchased locally.

4.2 Summary of Estimated Cost (May 1976) of buildings, furniture and equipment

Drawing No.Essential BuildingsFirst Level Training CentreSecond Level Training Centre
Recommended No. of unitsEstimated cost, US$Recommended No. of unitsEstimated cost, US$
02Classrooms, 40 place unit138,700277,400
03Laboratories, 20 place unit175,3002150,600
04Library & audio-visual rooms139,600139,600
05Hostel, 20 place unit2106,6006319,800
06Dining hall, 44 place unit & kitchen192,400192,400
07Sick bay, 4 place unit116,400116,400
08Games rooms122,900122,900
09Offices157,200157,200
10Garages133,300133,300
Sub-total 482,400 809,600
Optional Buildings    
15Milk plant, administration building--128,700
16Milk plant--11,100,500
24Milk collecting Centre126,700  
25Milking unit, hand (6–10 cows)12,500  
 Milking unit, mechanized (20–40 cows)  114,900
  511,600 1,953,700
 (say US$ 520,000)(say US$ 2,000,000)

Previous Page Top of Page Next Page