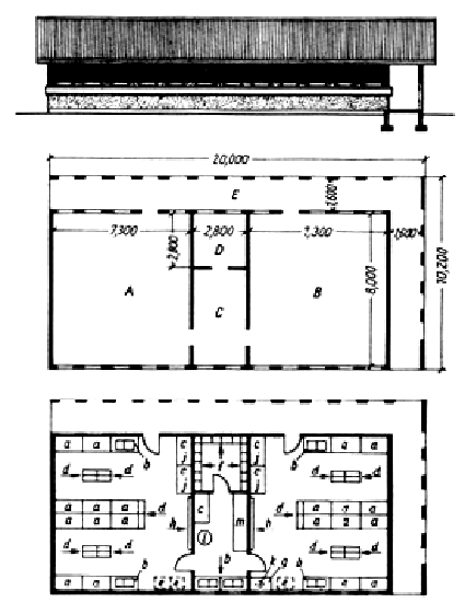
Description - The classroom is designed as a unit of two classrooms each with a capacity for 20 students (drawing 02) and each has a store for educational material. Toilets and cleaning facilities are common to both classrooms so that when only one classroom is to be built that part of the building containing the common facilities should be selected.
Assuming three or four lectures a day, one held in each class, the unit of two classroom is sufficient for an intake of 60 to 80 students.
Cost estimates
| US$ | ||
| Construction 250 m2 at US$ 118 m2 | 29,500 | |
| Electricity | 1,000 | |
| Plumbing | 2,100 | |
| Sewage | 400 | |
| Total building costs | 33,000 | |
| Furniture | 4,600 | |
| Equipment | 1,100 | |
| Grand total | 38,700 | |
Specifications
Electricity - installed power 3.5 Kw.
19 mounted single tube fluorescent fittings
6 weatherproof tunsten fittings
6 5A socket outlets
Plumbing
3 bowl urinals
4 wash basins with cold water taps
3 water closets
piping
drainage
1 water storage tank
Sewage
1 gully trap
2 manholes
100mm dia. cast iron piping
100mm dia. pitch fibre piping
Furniture
40 students' desks
42 school chairs
2 teachers' desks
4 running metres of light shelving
2 blackboards 120cm × 480cm
2 white screens
2 notice boards 120cm × 240cm
30m of 120cm curtain material
Equipment
2 overhead projectors
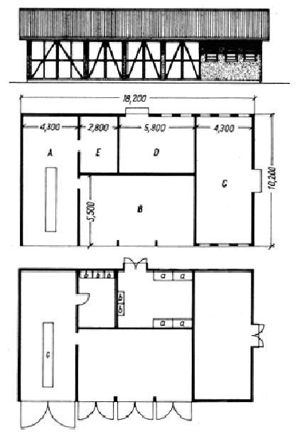
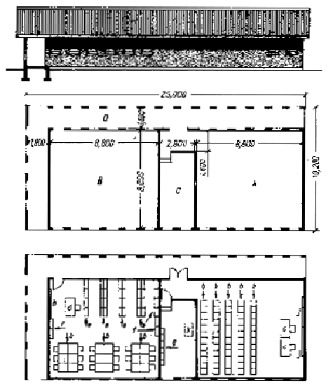
Description - The laboratory unit (drawing 03) is designed to house both a chemistry and a microbiology laboratory each with working space for ten students. Between the two laboratories common facilities for storage, media preparation and wash-up have been included.
Each work space has easy access to water, electricity, gas and washing-up facilities. Room is allowed for the students to have a personal issue of general laboratory equipment and easy access to the specialized laboratory equipment.
The equipment included for the laboratory unit is sufficient to carry out the following:
The equipment will have to be supplemented to some degree if diploma level courses are to be run.
Cost estimate
| US$ | ||
| Construction 204 m2 at US$ 130 m2 | 26,700 | |
| Electricity | 1,900 | |
| Plumbing | 4,100 | |
| Sewage | 700 | |
| Total building costs | 33,400 | |
| Furniture | 6,000 | |
| Equipment | 36,000 | |
| Grand total | 75,300 | |
![]() | ![]() | |
| Area (m2) | ||
A Classrooms | 149.4 | |
B Stores | 12.4 | |
C Toilets | 20.0 | |
D Cleaner's room | 5.7 | |
E Corridors | 62.6 | |
| Total area | 250 m2 | |
| Furniture and Equipment | ||
a Students' tables and chairs | ||
b Teachers' tables and chairs | ||
c Blackboard | ||
d Shelves | ||
02. Classrooms 1:200
![]() | ![]() | |
| Area (m2) | ||
A Microbiology | 63.0 | |
B Chemistry | 63.0 | |
C Wash-up room | 15.2 | |
D Store | 9.0 | |
E Corridors | 53.8 | |
| Total area | 204 m2 | |
| Furniture and Equipment | ||
a Laboratory table type 1 | ||
b Laboratory table type 2 | ||
c Laboratory table type 3 | ||
d Laboratory table type 4 | ||
e Trolley | ||
f Shelves | ||
g Cupboard | ||
h Blackboard | ||
j Incubators | ||
k Water heater | ||
l Autoclave | ||
m Concrete slab | ||
03. Laboratories 1:200
Laboratory specifications
Electricity - installed power 20.0 Kw.
18 mounted single tube fluorescent fittings
3 weatherproof tungsten fittings
25 5A socket outlets
5 20A cord outlets
Plumbing
20 vulcathene sinks
20 vulcathene cold water taps
6 stainless steel sinks with draining boards
6 hot and cold water mixer taps
acid resistant drainage with 20 gas outlets
1 water storage tank
Sewage
7 gully traps
5 manholes
100mm. dia. concrete or pitch fibre piping
Furniture
20 type 1 working tables
6 type 2 working tables
1 type 2A working table
4 type 3 working tables
20 type 4 storage units
3 trolleys
24 high stools
2 blackboards
7 running metres of four-tier shelving
20 m of 9cm plastic curtaining
3 m concrete slab
Equipment
3 incubators
1 incubator/refrigerator
1 autoclave
1 sterilizing oven
2 laboratory balances
4 thermostatically controlled water baths
10 microscopes
2 Gerber centrifuges
1 set of automated milk testing equipment recording fat, protein and
total solids
1 apparatus for methylene blue test
1 scale to determine the moisture content of butter
1 apparatus for freezing point determination
1 water distiller
Glassware, chemicals and substitutes sufficient for one year comprising: titration sets, sediment testers, filter pads, petri dishes, test tubes, rubber mats, measuring flasks, measuring cylinders, pipettes, Erlenmeyer flasks, evaporation dishes, funnels, beakers, spatulas, reagent flasks, drip bottles, mortars, stoppers, special butyrometer stands, thermometers, phosphatase test equipment, Durham tubes, slides and cover glasses, lactometers.
Phenolphthalein, sodium hydroxide, resazurin, methylene-blue, phosphatase reagents, alizarin, alcohol, hydrochloric acid, sulphuric acid, nitric acid, amylalcohol, paraphenylendiamin, hydrogen-peroxide, litmus, immersion oil, sodium carbonate.
Milk agar, plate-count agar, violet red bile agar, potato dextrose agar, trypsin digest agar, MacConkey broth.
Description - The library (drawing 04) incorporates a visual-aid room which can accomodate up to 60 students, a film operator's room and reading space for 18 students.
The visual aid room is sufficiently equipped for holding seminars and conferences and the library will house about 4,000 books and space is provided for newspaper and magazine stands. The complete unit is sufficient to cope with an intake of 60 to 80 students.
Cost Estimate
| US$ | ||
| Construction 235 m2 at US$ 118 per m2 | 27,700 | |
| Electricity | 1,100 | |
| Plumbing | ||
| Sewage | ||
| Total building costs | 28,800 | |
| Furniture | 7,900 | |
| Equipment | 2,900 | |
| Grand total | 39,600 | |
Library and Audio-visual Room specifications
Electricity - installed power 5.0 Kw.
12 mounted single tube fluorescent fittings
5 mounted twin tube fluorescent fittings
3 weatherproof tungsten fittings
8 5A socket outlets
1 20A double pole switch with cord outlets
2 loudspeaker outlets
Plumbing - nil
Sewage - nil
Furniture
18 students' desks
80 school chairs
2 conference tables
1 office desk
1 office chair
32 library-type bookcases
4 shelves for newspapers
3 running metres light storage shelving
1 blackboard 120 cm × 480 cm
1 notice board 120 cm × 240 cm
6 m of 120 cm light-proof curtain material
12 m of 120 cm cotton curtain material
Equipment
1 16mm film projector with two loudspeakers
1 screen - 1.5 m × 2 m
1 slide projector
![]() | ![]() | |
| Area (m2) | ||
A Audio-visual room | 80.9 | |
B Library | 74.7 | |
C Operator's room | 19.5 | |
D Corridor | 59.5 | |
| Total area | 235 m2 | |
| Furniture and Equipment | ||
a Student's desk | ||
b School chairs | ||
c Conference table | ||
d Office desk with chair | ||
e Library bookcase | ||
f Newspaper shelves | ||
g Light storage shelves | ||
h Notice board | ||
j Blackboard | ||
k Film projector | ||
04. Library and audio-visual room 1:200
Description - the hostel (Drawing 05) contains 10 double rooms, a store, a laundry room and two toilets. Each room is furnished with tables, chairs, beds and cupboards. The laundry room allows hostel occupants to wash their personal laundry.
Cost estimate
| US$ | ||
| Construction 235 m2 at US$ 170 m2 | 40,000 | |
| Electricity | 2,000 | |
| Plumbing | 2,400 | |
| Sewage | 700 | |
| Total building costs | 45,100 | |
| Furniture | 7,700 | |
| Equipment | 500 | |
| Grand total | 53,300 | |
Hostel Specifications
Electricity - installed power 5.5 Kw.
36 Standard light fittings
6 Weatherproof tungsten fittings
14 5A socket outlets
1 20A cord outlet
Plumbing
3 Sinks
3 Water closets
3 Wash basins
3 Bowl urinals
3 Shower fittings
1 Water storage tank
13 Taps, plus piping
Sewage
1 Gully trap
4 Manholes
100 mm dia. cast iron piping
100 mm dia. pitch fibre or concrete piping
Furniture
20 Tables
20 School chairs
20 Beds
20 Foam mattresses 75 cm × 200 cm
20 Built-in cupboards
7 Running metres heavy storage shelving
7 m of 90 cm plastic curtain material
90 m of 120 cm cotton curtain material
25 Blankets
80 Sheets
80 Towels
Equipment
1 225 1 (50 gall) water heater
3 Irons
| ![]() | |
| Area (m2) | ||
A Students' rooms | 128.0 | |
B Toilets and baths | 25.8 | |
C Laundry | 12.9 | |
D Store | 12.9 | |
E Corridor | 55.3 | |
| Total area | 235 m2 | |
| Furniture and Equipment | ||
a Tables and chairs | ||
b Built-in cupboards | ||
c Beds | ||
d Water heater | ||
e Heavy storage shelves | ||
f Concrete slabs | ||
05. Hostel for 20 students 1:200
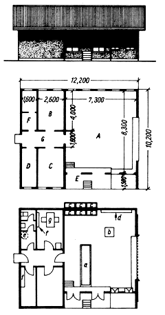
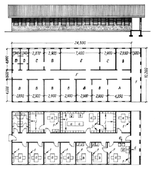
Description - The unit comprises a dining hall kitchen, office, two stores and a combined laundry and ironing room (Drawing 06). The dining hall can accomodate 42 students and is furnished to the same standard as the hostel and classrooms.
The laundry and ironing room is equipped with one heavy duty washing machine, a tumbler dryer, a spin dryer, three ironing boards and cupboard space for finished laundry. The comparatively large laundry area is designed for washing working clothes issued to students.
The cooking island in the kitchen is equipped with two stainless steel cooking pans, one tea and one coffee urn, a potato frier and two four-burner stoves with ovens. All cooking equipment is gas-operated. Ancillary equipment includes a potato peeler and a heated cupboard for keeping food warm, two refrigerators with a total capacity of 800 litres and a deep freeze with a capacity of 400 litres.
For food preparation the kitchen has two bays, one for vegetables and one for meat; a third bay is the washing-up area.
The kitchen and dining hall layout are designed for a cafetaria system of food service.
The office is placed for ease of control over catering and the reception area has facilities for the control of purchasing and a stainless steel table for sorting.
The storage area is divided into a vegetable store and a dry goods store. One wall of the vegetable store is fitted with two tiers of weldmesh baskets and the two longer walls are fitted with four-tier shelving.
Toilet facilities are solely for kitchen staff.
The unit is sufficient for an intake of 40 to 80 students.
Cost estimate
| US$ | ||
| Construction 265 m2 at US$ 157 m2 | 41,600 | |
| Electricity | 8,100 | |
| Plumbing | 2,000 | |
| Sewage | 1,000 | |
| Total building costs | 52,700 | |
| Furniture | 7,900 | |
| Equipment | 31,800 | |
| Grand Total | 92,400 |
Dining Hall and Kitchen Specifications
Electricity - installed power 25.0 Kw.
23 Mounted single tube fluorescent lights
18 5A socket outlets
3 Weatherproof tungsten fittings
1 20A cord outlets
1 Outlet for fan
1 15A triple pole and neutral switch
1 13A spur unit switched and fused with pilot lamp
1 Mains distribution meter
Plumbing
3 Wash basins
1 Water closet
2 Mixer taps
5 Taps
Piping
2 Water storage tanks
Gas installation and 1 ton capacity gas tank
Sewage
3 Gully traps
1 Grease trap
4 Manholes
100 mm dia. cast iron piping
100 mm dia. pitch fibre or concrete piping
Furniture
1 Office table
2 School chairs
22 Students' desks
44 School chairs
1 Filing cabinet
1 Library type bookcase
7 Kitchen tables - type 1
2 Kitchen tables - type 2
2 Kitchen tables - type 3
1 Kitchen table - type 4
Ironing boards
Linen cupboard
3 Vegetable racks
10 Running meters of heavy storage shelving
1 Hot-food cupboard
1 Rack for Kitchen utensils
1 Chopping block
1 Crockery cupboard
30 m of 120 cm cotton curtain material
Equipment
1 Potato fryer
2 Gas stoves
2 Boiling pans
2 Urns (tea and coffee)
Sterilizing tank and 4 stainless steel baskets
1 Electric mixer
1 Extractor hood
1 Potato peeler
2 Refrigerators 400 l each
1 Deep freeze 400 l
1 Washing machine
1 Spin dryer
1 Tumbler dryer
1 Large weighing scale
1 90 l (20 gal) water heater
3 Irons
4 10-litre pots with lids
8 5-litre pots with lids
4 Pans
4 Ladles
8 Bowls, glass and plastic
1 Potato chipper
1 Chopper
4 Carving knives
2 Strainers
100 Sets of plates
(large, soup and small)
100 Cups and saucers
100 Sets of knives, forks, spoons and teaspoons
100 Glasses
20 Water jugs
10 Sets of dishes and bowls
50 Wooden trays
50 Dish towels
50 Tablecloths
Description - The Sick Bay (Drawing 07) can accommodate four students or, when not in use, it could be used as a guest house.
There are two double rooms, two separate toilets, a doctor's room and a waiting room.
Cost estimate
| US$ | ||
| Construction 81 m2 at US$ 157 m2 | 12,700 | |
| Electricity | 500 | |
| Plumbing | 1,200 | |
| Sewage | 500 | |
| Total building costs | 14,900 | |
| Furniture | 1,300 | |
| Equipment | 200 | |
| Grand Total | 16,400 |
Sick Bay Specifications
Electricity - Installed power 2.0 Kw.
4 Mounted single tube fluorescent lights
5 Weatherproof tungsten fittings
4 5A socket outlets
1 20A cord outlets
Plumbing
2 Wash basins with cold water taps
2 Water closets
2 Shower fittings
1 Sink with hot and cold water taps
Piping
1 Water storage tank
Sewage
2 Gully traps
4 Manholes
100 mm dia. cast iron piping
100 mm dia. pitch fibre or concrete piping
Furniture
4 Beds
4 Foam mattresses 75 cm × 200 cm
10 School chairs
4 Cupboards
Working top
6 m of 90 cm plastic curtain
24 m of 120 cotton curtain material
4 Blankets
8 Sheets
8 Towels
Equipment
1 90-litre (20 gal) water heater
![]() | ![]() | |||
| Area (m2) | ||||
| A Dining hall | 91.8 | E Reception area | 21.8 | |
| B Kitchen | 61.2 | F Stores | 23.4 | |
| C Office | 12.1 | G Toilet | 2.3 | |
| D Laundry | 33.1 | H Corridor | 19.4 | |
| Total area 265m2 | ||||
| Furniture and Equipment | ||||
| a Weldmesh rack | m Kitchen island | |||
| b Shelves | n Refrigerator | |||
| c Chopping block | o Deep freeze | |||
| d Kitchen table | p Potato peeler | |||
| e Hot cupboard | r Washing machine | |||
| f Kitchen table and sink | s Spin drier | |||
| g Rack for utensils | t Tumbler dryer | |||
| h Ironing boards | u Water heater | |||
| j Cupboard for linen | w Scale | |||
| k Cupboard for crockery | z Tables and chairs | |||
| l Sink | ||||
06. Dining hall and kitchen 1:200
![]() | ![]() | |
| Area (m2) | ||
A Bedrooms | 25.4 | |
B Waiting room | 10.9 | |
C Doctor's room | 10.9 | |
D Toilets | 7.8 | |
E Corridor | 25.6 | |
| Total area | 81 m2 | |
| Furniture and Equipment | ||
a Bed | ||
b Chair | ||
c Cupboard | ||
d Water heater | ||
07 Sick bay 1:200
Description - The unit (Drawing 08) comprises three rooms, one for darts, one for table tennis and one for television viewing.
The darts room is equipped with two dart boards, ten sets of darts, two scoreboards and special light fittings over the dart boards. A fixed bench is fitted along the free walls.
The table tennis room has two standard size tables, four nets, eight bats and eight dozen balls. Fixed benches are fitted along the window walls.
The TV room has a 26-inch black and white television set and 28 chairs.
It is considered that this unit is sufficient to cater for the needs of 60 to 80 students.
Cost Estimate
| US$ | ||
| Construction 143 m2 at US$131 m2 | 18,700 | |
| Electricity | 600 | |
| Plumbing | - | |
| Sewage | - | |
| Total building costs | 19,300 |
![]() |
![]() | |
| Area (m2) | ||
A Table tennis | 61.2 | |
B T.V. room | 31.1 | |
C Darts | 31.1 | |
D Corridor | 19.4 | |
| Total area | 143 m2 | |
| Furniture and Equipment | ||
a Chairs | ||
b Fixed benches | ||
c Table tennis table | ||
d Television | ||
e Dart board | ||
f Score board | ||
08. Games rooms 1:200
| US$ | ||
| Furniture | 2,800 | |
| Equipment | 800 | |
| Grand total | 22,900 |
Specifications
Electricity - Installed power 1.5 Kw
10 mounted single tube fluorescent lights
6 5A outlet sockets
1 outlet for television aerial
Plumbing
nil
Sewage
nil
Furniture
28 School chairs
9 Fixed benches
2 Table tennis tables
32 m of 120 cotton curtain material
Equipment
1 Television
2 Dart boards
10 Sets of darts
2 Score-boards
4 Table tennis nets
8 Table tennis bats
8 dozen table tennis balls
Description - The Office block comprises the following rooms (Drawing 09):
![]() | ![]() | |
| Area (m2) | ||
A Principal's office | 19.0 | |
B Offices | 101.4 | |
C Stores | 25.4 | |
D Toilet | 12.8 | |
E Printing room | 31.5 | |
F Corridor | 60.0 | |
| Total area | 250 m2 | |
| Furniture and Equipment | ||
a Desks and chairs | ||
b Typists' desks and chairs | ||
c Library bookcases | ||
d Easy chairs | ||
e Small table | ||
f Filing cabinets | ||
g Duplicator | ||
h Photocopy machine | ||
j Shelves | ||
09. Office building 1:200
The offices are equipped with furniture as outlined in the specifications.
A switchboard with 10 extensions is installed in one of the typists' offices. The extensions are distributed as follows:
| Principal's office | - one extension |
| Teachers' offices | - four extensions |
| Administrative office | - one extensions |
| Office in boarding unit | - one extension |
| Office in model milk plant | - one extension |
| Available as required | - two extensions |
The stores are equipped with four-tier shelving all around the walls giving approximately 30 m of shelving space in each store.
The printing room installation consists of a duplicating machine and a photocopying machine. A large table in the middle of the room and a two-tier shelving unit on the wall between the corridor and the printing room will facilitate the assembly of reports, lecture notes, etc.
The end wall between the administration office and the printing room has a fivetier shelving unit for storage of paper, stencils, etc. Shelves are also shown for other available wall space and may be incorporated if desired.
Office accommodation as described is considered sufficient for an intake of 60 to 80 students. By doubling up the offices accommodation would be sufficient for an intake of 120–140 students.
Junior personnel should be accommodated within their respective disciplines, e.g. the demonstrator in laboratory techniques should be accommodated in the laboratory.
Cost Estimate
| US$ | ||
| Construction 250 m2 at US$144 m2 | 36,000 | |
| Electricity | 1,200 | |
| Plumbing | 900 | |
| Sewage | 500 | |
| Total building costs | 38,600 | |
| Furniture | 9,000 | |
| Equipment | 9,600 | |
| Grand total | 57,200 |
Specifications
Electricity - Installed power 4.0 Kw
20 mounted single tube fluorescent lights
1 Weatherproof tungsten fitting
1 Electric clock
15 5A socket outlets
Plumbing
2 Wash basins with cold water taps
2 Water closets
1 Water storage tank
Piping
Sewage
2 Manholes
100 mm dia. cast iron piping
100 mm dia. pitch fibre or concrete piping
Furniture
7 Office desks
5 Office chairs
2 Typists' desks
2 Students' desks
2 Teachers' desks
18 Library bookcases
4 Easy chairs
1 Small table
5 Steel filing cabinets
1 Safe
31 Running metres of four-tier light storage shelving
42 m of 120 cm cotton curtain material
Equipment
2 Electric typewriters
1 Duplicator
1 Photocopy machine
1 Switchboard with 10 extensions
Office supplies
Description - The unit (Drawing 10) comprises a garage for a 30-seater bus, space to garage a 1-½ ton pickup, a covered VW type pickup for transport of dairy products and a saloon car. A repair pit is built into the bus garage.
A demonstration hall with a floor space of 50 m2 is also included in the unit, as a workshop and a store.
![]() | ![]() | |
| Area (m2) | ||
A Bus garage | 46.9 | |
B Car garage | 50.4 | |
C Demonstration room | 46.9 | |
D Workshop | 27.6 | |
E Store | 13.8 | |
| Total area | 186 m2 | |
| Furniture and Equipment | ||
a Work benches | ||
b Four-tier shelves | ||
c Pit | ||
10. Garage 1:200
The workshop supplements the workshop in the dairy and can be used both as a repair unit and a teaching unit. It is equipped with work benches, tools and one universal power tool.
The demonstration hall is intended to test new machinery and equipment and to house demonstration equipment not covered by other teaching facilities.
Cost Estimate
| US$ | ||
| Construction 186 m2 at US$124 m2 | 23,100 | |
| Electricity | 1,500 | |
| Plumbing | 100 | |
| Sewage | 200 | |
| Total building costs | 24,900 | |
| Furniture | 600 | |
| Equipment | 7,800 | |
| Grand total | 33,300 |
Garage Specifications
Electricity - Installed power 15.0 Kw
12 mounted single tube fluorescent lights
1 Weatherproof tungsten fitting
13 5A socket outlets
4 15A triple pole and neutral isolator distribution board
Plumbing
2 Taps and piping
Sewage
1 Oil trap
100 mm dia. cast iron piping
100 mm dia. pitch fibre or concrete piping
Furniture
4 Work benches
4–5 Running metres of four-tier shelving
Equipment
Tools
5.10.1 Laboratory
5.10.2 Kitchen
5.10.3 Office, classroom and hostel
5.10.4 Miscellaneous

11. Sketches of laboratory furniture 1:40

12. Sketches of kitchen furniture

13. Sketches of office, classroom and hostel furniture 1:40

14. Sketches of miscellaneous furniture
Description - The administration building (Drawing 15) comprises:
The offices are equipped as outlined in the specifications.
The above is equipped with four-tier shelving around the walls.
The classroom can accommodate 12 students and is meant for use before and after practical training.
Cost Estimate
| US$ | ||
| Construction 150 m2 at US$144 m2 | 21,600 | |
| Electricity | 700 | |
| Plumbing | 700 | |
| Sewage | 200 | |
| Total building costs | 23,200 | |
| Furniture | 4,400 | |
| Equipment | 1,100 | |
| Grand total | 28,700 |
Milk Plant Administration Building - Specifications
Electricity - Installed power 2.5 Kw
12 Mounted single tube fluorescent lights
2 Weatherproof tungsten fittings
6 5A socket outlets
Plumbing
2 Wash basins with cold water taps
2 Water closets
1 Water storage tank
Sewage
1 Manhole
100 mm dia. cast iron piping
100 mm dia. pitch fibre or concrete piping
Furniture
3 Office desks
6 Office chairs
1 Typist desk
1 Typist chair
12 Students' desks
12 School chairs
2 Steel filing cabinets
4 Easy chairs
1 Small table
7 Library bookcases
7 Running metres of four-tier light storage shelving
1 Blackboard 120 cm × 240 cm
36 m of 120 cm cotton curtain material
Equipment
1 Typewriter
Office supplies
![]() | ![]() | |
| Area (m2) | ||
| A Manager's office | 19.2 | |
| B Typist's office | 12.9 | |
| C Offices | 25.8 | |
| D Classroom | 37.8 | |
| E Store | 12.9 | |
| F Toilets | 12.9 | |
| G Corridor | 28.5 | |
| Total area | 150 m2 | |
15. Milk plant - administration building 1:200
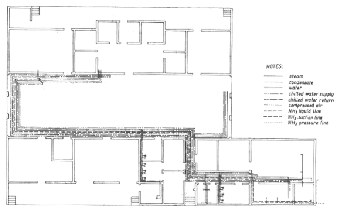
Description- The milk plant (Drawings 16 to 23) is designed to serve the double purpose of giving practical training space for up to 20 students attending diploma courses, and of providing facilities for manufacturing conventional dairy products.
The flow line has a capacity of 1,000 litres/h. The capacity of the reception and storage facilities is based on approximately 6,000 litres/day liquid milk, or corresponding to an eight-hour working day (one shift).
The production line incorporates the following units:
The equipment is itemized in the lists of equipment.
The storage capacity is based on peak production of the whole production line.
All service units have standby units to ensure a continuous operation in case of breakdown and to facilitate training in the operation and maintenance of equipment.
An emergency generator takes care of power cuts.
A waste water treatment plant is included to comply with the strict environmental legislation in many countries.
An emergency reservoir with a capacity of 60,000 litres water corresponding to 2 to 3 days' consumption will offset any breakdown of the water supply.
An independent water supply must be considered as a separate item.
Cost Estimate
| US$ | ||
| Construction 943 m2 at US$261 m2 | 247,000 | |
| Special floor | 33,500 | |
| Electricity and power | 96,000 | |
| Plumbing | 50,000 | |
| Sewage | 60,000 | |
| Total building costs | 486,500 | |
| Furniture | 7,500 | |
| Equipment, fittings, erection and running in | 606,500 | |
| Grand total | 1,100,500 | |
Milk Plant - Specifications
Electricity - Installed power 180 Kw
Power load 170 kVA
Light load 10 kVA
70 Power points
1 125 kVA emergency generator
1 Main switchboard
Plumbing
2 Wash basins
2 Water closets
6 Showers
1 Set of stainless steel pipes and fittings for internal connection of dairy machinery
1 Set of steel pipes and fittings consisting of:
steam pipes
water pipes
chilled water pipes
condensed water pipes
air pipes inclusive of bends, valves, breakers, etc.
1 Set of pipe insulation material consisting of:
insulation material for steam pipes
insulation material for chilled water pipes
insulation material for ammonia pipes
insulation material to be completed with vapour seal, asphalt, nails, wire,
glue, tape, etc. The pipes to be covered with polystyrene tapes
steam pipes with aluminium plates.
Sewage
10 Manholes
15 Floor gullies
100 to 150 mm dia. pitch fibre piping
Vent pipes
1 Waste water treatment plant
- 30,000 1 a day complete with all accessories
Special floor
400 m2 acid-proof tiles
Furniture
1 Laboratory table type 2
2 Laboratory tables type 3
46 Cupboards 30 cm × 50 cm × 150 cm
counter and shelving for shop
7 Running metres of heavy storage shelving
12 m of 90 cm plastic curtain
Equipment
Milk/Reception (*Numbers refer to Figures 19 & 20)
* No.101 2 4-metre Roller Conveyors for transportation of milk cane
102 1 Milk Reception Scale with manually operated valve including weight tank
Maximum weighing: 250 kgs.
Graduated: kg and litres
103 1 Rectangular Milk Reception Vat in stainless steel
Capacity: 500 litres
104 1 Drip Saver
Length: 2 metres
105 Double Milk Filter
Capacity of each filter: 2,000 litres/hour
106 1 Rotary Type hand-operated Can Washing Machine with 3 compartments
Capacity: approximately 180 cans/hour of 50 litres or smaller scale
107 1 Boiling Vessel in stainless steel
Capacity: 150 litres
Cooling and storage of Raw Milk
201 1 Centrifugal Pump in stainless steel
Capacity: 2,000 litres/hour milk
202 1 Plate Cooler in stainless steel
Capacity: 2,000 litres/hour milk, cooled from 35°C to 4°C with chilled
water
203 1 Chilled Water Centrifugal Vertical Multistage Pump with direct coupled
motor
Capacity: 3,000 litres/hour
204 1 2,000 litre Vertical, Enclosed Milk Storage Tank inclusive of agitator and all necessary accessories
205 1 Two-speed Centrifugal Pump in stainless steel Capacity: 1,000/3,000 litres/hour
Processing
301 1 Float Controlled Balance Tank - Capacity: 100 litres
302 1 Centrifugal Pump in stainless steel - Capacity: 1,000 litres/hour
303 1 Plate Heat Exchanger in stainless steel - Capacity: 1,000 litres/hour
304 1 Centrifugal Pump in cast iron housing for hot water
Capacity: approximately 5,000 litres/hour
1 Set of hot water pipes for connecting the pump to the plate heat exchanger
305 1 Control Panel inclusive of thermograph, thermometer and flow diversion valve, etc.
306 1 Chilled Water Centrifugal, Vertical, Multistage Pump with direct coupled motor - Capacity: approximately 5,000 litres/hour
307 1 Separator complete with all necessary accessories - Capacity: 1,000/2,000 litres/hour
308 1 Homogenizer complete with all necessary accessories
Capacity: 1,000 litres/hour at 210 kg/cm2
1 Boiling Vessel in stainless steel - Capacity: 150 litres
Milk Storage and Filling
401 1 2,000 litre Vertical, Enclosed Milk Storage Tank, inclusive of agitator and all necessary accessories
402 1 2,000 litre Vertical, Enclosed Milk Storage Tank, inclusive of agitator and all necessary accessories
403 1 Centrifugal Pump in stainless steel - Capacity: 1,000 litres/hour
404 1 Automatic Filling Machine for filling of milk into plastic bags
405 1 Manual Filling Machine for filling of milk into plastic bags
406 2 Plastic Vats for manual cleaning of plastic crates
Yoghurt Manufacture
501 1 Batch Pasteurizer in stainless steel - Capacity: 300 litres
1 Set of accessories for the batch pasteurizer
502 1 Centrifugal Pump in stainless steel - Capacity: 1,000 litres/hour
503 1 Semi-automatic Yoghurt Filling and Closing Machine
Capacity: approximately 200 litres/hour
504 1 Stainless Steel Table
505 2 Starter Heaters for mother culture
Butter and Ghee Manufacture
601 1 Batch Pasteurizer in stainless steel
Capacity: 300 litres
1 Set of Accessories for the batch pasteurizer
602 1 Centrifugal Pump in stainless steel
Capacity: 2,000 litres/hour
603 1 Butter Churn in stainless steel
Capacity of bowl: 600 litres
604 1 Butter Milk Trolley
605 1 Butter Milk Pump in stainless steel
Capacity: 2,000 litres/hour
606 1 Butter Moulding Machine in stainless steel
Capacity: 1,000 packs/hour
607 1 Ghee Boiler in stainless steel
Capacity: 180 litres
608 1 Stainless Steel Table inclusive of control weighing scale
609 1 Boiling Vessel in stainless steel
Capacity: 150 litres
Cheese Manufacture
701 and 702 2 Cheese Vats in stainless steel - Capacity: 500 litres each
703 1 Cheese Press, complete with all necessary accessories
1 Set of Cheese Equipment consisting of cheese knives, moulds for
various types of cheese
704 and 705 2 Stainless Steel Tables
706 1 Cheese Coating Machine, complete with all necessary accessories
707-709 3 Cheese Salting Vats made of reinforced glass fibre
Capacity: 500 litres each
710 1 Cheese Packing Table in stainless steel
Ice Cream Plant
801 1 Batch Pasteurizer in stainless steel - Capacity: 300 litres
1 Set of accessories for the batch pasteurizer
802 1 Ice-cream Pump in stainless steel - Capacity: approximately 1,000 litres/ hour
803 1 Batch Pasteurizer in stainless steel - Capacity: 300 litres
804 1 Continuous Ice-Cream Freezer, complete with all necessary accessories
805 and 806 2 Deep-Freeze, complete- Capacity: 400 litres each
Evaporation
901–908 1 Complete Evaporating Plant for re-circulating 100 litres milk/hour
evaporation 73 kgs/hour water
consumption 27 kgs/hour
44% dry solids
909 1 Stainless steel tank for evaporated milk The tank to be complete with agitator and all necessary accessories Capacity: 200 litres
Spray Drying
1001 – 1003 1 Spray Drying Plant, type Production Minor, complete with all necessary accessories Capacity: 10–25 kgs/hour
Cleaning in Place
1101 1 500-litre Cylindrical, Vertical, Uninsulated, Stainless Steel Tank
1102 1 Centrifugal Pump in stainless steel Capacity: 10,000 litres/hour
1103 1 500-litre Cylindrical, Vertical, Uninsulated, Stainless Steel Tank
Refrigeration Plant
1201 2 Centrifugal Pumps, each with a capacity of 4,200 litres/hour
1202 1 Water Pressure Tank - Capacity: 500 litres
1203 1 Air Compressor for the above water pressure tank Capacity: approximately 150 litres/hour
1204 1 Air Compressor, complete with all necessary accessories and air dryer Capacity: 1,060 litres/hour
1205 1 60 m3 Water Storage Tank
1301 – 1302 2 Compressors for ammonia, complete with all necessary accessories
1303 1 Ice Water Tank, complete with coils and all necessary accessories
1304 1 Condenser, complete with all necessary accessories
1305 1 Receiver, complete with all necessary accessories
1306 1 Flow Control Valve
1307 - 1310 4 Evaporators, complete with all necessary accessories
1311 First filling with ammonia and oil
Boiler Plant
1401 1 Boiler Plant complete with oil burner, feed water pump, control panel
and all necessary accessories
Capacity: 500 kgs/hour
1402 1 Boiler Plant complete with oil burner, feed water pump, control panel and all necessary accessories
1403 1 10-metre uninsulated Chimney inclusive of smoke funnel
1404 1 Water Softening Unit
4 Trolleys for transportation of various items
2 Trolleys for transportation of plastic crates from the packing machine
9 Doors, especially made for cold stores
![]() | Area (m2) | |
| A Reception | 53.0 | |
| B Processing | 269.0 | |
| C Cheese manufacture | 97.0 | |
| D In-place cleaning | 8.5 | |
| E Cold stores | 53.5 | |
| F Steam & refrigeration | 83.0 | |
| G Spare parts | 18.0 | |
| H Main switch | 15.0 | |
| J Laboratories | 18.0 | |
| K Changing rooms & toilets | 56.5 | |
| L Shop | 10.0 | |
| M Other stores | 80.0 | |
| N Platforms and corridors | 183.0 | |
| Total area | 943 m2 |
16. Milk plant - plan 1:200

17. Milk plant - elevation and section 1:200
![]() | LEGEND A. Grano B. Terazzo C. Acid proof tiles D. Cast iron tiles |
18. Milk plant - floor finishing 1:200

19. Milk plant - flow diagram

20. Milk plant - machinery layout 1:200

21. Milk plant - lighting 1:200

22. Milk plant - piping layout 1:200

23. Milk plant - sewage layout 1:200
1 Set of various dairy equipment, consisting of:
about 4–6 months' consumption
1 Set of laboratory equipment, complete for the following tests:
Butter fat test
Acidity test
Density test
Reduction test
Plate count/coli test
Total solids test
Butter moisture test
Freezing point test
The workshop consists of tools and equipment necessary for the maintenance of the plant.
1 Set of spare parts for the Dairy Machinery, Boiler Plant, Refrigeration Plant, Water and Air Supply Plant, and Electrical Installation
Erection and running - in include:
Erection of the Dairy Machinery
Erection of the Refrigeration Plant, Boiler Plant, Water and Air - Supply Plant
Air - conditioning for the dairy plant includes extension of the ice water tank
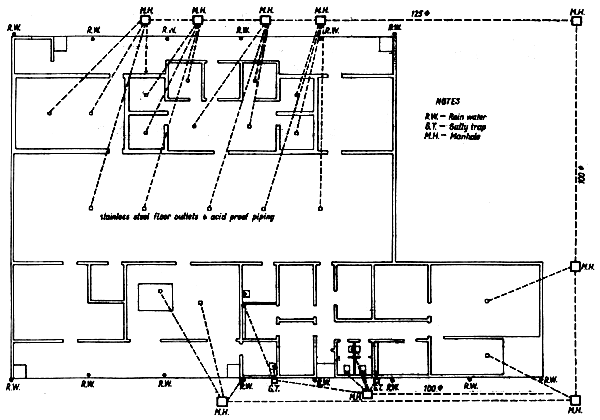
Description
The milk collecting centre (Drawing 24) is designed to handle 1,000 litres of milk a day.
The reception area has two sections, one counter to receive milk from small holders and a ramp where large quantities of milk can be received.
There is easy access from both reception areas to the collecting equipment. In the layout a Basin cooler with space for 25 40-litre milk cans has been shown. It is possible, if the collection system justifies it, to install a cooling tank.
A compressor room has been allowed for, to cater for individual choice regarding the cooling systems. The compressor room should also serve as a workshop and spare parts store.
Washing facilites are available inside for equipment used in the milk collecting centre and outside for farmers to wash their milk containers after milk delivery.
![]() | ![]() | |
| Area (m2) | ||
A Milk handling | 67.7 | |
B Office | 11.6 | |
C Compressor room | 11.6 | |
D Store | 7.5 | |
E Ramp | 7.0 | |
F Toilet | 7.5 | |
G Corridor | 7.8 | |
| Total area | 121 m2 | |
| Furniture and Equipment | ||
a In-can milk cooler | ||
b Milk separator | ||
c Wash basins | ||
d Two-tier can rack | ||
e Water heater | ||
f Shelves | ||
g Desk and chairs | ||
24, Milk Collecting centre 1:200
It is assumed that hot water will be supplied from an electric water heater. Where no electricity is available a 44–gallon drum can be built into a chimney arrangement and provide sufficient hot water for both washing operations mentioned above.
A hand-operated cream separator with a capacity of approximately 500 litres an hour is included to facilitate separation of low grade milk.
The centre is large enough to give practical training to six students at a time.
Cost Estimate
| US$ | ||
| Construction 121 m2 at US$ 130 m2 | 15,800 | |
| Electricity | 1,400 | |
| Plumbing | 800 | |
| Sewage | 300 | |
| Total building costs | 18,300 | |
| Furniture | 600 | |
| Equipment | 7,800 | |
| Grand total | 26,700 |
24. Milk Collecting Centre - Specifications
Electricity - Installed power 5.0 Kw
12 Mounted single tube fluorescent fittings
1 Weatherproof tungsten fitting
2 5A socket outlets
2.20A cord outlet boxes
1 13A spur unit switched and fused with pilot lamp
Plumbing
2 Water storage tanks
1 Water closet
1 Wash basin
13 Water taps and piping
Sewage
1 Manhole and piping
Furniture
1 Set four-tier shelves
1 Writing desk
2 Chairs
1 Metal filing cabinet
3.5 metres cotton curtain material
Equipment
1 Cooling unit
1000 litres milk an hour from 35°C to 8°C
1 Hand-operated separator
400 litres/hour
6 Galvanized wash basins
1 Platform weighing scale 250 kg
4 Spring balances 30 kg
1 Water heater - Electric
150/200
1 Two-tier can rack
30 Milk cans, each 40 litres
4 Strainers
6 Stainless steel buckets
Brushes
Brooms
12 Lactometers
12 Thermometers
1 Water bath and other resazurin equipment
Detergents (Washing soda and soap)
Sterilizers (Chloride of lime)
Whitewash
2 Litre measures
6 Dippers for sampling
Set of tools
Description
The hand milking unit (Drawing 25) is designed to cater for small scale dairy farmers with handmilked herds of six to ten mature cows.
The unit contains two milking places, two calf pens, a fodder store and a milk room equipped with the essentials for carrying out a technically correct milking procedure.
It is assumed that no electricity or cooling equipment is available. Needs for light must be covered with kerosene or gas-fuelled lamps. Delivery of milk have to take place immediately after each milking.
| Milking unit for 6–10 cows |
| A Feed store B Milking room C Milk store D Calf pens | |
| Milking unit for 20–40 cows | |
| A Feed store B Milking room C Milk store D Feeding area E Calf pens |
25. Milking units 1:200
The milking places have mangers for concentrate feeding and a simple fastening system ensures that the cows are kept quiet during milking. It is estimated that milking of ten cows can be completed within one hour.
The calf pens have half doors opening in the total width of the individual pen for easy cleaning.
The milk room is equipped with a cement basin divided into two for washing equipment and has shelves along the wall.
Hot water will have to be supplied from a charcoal or wood-fire outside the building.
The unit will provide practical training for four to six students.
Cost Estimate
| US$ | US$ | |
| Construction 25 m2 at US$ 70/m2 | 1,750 | |
| Contingencies | 180 | 1,930 |
| Electricity | Nil | |
| Plumbing | 270 | |
| Sewage | 100 | |
| Total building cost | 2,300 | |
| Brushes, brooms, clothes, baskets, etc. | 200 | |
| Grand total | 2,500 | |
Description
The mechanical milking unit is designed to cater for medium to large scale dairy farmers utilizing machine milking on herds of 20 to 40 mature cows.
The unit contains a milking area with space for five cows, five calf pens for young calves, a calf pen for calves more than six weeks old, a fodder store, a milk room and a compressor room.
A pipe machine milking unit with two teat cup clusters and milk delivery directly to the milk room facilitate an up-to-date milking system. It is estimated that milking of 20 cows can be completed within 60 to 90 minutes.
The calf pens for young calves have half doors in the whole width of each individual pen for easy cleaning.
The pen for six weeks' calves provides a free moving area.
The fodder sotre contains no special equipment except for a weighing scale and a trolley for fodder transport.
The milk room is provided with washing facilities, can rack and a recording desk. Hot water is supplied from an electrical water heater placed in the compressor room, where the vacuum pump for the milking machine is also placed. There is also space in this room to install a compressor for cooling the milk.
The unit is large enough for six to eight student at a time to be given practical training.
Cost Estimate
| US$ | US$ | |
| Construction 94 m2 at US$ 66 m2 | 5,595 | |
| Contingencies | 560 | 6,200 |
| Electricity | 800 | |
| Plumbing | 400 | |
| Sewage | 100 | |
| Total building cost | 7,500 | |
| Furniture | 300 | |
| Equipment | 7,100 | |
| Grand total | 14,900 |
Mechanical Milking Unit - Specifications
Electricity – Installed power 1.5 Kw
9 Mounted single tube fluorescent lights
2 20A cord outlets
Plumbing
7 Water taps and pipework
Sewage
1 Soak pit
Furniture
Managers and fastening devices for cows and calves
1 Board for pregnancy control
1 Waiting desk
1 Chair
Equipment
1 Pipe machine milking unit with two teat-cup clusters and five vacuum
outlets
1 Vacuum pump for milking machine
1 Electric water heater 100/150 l.
3 Galvanized wash basins
20 Milk cans - 40 litres each
4 Strip cups
2 Spring balances, 30 kg
1 Platform scale, 250 kg
1 Two-tier can rack
1 Cooling unit. Capacity 1,000 l, 35°C to 8°C in one hour
1 Hand-operated separator, 400 1/hour
4 Stainless steel buckets
6 Galvanized iron buckets
1 Trolley with galvanized iron receptacle for fodder
distribution
2 Lactomenters
2 Thermometers
40 Cloths for washing udders
Brushes
Brooms
Detergents, soap and soda
Sterilizers, chloride of lime
Whitewash
Milking jelly
2 Shovels
Set of tools
THE FAO TECHNICAL PAPERS
FAO PLANT PRODUCTION AND PROTECTION PAPERS:
FAO ANIMAL PRODUCTION AND HEALTH PAPERS:
FAO CONSERVATION GUIDES: 5 titles published
FAO FORESTRY PAPERS: 14 titles published
FAO FOOD AND NUTRITION PAPERS: 10 titles published
FAO AGRICULTURAL SERVICES BULLETINS: 36 titles published
FAO IRRIGATION AND DRAINAGE PAPERS: 33 titles published
FAO SOILS BULLETINS: 41 titles published
Availability: February 1979
C Chinese
E English
F French
S Spanish
Bi. Bilingual
* Available
** Out of print
*** In preparation
The FAO Technical Papers are available through the authorized FAO Sales Agents or directly from Distribution and Sales Section, FAO, Via delle Terme di Caracalla, 00100 Rome, Italy