M.I.P
EMPRESA CAMARONICULTURA
![]() |
DEFINICION DE UN LABORATORIO DE 160 millions de PL5/ año |
INFORME DE MISION del 3 al 19 marzo 1987
EXPEDIENTE PROVISIONAL
MAI 1987
B/JP/87-17

Los hiperenlances que remiten a sitios Internet distintos de los de la FAO no implican, de parte de la Organización, ratificación oficial o responsabilidad respecto a opiniones, ideas, datos o productos presentados en dichos sitios, o una garantía de validez acerca de las informaciones que contienen. El único propósito de los enlaces a sitios distintos de los de la FAO es proporcionar otras informaciones disponibles sobre asuntos conexos.
La presente versión electrónica de este documento ha sido preparada utilizando programas de reconocimiento óptico de texto (OCR). La FAO declina cualquier responsabilidad por las eventuales diferencias que puedan existir entre esta versión y la versión original impresa.
2. REMISION A LOS TERMINOS DE REFERENCIA
3. RESUMEN DEL PROGRAMA DE TRABAJO
II - DEFINICION DEL LABORATORIO
1. ORGANIZACION DE LA PRODUCCION
2. DETERMINACION DEL TAMANO DEL LABORATORIO
2.1. Volumen de cría larval
2.2. Número de tanques de maduración
2.3. Número de tanques de desove
2.4. Número de tanques de eclosión de artemia
2.5. Producción de algas
3. UNIDAD DE ALMACENAMIENTO A ALTA DENSIDAD
4. UNIDAD DE ENGORDE DE LOS GENITORES
4.1. Cría intensiva en el área del laboratorio
4.2. Cría extensiva en la camaronera
III - PROYECTO LABORATORIO - DESCRIPCION SUMARIA DE LAS INSTALACIONES
2. INFRAESTRUCTURA HIDRAULICA Y ACUICOLA
3. EL EDIFICIO LABORATORIO MISMO
3.1. Planos
3.2. Estructura
3.3. Evacuaciones
3.4. Albañilería
3.5. Electricidad
3.6. Climatización
4. EL ACONDICIONAMIENTO DEL LABORATORIO
4.1.1. Suministro de agua de mar
4.1.2. Suministro de aire sobrepesado
4.1.3. Suministro de agua dulce
4.1.4. Suministro de algas
4.1.5. Disposiciones para realización
4.2. Definición sumaria de los equipos principales
4.2.1. Equipos de filtración
4.2.2. Calentamiento
4.2.3. Sopladores
4.2.4. Esterilización por U.V.
4.2.5. Bomba secundaria
4.2.6. Los estanques de cría
4.3. Otros equipos (equipos científicos y diversos)
IV - ANALISIS Y COMENTARIOS SOBRE INSTALACIONES Y PROYECTOS EN CURSO
1. SANTA CRUZ DEL SUR - LABORATORIO EXPERIMENTAL
1.1. Estructura del edificio
1.2. Equipos generales
1.3. Redes
1.4. Maduración
1.5. Diversos
2. SANTA CRUZ DEL SUR - PROYECTO NUEVO
2.1. Sistema de tratamiento del agua
2.2. Estación de bombeo - toma de agua de mar
2.3. Maduración
2.4. Edificio de cría larval
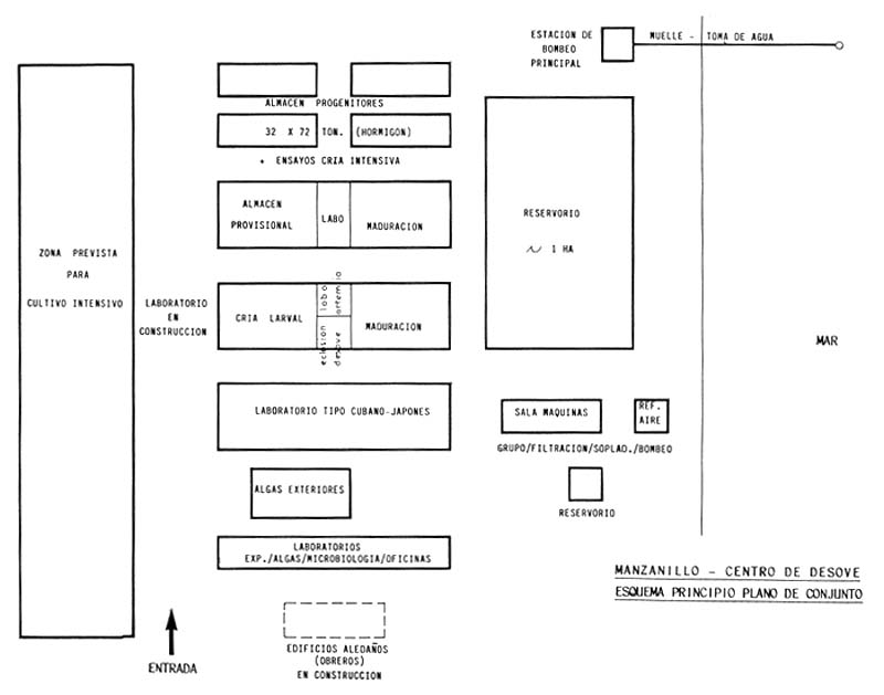
3. MANZANILLO - CENTRO LABORATORIO DE DESOVE
3.1. Estación de bombeo principal
3.2. Edificio técnico y equipos principales
3.3. Nave maduración
3.4. Nuevo laboratorio
3.5. Laboratorio - técnica extensiva
3.6. Progreso general del trabajo
4. VISITA DE LA CAMARONERA DE RIO CAUTO
V - PROGRAMA ULTERIOR DEL ESTUDIO
Este informe tiene por objeto precisar las líneas generales del proyecto de construcción de un laboratorio de postlarvas previsto en la zona de TUNAS DE ZAZA y por otra parte resumir las diferentes conversaciones tenidas con las personas responsables de la EMPRESA CAMARONICULTURA DEL M.I.P.. El informe comprende así una descripción sumaria y un análisis de los proyectos existentes o en construcción en MANZANILLO y SANTA CRUZ DEL SUR. En la tercera parte se difinirá la metodología de ejecución del proyecto técnico final con la colaboració de los ingenieros del M.I.P..
El programa de la misión descrito a continuación y el plano de trabajo definido anteriormente están de acuerdo con los términos de referencia del contrato FAO/CU/86/004 del consultor en ingeniería acuícola.
El consultor tendrá la responsabilidad de realizar las siguientes tareas :
Definición del centro de cría larval en forma integral ;
Realización de un anteproyecto con los planos y documentos necesarios para ser adaptados a las normas cubanas de construcción ;
Apoyo a los ingenieros cubanos para definir los equipos necesarios y obtener las especificaciones correspondientes.
| Miér. 4/3 | : | Llegada al aeropuer to Presentación oficina camaronicultura FAO/PNUD presentación | R. CARRULLA F.O. MONTEAGUDO N. RODRIGUEZ H. HARMAN J. YARZA |
| Juev. 5/3 | : | Reunión de trabajo. Subdirección inversiones. | R. VITIER F. MONTEAGUDO N. RODRIGUEZ |
| Vier. 6/3 | : | Visita astilleros CHULLIMA Reunión de trabajo | R. VITIER F. MONTEAGUDO N. RODRIGUEZ |
| Sáb. 7/3 | : | Reunión de trabajo Preparación informe | " |
| Dom. 8/3 | : | Viaje a Santa Cruz del Sur | R. CARRULLA F. MONTEAGUDO R. VITIER |
| Lun. 9/3 | : | Visita al centro Santa Cruz/Salida a Manzanillo | " |
| Mart. 10/3 | : | Visita al Centro Manzanillo y Empacadora Visita a la Camaronera de Río Cauto | " |
| Miér 11/3 | : | Regreso a la Habana | " |
| Juev. 12/3 | : | Preparación informe | " |
| Vier. 13/3 | : | Reunión de trabajo/definición del calentamiento Visita al Consejero Comercial de la Embajada de Francia. | R. VITIER A. BILBAO |
| Sáb. 14/3 | : | Elaboración del informe | R. VITIER |
| Dom. 15/3 | : | Elaboración del informe al Hotel | " |
| Lun. 16/3 | : | Reunión de trabajo Elaboración del informe | R. VITIER F. MONTEAGUDO |
| Mart. 17/3 | : | Reunión PNUD/FAO Reunión de trabajo/Academia de Ciencas Discusión del informe/subdirección inversiones | R. DE ROSS F. MONTEAGUDO R. DE ROSS |
| Miér. 18/3 | : | Salida aeropuerto. |
Este capítulo tiene por objeto definir las condiciones de realización de un laboratorio de producción de postlarvas de camarón de una capacidad de 160 millones (PL5) al año. El diseño puede prever una extensión posible con la construcción de un segundo módulo de 160 millones de PL5 al año.
A cada nivel de producción (cría larval, maduración, algas, etc...) se ha tomado en cuenta un margen de seguridad importante con el fin de alcanzar en todos los casos la producción prevista, así como la producción de especies menos conocidas por F.A. (P. schmitti).
Las larvas son organismos muy frágiles y las enfermedades representan un problema muy importante. Por eso, el control sanitario de las condiciones de cría debe ser riguroso a dos niveles : en el espacio y en el tiempo.
El diseño del laboratorio está hecho de manera a prevenir los problemas patológicos :
Separación de las diferentes unidades : maduración, cría, cultivo de algas, etc…
Repartición de los estanques de cría larval en “camarillas” conteniendo cada una dos tanques. Este sistema restringe la posibilidad de propagación de organismos patógenos de un tanque a otro.
El planing anual de producción prevé cuatro veces al año un vacío sanitario de dos semanas. Este vacío sanitario previene y evita la propagación de cepas patógenas :
Número de ciclos anuales : 4 (de 2 meses y medio cada uno) ;
Número de vacíos sanitarios : 4 (de 2 semanas cada uno).
ESQUEMA DE PRODUCCION

VS = Vacío sanitario
La producción se realiza en 10 meses teniendo en cuenta los vacíos sanitarios necesarios, pero tanto los desoves como las cosechas de postlarvas se reparten sobre 8 meses.
Normas :
Densidad inicial : 90 nauplii/litro
Densidad final : 54 PL 5/litro
Duración de la cría hasta PL5 : 15 días
Número de crías por tanque y por mes : 1,4 (teniendo en cuenta el tiempo de aseco y de relleno).
El volumen necesario para la cría larval es :

Sea 16 tanques de 14 m3 (224 m3). Sin embargo para respetar la organización moduladora se incrementa el volumen, logrando así 16 tanques de 18 m3 *. Los tanques son reagrupados de dos en dos
* 18 m3 = volumen útil, sea 20 m3 del volumen del tanque.
Normas :
Para producir 20
millones PL 5/mes, se necesita :

Es decir, con un sex ratio de 1 macho por 1 hembra, una carga (biomasa) promedio de 250 gramos por m2, un peso promedio de 50 gramos por camarón :

Con un margen de seguridad teniendo en cuenta la utilización de especies diferentes y debido a la disponibilidad de formas para la construcción de tanques de 10 m3, serán previstos 26 tanques de 10 m2.
Para sembrar un tanque de cría larval se necesita :

Es posible poner 2 hembras por tanque de desove (150 gr/m2 máximo), pero debemos tener en cuenta la posibilidad de desoves agrupados.
En todo caso, será suficiente tener 22 tanques de desove.
El número de tanques de eclosión asciende también a 22.
Este cálculo depende de una multiplicidad de situaciones de explotación del laboratorio :
Crías larvales agrupadas (necesidad masiva de artemia) ;
Calidad de los huevos de artemia (tasa de eclosión variable según las cepas).
Además, el consumo de nauplii de artemia es variable en función del estadio larval :
De 10 nauplii/larva/día (estadio misis 1)
a 100 nauplii/postlarva/día (estadio PL5).
Consideramos una hipótesis media de consumo de :
40 nauplii/larva/día
Sea, para un efectivo medio de 1 080 000 larvas o postlarvas por tanque (60 1), y considerando que 50 % de las larvas en el laboratorio consumen Artemias, el consumo promedio por día es :
16 tanques × 50 % × 1 080 000 × 40 = 345 000 000 nauplii/día
Con las normas siguientes :
El volumen necesario es :

El volumen útil de cada estanque es de 600 litros y el ciclo de eclosión y cosecha es de 2 días ; por consiguiente, se necesita :

El cultivo se realiza por etapas sucesivas en volúmenes de capacidades crecientes :
Tubo de ensayo → erlen de 250 ml → erlen de 5 l → recipiente de 30 1 → tanque de 300 litros (en sala de algas) → tanque de 1,5 m3 (cultivo exterior).
Las algas empleadas como alimento larval deben sacarse y utilizarse durante la fase de crecimiento de su cultivo para que su calidad sea óptima.
Además, se debe tener un cuidado muy particular en las diferentes manipulaciones, para evitar a las cepas cualquier contaminación de organismos exteriores y su degeneración.
Las algas en tanques de 300 litros pueden utilizarse de dos maneras :
Preferentemente se usa tres cepas de algas :
Chaetoceros gracilis, Isochrysis T. galbana, Platymonas sp.
Las dos primeras se producen tanto en los tanques exteriores como en la sala, la tercera se produce solamente en la sala.
Sala de algas :
Las cantidades necesarias se valoran como en el cuadro siguiente:
| DENSIDAD CUMULADA UTILIZADA/CRIA EN CEL./ml | TOTAL* MENSUAL EN CELULAS | DENSIDAD MEDIA EN CULTIVO EN CEL/ml | VOLUMEN DE CULTIVO/DIA EN LITROS | |
|---|---|---|---|---|
| ISOCHRYSIS | 135 000 | 4,23 × 1013 | 2 000 000 | 704 |
| CHAETOCEROS | 190 000 | 5,96 × 1013 | 1 200 000 | 1 654 |
| PLATYMONAS | 15 000 | 0,46 × 1013 | 500 000 | 311 |
* 16 tanques × 14 m3 × 1,4 cría/tanque/mes.
Los cultivos se realizan en tanques de 300 litros y se utilizan el cuarto día.
Entonces, el número requerido de tanques es el siguiente :
| Isochrysis | → | 9 tanques | ||
| Chaetoceros | → | 15 tanques | → | en cultivo |
| Platymonas | → | 3 tanques | ||
| Seguridad | → | 2 tanques | → | dispuestos |
Sea un total de 29 tanques de 300 litros (13 por sala de cultivo) y el número conveniente de otros volúmenes en la cadena de producción.
Se ha previsto :
Cultivo exterior :
Además, para asegurar la alimentación de las larvas, consideramos que 50 % de las algas son producidas en tanques exteriores.
En efecto, la producción de algas es una etapa muy importante que nunca debe ser un factor limitativo.
Los tanques de 1,5 m3 son inoculados cada uno por un tanque de 300 litros, los cultivos utilizados el tercer día.
Necesitamos 12 tanques de 1,5 m3, más 2 tanques para la transferencia y el almacenamiento.
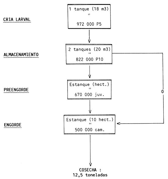
Se propone realizar una unidad de almacenamiento intensivo con el fin de poder, en algunos casos, reagrupar las postlarvas antes de sembrarlas.
La densidad de almacenamiento de un tanque se realiza a 25 PL5/litro ; por consiguiente un tanque de cría larval permite la siembra de dos tanques de 20 m3 pues el modelo escogido es de tipo circular en fibra de vidrio de 20 m3 (forma que va optimar los costos de inversión) o según disposición de los tanques de la misma forma que los tanques de cría larval (forma U).
Para una producción promedio de 1 cría por día y un tiempo de utilización de cada tanque de almacenamiento de 5 o 6 días, necesitamos pues 12 tanques de 20 m3.
Si se considera la hipótesis siguiente para las siembras :
Preengorde :
Densidad inicial : 90/m2 a 100/m2
Sobrevivencia : 80 %
Superficie media de un estanque : 1 hectárea
Engorde :
Densidad inicial : 6–7/m2
Sobrevivencia : 70 a 80 %
Superficie media de un estanque : 10 hectáreas
Entonces, el esquema del principio de la cadena de producción sería el siguiente :

Dos ténicas de cría de los genitores son utilizables :
La técnica extensiva, que necesita una superficie bastante importante de estanques de tierra ;
La técnica intensiva, que permite utilizar una superficie mucho más reducida (3 % de la superficie del extensivo) y que tiene como base un equilibrio del medio y una fuerte aeración.
Para este proyecto, preferimos utilizar en el área del laboratorio la técnica intensiva. Esta técnica es considerada como operativa en el contexto de TAHITI, pero necesitará algunas adaptaciones a las condiciones locales.
Considerando el caso particular de este proyecto (ausencia de genitores de P. vannamei en el medio natural) y para garantizar que el laboratorio sea regularmente abastecido de reproductores, recomendamos igualmente una cría complementaria de genitores según la técnica extensiva, en la camaronera misma. Los adultos serán suministrados por estos estanques durante la fase de adaptación de la técnica intensiva a las condiciones de la Costa Caribeña.
La cría se realiza en dos etapas, según las normas siguientes :
Etapa 1 :
Etapa 2 :
Sobre la base de 4 ciclos de producción anual, se necesitará el siguiente número de genitores :
26 tanques de maduración × 50 genitores = 1 300 que son utilizables durante 2 meses, es decir durante 1 ciclo de desove.
Sin embargo, considerando que el stock de genitores puede ser cambiado a proporción de 50 % durante el ciclo. Entonces, el número de genitores necesario es de 2 000 por ciclo.
Se necesita sembrar 8 000 PL por ciclo.
| Etapa 1 : a 60/m2 | 125 m2 de superficie de cría |
| Etapa 2 : a 15 m2 | 250 m2 de superficie de cría |
Teniendo en cuenta el período de utilización de cada estanque y para permitir una buena planificación, se necesitará :
8 estanques de 125 m2
Además se necesita 2 estanques de tierra de 1 000 m2 cada uno para almacenar los progenitores provenientes del medio natural.
Para asegurar el abastecimiento de genitores durante la fase de adaptación de la técnica intensiva, se producirá también reproductores en estanques de tierra según la técnica extensiva.
Esta cría se realizará en estanques de tierra, en dos etapas :
De P10 a 2 gr : a una densidad de 3 a 5 por m2 ;
De 2 gr al tamaño adulto : a una densidad de 0,5 a 1 por m2.
Los genitores podrán utilizarse a partir del mes 7.
Se necesita unas 8 000 postlarvas/ciclo las cuales producirán 1 500 adultos.
| Etapa 1 : 2 500 m2 | de superficie de cría |
| Etapa 2 : 8 000 m2 | de superficie de cría |
Se necesitará 1 estanque de 2 500 m2 y
4 estanques de 8 000 m2.
CRIA LARVAL
16 tanques de 18 m3 útil (sea 20 m2), en un módulo con 8 cubiculos.
MADURACION
26 tanques de 10 m3.
DESOVE Y ECLOSION
22 tanques de desove de 300 l
22 tanques de eclosión.
ARTEMIA
11 tanques de 600 litros útil.
SALA DE ALGAS
29 tanques de 300 litros.
ALGAS EXTERIORES
12 tanques de 1,5 m3, más 2 tanques para transferencia.
ALMACENAMIENTO POSTLARVAS
12 tanques de 20 m3
CRIA GENITORES
| En el área del laboratorio | - 8 estanques de 125 m3. |
| - 2 estanques de tierra de 1 000 m2. | |
| En la camaronera | - 1 estanque de tierra de 2 500 m2 |
| - 4 estanques de 8 000 m2. |
El proyecto de laboratorio de 160 millones de postlarvas al año de TUNAS DE ZAZA tendrá las instalaciones siguientes :
Suministro y almacenamiento de agua dulce ;
Línea eléctrica, transformadores y grupo electrógeno ;
Sistema para las aguas negras, fosas sépticas ;
Vías de circulación y de acceso ;
Sistemas diversos (agua lluvia, cercas, alumbrado exterior…);
Edificios aledaños (oficinas, obreros, almacén…).
Estas instalaciones serán definidas por la empresa CAMARONICUL -TURA, de conformidad con las necesidades definidades por el exper to FAO (F.A.).
Toma de agua de mar ;
Estación de bombeo ;
Sistema de distribución de agua ;
Estanques y tanques exteriores.
Estas instalaciones serán definidas por el experto FAO (FA) después que el M.I.P. le proporcione las informaciones necesarias :
Plano topográfico (escala 1/500e) del sitio ;
Plano topográfico (escala 1/200e) de la zona de toma de agua de mar con batimetría ;
Análisis del suelo al nivel de los estanques y de los edificios (granulometría, permeabilidad, índice proctor, etc…) ;
Análisis del suelo al nivel de la toma de agua según principio retenido ;
Informaciones diversas sobre el sitio.
Esta parte tiene como objeto precisar a grandes rasgos las características generales de la construcción. Dando, así, indicaciones para la elaboración de los planos de ejecución y para la preparación de los documentos del proyecto técnico definitivo.
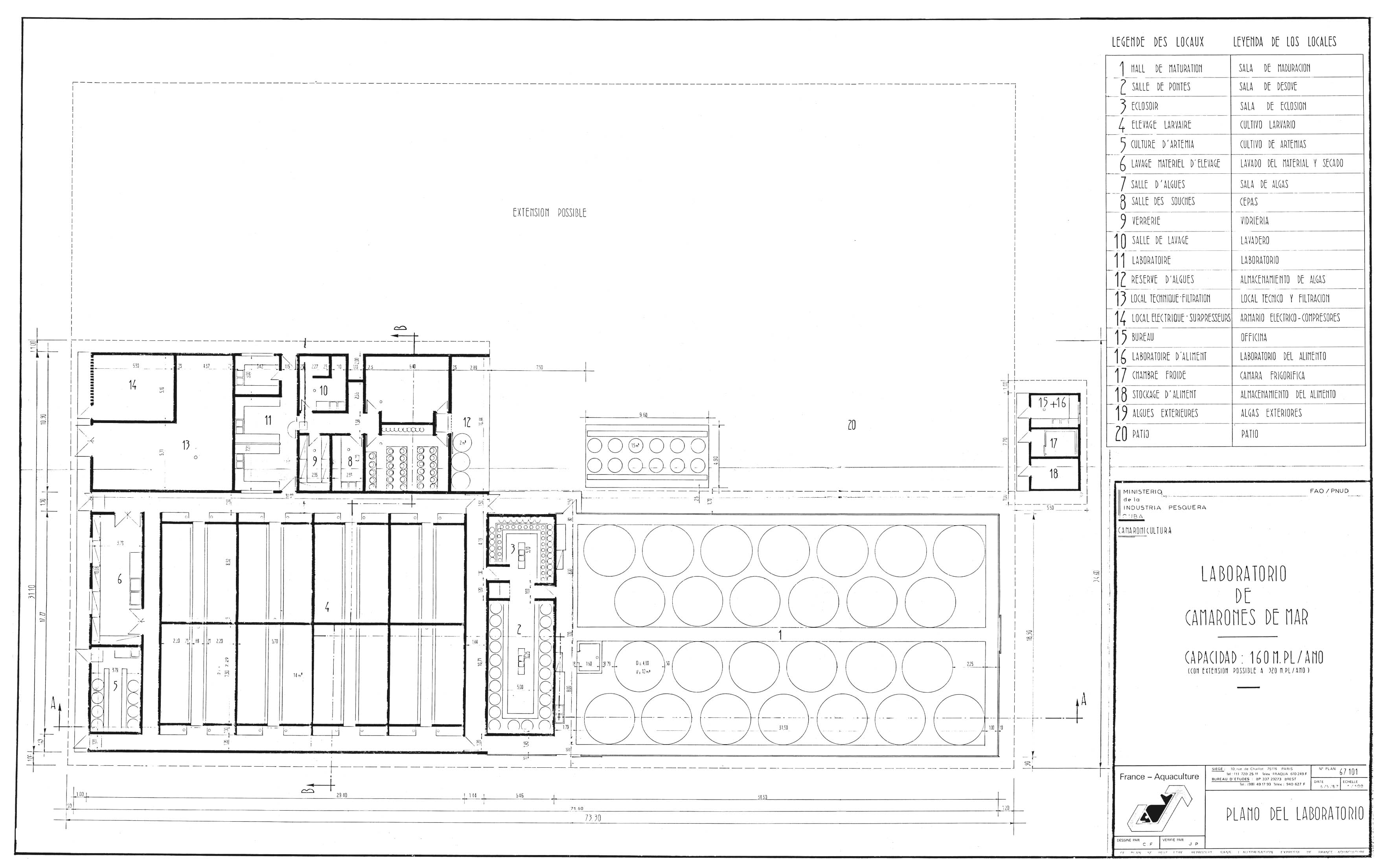
Los planos que ilustran el presente informe son los siguientes :
El edificio será de tipo industrial con una estructura de elementos prefabricados de hormigón y en conformidad con las técnicas de construcción utilizadas en la República de Cuba.
El edificio tendrá chapas de pared y techado de asbestos cemento con placas translúcidas.
La definición de los cimientos deberá tener en cuenta una sobrecarga de explotación de 1,2 T/m2 más o menos. En la losa habrá una pendiente suficiente para permitir una evacuación de las aguas. Los suelos de la sala de maduración (salvo las zonas de circulación) serán revestidos con gravas.
Las redes estarán bajo el piso, así como la redes de desagüe exteriores (“nursery” y cultivo de algas) con tubería enterrada en PVC, registros y sifones de suelo.
Las paredes serán realizadas con bloques de 15 o 20 cm, enlucido exterior e interior y pintura adecuada a las salas húmedas.
Las salas de algas y laboratorios (No 7, 8, 9, 10, 11, 15 y 16) tendrán revestimiento de azulejos en la pared sobre 2 metros y revestimiento de gres antideslizable para el piso.
Los aparatos colocados en las salas húmedas deberán ser de calidad “estanco” (enchufe, interruptor…). Particularmente todos los grupos fluorescentes 2 × 40 W previstos serán de tipo “EUROPHANE” o similar “estanco”.
Se ha previsto en el local técnico dos centrales de acondicionamiento independientes tipo “SPLIT SYSTEM” con una potencia suficiente para asegurar las necesidades del criadero :
| - Salas de algas 7, 8, 9, 10 | : | 22°C +/- 1°C |
| - Salas laboratorio 11 | : | 24°C +/- 2°C |
La sala 15/16 recibiendo un acondicionamiento unitario.
Comprende las partes siguientes :
Estas redes serán destinadas al suministro en agua de mar, aire sobrepresado, algas y agua dulce a las diferentes salas del laboratorio.
Las redes serán realizadas con tubería PVC de presión, válvula de bola y accessorios PVC también según las normas internacionales ISO.
Las necesidades globales del laboratorio en agua de mar se resumen en el cuadro siguiente.
El caudal global de pico se estima a 122 m3/h. Con el tratamiento siguiente según el tipo de cría :
Filtración sobre arena (50 micrones) para todo ;
Filtración sobre cartucho (5–10 micrones) para cría larval y necesidades anexas.
Filtración sobre cartucho (1/0.2 micron) y esterilización U.V. para algas.
Calentamiento hasta 28–30°C.
Necesidades globales estimadas a 600 N m3/h a una presión 500 mbar (0.5 kg/m2).
Se ha previsto unas conexiones con la red de agua de mar para desecación de las tuberías.
Aire más gas CO2 previsto para algas interiores.
CUADRO DE NECESIDAD/AGUA DE MAR
| SALA | No | ESTANQUES | CALIDAD DE AGUA | CAUDAL m3/h Pico | NOTA |
|---|---|---|---|---|---|
| MADURACION | 1 | 26 × 10 m3 | Filtración a 50 μ y calentamiento 28/30°C | 22 | Durante todo el día (24 h) |
| DESOVE | 2 | 22 × 300 1 | Filtración a 5–10 μ y calentamiento | 6.6 | Con sistema de regulación del flujo |
| ECLOSION | 3 | 22 × 200 1 | Filtración 5–10 μ y calentamiento | 2 | " |
| CRIA LARVAL | 4 | 16 × 18 m3 | Filtración por cartucho y calentamiento 28/30°C | 72 | Suministro de agua durante 2 h por 50 % del volumen |
| ARTEMIA | 5 | 12 × 500 1 | Filtración 5 μ | 3 | Suministro por 50 % durante 1 h |
| ALGAS INTERIORES | 7–8 | 29 × 300 1 | Filtración complementaria y esterilización U.V. | 5 | Suministro por 50 % /1 h |
| ALGAS EXTERIORES | 19 | 12 × 1 500 1 | Como 7–8 | 9 | Relleno |
| SALAS DIVERSAS | Filtración sobre arena | 2 | Para grifo de mesa |
Total máximo 122 m3/h sea 34 ρ/s.
El caudal máximo se estima a 1,5 l/s y la necesidad diaria a 15 m3.
Se ha previsto agua dulce caliente para todos lo grifos sobre mesa.
Previsto por bombeo desde algas interiores o exteriores hasta tanques de cría larval y por tubería PVC o manguera a nivel de los estanques.
Suspensión de las tuberías a las paredes o la estructura y pendiente de todos las secciones de tubos permitiendo un vacío y una desecacion cuando sea necesario.
Filtración sobre arena : 6 filtros con una superficie de filtracion de 0.6 m2 y flujo unitario de 30 m3/h (tipo BELLOW).
Filtración por cartucho : 4 filtros por flujo unitario de 25 m3/h y con cartucho polipropileno 10 micrones (tipo SIEBEC P900 o similar).
Filtración complementaria por filtro de cartucho 1/0.2 micrón.
Necesidad estimada a una potencia global de 1 236 Kcal/h. Con un rendimiento global de 0,75 % asumida por los equipos siguientes :
3 sopladores × 300 Nm3/h a 1 400 mbar (tipo SIEMENS) potencia 7,5 kw.
Tipo “GARHIN” en PVC (20 m3/h).
O algas tipo SIEBEC M500 (poliprileno).
Como explicado, los estanques de 20 m3 (18 m3 útil) (tipo U) y 10 m3 (circular) serán fabricados en los astilleros Chullima con las formas disponibles.
Sin embargo se aconseja ensanchar los diámetros de salida (5 pulgadas para cría larval y 4 pulgadas para maduración).
Los otros estanques podrán realizarse de acuerdo con los planos de FA.
Se recuerda que la lista siguiente se da a título indicativo pues la definición detallada con documentación será hecha por FA en el expediente técnico final.
Rollo de poliester transparente para ejecución de tanques o accesorios de cría ;
Tubo de drenaje ;
Cámara frigorífica ;
Máquina de hielo ;
Instrumentos científicos ;
Vidriería de laboratorio ;
Reja de plástico ;
Balanza de precisión ;
Microscopios ;
Autoclave ;
Destilador ;
Campana para microbiología ;
Diversos productos químicos y de bacteriología.
Origen : Italia.
Estructura en acero galvanizado.
Paredes de bloques con enlucido para cría larval = 3 tanques de 10 m2 y un tanque de 100 m2 en hormigón.
Este último tanque está equipado de 3 tanques de fibra de
vidrio en forma de
y de 20 m3 cada uno.
Comentarios :
Técnica tipo japones.
Calidad de la construcción generalmente muy buena.
Volumen de los estanques demasíado grande para un laboratorio piloto o experimental.
Mantenimiento general muy bien hecho.
Filtración de arena por filtro estático (sistema de concreto).
Filtración por cartucho (ABE TRADING/JAPAN).
Capacidad : 60 m2
Velocidad : 12 m3/h
M.P. = 7.5 kw
Grupo electrógeno = 55 KVA
Sopladores marca EBARA tipo “BOOSTER”
Presión = 1 kg/cm2
Capacidad = 3.3 m3/mm/30 KW
Equipo de calentamiento para pequeños tanques = resistencia elétrica al interior de los volúmenes.
Comentarios :
Filtración sobre arena a priori insuficiente, necesita filtro tipo piscina con presión.
Filtro cartucho = muy adaptado al proceso.
Los sopladores tipo “BOOSTER” corren el riesgo de mezclar aceite/ aire. Presión demasiado fuerte (máximo 0.5 kg/cm2).
Equipo eléctrico de calefacción = peligroso.
Salida de los estanques 20 m3 = 4 pg = un poco insuficiente.
Suministro de aire por tubo PVC perforado : Hay que lastrar estos.
Generalmente el diseño de las redes de suministro de agua no permite un vacío o un asecación parcial o total de la tubería (por elementos o no).
La tubería de PVC con válvulas marca ASAHI tiene un montaje muy bien realizado.
Almacenamiento afuera de los progenitores en tanques de hormigón.
Sala de maduración en edificio aparte.
Tanque de maduración = fibra de vidrio, diámetro 3,60 m espesor 4.5 mm, altura 1 m, fondo de conchas.
Suministro de agua : 10 % por día.
Desagüe por tubería 3 pg y canal central,
Suministro de aire sobre presión por 4 tubos y sistema tipo “air lift”.
Comentarios
Sistema de estanque muy cerca del principio F.A.. El sistema de desagüe por canal debajo de los tanques puede presentar un inconveniente para limpiar. Tasa de suministro de agua insuficiente (sistema F.A. prevé 200 % o 100 % con recirculación).
Cultivo de algas por tanques de diferentes volumenes, afuera. Suministro de aire sin CO2.
SANTA CRUZ DEL SUR - ESQUEMA DE ORGANIZACION DEL PROYECTO

(Construccion en curso)
(Ver esquema de conjunto anexo)
Se ha previsto un sistema de tratamiento del agua muy importante para este proyecto :
Más o menos 1 ha y media de tanques de decantación, reservorio y otros con muchos niveles de bombeo ;
Sin entrar en detalles, consideramos este tipo de sistema no solo inútil sino también peligroso para la calidad del agua.
Pues esto necesita un control bastante dificil del agua y un mantenimiento de todos los equipos necesarios (limpieza de tanques, tubería, etc.).
Utilizamos generalmente un sistema de suministro lo más directo posible desde la toma de agua de mar hasta la cría para evitar riesgos sanitarios.
Toma de agua por 2 tubos, diámetro 250 mm, sobre muelle de pilotes de 400 metros hasta una profundidad de más o menos 4 metros.
Edificio de bombeo (alrededor de 90 m2 (6 × 15 m) ) para la instalacion de dos bombas horizontales y diferentes equipos de filtración (bombas ITUR).
Comentarios:
El principio de estacada para la toma de agua es bastante pesado pero la fiabilidad deberá ser muy grande.
Bombas ITUR = F.A. no tiene experienca con estas bombas.
Edificio independiente, compuesto de 2 tramos 9 × 64 m (1 152 m2 más o menos).
Estructura de elementos en hormigón prefabricado.
Almacén exterior de progenitores con 4 × 8 estanques de hormigón de 50 m3 más o menos.
Sala de desove (4 × 10 m), cerca del principio F.A..
Sala de preparación de los progenitores.
Sala eclosión, independiente.
Comentarios :
Tipo de estructura bien adaptada al proceso. En el sistema F.A., el edificio de maduración no está separado del sistema de cría larval para simplifiar la circulación de las personas y las redes.
No utilizamos tampoco la sala de preparación de los progenitores.
Por otra parte se aconseja hacer los vuelos en las paredes y pisos a nivel de la construcción del edificio.
El edificio comprende 2 tramos de 9 × 65 (más o menos 1 200 m2) para dos salas de cría larval con :
Con un pasillo y desagüe central.
Además al centro y entre las dos salas el edificio tiene dos laboratorios de observacion y un sala para eclosion de artemias salinas.
La estructura de hormigón prefabricado es del mismo tipo que para la parte de maduración.
El techo tiene placas traslúcidas de color verde.
Comentarios
Teniendo en cuenta el progreso del trabajo (realizados más o menos 30 %) estos comentarios se refieren tanto a las obras como al diseño mismo del proyecto.
Como para la maduración, la estructura está bien adaptada pero la altura es demasiado grande (más de 3 m sobre los tanques).
La organización de la circulación no permite una buena isolación de cada cubículo, pues hay un pasillo central. El problema es el mismo para el desagüe, con un canal central pasando por todos los cubículos.
El proyecto definitivo de las redes no esta aún hecho, se aconseja seguir el proyecto técnico de F.A. para los diferentes principios de alimentación (agua, aire…).
No olvidar, pendiente suficiente a nivel del piso.
Por otra parte, la calidad de la finición de las obras parece convenir a las exigencias del proceso.
(Ver esquema de conjunto anexo)
Toma de agua por muelle de pilotes de acero hasta 400 metros más o menos de la costa y con 35 metros de profundidad. 3 tuberías de 200 mm de diámetro (uno para cada bomba), se ha previsto para el proyecto de cultivo intensivo, la extensión de las otras 3 bombas con tubería.
Bomba marca YOCOTA con sistema automático de cebado con bombas de vacío.
Capacidad 3,6 m3/mm para cada una
Grupo de emergencia 230 KVA.
Comentarios :
Por la misma razon que para Santa Cruz el sistema de toma de agua es demasiado pesado.
La capacidad de las bombas no conviene a las necesidades, pues hay un bombeo solamente hasta el estanque cercano (altura manométrica bastante importante trae problemas de cavitación).
3 sopladores mismo tipo que en SANTA CRUZ = ver otros comentarios ;
Sistema de filtro cartucho como en Santa Cruz = misma nota.
3 sistemas de bombeo desde el estanque :
Estanque→filtración→otro reservorio→maduración o cría larval.
Sistema de refrigeración del agua dulce por sopladores y grupo electrógeno de emergencia (230 KVA).
Comentarios :
Sistema de bombeo demasiado complicado (4 niveles de bomba) ;
La realización del sistema de calefacción acarrea una modificación y otra complicacion del sistema ;
Se aconseja un bombeo directo (sin reservorio) hasta las instalaciones de cría.

Es el mismo que el edificio de Santa Cruz con :
Más o menos 1 000 m2 de edificio (2 × 9 × 60 m);
Una sala de 32 tanques de 10 m3 ;
Una sala de preparación de los progenitores (sala de espera);
Laboratorio de observación;
Otra sala actualmente utilizada para almacenamiento de los equipos.
Almacenamiento exterior de los genitores con 4 × 8 estanques de concreto (72 T - 50 T cada uno).
Comentarios :
Misma que para Santa Cruz (problema de circulación).

Edificio de más o menos (60 × 18 m) (1 000 m2) con una sala de maduración y una sala de cría larval con cubículos (8) del mismo tipo que en Santa Cruz.
Esta parte esta en construcción (30 %) a nivel de la albañilería.
Comentarios :
Son los mismos que para Santa Cruz pero la organización de las salas se asemeja bastante al diseño de F.A. (maduración→desove→eclosión→cría larval).
Por otra parte la superficie global de maduración deberá ser bastante importante, así se puede aconsejar el acondicionamiento de la parte bodega provisional del otro edificio en sala de cría larval.
Producción teórica 5.106 larvas/tanques y ciclo, 2 × 4 tanques de hormigón de 170 m3.
Sala de artemia y preparación de genitores al interior de la sala (sin tabique).
Superficie del edificio : más o menos 1 200 m2.
Estructura de hormigón prefabricada.
Alimentación manual para algas exteriores.
Laboratorio extensivo funcionando desde hace 3 meses. Otro laboratorio = progreso más o menos de 30 %.
Nave maduración, operativa a 50 %.
Arranque del trabajo después de 2 años.
Aunque el asunto de la misión sea el estudio mismo de los laboratorios, se hace aquí una descripción muy sumaria de la camaronera.
Primera fase terminada = más o menos 20 × 10 ha ;
más zona de preengorde con estanques
de ½ y 1 ha ;
Segunda fase = trabajo en curso (más o menos 200 ha) a nivel de los movimientos de tierra ;
3 estaciones de bombeo previstas en Río Cauto, ulteriormente con un equipo de bombas verticales de 1 m3/s para cada una (actualmente bombas centrífugas horizontales rusas) ;
Renovación global de agua = 10 % por día con 3 compuertas de entrada y tres compuertas de salida ;
Las obras hidráulicas están constituídas de elementos de concreto prefabricados ;
Arranque de los trabajos después de 2 años para una superficie global prevista en la primera etapa de 650 ha más o menos.
Generalmente la calidad del trabajo es muy buena y la importancia de los medios mecánicos es grande.
Este sistema no ha sido aún definido para los laboratorios en curso de construcción. Entonces, se aconseja utilizar un sistema con intercambiador de placas de titanio y caldera como definido en la parte 3 del informe.
El diseño de este sistema se realizará en detalle en el expediente técnico final, con una definición precisa de todo los equipos que son necesarios.
Generalmente, el mejor rendimiento energético de este sistema representa una tasa de 80 % más o menos.
Por otra parte la utilización de un reservorio exterior para un calentamiento por tubería en acero inoxidable arrastrará problemas sanitarios adicionales y, complicación de la red y del mantenimiento.
Por otro lado, el cálculo de los desperdicios de temperatura dentro de los tanques (desove y maduración) depende de la isolación de los edificios, pero en este tipo de clima estos desperdicios no son de más de 3 grados por día. Entonces, en este caso no es útil de calentar el aire de las salas.
Como previsto en el contrato FAO, FA entregará en el plazo de dos meses un proyecto técnico para la realización del laboratorio de 160 millones de larvas al año.
Este expediente comprende los documentos siguientes :
Para las obras exteriores como estanques, estación de bombeo, toma de agua, red general de suministro, sistema desagüe, etc. F.A. no podrá entregar un diseño sin las informaciones necesarias siguientes :
Entonces la demora del estudio final dependerá de la entrega de estos documentos y también de la visita del ingeniero Cubano a FRANCIA. Sería interesante prever esta visita en TAHITI donde se encuentra la parte más importante de las instalaciones de ACUICULTURA TROPICAL y también una oficina de ingeniería.
ESTE EXPEDIENTE CONTIENE :
- Un informe
- Los planos siguientes :
-- 67-101 Plano del laboratorio

-- 67-102 Cortes

-- 67-103 Fachadas
![]()