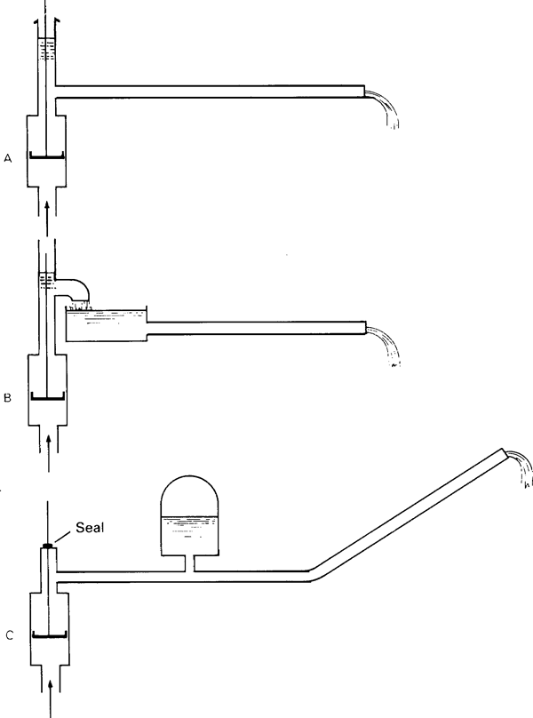
Water is for most practical purposes incompressible. Consequently, if a close fitting piston is drawn through a pipe full of water (Fig. 28 A), it will displace water along the pipe. Similarly, raising a piston in a submerged pipe will draw water up behind it to fill the vacuum which would otherwise occur (Fig. 28 B); this applies of course only up to a certain limit of the height water can be pulled by a vacuum, as discussed earlier in Section 2.1.5. In the first case water is displaced by the piston, but in the second case, the piston serves to create a vacuum and the water is actually displaced by atmospheric pressure pressing on its external surface, as indicated in the figure. So water car. be displaced either by "pushing" or by "pulling", but it can also be "displaced" by a solid object being pushed into water so that the level around it rises when there is no where else for the water to go, as indicated in Fig. 28 C.
Fig. 28 Basic principles of positive displacement pumps
The displacement principle can be applied either through reciprocating/cyclic mechanisms, or continuously via rotary devices.The following sections deal first with reciprocating displacement pumps and later with rotary displacement pumps.
The most common and well-known form of displacement pump is the piston or "bucket" pump, a common example of which is illustrated in Fig. 29. These work by applying both the principles shown in Fig. 28 A and B; i.e., in the example of Fig. 29, water is sucked into the cylinder through a check valve on the up-stroke, and the piston valve is held closed by the weight of water above it (as in Fig. 28 B); simultaneously, the water above the piston is propelled out of the pump as in Fig. 28 A. On the down-stroke, the lower check valve is held closed by both its weight and water pressure, while the similar valve in the piston is forced open as the trapped water is displaced through the piston ready for the next up-stroke.
Fig. 29 Hand pump with single-acting, bucket piston (piston valve shown open as on the down-stroke, and foot valve or inlet valve is closed)
Fig. 30 shows a typical traditional design of brass-lined cylinder borehole pump with a metal foot valve and a metal piston valve; the piston has two leather cup-washer seals (indicated on the diagram). The outer casing and end fittings are normally cast iron in a pump of this kind.
There are various basic relationships between the output or discharge rate (Q), piston diameter (d), stroke or length of piston travel (s), number of strokes per minute (n), and the volumetric efficiency, which is the percentage of the swept volume that is actually pumped per stroke (nVol):
Fig. 30 Piston pump for use in borehole
(multiplying by 60 gives Q in cubic metres per hour)
To use this result, if n is known in strokes/minute (or rpm), volumetric efficiency should be expressed as a decimal fraction (eg. 0.9), with d and s in metres. To convert the answer to litres per second simply divide the above answer by 3.6, (1 000 litres/m3 - 3 600 seconds per hour).
Volumetric efficiency may be expressed as a decimal fraction and is sometimes called "Coefficient of Discharge". Another commonly used and related term is "Slippage" (X); this is the difference between the swept volume per stroke and the output per stroke; i.e.:
Slippage arises partly because the valves take time to close, so they are often still open when the piston starts its upward travel, and also because of back leakage past piston or valve seats. Slippage is therefore normally less than unity, typically 0.1 or 0.2; it tends to be worse with shorter stroke pumps and with higher heads. With high flow rates at low heads, the moving water in the pipe can sometimes keep moving upwards with both valves remaining open for part of the down stroke so that discharge continues for part of the down stroke as well as on the up stroke. In such situations the "slippage" will be less than zero (known as "negative slip") i.e. the pump passes more water per stroke then its actual swept volume. In extreme cases with high speed pumping at low heads, the slippage can be in the region of -0.5, giving an equivalent volumetric efficiency in the region of 150%.
The force (F) required to lift the piston, will be the weight of the piston and pump rods (Wp), plus the weight of the column of water having a cross section equal to the piston area and a height equal to the head (H). There is also a dynamic load which is the force needed to accelerate these masses. If the acceleration is small, we can ignore the dynamic forces, but in many cases the dynamic forces can be large; dynamic loads due to accelerating water are discussed later in Section 3.5.4. In principle, the dynamic force, to be added to the static force, will be the summed product of the mass and acceleration of all moving components (i.e. water, plus piston, plus pump rod). In situations such as boreholes, where the pump rods are submerged within the rising main, their weight will be partially offset by an upward buoyancy force due to displacing water (see Fig. 38), which also should come into the equation. However this is not a text book on pump theory, so if we ignore possible "second order effects" such as buoyancy of pump rods and the dynamic forces, for simplicity, we arrive at a figure for the primary "static" force necessary to initiate movement of the piston;
if Wp is in Newtons (or
kilograms X 9.81), A is in m2, p the density of water is
1,000 kg/m3, g is 9.81 m/s2 and H is in metres, then F
will be in Newtons.
If the pump rod is connected to a lever, as in a hand pump (Fig. 29), then the downward force required to lift the pump rod will be reduced by the ratio of the leverage, however, the distance the hand of the operator will have to move, compared with the stroke, will be proportionately increased.
The pump rod can also be connected to a flywheel via a crank (as in Figs. 31 and 89); this is the coventional way of mechanizing a reciprocating piston pump. The torque (or rotational couple) needed to make the crank or flywheel turn will vary depending on the position of the crank. When the piston is at the bottom of its travel (bottom dead centre or b.d.c), marked as "a" on the figure, the torque will be zero as the pump rod pull is acting at right angles to the direction of movement of the crank and simply hangs on the crank; as it rotates to the horizontal position marked "b", the torque will increase sinusoidally to a maximum value of Fs/2 (force F times the leverage which is s/2); the resisting force will then decrease sinusoidally to zero at top dead centre (t.d.c.) marked "c". Beyond t.d.c. the weight of the pump rod and piston will actually help to pull the crank around and while the piston is moving down the water imposes no significant force on it other than friction. If, for convenience, we assume the weight of the piston and pump rod is more or less cancelled out by friction and dynamic effects, the torque is effectively zero for the half cycle from t.d.c. at "c" through "d" to "a" at b.d.c. where the cycle restarts. The small graph alongside the sketch in Fig. 31 illustrates the variation of torque with crank, position through two complete revolutions; anyone who has turned a direct driven hand pump via a crank and hand-wheel will have experienced how the load builds up in this way for a quarter cycle and falls back to (near) zero for the next quarter cycle.
Fig. 31Crank operated piston pump (valve details not indicated)
If the crank has a flywheel attached to it, as it normally will, then the momentum of the flywheel will smooth out these cyclic fluctuations by slowing down very slightly (too little to be noticeable) during the "a-b-c" part of the cycle and speeding up during the "c-d-a" part, as illustrated by the broken line following the first revolution in the graph in Fig. 31. If the flywheel is large, then it will smooth the fluctuations in cyclic torque to an almost steady level approximating to the mean value of the notched curve in the figure. The mean value of half a sine wave, to which this curve approximates, is the peak value divided by pi (-), (where π = 3.142). Therefore:
Therefore, the torque necessary to turn a crank through its first revolution will be about K (i.e. approximately three) times greater than the mean torque which is needed to maintain steady running. Many prime movers cannot readily produce three times the torque needed for running in order to start a pump, and even with those that can, there is usually a price to pay to achieve this requirement. This is one reason why centrifugal pumps rather than piston pumps are more commonly used with engines and electric motors, as they actually need less torque to start them than to run them.
Power can be calculated as the product of speed and torque. Hence if the rotational speed is n ( rpm) then a measure of power can be obtained as:
A single-acting pump only discharges water when the piston rises (if mounted vertically) and the down stroke is utilised simply to displace more water into the working space ready for the next stroke. It is possible to arrange things so that while one side of the piston displaces water to discharge it, the other induces more water, so that discharge takes place on both the up and the down stroke. Such pumps are known as "double-acting" pumps and are significantly more productive for their size than single-acting ones.
Fig. 32, diagrams A to H, illustrate various reciprocating displacement pump principles, and shows various single and double-acting configurations:
Diagram A in the figure shows a conventional single acting pitcher pump, as in Fig. 29.
Diagram B shows how, if the water needs to be delivered to a level higher than the point at which the pump rod enters the pump, a sealed "lid" is needed to prevent leakage. The seal is usually achieved by fitting a stuffing box through which the pump rod passes.
Diagram C is a piston pump in which the cylinder carries no valve; in principle it is similar to the pump in diagram B. It has the advantage that no stuffing box is needed, but it has the disadvantage that the discharge stroke requires the piston to be pushed rather than pulled, which needs a much stiffer pump rod in order to avoid buckling. There can also be problems with this kind of pump because the direction of motion of the water is reversed. This action can only be performed slowly, especially at low heads with large volumes of water per stroke, or sudden stopping and starting of the mass of the water will cause "water hammer" (much as when a tap or valve is suddenly closed and causes a "bang" in the pipes). Water hammer can damage or even burst a water system and is of course to be avoided. Pumps of this kind are therefore unusual today.
Diagram D is a similar pump to C, except it is a plunger pump rather than a piston pump. Here a solid plunger, sealed with a large diameter stuffing box or gland packing displaces the water; this is a more robust pump than C. The main justification for using plunger pumps is that the piston or plunger seals are less prone to wear through abrasive solids in the water, and also, where very high pressures and low flow rates are needed, a smaller plunger or closed piston is possible because a through valve is not needed through its centre. Therefore the main use today for pumps of this kind is for pumping small volumes of water up to very high pressures or heads, such as for reverse osmosis desalination plants, where pressures of the order of 300m of water are required. The plunger pump also suffers from the flow reversal problem of pump C, but this is less serious where small flow rates at high heads are involved. However the diagram shows a pump with air chambers below the inlet valve and above the delivery valve which are necessary to cushion the shocks caused by sudden reversal of flow direction, as explained in more detail in Section 3.5.4. Plunger pumps offered a manufacturing advantage in the past, in that it was sometimes easier to produce a good external finish on a plunger than inside a cylinder, but modern pump production techniques have reduced this advantage.
Diagram E indicates one of several methods to obtain large valve openings; this is important for low head pumps where high flow rates are required and it is necessary to minimise the hydraulic losses caused by forcing a lot of water through a small opening. Here the piston is external to a seal rather than internal to a cylinder; another way of looking at it is that a cylinder is being pulled up and down over a fixed piston.
Diagram F shows a pump that is similar in principle to that in C, but double-acting. Here when the piston is on the upstroke it induces water into the lower chamber and discharges from the upper, while on the downstroke water is induced into the upper chamber and discharged from the lower. The same points that apply to pump C apply to this design.
Fig. 32 Different types of reciprocating displacement pumps
Pump G is known as a differential pump and is also double-acting; the pump rod is of a large diameter where it enters the upper chamber and if it is sized so that its cross-sectional area is exactly half -he cross sectional area of the chamber, it will therefore displace half the volume of the chamber on the downstroke (the principle being as for plunger pump D), but on the up stroke, the other half of the volume will be discharged by the upward movement of the piston, as for bucket pump B.
Pump H applies a similar differential double-acting principle to pump G, but uses a closed piston as for pump C, and apart from being a more complicated arrangement, will be more prone to water hammer due to the flow reversal involved in both chambers.
Of the above configurations, only A, B, E and G are generally appropriate for irrigation pumping duties.
Although more complicated than single-acting pumps, double-acting pumps have considerably smoother outputs, and a smoother torque requirement. They were therefore widely used in conjunction with reciprocating steam engines, but the move to mechanize with electric motors or high-speed diesel engines has made them rarely used today, mainly because they have the following disadvantages:
All this involves heavier more precisely engineered components in the drive train, which generally adds to the cost. Therefore, the trend in recent years has been to restrict the use of piston pumps to simple single-acting bucket pumps where their essential simplicity and low cost provide the justification for choosing them.
Fig. 33 shows details of a typical borehole pump's piston and foot-valve. The simplest type of seal, commonly used in single-acting bucket pumps, is the leather cup washer as shown. Suitable grades of leather, commonly impregnated with "neatsfoot oil" boiled from the hooves of cattle, will function for surprisingly long periods (several years) in smooth drawn brass cylinders, or in smooth PVC. With the high cost of servicing deep boreholes, it is worth paying a premium to get a good life out of pump seals. Various synthetic leather "compound" materials based on plastics have been used for seals; these are often more consistent in their performance than leather and will often have bettor wear resistant characteristics.
Fig. 33 Vertical section through a borehole pump (with extractable foot valve)
Pistons can also be sealed by packings or piston rings. Packings generally need to be compressed by a certain optimum amount; too much compression, and friction and wear become excessive, while too little and there is excessive leakage around the piston. Graphited asbestos is the traditional industrial packing material but graphited PTFE (poly-tetrafluoroethylene) is now becoming available and offers superior sealing and wear characteristics. Similar packings are used around pump rod seals for reciprocating pumps and also sometimes for shaft seals on various rotary pumps. In all these applications they are generally compressed by screwing down a fitting against them in order to provide the sealing pressure; this needs regular adjustment.
All reciprocating pumps (and some rotary pumps) depend on check valves (sometimes Known as non-return valves) which as their name suggests, allow water to flow one way but not the other. There are basically three categories of check valve:
Fig. 34 shows a typical check valve design of the kind that may be used in a reciprocating pump. Valves are invariably opened by the difference in water pressure across them created by piston movement, but they may be closed again either by their own weight usually in combination with the weight of water trying to flow backwards. In some cases closing is assisted by a light spring, (as shown in the figure). Valve springs are usually made of bronze to avoid corrosion problems, but alternatively, valves may be made from an elastic material like rubber.
Fig. 34 Typical pump valve (shown open in cross-section)
The main requirements of valves are a good seal when closed combined with lack of resistance to flow when they are open, and rapid opening and closing while achieving good durability. Usually rubber or alternatively precision ground metal mating surfaces are necessary to ensure there are no leakage gaps when the valve is closed. Effective sealing is particularly important with foot valves. To offer as little resistance to flow as possible when open (and to be capable of opening and closing quickly) demands large port areas with as few changes of flow direction as possible and sharp surfaces that can cause turbulence minimized. A rule of thumb sometimes used is that the suction valve should have a port area of at least two-thirds of the piston area, while the discharge valve (or piston valve) should have an area of at least half the piston area, [14]. Finally, rapid opening and closing (to minimise back-leakage) depends on light weight for the valve, combined with a short travel; light weight can demand a trade-off with robustness and durability, while short travel conflicts to some extent with the need for a good unobstructed passage for water when the valve is open. Therefore all valves are a compromise in achieving conflicting requirements.
Finally, valves are the main mechanical components of a pump and so are subject to wear and tear. It is therefore desirable to use pumps in which the valves and their seats can readily (and inexpensively) be replaced when necessary.
A reciprocating pump moves water in a non-continuous manner, so the water is constantly accelerated and decelerated by the movement of the piston. Very large forces can be created if long pipelines containing a large mass of water are directly connected to a reciprocating pump. This is because the pump piston tries to force the water in the pipeline to move rapidly from rest to speed, and then back to rest; since water is incompressible it will try and follow the motion of the piston. Therefore reciprocating pumps need to be isolated from water in long pipelines by methods described shortly, in order to cushion the water in the pipeline from the motion of the piston.
To gain an appreciation of the damage that can happen and the consequent importance of isolating reciprocating pumps from pipelines, it is worth running through some simple calculations to quantify the forces concerned. Fig. 35 illustrates a simple piston pump (diameter D by stroke S) with a long length (L) of delivery pipeline (diameter d). Newton's Laws of Motion, state that a force is necessary to accelerate a mass from one velocity to another (or from rest); this force is numerically equal to the product of the mass and the acceleration at any moment in time. If we assume the pump piston is driven sinusoidally, (as it would be if driven by a steadily revolving crank, having a long connecting rod in relation to the stroke), then the maximum acceleration of the piston (and hence of water being propelled by it) will be Amax, where:

where w is the angular velocity of the driving crank in radians/second; (2.radians = 1 revolution or 360°).
The acceleration of the water in the pump will be magnified for the water in the pipe, since if the pipe cross sectional area is smaller than that of the pump, a higher velocity will be needed to pass the same flow of water, and hence a proportionately higher acceleration to reach the higher velocity. The magnification will be proportional to the ratio of pump cross sectional area to pipe cross sectional area, which in turn is proportional to the ratio of their diameters squared; hence the acceleration of water in the pipeline will be:

Fig. 35 Piston pump connected to a pipeline
The force necessary to achieve this acceleration for the water in the pipeline will be equal to the mass of water flowing multiplied by its acceleration. The mass is the volume of water in the pipe times its density; hence the accelerating force is:

the maximum force will occur at the moment of maximum acceleration. So, assuming sinusoidal motion of the piston and the flow, this is numerically such that:

Hence, if m is the mass of water in the pipeline:

For example: suppose we consider a pump of 100mm diameter, connected to a pipeline of 50mm diameter, density of water 1 000kg/m3, a crank speed of60rpm (which is 1 rev/s or (1 x 2 )rad/s) and a stroke of 300mm (0.3m), then:

In other words, there is a peak reaction force due to the water in the pipe of 46.5N per metre of pipe, due to sinusoidal acceleration under the conditions described. A 100m pipeline will therefore, with conditions as specified, experience peak forces of 4 650N while a 1 km pipeline will experience 46 500N - and so will the pump in both cases; (46 500N is the equivalent of about 4.5 tonne, or 10 000 lb).
Since this force is proportional to the square of the pump speed, doubling the pump speed to 120 strokes per minute will impose four times the acceleration and hence four times the force. Even such modest pump speeds (by rotary pump standards) as say a few hundred rpm will therefore impose impossible accelerative forces on the water in the pipe line unless it is isolated or cushioned from the motion of the pump piston.
In reality, the situation is not quite as bad, as even steel pipes are flexible and will expand slightly to take the shocks. But in some respects it can also be worse, because when valves slam shut, very brief but large shock accelerations can be applied to the water; these are known as "water hammer" because of the hammering noise when this happens. Water hammer shocks can damage both a pump, and its prime mover, as well as possibly causing burst pipes or other problems.
The same problem can occur on suction lines as well as on delivery lines, except that a sudden drop of pressure caused by high flow velocities can cause "cavitation" where bubbles of water vapour and dissolved air suddenly form. When the pressure increases again slightly, the bubbles can then suddenly catch up and the bubble will implode violently causing water hammer.
When the pump outlet is set close to or above the pipeline discharge level, there is no great problem because the pipeline can be de-coupled from the pump by feeding into a small tank which can then gravity feed the pipeline steadily; see Fig. 36 B. Alternatively, a riser open to the atmosphere in the pipeline near to or over the pump can achieve the same effect (as in Fig. 36 A); because the pump rod can go down the riser it neatly avoids the need for a seal or stuffing box.
Where the pump delivers into a pipeline which discharges at a significantly higher level, it is generally not practical to have a riser open to the atmosphere at or near the pump, since it obviously would have to extend to a height above the level of the discharge. The solution generally applied in all such cases where more then a few metres of suction or delivery line are connected to a reciprocating pump is to place an air chamber or other form of hydraulic shock absorber between the pump and the pipeline (Fig 36 C) and always as close to the pump as possible to minimize the mass of water that is forced to follow the accelerations of the piston. Then when water from the pump seeks to travel faster than the water in the pipeline it will by preference flow into the air chamber and compress the air inside it. When the piston slows so that the water in the pipeline is travelling faster than that from the pump, the extra water can flow out of the airchamber due to a slight drop in pressure in the pipeline and "fill the gap". In otherwords, an air chamber serves to smooth the flow by absorbing "peaks" in a reciprocating output and then filling the "troughs" that follow the peaks.
Fig. 36 Three methods for isolating reciprocating pumps from pipelines
A. Open
riser (also avoids need for pump rod seal) but only suitable where
riser can be above pipeline discharge level
B. Gravity
pipeline from small tank near pump
C. Air
chamber; necessary when discharge is significantly higher than
pump
Air chambers are generally vital on long or on large capacity pipelines when using a reciprocating pump (eg. Fig. 106), but they are well worth their extra cost not only in reducing wear and tear, but also the peak velocity of water in the pipeline will be reduced which in turn reduces pipe friction; this reduces the power requirement and saves pumping energy.
A special problem with air chambers on delivery lines is that the air in the chamber can gradually dissolve in the water and be carried away, until there is no air left and water hammer then occurs. Therefore simple air chambers usually require regular draining to replenish their air by opening a drain plug and an air bleed screw simultaneously, obviously when pumping is not taking place. Suction line air chambers are usually replenished by air coming out of solution from the water, although when air-free groundwater is being drawn, a small air snifting valve may be needed to deliberately leak in a minute flow of air and prevent the chamber losing its air volume. Industrial air chambers sometimes contain a sealed rubber bag which will retain its air indefinitely; these are recommended in situations where regular attention cannot be guaranteed. Spring loaded hydraulic shock absorbers have also been used in the past instead of air chambers (Fig. 37). Another useful alternative is to pump into a rubber or other type of flexible pipe which is less prone to water hammer than a steel pipeline. Care must be taken with rigid plastic pipelines as they can easily be broken by water hammer, especially in cold weather when they tend to be more brittle.
A typical size for an air chamber will be around twice the swept volume of the pump, however it will need to be larger to cater for more severe flow irregularities or long delivery lines generally.
When groundwater is deep, or the ground is hard to dig, boreholes are generally quicker and less expensive to construct than dug wells. Most boreholes are lined with either a 100mm or 150mm (4in or 6in) steel rising main, so the pump must be small enough in diameter to fit down it. Fig. 38 illustrates a typical borehole with a piston pump in it.
Fig. 33 shows a typical borehole piston pump; because bore hole diameters need to be kept small (large boreholes are very expensive to drill) the best way to obtain a larger output from a borehole pump is to increase its stroke. The speed of operation of borehole pumps is usually restricted to about 30 strokes a minute, although a few operate at up to 50 strokes per minute. Higher pumping speeds tend to buckle the long train of pump rods by not giving the pump rods and piston sufficient time to fall back on the down stroke under gravity. Obviously, with any depth of borehole, it is important to avoid compressing the pump rods, or they may buckle and jam against the sides of the rising main.
The normal method of installing or removing a pump from a borehole is to raise the entire rising main using block and tackle or a crane, section by section. The procedure is to lift a complete section clear of the well; clamp the next section below it and lower the whole assembly so it hangs on the clamp. The top 6m (20ft) section standing clear of the well can then be unscrewed and the process is then repeated. Since this is a long and expensive process, it is important to minimize the number of times it is necessary to do this in the life of a borehole. It is common therefore to install pumps with a piston diameter slightly smaller than the diameter of the rising main, especially on deep boreholes. This allows the piston to be pulled up through the rising main by lifting only the pump rods. In fact, Fig. 33 shows an extractable borehole pump of this kind; this pumps is designed so that the footvalve can also be removed without removing the cylinder and rising main. One method, as shown in the figure, is where a loop on top of the footvalve can be fished for, caught, and used to pull it out. Alternatively, with some other types of footvalves, the pump rod is disconnected from the drive at the surface, and the piston can then be lowered onto the footvalve, which has a threaded spigot on top of it which will screw into the base of the piston if the pump rods are twisted. Then when the pump rods are raised, both footvalve and piston can be drawn up to the surface together. The importance of this is that piston and footvalve seals are the primary wearing parts needing regular replacement. Therefore, the ease with which a borehole pump can be overhauled is an important consideration for all but the shallowest of boreholes.
Fig. 37 Hydraulic shock absorber can serve as an alternative to an air chamber, especially with very high pressure pipelines
Fig. 38 Schematic cross-section through a borehole
Pump rods can be improvised from galvanized water pipe joined with standard pipe sockets, but properly purpose-designed pump rods are commercially available, and although more expensive, are more easily connected or disconnected and are also less likely to break or to come unscrewed. A broken pump rod at best is difficult to recover and at worst can mean the loss of an expensive borehole. Where wood of suitable (very high) quality is available, plus appropriate couplings, wooden pump rods have the advantage that they do not impose any extra weight, which hinders initial start up of a reciprocating pump in a borehole, because they float in the water of the rising main.
The main attraction of using reciprocating pumps driven by tensile pump rods in boreholes is that they are essentially simple and the better commercial products have become highly reliable in operation. Typically, pump rods in tension can pull well over a tonne, allowing the use of this type of system on boreholes as deep as 300m (1000ft); this is the standard system used for farm windpumps and quite a few of the more traditional diesel powered systems use a gearbox and pitman mechanism to drive a reciprocating borehole pump in exactly the same way.
A common problem with boreholes is that they are often not truly vertical and sometimes they are curved, making any pump rods scrape the rising main and eventually wear a hole in it. Sometimes boreholes start off straight and earth movements cause subsequent distortion of the bore. Also, removing a pump to change its seals, with its long train of pumprods is a slow and expensive operation. Therefore there has been an incentive to find other methods of driving borehole pumps than by pump rods.
An alternative method for powering reciprocating borehole pumps to pump rods, is with an hydraulic transmission. Here water under pressure is used to push more water to the surface.
An example is the Vergnet "Hydro-pompe", illustrated in Fig. 39, which has been quite successfully used for small water supplies, particularly in the West African Sahel region, but the output is probably on the low side for most irrigation applications. It works by a foot pedal which is mounted on a pilot piston to force water down a flexible pipe. The pump cylinder, which is located below water level in the well or borehole, has a conventional "suction valve" or foot valve and strainer, a pump chamber, and at the top of the chamber a discharge check valve with a discharge pipe leading up to the surface above it. Instead of a piston to displace water in the cylinder there is what Vergnet call a "Diaphragmatic Hose", this is in fact an elastic bladder which expands to displace water from the pump chamber when the foot pedal is depressed and pumps water into it. A similar hydraulic transmission, called the "Hidromite" system, for driving a reciprocating borehole pump, was developed in Australia mainly for use with windmills. Here the windmill, (or other prime-mover), drives a master piston located at the surface. This is a double-acting water pump connected by two hydraulic transmission pipes to a slave piston at the bottom of the borehole, directly connected by a short pump rod to the actual pump piston below it, which operates in the conventional way.
Although hydraulic transmission units are quite attractive in some respects compared with pump rods, they are significantly more complicated and expensive. Their efficiency is also likely to be lower, due to the extra pipe friction involved in moving the water needed to power the submerged pump.
Fig. 39 The Vergnet hydraulic foot-pump
An alternative to the use of a piston in a cylinder for pumping is to fit one wall of a pump chamber with a flexible diaphragm which when moved in and out displaces water (see Fig. 40). Here the left hand valve is analagous to the foot valve of a piston pump and the right hand one is the delivery valve.
In general, the advantages of a diaphragm pump are:
There are however also disadvantages:
Fig. 41 shows a foot-operated, double-acting diaphragm pump developed by the International Rice Research Institute (IRRI) in the Philippines for irrigation purposes. Unlike traditional devices such as Dhones or Shadoofs, this pump is portable {ay two men) and can therefore be moved along an irrigation canal in order to flood one paddy after the other. However it is less efficient than the better traditional water lifters.
Fig. 42 shows a commercially manufactured, double-acting diaphragm pump that is mostly used for purposes such as dewatering building sites; it has the advantage of being portable, reasonably efficient and well suited to low heads and can deliver quite high outputs, so it, or similar designs, could equally be used for irrigating small landholdings. A pump of this kind was well liked by Ethiopian farmers irrigating small plots from the Omo River in a training project in which the author was involved [15].
Fig. 40 Cross-section of a diaphragm pump
Fig. 41 Schematic drawing of the IRRI foot-operated diaphragm pump
Fig. 42 Commercial portable double acting diaphragm pump
One type of diaphragm pump that can be improvized and which reportedly works reasonably well at low heads is a design based on the use of an old car tyre as the flexible member (Fig. 43). Worn car tyres are of course widely available. The principle of this pump is to make a chamber by fitting end-plates into the openings of the tyre so that one is anchored and the other can be forced up and down. If suitable check valves are provided, this can make an adequate diaphragm pump. The prospective user should not underestimate the constructional requirements to make an adequately reliable device of this kind. For example a typical car tyre of 400mm overall diameter will have an effective area of 0.126m2; this requires a force of 1 230N per m head; i.e. only 3m lift requires nearly 3 700N pull to displace any water (this is the equivalent of 376kg force or 830 lb). Robust fixings and connections are therefore needed to prevent such a pump coming apart, even at quite low heads. One further problem reported with car tyre pumps is that they do not work well as suction pumps because the internal structure of a tyre can separate from the outer rubber casing when repeatedly pulled by suction pressures. Tyre pumps could make a useful high-volume low-head pump however, providing they are skillfully constructed, to be powered perhaps by two people working a suitably strong lever, and providing they operate submerged or with limited suction lift.
A form of reciprocating positive displacement pump, using the same principles as a piston pump, is the semi-rotary pump. Here a pivoted plate, or "bucket vane" can be reciprocated, like a door on hinges, through about 270° within a circular chamber. It alternately draws water from one side and then the other through check valves. The semi-rotary pump is mostly used as a hand-pump, often for pumping kerosene and fuel oils rather than water, and has only a small capacity. It is also sensitive to any dirt in the water, which can easily jam it. It is therefore unlikely to be useful for irrigation purposes and is simply mentioned for completeness.
Water can be displaced by a gas or vapour as readily as by a solid. A number of air and vapour displacement pumps were manufactured at the beginning of this century. The former rely on air delivered by an engine-driven compressor, while the latter generally used steam to displace water directly, rather than through the intermediary of a steam engine and pump. The Humphrey Pump is an analagous device which uses the gases generated in an internal combustion engine cycle to displace water directly in much the same way. Both compressed air and steam displacement pumps suffer from being inherently inefficient, as well as being massive (and hence expensive) in relation to their pumping capacity, but in contrast the Humphrey Pump is actually more efficient than most comparably sized conventional i.e. engine pumping systems, although it is also quite large.
Fig. 44 shows the principle of the Humphrey Pump, which consists in effect of a conventional four-stroke i.e. engine cylinder head mounted on top of a pipe which forms the working space. This is in turn connected to a long horizontal pipe and a riser to the discharge level. The working space pipe is located over the water source and there are inlet valves to allow water to enter the system below. The Humphrey Pump cycle is similar to a standard four-stroke piston engine except that instead of the engine having a metal piston driving a crank shaft, the water in the working space acts as a piston. All the Humphrey Pumps so far built could only run on gaseous fuels such as coal gas or natural gas because of difficulties with vaporising liquid petroleum fuels successfully under the cool cylinder conditions which occur when cold water acts as a piston.
Fig. 43 Detail of the New Alchemy Institute (USA) tyre pump Principle of operation of a 4-stroke Humphrey pump
Fig. 44 The Humphrey pump: a liquid piston internal combustion engine and pump combined
The Humphrey Pump's cycle is sequenced by a pressure sensor which controls a simple linkage to open and close the exhaust and inlet valves on the cylinder head at the correct times. The water in the long horizontal "U" pipe and riser oscillates, to provide the induction and compression strokes, before being driven forcibly along the pipe by the firing stroke. A vacuum created behind the departing column of water causes more water to be induced through the inlet valves.
Humphrey Pumps were used for irrigation projects in the USA, and Australia in the early part of this century, with some success, and the University of Reading in England has developed a modern small scale prototype intended for irrigation pumping with biomass fuels.
The main advantage of the Humphrey Pump other than good fuel efficiency, is its great mechanical simplicity. It therefore can readily handle muddy or sandy water and has the potential for extreme reliability, yet requires very little maintenance. The main negative features are the need for gaseous fuels and it can only readily operate from water sources where the water level does not change much.
There is a group of devices which utilize the displacement principle for lifting or moving water, but which achieve this by using a rotating form of displacer. These generally produce a continuous, or sometimes a slightly pulsed, water output. The main advantage of rotary devices is that they lend themselves readily to mechanization and to high speed operation. The faster a device can be operated the larger the output in relation to its size and the better its productivity and cost-effectiveness. Also, steady drive conditions tend to avoid some of the problems of water hammer and cavitation that can affect reciprocating devices.
Centrifugal pumps, which use a different principle and are described later, have in fact become the most general mechanized form of pump precisely because they can be directly driven from internal combustion engines or from electric motors. But rotary positive displacement pumps have unique advantages over centrifugal pumps in certain specialized situations, particularly in being able to operate with a much wider range of speeds or heads.
Some types of rotary positive displacement pump have their origins among the earliest forms of technology (eg.the Archimedean Screw), and even today lend themselves to local improvization. In the past, industrially manufactured rotary pumps were less successful than centrifugal ones, possibly because they suffered from a number of constructional and materials problems. But modern, tougher and more durable plastics and synthetic rubbers may well be an important factor in encouraging the manufacture of a number of new types of rotary positive displacement pumps which could be advantageous in some situations, as will be described.
Here a flexible toothed rotor is used, generally made of rubber, Fig. 45. This is very simple in concept, being like a revolving door, but it can involve both considerable friction and significant back leakage. It cannot therefore be considered as an efficient type of pump. On the positive side, it will readily self-prime and can achieve a high head at low rotational speeds. Much will depend on the quality of the rotor material and the type of internal surface of the casing so far as both friction and durability are concerned.
Another similar type, developed recently by Permaprop Pumpen in Germany, has an endless rubber toothed belt which is driven around two pulleys; (see Fig. 46). As it curves around a pulley, the teeth on the belt spread apart and increase the volume between them, thereby drawing in water. The diagram shows how both sides of the chamber simultaneously pump in opposite" directions, and suitable channels in the casing direct the water. The advantages claimed by the manufacturers are, inter alia, that it can run on "snore" indefinitely - (i.e. pumping a mixture of air and water), it will readily self-prime and suck water up to 8m and lift it a further 45m under the power of a small portable single cylinder engine. It is therefore a much more versatile pump than the equivalent centrifugal pump, but it is more complicated and expensive.
Fig. 45 A flexible vane pump
Fig. 46 The Permaprop tooth pump
None of the rotary pumps so far reviewed lend themselves to being lowered down boreholes; in fact their main selling point is as suction pumps. However, the "progressive cavity pump (see Fig. 47) is unique in being a commercially available rotary positive displacement pump that readily fits down boreholes. This is a great advantage because positive displacement pumps can cope much more readily with variations in pumping head than centrifugal pumps. Therefore, any situation where the level may change significantly with the seasons or due to drawdown, or even where the drawdown is uncertain or unknown, makes the progressive cavity pump an attractive option. It also has a reputation for reliability, particularly with corrosive or abrasive impurities in the water. The reasons for this relate to good construction materials combined with a mechanically simple mode of operation.
Fig. 47 shows that this pump consists of just a single-helix rotor inserted in a double-helix stator. A single helix is rather like a simple spiral staircase while a double means two intertwined helixes. The stator helix is usually made from chromium plated steel or from stainless steel with a polished surface finish, and is circular in cross section and fits accurately into one of the two helices of the stator. The stator is usually moulded from rubber or plastic and the cross-section of its internal helix is oval, similar to two circles similar to the rotor abutting each other. A feature of the geometry of this type of pump is that the empty second start of the stator is divided into a number of separated empty voids, blocked from each other by the solid single start rotor. When the rotor is turned, these voids are screwed along the axis of rotation, so that when "he assembly is submerged, discrete volumes of water will be trapped between the single start rotor helix and the inside of the double start stator in the voids and when the shaft is rotated these volumes of water are pushed upwards and discharged into a rising main.
Fig. 47 Progressive cavity pump
Schematic
cross-section to illustrate principle of Archimedean screw
Pumps of this kind are usually driven at speeds of typically 1000 rpm or more, and when installed down a borehole they require a long drive shaft which is guided in the rising main by water lubricated "spider bearings" usually made of rubber. Although friction forces exist between the rotor and stator, they are reduced by the lubricating effect of the flow of water, and they act at a small radius so that they do not cause much loss of efficiency. Progressive cavity pumps therefore have been shown to be comparably efficient to multi-stage centrifugal pumps and reciprocating positive displacement pumps under appropriate operating conditions. Their main disadvantage is their need for specialized components which cannot be improvized and their quite high cost; however, high cost is unfortunately a feature common to all types of good quality borehole pump and is usually justified by the need to minimise the frequency of the expensive procedure of removing and overhauling any pump from a deep borehole.
The progressive cavity pump can be "sticky" to start - i.e. it needs more starting torque than running torque (similarly to a piston pump) to unstick the rotor from the stator and get the water that lubricates the rotor flowing. This can cause start-up problems if electric motors or engines are used, but certain improved versions of this kind of pump include features which reduce or overcome this problem.
The progressive cavity pump is one of the more recent pump concepts to appear, while the Archimedean screw is one of the oldest, yet they have a number of similarities.
Fig. 48 illustrates a typical Archimedean screw pump (and an animal-powered version is shown in Fig. 97). The traditional version of this pump, built since before Roman times and still used in a similar form in Egypt, is made up of a helix of square cross-section wooden strips threaded onto a metal shaft and encased in a tube of wooden staves, bound like a barrel with metal bands.
The Archimedean screw can only operate through low heads, since it is mounted with its axis inclined so its lower end picks up water from the water source and the upper end discharges into a channel. Each design has an optimum angle of inclination, usually in the region of 30°1 to 40 °, depending on the pitch and the diameter of the internal helix.
The principle is that water is picked up by the submerged end of the helix each time it dips below the surface, and as it rotates a pool of water gets trapped in the enclosed space between the casing and the lower part of each turn. As the whole assembly rotates, so the helix itself screws each trapped pool of water smoothly further up the casing until it discharges from the opening at its top; the water pools move much as a nut will screw itself up a bolt when prevented from rotating with it. This is also analagous to the trapped volumes of water screwed between the rotor and stator of progressive cavity pumps.
Traditional wooden Archimedean screws of the kind just described have been tested and found to have efficencies in the region of 30%.
Fig. 48 An Archimedean screw. Two men are needed if the water head is more than 0.6 metres (See also Fig. 97 for an animal-powered version) (after Schioler [24])
The modern version of the Archimedean screw is the screw pump, Pig. 49. This consists of a helical steel screw welded around a steel tubular shaft, however unlike an Archimedean screw, there is no casing fixed to the screw, but it is mounted instead in a close fitting, but not quite touching, semi-circular cross-section inclined channel. The channel is usually formed accurately in screeded concrete. Because of the clearance between the screw and its channel, some back-leakage is inevitable, but the total flow rate produced by a screw pump is so large that the backflow is but a small percentage. Therefore modern screw pumps can achieve high efficiencies in the region of 60-70%.
Their primary advantage is that the installation and civil workings are relatively simple, compared with those for large axial flow pumps necessary to produce the same volume of output (which would need a, concrete sump and elaborate large diameter pipework as in Fig. 66). Also, the screw can easily handle muddy or sandy water and any floating debris, which is readily pulled up with the water.
Probably the main disadvantage of screw pumps is that an elaborate transmission system is needed to gear down an electric motor or diesel engine drive unit from typically 1500 rpm to the 20-40 rpm which is normally needed. Mechanical transmissions for such a large reduction in speed are expensive and tend to be no more than 60-70% efficient, thereby reducing the total efficiency of the screw pump, including its transmission to about 50-60%. Screwpumps also present a safety hazard by having a potentially dangerous open rotor and should therefore be fitted with mesh guards. Finally, they cannot cater for much change in level of the water source, unless provision is made to raise or lower the entire unit and also the maximum head that can be handled will not exceed much more than 6m in most cases, and will normally be no more than 4 or 5m for smaller screw pumps.
Fig. 49 Cross-section through an open screw pump
Fig. 50 Hydrostatic pressure pumps
These pumps use a similar principle to the Archimedean screw except that they run horizontally while the Archimedean screw is tilted at about 30°. The coil and spiral pump family, if fitted with a suitable rotating seal, can deliver water to a greater height, typically 5-10m, above their discharge opening. Fig 50 A shows a spiral pump and B shows a coil pump.
Both these pumps work on the same principle, involving either a spiral or a coiled passage (in the latter case a coiled hosepipe serves the purpose) rotating on a horizontal axis. One end of the passage is open at the periphery and dips into the water once per revolution, scooping up a pool of water each time. Due to the shape of the spiral or the coil, sufficient water is picked up to fill completely the lower part of one turn, thereby trapping air in the next turn. The pools of water progressively move along the base of the coil or of the spirals as the pump turns, exactly like an Archimedean Screw. However, when acting against a positive head, the back-pressure forces the pools of water slightly'. back from the lowest position in each coil as they get nearer to the discharge; so they progressively take up positions further around the coil from the lowest point. The maximum discharge head of either type of pump is governed, by the need to avoid water near the discharge from being forced back over the top of a coil by the back pressure, so this is still a low head device.
The spiral pump has to be designed so that the smaller circumferences of the inner loops are compensated for by an increased radial cross section, so it would normally be fabricated from sheet metal; the coil pump is of course much easier to build.
This type of pump was originally described in the literature as long ago as 1806 and has attracted much fresh interest recently, with research projects on it at the universities of California (USA), Salford (UK), Los Andes (Colombia) and Dar es Salaam (Tanzania), [16]. Although historically the coil pump was used as a ship's bilge pump, today it is finding favour for use in river current powered irrigation pumps by, for example, the Royal Irrigation Department of Thailand (see Fig. 153) and also similarly by Sydfynsgruppen and the Danish Boy Scouts for an irrigation project in south Sudan, with support from Danida and on the Niger near Bamako in Mali, under a project supported by the German aid agency BORDA. Chapter 4.9 deals with some of the practical applications of this device.
The advantages of these devices are their inherent mechanical simplicity combined with the fact that, unlike an Archimedean screw, they can deliver into a pipe to a head of up to about 8-10 m, making them more versatile. The only difficult mechanical component is a rotary seal to join a fixed delivery pipe to the rotating output from the coil. They are ideal for water wheel applications due to the low speed and high torque needed, (which is where most of the research effort appears to be concentrated).
Their main disadvantage is that their output is small unless rather large diameter hose is used, being proportional to the capacity of the lower part of one turn of hose per revolution. A simple calculation indicates that a significant and not inexpensive length of hose is needed to produce an adequate coil pump, (e.g. just 20 coils of only 1.5m diameter needs nearly 100mm of hose). Supporters of this concept argue that its simplicity, suitablility for local improvization and reliability should compensate for these high costs, but this type of pump has so far not been popularized successfully for general use and it does not exist as a commercial product.
Fig. 51 Paddle-wheel or tread-wheel
These devices are, in effect, rotary versions of the simple scoop; however instead of one scoop being moved back and forth, a number are set around the periphery of a wheel, (Fig. 51). Like the scoop a paddle wheel is only useful for very low lift pumping, such as flooding paddy fields at no more than about 0.5m height above the water source.
The simplest version is the paddle-wheel in which an operator walks directly on the rim, turning it so that it continuously and steadily scoops up water and deposits it over a low bund, (Fig. 51). In its basic form the paddle wheel is not very efficient since a lot of the water lifted flows back around its edges. Therefore an improved version involves encasing the wheel in a closely fitting box which not only reduces the back-leakage of water but also slightly increases the head through which the device can operate.
Paddle wheels have been mechanized in the past, although they are unusual as water lifting devices today. Many of the windmills used in the Netherlands to dewater large parts of the country drove large paddle wheels, which when mechanized and refined, are usually known as flash wheels. Flash-wheels function best with raked back blades, and the best had measured efficiencies in the range 40-70%. Small straight-bladed paddle-wheels are probably only 10 or 20% efficient, but have the virtue of being simple to build and install in situations were a lot of water needs to be lifted through a small head. They are occasionally used on traditional windpumps, as shown in Fig. 110.
The main disadvantage of the paddle wheel just described is that to lift water through a greater height a bigger wheel is needed. The water ladder was developed to get around this problem by taking the paddles and linking them together in an endless belt which can be pulled along an inclined open wooden trough or flume (Fig. 52). The endless belt is driven by a powered sprocket, at the discharge end, and passes around a free-wheeling sprocket at the lower end. The lower end of the trough or flume is submerged, so that the moving paddles in the belt, which almost fill the cross section of the flume, push water up it. In many ways this method of water lifting is analagous to a screw pump which also pushes water trapped between the blades of a mechanism up a flume. As with the screw pump there is some back-leakage, but with a well-built unit, this is but a small fraction of the high flow that is established.
The water ladder is still very widely used on small farms in S E Asia for flood irrigation of small fields and paddies from open streams and canals or for pumping sea water into evaporation pans to produce sea salt. In China it is known as a "dragon spine" or dragon wheel" and in Thailand as "rahad". In most cases it is made mainly of wood, and can consequently easily be repaired on-farm. It is one of the most successful traditional, high-flow, low-lift water pumping devices and is particularly applicable to rice production, where large volumes of water are sometimes needed.
On traditional Chinese water ladders, the upper sprocket is normally driven by a long horizontal shaft which traditionally is pedalled by from two to eight people working simultaneously; (Fig. 52). The treadles are spaced on the drive shaft so that one or more of the operators applies full foot pressure at any moment, which helps to smooth the torque output and keep the chain of boards tensioned and running smoothly.
Fig. 52 Water ladder or Chinese 'Dragon Spine' pump
Versions of it have been mechanized by using windmills (see Fig. 111), (in Thailand as well as China), or a buffalo sweep (China) or with small petrol (gasoline) engines.
Water ladders range in length from 3 to 8m and in width from 150 to 250mm; lifts seldom exceed 1.0 to 1.2m, but two or more ladders are sometimes used where higher lifts are required. A rough test made in China with a water ladder powered by two teams of four men (one team working and one resting) showed an average capacity of 23m3/h through a lift of 0.9m [1]. Further details of Chinese water ladders are given in Table 6.
Table 6 SPECIFICATIONS OF CHINESE "DRAGON-SPINE" WATER LIFTS
| Name of product |
Specifications of products |
Weight |
Volume |
Factory |
||
|
Length of trough (m) |
Dimensions
of |
|||||
|
Single man hand -turning water lift |
1.5 |
0.18 x 0.14 |
18 |
0.2 |
46 |
|
|
1.8 |
0.18 x 0.14 |
20 |
0.2 |
50 |
||
|
2.0 |
0.18 x 0.14 |
22 |
0.2 |
57 |
||
|
2.3 |
0.18 x 0.14 |
24 |
0.3 |
64 |
||
|
3.0 |
0.18 x 0.15 |
30 |
0.3 |
76 |
||
|
3.5 |
0.18 x 0.15 |
35 |
0.3 |
80 |
||
|
Two men treadling water lift |
2.3 |
0.25 x 0.20 |
50 |
0.3 |
93 |
|
|
3.0 |
0.25 x 0.20 |
55 |
0.4 |
106 |
||
|
Four men treadling water lift |
3.5 |
0.25 x 0.19 |
70 |
0.5 |
126 |
|
|
4.1 |
0.25 x 0.19 |
75 |
0.5 |
138 |
||
|
4.7 |
0.25 x 0.19 |
85 |
0.6 |
151 |
||
|
5.3 |
0.25 x 0.19 |
105 |
0.7 |
165 |
||
|
Wind powered water lift of diagonal web member |
3.5 |
0.25 x 0.19 |
335 |
1.1 |
609 |
Wind sail wheel 4-6m in diameter, coupled with a water lift |
|
4.1 |
0.25 x 0.19 |
345 |
1.2 |
622 |
||
|
4.7 |
0.25 x 0.19 |
350 |
1.2 |
635 |
||
Remarks: The products in the table are made by Chengqiao Water Lift and Agricultural Tool Plant, Hangjiang Commune, Putian County.
Tests on a traditional wooden water ladder powered by a 2-3hp engine were carried out in Thailand in 1961 [16]. The trough was 190mm deep by 190mm wide and the paddles were 180mm high by 150mm wide and spaced 200mm apart; note that the clearance was quite large, being 20mm each side. The principle findings of this study were:
It is possible that if a smaller clearance had beer: used between the paddle edges and the trough, a higher efficiency 'may have resulted; no doubt the optimum. spacing is quite critical. If it were too small, friction would become excessive and possibly cause frequent breakage; of the links, while if too large, brick-leakage becomes excessive and reduces the overall efficiency.
The origins of this type of pump go back over 2 000 years, and they work on a similar principle to the water ladder just described except that instead of pulling a series of linked paddles through an open inclined flume or trough, a series of Linked discs or plugs are pulled through a pipe (Figs. 53, 84 and 96). As with the ladder pump, they lend themselves to human, animal or mechanical prime-movers and are most commonly powered by either a team of two to four people or by a traditional windmill.
Fig. 53(a) Chinese Liberation Wheel chain and washer pump - an animal-powered version is shown in Fig. 96
Fig. 53 (b)A view of a hand-operated liberation pump
As discussed in more detail in the next sections covering the use of human and animal power, a major advantage of this kind of pump is that it requires a steady rotary power input which suits the use of a crank drive with a flywheel, which is a mechanically efficient as well as a comfortable way of applying muscle power. It also readily matches with engines and other mechanical prime-movers.
The main advantage of the chain and washer pump is that it can be used over a wide range of pumping heads; in this respect it is almost as versatile as the commonly used reciprocating bucket pump as it is applicable on heads ranging from 1m to over 100m. For low lifts, loose fitting washers are good enough to lift water efficiently through the pipe, since back-flow will remain a small and acceptable fraction of total flow. At higher lifts, however, tighter fitting plugs rather than washers are necessary to minimize back-leakage; many materials have been tried, but rubber or leather washers supported by smaller diameter metal discs are commonly used. Most chain and washer pumps have a bell mouth at the base of the riser pipe to guide the washers smoothly into the pipe. With higher lift units where a tighter fit is needed, this is only necessary near the lower end of the riser pipe; therefore the riser pipe usually tapers to a larger diameter for the upper sections to minimize friction (see Fig. 53 ).
The capacity of a chain and washer pump is a function of the diameter of the riser pipe and of the upward speed of the chain. For example, four men are necessary to power a unit with 6m lift and a 100mm riser tube, [1].
Chain and washer pumps have been, and still are in very widespread use, especially in China, where industrially manufactured pumps of this kind are commonly used and are often known as "Liberation Pumps". They represented in development terms in China a major improvement over more traditional and primitive water lifting techniques and an interim step to modernisation using powered centrifugal pumps. Two to three million Liberation Pumps were used in China at the peak of their use in the 1960s [17]. The following performance characteristics relate to typical chain and washer pumps used in China:
|
motive |
pumping |
discharge |
efficiency |
|
power |
head |
rate |
(pump only) |
|
2 men |
6m |
5-8m3/h |
76% |
|
donkey |
12m |
7m3/h |
68% |
|
3kW(e) motor |
15m |
40m3/h |
65% |
This indicates that the chain and washer pump is not only versatile, but also rather more efficient than most pumps. It also has an important characteristic for a positive displacement pump of generally needing less torque to start it than to run it, which makes it relatively easy to match to prime-movers having limited starting torque.