Previous Page Table of Contents


Enclosures


Suppliers' List
Plants Layout (4)
General Flow Sheet
List of Literature; Energy Generation and Wood Based Fuels

Suppliers' List

The firms have been chosen for the following suppliers' list according to two main principles:

- a large geographical coverage

- preference has been given to firms manufacturing equipment mainly for small size plants.

Although the list includes nearly 40 firms from 15 countries it naturally covers only a fraction of all firms manufacturing power and heat plant equipment. Especially small scale boilers and fuel handling equipment are manufactured by a multitude of firms throughout the world. Many of these are rather small, supplying only a domestic market. There has been no possibility to list them all in the following suppliers' list. The possible absence of some firm from the list must however not be regarded as an opinion about the quality or fitness of its products.

Name and address of manufacturer

Manufacturing program

Selected references

Belgium

Lambiotte & Cie Energie s.a./n.v.
Avenue Brugman 290, 1180 Brussels,
Phone 02/343 01 46, Telex 61588

Various wood conversion equipment Gas generators and producer gas engines.

A few deliveries of gasification equipment to developing countries.

PVBA Vyncke Warmtetechniek
Gentsesteenweg 224, 8730 Harelbecke,
Telex 85 416

Wood fired water and steam boilers in the capacity range of 800... 3500 kW. Output pressure 1.5... 17 bar.

No reference list available.

Canada

Foster Wheeler Limited
P.O. Box 3007, St. Catharines, Ontario
L2R 7B7, Phone 416 684 8321,
Telex 061 5134

Boilers for a wide range of capacities and fuels including wood and wood wastes.

Several export deliveries.

Czechoslovakia

Skodaexport
Vaclavska Nam. 56, Prague 1,
Phone Prague 2131, Telex 011 428

Steam turbines from 1 MW

Several export deliveries to developing countries.

German Democratic Republic

VEB Bergmann Borsig/Görlitzer
Maschinenbau, Technocommerz GmbH,
Taubenstrasse 4-6, 108 Berlin,
Phone 220271, Telex Oil 2461

Steam turbines from 1 MW

Several export deliveries

Finland

Kone Corporation, Head Office
P.O. Box 8, SF-00331 Helsinki 33
Phone (90) 45801, Telex 124466

A broad range of materials handling equipment

Subsidiaries and joint ventures in several countries

Kymi Kymmene Metalli
18100 Heinola, Phone 910/55270,
Telex 16812

Water and steam boilers for various fuels, including wood and wood wastes. Capacities from about 1 MW.

Mainly domestic deliveries

Oy Vapor Ab
PL 46, 21200 Raisio,
Phone 921/783580, Telex 62-347

Water and steam boilers for various fuels, including wood and wood wastes. Capacities from about 1 MW.

Mainly domestic deliveries.

Witermo Oy
PL 15, 20781 Kaarina,
Phone 921/432 800, Telex 62-339

Water and steam boilers for various fuels, including wood and wood wastes. Capacities from about 1 MW.

A number of export deliveries to European countries.

France

Creusot-Loire
15 rue Pasquier, 75383 Paris Cedex 08,
Phone 260 36 72, Telex 65309

Steam turbines for naval and industrial use from 250 to 30 000 kW.

Some 40 deliveries to developing countries since 1971.

Duvant Moteurs Diesel
Boile Postale 2 36, 59308 Valenciennes,
Telex Valci 1552

Producer gas engines

No list of references available.

Fives Cail Baboock
7 rue Montalivet, 75383 Paris Cedex 08,
Phone 265 22 01, Telex 65328

Industrial steam turbines in the range of 300...25 000 kW.

Some 200 deliveries to developing countries in the years 1950...1977.

Hungary

Maschinenfabrik Lang, Transelektro
P.O. Box 377, 1394 Budapest

Steam turbines. Industrial units in the range of 530...41 000 kW.

Several export deliveries.

India

Westerwork Engineers Ltd.
15 Bhandup Village Road, Phandup
Bombay 400 078, Phone 58 23 01, Telex 114947

Steam boilers for rice husk, wood shavings and sawdust. Output capacity up to 4 t/h.

No list of references available.

Japan

Kawasaki Heavy Industries, Ltd.
World Trade Center Bldg. 4-1, 2-chome
Hamamatsu-cho, Minato-ku, Tokyo,
Phone Tokyo 03 (435) 2295, Telex 22672

A large boiler program including waste wood fired boilers for saturated steam up to 25 bar. Output range 3...35 t/h.

Domestic deliveries only.

Shin Nippon Machinery Co., Ltd.
Sero Blgd., 1-28. Shiba 2-chome,
Minato-ku, Tokyo,
Phone 03 (454) 1411, Telex 242-4302

Steam turbines on US and German licenses. Output range 500...15 000 kW.

Over 200 export deliveries since 1963. Most of them to developing countries.

Takuma Co., Ltd.
3-23, Dojima Hama 1-chome,
Kita-ku Osaka
Phone (06) 346-5161, Telex 0523-3672

Steam boilers for various fuels and capacities including waste wood fired units for saturated steam at max. 20 bar. Output range 6...30 t/h.

No list of references available.

Malaysia

Folin & Brothers Sdn Bhd
Petaling Jaya, Lot 16 Jalan 223
Telex 37570

Fire and water tube boilers up to 18 bar. Output range 1.5... 16 t/h.

No list of references available.

Peru

Metal Empresa S.A.
Jr. V.A. Belaunde 852, 10069 Lima
Phone 525140, Telex 25554

Wood fired steam boilers

No list of references available.

Sweden

Erjo Maskiner AB
Vittarydsvägen, S-34014 Lagan
Phone 0372/30880

Chippers and shredders

Several export deliveries

Stal-Laval Turbin Ab
61220 Finnspong,
Phone 0122-81000

A wide range of steam and gas turbines, including industrial steam turbines from 1 MW.

Several export deliveries.

Wennberg AB
Fack 25101, Karlstad 1

Different types of conveyors

Several export deliveries

Ånga och Wärme Ab
Olofsdalv., Halmstad Telex 38091

Wood waste fired boilers from 0.8 to, 15 MW.

A number of export deliveries

United Kingdom

A.P.E. - Alien Limited
Queens Engineering Works,
Bedford, Phone Bedford (0234) 67400,
Telex 82 486

Steam turbines. Industrial units up to 25 MW.

Some 100 back-pressure units exported in the years of 1960...1975. More than 50 % to developing countries.

USA

Babcock & Wilcox Company
Industrial and Marine Division
P.O. Box 2423
North Canton, Ohio 44270

Boilers for various capacities and fuels, including wood fired units.

Several export deliveries.

Biomass Corporation
951 Live Oak Boulevard,
Yuba City, California 95991,
Phone (916) 674-7230

Wood gasifiers

No reference list available.

CNB Tri-Fuel Boiler
Combustion Service & Equipment Company
2016 Babcock Blvd.
Pittsburgh, Pennsylvania 15209

Boilers for various capacities and fuels, including wood fired units.

No reference list available.

Combustion Engineering, Inc
Industrial Boiler Operations
Windsor, Connecticut 0605

Boilers for various capacities and fuels, Including wood fired units.

Several export deliveries.

Deltak Corporation
P.O. Box 9496
Minneapolis, Minnesota 55440

Boilers for various capacities and fuels, including wood fired units.

No reference list available.

Foster Wheeler Corporation
666 Fifth Avenue
New York, New York 10019

Boilers for various capacities and fuels, including wood fired units.

Several export deliveries.

Wellons, Inc.
P.O. Box 381
Sherwood, Oregon 97140

Boilers for various capacities and fuels, Including wood fired units.

No reference list available.

Zurn Industries, Inc.
Energy Division
1422 East Avenue
Erie, Pennsylvania 16503

Boilers for various capacities and fuels, including wood fired units.

No reference list available.

Federal Republic of Germany

AEG-Kanis Turbinenfabrik GmbH
Frankenstrasse 70-80, 8500 Nürnberg,
Phone (0911) 4130-1, Telex 06-22731

A large program of gas and steam turbines, including industrial units from 300 to 80 000 kW.

Several export deliveries.

Blohm + Voss AG.
Postfach 720, 2 Hamburg 1,
Phone 3061, Telex 0211047

Naval and industrial steam turbines from 300 to 4500 kW.

Several export deliveries.

Eisenwerk Theodor Loos GmbH
8820 Gunzenhausen,
Phone 09831/640, Telex 61243

Water and steam boilers for various fuels, including wood waste fired units from 1 to 28 t/h.

No list of references available.

Imbert Energietechnik
Steinweg 11, 5760 Arnsberg 2,
Phone 029 (31)-3549, Telex 84222

Producer gas engines

No list of references available.

H. Jenz Maschinen - und Fahrzeugban
Wegholm 167, 4953 Petershagen
Phone 05704/662, Telex 097853

Chippers and shredders

Several export deliveries.

Konus-Kessel Gesellschaft für Wärmetechnik mbH + Co KG
Robert-Bosch-Strasse 3-5,
Postfach 1509, 6830 Schwetzingen,
Phone (06202) 4011, Telex 4-65829

Water, steam and oil boilers for various types of waste fuels, including wood waste fired units in the range of 0.5... 7.3 MW.

A number of deliveries to developing countries.

Maschinenfabrik A. Lambion
3548 Arolsen-Wetterburg,
Telex 0994532

Water and steam boilers for solid fuels. Output range from some 1.0 MW.

No list of references available.

Conrad Scholtz Aktiengesellschaft
Postfack 10 849, 2 Hamburg 70
Phone (040) 694 04-1, Telex 0211588

Conveying equipment

Several export deliveries

Spillingwerk Hamburg GmbH
Wertstrasse 5, 2 Hamburg 11,
Phone 040/781335, Telex 2163419

Steam engines. Multi-unit sets from about 50 kW.

Several export deliveries.

Standardkessel Duisburg
Wilhelmshöhe 3, 4100 Duisburg,
Phone (0203) 4521, Telex 0855850

Water and steam boilers for various fuels, including wood wastes.

No list of references available.

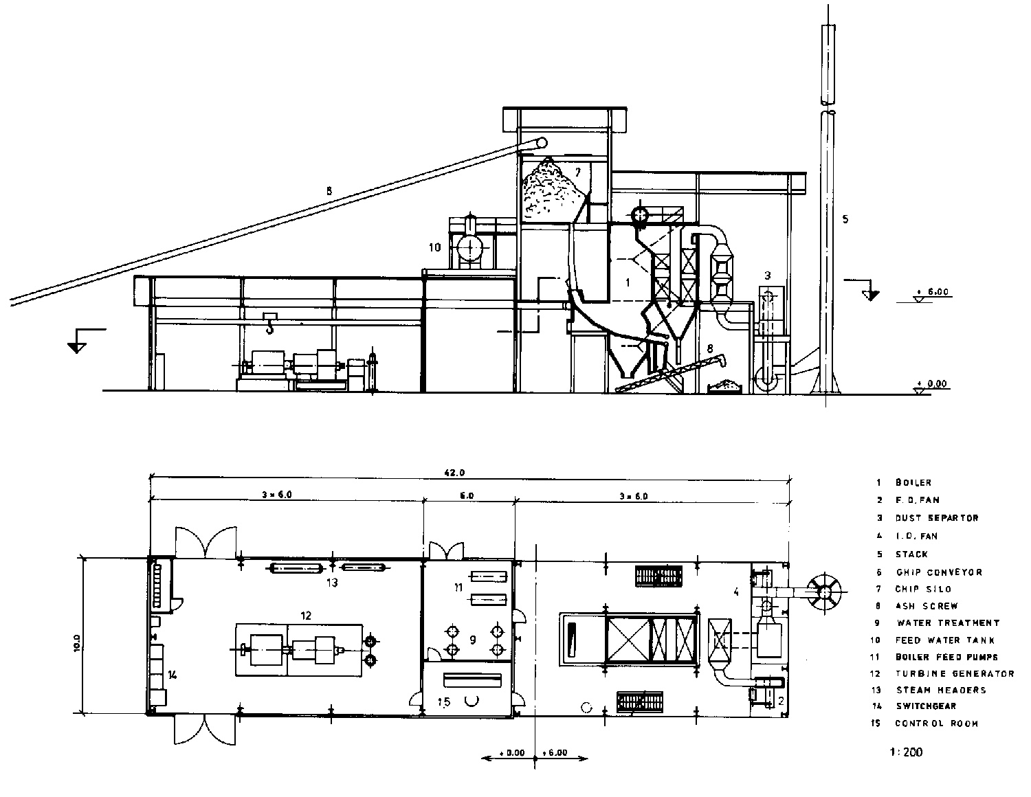
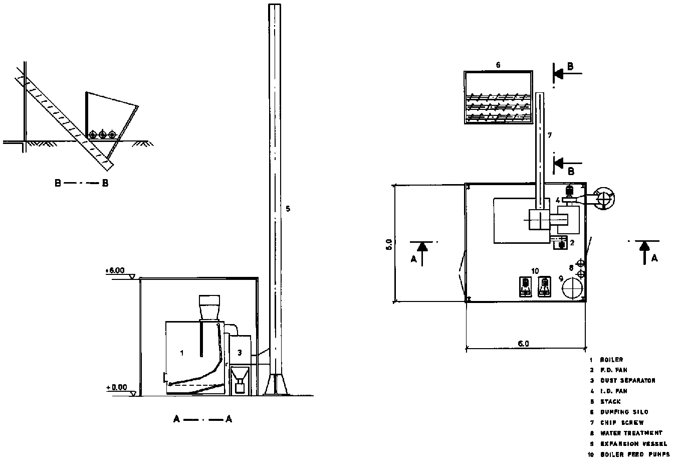
Plants Layout (4)

HEAT PLANT A LAY-OUT - 8009D259

HEAT PLANT B LAY-OUT - 8009D260

HEAT PLANT C LAY-OUT - 8009D261

POWER PLANT D LAY-OUT - 7944D028

General Flow Sheet

WOOD FIRED POWER PLANT GENERAL FLOW SHEET - 8008E102

WOOD FIRED HEAT PLANT GENERAL FLOW SHEET - 8031E032

List of Literature; Energy Generation and Wood Based Fuels

1. Johnson, Robert C.: "Some aspects of wood waste preparation for use as fuel". TAPPI, 58 (1975) July, pp. 102...106.

2. Newby, W.M.: "An overview of combustion technology available to the pulp and paper industry, parts 1...3". Paper Trade Journal, 1980 May 15, pp. 30...34, May 30, pp. 33...41, June 15, pp 30...32.

3. Ramalingam, K.K. & Ramaswami, A.: "Heat Power Engineering". Madras, Directorate of Technical Education Tamil Nadu, 1977. 258 p.

4. Shelton, Jay & Shapiro, Andrew B.: "The woodburners encyclopedia. An information source of theory, practice and equipment relating to wood as energy". Waitsfield, Vt. 1978. 160 p.

5. "Steam, its generation and use". Publ. by Babcock & Wilcox, New York. 1978. 550 p.

6. Tillman, A. David, et al.: "Fuels and Energy From Renewable Resources". New York, Academic Press. 1977. 342 p.

7. Virian, John: "Wood heat". 2. rev. ed. Emmaus, Pa. 1978. 428 p.

8. Woodruff, Everett B. & Lammers, Herbert B.: "Steam-Plant Operation". Fourth edition. New York, Mc Graw-Hill. 1977. 630 p.


Previous Page Top of Page